Скачать Типовой проект 902-2-411.86 Альбом III. Часть I. Нестандартизированное оборудованиеДата актуализации: 01.01.2021
|
| Обозначение: | Типовой проект 902-2-411.86 |
| Обозначение англ: | 902-2-411.86 |
| Статус: | не определен законодательством |
| Название рус.: | Альбом III. Часть I. Нестандартизированное оборудование |
| Дата добавления в базу: | 01.09.2013 |
| Дата актуализации: | 01.01.2021 |
| Дата введения: | 01.08.1986 |
| Дата окончания срока действия: | 30.06.2003 |
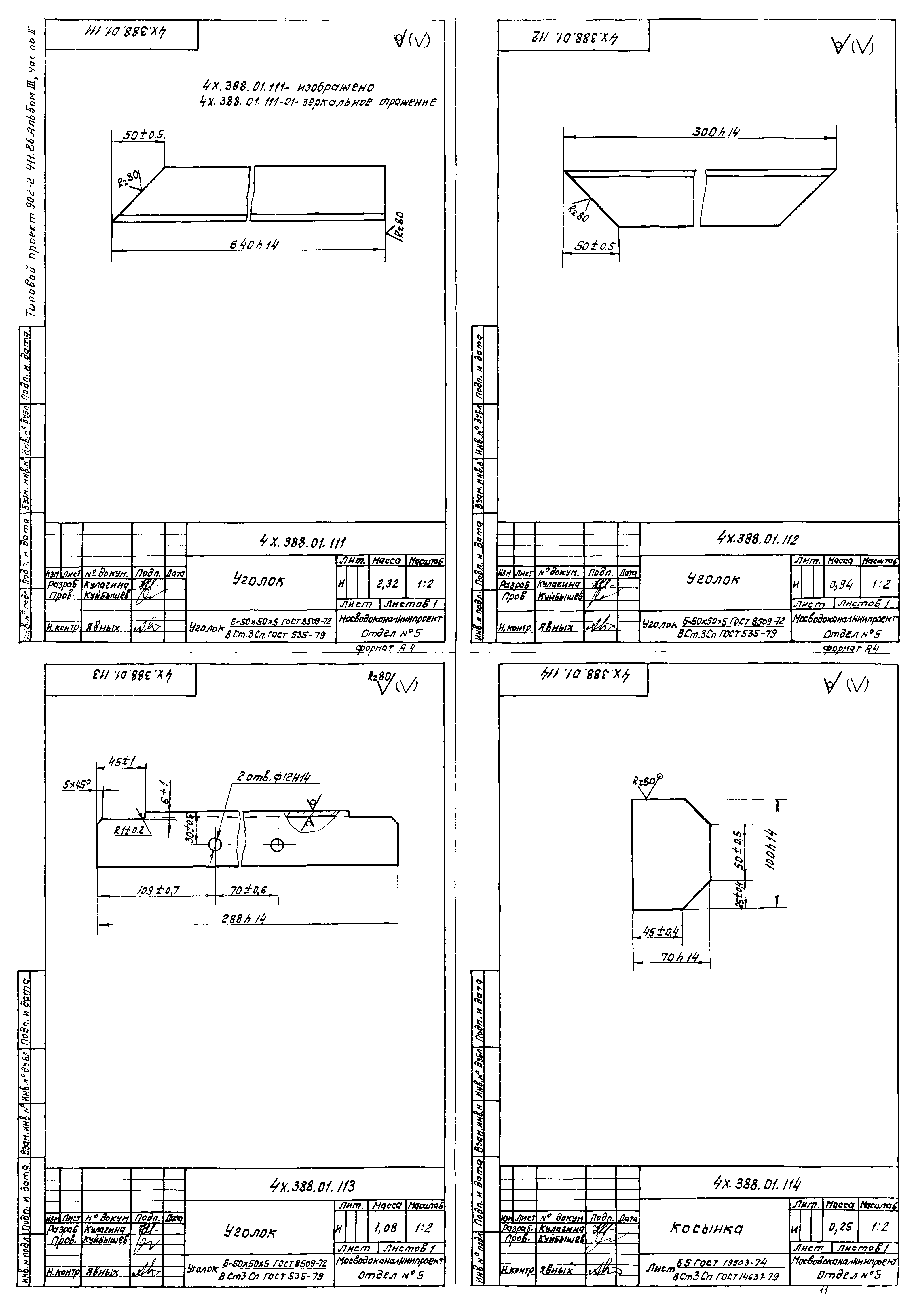
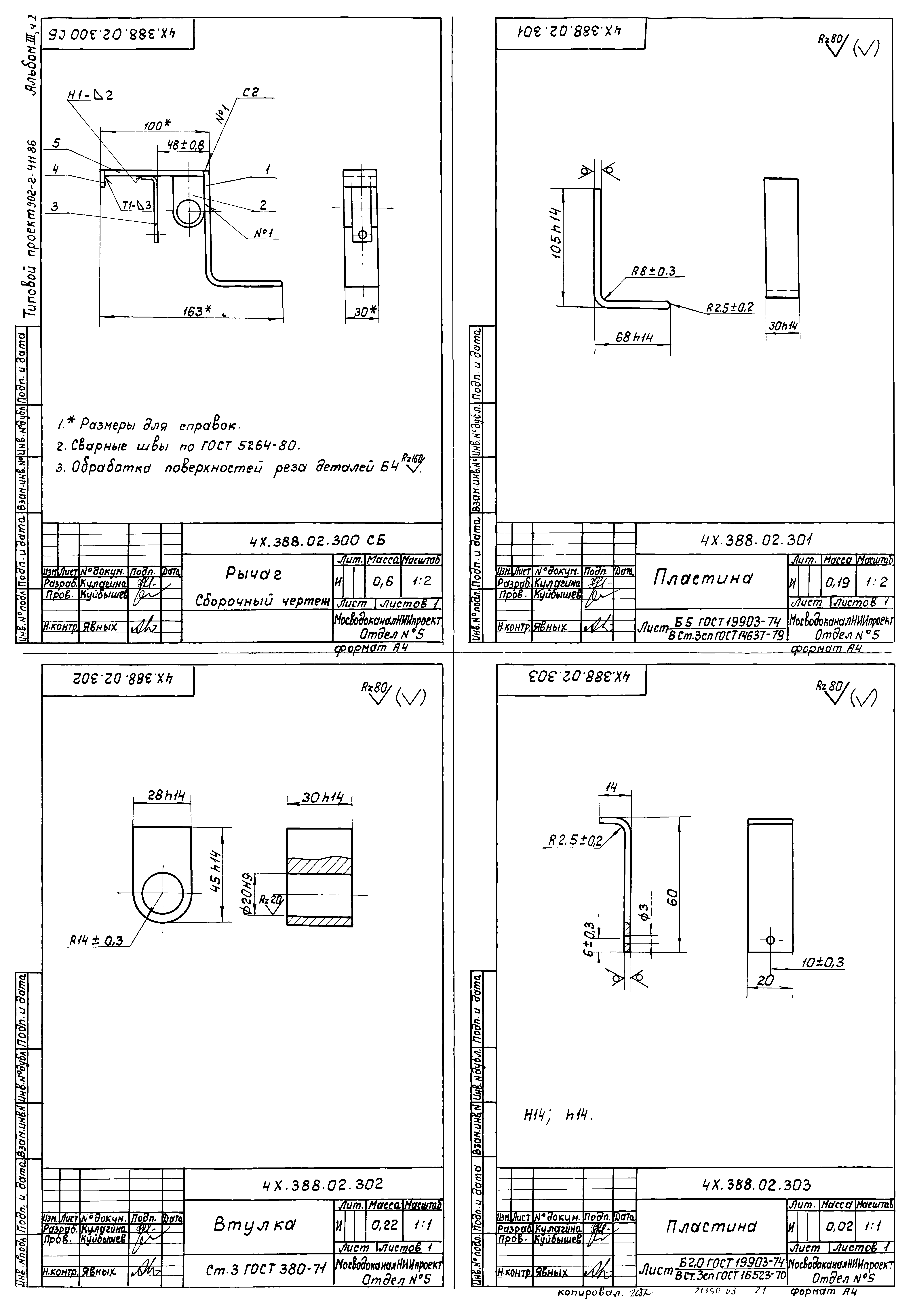
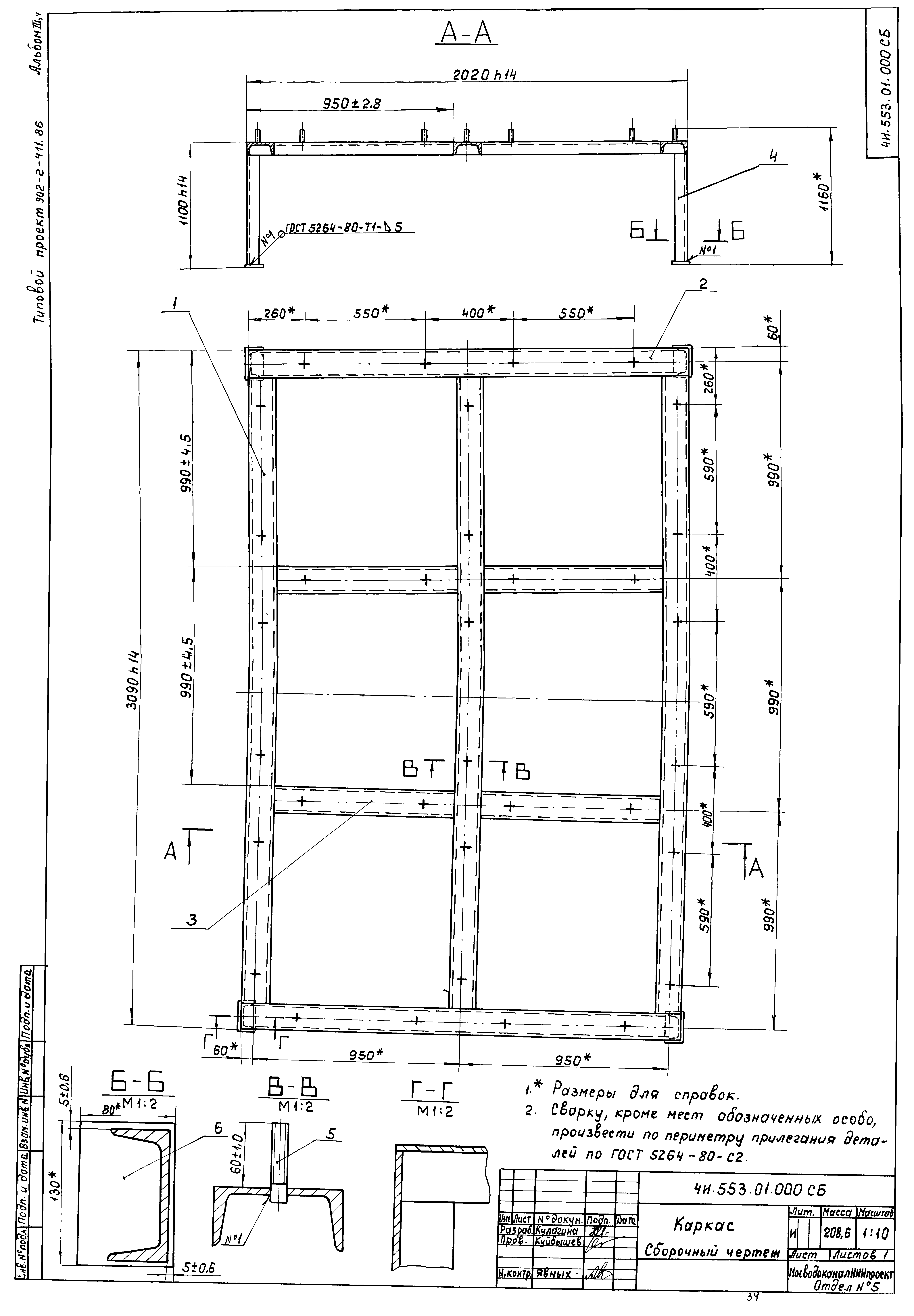
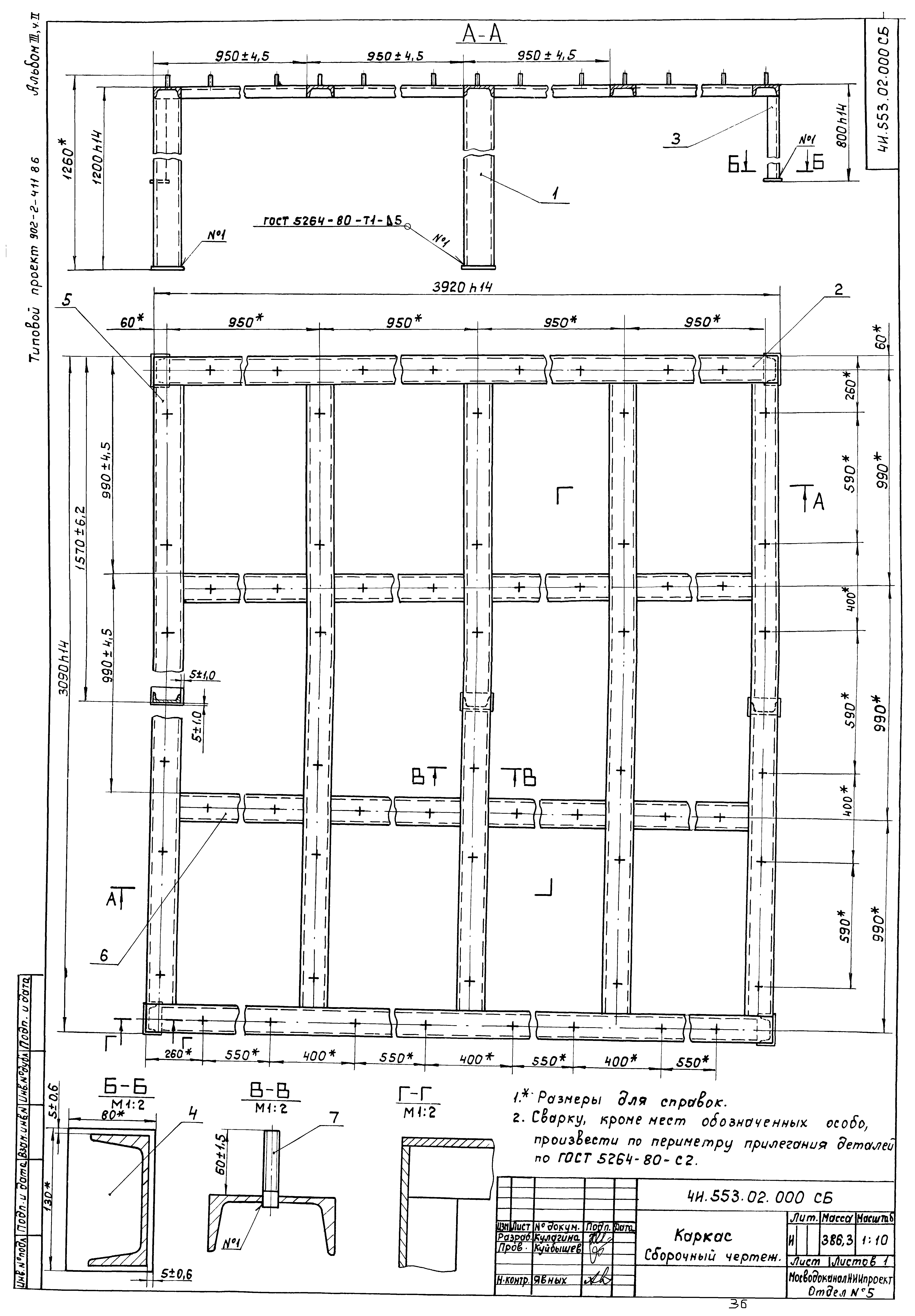
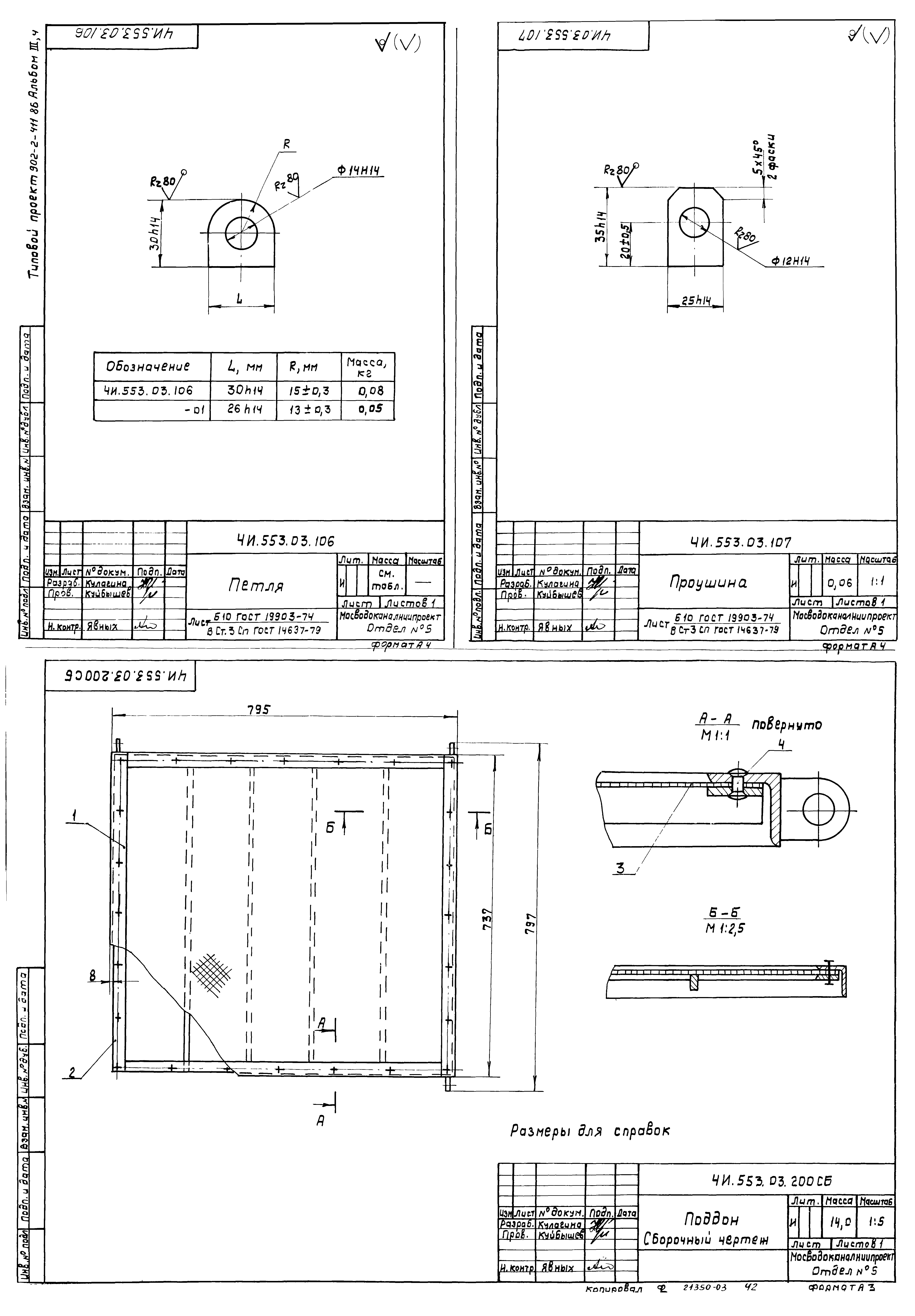
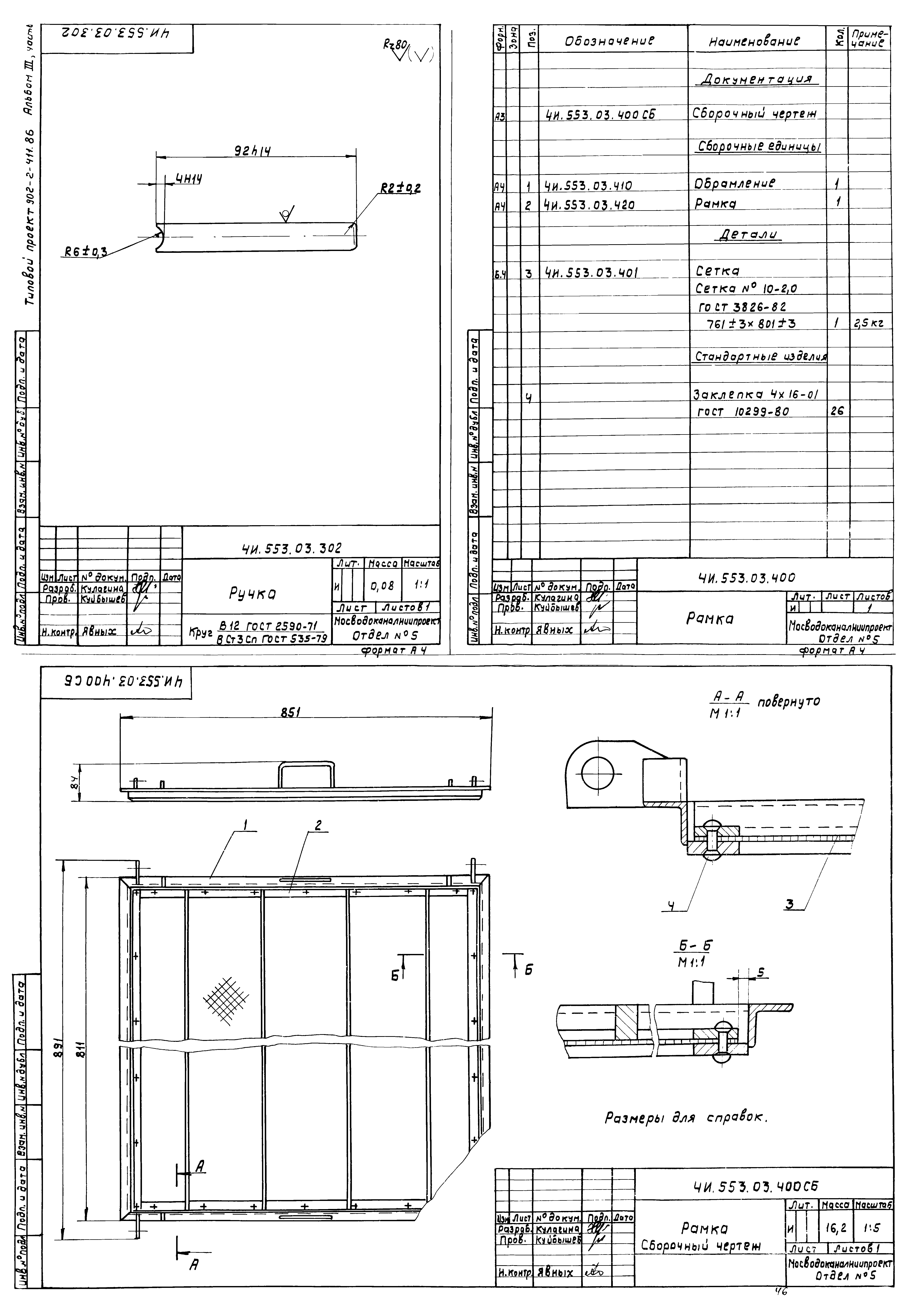
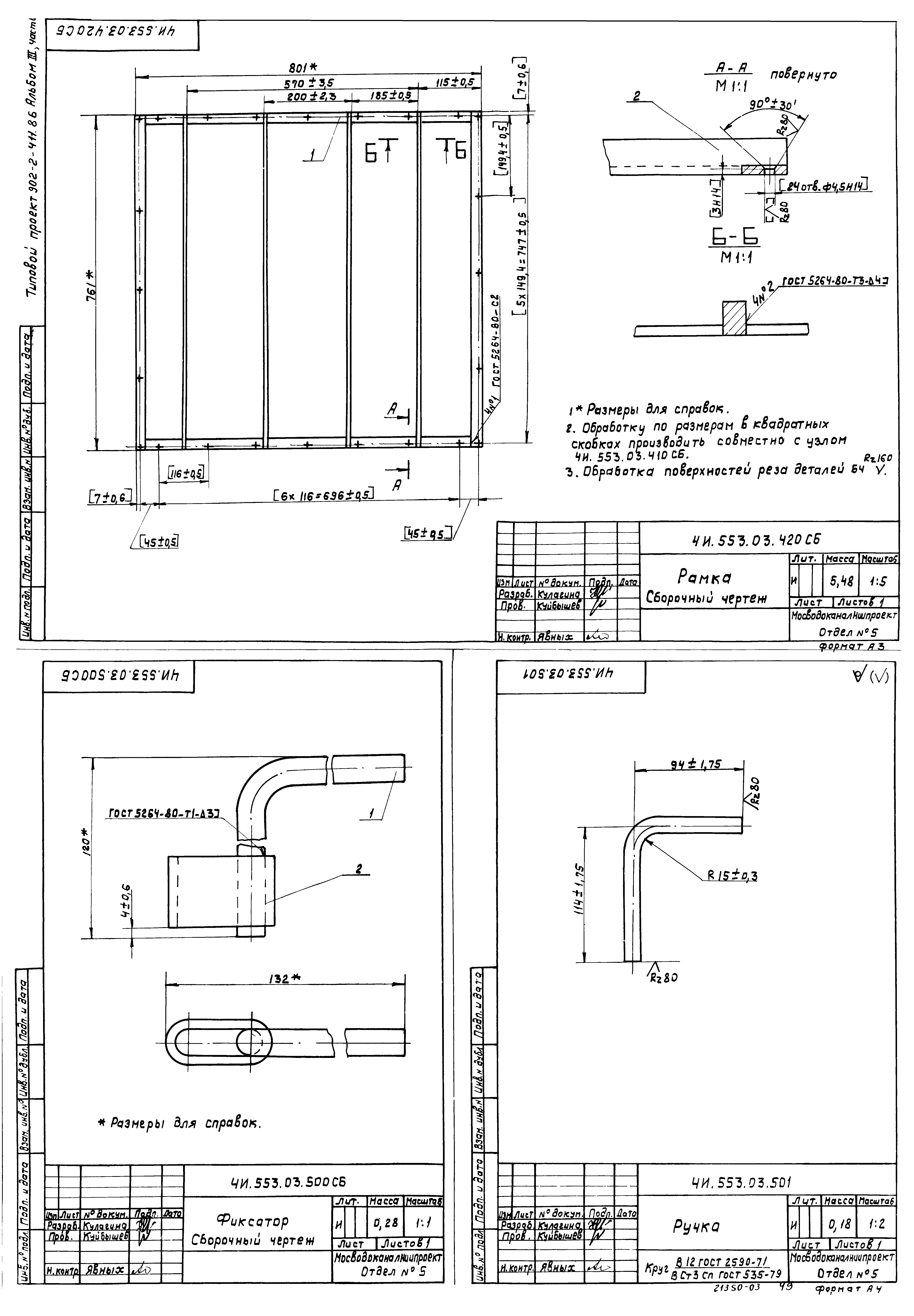
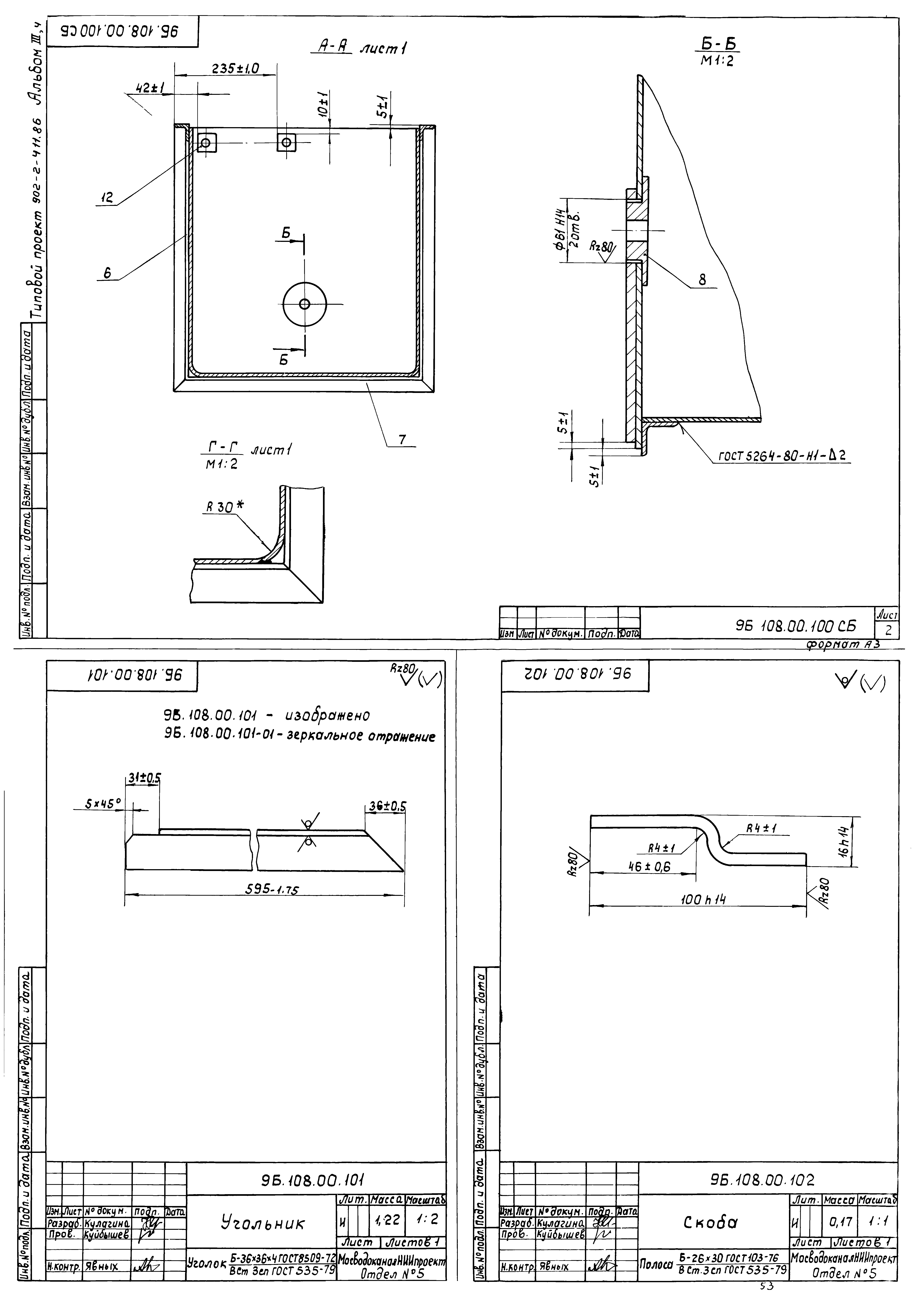
| Оглавление: | Часть 1 ТП-902-2-411.86 Содержание альбома ТП-902-2-411.86 4Х.387.00.000 СБ Устройство скребковое для сбора мазута ТП-902-2-411.86 4Х.387.00.000 Устройство скребковое для сбора мазута. Спецификация ТП-902-2-411.86 4Х.387.01.000 Привод. Спецификация ТП-902-2-411.86 4Х.387.01.000 СБ Привод ТП-902-2-411.86 4Х.387.01.100 СБ Стойка ТП-902-2-411.86 4Х.387.01.100 Стойка. Спецификация ТП-902-2-411.86 4Х.387.01.110 Рама. Спецификация ТП-902-2-411.86 4Х.387.01.110 СБ Рама ТП-902-2-411.86 4Х.387.01.111 Уголок ТП-902-2-411.86 4Х.387.01.112 Уголок ТП-902-2-411.86 4Х.387.01.113 Уголок ТП-902-2-411.86 4Х.387.01.114 Косынка ТП-902-2-411.86 4Х.387.01.101 Пружина ТП-902-2-411.86 4Х.387.01.200 Стойка. Спецификация ТП-902-2-411.86 4Х.387.01.200 СБ Стойка ТП-902-2-411.86 4Х.387.01.210 СБ Стойка ТП-902-2-411.86 4Х.387.01.210 Стойка. Спецификация ТП-902-2-411.86 4Х.387.01.211 Скоба ТП-902-2-411.86 4Х.387.01.300 СБ Колесо замерное ТП-902-2-411.86 4Х.387.01.300 Колесо замерное. Спецификация ТП-902-2-411.86 4Х.387.01.301 Лента мерная ТП-902-2-411.86 4Х.387.01.302 Диск ТП-902-2-411.86 4Х.387.01.400 Барабан. Спецификация ТП-902-2-411.86 4Х.387.01.400 СБ Барабан ТП-902-2-411.86 4Х.387.01.401 Диск ТП-902-2-411.86 4Х.387.01.402 Поводок ТП-902-2-411.86 4Х.387.01.001 Вал ТП-902-2-411.86 4Х.387.01.002 Козырек ТП-902-2-411.86 4Х.387.01.003 Полукольцо ТП-902-2-411.86 4Х.387.02.000 СБ Скребок ТП-902-2-411.86 4Х.387.02.000 Скребок. Спецификация ТП-902-2-411.86 4Х.387.02.100 Щит. Спецификация ТП-902-2-411.86 4Х.387.02.100 СБ Щит ТП-902-2-411.86 4Х.387.02.101 Труба ТП-902-2-411.86 4Х.387.02.102 Подвеска ТП-902-2-411.86 4Х.387.02.103 Уголок ТП-902-2-411.86 4Х.387.02.103-01 Уголок ТП-902-2-411.86 4Х.387.02.200 Ползун. Спецификация ТП-902-2-411.86 4Х.387.02.200 СБ Ползун ТП-902-2-411.86 4Х.387.02.201 Ребро ТП-902-2-411.86 4Х.387.02.202 Основание ТП-902-2-411.86 4Х.387.02.203 Ось ТП-902-2-411.86 4Х.387.02.204 Пластина ТП-902-2-411.86 4Х.387.02.300 Рычаг. Спецификация ТП-902-2-411.86 4Х.387.02.300 СБ Рычаг ТП-902-2-411.86 4Х.387.02.301 Пластина ТП-902-2-411.86 4Х.387.02.302 Втулка ТП-902-2-411.86 4Х.387.02.303 Пластина ТП-902-2-411.86 4Х.387.02.001 Колесо храповое ТП-902-2-411.86 4Х.387.02.002 Пружина ТП-902-2-411.86 4Х.387.03.000 СБ Блок поддерживающий ТП-902-2-411.86 4Х.387.03.000 Блок поддерживающий. Спецификация ТП-902-2-411.86 4Х.387.03.100 Кронштейн. Спецификация ТП-902-2-411.86 4Х.387.03.100 СБ Кронштейн ТП-902-2-411.86 4Х.387.03.101 Основание ТП-902-2-411.86 4Х.387.03.102 Стойка ТП-902-2-411.86 4Х.387.03.001 Ось ТП-902-2-411.86 4Х.387.03.002 Держатель ТП-902-2-411.86 4Х.387.03.003 Ролик ТП-902-2-411.86 4Х.387.04.000 Блок отклоняющий. Спецификация ТП-902-2-411.86 4Х.387.04.000 СБ Блок отклоняющий ТП-902-2-411.86 4Х.387.04.100 Кронштейн. Спецификация ТП-902-2-411.86 4Х.387.04.100 СБ Кронштейн ТП-902-2-411.86 4Х.387.04.101 Основание ТП-902-2-411.86 4Х.387.04.102 Стойка ТП-902-2-411.86 4Х.387.04.103 Ограничитель ТП-902-2-411.86 4Х.387.05.000 Блок боковой. Спецификация ТП-902-2-411.86 4Х.387.05.000 СБ Блок боковой ТП-902-2-411.86 4Х.387.05.100 Кронштейн. Спецификация ТП-902-2-411.86 4Х.387.05.100 СБ Кронштейн ТП-902-2-411.86 4Х.387.05.101 Стойка ТП-902-2-411.86 4Х.387.06.000 Талреп. Спецификация ТП-902-2-411.86 4Х.387.06.000 СБ Талреп ТП-902-2-411.86 4Х.387.06.100 Стяжка. Спецификация ТП-902-2-411.86 4Х.387.06.100 СБ Стяжка ТП-902-2-411.86 4Х.387.06.101 Патрубок ТП-902-2-411.86 4Х.387.06.102 Втулка ТП-902-2-411.86 4Х.387.06.102-01 Втулка ТП-902-2-411.86 4Х.387.06.001 Винт ТП-902-2-411.86 4Х.387.06.001-01 Винт ТП-902-2-411.86 4Х.387.07.000 Упор. Спецификация ТП-902-2-411.86 4Х.387.07.000 СБ Упор ТП-902-2-411.86 4Х.387.07.001 Уголок ТП-902-2-411.86 4Х.387.07.002 Планка ТП-902-2-411.86 4Х.387.08.000 Струбцина. Спецификация ТП-902-2-411.86 4Х.387.08.000 СБ Струбцина ТП-902-2-411.86 4Х.387.08.001 Планка верхняя ТП-902-2-411.86 4Х.387.00.001 Упор ТП-902-2-411.86 4Х.387.00.002 Кольцо ТП-902-2-411.86 4И.551.00.000 СБ Установка фильтров ТП-902-2-411.86 4И.551.00.000 Установка фильтров. Спецификация ТП-902-2-411.86 4И.551.01.000 Каркас. Спецификация ТП-902-2-411.86 4И.551.01.001 Балка продольная ТП-902-2-411.86 4И.551.01.000 СБ Каркас ТП-902-2-411.86 4И.551.01.002 Балка поперечная ТП-902-2-411.86 4И.551.01.003 Связка ТП-902-2-411.86 4И.551.01.004 Стойка ТП-902-2-411.86 4И.551.01.005 Шпилька ТП-902-2-411.86 4И.551.02.000 СБ Каркас ТП-902-2-411.86 4И.551.02.000 Каркас. Спецификация ТП-902-2-411.86 4И.551.02.001 Стойка ТП-902-2-411.86 4И.551.02.002 Балка поперечная ТП-902-2-411.86 4И.551.02.003 Стойка ТП-902-2-411.86 4И.551.03.000 Фильтр ТП-902-2-411.86 4И.551.03.100 Короб. Спецификация ТП-902-2-411.86 4И.551.03.101 Ручка ТП-902-2-411.86 4И.551.03.000 СБ Фильтр ТП-902-2-411.86 4И.551.03.100 СБ Короб ТП-902-2-411.86 4И.551.03.102 Прокладка ТП-902-2-411.86 4И.551.03.103 Уголок ТП-902-2-411.86 4И.551.03.103-01 Уголок ТП-902-2-411.86 4И.551.03.103-02 Уголок ТП-902-2-411.86 4И.551.03.103-03 Уголок ТП-902-2-411.86 4И.551.03.104 Прокладка ТП-902-2-411.86 4И.551.03.105 Упор ТП-902-2-411.86 4И.551.03.106 Петля ТП-902-2-411.86 4И.551.03.106-01 Петля ТП-902-2-411.86 4И.551.03.107 Проушина ТП-902-2-411.86 4И.551.03.200 СБ Поддон ТП-902-2-411.86 4И.551.03.200 Поддон. Спецификация ТП-902-2-411.86 4И.551.03.210 Обрамление. Спецификация ТП-902-2-411.86 4И.551.03.210 СБ Обрамление ТП-902-2-411.86 4И.551.03.211 Уголок ТП-902-2-411.86 4И.551.03.220 Рамка. Спецификация ТП-902-2-411.86 4И.551.03.220 СБ Рамка ТП-902-2-411.86 4И.551.03.221 Ребро ТП-902-2-411.86 4И.551.03.221-01 Ребро ТП-902-2-411.86 4И.551.03.300 Затвор. Спецификация ТП-902-2-411.86 4И.551.03.300 СБ Затвор ТП-902-2-411.86 4И.551.03.301 Шпингалет ТП-902-2-411.86 4И.551.03.302 Ручка ТП-902-2-411.86 4И.551.03.400 Рамка. Спецификация ТП-902-2-411.86 4И.551.03.400 СБ Рамка ТП-902-2-411.86 4И.551.03.410 СБ Обрамление ТП-902-2-411.86 4И.551.03.410 Обрамление. Спецификация ТП-902-2-411.86 4И.551.03.411 Уголок ТП-902-2-411.86 4И.551.03.411-01 Уголок ТП-902-2-411.86 4И.551.03.412 Петля ТП-902-2-411.86 4И.551.03.413 Ручка ТП-902-2-411.86 4И.551.03.420 Рамка. Спецификация ТП-902-2-411.86 4И.551.03.500 Фиксатор. Спецификация ТП-902-2-411.86 4И.551.03.420 СБ Рамка ТП-902-2-411.86 4И.551.03.500 СБ Фиксатор ТП-902-2-411.86 4И.551.03.501 Ручка ТП-902-2-411.86 4И.551.03.502 Хомутик ТП-902-2-411.86 4И.551.00.001 Стяжка ТП-902-2-411.86 9Б.108.00.000 Контейнер для отработанной загрузки. Спецификация ТП-902-2-411.86 9Б.108.00.100 Бункер. Спецификация ТП-902-2-411.86 9Б.108.00.000 СБ Контейнер для отработанной загрузки ТП-902-2-411.86 9Б.108.00.100 СБ Бункер ТП-902-2-411.86 9Б.108.00.101 Угольник ТП-902-2-411.86 9Б.108.00.101-01 Угольник ТП-902-2-411.86 9Б.108.00.102 Скоба ТП-902-2-411.86 9Б.108.00.103 Косынка ТП-902-2-411.86 9Б.108.00.104 Патрубок ТП-902-2-411.86 9Б.108.00.105 Обечайка ТП-902-2-411.86 9Б.108.00.106 Стяжка ТП-902-2-411.86 9Б.108.00.107 Вкладыш ТП-902-2-411.86 9Б.108.00.200 Платформа. Спецификация ТП-902-2-411.86 9Б.108.00.200 СБ Платформа |
| Разработан: | МосводоканалНИИпроект |
| Утверждён: | 15.01.1986 Главстройпроект Госстроя СССР (АЧ-4) |























































