Скачать Типовой проект 902-1-84.84 Альбом III. Архитектурно-строительные решения. Надземная часть. Общие чертежи, узлы и деталиДата актуализации: 01.01.2021
|
| Обозначение: | Типовой проект 902-1-84.84 |
| Обозначение англ: | 902-1-84.84 |
| Статус: | заменен |
| Название рус.: | Альбом III. Архитектурно-строительные решения. Надземная часть. Общие чертежи, узлы и детали |
| Дата добавления в базу: | 01.09.2013 |
| Дата актуализации: | 01.01.2021 |
| Дата введения: | 18.04.1984 |
| Дата окончания срока действия: | 01.12.1991 |
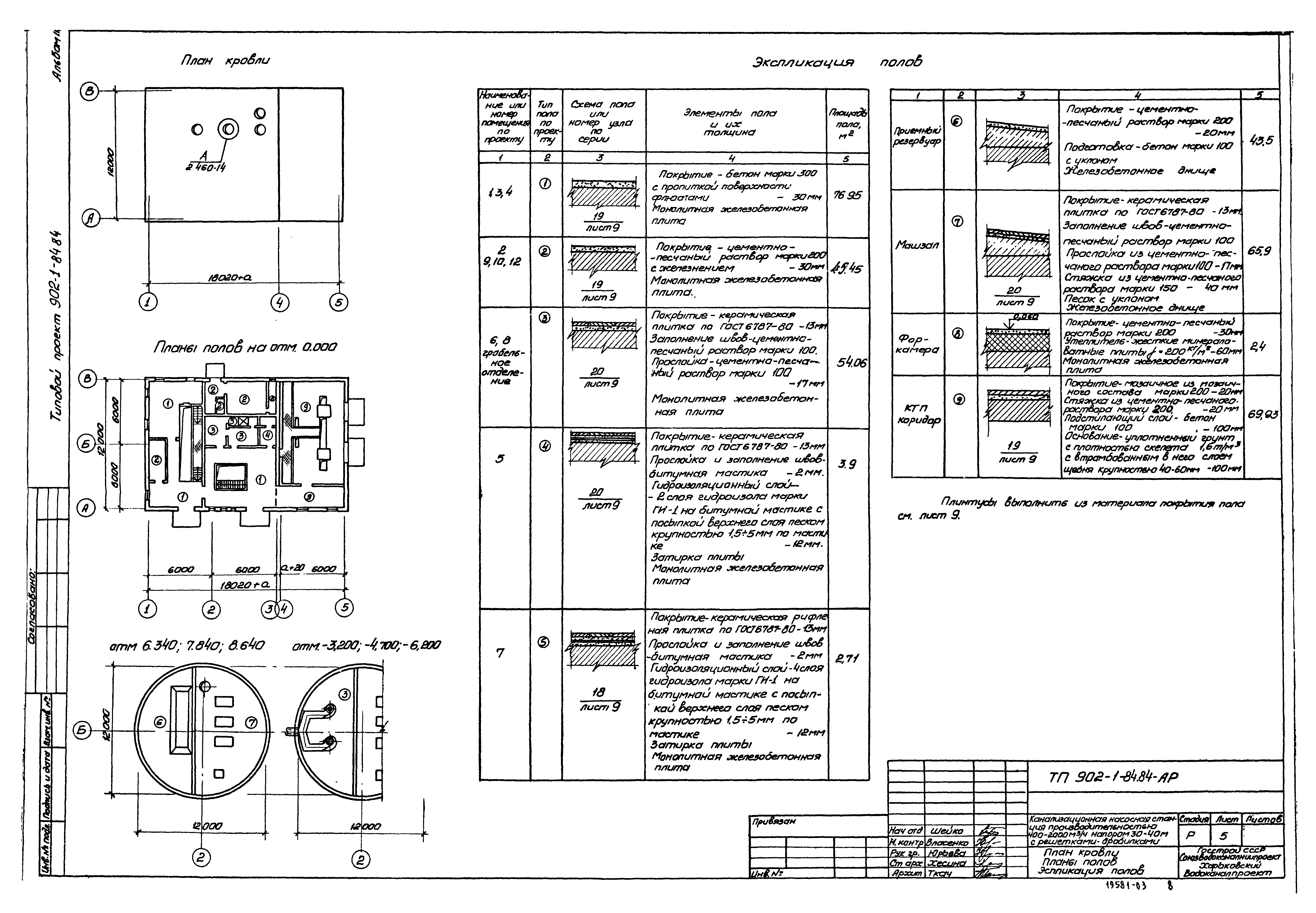
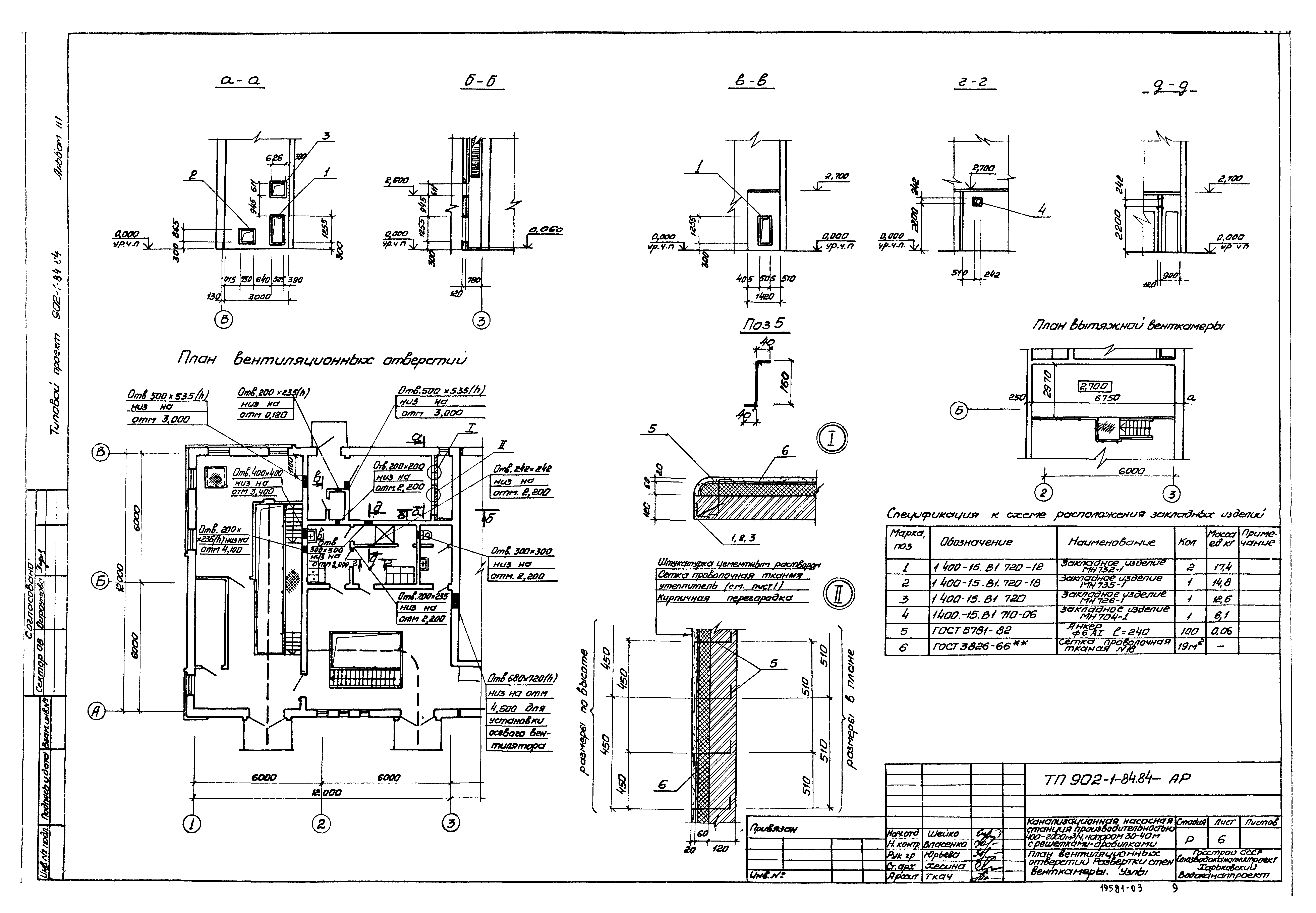
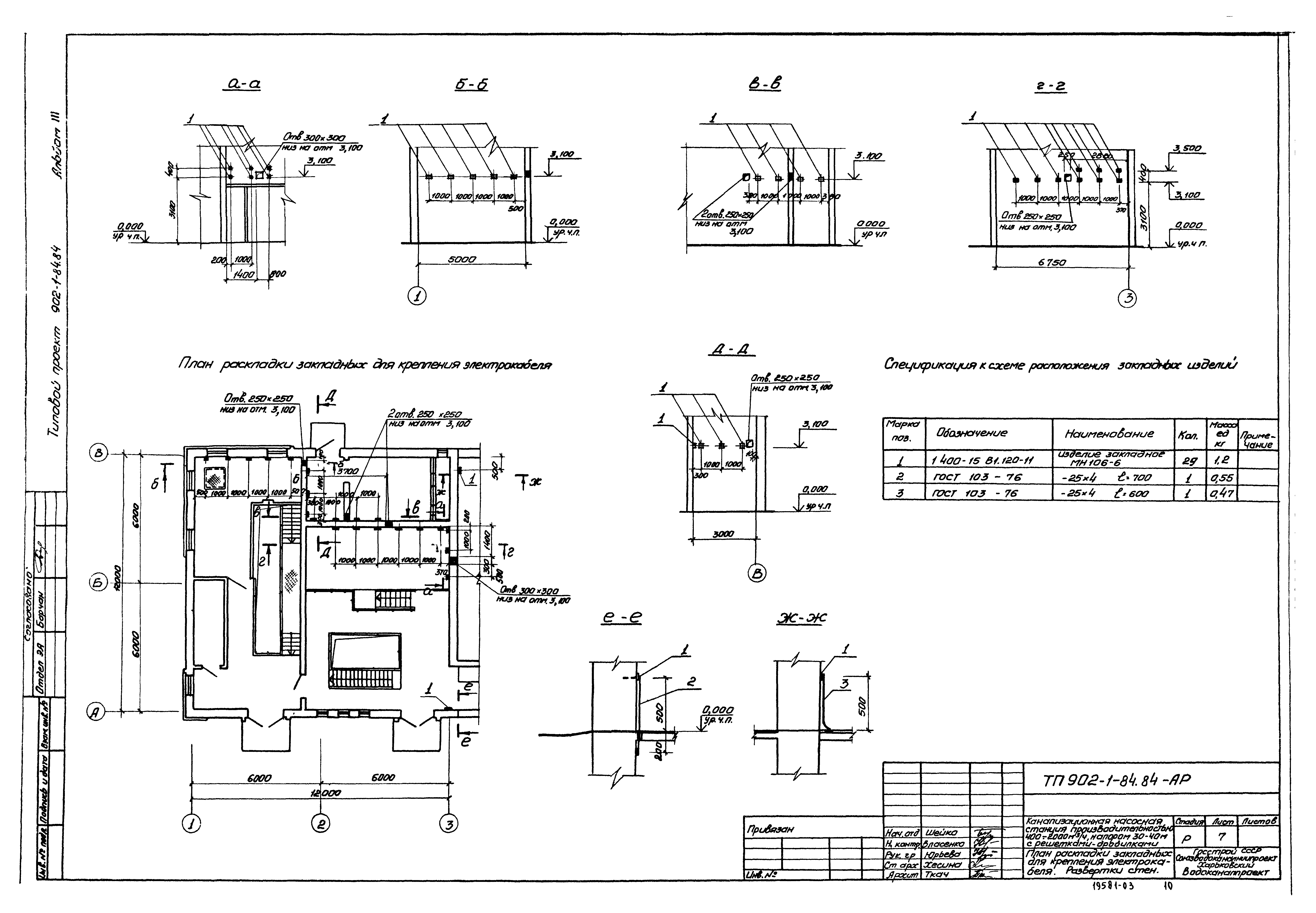
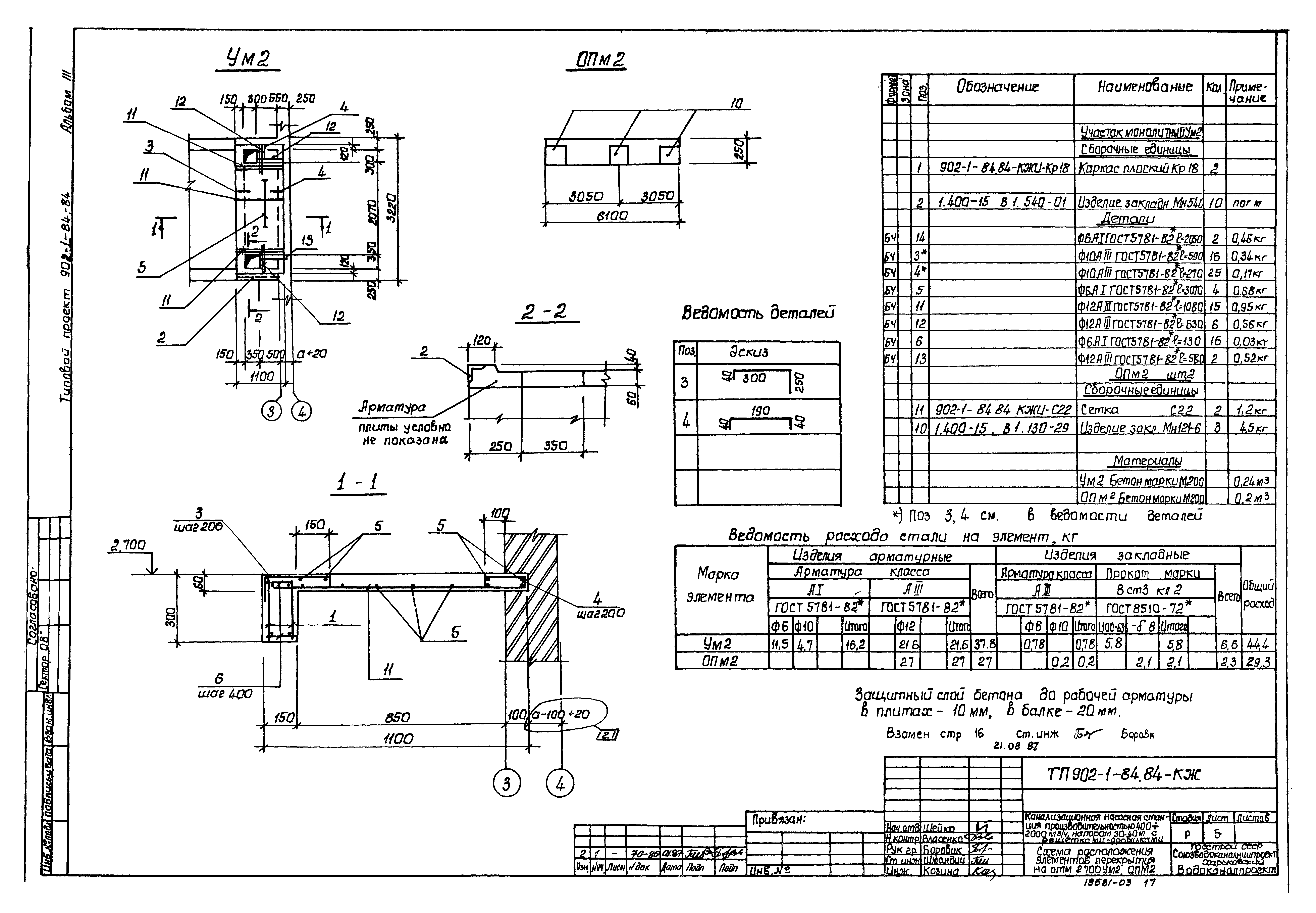
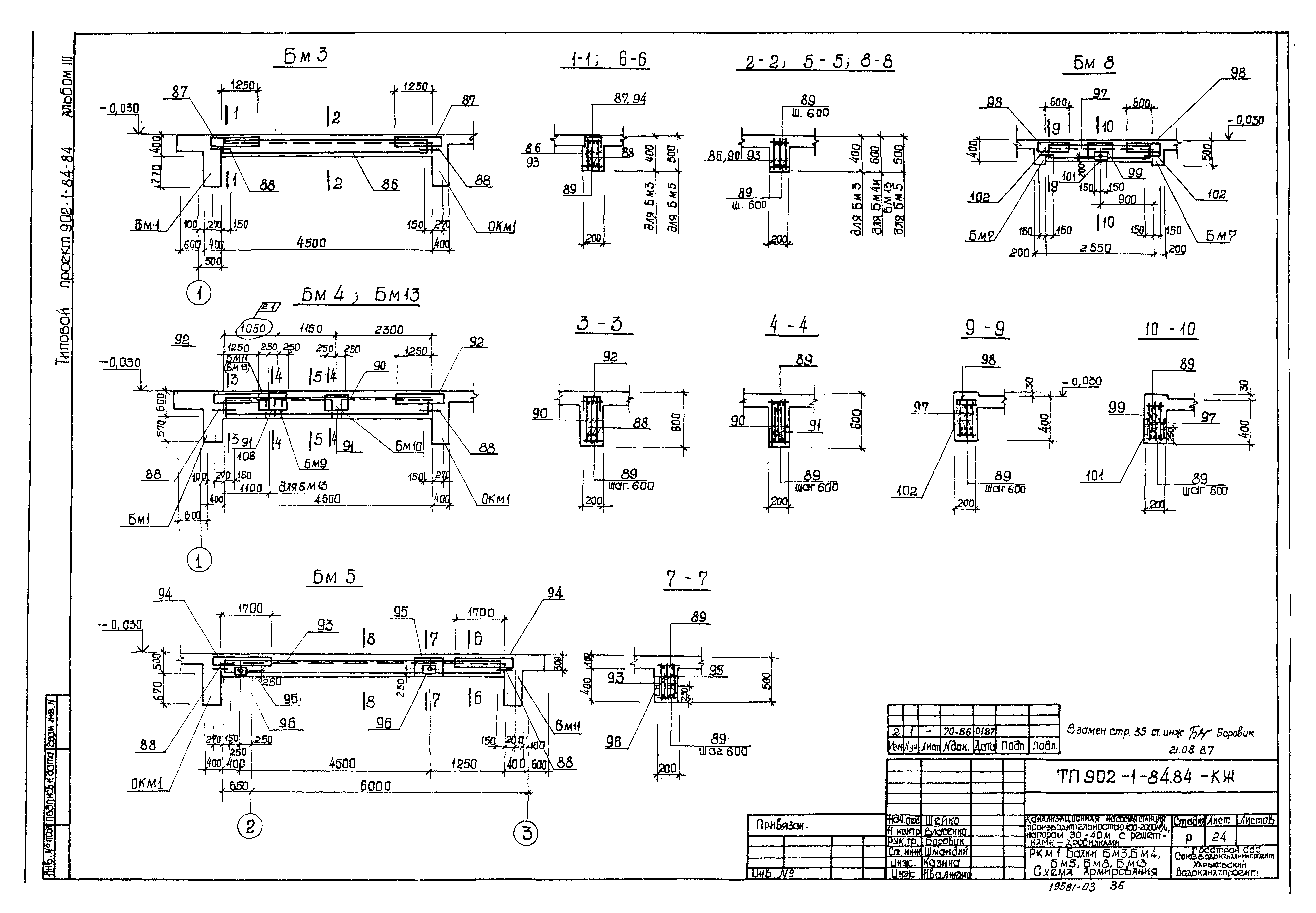
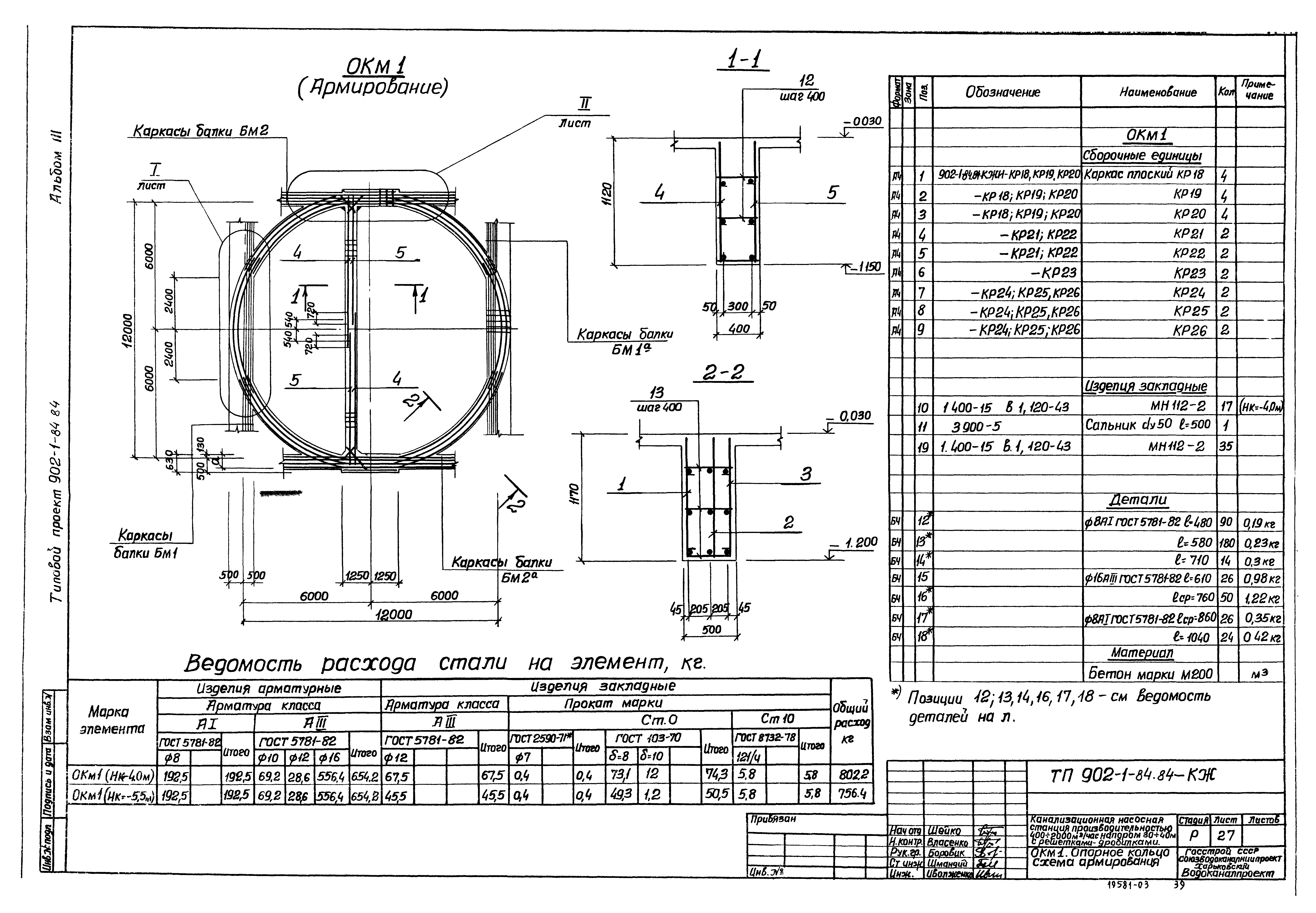
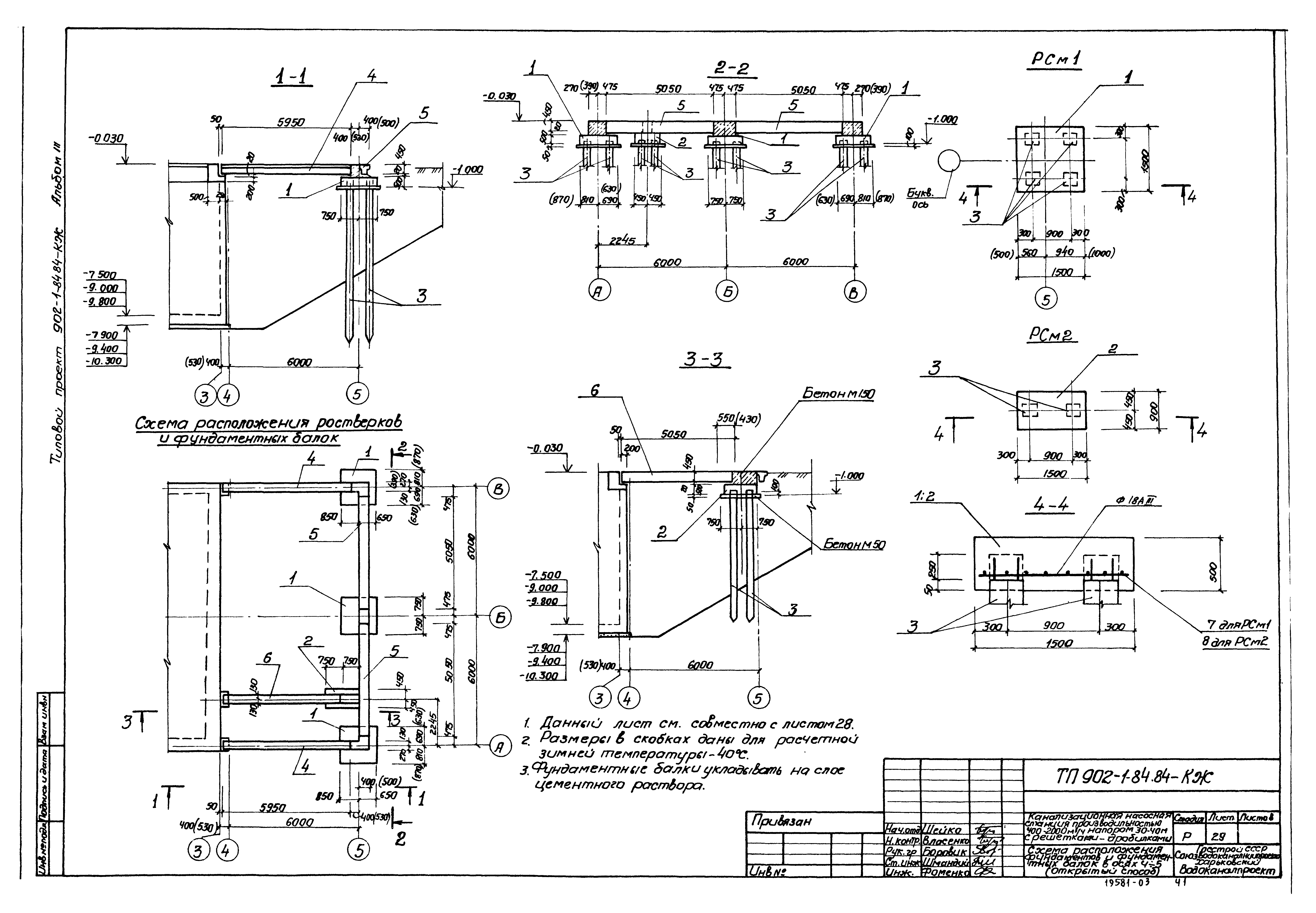
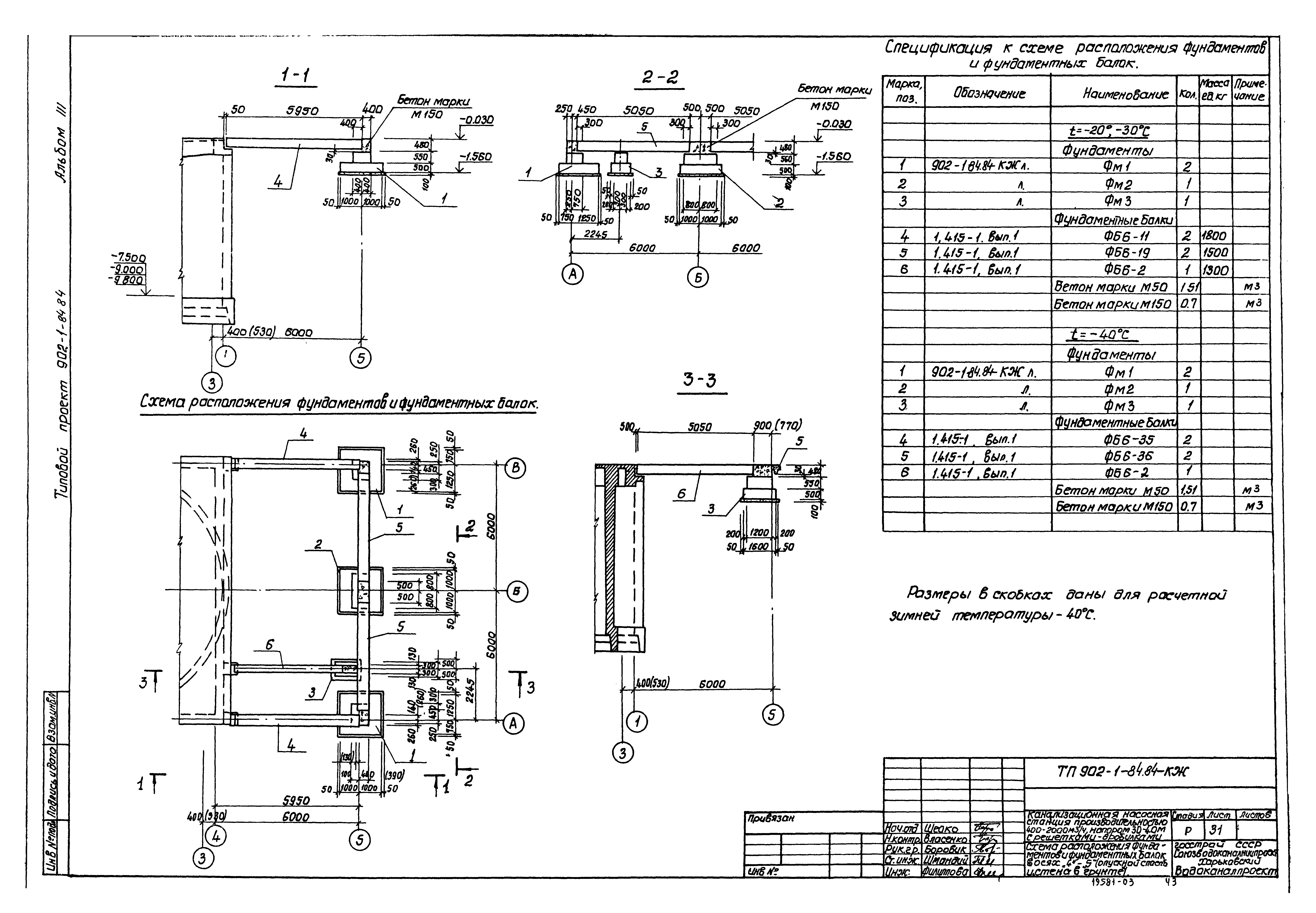
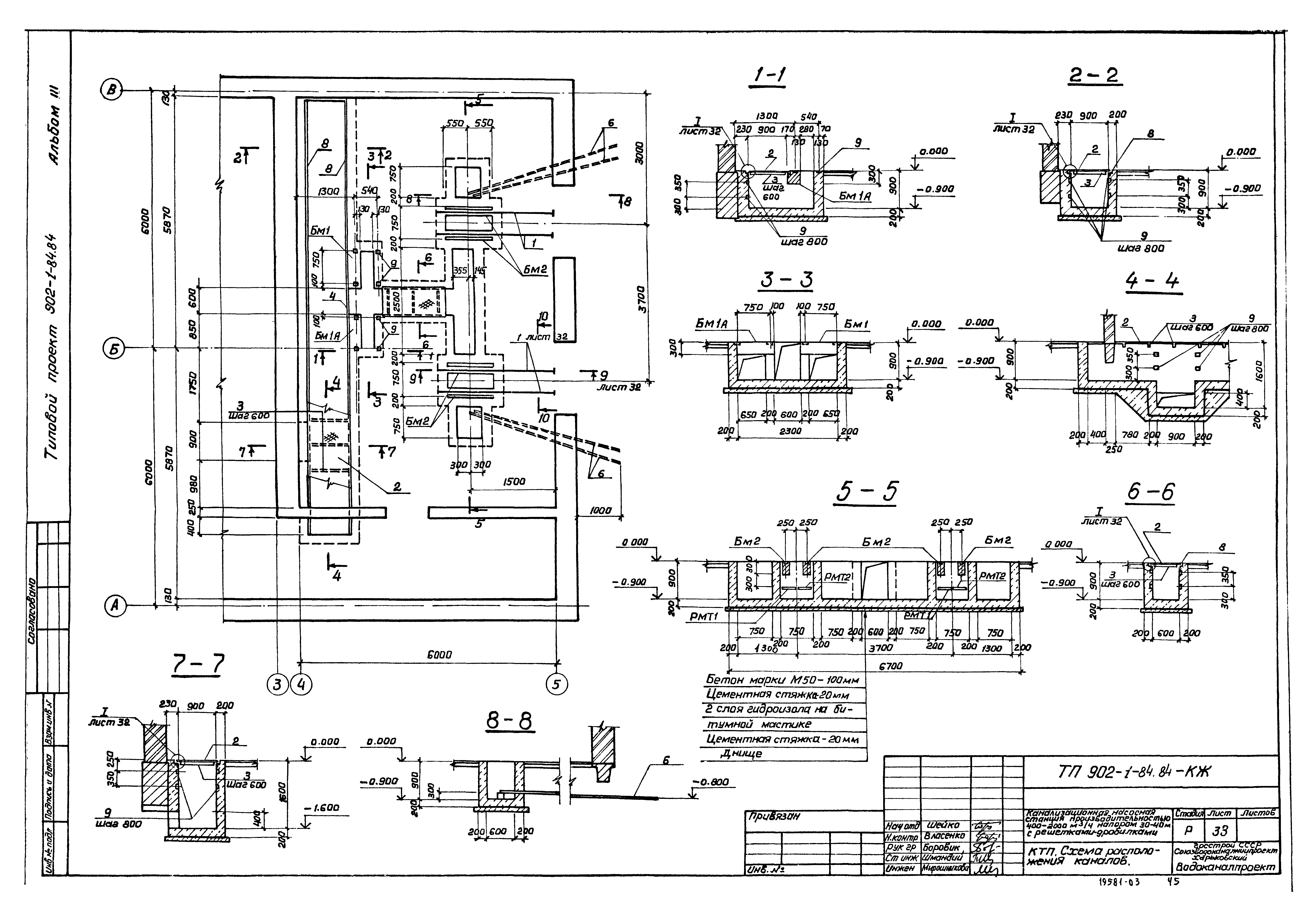
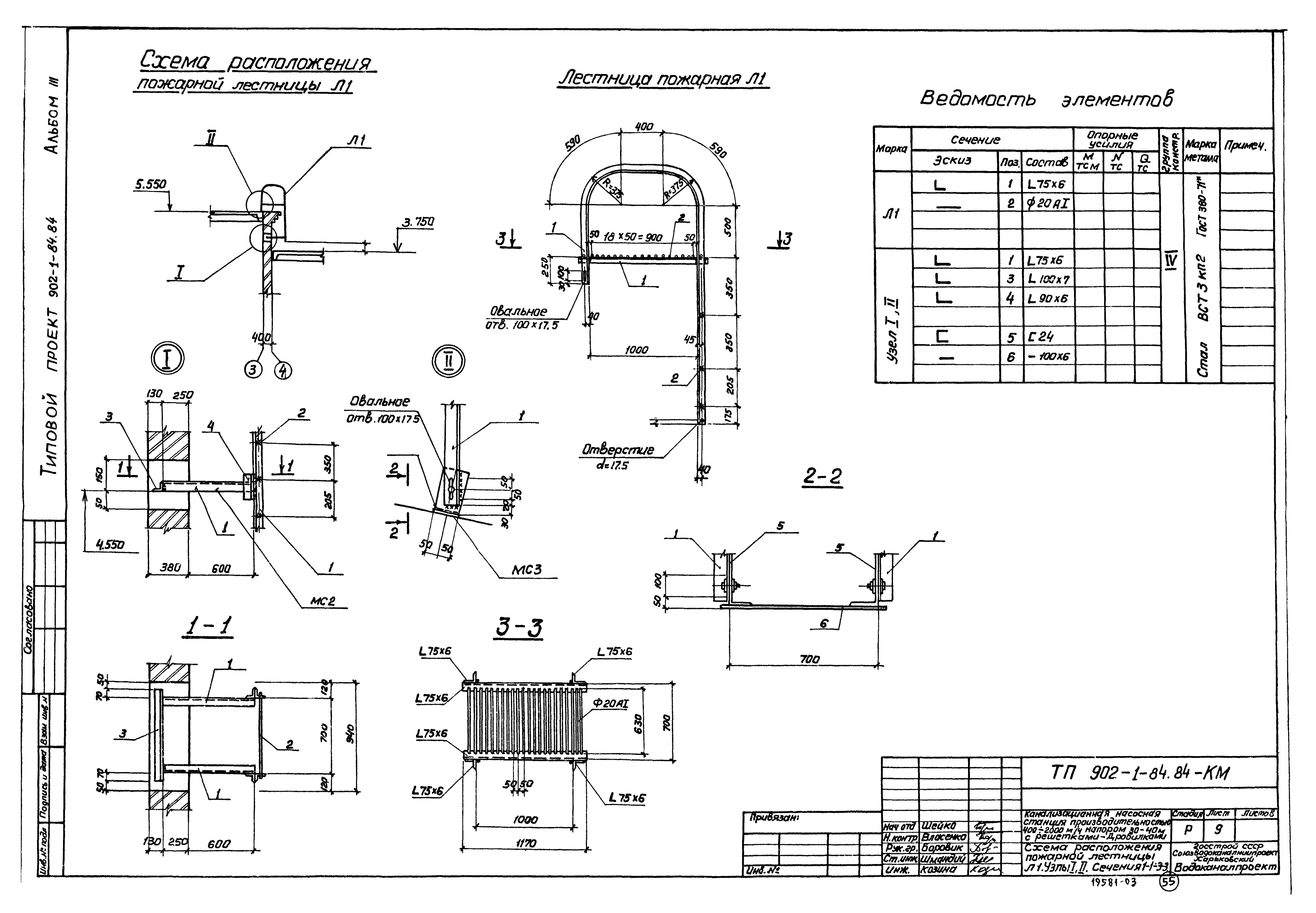
| Оглавление: | ТП 902-1-84.84 Содержание альбома. ТП 902-1-84.84-АР Основной комплект АР ТП 902-1-84.84-АР-1 Общие данные ТП 902-1-84.84-АР-2 План на отм. 0.000 ТП 902-1-84.84-АР-3 Разрезы. Ведомость отделки помещений ТП 902-1-84.84-АР-4 Фасады. Схемы расположения элементов заполнения оконных проемов ТП 902-1-84.84-АР-5 План кровли. Планы полов. Экспликация полов ТП 902-1-84.84-АР-6 План вентиляционных отверстий. Paзвертка стен венткамеры. Узлы ТП 902-1-84.84-АР-7 План раскладки закладных для крепления электрокабеля. Развертка стен. ТП 902-1-84.84-АР-8 Детали 1-9 ТП 902-1-84.84-АР-9 Детали 10-20 ТП 902-1-84.84-КЖ Основной комплект КЖ ТП 902-1-84.84-КЖ-1и Общие данные ТП 902-1-84.84-КЖ-2 Схема расположения и конструкция фундаментов под оборудование и опор ФОМ1,ФОМ2,ФОМ3,ОПМ1 ТП 902-1-84.84-КЖ-3 Схема расположения элементов покрытия. Сечение ТП 902-1-84.84-КЖ-4 Схема расположения элементов перекрытия на отм. 2.700. УМ1, ОПМ1 ТП 902-1-84.84-КЖ-5 Схема расположения элементов перекрытия на отм. 2.700. УМ2, ОПМ2 ТП 902-1-84.84-КЖ-6 Схема расположения опорных блоков и форшахты ФШН1 (вариант стен подземной части - опускной колодец) ТП 902-1-84.84-КЖ-7 Схема расположения форшахты ФШМ2. (Вариант подземной) части "стена в грунте" ТП 902-1-84.84-КЖ-8и РКМ1. Схема расположения. Сечения 1-1÷6-6 ТП 902-1-84.84-КЖ-9и РКМ1. Спецификация (t=-20ºС÷30ºС) начало ТП 902-1-84.84-КЖ-10 РКМ1. Спецификация (t=-20ºС÷30ºС) продолжение ТП 902-1-84.84-КЖ-11 РКМ1. Спецификация (t=-20ºС÷30ºС) окончание ТП 902-1-84.84-КЖ-12и РКМ1. Спецификация (t=-40ºС) начало ТП 902-1-84.84-КЖ-13 РКМ1. Спецификация (t=-40ºС) продолжение ТП 902-1-84.84-КЖ-14 РКМ1. Спецификация (t=-40ºС) окончание ТП 902-1-84.84-КЖ-15 ПМ1. Схема армирования. Сечение 1-1 ТП 902-1-84.84-КЖ-16 ПМ1. Схема армирования. Сечения 2-2÷6-6 ТП 902-1-84.84-КЖ-17 ПМ1. Схема армирования. Сечения 7-7-10-10. Узлы 1,2 ТП 902-1-84.84-КЖ-18 ПМ1. Схема армирования. Сечения 11-11÷15-15 ТП 902-1-84.84-КЖ-19и РКМ1. ПМ1. Балка БМ12. Схема армирования. Сечения 16-16÷18-18 ТП 902-1-84.84-КЖ-20и РКМ1. БМ1,БМ1А. Схема армирования (t=-20ºС;-30ºС) ТП 902-1-84.84-КЖ-21и РКМ1. БМ1,БМ1А. Схема армирования балок (t=-20ºС) ТП 902-1-84.84-КЖ-22 РКМ1. БМ2,БМ2А. Схема армирования балок (t=-20ºС;-30ºС) ТП 902-1-84.84-КЖ-23 РКМ1. БМ2,БМ2А. Схема армирования балок (t=-40ºС) ТП 902-1-84.84-КЖ-24 РКМ1,БМ3,БМ4,БМ5,БМ8. Схема армирования балок ТП 902-1-84.84-КЖ-25 РКМ1,БМ6,БМ7,БМ9,БМ10. Схема армирования балок ТП 902-1-84.84-КЖ-26 ОКМ1. Опорное кольцо. Общий вид ТП 902-1-84.84-КЖ-27 ОКМ1. Опорное кольцо. Схема армирования ТП 902-1-84.84-КЖ-28 ОКМ1. Опорное кольцо. Схема армирования. Узлы 1,2 ТП 902-1-84.84-КЖ-29 Схема расположения фундаментов и фундаментных балок между осями 4-5 (открытый способ) ТП 902-1-84.84-КЖ-30 Спецификация к схеме расположения фундаментов и фундаментных балок между осями 4-5 (открытый способ) ТП 902-1-84.84-КЖ-31 Схема расположения фундаментов и фундаментных балок между осями 4-5 (опускной способ и "стена в грунте") ТП 902-1-84.84-КЖ-32 Детали гидроизоляции. Установка дренажного приямка ТП 902-1-84.84-КЖ-33 КТП. Схема расположения каналов ТП 902-1-84.84-КЖ-34 КТП. Спецификация к схеме расположения каналов ТП 902-1-84.84-КМ Основной комплект КМ ТП 902-1-84.84-КМ-1 Общие данные (начало) ТП 902-1-84.84-КМ-2 Общие данные (продолжение) ТП 902-1-84.84-КМ-3 Общие данные (окончание) ТП 902-1-84.84-КМ-4 Схема расположения путей подвесного транспорта на отм. 4.400. Узлы 1,4. Сечения 1-1÷6-6 ТП 902-1-84.84-КМ-5 Схема расположения путей подвесного транспорта на отм. 4.400. Узлы 2,3. Сечения 7-7÷9-9 ТП 902-1-84.84-КМ-6 Схема расположения путей подвесного транспорта на отм. 0.970 ТП 902-1-84.84-КМ-7 Схема расположения площадки на отм. -3.155;-4.655;-5.455. Узлы 1,2,4. Сечения ТП 902-1-84.84-КМ-8 Схема расположения ограждения и стремянки на отм. 0.000 ТП 902-1-84.84-КМ-9 Схема расположения пожарной лестницы Л1. Узлы 1,2. Сечения 1-1÷3-3 |
| Разработан: | Харьковский Водоканалпроект |
| Утверждён: | 27.10.1983 СоюзводоканалНИИпроект (SoyuzvodokanalNIIproject 59) |
| Чем заменён: |






















































