Скачать Типовой проект 902-2-476.89 Альбом 5. Нестандартизированное оборудованиеДата актуализации: 01.01.2021
|
| Обозначение: | Типовой проект 902-2-476.89 |
| Обозначение англ: | 902-2-476.89 |
| Статус: | не определен законодательством |
| Название рус.: | Альбом 5. Нестандартизированное оборудование |
| Дата добавления в базу: | 01.09.2013 |
| Дата актуализации: | 01.01.2021 |
| Дата введения: | 16.10.1989 |
| Дата окончания срока действия: | 30.06.2003 |
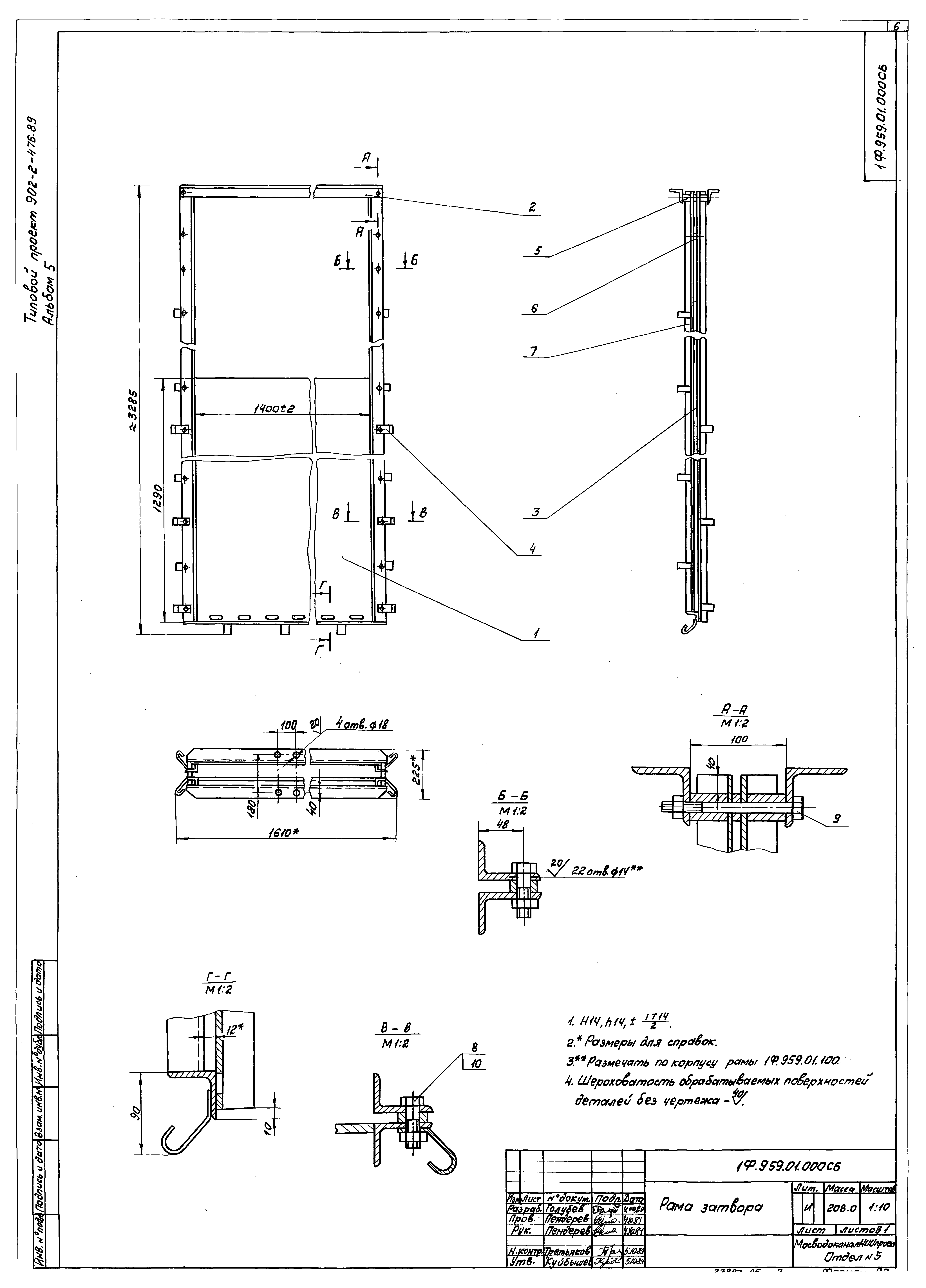
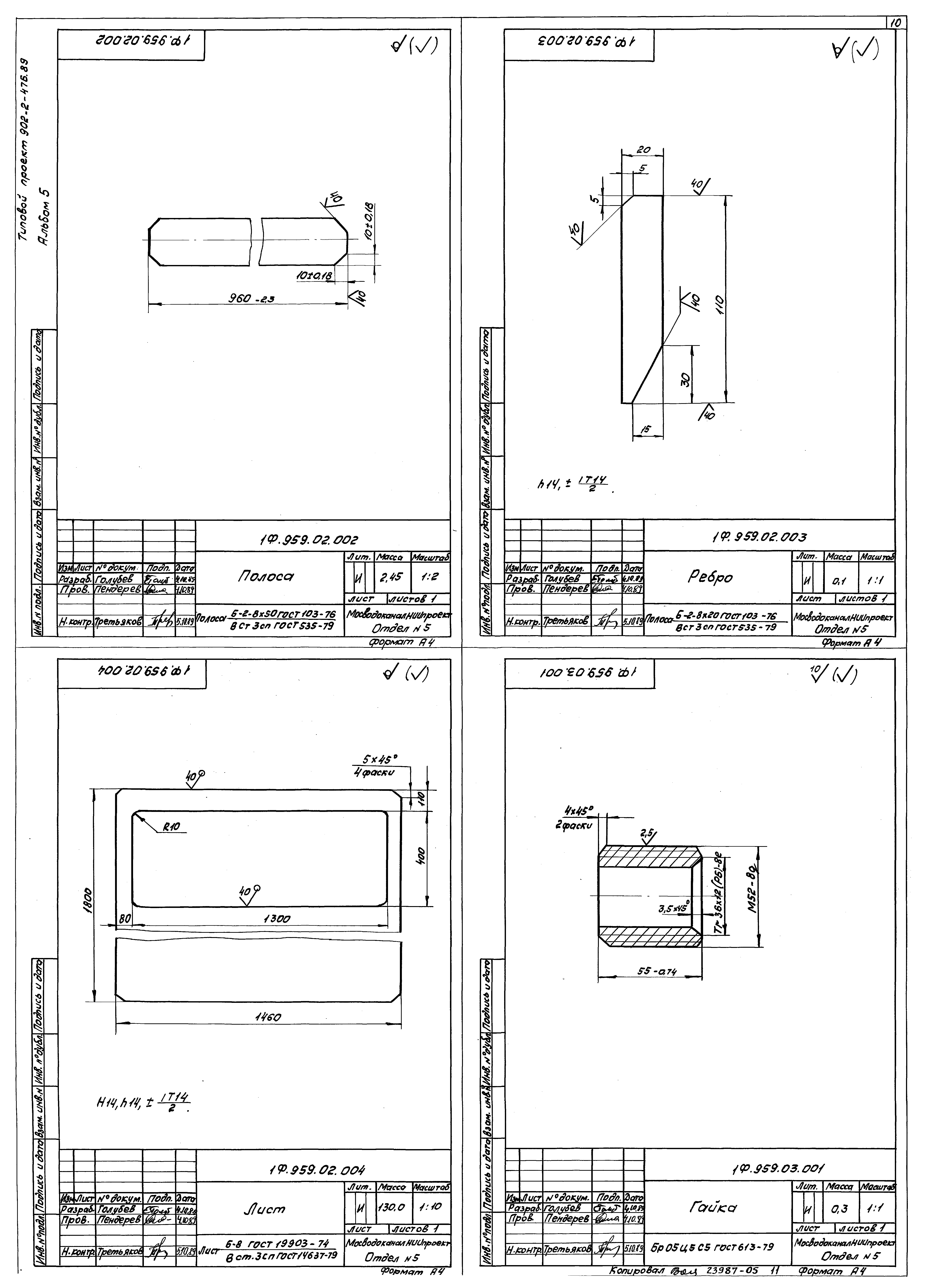
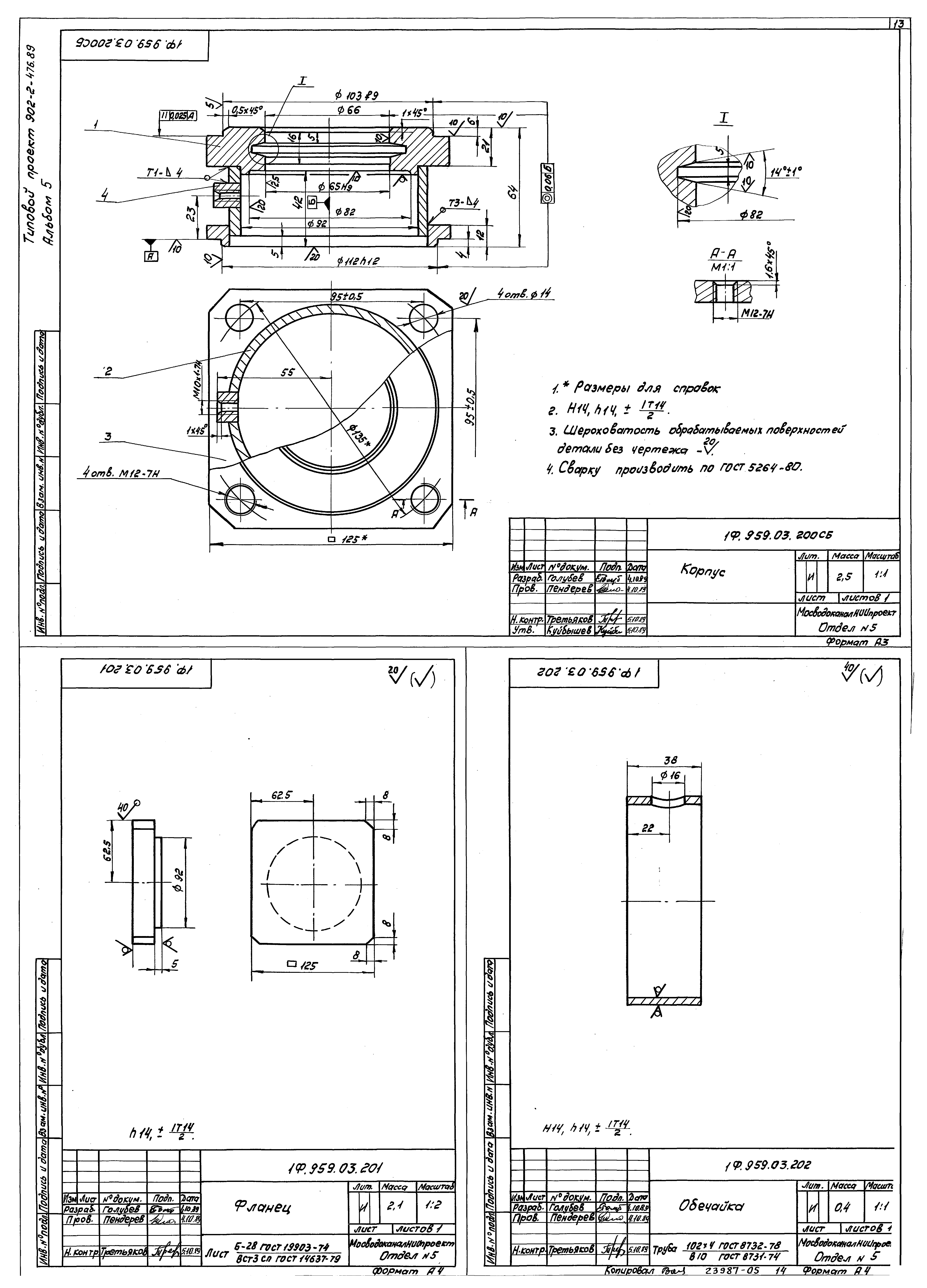
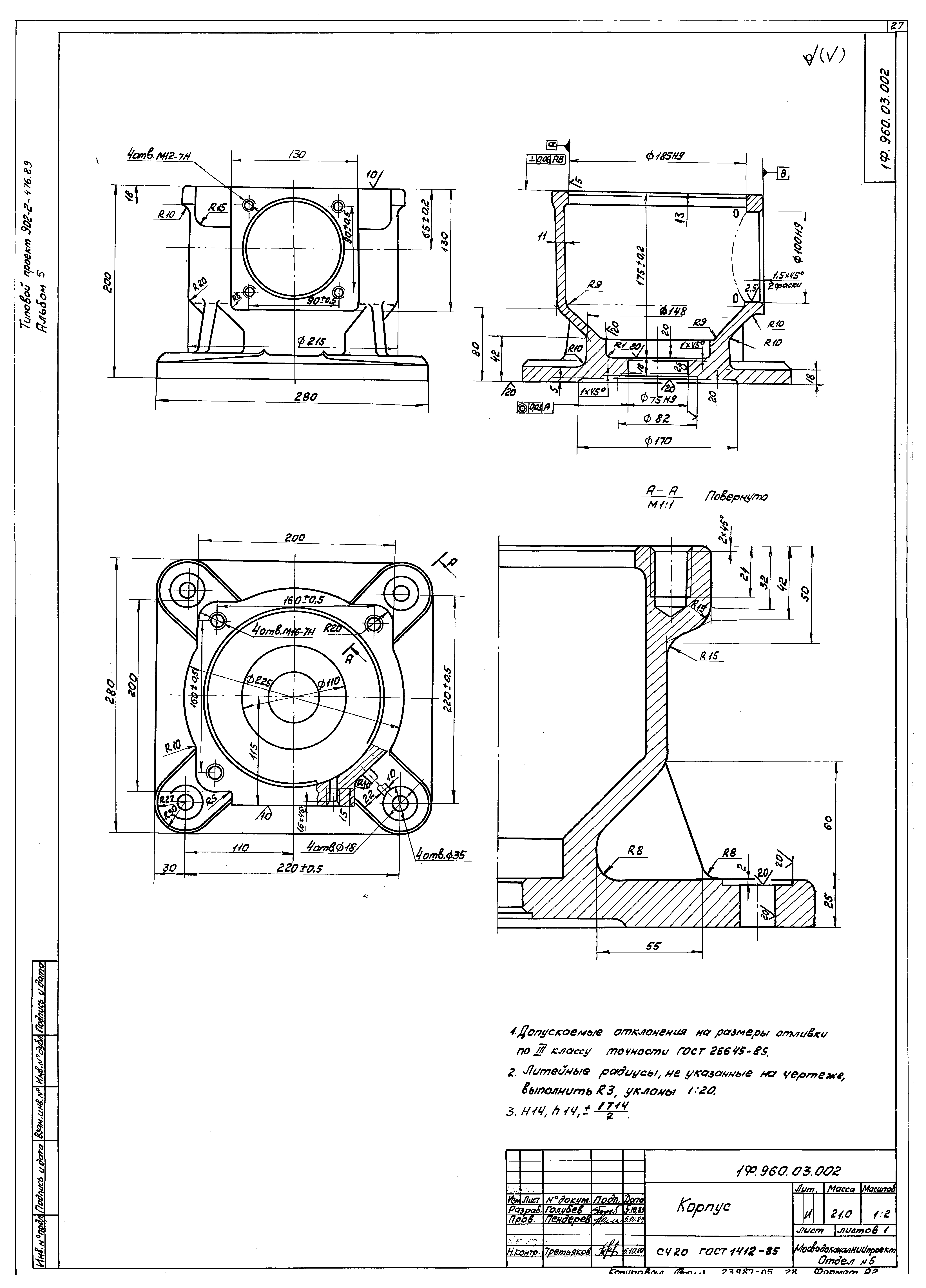
| Оглавление: | ТП 902-2-476.89 Титульный лист ТП 902-2-476.89 Содержание альбома ТП 902-2-476.89-1Ф.959.00.000 ВП Затвор плоский регулирующий с водосливом В=1300. Ведомость покупных изделий ТП 902-2-476.89-1Ф.959.00.000 СБ Затвор плоский регулирующий с водосливом В=1300 ТП 902-2-476.89-1Ф.959.00.000 Затвор плоский регулирующий с водосливом В=1300. Спецификация. Лист 1-2 ТП 902-2-476.89-1Ф.959.01.000 Рама затвора. Спецификация. Лист 1-2 ТП 902-2-476.89-1Ф.959.01.000 СБ Рама затвора ТП 902-2-476.89-1Ф.959.01.100 СБ Корпус рамы ТП 902-2-476.89-1Ф.959.01.100 Корпус рамы. Спецификация ТП 902-2-476.89-1Ф.959.01.101 Направляющая ТП 902-2-476.89-1Ф.959.01.102 Стенка ТП 902-2-476.89-1Ф.959.01.103 Анкер ТП 902-2-476.89-1Ф.959.01.001 Поперечина ТП 902-2-476.89-1Ф.959.01.002 Вставка ТП 902-2-476.89-1Ф.959.01.003 Анкер ТП 902-2-476.89-1Ф.959.02.000 Щит с водосливом. Спецификация ТП 902-2-476.89-1Ф.959.02.000 СБ Щит с водосливом ТП 902-2-476.89-1Ф.959.02.001 Ушко ТП 902-2-476.89-1Ф.959.02.002 Полоса ТП 902-2-476.89-1Ф.959.02.003 Ребро ТП 902-2-476.89-1Ф.959.02.004 Лист ТП 902-2-476.89-1Ф.959.03.001 Гайка ТП 902-2-476.89-1Ф.959.03.000 Подпятник. Спецификация. Лист 1-2 ТП 902-2-476.89-1Ф.959.03.000 СБ Подпятник ТП 902-2-476.89-1Ф.959.03.100 СБ Основание ТП 902-2-476.89-1Ф.959.03.100 Основание. Спецификация ТП 902-2-476.89-1Ф.959.03.200 Корпус. Спецификация ТП 902-2-476.89-1Ф.959.03.200 СБ Корпус ТП 902-2-476.89-1Ф.959.03.201 Фланец ТП 902-2-476.89-1Ф.959.03.202 Обечайка ТП 902-2-476.89-1Ф.959.03.203 Фланец ТП 902-2-476.89-1Ф.959.03.002 Втулка кулачковая ТП 902-2-476.89-1Ф.959.04.000 Колпак. Спецификация ТП 902-2-476.89-1Ф.959.04.000 СБ Колпак ТП 902-2-476.89-1Ф.959.04.001 Фланец ТП 902-2-476.89-1Ф.959.00.001 Штанга винтовая ТП 902-2-476.89-1Ф.959.00.002 Ось ТП 902-2-476.89-1Ф.960.00.001 Ограждение ТП 902-2-476.89-1Ф.960.00.000 ВП Затвор плоский поверхностный 2200х1000. Ведомость покупных изделий ТП 902-2-476.89-1Ф.960.00.000 Затвор плоский поверхностный 2200х1000. Спецификация. Лист 1-2 ТП 902-2-476.89-1Ф.960.00.000 СБ Затвор плоский поверхностный 2200х1000 ТП 902-2-476.89-1Ф.960.01.000 СБ Рама затвора ТП 902-2-476.89-1Ф.960.01.000 Рама затвора. Спецификация. Лист 1-2 ТП 902-2-476.89-1Ф.960.01.100 СБ Рама верхняя ТП 902-2-476.89-1Ф.960.01.100 Рама верхняя. Спецификация ТП 902-2-476.89-1Ф.960.01.101 Ребро ТП 902-2-476.89-1Ф.960.01.001 Кронштейн ТП 902-2-476.89-1Ф.960.01.002 Кронштейн ТП 902-2-476.89-1Ф.960.01.003 Направляющая ТП 902-2-476.89-1Ф.960.01.004 Анкер ТП 902-2-476.89-1Ф.960.01.005 Прокладка ТП 902-2-476.89-1Ф.960.01.006 Угольник ТП 902-2-476.89-1Ф.960.01.007 Уплотнение ТП 902-2-476.89-1Ф.960.02.000 Щит. Спецификация ТП 902-2-476.89-1Ф.960.02.000 СБ Щит ТП 902-2-476.89-1Ф.960.02.100 СБ Металлоконструкция щита ТП 902-2-476.89-1Ф.960.02.100 Металлоконструкция щита. Спецификация ТП 902-2-476.89-1Ф.960.02.101 Ригель ТП 902-2-476.89-1Ф.960.02.102 Ребро ТП 902-2-476.89-1Ф.960.02.103 Ушко ТП 902-2-476.89-1Ф.960.02.104 Упор ТП 902-2-476.89-1Ф.960.02.001 Уплотнение ТП 902-2-476.89-1Ф.960.02.002 Накладка ТП 902-2-476.89-1Ф.960.03.000 Головка штанговая. Спецификация. Лист 1-2 ТП 902-2-476.89-1Ф.960.03.001 Кольцо сферическое нижнее ТП 902-2-476.89-1Ф.960.03.000 СБ Головка штанговая ТП 902-2-476.89-1Ф.960.03.002 Корпус ТП 902-2-476.89-1Ф.960.03.003 Крышка ТП 902-2-476.89-1Ф.960.03.004 Кронштейн ТП 902-2-476.89-1Ф.960.03.005 Вал ТП 902-2-476.89-1Ф.960.03.006 Шестерня коническая ТП 902-2-476.89-1Ф.960.03.007 Колесо коническое ТП 902-2-476.89-1Ф.960.03.008 Гайка ТП 902-2-476.89-1Ф.960.03.009 Втулка ТП 902-2-476.89-1Ф.960.03.011 Кольцо сферическое верхнее ТП 902-2-476.89-1Ф.960.03.012 Планка стопорная ТП 902-2-476.89-1Ф.960.04.000 Маховик ТП 902-2-476.89-1Ф.960.04.001 Маховик ТП 902-2-476.89-1Ф.960.04.002 Ручка ТП 902-2-476.89-1Ф.960.05.000 Колпак. Спецификация ТП 902-2-476.89-1Ф.960.05.000 СБ Колпак ТП 902-2-476.89-1Ф.960.05.001 Фланец ТП 902-2-476.89-1Ф.960.00.002 Прокладка ТП 902-2-476.89-1Ф.960.00.003 Штанга винтовая ТП 902-2-476.89-1Ф.960.00.004 Палец ТП 902-2-476.89-3Р.93.000 Устройство для сигнализатора уровня осадка. Спецификация ТП 902-2-476.89-3Р.93.100 Скоба закладная. Спецификация ТП 902-2-476.89-3Р.93.100 СБ Скоба закладная ТП 902-2-476.89-3Р.93.000 СБ Устройство для сигнализатора уровня осадка ТП 902-2-476.89-1Ф.961.104 Угольник ТП 902-2-476.89-3Р.93.101 Скоба ТП 902-2-476.89-3Р.93.102 Упор ТП 902-2-476.89-3Р.93.103 Шпилька ТП 902-2-476.89-3Р.93.200 Прижим. Спецификация ТП 902-2-476.89-3Р.93.200 СБ Прижим ТП 902-2-476.89-3Р.93.201 Полоса ТП 902-2-476.89-3Р.93.300 Патрубок закладной. Спецификация ТП 902-2-476.89-3Р.93.300 СБ Патрубок закладной ТП 902-2-476.89-3Р.93.301 Труба ТП 902-2-476.89-3Р.93.302 Пруток ТП 902-2-476.89-6С.53.150.000 СБ Тройник косой 45º 820х10-1020х10 ТП 902-2-476.89-6С.53.150.000 Тройник косой 45º 820х10-1020х10. Спецификация ТП 902-2-476.89-6С.53.150.001 Патрубок ТП 902-2-476.89-6С.70.47.000 Патрубок 3030х10 ТП 902-2-476.89-1Ф.961.000 СБ Затвор шандорный 2200х1000 ТП 902-2-476.89-1Ф.961.000 Затвор шандорный 2200х1000. Спецификация ТП 902-2-476.89-1Ф.961.001 Брусок ТП 902-2-476.89-1Ф.961.100 Рама. Спецификация ТП 902-2-476.89-1Ф.961.101 Дуга ТП 902-2-476.89-1Ф.961.100 СБ Рама ТП 902-2-476.89-9К.109.000 СБ Люк-лаз Л1 ТП 902-2-476.89-9К.109.000 Люк-лаз Л1. Спецификация ТП 902-2-476.89-9К.109.001 Заглушка ТП 902-2-476.89-9К.109.002 Прокладка ТП 902-2-476.89-9К.109.100 СБ Патрубок закладной ТП 902-2-476.89-9К.109.100 Патрубок закладной. Спецификация ТП 902-2-476.89-9К.109.101 Фланец |
| Разработан: | МосводоканалНИИпроект |
| Утверждён: | 09.10.1989 Мосгорисполком (Mosgorispolkom 2148) |











































