Скачать Типовой проект 902-2-260 Альбом IX. Производственный корпус. Технологическая и санитарно-техническая частиДата актуализации: 01.01.2021
|
| Обозначение: | Типовой проект 902-2-260 |
| Обозначение англ: | 902-2-260 |
| Статус: | действует |
| Название рус.: | Альбом IX. Производственный корпус. Технологическая и санитарно-техническая части |
| Дата добавления в базу: | 01.09.2013 |
| Дата актуализации: | 01.01.2021 |
| Дата введения: | 29.12.1975 |
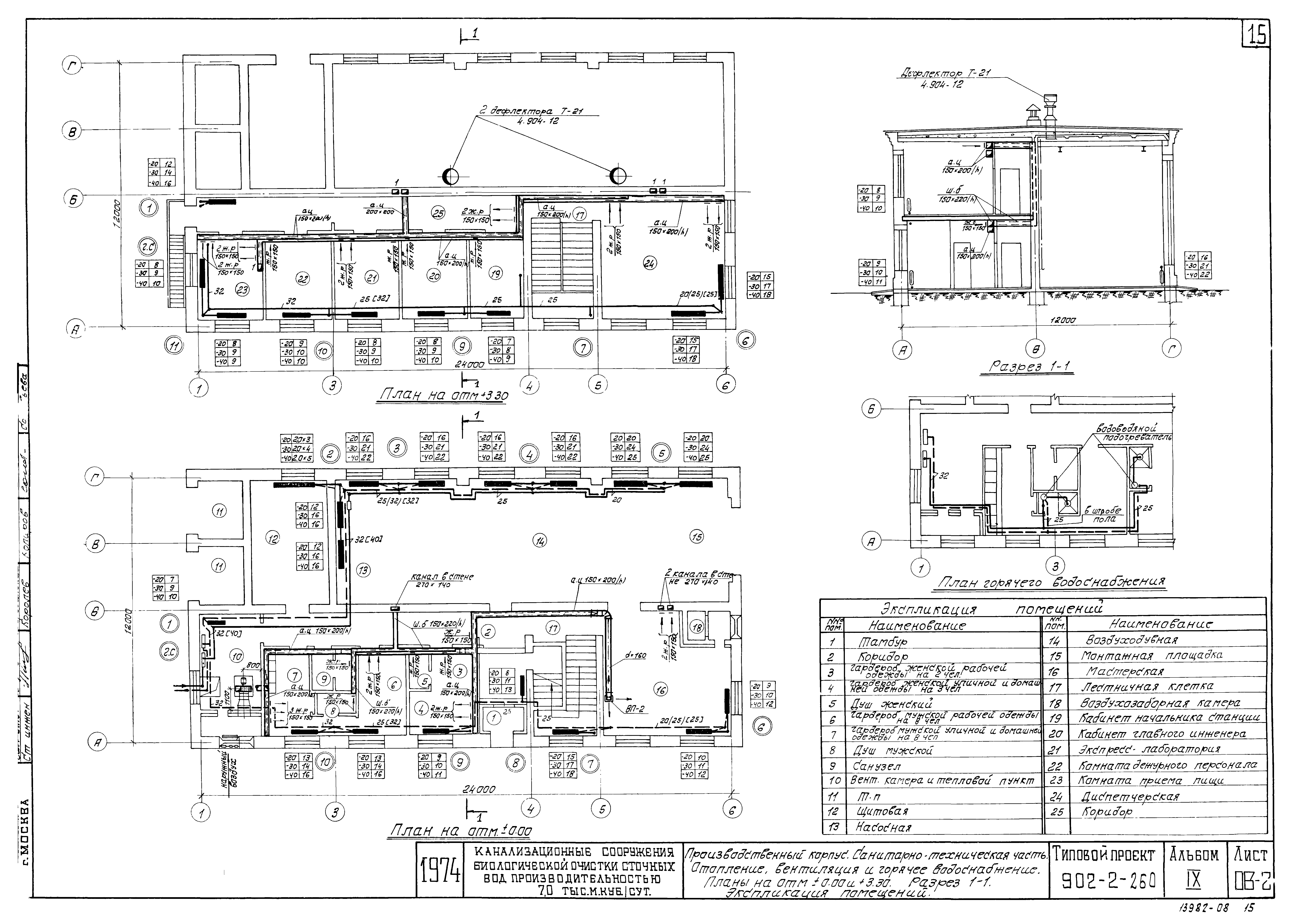
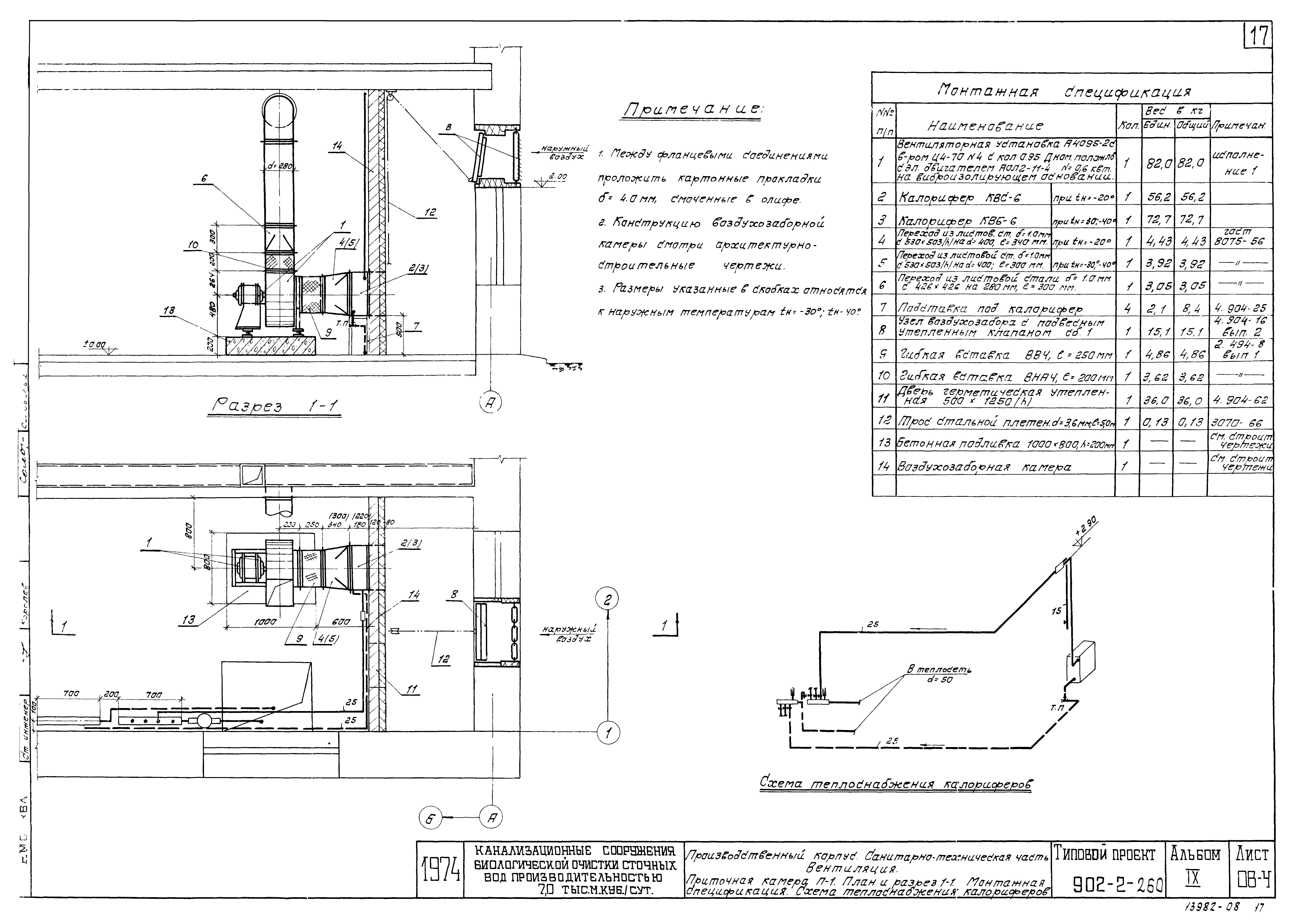
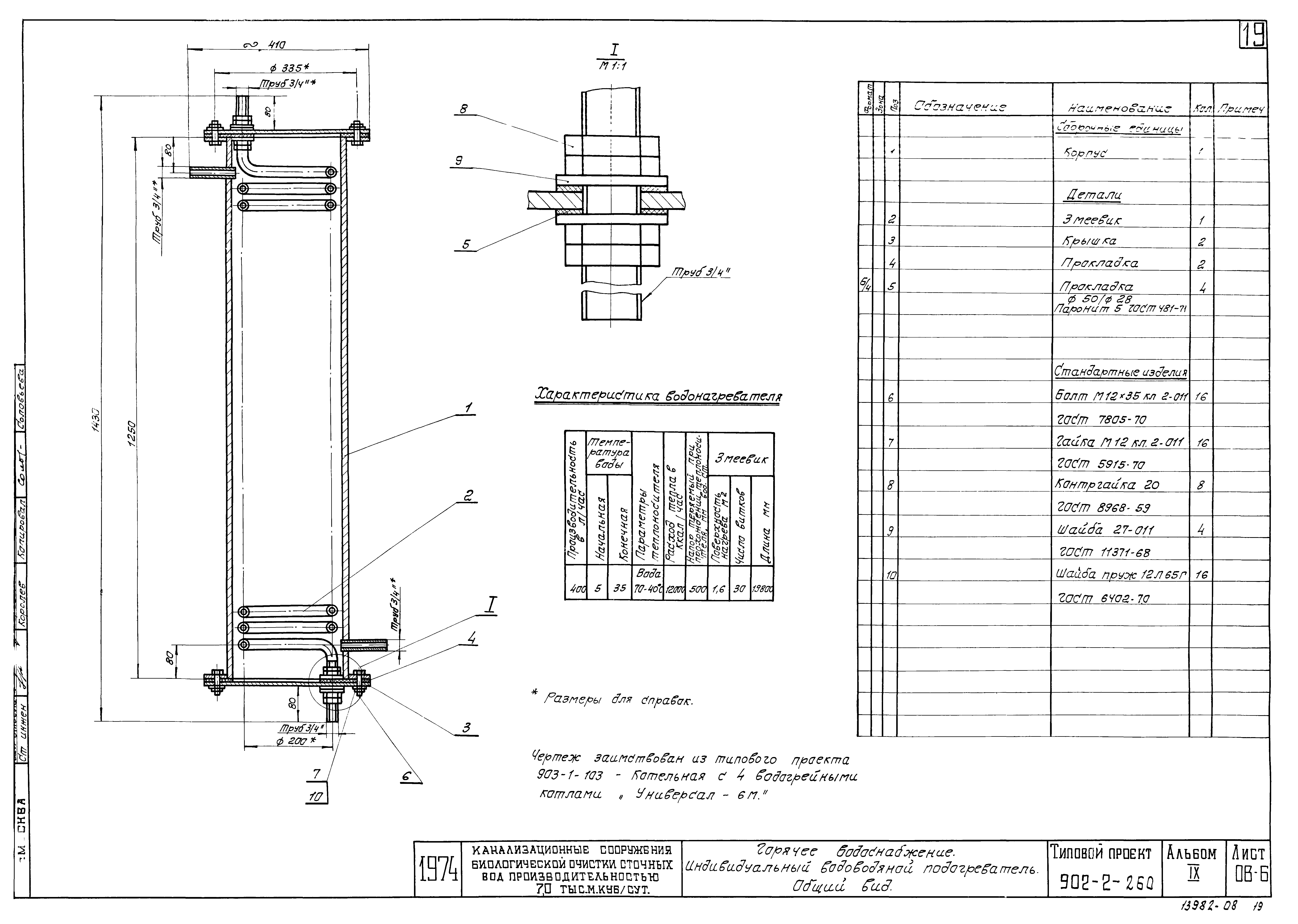
| Оглавление: | ТП 902-2-260-С-1 Производственный корпус. Содержание альбома ТП 902-2-260-ТХ-1 Производственный корпус. Монтажный чертеж воздуходувной и насосной станции. План ТП 902-2-260-ТХ-2 Производственный корпус. Монтажный чертеж воздуходувной и насосной станции. Разрезы и спецификация ТП 902-2-260-ТХ-3 Производственный корпус. Воздуходувная и насосная станция. Диффузор. Грундбукса. Кольцо ТП 902-2-260-ТХ-4 Производственный корпус. Воздуходувная и насосная станция. Диффузор. Основание. Бобышка. Воронка. Кольцо ТП 902-2-260-ТХ-5 Производственный корпус. Воздуходувная и насосная станция. Опора виброизолирующая для трубы dy=300. Подушка. Ребро ТП 902-2-260-ТХ-6 Производственный корпус. Воздуходувная и насосная станция. Опора виброизолирующая для трубы dy=200. Плита. Ребро ТП 902-2-260-ТХ-7 Производственный корпус. Воздуходувная и насосная станция. Опоры виброизолирующие для труб dy=200;300. Плита. Пружина. Болт анкерный. Подушка ТП 902-2-260-ТХ-8 Производственный корпус. Воздуходувная и насосная станция. Рама фильтров. Рама. Ячейка ТП 902-2-260-ТХ-9 Производственный корпус. Механическая мастерская ТП 902-2-260-ВК-1 Производственный корпус. Сантехническая часть. Внутренний водопровод, канализация. Планы ТП 902-2-260-ВК-2 Производственный корпус. Сантехническая часть. Разрезы канализации. Схема холодного водоснабжения. Спецификация ТП 902-2-260-ОВ-1 Производственный корпус. Санитарно-техническая часть. Отопление, вентиляция и горячее водоснабжение. Заглавный лист ТП 902-2-260-ОВ-2 Производственный корпус. Санитарно-техническая часть. Отопление, вентиляция и горячее водоснабжение. Планы на отм. ±0.00 и 3.30. Разрез 1-1. Экспликация помещений ТП 902-2-260-ОВ-3 Производственный корпус. Санитарно-техническая часть. Отопление, вентиляция и горячее водоснабжение. Схемы систем отопления, вентиляции и горячего водоснабжения. Схема узла ввода ТП 902-2-260-ОВ-4 Производственный корпус. Санитарно-техническая часть. Вентиляция. Приточная камера П-1. План и разрез 1-1. Монтажная спецификация. Схема теплоснабжения калориферов ТП 902-2-260-ОВ-5 Производственный корпус. Санитарно-техническая часть. Отопление, вентиляция и горячее водоснабжение. Спецификация оборудования и материалов ТП 902-2-260-ОВ-6 Горячее водоснабжение. Индивидуальный водоводяной подогреватель. Общий вид ТП 902-2-260-ОВ-7 Горячее водоснабжение. Индивидуальный водоводяной подогреватель. Детали ТП 902-2-260-ОВ-8 Горячее водоснабжение. Индивидуальный водоводяной подогреватель. Детали |
| Разработан: | Гипрокоммунводоканал Минжилкомхоза РСФСР |
| Утверждён: | 20.06.1975 МЖКХ РСФСР (10ТД) |
| Издан: | ЦИТП Госстроя СССР (CITP, Gosstroy (USSR) 1976 г. ) |





















