Скачать Типовой проект 902-2-258 Альбом II. Блок емкостей. Строительная часть. Опалубка и армирование днища. Монтажные схемы. ВыборкиДата актуализации: 01.01.2021
|
| Обозначение: | Типовой проект 902-2-258 |
| Обозначение англ: | 902-2-258 |
| Статус: | действует |
| Название рус.: | Альбом II. Блок емкостей. Строительная часть. Опалубка и армирование днища. Монтажные схемы. Выборки |
| Дата добавления в базу: | 01.09.2013 |
| Дата актуализации: | 01.01.2021 |
| Дата введения: | 29.12.1975 |
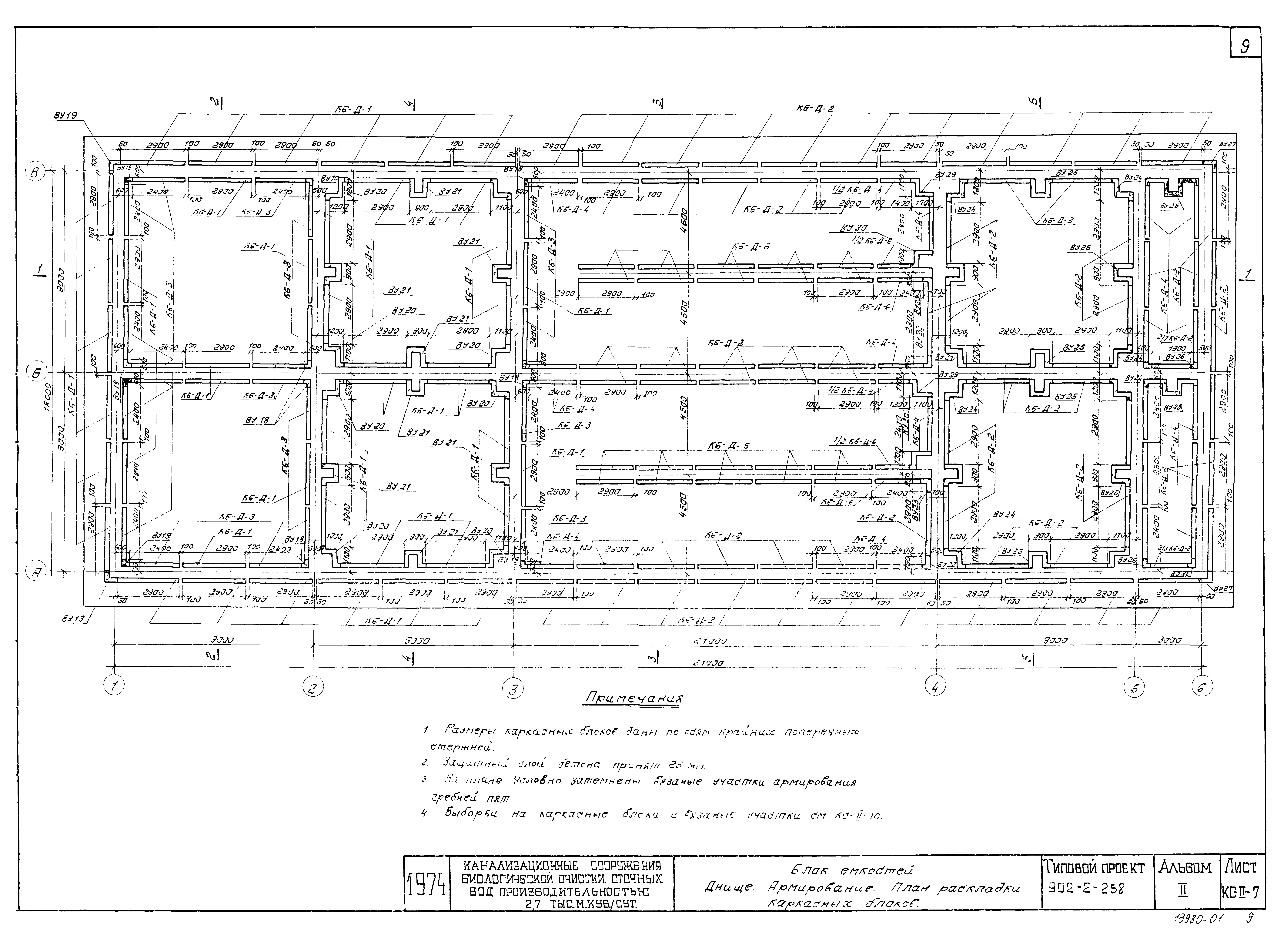
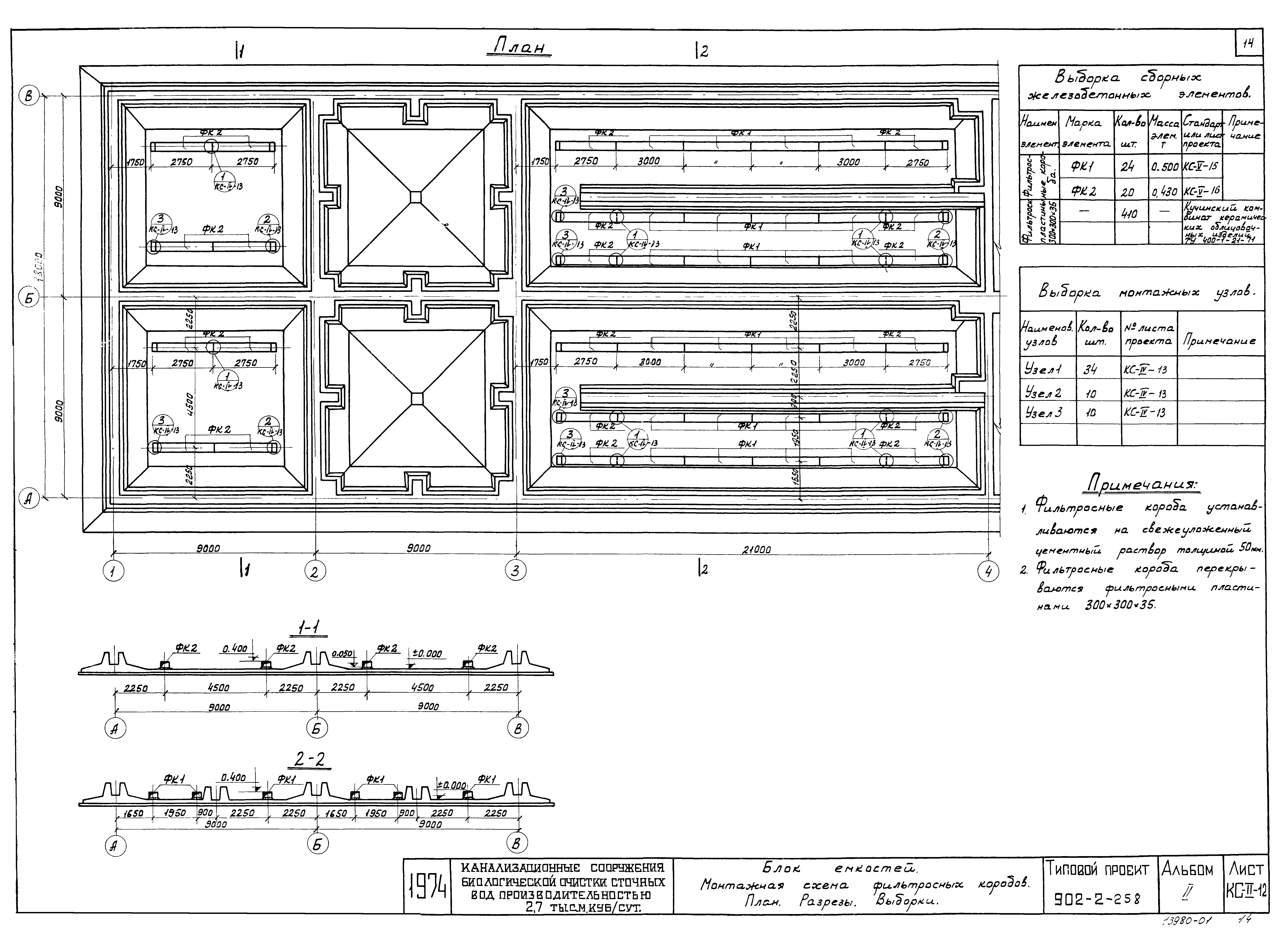
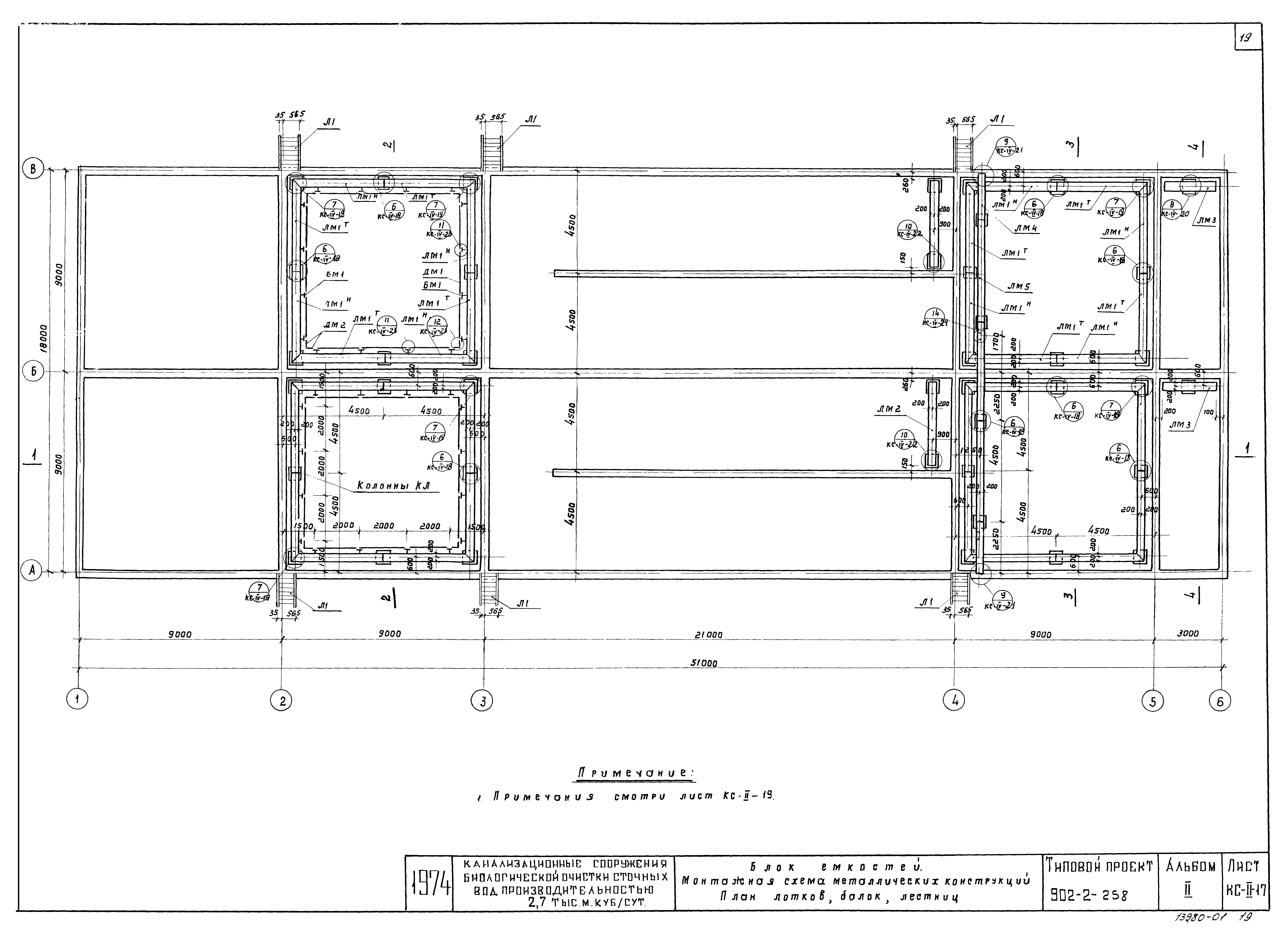
| Оглавление: | ТП 902-2-258-С-1 Содержание альбома ТП 902-2-258-КС-II-1 Общеувязочный чертеж. План ТП 902-2-258-КС-II-2 Общеувязочный чертеж. Разрезы ТП 902-2-258-КС-II-3 Днище. Опалубочный чертеж. План ТП 902-2-258-КС-II-4 Днище. Опалубочный чертеж. Разрезы ТП 902-2-258-КС-II-5 Днище. Армирование. План нижних сеток ТП 902-2-258-КС-II-6 Днище. Армирование. План верхних сеток ТП 902-2-258-КС-II-7 Днище. Армирование. План, раскладки каркасных блоков ТП 902-2-258-КС-II-8 Днище. Армирование. Разрезы 1-1 ÷ 3-3 ТП 902-2-258-КС-II-9 Днище. Армирование. Разрезы 4-4, 5-5. Выборки ТП 902-2-258-КС-II-10 Днище. Набетонка. План ТП 902-2-258-КС-II-11 Днище. Набетонка. Разрезы ТП 902-2-258-КС-II-12 Монтажная схема фильтросных короб. План. Разрезы. Выборки ТП 902-2-258-КС-II-13 Монтажная схема стен. План ТП 902-2-258-КС-II-14 Монтажная схема стен. Разрезы 1-1 ÷ 6-6 ТП 902-2-258-КС-II-15 Монтажная схема стен. Выборки ТП 902-2-258-КС-II-16 Монтажная схема металлических конструкций. План колонн, центральных труб, перегородок ТП 902-2-258-КС-II-17 Монтажная схема металлических конструкций. План лотков, балок и лестниц ТП 902-2-258-КС-II-18 Монтажная схема металлических конструкций. Разрез 1-1 ÷ 3-3 ТП 902-2-258-КС-II-19 Монтажная схема металлических конструкций. Разрез 4-4. Выборки ТП 902-2-258-КС-II-20 Монтажная схема мостиков. План ТП 902-2-258-КС-II-21 Монтажная схема мостиков. Разрез 1-1. Выборки ТП 902-2-258-КС-II-22 Выборки ТП 902-2-258-КС-II-23 Выборки ТП 902-2-258-КС-II-24 Выборки |
| Разработан: | Гипрокоммунводоканал Минжилкомхоза РСФСР |
| Утверждён: | 20.06.1975 МЖКХ РСФСР (10ТД) |
| Издан: | ЦИТП Госстроя СССР (CITP, Gosstroy (USSR) 1976 г. ) |


























