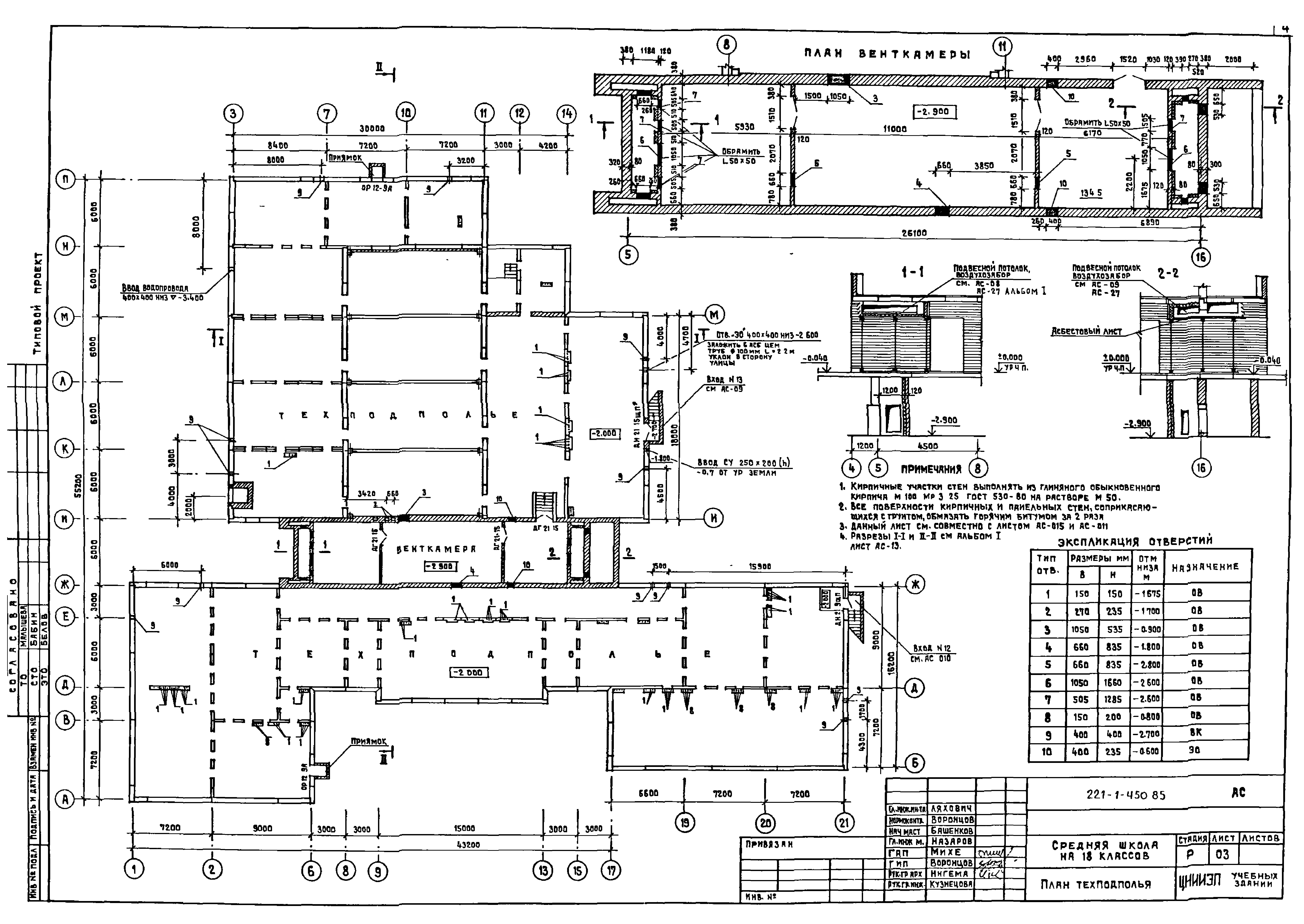
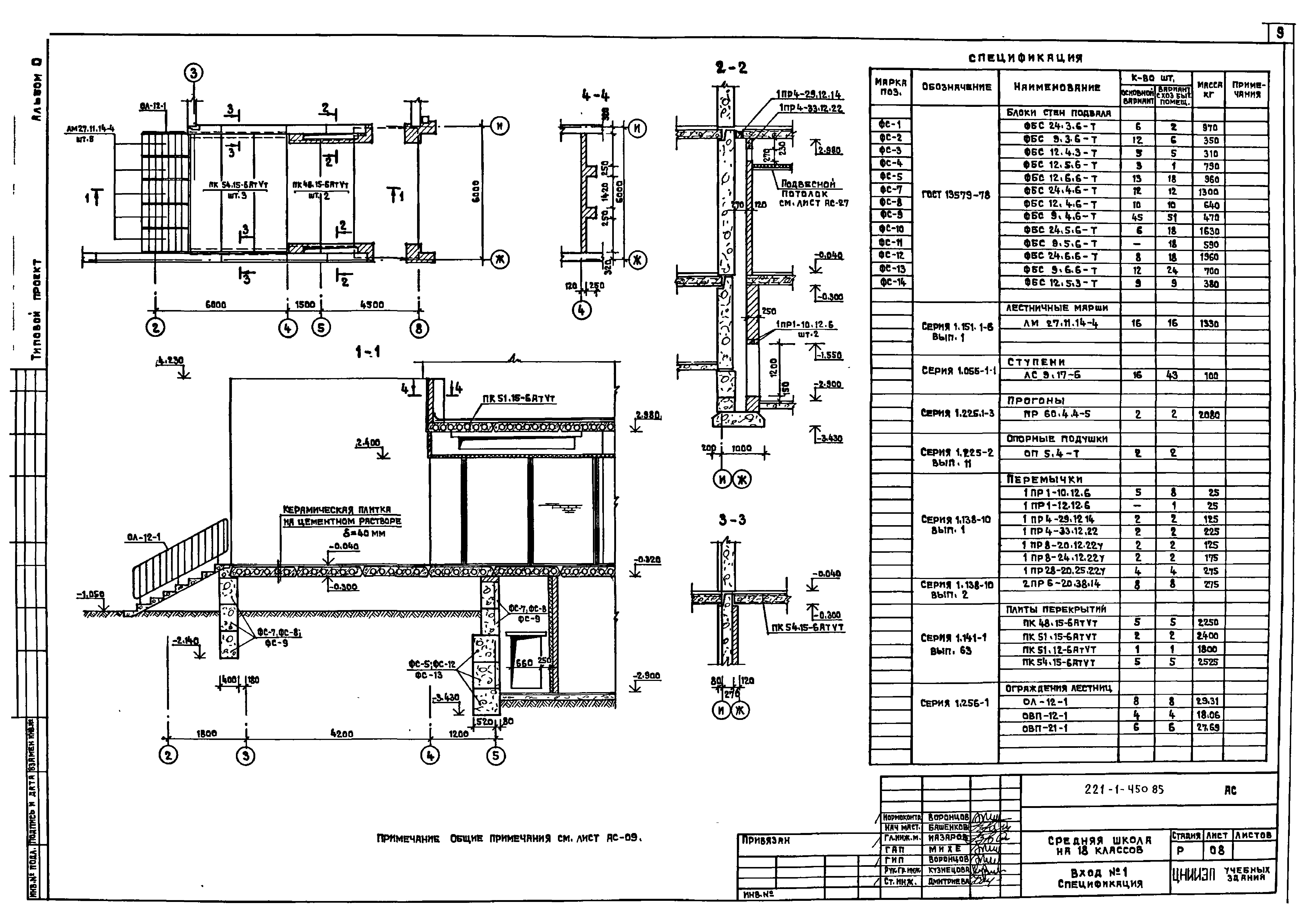
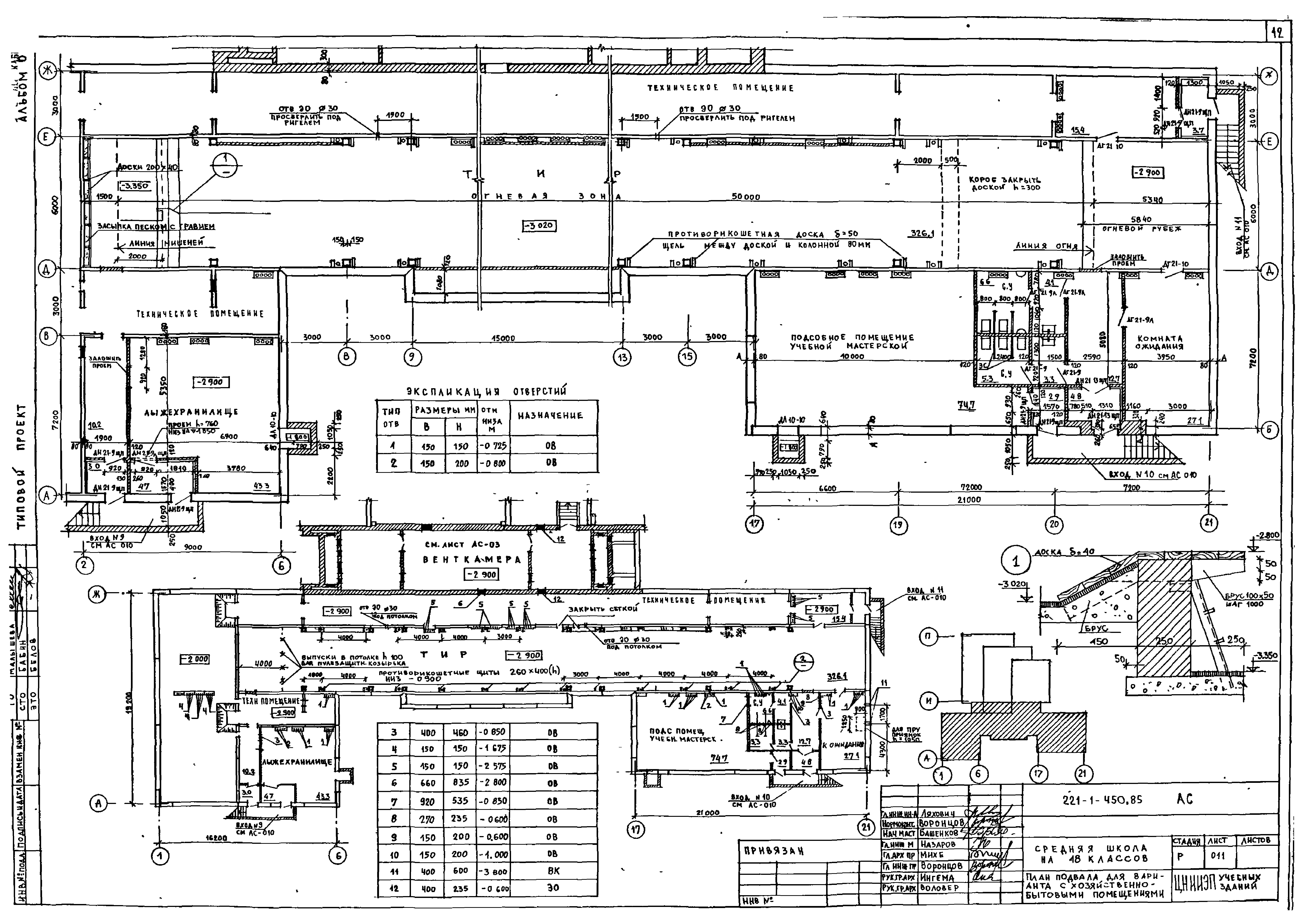
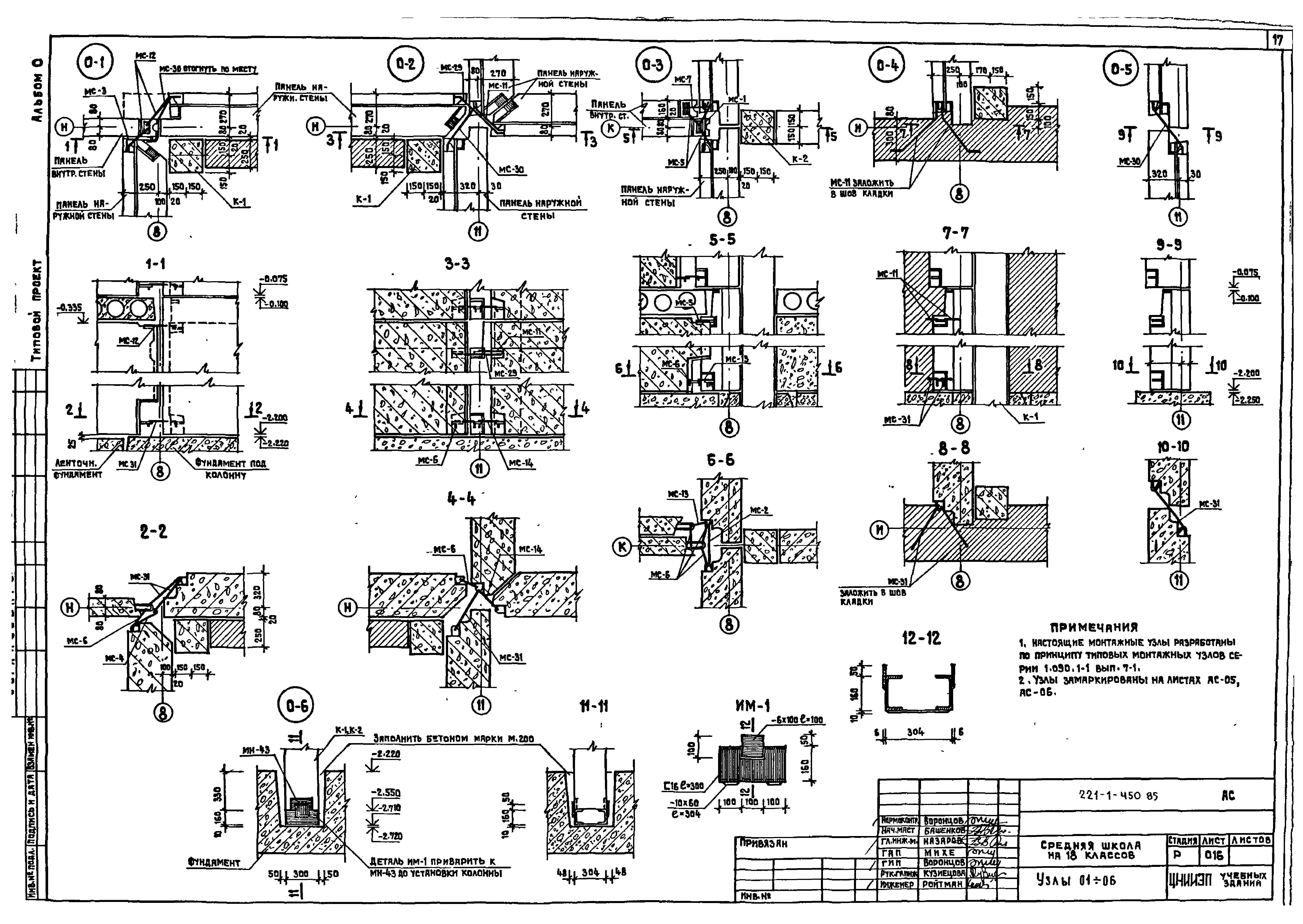
Скачать Типовой проект 221-1-450.85 Альбом 0. Материалы для привязки и чертежи нулевого цикла работДата актуализации: 01.01.2021
|
| Обозначение: | Типовой проект 221-1-450.85 |
| Обозначение англ: | 221-1-450.85 |
| Статус: | не определен законодательством |
| Название рус.: | Альбом 0. Материалы для привязки и чертежи нулевого цикла работ |
| Дата добавления в базу: | 01.09.2013 |
| Дата актуализации: | 01.01.2021 |
| Дата введения: | 12.12.1985 |
| Дата окончания срока действия: | 30.06.2003 |
| Разработан: | ЦНИИЭП учебных зданий Госгражданстроя |
| Утверждён: | 19.08.1983 Госгражданстрой (Gosgrazhdanstroy 243) |


















