Скачать Типовой проект 902-2-57/71 Альбом II. Технологическая и механическая части. Внутренние водопровод и канализацияДата актуализации: 01.01.2021
|
| Обозначение: | Типовой проект 902-2-57/71 |
| Обозначение англ: | 902-2-57/71 |
| Статус: | не действует |
| Название рус.: | Альбом II. Технологическая и механическая части. Внутренние водопровод и канализация |
| Дата добавления в базу: | 01.09.2013 |
| Дата актуализации: | 01.01.2021 |
| Дата введения: | 12.10.1972 |
| Дата окончания срока действия: | 01.01.1986 |
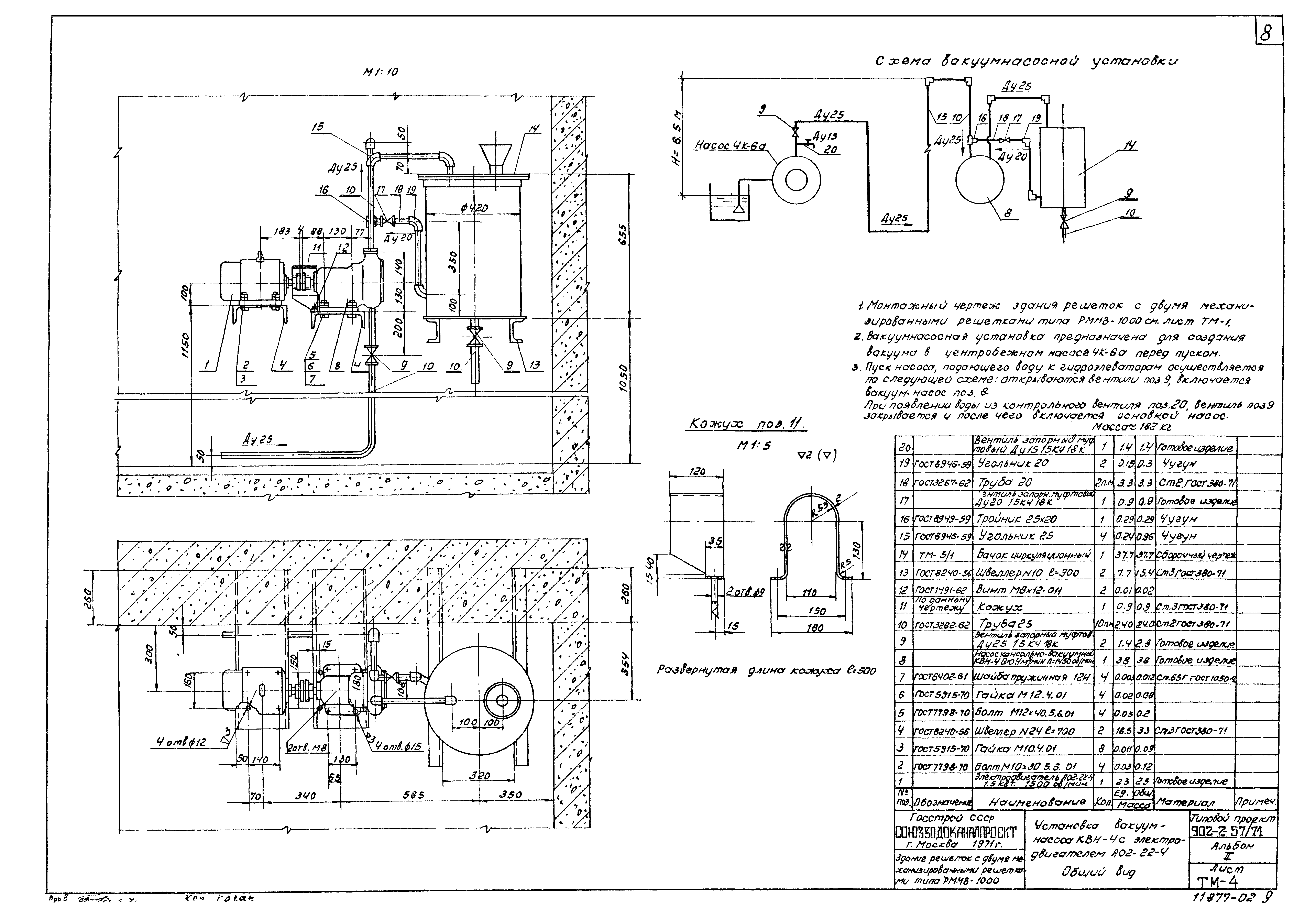
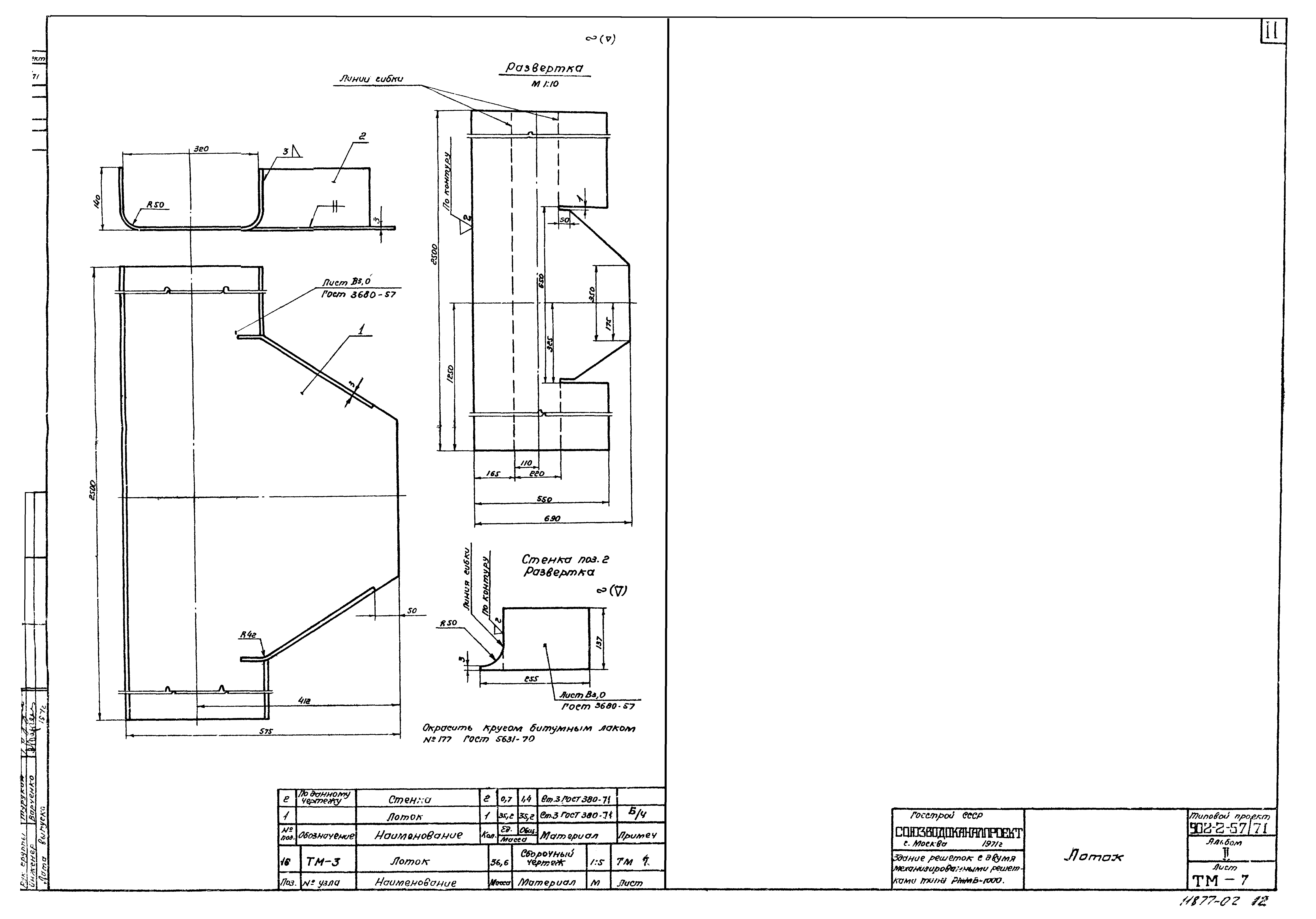
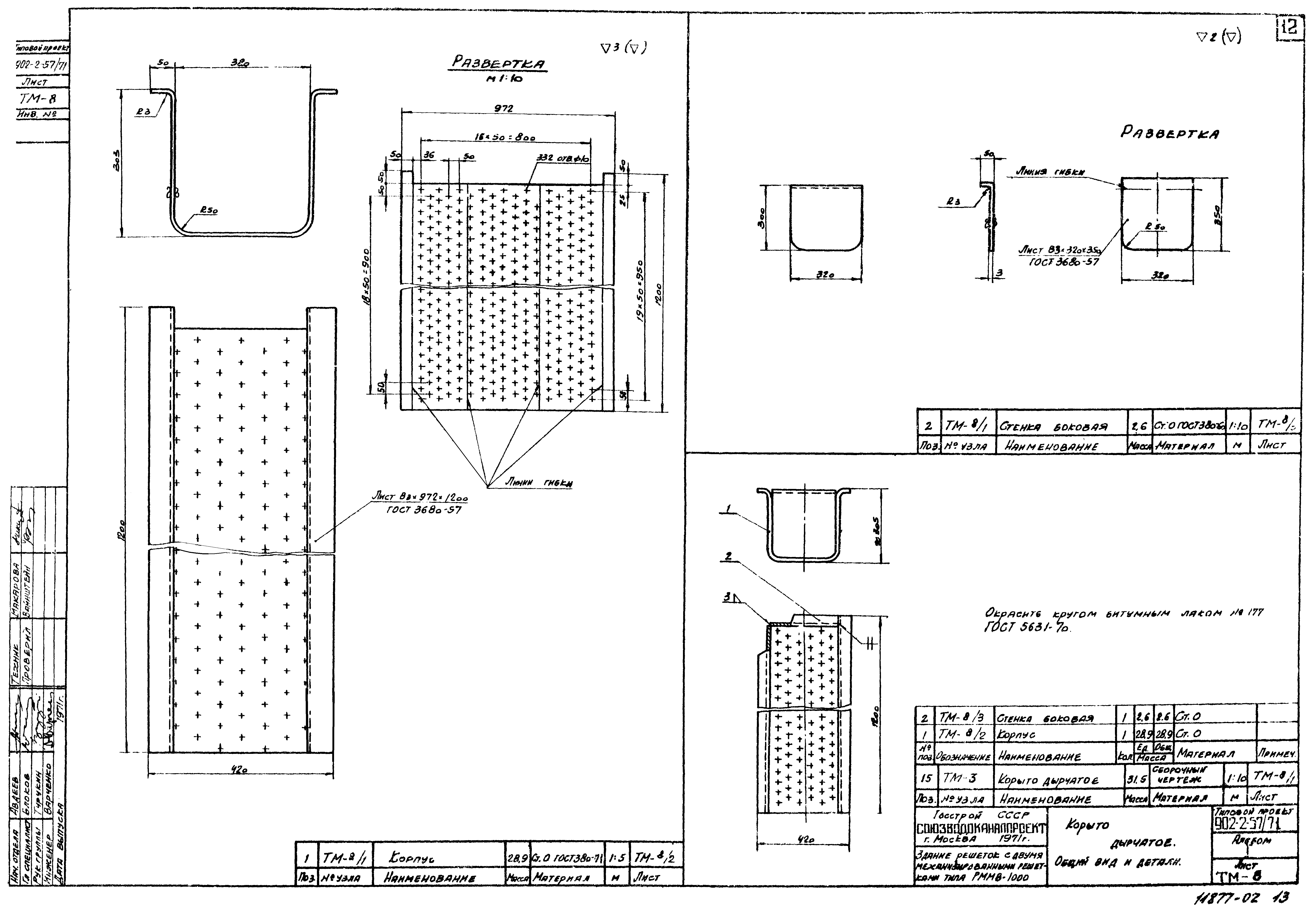
| Оглавление: | ТП 902-2-57/71 Титульный лист ТП 902-2-57/71-ПЗ-1 Заглавный лист ТП 902-2-57/71-ПЗ-2 Пояснительная записка ТП 902-2-57/71-ПЗ-3 Пояснительная записка (продолжение) ТП 902-2-57/71-ТМ-1 Монтажный чертеж. План ТП 902-2-57/71-ТМ-2 Монтажный чертеж. Разрезы ТП 902-2-57/71-ТМ-3 Спецификация оборудования, арматуры и материала ТП 902-2-57/71-ТМ-4 Установка вакуум-насоса КВН-4 с электродвигателем АО2-22-4. Общий вид ТП 902-2-57/71-ТМ-5 Вакуумнасосная установка КВН-4. Узел. Детали ТП 902-2-57/71-ТМ-6 Стойка для корыта. Общий вид и детали ТП 902-2-57/71-ТМ-7 Лоток ТП 902-2-57/71-ТМ-8 Корыто дырчатое. Общий вид и детали ТП 902-2-57/71-ТМ-9 Заслонка 600х900 ТП 902-2-57/71-ТМ-10 Габаритка для заказа крана ручного подвесного 1-5, 1-4, 5 ТП 902-2-57/71-ВК-1 Внутренние водопровод и канализация. План, схема, разрез. Спецификация |
| Разработан: | Союзводоканалниипроект |
| Утверждён: | 06.10.1972 СоюзводоканалНИИпроект (SoyuzvodokanalNIIproject 218) |
















