Скачать Типовой проект 902-2-259 Альбом I. Указания по применению проекта (из ТП 902-2-260)Дата актуализации: 01.01.2021
|
| Обозначение: | Типовой проект 902-2-259 |
| Обозначение англ: | 902-2-259 |
| Статус: | действует |
| Название рус.: | Альбом I. Указания по применению проекта (из ТП 902-2-260) |
| Дата добавления в базу: | 01.09.2013 |
| Дата актуализации: | 01.01.2021 |
| Дата введения: | 29.12.1975 |
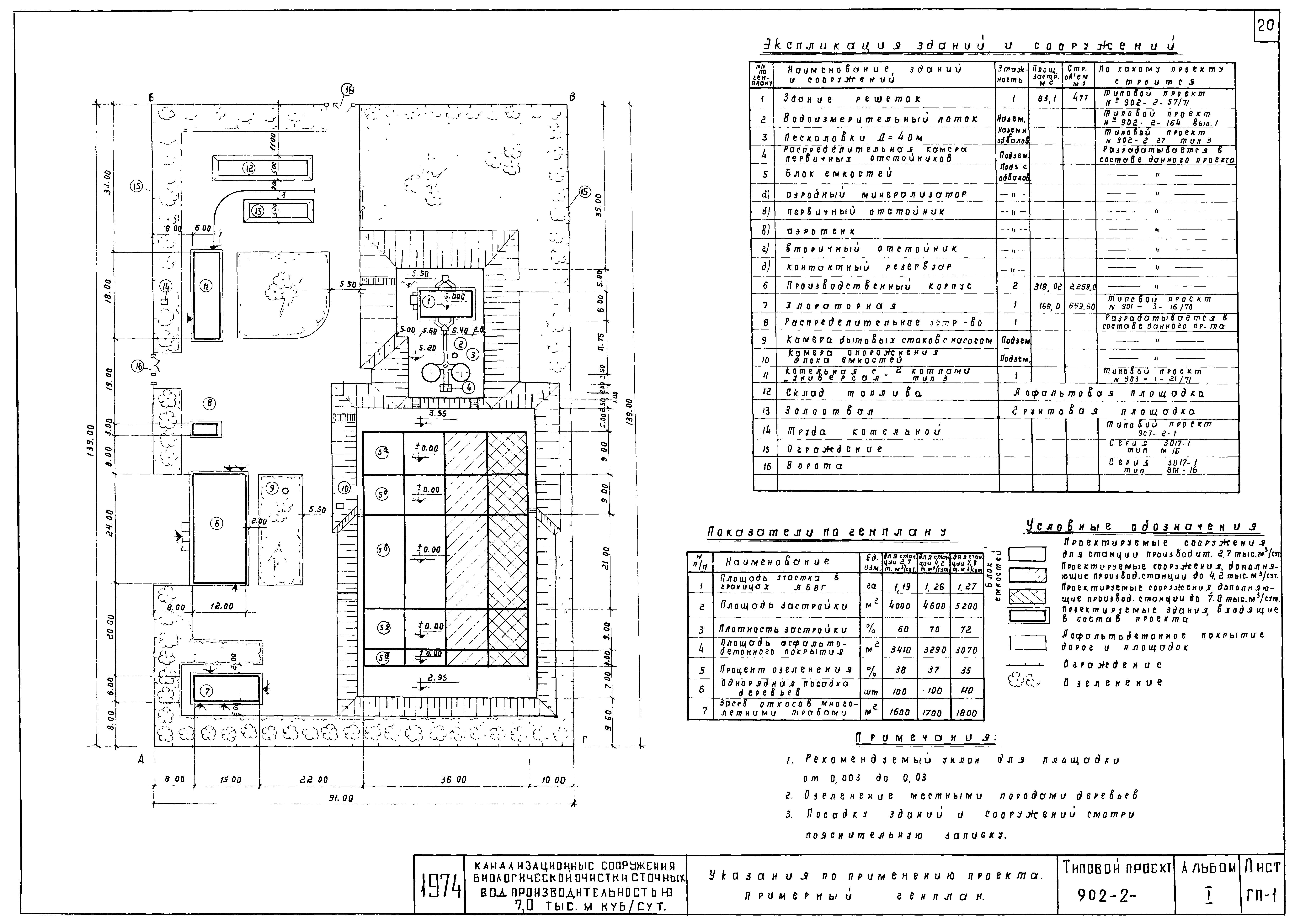
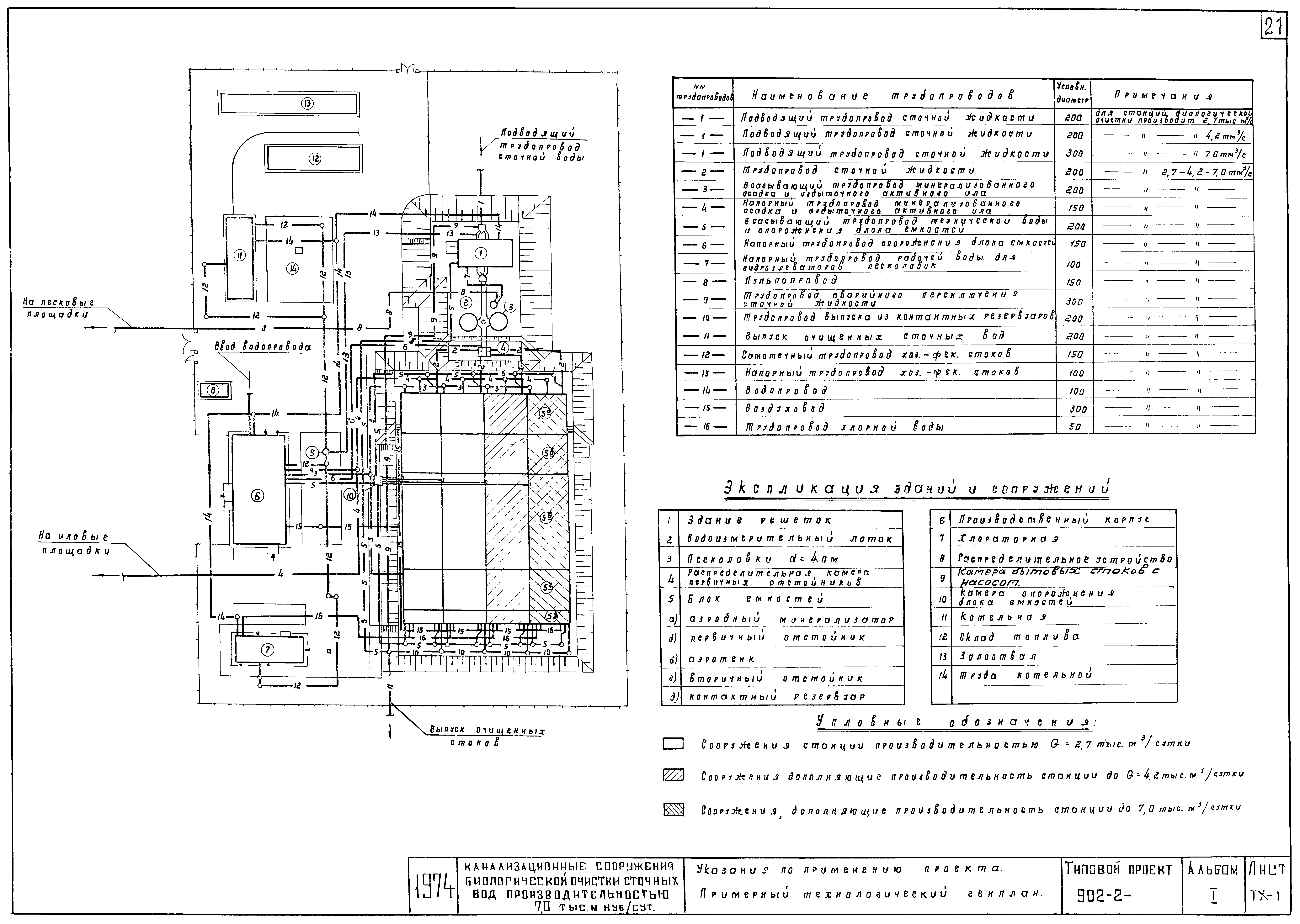
| Оглавление: | ТП 902-2-260 Содержание альбома ТП 902-2-260-ПЗ-1÷ПЗ-17 Пояснительная записка ТП 902-2-260-ГП-1 Примерный генплан ТП 902-2-260-ТХ-1 Примерный технологический генплан ТП 902-2-260-ТХ-2 Схема движения воды по сооружениям ТП 902-2-260-ЭЛ-1 Примерный план площадки с нанесением наружных электросетей ТП 902-2-260-ЭЛ-2 Принципиальная схема технологического контроля. Схема внешних соединений и схема питания приборов общих измерений |
| Разработан: | Гипрокоммунводоканал Минжилкомхоза РСФСР |
| Утверждён: | 20.06.1975 МЖКХ РСФСР (10-ТД) |
























