Скачать Серия 1.436.2-17 Выпуск 2. Часть 1. Окна с раздельными переплетами. Рабочие чертежиДата актуализации: 01.01.2021
|
| Обозначение: | Серия 1.436.2-17 |
| Обозначение англ: | Series 1.436.2-17 |
| Статус: | не действует |
| Название рус.: | Выпуск 2. Часть 1. Окна с раздельными переплетами. Рабочие чертежи |
| Дата добавления в базу: | 01.09.2013 |
| Дата актуализации: | 01.01.2021 |
| Дата введения: | 01.06.1982 |
| Дата окончания срока действия: | 01.12.1987 |
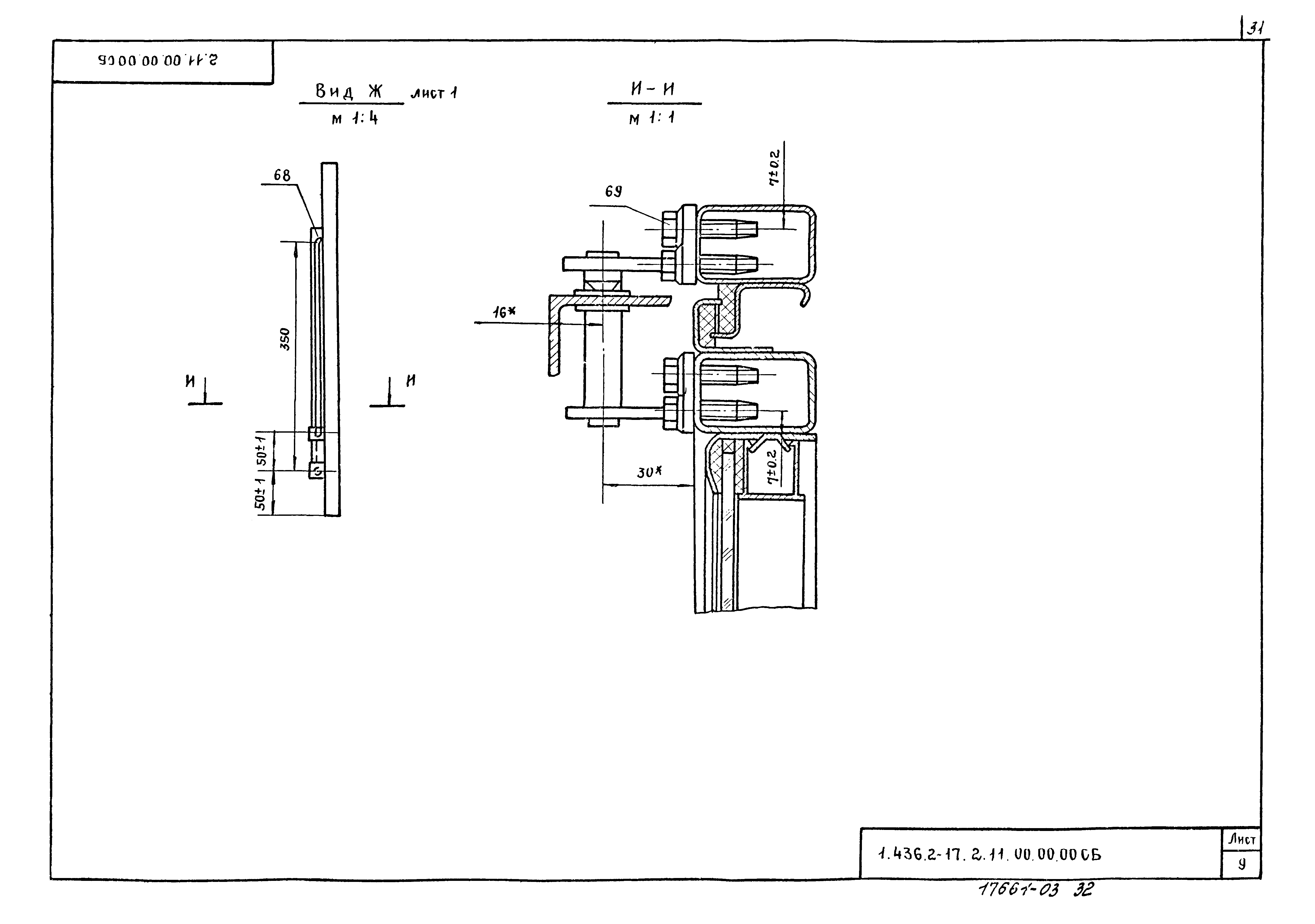
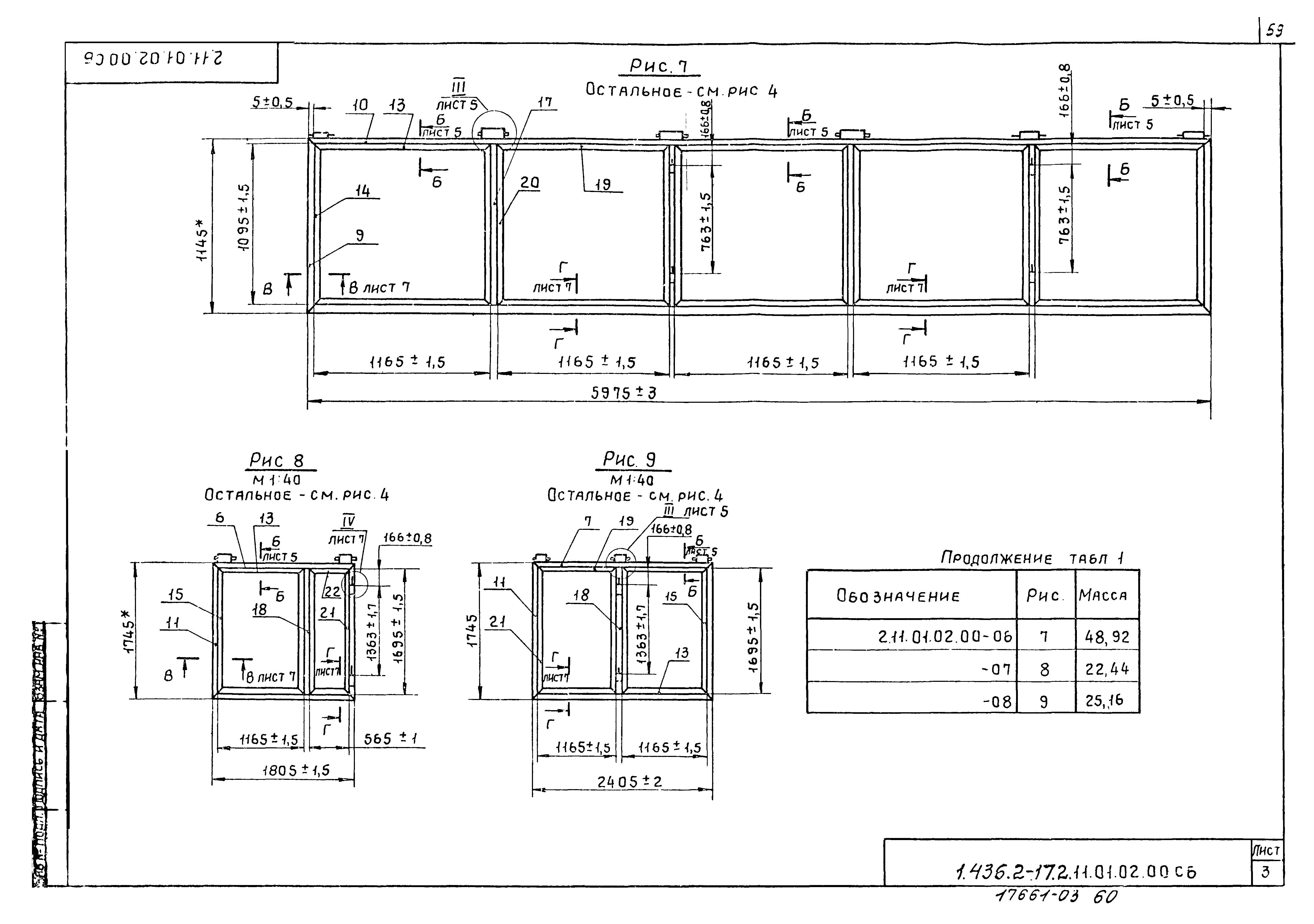
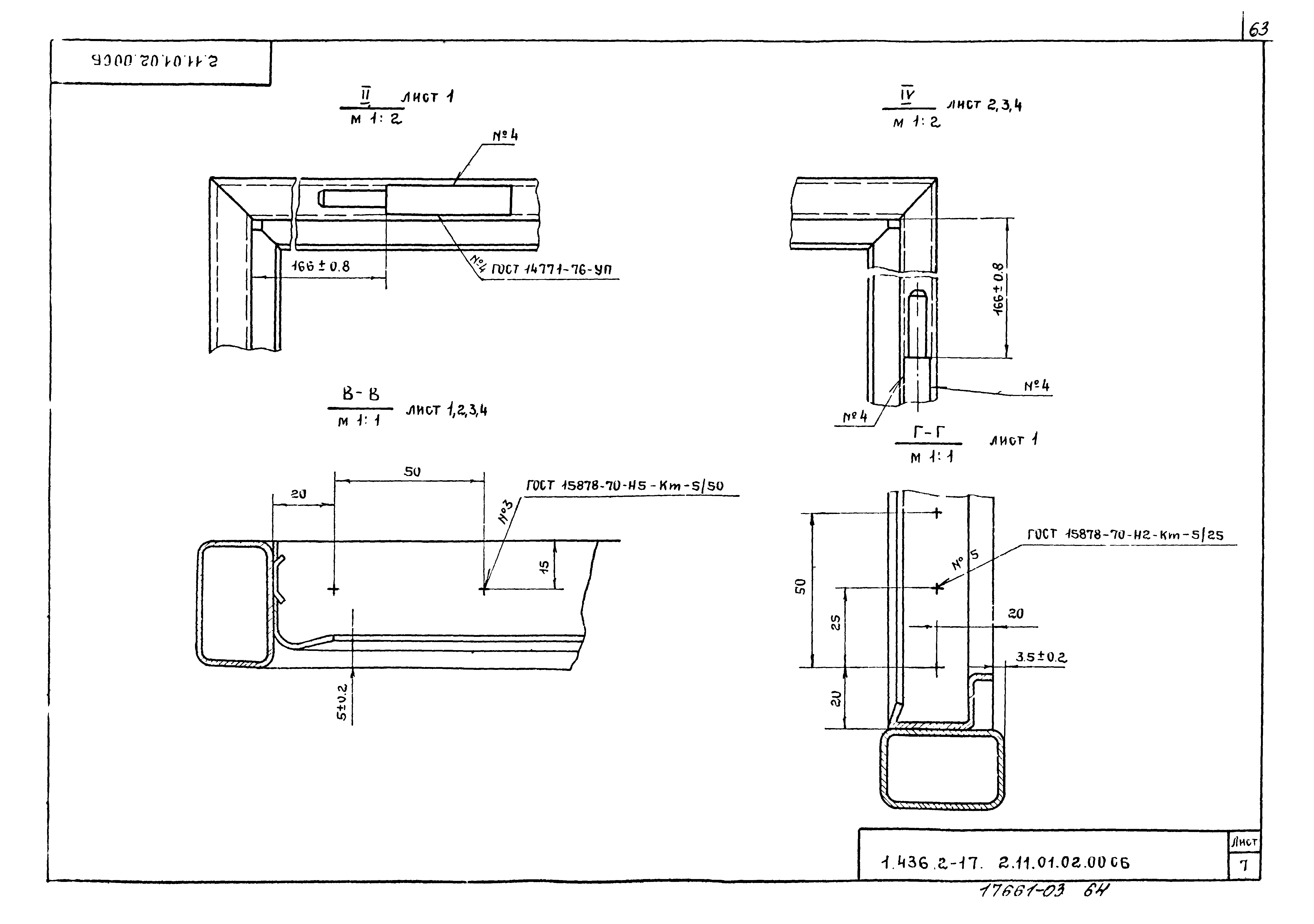
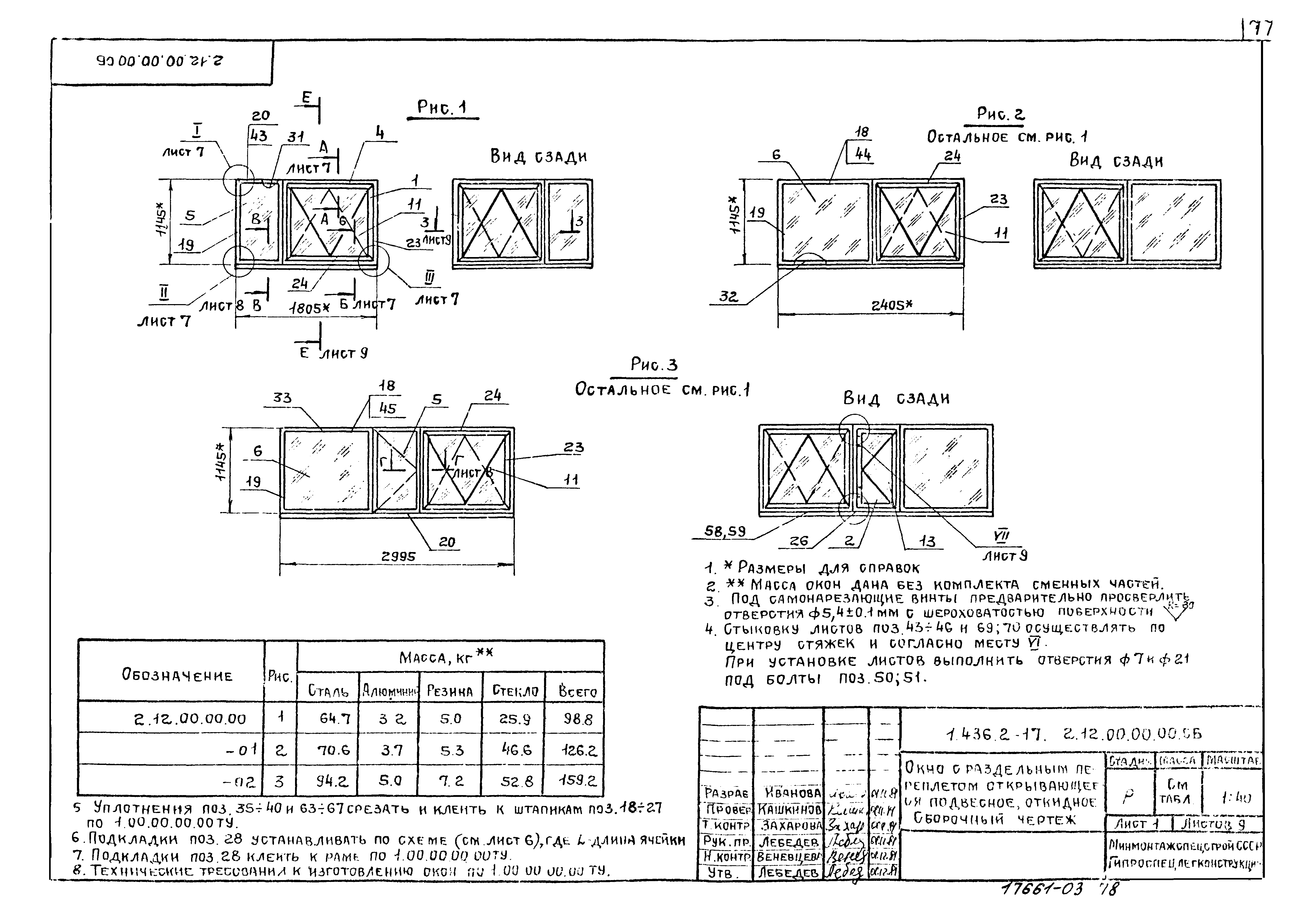
| Оглавление: | 1.436.2-17.2 Содержание 1.436.2-17.2.00.00.00.00 Окно с раздельным переплетом 1.436.2-17.2.00.00.00.00 ВС Окно с раздельным переплетом. Ведомость спецификаций 1.436.2-17.2.00.00.00.00 ВП Окно с раздельным переплетом. Ведомость покупных изделий 1.436.2-17.2.11.00.00.00 Окно с раздельным переплетом глухое 1.436.2-17.2.11.00.00.00 СБ Окна с раздельным переплетом глухое. Сборочный чертеж 1.436.2-17.2.11.01.00.00 Рама 1.436.2-17.2.11.01.00.00 СБ Рама. Сборочный чертеж 1.436.2-17.2.11.01.01.00 Рама 1.436.2-17.2.11.01.01.00 СБ Рама. Сборочный чертеж 1.436.2-17.2.11.01.02.00 Рама 1.436.2-17.2.11.01.02.00 СБ Рама. Сборочный чертеж 1.436.2-17.2.11.02.00.00 Фрамуга 1.436.2-17.2.11.02.00.00 СБ Фрамуга. Сборочный чертеж 1.436.2-17.2.12.00.00.00 Окно с раздельным переплетом открывающееся подвесное откидное 1.436.2-17.2.12.00.00.00 СБ Окно с раздельным переплетом открывающееся подвесное откидное. Сборочный чертеж 1.436.2-17.2.12.01.00.00 Рама 1.436.2-17.2.12.01.00.00 СБ Рама. Сборочный чертеж 1.436.2-17.2.12.01.01.00 Рама 1.436.2-17.2.12.01.01.00 СБ Рама. Сборочный чертеж 1.436.2-17.2.12.01.02.00 Рама 1.436.2-17.2.12.01.02.00 СБ Рама. Сборочный чертеж |
| Разработан: | Промстройпроект |
| Утверждён: | 05.02.1982 Госстрой СССР (Государственный комитет Совета Министров СССР по делам строительства) (USSR Gosstroy 8) |
| Чем заменён: |





















































































































