Скачать Серия 1.436.2-17 Выпуск 4. Механизмы открывания фрамуг, тип А. Рабочие чертежиДата актуализации: 01.01.2021
|
| Обозначение: | Серия 1.436.2-17 |
| Обозначение англ: | Series 1.436.2-17 |
| Статус: | заменен |
| Название рус.: | Выпуск 4. Механизмы открывания фрамуг, тип А. Рабочие чертежи |
| Дата добавления в базу: | 01.09.2013 |
| Дата актуализации: | 01.01.2021 |
| Дата введения: | 01.06.1982 |
| Дата окончания срока действия: | 01.12.1987 |
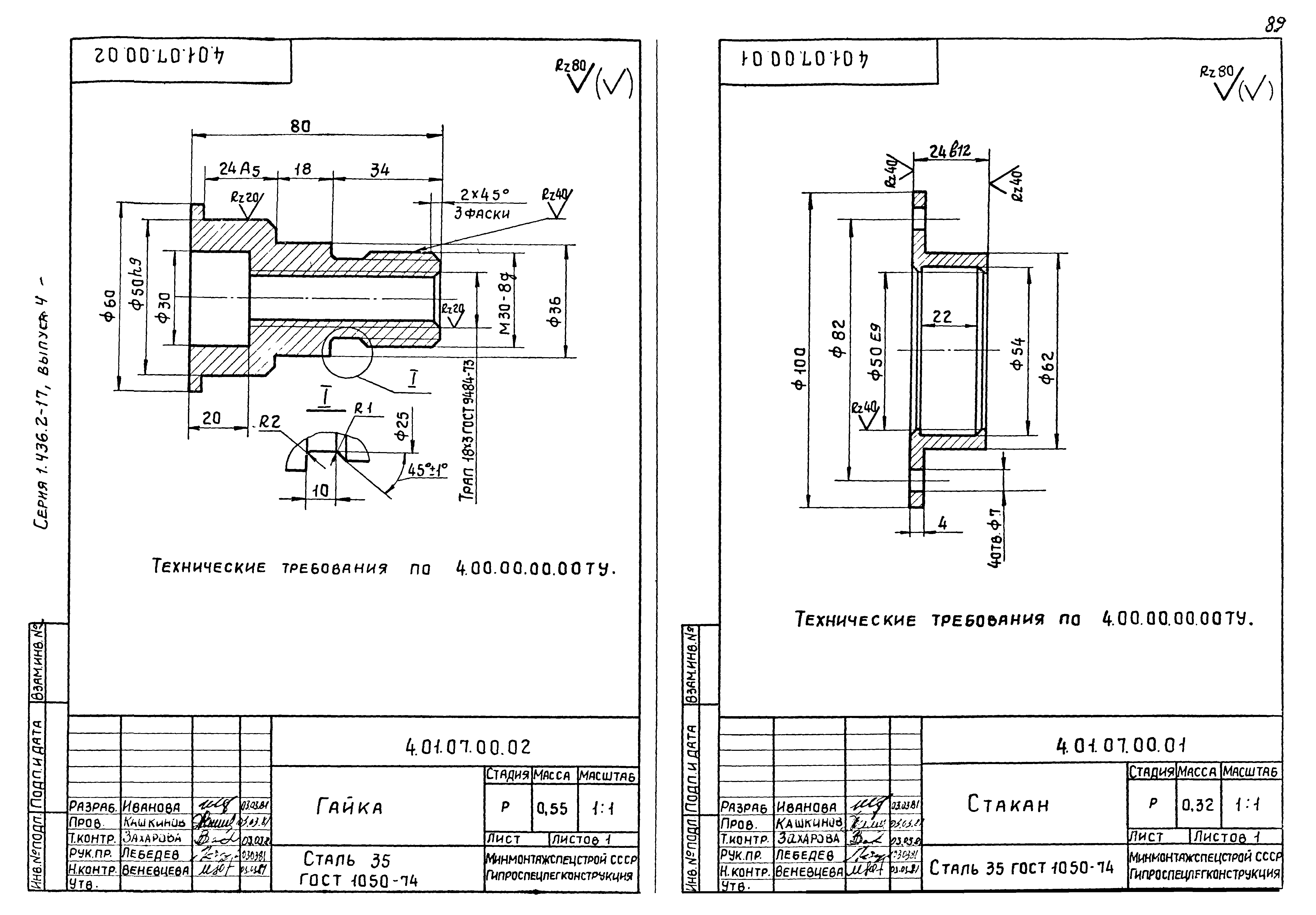
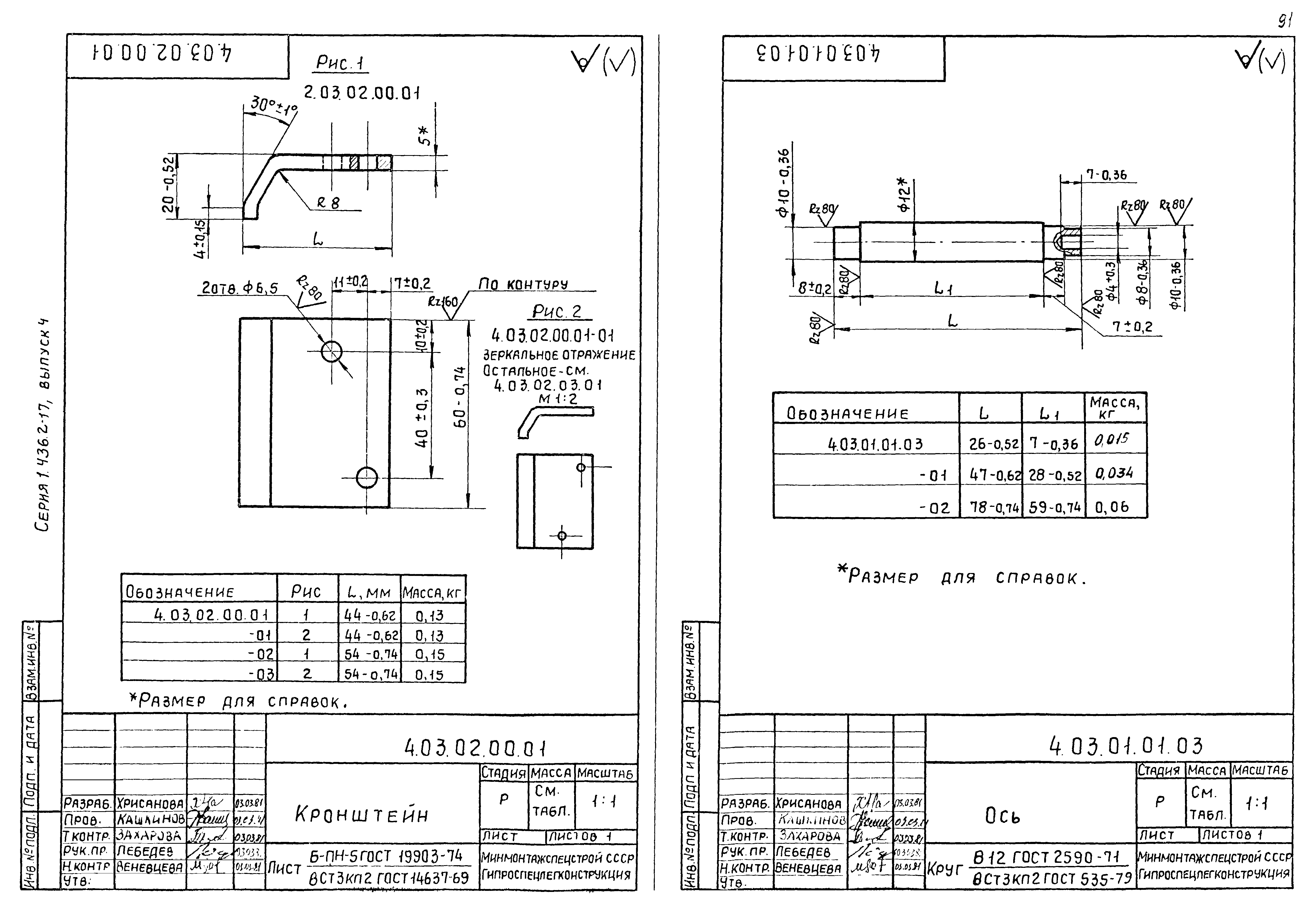
| Оглавление: | 1.436.2-17.4 Содержание 1.436.2-17.4.00.00.00.00 Механизмы открывания фрамуг. Тип А 1.436.2-17.4.00.00.00.00 ВС Механизмы открывания фрамуг. Тип А. Ведомость спецификации 1.436.2-17.4.00.00.00.00 ВП Механизмы открывания фрамуг. Тип А. Ведомость покупных изделий 1.436.2-17.4.00.00.00.00 ТУ Механизмы открывания фрамуг. Тип А. Технические условия 1.436.2-17.4.00.00.00.00 ТО Механизмы открывания фрамуг. Тип А. Техническое описание 1.436.2-17.4.01.00.00.00 Механизм винторычажный для одинарных переплетов 1.436.2-17.4.01.00.00.00 СБ Механизм винторычажный для одинарных переплетов. Сборочный чертеж 1.436.2-17.4.01.01.00.00 Рычаг 1.436.2-17.4.01.01.00.00 СБ Рычаг. Сборочный чертеж 1.436.2-17.4.01.02.00.00 Кронштейн 1.436.2-17.4.01.05.00.00 Тяга 1.436.2-17.4.01.02.00.00 СБ Кронштейн. Сборочный чертеж 1.436.2-17.4.01.03.00.00 Кронштейн 1.436.2-17.4.01.03.00.00 СБ Кронштейн. Сборочный чертеж 1.436.2-17.4.01.04.00.00 Кронштейн 1.436.2-17.4.01.04.00.00 СБ Кронштейн. Сборочный чертеж 1.436.2-17.4.01.05.00.00 СБ Тяга. Сборочный чертеж 1.436.2-17.4.01.06.00.00 Винт 1.436.2-17.4.01.07.00.00 Маховик 1.436.2-17.4.01.06.00.00 СБ Винт. Сборочный чертеж 1.436.2-17.4.01.07.00.00 СБ Маховик. Сборочный чертеж 1.436.2-17.4.01.07.01.00 Штурвал 1.436.2-17.4.02.01.00.00 Винт 1.436.2-17.4.01.07.00.00 СБ Штурвал. Сборочный чертеж 1.436.2-17.4.01.07.02.00 Кронштейн 1.436.2-17.4.01.07.02.00 СБ Кронштейн. Сборочный чертеж 1.436.2-17.4.02.00.00.00 Механизм винторычажный для раздельных переплетов 1.436.2-17.4.02.00.00.00 СБ Механизм винторычажный для раздельных переплетов. Сборочный чертеж 1.436.2-17.4.02.01.00.00 СБ Винт. Сборочный чертеж 1.436.2-17.4.03.00.00.00 Механизм рычажный 1.436.2-17.4.03.01.00.00 Фиксатор 1.436.2-17.4.03.01.00.00 СБ Фиксатор. Сборочный чертеж 1.436.2-17.4.03.01.01.00 Кронштейн 1.436.2-17.4.03.01.01.00 СБ Кронштейн. Сборочный чертеж 1.436.2-17.4.03.02.00.00 Ручка-завертка 1.436.2-17.4.06.00.00.01 Направляющая 1.436.2-17.4.03.02.00.00 СБ Ручка-завертка. Сборочный чертеж 1.436.2-17.4.03.02.01.00 Ручка 1.436.2-17.4.03.02.01.03 Палец 1.436.2-17.4.03.02.01.00 СБ Ручка. Сборочный чертеж 1.436.2-17.4.03.02.02.00 Кронштейн 1.436.2-17.4.03.02.02.00 СБ Кронштейн. Сборочный чертеж 1.436.2-17.4.03.02.03.00 Кронштейн 1.436.2-17.4.03.02.03.00 СБ Кронштейн. Сборочный чертеж 1.436.2-17.4.04.00.00.00 Фрамужный прибор 1.436.2-17.4.06.00.00.00 Фиксатор 1.436.2-17.4.04.00.00.00 СБ Фрамужный прибор. Сборочный чертеж 1.436.2-17.4.04.01.00.00 Кронштейн 1.436.2-17.4.04.01.00.00 СБ Кронштейн. Сборочный чертеж 1.436.2-17.4.05.00.00.00 Ручка-стяжка 1.436.2-17.4.05.00.00.00 СБ Ручка-стяжка. Сборочный чертеж 1.436.2-17.4.06.00.00.00 СБ Фиксатор. Сборочный чертеж 1.436.2-17.4.06.01.00.00 Кронштейн 1.436.2-17.4.06.01.00.00 СБ Кронштейн. Сборочный чертеж 1.436.2-17.4.06.02.00.00 Кронштейн 1.436.2-17.4.06.02.00.00 СБ Кронштейн. Сборочный чертеж 1.436.2-17.4.07.00.00.00 Кронштейн 1.436.2-17.4.07.00.00.00 СБ Кронштейн. Сборочный чертеж 1.436.2-17.4.00.00.00.01 Прокладка 1.436.2-17.4.01.00.00.01 Тяга 1.436.2-17.4.01.07.02.01 Косынка 1.436.2-17.4.01.00.00.02 Ось 1.436.2-17.4.01.00.00.03 Палец 1.436.2-17.4.01.00.00.04 Стержень 1.436.2-17.4.01.00.00.05 Удлинитель тяги 1.436.2-17.4.01.01.00.01 Тяга 1.436.2-17.4.01.02.00.01 Тяга 1.436.2-17.4.01.03.00.01 Скоба 1.436.2-17.4.01.04.00.01 Скоба 1.436.2-17.4.01.05.00.01 Скоба 1.436.2-17.4.01.06.00.01 Стержень 1.436.2-17.4.01.07.00.02 Гайка 1.436.2-17.4.01.07.00.01 Стакан 1.436.2-17.4.03.01.00.01 Направляющая 1.436.2-17.4.03.01.00.02 Кронштейн 1.436.2-17.4.03.02.00.01 Кронштейн 1.436.2-17.4.03.01.01.03 Ось 1.436.2-17.4.03.01.01.01 Стойка 1.436.2-17.4.03.01.01.02 Плита 1.436.2-17.4.03.02.01.01 Ручка 1.436.2-17.4.03.02.02.01 Стойка 1.436.2-17.4.03.02.02.02 Плита 1.436.2-17.4.03.02.03.01 Плита 1.436.2-17.4.03.02.03.02 Планка 1.436.2-17.4.04.00.00.01 Рычаг 1.436.2-17.4.04.00.00.02 Направляющая 1.436.2-17.4.04.01.00.01 Ось 1.436.2-17.4.05.00.00.01 Захват 1.436.2-17.4.05.00.00.02 Ручка 1.436.2-17.4.07.00.00.01 Планка 1.436.2-17.4.07.00.00.02 Планка 1.436.2-17.4.07.00.00.03 Планка 1.436.2-17.4.07.00.00.04 Планка 1.436.2-17.4.00.00.00.00КУ Карта уровня качества |
| Разработан: | Промстройпроект |
| Утверждён: | 05.02.1982 Госстрой СССР (Государственный комитет Совета Министров СССР по делам строительства) (USSR Gosstroy 8) |
| Чем заменён: |





































































































