Скачать Типовой проект 902-2-382.84 Альбом II. ИзделияДата актуализации: 01.01.2021
|
| Обозначение: | Типовой проект 902-2-382.84 |
| Обозначение англ: | 902-2-382.84 |
| Статус: | не определен законодательством |
| Название рус.: | Альбом II. Изделия |
| Дата добавления в базу: | 01.09.2013 |
| Дата актуализации: | 01.01.2021 |
| Дата введения: | 13.07.1984 |
| Дата окончания срока действия: | 30.06.2003 |
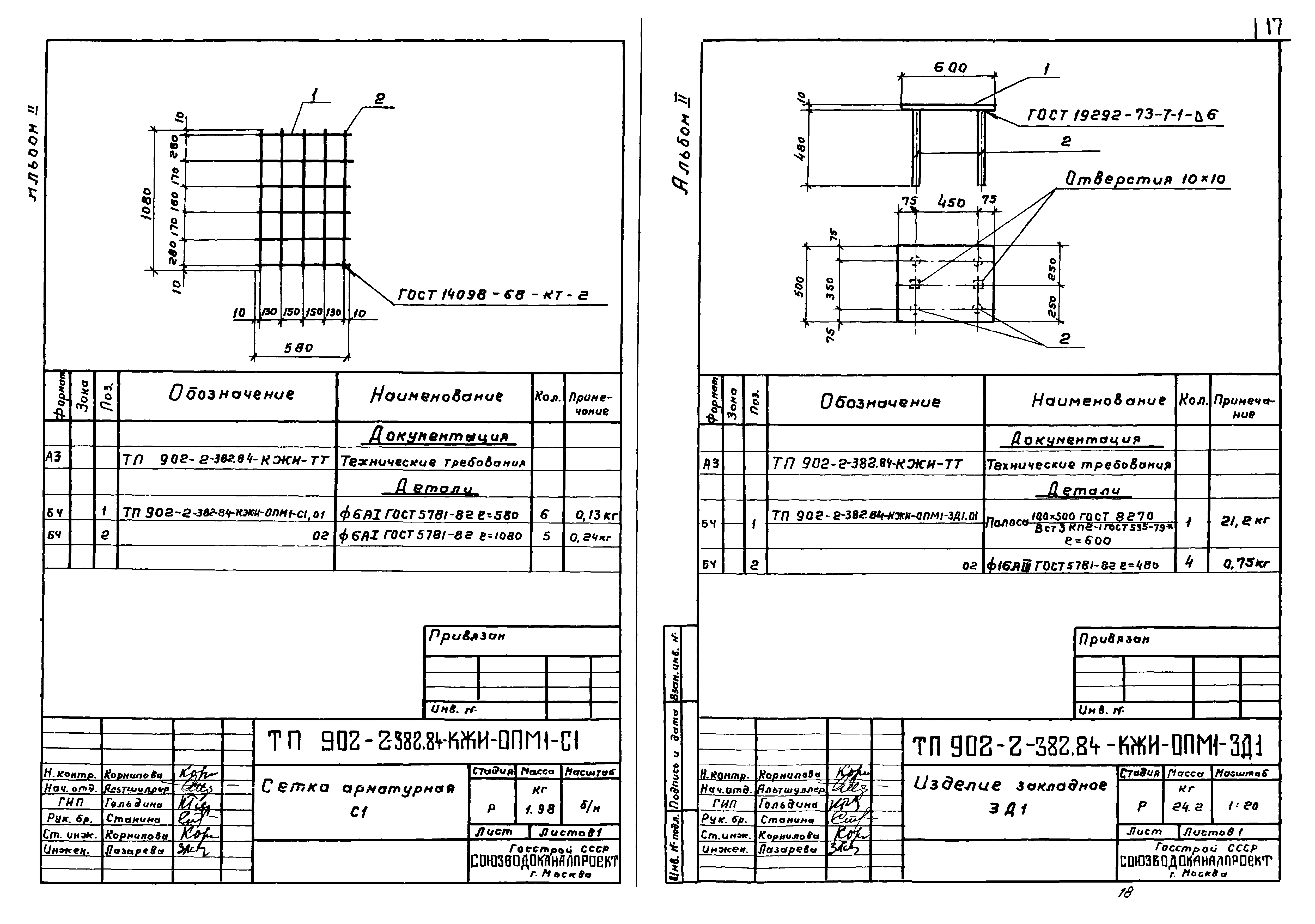
| Оглавление: | ТП 902-2-382.84 Содержание листов альбома ТП 902-2-382.84-КЖИ-ТТ Технические требования ТП 902-2-382.84 Отстойник ТП 902-2-382.84-КЖИ-ПСЦ-3-42-1а Панель ПСЦ-3-42-1а ТП 902-2-382.84-КЖИ-ПСЦ-3-42-1а/1 Панель ПСЦ-3-42-1а/1 ТП 902-2-382.84-КЖИ-ПСЦ-3-42-1а/2 Панель ПСЦ-3-42-1а/2 ТП 902-2-382.84-КЖИ-ЗД1 Изделие закладное ЗД1 ТП 902-2-382.84-КЖИ-РСО1 Ригель РСО1 ТП 902-2-382.84-КЖИ-М1 Соединительное изделие М1 ТП 902-2-382.84-КЖИ-ПСО1,ПСО2 Соединительные изделия ПСО1,ПСО2 ТП 902-2-382.84-КЖИ-ЛТ1 Лоток ЛТ1 (вариант 1) ТП 902-2-382.84-КЖИ-ЛТ1 Лоток ЛТ1 (вариант 2) ТП 902-2-382.84-КЖИ-ЛТ1 Лоток ЛТ1 (вариант 3) ТП 902-2-382.84-КЖИ-ЛТ1-С1 Сетка арматурная С1 (вариант 1) ТП 902-2-382.84-КЖИ-ЛТ1-С2 Сетка арматурная С2 (вариант 1) ТП 902-2-382.84-КЖИ-ЛТ1-С3 Сетка арматурная С3 (вариант 2) ТП 902-2-382.84-КЖИ-ЛТ1-С1 Сетка арматурная С1 (вариант 2) ТП 902-2-382.84-КЖИ-ЛТ1-С2 Сетка арматурная С2 (вариант 2) ТП 902-2-382.84-КЖИ-ЛТ1-С3 Сетка арматурная С3 (вариант 2) ТП 902-2-382.84-КЖИ-ЛТ1-С1 Сетка арматурная С1 (вариант 3) ТП 902-2-382.84-КЖИ-ЛТ1-С2 Сетка арматурная С2 (вариант 3) ТП 902-2-382.84-КЖИ-ЛТ1-С3 Сетка арматурная С3 (вариант 3) ТП 902-2-382.84-КЖИ-ЛТ1-ЗД1 Изделие закладное ЗД1 ТП 902-2-382.84-КЖИ-ДМ1-КР1 Каркас плоский КР1 ТП 902-2-382.84-КЖИ-ОПМ1-С1 Сетка арматурная С1 ТП 902-2-382.84-КЖИ-ОПМ1-ЗД1 Изделие закладное ЗД1 ТП 902-2-382.84-КЖИ-ОПМ1-КП1 Каркас пространственный КП1 ТП 902-2-382.84-КЖИ-ОПМ1-КР1 Каркас плоский КР1 ТП 902-2-382.84-КЖИ-ОПМ1-КП2 Каркас пространственный КП2 ТП 902-2-382.84-КЖИ-ОПМ1-КР2 Каркас плоский КР2 ТП 902-2-382.84-КЖИ-М2 Соединительное изделие М2 ТП 902-2-382.84-КЖИ-М3 Изделие закладное М3 ТП 902-2-382.84 Распределительная чаша (вариант 1,2) ТП 902-2-382.84-КЖИ-МН1 Изделие закладное МН1 ТП 902-2-382.84-КЖИ-МН2 Изделие закладное МН2 ТП 902-2-382.84 Распределительная чаша (вариант 3) ТП 902-2-382.84-КЖИ-МН3 Ограждение МН3 ТП 902-2-382.84-КЖИ-ЗД1 Изделие закладное ЗД1 ТП 902-2-382.84-КЖИ-ЗД2 Изделие закладное ЗД2 ТП 902-2-382.84-КЖИ-ЗД3 Изделие закладное ЗД3 ТП 902-2-382.84 Нефтесборный колодец ТП 902-2-382.84-КЖИ-КС1 Кожух стальной КС1 ТП 902-2-382.84-КЖИ-П2 Плита перекрытия П2 ТП 902-2-382.84 Колодец для выпуска осадка ТП 902-2-382.84-КЖИ-КЦП1 Плита перекрытия КЦП1 ТП 902-2-382.84-КЖИ-КС1 Кожух стальной КС1 |
| Разработан: | Союзводоканалниипроект |
| Утверждён: | 13.02.1981 Главпромстройпроект Госстроя СССР (19/5-488) |


























