Скачать Типовой проект 903-1-213.84 Альбом VII. Электротехническая частьДата актуализации: 01.01.2021
|
| Обозначение: | Типовой проект 903-1-213.84 |
| Обозначение англ: | 903-1-213.84 |
| Статус: | не действует |
| Название рус.: | Альбом VII. Электротехническая часть |
| Дата добавления в базу: | 01.09.2013 |
| Дата актуализации: | 01.01.2021 |
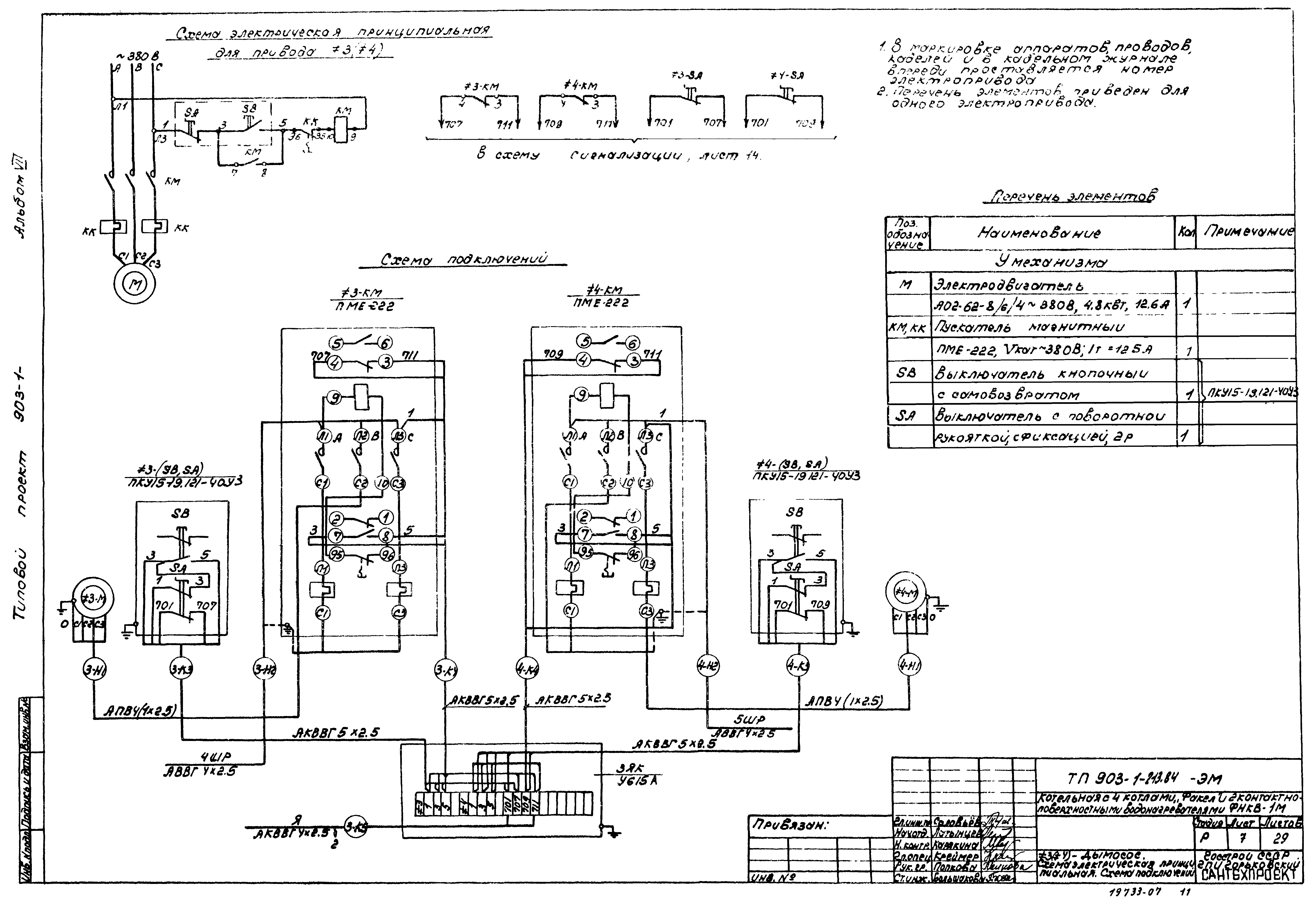
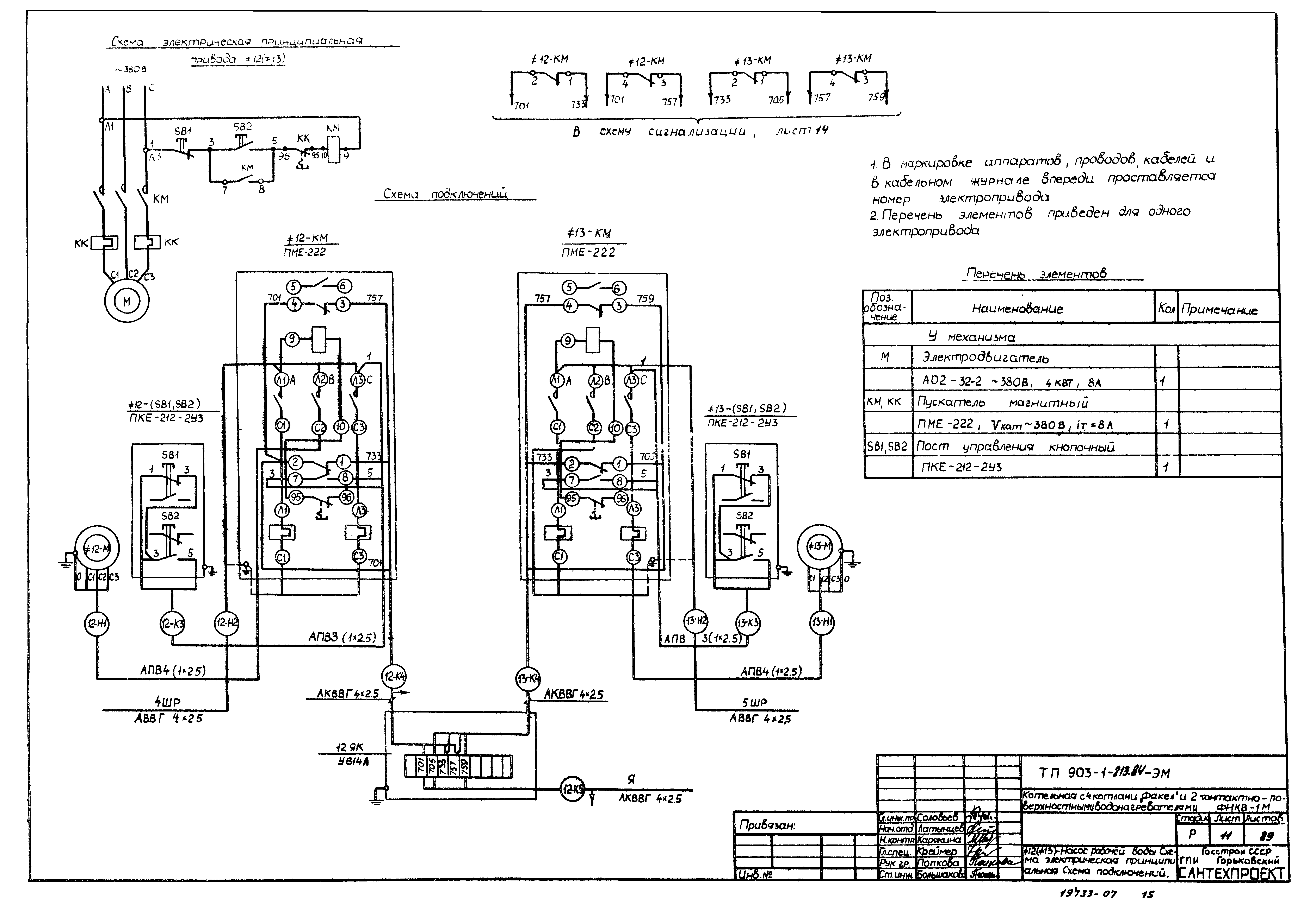
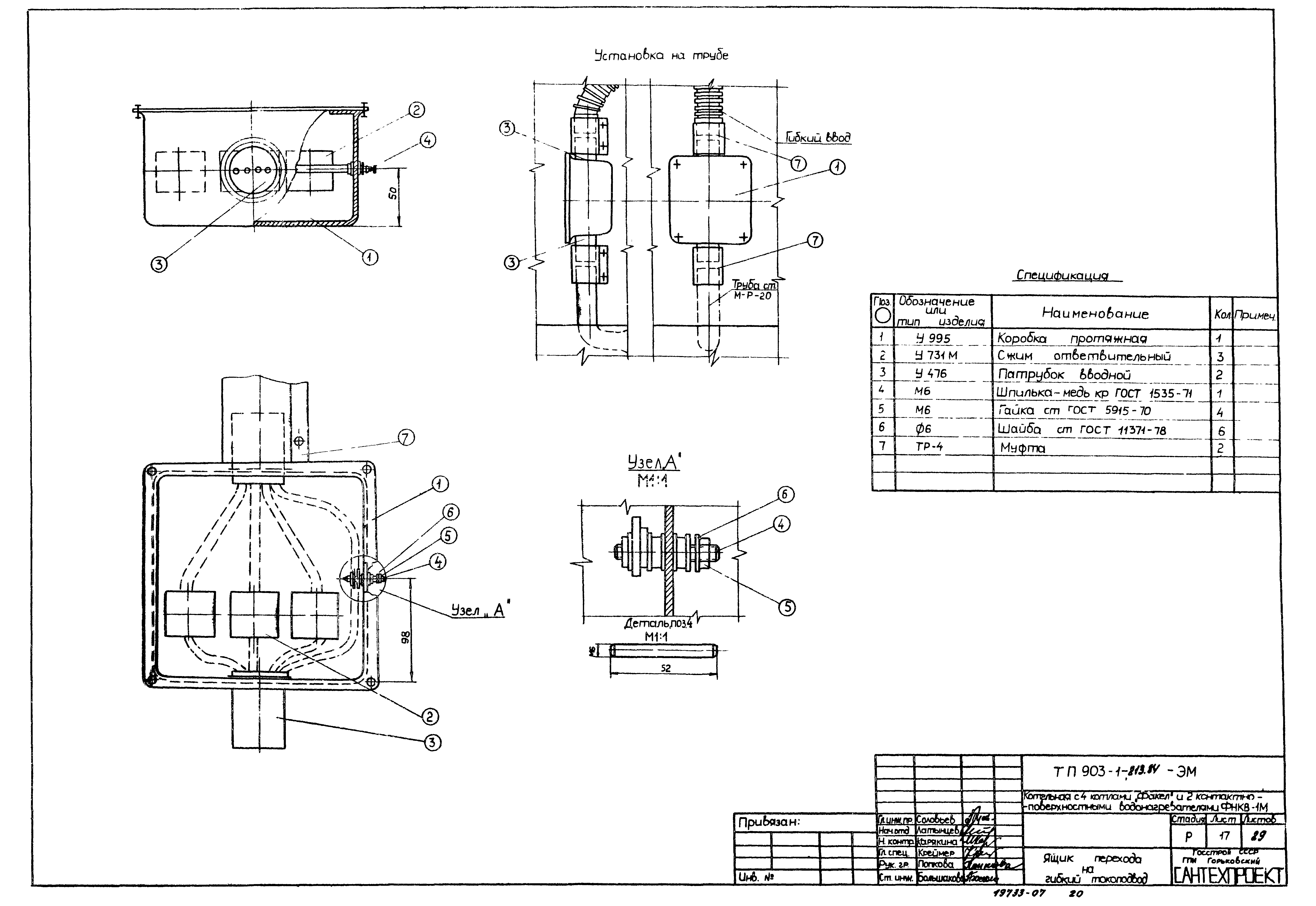
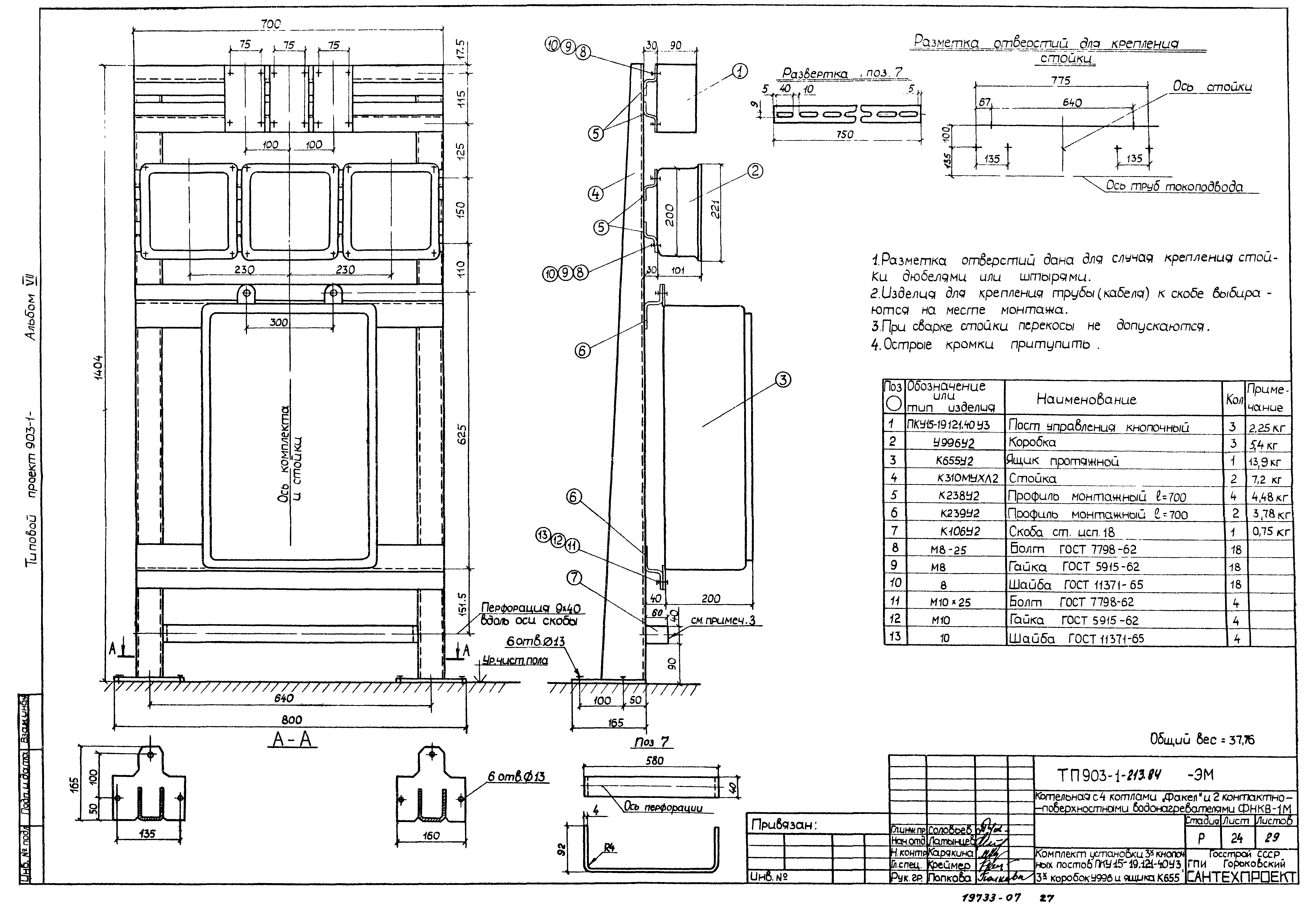
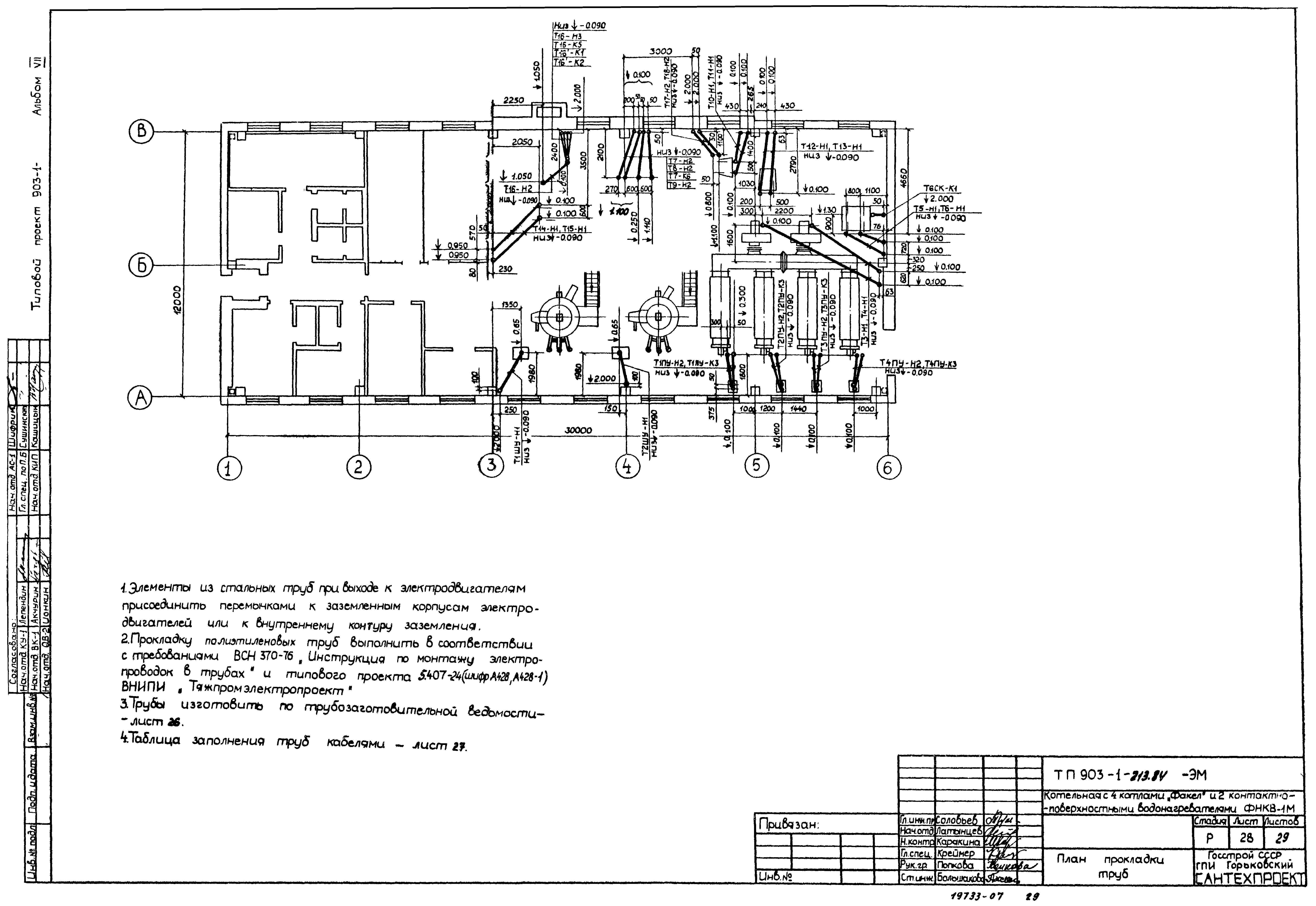
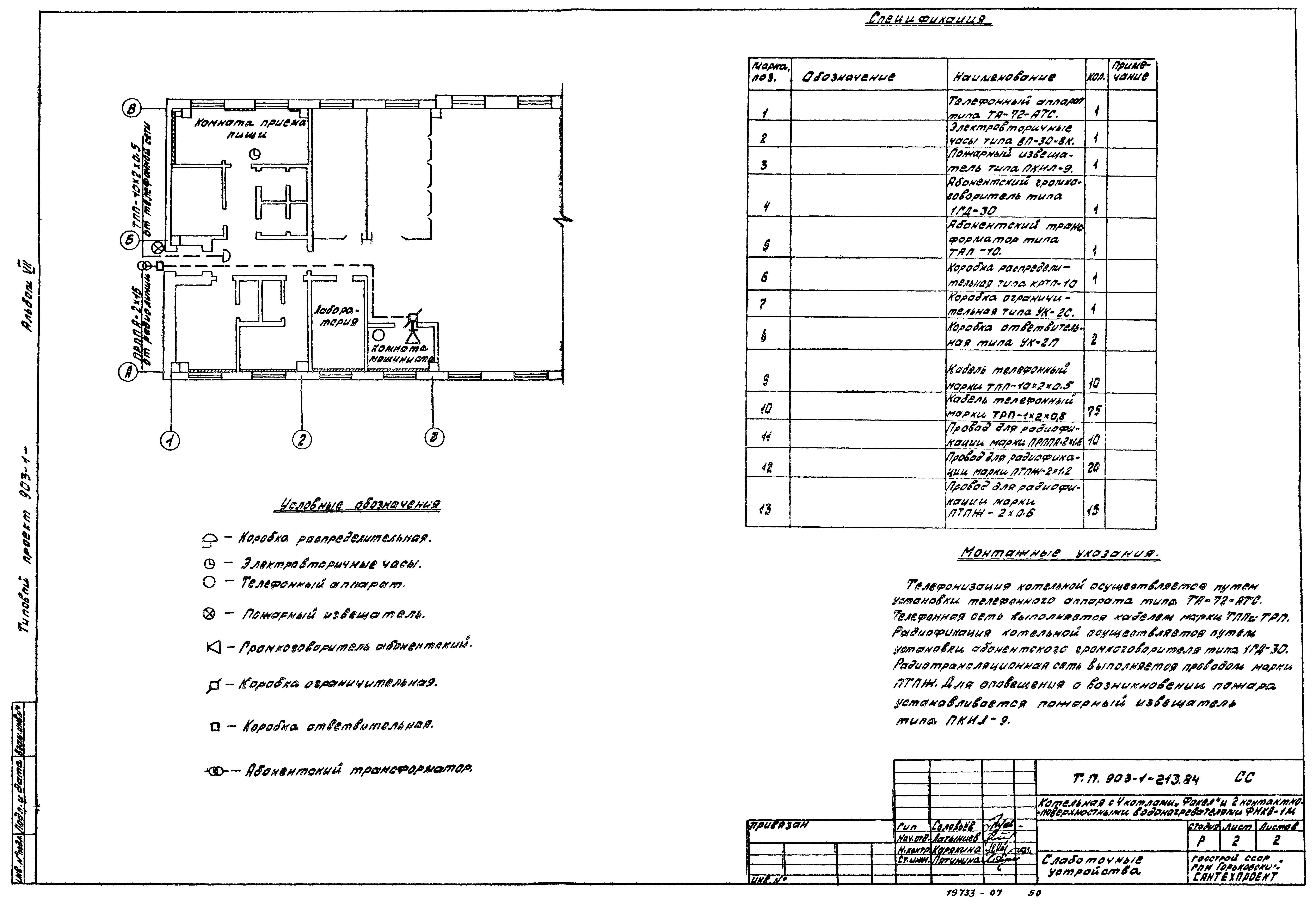
| Оглавление: | ТП 903-1-213.84 Содержание альбома ТП 903-1-213.84 Общие указания ТП 903-1-213.84-ЭМ Марка ЭМ ТП 903-1-213.84-ЭМ-1 Общие данные (начало) ТП 903-1-213.84-ЭМ-2 Общие данные (окончание) ТП 903-1-213.84-ЭМ-3 Питающая сеть ~380/220 В. 1ШР. Схема однолинейная принципиальная ТП 903-1-213.84-ЭМ-4 Распределительная сеть ~380/220 В. 2ШР,4ШР,6ШР. Схема однолинейная принципиальная (секция 1) ТП 903-1-213.84-ЭМ-5 Распределительная сеть ~380/220 В. 3ШР,5ШР,7ШР. Схема однолинейная принципиальная (секция 2) ТП 903-1-213.84-ЭМ-6 ≠ 1(≠2) - Вентилятор. Схема электрическая принципиальная. Схема подключений ТП 903-1-213.84-ЭМ-7 ≠ 3(≠4) - Дымосос. Схема электрическая принципиальная. Схема подключений ТП 903-1-213.84-ЭМ-8 ≠ 5(≠6) - Насос сетевой воды. Схема электрическая принципиальная. Схема подключений ТП 903-1-213.84-ЭМ-9 ≠ 7(≠8,≠9) - Насос горячего водоснабжения. Схема электрическая принципиальная. Схема подключений ТП 903-1-213.84-ЭМ-10 ≠ 10(≠11) - Насос исходной воды. Схема электрическая принципиальная. Схема подключений ТП 903-1-213.84-ЭМ-11 ≠ 12(≠13) - Насос рабочей воды. Схема электрическая принципиальная. Схема подключений ТП 903-1-213.84-ЭМ-12 ≠ 14(≠15) - Насос контактной воды. Схема электрическая принципиальная. Схема подключений ТП 903-1-213.84-ЭМ-13 Задание на привязку проекта управления и силового электрооборудования приточной камеры П1 ТП 903-1-213.84-ЭМ-14 Сигнализация. Схема электрическая принципиальная ТП 903-1-213.84-ЭМ-15 Сигнализация. Схема подключений ТП 903-1-213.84-ЭМ-16 Схема подключения аппарата для магнитной обработки воды ТП 903-1-213.84-ЭМ-17 Ящик перехода на гибкий токопровод ТП 903-1-213.84-ЭМ-18 Кабельный журнал (начало) ТП 903-1-213.84-ЭМ-19 Кабельный журнал (продолжение) ТП 903-1-213.84-ЭМ-20 Кабельный журнал (продолжение) ТП 903-1-213.84-ЭМ-21 Кабельный журнал (окончание) ТП 903-1-213.84-ЭМ-22 План прокладки кабелей на отм. 0.000 в осях 2-6 ТП 903-1-213.84-ЭМ-23 План прокладки кабелей на отм. 0.000 в осях 1-2. Разрезы ТП 903-1-213.84-ЭМ-24 Комплект установки 3х кнопочных постов ПКУ 15-19.121-40У3,3х коробок У996 и ящика К655 ТП 903-1-213.84-ЭМ-25 План прокладки кабелей в траншее ТП 903-1-213.84-ЭМ-26 Трубозаготовительная ведомость ТП 903-1-213.84-ЭМ-27 Таблица заполнения труб кабелями ТП 903-1-213.84-ЭМ-28 План прокладки труб ТП 903-1-213.84-ЭМ-29 Заземление ТП 903-1-213.84-ЭМ Прилагаемые документы к марке ЭМ ТП 903-1-213.84-ЭМ.ВО Ведомость электрооборудования, кабельных изделий и материалов, поставляемых заказчиком (начало) ТП 903-1-213.84-ЭМ.ВО Ведомость электрооборудования, кабельных изделий и материалов, поставляемых заказчиком (окончание) ТП 903-1-213.84-ЭМ.ВМ Ведомость потребности в материалах ТП 903-1-213.84-ЭМ.ВИ Ведомость потребности в электромонтажных изделиях ТП 903-1-213.84-ЭМ.Н1 Ведомость изделий МЭЗ ТП 903-1-213.84-ЭМ.Н2 Ведомость изделий и материалов для изготовления изделий МЭЗ (начало) ТП 903-1-213.84-ЭМ.Н2 Ведомость изделий и материалов для изготовления изделий МЭЗ (окончание) ТП 903-1-213.84-ЭМ.ВР Ведомость объемов электромонтажных и строительных работ ТП 903-1-213.84-ЭМ.Н3 Ящик Я. Технические данные аппаратов ТП 903-1-213.84-ЭМ.Н4 Ящик Я. Общий вид ТП 903-1-213.84-ЭМ.Н5 Ящик Я. Перечень надписей ТП 903-1-213.84-ЭМ.Н6 Ящик Я. Схема электрическая соединений ТП 903-1-213.84-ЭМ.ОЛ1 1ШР. Опросный лист ТП 903-1-213.84-ЭМ.ОЛ2 2ШР-7ШР. Опросный лист ТП 903-1-213.84-ЭМ.ОЛ3 Эскизы лицевые панелей кнопок ПКУ 15-19.121-40У3 и ПКЕ-212-2У3 ТП 903-1-213.84-ЭО Марка ЭО ТП 903-1-213.84-ЭО-1 Общие данные ТП 903-1-213.84-ЭО-2 Электроосвещение. План на отм. 0.000. Питающая сеть. Схема электрическая принципиальная ТП 903-1-213.84-ЭО Прилагаемые документы к марке ЭО ТП 903-1-213.84-ЭО.ВО Ведомость электрооборудования, кабельных изделий на материалов, поставляемых заказчиком ТП 903-1-213.84-ЭО.ВМ Ведомость потребности в материалах ТП 903-1-213.84-ЭО.ВИ Ведомость потребности в электромонтажных изделиях (начало) ТП 903-1-213.84-ЭО.ВИ Ведомость потребности в электромонтажных изделиях (окончание) ТП 903-1-213.84-ЭО.Н1 Ведомость изделий МЭЗ (начало) ТП 903-1-213.84-ЭО.Н1 Ведомость изделий МЭЗ (окончание) ТП 903-1-213.84-ЭО.Н2 Ведомость изделий и материалов для изготовления изделий МЭЗ (начало) ТП 903-1-213.84-ЭО.Н2 Ведомость изделий и материалов для изготовления изделий МЭЗ (окончание) ТП 903-1-213.84-ЭО.ВР Ведомость объемов электромонтажных и строительных работ ТП 903-1-213.84-СС Марка СС ТП 903-1-213.84-СС-1 Общие данные ТП 903-1-213.84-СС-2 Слаботочные устройства ТП 903-1-213.84-СС Прилагаемые документы к марке СС ТП 903-1-213.84-СС.ВО Ведомость оборудования, кабельных изделий и материалов, поставляемых заказчиком ТП 903-1-213.84-СС.ВИ Ведомость потребности в изделиях и материалах ТП 903-1-213.84-СС.ВР Ведомость объемов электромонтажных работ |
| Разработан: | ГПИ Горьковский Сантехпроект |
| Утверждён: | 03.02.1984 Главпромстройпроект Госстроя СССР (4) |



















































