Скачать Типовой проект 903-1-214.84 Альбом IX. Санитарно-техническая частьДата актуализации: 01.01.2021
|
| Обозначение: | Типовой проект 903-1-214.84 |
| Обозначение англ: | 903-1-214.84 |
| Статус: | не действует |
| Название рус.: | Альбом IX. Санитарно-техническая часть |
| Дата добавления в базу: | 01.09.2013 |
| Дата актуализации: | 01.01.2021 |
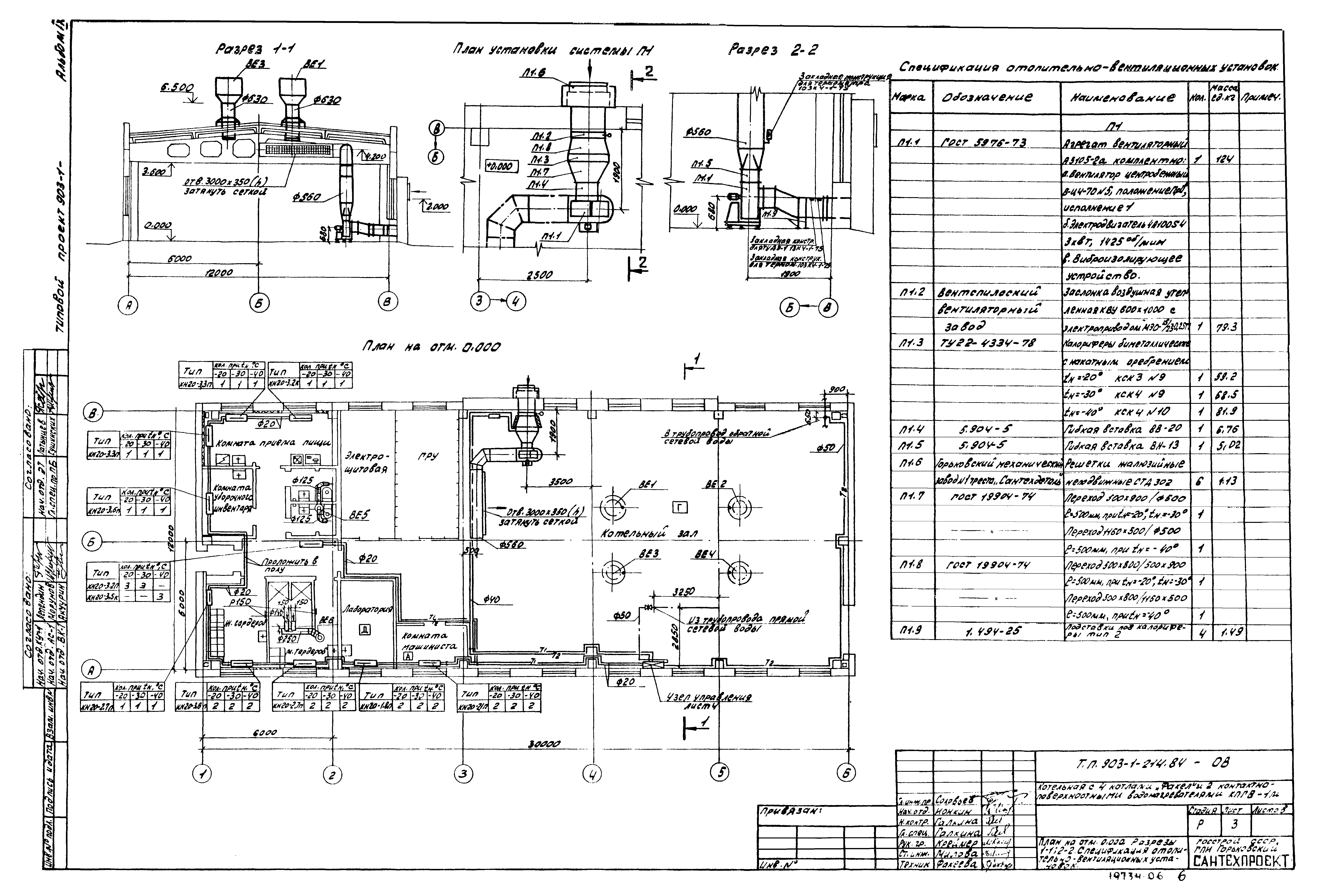
| Оглавление: | ТП 903-1-214.84 Содержание альбома ТП 903-1-214.84-ОВ Отопление и вентиляция ТП 903-1-214.84-ОВ-1 Общие данные (начало) ТП 903-1-214.84-ОВ-2 Общие данные (окончание) ТП 903-1-214.84-ОВ-3 План на отм. 0.000. Разрезы 1-1;2-2. Спецификация отопительно-вентиляционных установок ТП 903-1-214.84-ОВ-4 Схема системы теплоснабжения установки П1. Схема системы отопления. Схемы систем ВЕ1-ВЕ6,П1 ТП 903-1-214.84-ВК Водоснабжение и канализация ТП 903-1-214.84-ВК-1 Общие данные (начало) ТП 903-1-214.84-ВК-2 Общие данные (продолжение) ТП 903-1-214.84-ВК-3 Общие данные (продолжение) ТП 903-1-214.84-ВК-4 Общие данные (окончание) ТП 903-1-214.84-ВК-5 План на отм. 0.000. План на отм. 5.400. Схемы систем К 2 ТП 903-1-214.84-ВК-6 Схемы систем В1,Т3,К1,К3 |
| Разработан: | ГПИ Горьковский Сантехпроект |
| Утверждён: | 03.02.1984 Главпромстройпроект Госстроя СССР (4) |













