Скачать Типовой проект 902-2-154 Альбом IV. Нестандартизированное оборудованиеДата актуализации: 01.01.2021
|
| Обозначение: | Типовой проект 902-2-154 |
| Обозначение англ: | 902-2-154 |
| Статус: | заменен |
| Название рус.: | Альбом IV. Нестандартизированное оборудование |
| Дата добавления в базу: | 01.09.2013 |
| Дата актуализации: | 01.01.2021 |
| Дата введения: | 30.10.1972 |
| Дата окончания срока действия: | 01.08.1982 |
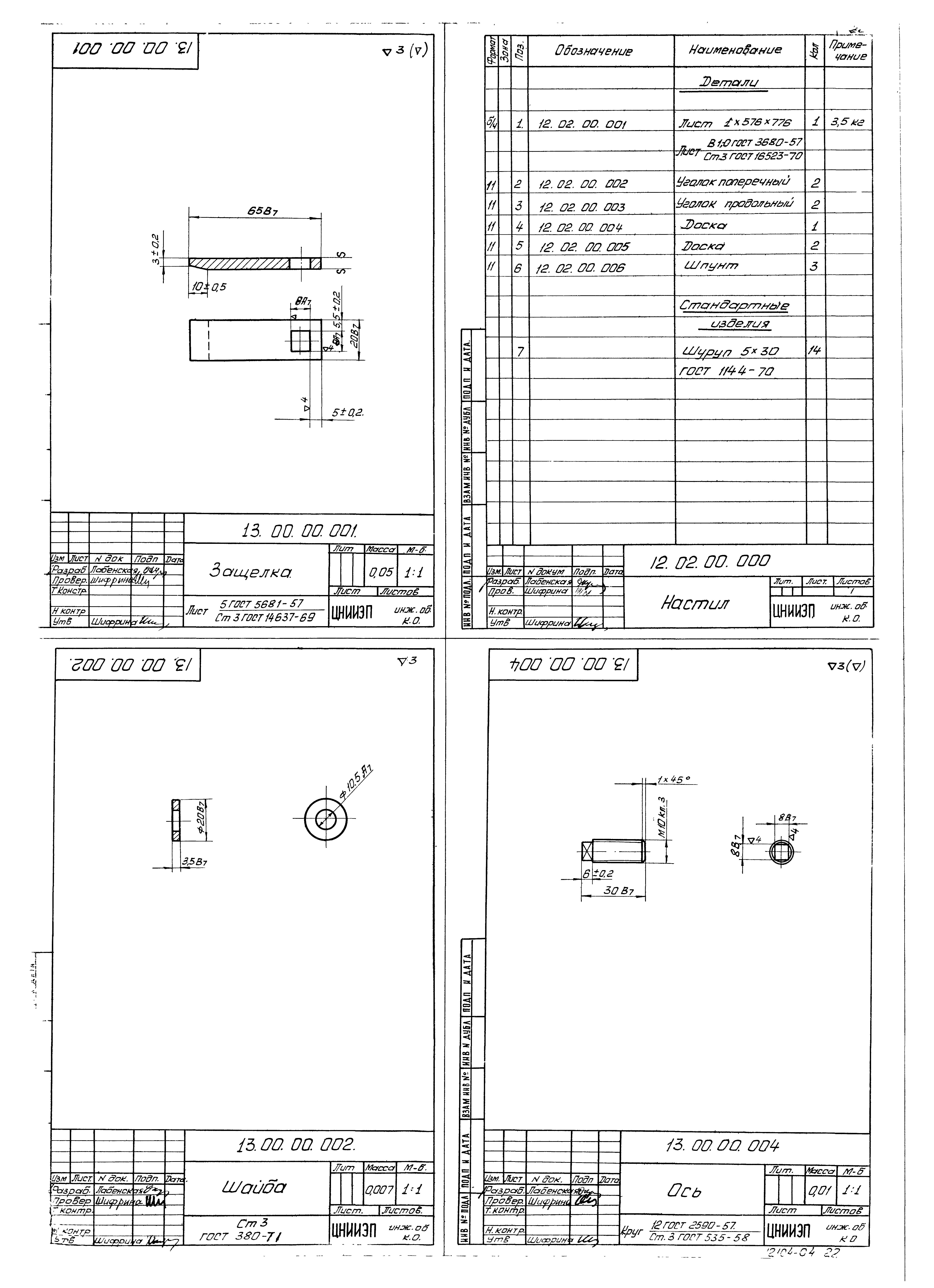
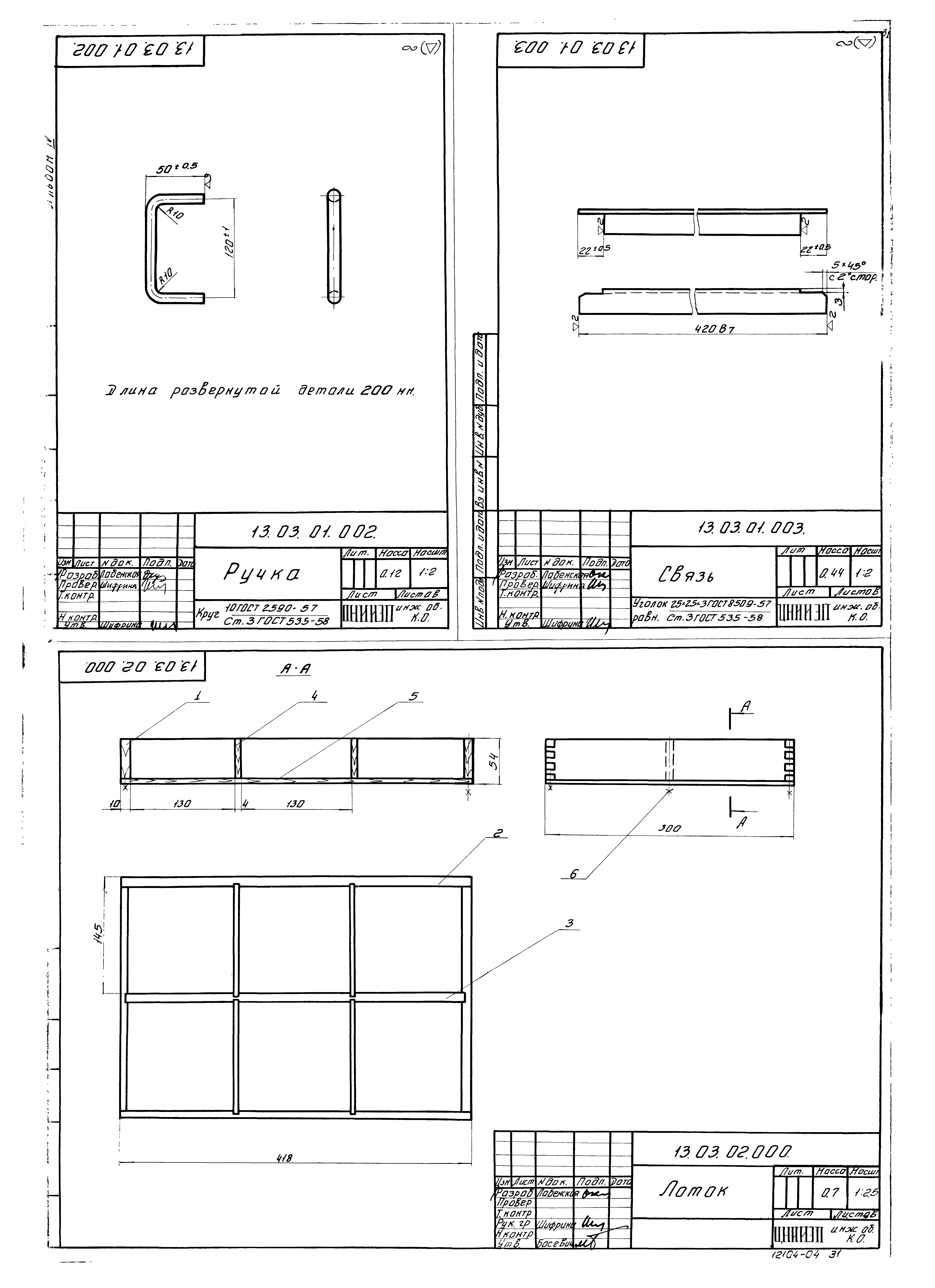
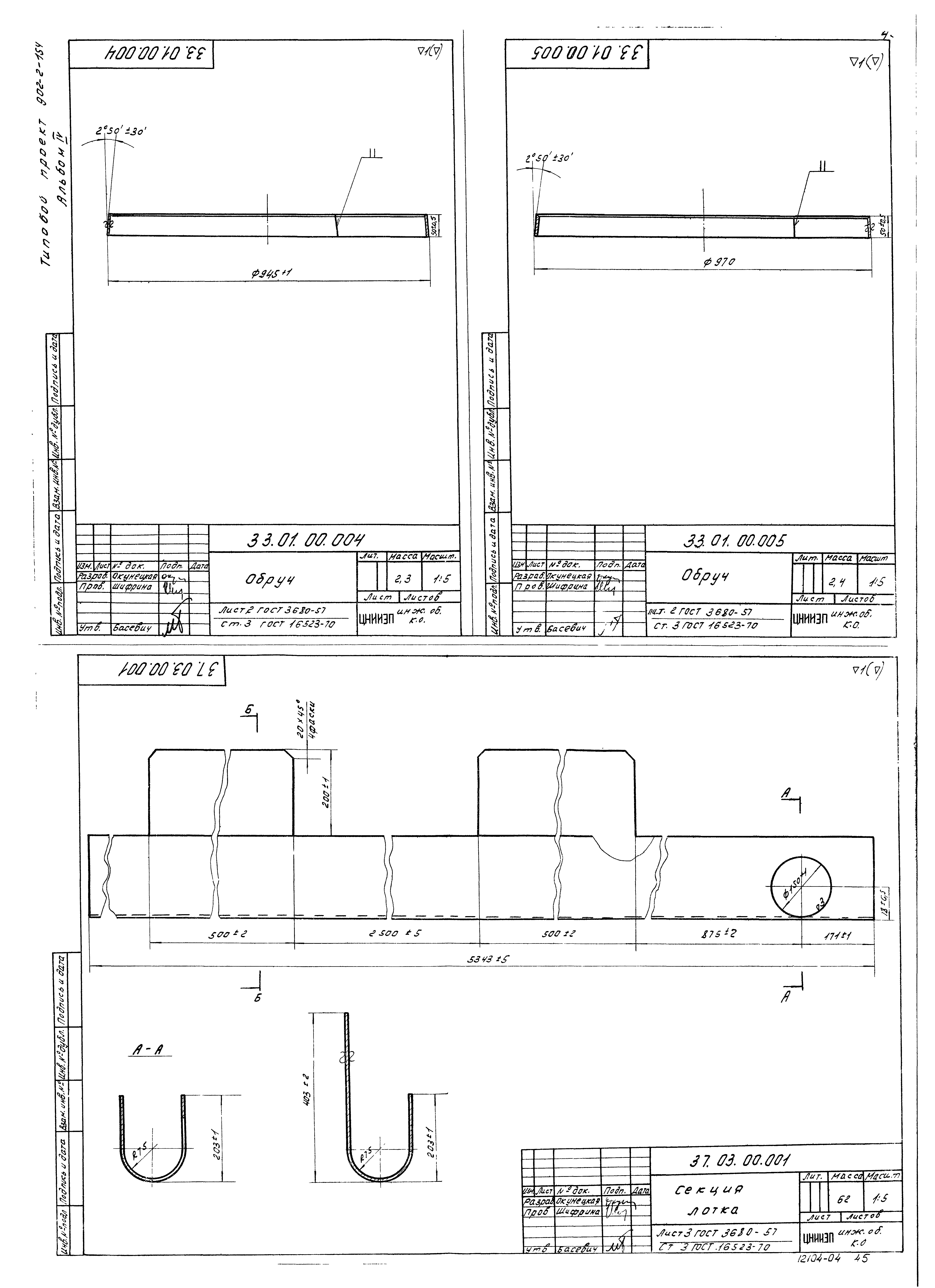
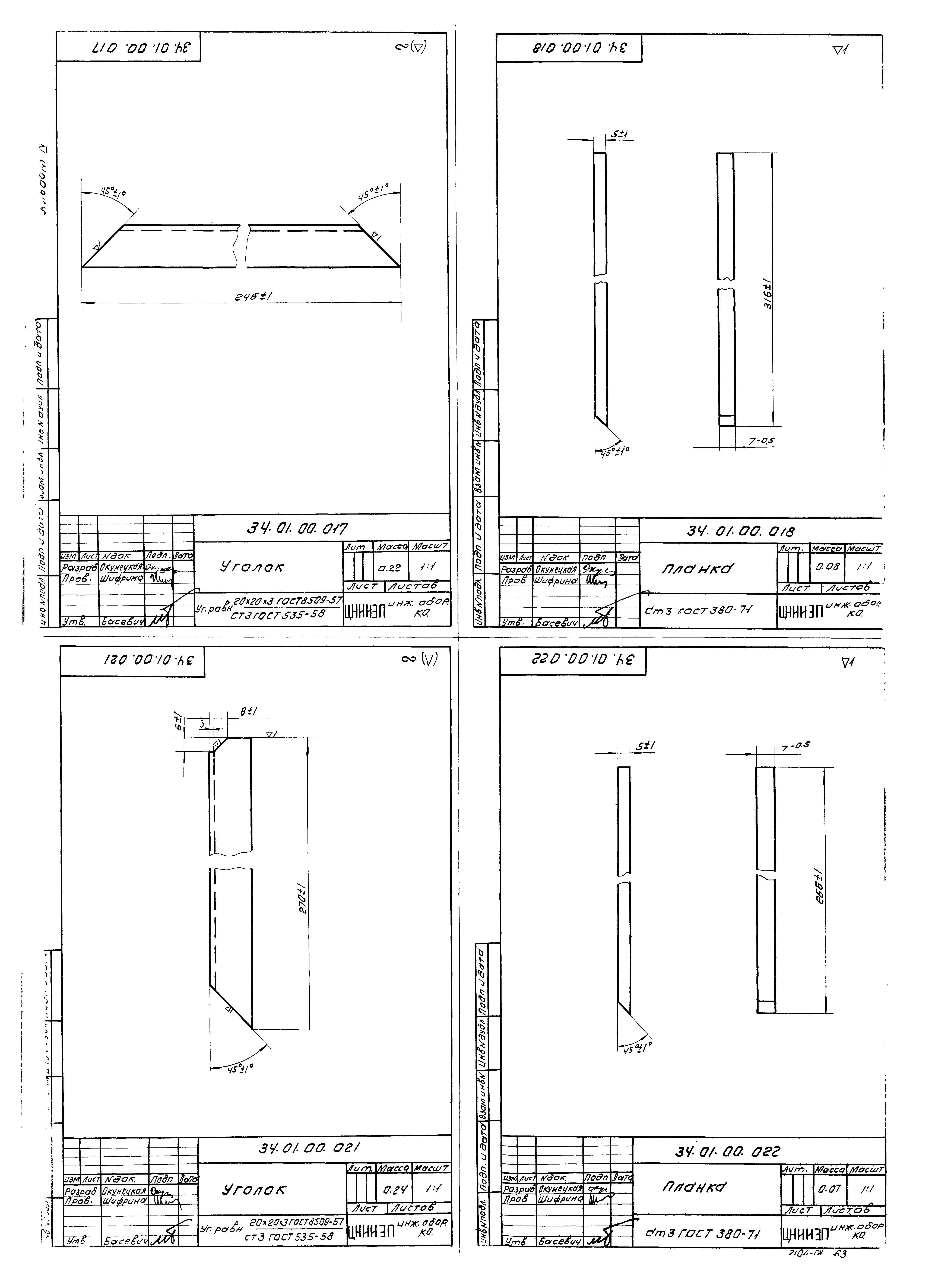
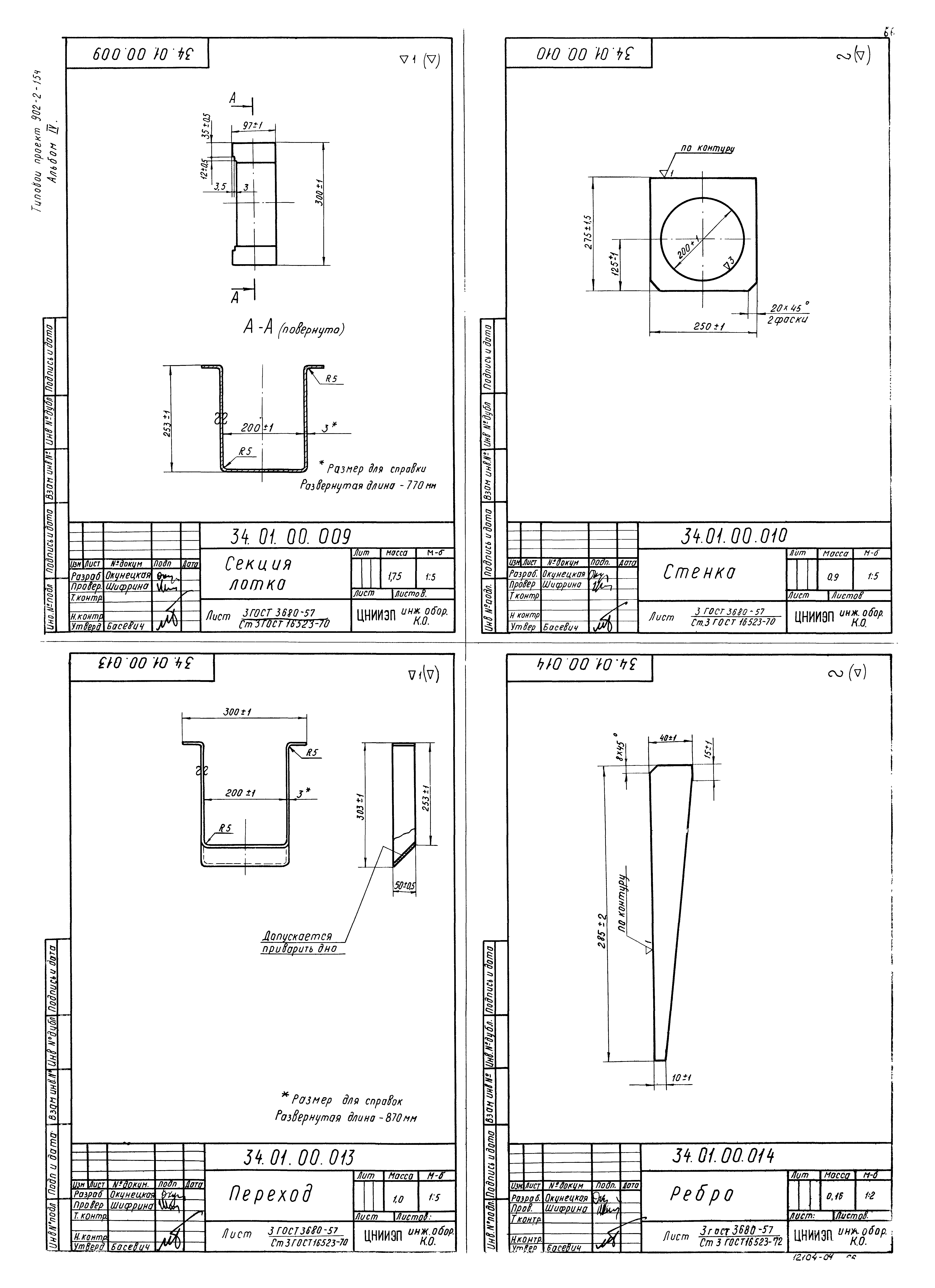
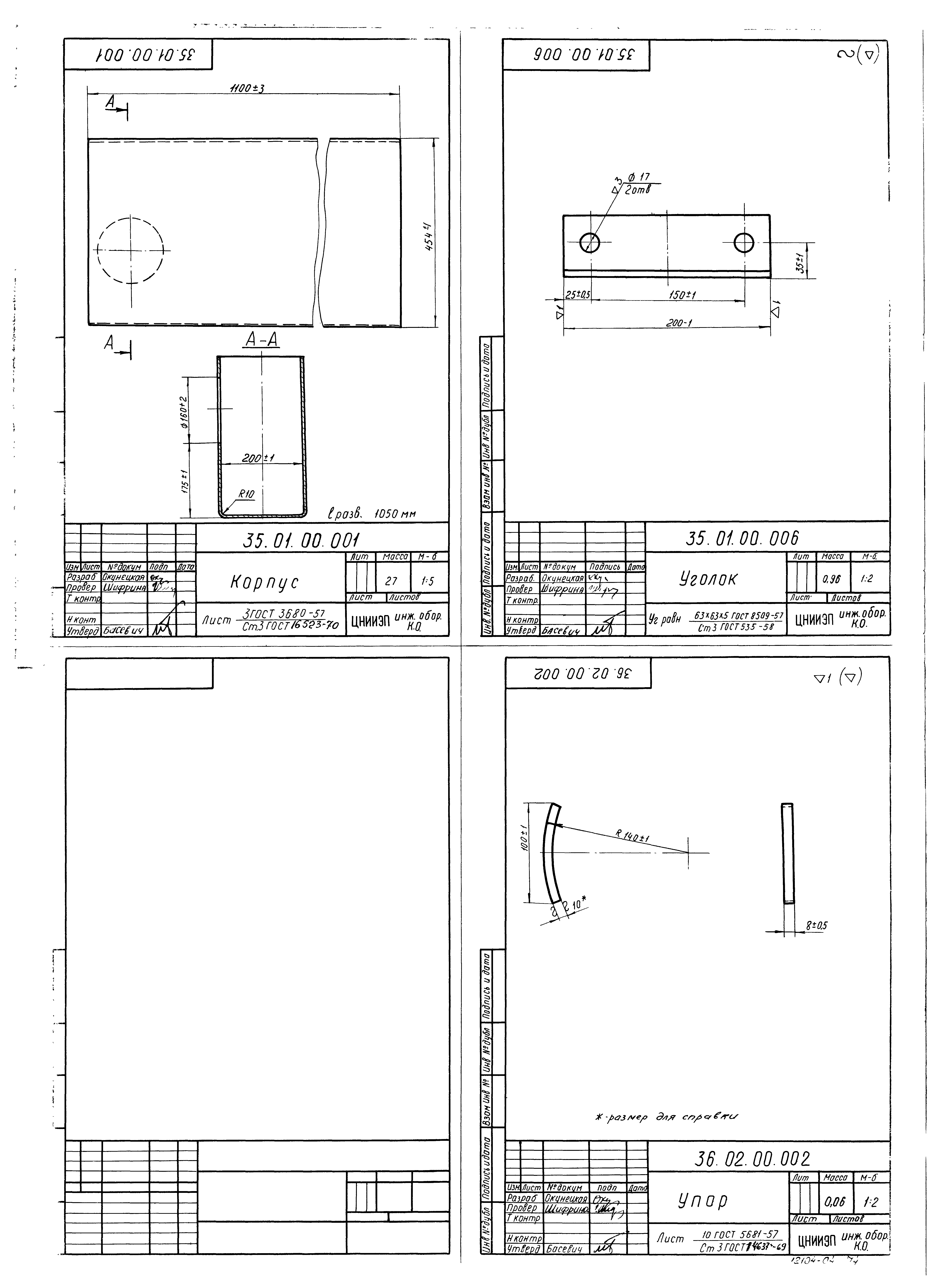
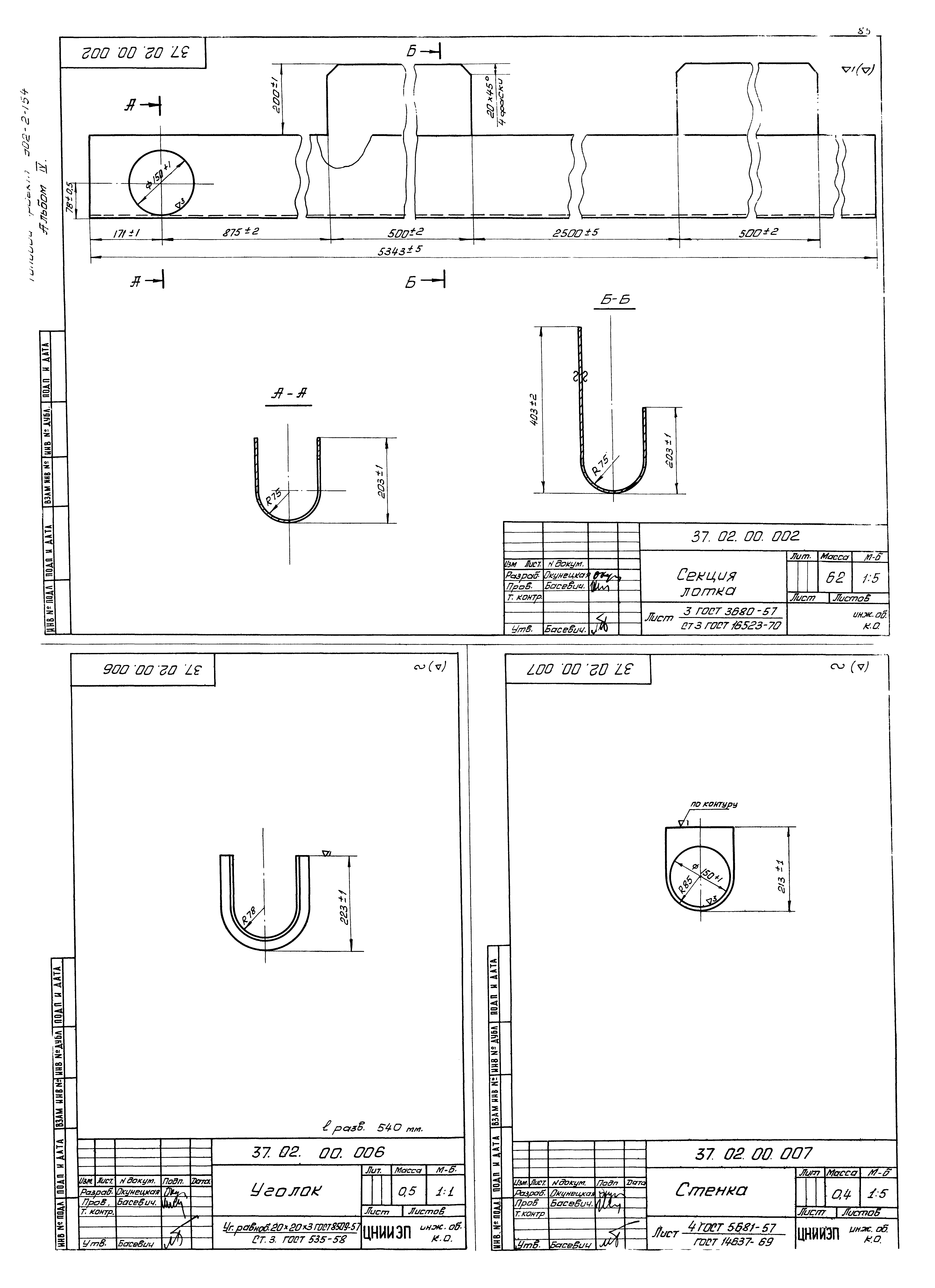
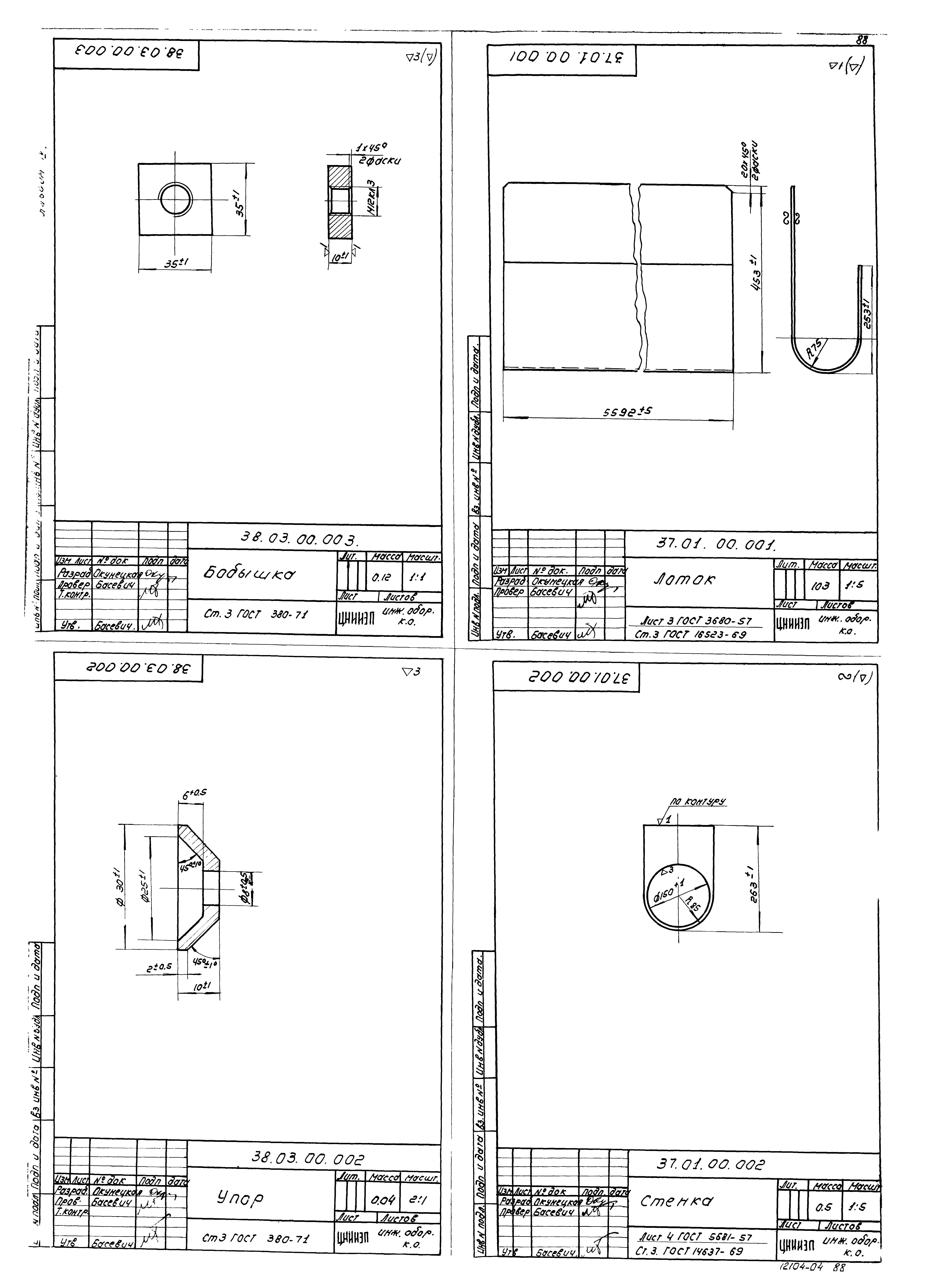
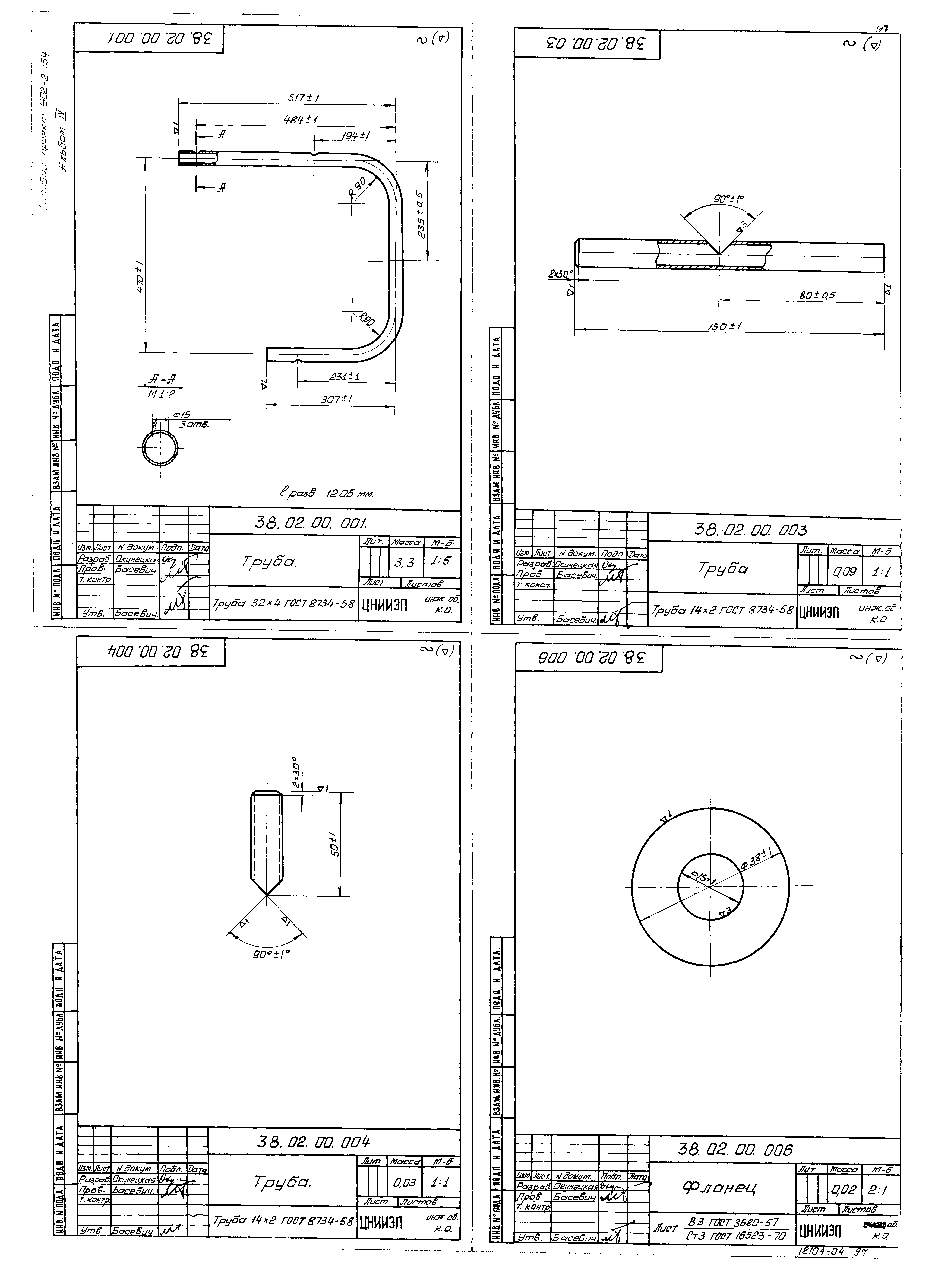
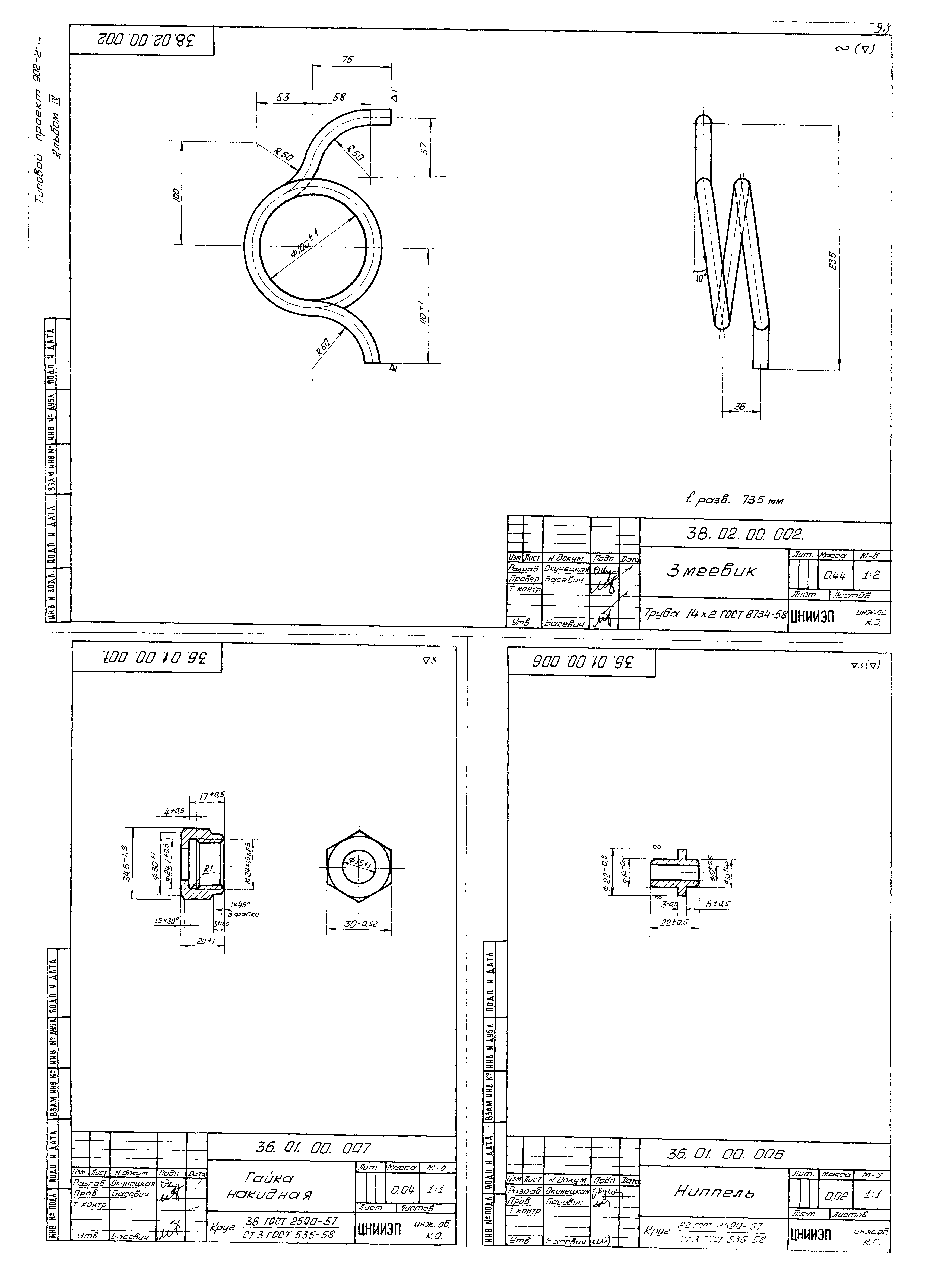
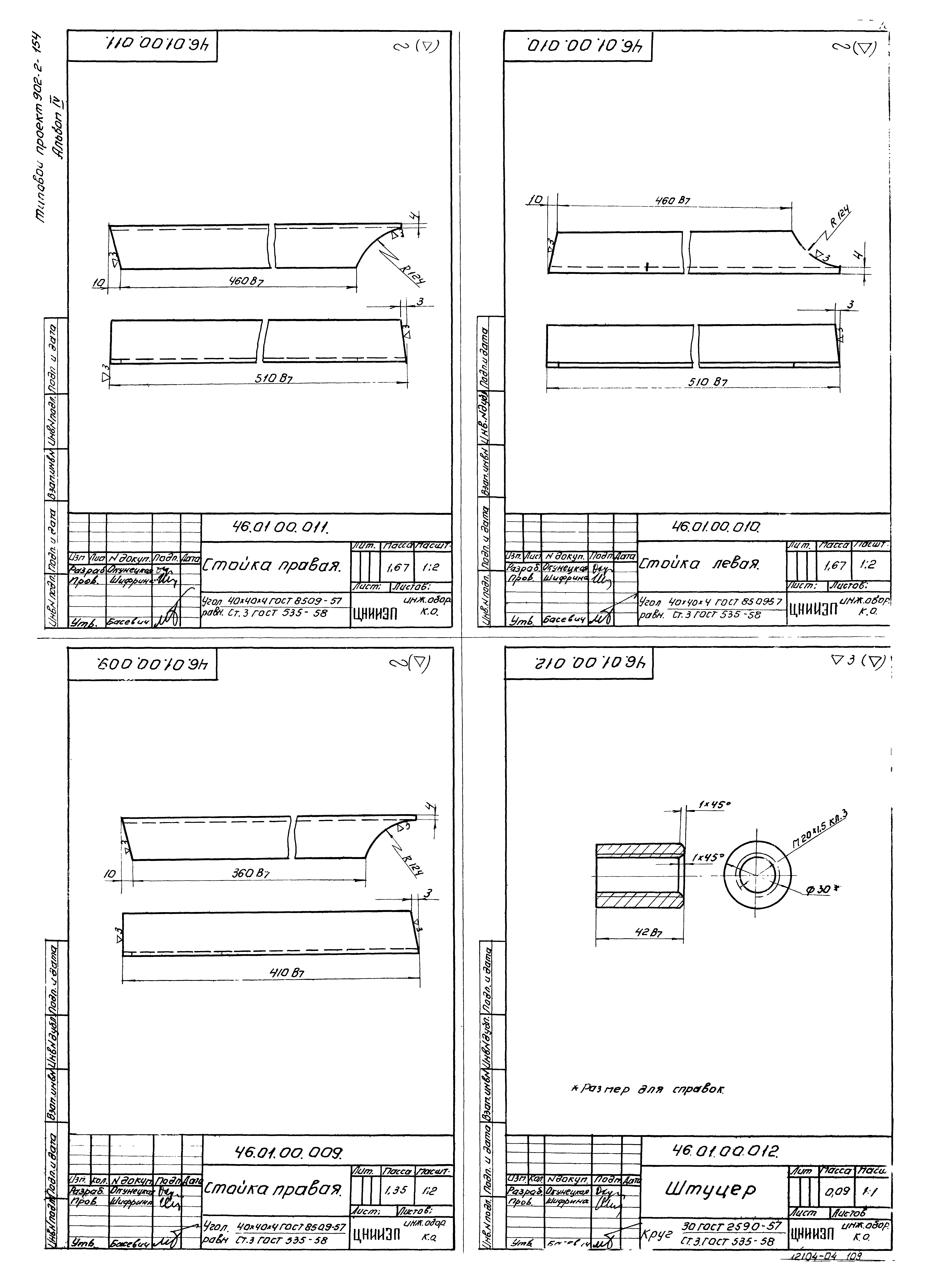
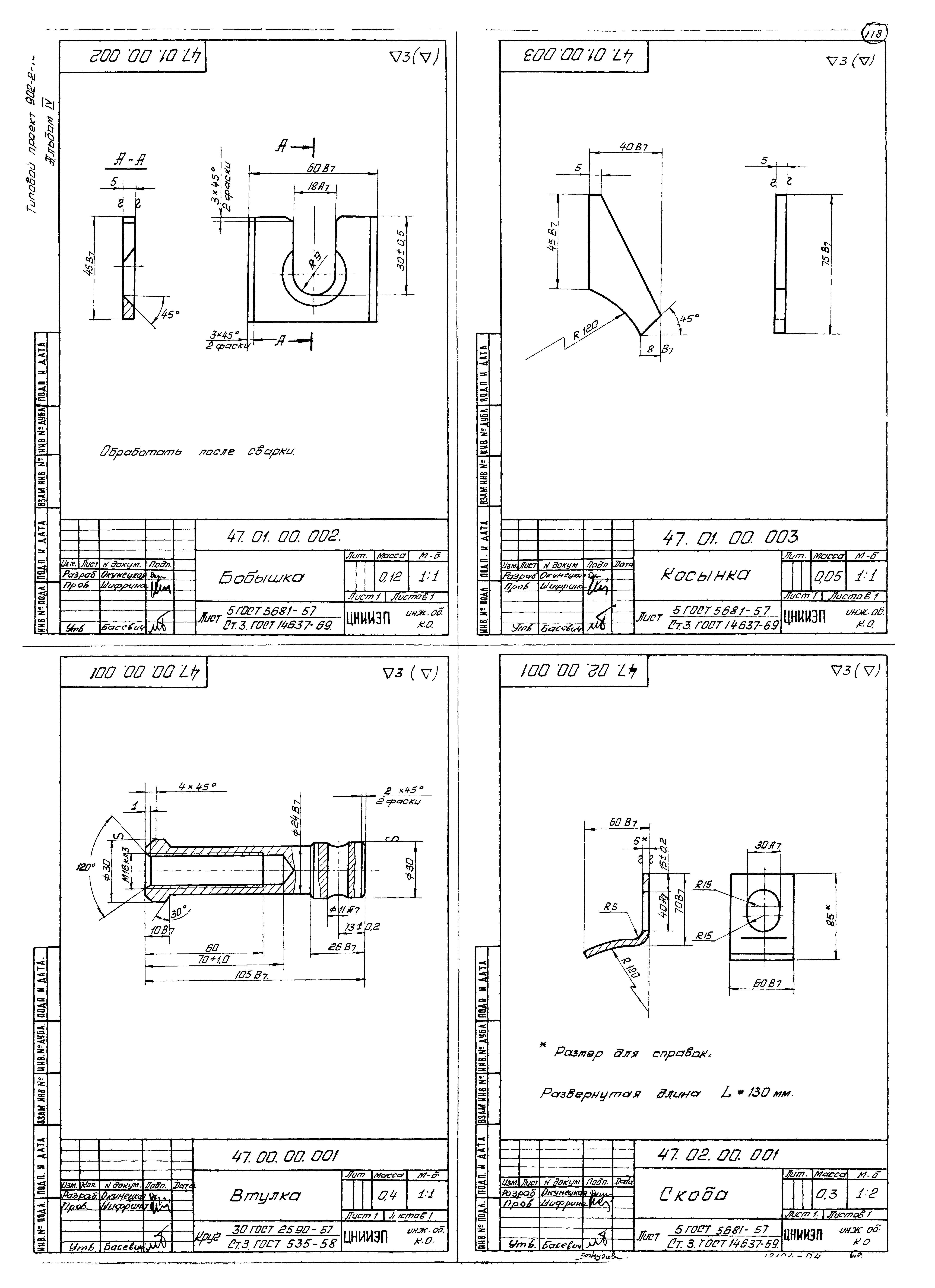
| Оглавление: | ТП 902-2-154 Обложка ТП 902-2-154 Титульный лист ТП 902-2-154 Содержание альбома ТП 902-2-154 11.00.00.000 Общий вид. Стеллаж ТП 902-2-154 11.00.00.001;11.00.00.002;11.00.00.003;11.00.00.000 Детали. Спецификация ТП 902-2-154 11.00.00.005;11.00.00.007;11.00.00.009;11.00.00.010 Детали ТП 902-2-154 12.00.00.000 Общий вид. Подставка под оборудование ТП 902-2-154 12.00.00.000;12.01.00.000;46.02.00.004;46.03.00.000 Спецификация. Деталь. Узел-обойма ТП 902-2-154 12.01.00.000 Узел. Рама ТП 902-2-154 12.02.00.000 Узел. Настил ТП 902-2-154 12.01.00.002;12.01.00.003;12.01.00.004;12.01.00.006 Детали ТП 902-2-154 12.01.00.007;12.02.00.002;12.02.00.003;12.02.00.006 Детали ТП 902-2-154 12.02.00.004;12.02.00.005 Детали ТП 902-2-154 13.00.00.000 Общий вид. Верстак слесарный на одно рабочее место ТП 902-2-154 13.00.00.000;13.01.00.000;13.03.02.000;13.01.00.000 Спецификации ТП 902-2-154 13.01.00.000 Узел. Каркас ТП 902-2-154 13.00.00.001;12.02.00.000;13.00.00.002;13.00.00.004 Детали. Спецификация ТП 902-2-154 13.01.00.002;13.01.00.004;13.01.00.007;13.01.00.017 Детали ТП 902-2-154 13.01.00.005;13.01.00.006;13.01.00.009;13.01.00.011 Детали ТП 902-2-154 13.02.00.000 Узел. Крышка ТП 902-2-154 13.02.00.001;13.02.00.002;13.02.00.003;13.02.00.004 Детали ТП 902-2-154 13.03.00.000;13.03.01.000 Общий вид. Ящик. Узел. Корпус ТП 902-2-154 13.03.01.000;13.03.00.000;13.02.00.000;13.04.00.000 Спецификации ТП 902-2-154 13.04.00.000;13.03.02.002;13.03.02.003 Узел. Дверца. Детали ТП 902-2-154 13.01.00.012;13.01.00.008;13.03.01.004;13.03.02.001 Детали ТП 902-2-154 13.03.02.000;13.03.01.002;13.03.01.003 Узел. Лоток. Детали ТП 902-2-154 33.00.00.000 Общий вид. Растворный бак для хлорной извести ТП 902-2-154 33.00.00.000;33.00.00.000;33.04.00.000;33.00.00.000 Спецификации ТП 902-2-154 33.01.00.000 Узел. Корпус бака ТП 902-2-154 33.01.00.000;33.01.01.000;33.08.00.000;33.01.00.000 Спецификации ТП 902-2-154 33.02.00.000;33.03.00.000;33.05.00.000 Узлы. Крышка. Заторный бачок. Траверса ТП 902-2-154 33.01.02.000;33.02.00.000;33.03.00.000;33.05.00.000 Спецификации ТП 902-2-154 33.01.01.000;33.01.02.000;33.07.00.000;33.08.00.000 Узлы. Патрубок. Патрубок. Направляющая. Опора оси ТП 902-2-154 33.04.00.000;33.04.00.002;33.04.00.001;33.00.00.001 Узел. Ось мешалки. Детали ТП 902-2-154 33.06.00.000;33.09.00.000 Узлы. Поплавок. Зажим ТП 902-2-154 33.06.00.000;33.07.00.000;33.09.00.000;39.00.00.000 Спецификации ТП 902-2-154 33.01.02.002;33.01.02.003;33.05.00.001;33.05.00.002 Детали ТП 902-2-154 33.01.01.001;33.01.01.002;33.07.00.002;33.01.02.001 Детали ТП 902-2-154 33.01.00.004;33.01.00.005;37.03.00.001 Детали ТП 902-2-154 33.02.00.001;33.02.00.002;33.02.00.003;33.02.00.004 Детали ТП 902-2-154 33.02.00.005;33.02.00.006;33.03.00.001;33.03.00.002 Детали ТП 902-2-154 33.01.00.001;33.01.00.002;33.03.00.003;33.03.00.004 Детали ТП 902-2-154 33.00.00.005;33.00.00.003;33.01.00.006 Детали ТП 902-2-154 33.06.00.004;33.06.00.006;33.06.00.008;33.06.00.009 Детали ТП 902-2-154 33.09.00.007;33.06.00.002;33.09.00.006;33.06.00.007 Детали ТП 902-2-154 33.09.00.004;33.09.00.005;33.09.00.002;33.09.00.003 Детали ТП 902-2-154 34.00.00.000 Общий вид. Лоток с ручной решеткой тип 1 ТП 902-2-154 34.00.00.000;34.02.00.000;34.03.00.000;34.05.00.000 Спецификации ТП 902-2-154 34.01.00.000;34.04.00.000;36.02.00.000;34.01.00.000 Спецификации ТП 902-2-154 34.01.00.000 Узел. Лоток ТП 902-2-154 34.04.00.000;34.05.00.000 Узлы. Решетка. Корыто ТП 902-2-154 34.02.00.000;34.03.00.000;37.00.00.001;39.00.00.003 Узлы. Шибер. Шибер. Детали ТП 902-2-154 34.01.00.003;34.01.00.004;34.01.00.007;34.01.00.008 Детали ТП 902-2-154 34.01.00.011;34.01.00.012;34.01.00.016;34.01.00.015 Детали ТП 902-2-154 34.01.00.017;34.01.00.018;34.01.00.021;34.01.00.022 Детали ТП 902-2-154 34.01.00.019;34.01.00.020;34.01.00.023;34.01.00.024 Детали ТП 902-2-154 34.01.00.001;34.01.00.002;34.01.00.005;34.01.00.006 Детали ТП 902-2-154 34.01.00.009;34.01.00.010;34.01.00.013;34.01.00.014 Детали ТП 902-2-154 34.03.00.001;34.00.00.001;34.04.00.002;34.04.00.004 Детали ТП 902-2-154 34.02.00.001;34.02.00.002;34.00.00.002;34.04.00.001 Детали ТП 902-2-154 34.05.00.001;34.05.00.002;37.08.00.001;37.08.00.002 Детали ТП 902-2-154 35.00.00.000;38.03.00.000 Общий вид. Лоток с ручной решеткой тип 2. Узел. Прижим ТП 902-2-154 35.00.00.000;35.01.00.000;35.02.00.000;37.08.00.000 Спецификации ТП 902-2-154 35.01.00.000;36.02.00.000;36.03.00.000 Узлы. Лоток. Крышка. Трубка ТП 902-2-154 36.00.00.000;36.01.00.000 Общий вид. Нейтрализатор. Узел. Корпус ТП 902-2-154 35.01.00.001;35.01.00.006;36.02.00.002 Детали ТП 902-2-154 36.01.00.001;36.01.00.002;36.01.00.003;33.09.00.001 Детали ТП 902-2-154 36.00.00.000;36.01.00.000;36.03.00.000;38.03.00.000 Спецификации ТП 902-2-154 37.00.00.000 Общий вид. Установка эрлифтов ТП 902-2-154 37.00.00.000;37.01.00.000;37.06.00.000;37.07.00.000 Спецификации ТП 902-2-154 37.02.00.000;37.03.00.000 Узлы. Лоток иловый правый. Лоток иловый левый ТП 902-2-154 37.01.00.000;35.02.00.000;37.08.00.000 Узлы. Лоток очищенной воды. Корыто. Шибер ТП 902-2-154 37.04.00.000;37.07.00.000 Узлы. Эрлифт. Опора ТП 902-2-154 37.02.00.000;37.03.00.000;37.04.00.000;37.05.00.000 Спецификации ТП 902-2-154 37.05.00.000;37.06.00.000 Узлы. Кронштейн правый. Кронштейн левый ТП 902-2-154 37.02.00.002;37.02.00.006;37.02.00.007 Детали ТП 902-2-154 37.02.00.001;37.02.00.003;37.02.00.004;37.02.00.005 Детали ТП 902-2-154 37.04.00.001;37.04.00.003;37.04.00.007 Детали ТП 902-2-154 37.01.00.001;37.01.00.002;38.03.00.002;38.03.00.003 Детали ТП 902-2-154 38.00.00.000 Общий вид. Подставка на весах для 3х баллонов ТП 902-2-154 38.00.00.000;39.00.00.000;39.00.00.001 Общий вид. Подставка на весах для 3х баллонов. Рама под решетку-дробилку. Деталь ТП 902-2-154 38.00.00.000;38.01.00.000;38.02.00.000;38.01.00.000 Спецификации ТП 902-2-154 38.00.00.001 Узел. Подставка ТП 902-2-154 38.01.00.002;38.01.00.003;38.01.00.004;37.04.00.002 Детали ТП 902-2-154 38.01.00.005;38.01.00.006;38.01.00.011;38.01.00.013 Детали ТП 902-2-154 38.01.00.007;38.01.00.009;38.01.00.014;38.01.00.015 Детали ТП 902-2-154 38.02.00.000 Узел. Коллектор ТП 902-2-154 38.02.00.001;38.02.00.003;38.02.00.004;38.02.00.006 Детали ТП 902-2-154 38.02.00.002;36.01.00.006;36.01.00.007 Детали ТП 902-2-154 38.03.00.001;38.03.00.004;38.03.00.005 Детали ТП 902-2-154 45.00.00.000 Общий вид. Грязевик для хлора ТП 902-2-154 45.00.00.000;45.01.00.000;45.02.00.000;46.01.00.000 Спецификации ТП 902-2-154 45.01.00.000;45.02.00.000;45.01.00.001 Узлы. Головка баллона. Опора. Деталь ТП 902-2-154 45.00.00.001;45.01.00.002;45.02.00.001;45.02.00.003 Детали ТП 902-2-154 46.00.00.000 Общий вид. Футляр для поврежденных баллонов ТП 902-2-154 46.00.00.000;46.02.00.000;46.03.00.000;46.00.00.000 Спецификации ТП 902-2-154 46.01.00.000;46.02.00.000 Узлы. Корпус. Крышка ТП 902-2-154 46.01.00.002;46.01.00.005;46.01.00.007 Детали ТП 902-2-154 46.01.00.009;46.01.00.010;46.01.00.011;46.01.00.012 Детали ТП 902-2-154 46.01.00.013;46.02.00.001;46.02.00.002;46.02.00.003 Детали ТП 902-2-154 46.00.00.001;46.00.00.002;46.00.00.004 Детали ТП 902-2-154 46.00.00.003;46.02.00.007;46.01.00.003;46.01.00.004 Детали ТП 902-2-154 46.03.00.001;46.03.00.002;47.00.00.002;47.00.00.003 Детали ТП 902-2-154 47.00.00.000 Общий вид. Захват для подъема баллонов ТП 902-2-154 47.00.00.000;47.01.00.000;47.02.00.000;47.00.00.000 Спецификации ТП 902-2-154 47.01.00.000;47.02.00.000 Узлы. Обод правый. Обод левый ТП 902-2-154 47.01.00.001;47.02.00.002 Детали ТП 902-2-154 47.01.00.001;47.01.00.002;47.01.00.003;47.02.00.001 Детали |
| Разработан: | ЦНИИЭП |
| Утверждён: | 30.10.1972 Госгражданстрой (Gosgrazhdanstroy 212) |
| Чем заменён: |






















































































































