Скачать Типовой проект 902-1-63 Альбом IV. Часть 2. Изделия. Подземная частьДата актуализации: 01.01.2021
|
| Обозначение: | Типовой проект 902-1-63 |
| Обозначение англ: | 902-1-63 |
| Статус: | действует |
| Название рус.: | Альбом IV. Часть 2. Изделия. Подземная часть |
| Дата добавления в базу: | 01.09.2013 |
| Дата актуализации: | 01.01.2021 |
| Дата введения: | 01.11.1982 |
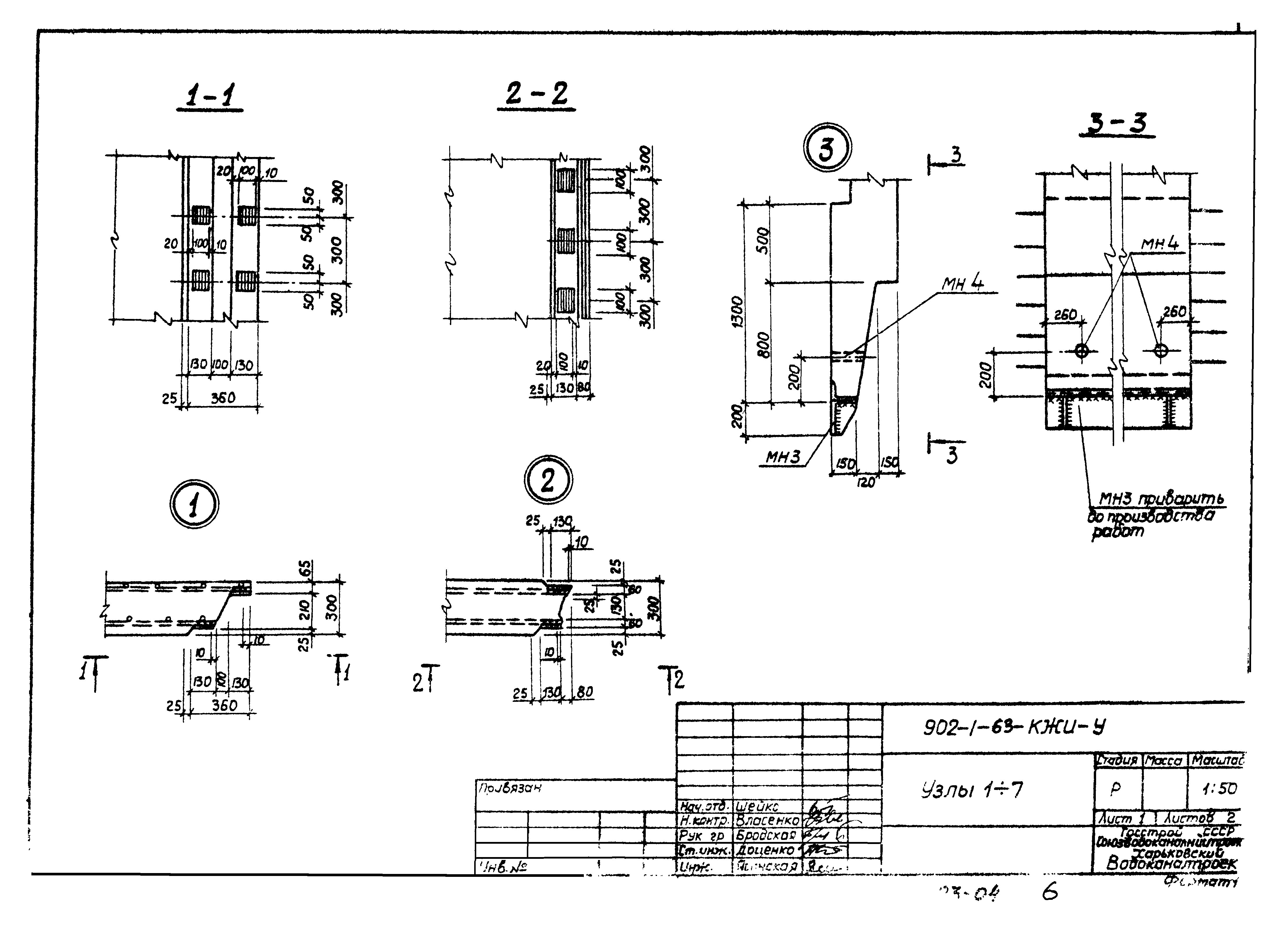
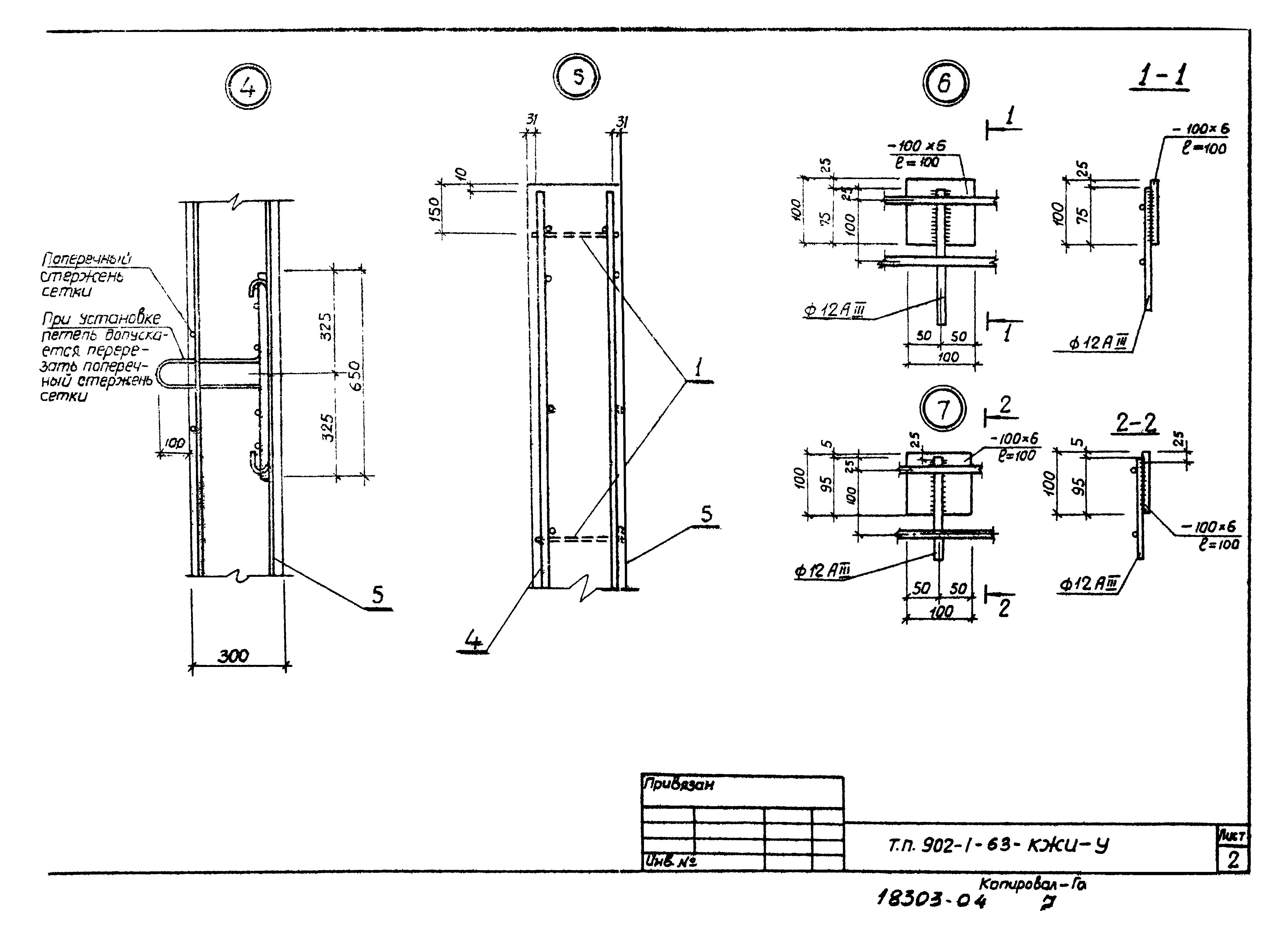
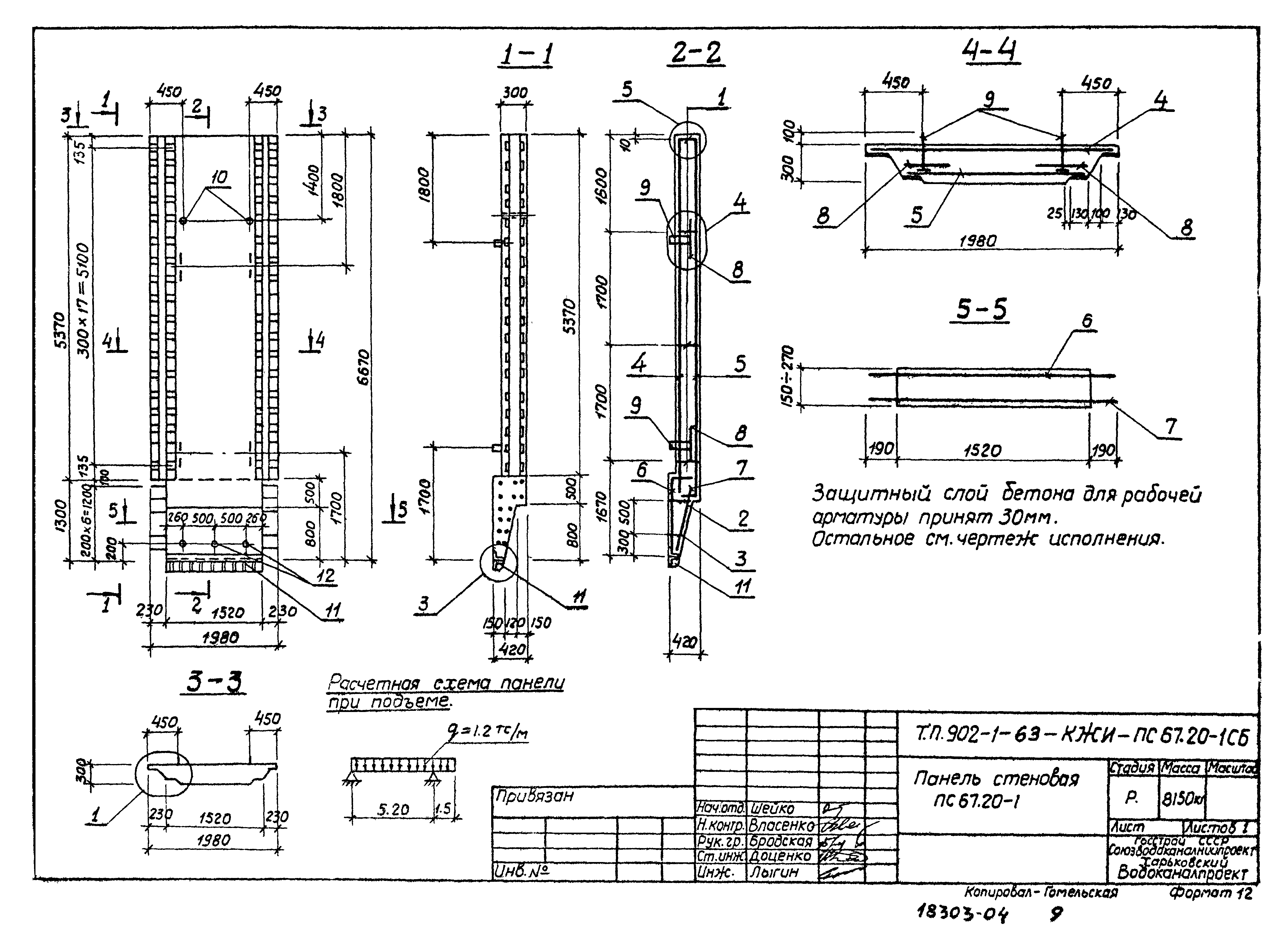
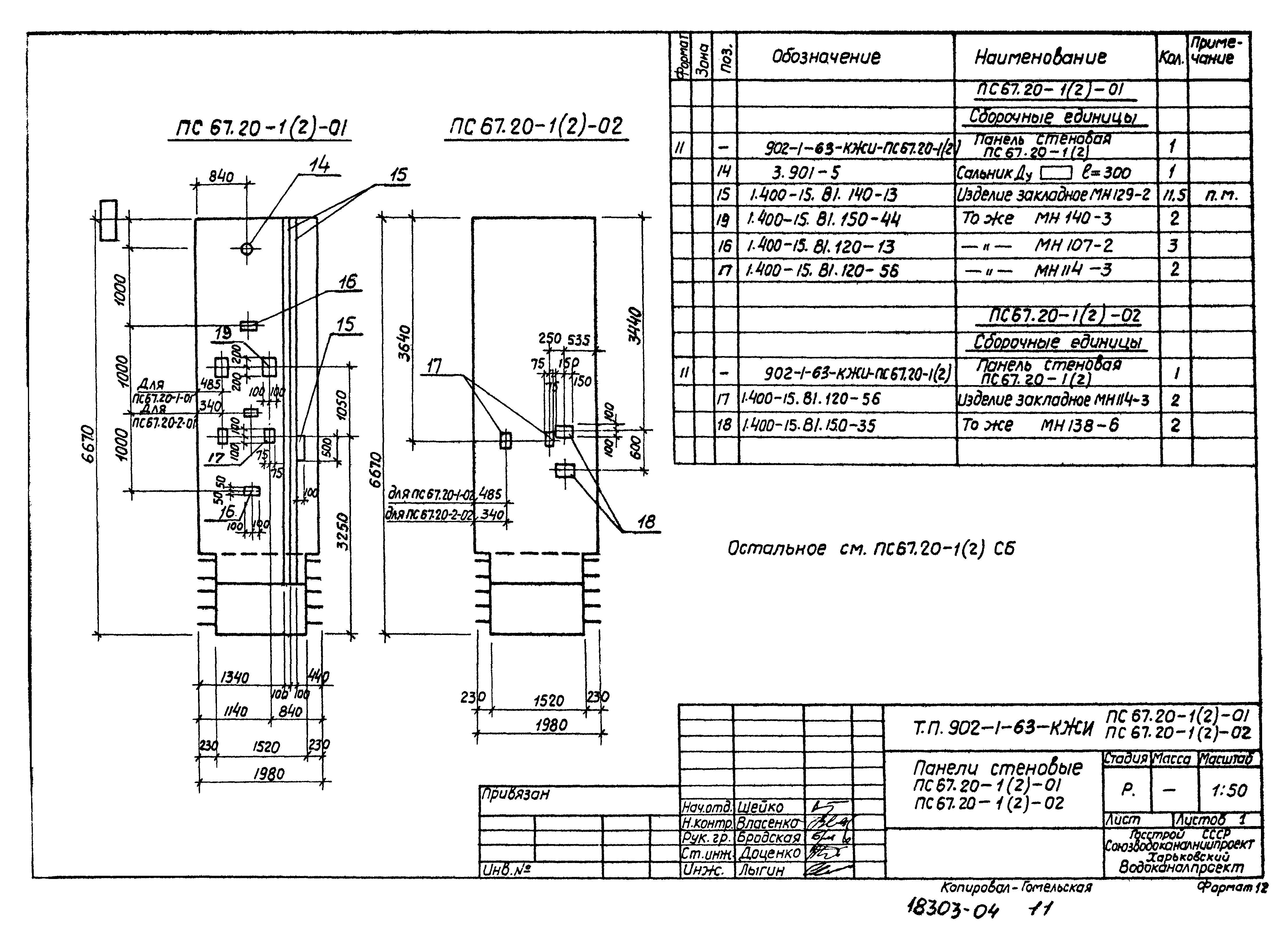
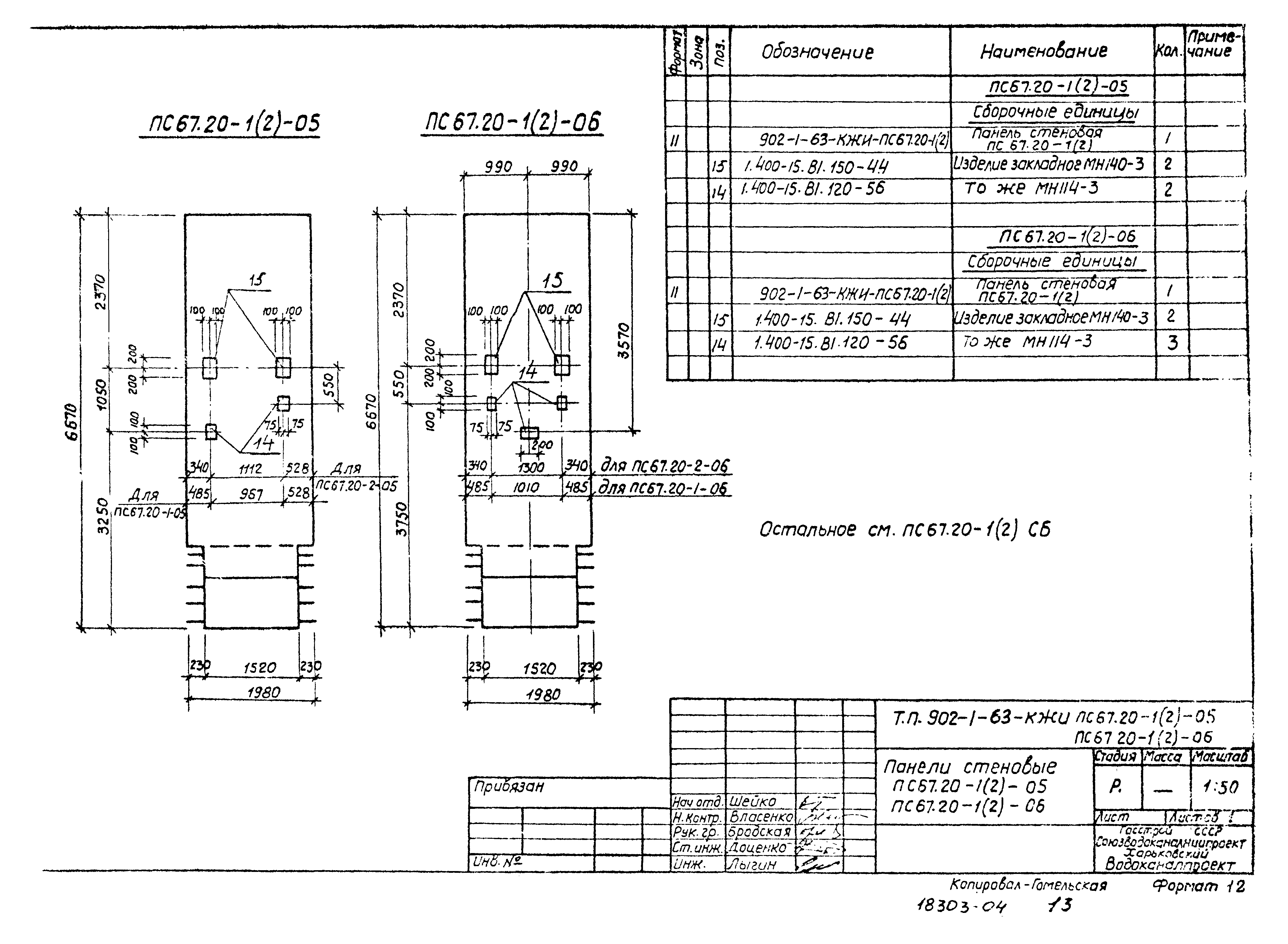
| Оглавление: | ТП 902-1-63-КЖИ-ДО Содержание листов выпуска ТП 902-1-63-КЖИ-ТТ1 Технические требования к изготовлению сборных железобетонных изделий ТП 902-1-63-КЖИ-ТТ2 Технические требования к изготовлению арматурных и закладных изделий ТП 902-1-63-КЖИ-ВС Ведомость расхода стали ТП 902-1-63-КЖИ-У Узлы 1-7 ТП 902-1-63-КЖИ-ПС67.20-1 Панель стеновая ПС67.20-1 ТП 902-1-63-КЖИ-ПС67.20-2 Панель стеновая ПС67.20-2 ТП 902-1-63-КЖИ-ПС67.20-1СБ Панель стеновая ПС67.20-1СБ ТП 902-1-63-КЖИ-ПС67.20-2СБ Панель стеновая ПС67.20-2СБ ТП 902-1-63-КЖИ-ПС67.20-1(2)-01 Панель стеновая ПС67.20-1(2)-01 ТП 902-1-63-КЖИ-ПС67.20-1(2)-02 Панель стеновая ПС67.20-1(2)-02 ТП 902-1-63-КЖИ-ПС67.20-1(2)-03 Панель стеновая ПС67.20-1(2)-03 ТП 902-1-63-КЖИ-ПС67.20-1(2)-04 Панель стеновая ПС67.20-1(2)-04 ТП 902-1-63-КЖИ-ПС67.20-1(2)-05 Панель стеновая ПС67.20-1(2)-05 ТП 902-1-63-КЖИ-ПС67.20-1(2)-06 Панель стеновая ПС67.20-1(2)-06 ТП 902-1-63-КЖИ-ПС67.20-1(2)-07 Панель стеновая ПС67.20-1(2)-07 ТП 902-1-63-КЖИ-ПС67.20-1(2)-08 Панель стеновая ПС67.20-1(2)-08 ТП 902-1-63-КЖИ-КР1 Каркас плоский КР1 ТП 902-1-63-КЖИ-КР2,КР3 Каркас плоский КР2,КР3 ТП 902-1-63-КЖИ-С1 Сетка арматурная С1 ТП 902-1-63-КЖИ-С2 Сетка арматурная С2 ТП 902-1-63-КЖИ-С3 Сетка арматурная С3 ТП 902-1-63-КЖИ-С4 Сетка арматурная С4 ТП 902-1-63-КЖИ-С5 Сетка арматурная С5 ТП 902-1-63-КЖИ-С6 Сетка арматурная С6 ТП 902-1-63-КЖИ-МН2 Изделие закладное МН2 ТП 902-1-63-КЖИ-МН1 Изделие закладное МН1 ТП 902-1-63-КЖИ-МН4 Изделие закладное МН4 ТП 902-1-63-КЖИ-МН3 Изделие закладное МН3 ТП 902-1-63-КЖИ-МН5 Изделие закладное МН5 ТП 902-1-63-КЖИ-МС1 Изделие соединительное МС1 ТП 902-1-63-КЖИ-МС2 Изделие соединительное МС2 ТП 902-1-63-КЖИ-МС3 Изделие соединительное МС3 ТП 902-1-63-КЖИ-МС4 Изделие соединительное МС4 ТП 902-1-63-КЖИ-МС5 Изделие соединительное МС5 ТП 902-1-63-КЖИ-МС6 Изделие соединительное МС6 ТП 902-1-63-КЖИ-МС7 Изделие соединительное МС7 ТП 902-1-63-КЖИ-МС8 Изделие соединительное МС8 ТП 902-1-63-КЖИ-МС9 Изделие соединительное МС9 ТП 902-1-63-КЖИ-МС10 Изделие соединительное МС10 |
| Разработан: | Харьковский Водоканалпроект |
| Утверждён: | 29.04.1982 Главпромстройпроект Госстроя СССР (15) |


























