Скачать Типовой проект 902-1-69.83 Альбом I. Технологические решения. Отопление и вентиляция. Внутренний водопровод и канализация. Электрооборудование, автоматизация и технологический контрольДата актуализации: 01.01.2021
|
| Обозначение: | Типовой проект 902-1-69.83 |
| Обозначение англ: | 902-1-69.83 |
| Статус: | действует |
| Название рус.: | Альбом I. Технологические решения. Отопление и вентиляция. Внутренний водопровод и канализация. Электрооборудование, автоматизация и технологический контроль |
| Дата добавления в базу: | 01.09.2013 |
| Дата актуализации: | 01.01.2021 |
| Дата введения: | 20.12.1982 |
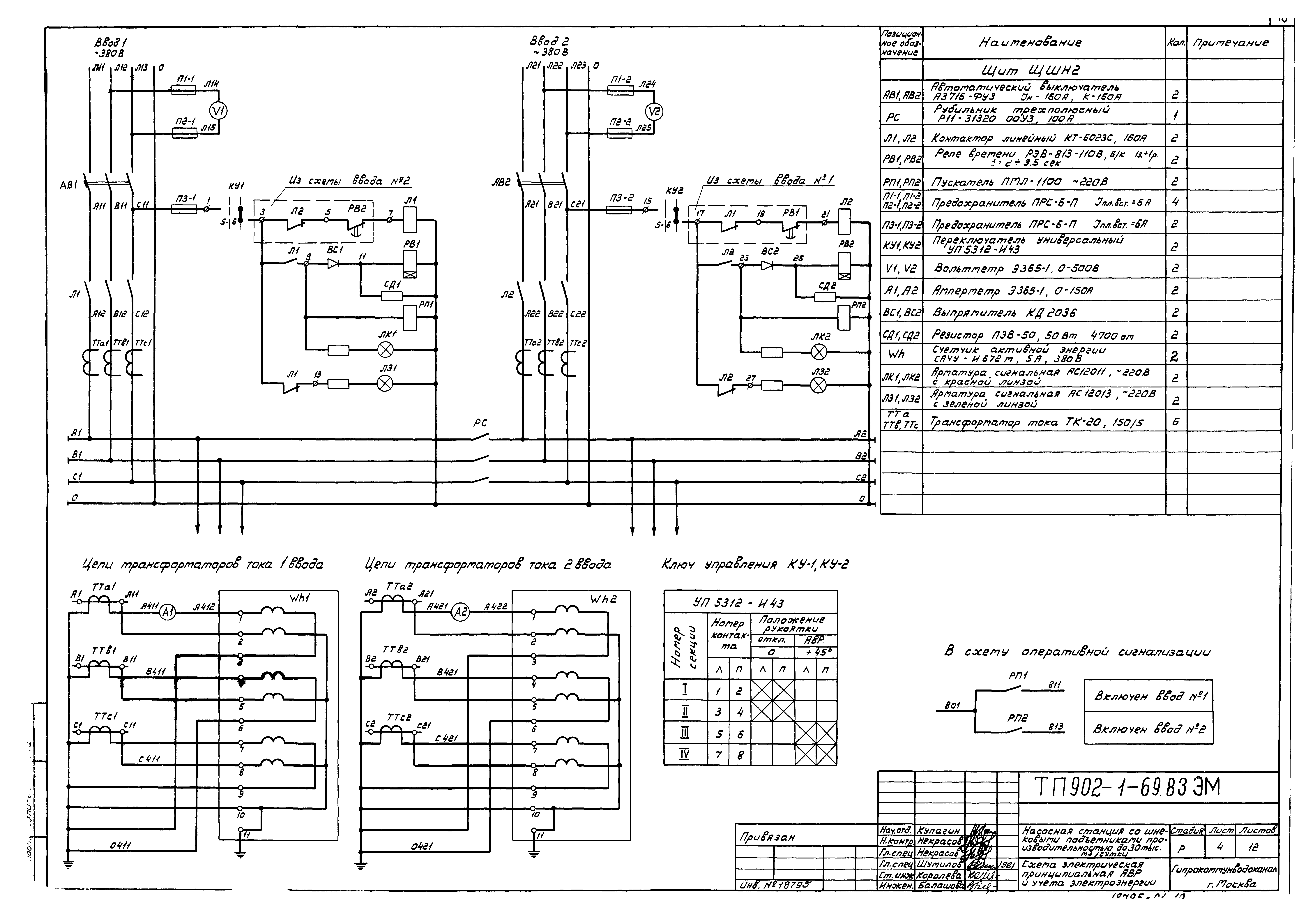
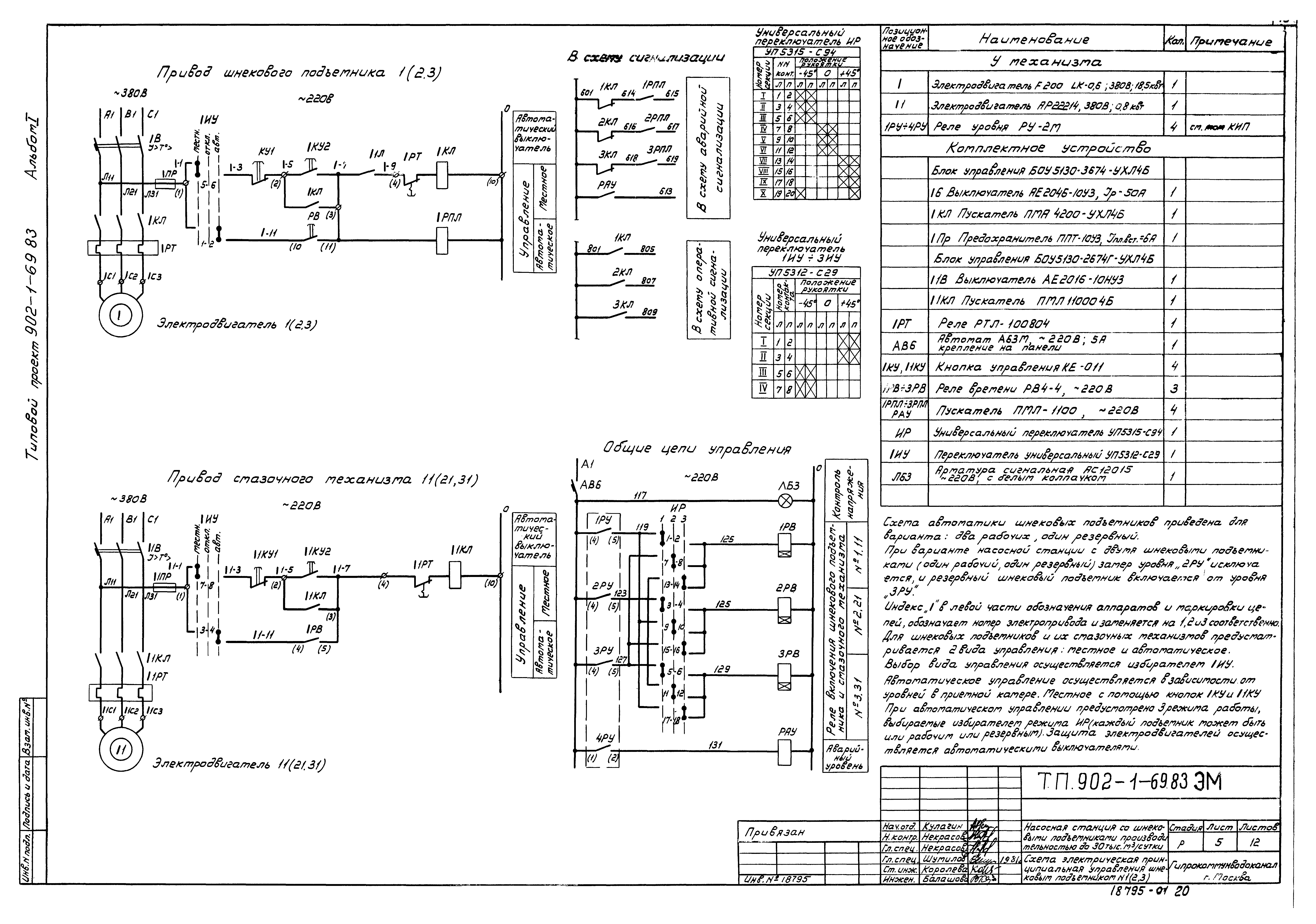
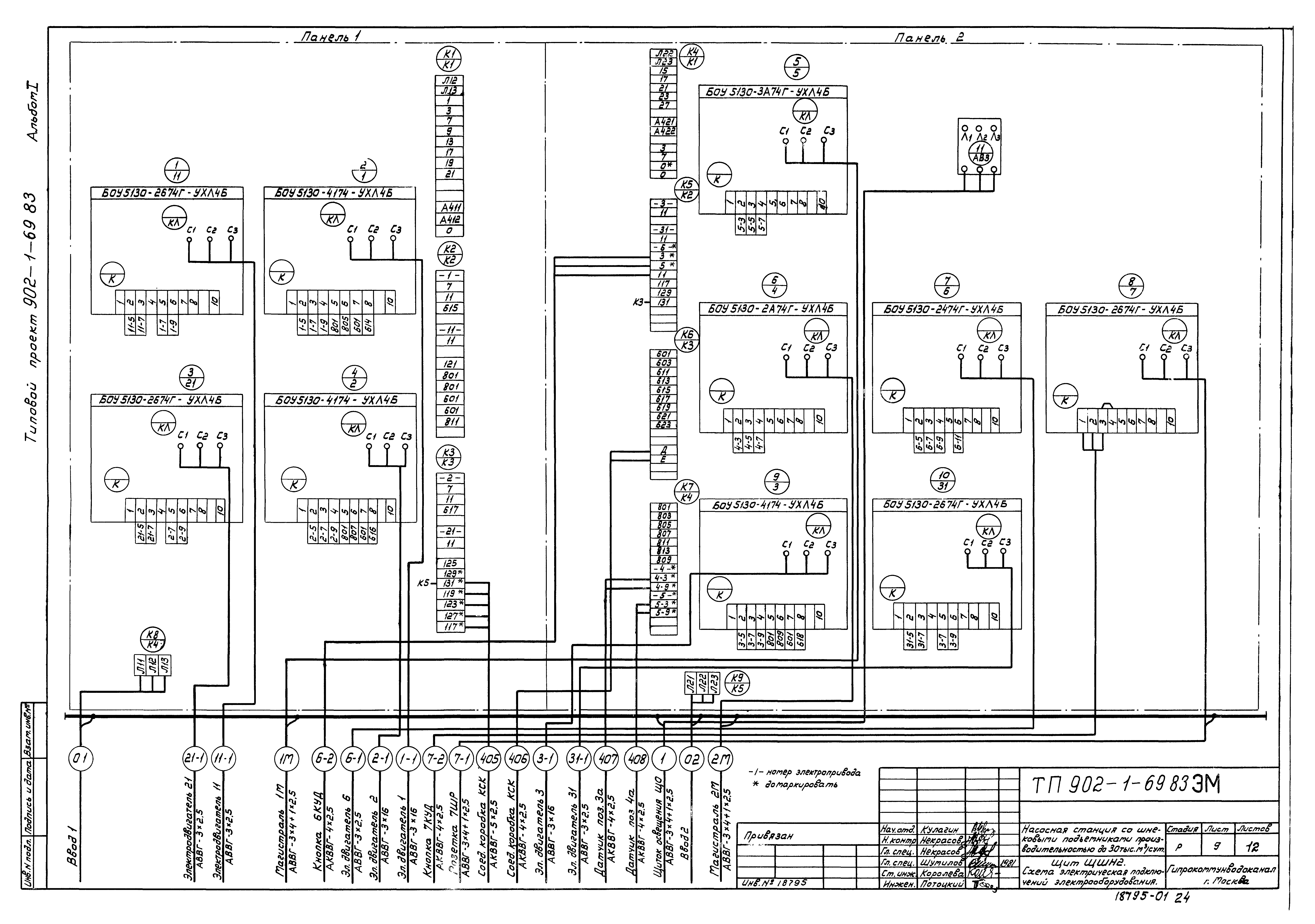
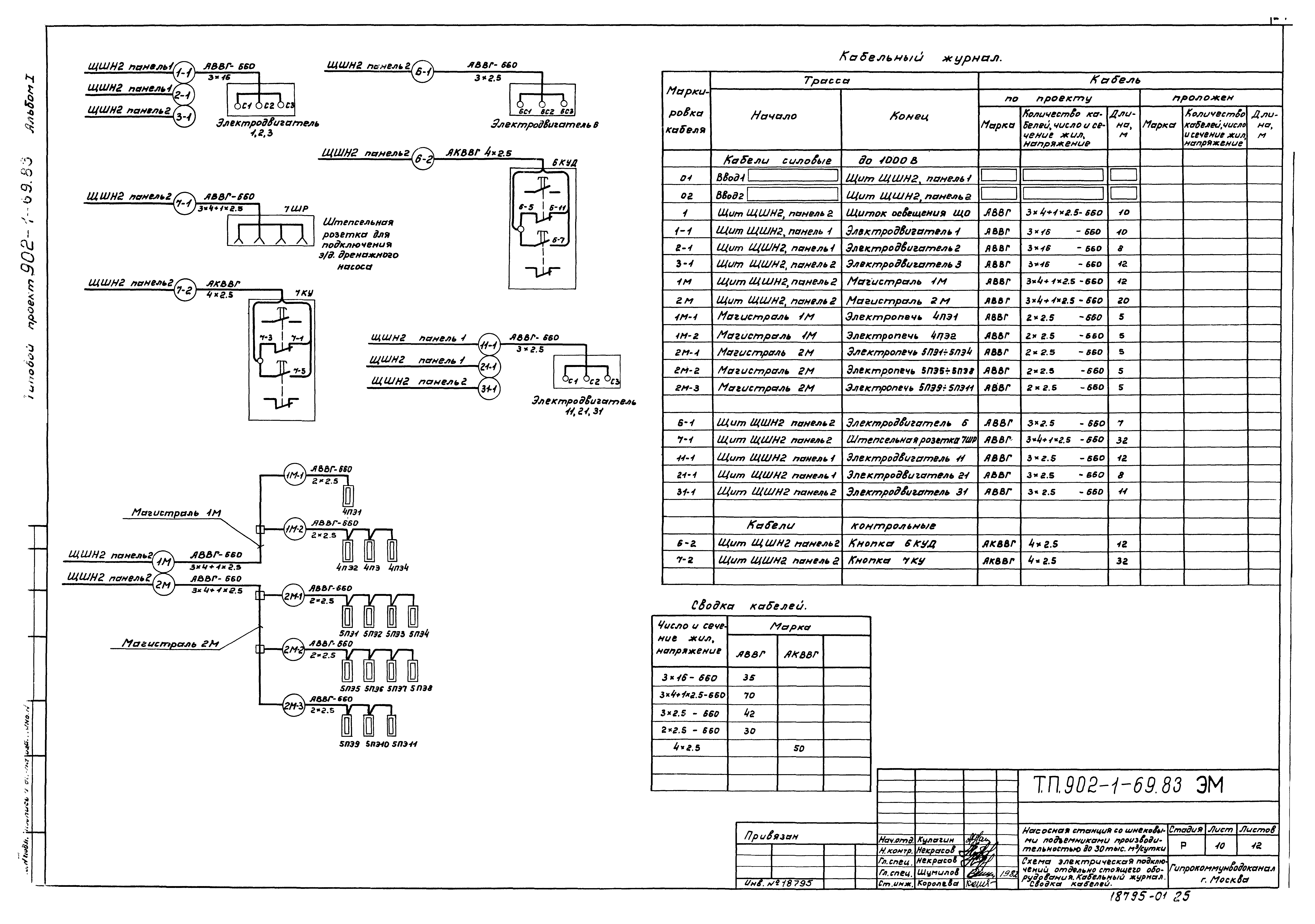
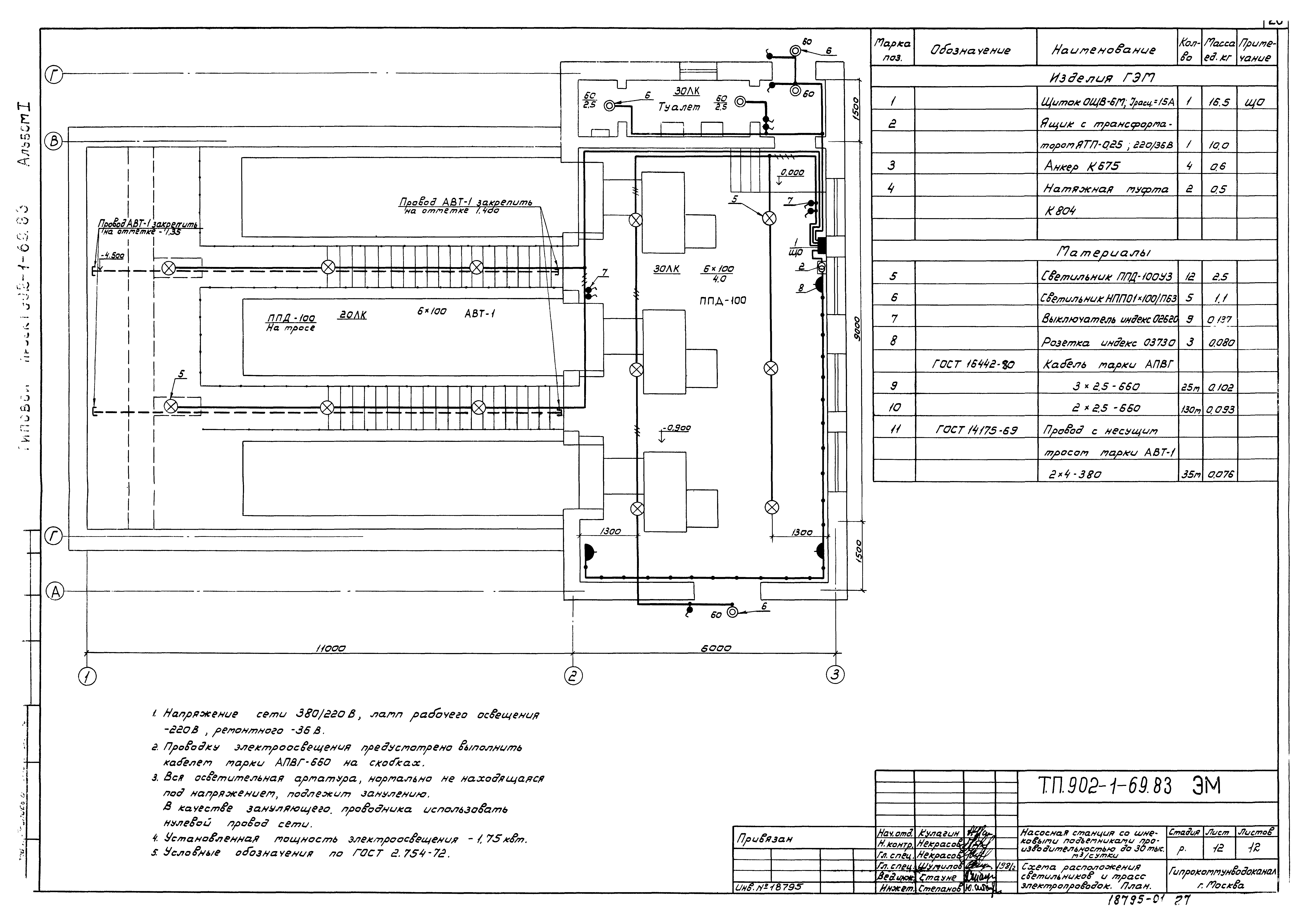
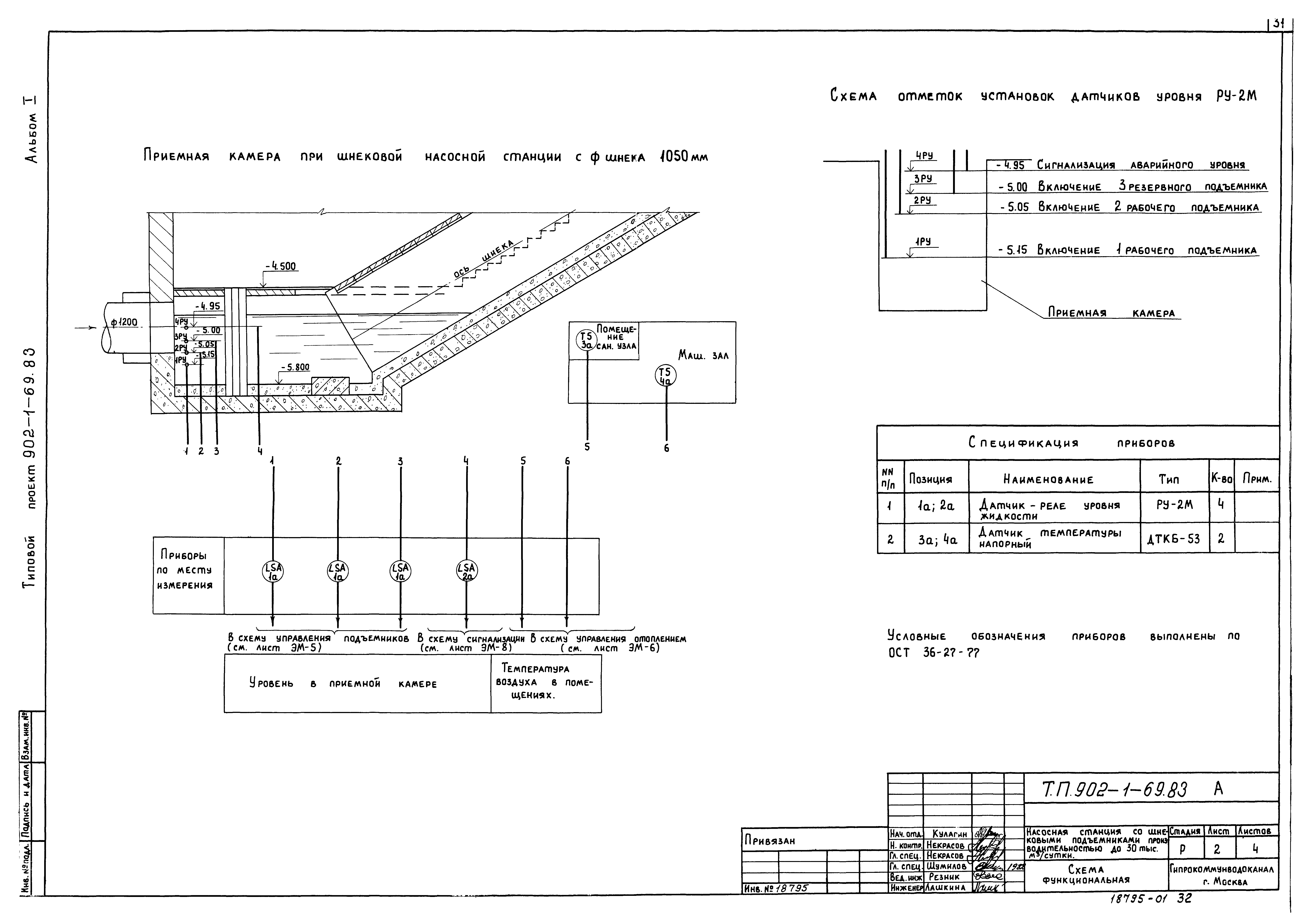
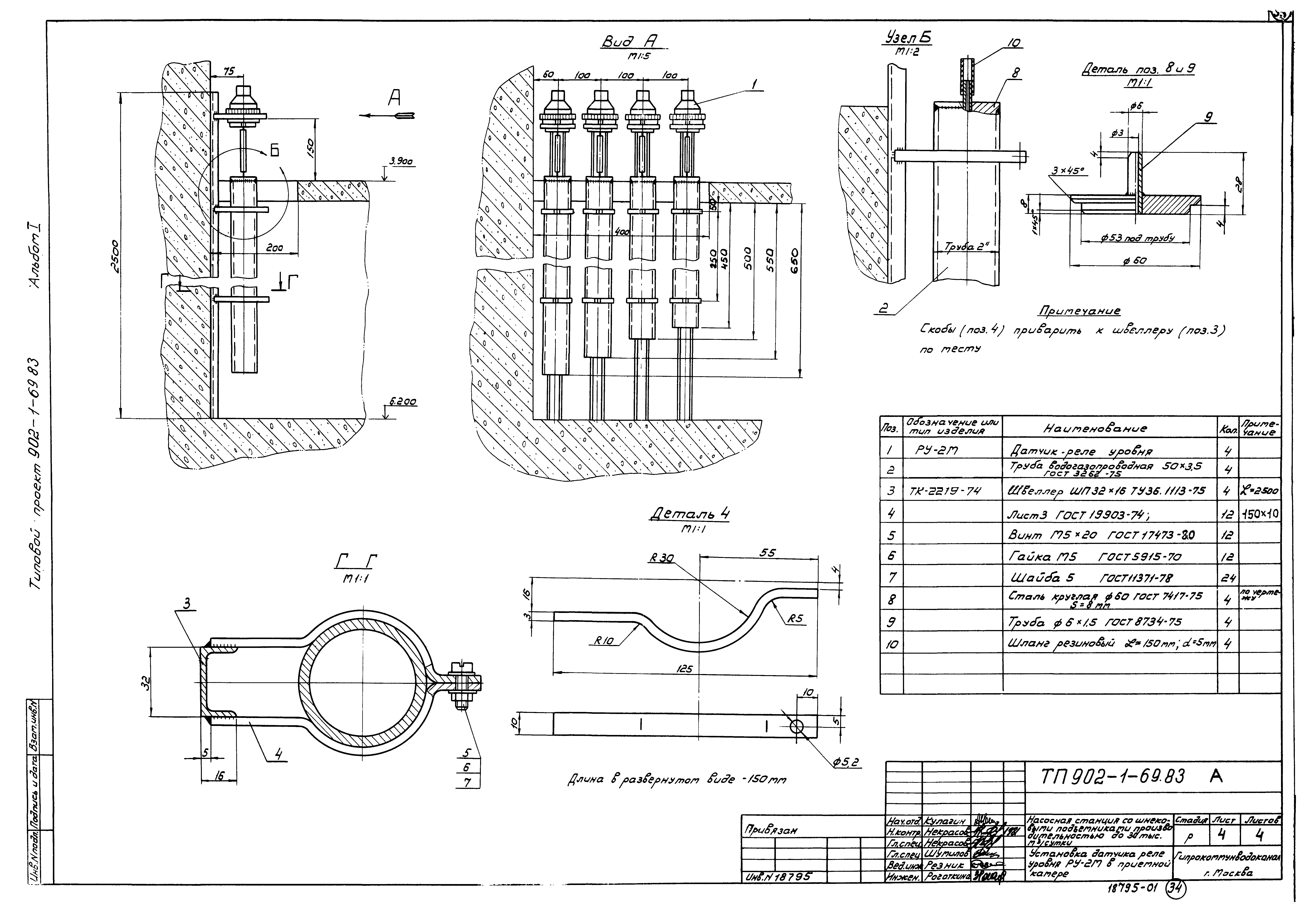
| Оглавление: | ТП 902-1-69.83 Содержание альбома ТП 902-1-69.83-НК Технологические решения ТП 902-1-69.83-НК-1 Общие данные (начало) ТП 902-1-69.83-НК-2 Общие данные (окончание) ТП 902-1-69.83-НК-3 Монтажный чертеж. План ТП 902-1-69.83-НК-4 Монтажный чертеж. Разрезы. Вид ТП 902-1-69.83-НК-5 Схема масляных трубопроводов ТП 902-1-69.83-НК-6 Клапан. Сборочный чертеж ТП 902-1-69.83-НК-7 Секция жалюзийная. Сборочный чертеж ТП 902-1-69.83-ОВ Отопление и вентиляция ТП 902-1-69.83-ОВ-1 Общие данные (начало) ТП 902-1-69.83-ОВ-2 Общие данные (окончание) ТП 902-1-69.83-ОВ-3 Отопление и вентиляция. План. Схема ТП 902-1-69.83-ВК Внутренний водопровод и канализация ТП 902-1-69.83-ВК-1 Общие данные ТП 902-1-69.83-ВК-2 Внутренний водопровод и канализация. План. Разрез. Схемы ТП 902-1-69.83-ЭМ Электрооборудование и автоматизация ТП 902-1-69.83-ЭМ-1 Общие данные (начало) ТП 902-1-69.83-ЭМ-2 Общие данные (окончание) ТП 902-1-69.83-ЭМ-3 Схема электрическая принципиальная однолинейная распределительной сети 380/220 В ТП 902-1-69.83-ЭМ-4 Схема электрическая принципиальная АВР и учета электроэнергии ТП 902-1-69.83-ЭМ-5 Схема электрическая принципиальная управления шнековым подъемником № 1(2,3) ТП 902-1-69.83-ЭМ-6 Схема электрическая принципиальная управления электроотоплением ТП 902-1-69.83-ЭМ-7 Схемы электрические принципиальные управления вентилятором № 6 и дренажным насосом № 7 ТП 902-1-69.83-ЭМ-8 Схема электрическая принципиальная аварийной и оперативной сигнализации ТП 902-1-69.83-ЭМ-9 Щит ЩШН2. Схема электрическая подключения электрооборудования ТП 902-1-69.83-ЭМ-10 Схема электрическая подключений отдельностоящего оборудования. Кабельный журнал. Сводка кабелей ТП 902-1-69.83-ЭМ-11 Расположение электрооборудования, прокладка кабелей и магистралей зануления ТП 902-1-69.83-ЭМ-12 Схема расположения светильников и трасс электропроводок. План ТП 902-1-69.83-ЭМ.ВОМ Ведомость электрооборудования, кабельных изделий и материалов. Ведомость потребности материалов. Ведомость потребности в электромонтажных изделиях ТП 902-1-69.83-ЭМ.ВОР Ведомость объемов электромонтажных и строительных работ. Щит ЩШН-1. Перечень надписей (чертеж для справок) ТП 902-1-69.83-ЭМИ Щит ЩШН1. Общий вид (чертеж для справок) ТП 902-1-69.83-А Технологический контроль ТП 902-1-69.83-А-1 Общие данные. Спецификация основных монтажных материалов и изделий, поставляемых подрядчиком ТП 902-1-69.83-А-2 Схема функциональная технологического контроля ТП 902-1-69.83-А-3 Схема внешних электрических и трубных проводок ТП 902-1-69.83-А-4 Установка датчика-реле уровня РУ-2М в приемном резервуаре |
| Разработан: | Гипрокоммунводоканал Минжилкомхоза РСФСР |
| Утверждён: | 18.08.1982 МЖКХ РСФСР (15 ТД) |

































