Скачать Типовой проект 903-1-225.86 Альбом 2.4. Часть 2. Металлоконструкции газовоздухопроводов для блок-секции котлоагрегата КВ-ТС-10 (вариант без воздухоподогревателя) (из ТП 903-1-224.86)Дата актуализации: 01.01.2021
|
| Обозначение: | Типовой проект 903-1-225.86 |
| Обозначение англ: | 903-1-225.86 |
| Статус: | действует |
| Название рус.: | Альбом 2.4. Часть 2. Металлоконструкции газовоздухопроводов для блок-секции котлоагрегата КВ-ТС-10 (вариант без воздухоподогревателя) (из ТП 903-1-224.86) |
| Дата добавления в базу: | 01.10.2014 |
| Дата актуализации: | 01.01.2021 |
| Дата введения: | 20.05.1986 |
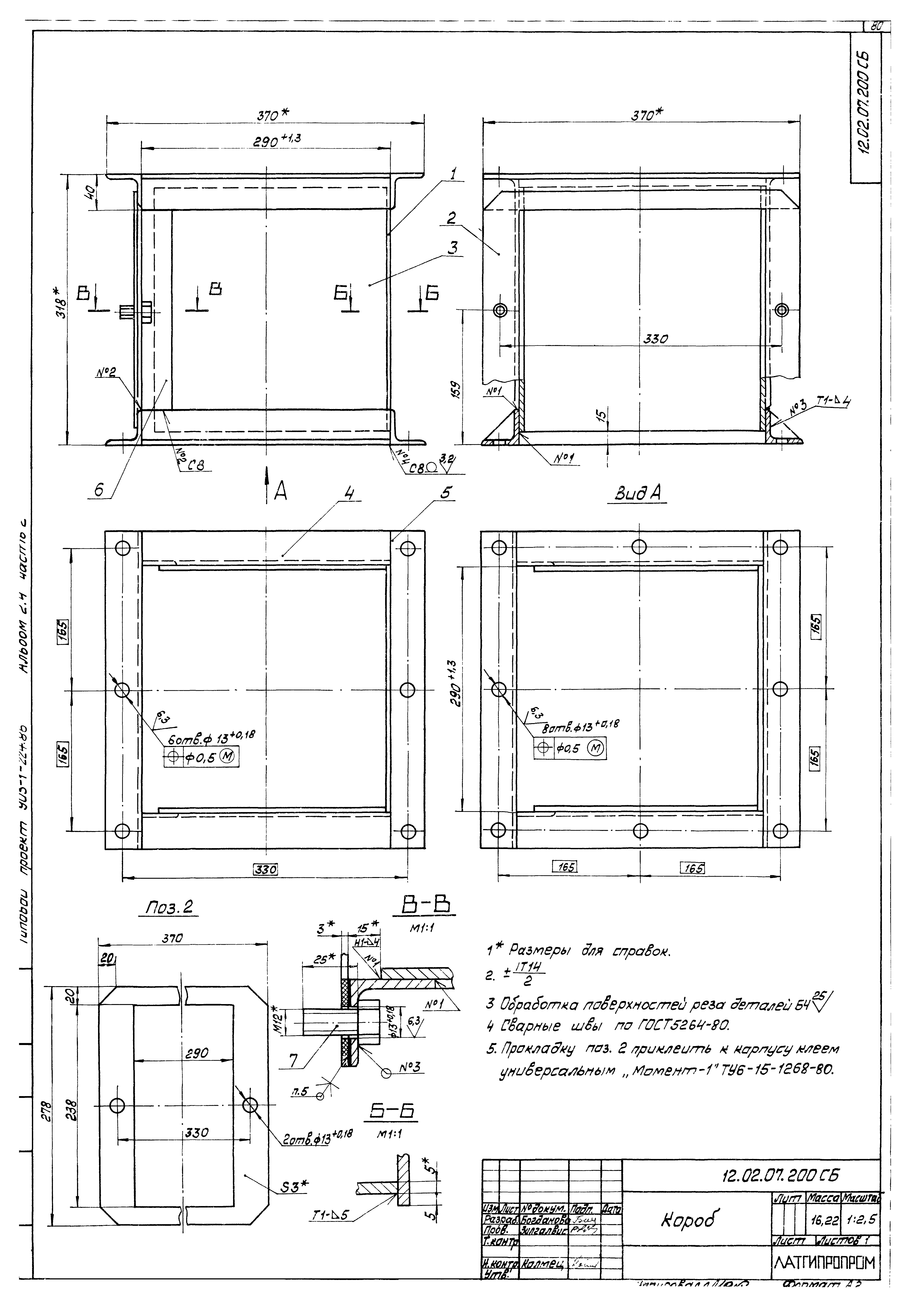
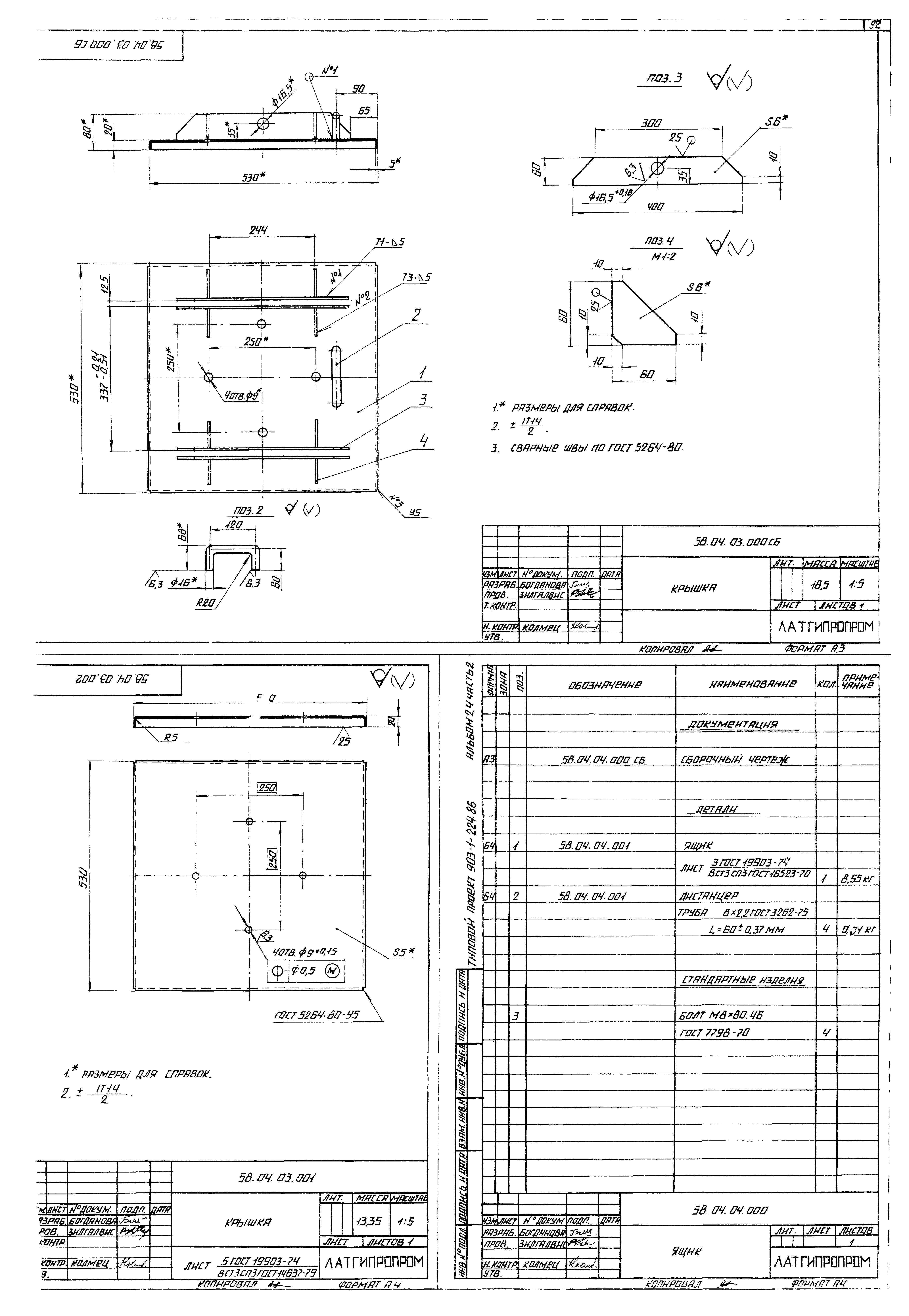
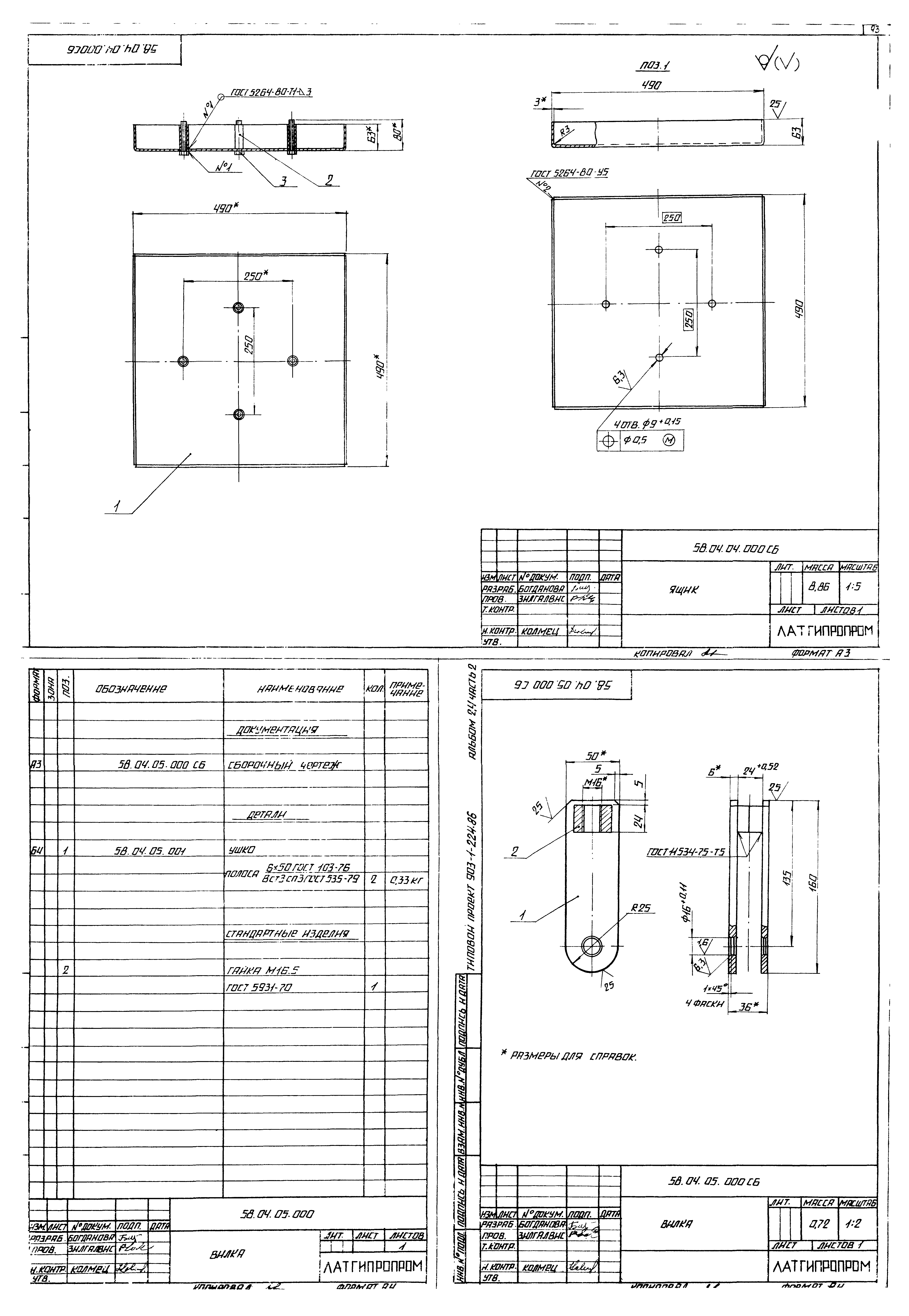
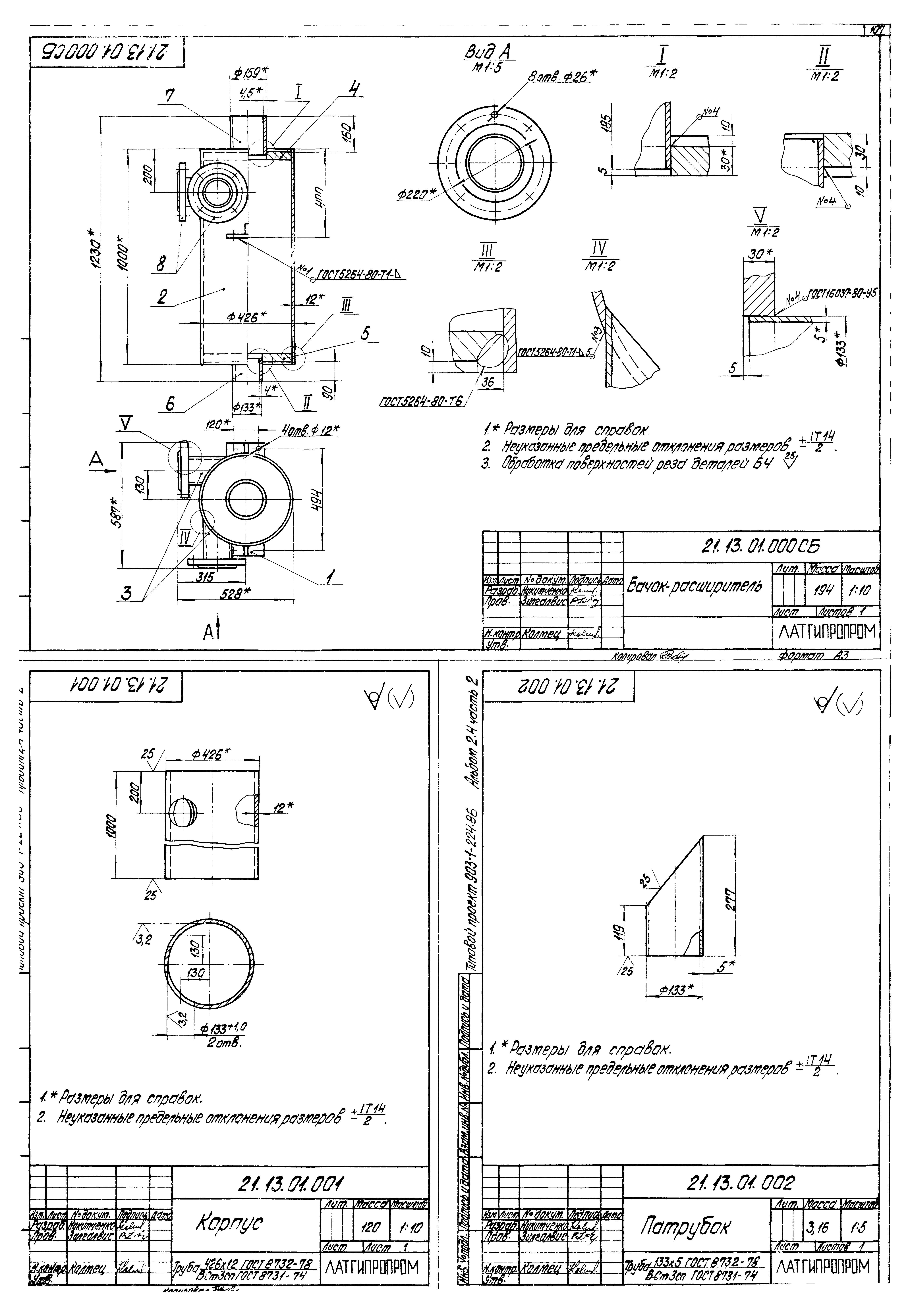
| Оглавление: | Газоходы котла КВ-ТС-10 65.120.11.003 Пластина 64.86.10.000 Лапа 64.86.10.000СБ Лапа Топливоподача и золоудаление котла КВ-ТС-10 12.02.01.000 Короб (левый) 12.02.01.000СБ Короб (левый) 12.02.01.001 Стенка 12.02.01.002 Стенка 12.02.01.100 Фланец 12.02.01.100СБ Фланец 12.02.02.000 Короб (правый) 12.02.03.000 Переход 12.02.02.000СБ Короб (правый) 12.02.03.000СБ Переход 12.02.03.001 Стенка 12.02.03.002 Стенка 12.02.04.000 Переход 12.02.04.001 Стенка 12.02.04.000СБ Переход 12.02.04.002 Стенка 12.02.05.000 Бункер 12.02.05.000СБ Бункер 12.02.05.001 Стенка 12.02.05.002 Стенка 12.02.05.003 Стенка 12.02.05.004 Фланец 12.02.07.001 Крышка 12.02.07.002 Дозатор 12.02.07.000 Короб с задвижкой 12.02.07.100 Короб 12.02.07.000СБ Короб с задвижкой 12.02.07.100СБ Короб 12.02.07.101 Стенка 12.02.07.200 Короб 12.02.07.200СБ Короб 12.02.07.300 Задвижка 12.02.07.300СБ Задвижка 12.02.08.000 Переход 12.02.08.100 Переход 12.02.08.000СБ Переход 12.02.08.100СБ Переход 12.02.08.101 Переход 12.02.08.200 Переход 12.02.08.201 Стенка 12.02.08.200СБ Переход 12.02.08.300 Короб 12.02.09.000 Желоб 12.02.08.300СБ Короб 12.02.09.000СБ Желоб 12.02.10.000 Фланец 12.02.10.000СБ Фланец 58.04.00.000 Люк 500х500 58.04.00.000СБ Люк 500х500 58.04.00.001 Шарик 58.04.00.002 Ручка 58.04.00.003 Прокладка 58.04.01.000 Рама 58.04.01.001 Ушко 58.04.01.000СБ Рама 58.04.01.002 Ушко 58.04.02.000 Рычаг 58.04.02.000СБ Рычаг 58.04.02.001 Скоба 58.04.02.002 Рычаг 58.04.02.003 Скоба 58.04.03.000 Крышка 58.04.03.000СБ Крышка 58.04.03.001 Крышка 58.04.04.000 Ящик 58.04.04.000СБ Ящик 58.04.05.000 Вилка 58.04.05.000СБ Вилка 12.02.11.000 Привод заслонки 12.02.11.001 Ручка 12.02.11.000СБ Привод заслонки 12.02.11.100 Скоба 12.02.18.000 Рама 12.02.11.100СБ Скоба 12.02.18.000СБ Рама 12.02.20.000 Рама 12.02.20.001 Балка 12.02.20.000СБ Рама 12.02.22.000 Рама 12.02.22.100 Рама 12.02.22.100СБ Рама 12.02.22.000СБ Рама 12.02.21.300СБ Ограждение 12.02.21.200 Скоба 12.02.21.300 Ограждение 12.02.21.200 Скоба 12.02.23.000 Ограждение каната 12.02.23.000СБ Ограждение каната 12.02.24.000 Металлоконструкция крепления блоков 12.02.24.100 Рама 12.02.24.000СБ Металлоконструкция крепления блоков 12.02.24.100СБ Рама 12.02.24.200СБ Опора 12.02.24.200 Опора Бачок-расширитель 21.13.00.000 Бачок-расширитель 21.13.00.000СБ Бачок-расширитель 21.13.01.000 Бачок-расширитель 21.13.01.100 Лапа 21.13.01.000СБ Бачок-расширитель 21.13.01.001 Корпус 21.13.01.002 Патрубок 21.13.01.003 Днище 21.13.01.100СБ Лапа 21.13.01.101 Пластина 21.13.02.000 Рама 21.13.02.000СБ Рама 21.13.02.001 Балка Переход, фланец 12.02.12.000 Переход 12.02.12.002 Фланец 12.02.12.000СБ Переход 12.02.12.001 Переход |
| Разработан: | Латгипропром |
| Утверждён: | 20.05.1986 Госстрой СССР (Государственный комитет Совета Министров СССР по делам строительства) (USSR Gosstroy АЧ-29) |











































