Скачать Типовой проект 902-2-362.83 Альбом V. Задание заводу-изготовителюДата актуализации: 01.01.2021
|
| Обозначение: | Типовой проект 902-2-362.83 |
| Обозначение англ: | 902-2-362.83 |
| Статус: | не действует |
| Название рус.: | Альбом V. Задание заводу-изготовителю |
| Дата добавления в базу: | 01.09.2013 |
| Дата актуализации: | 01.01.2021 |
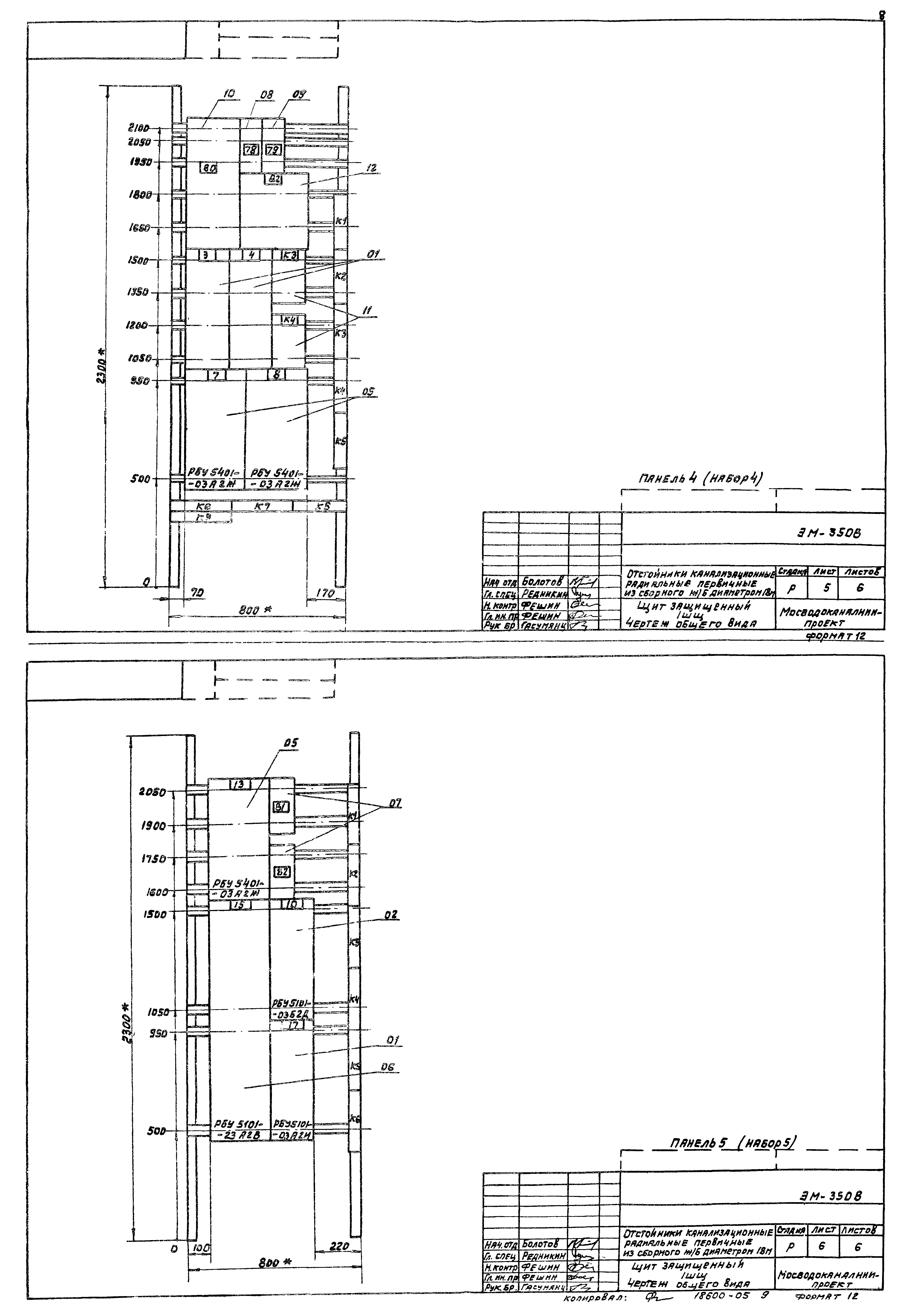
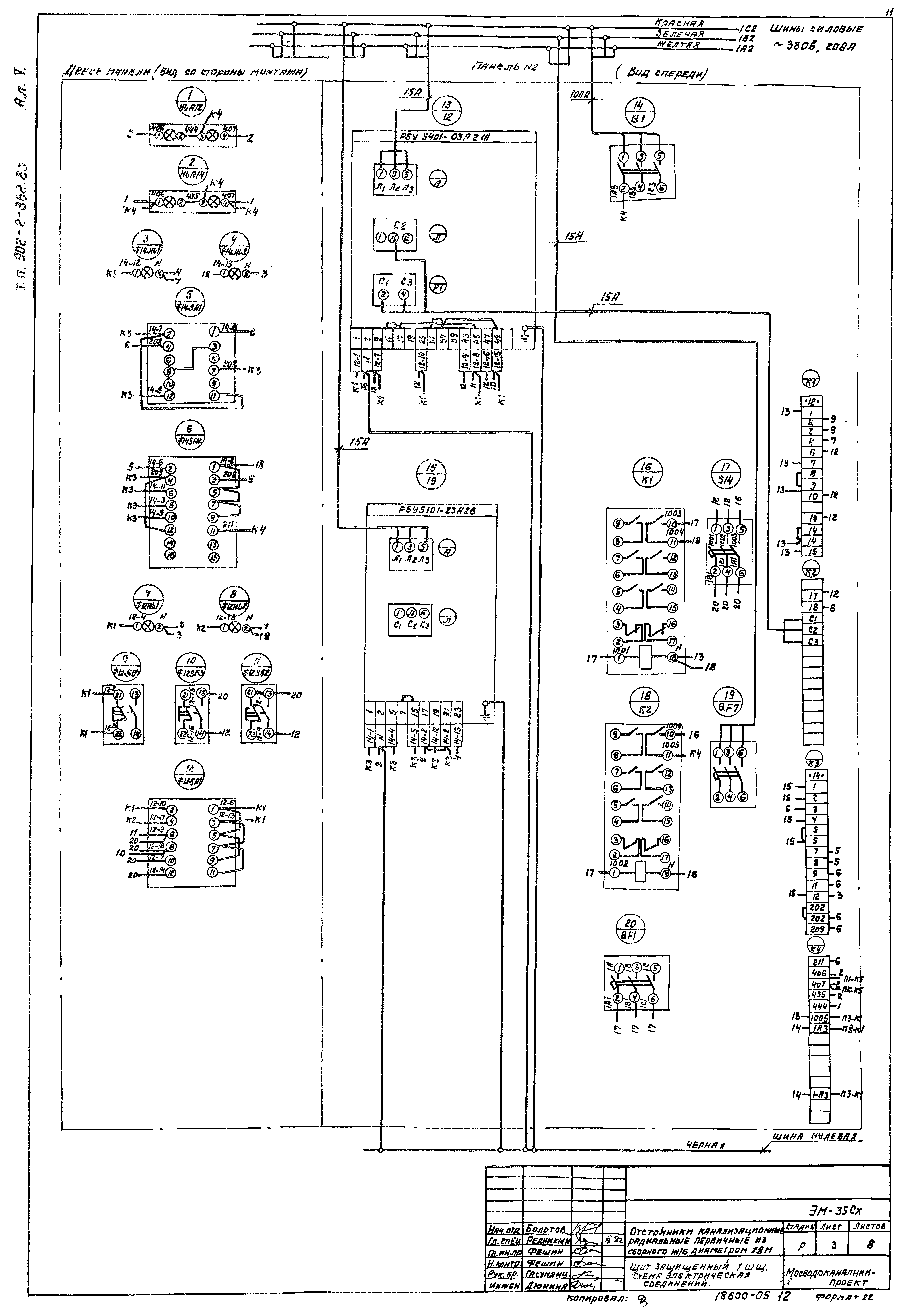
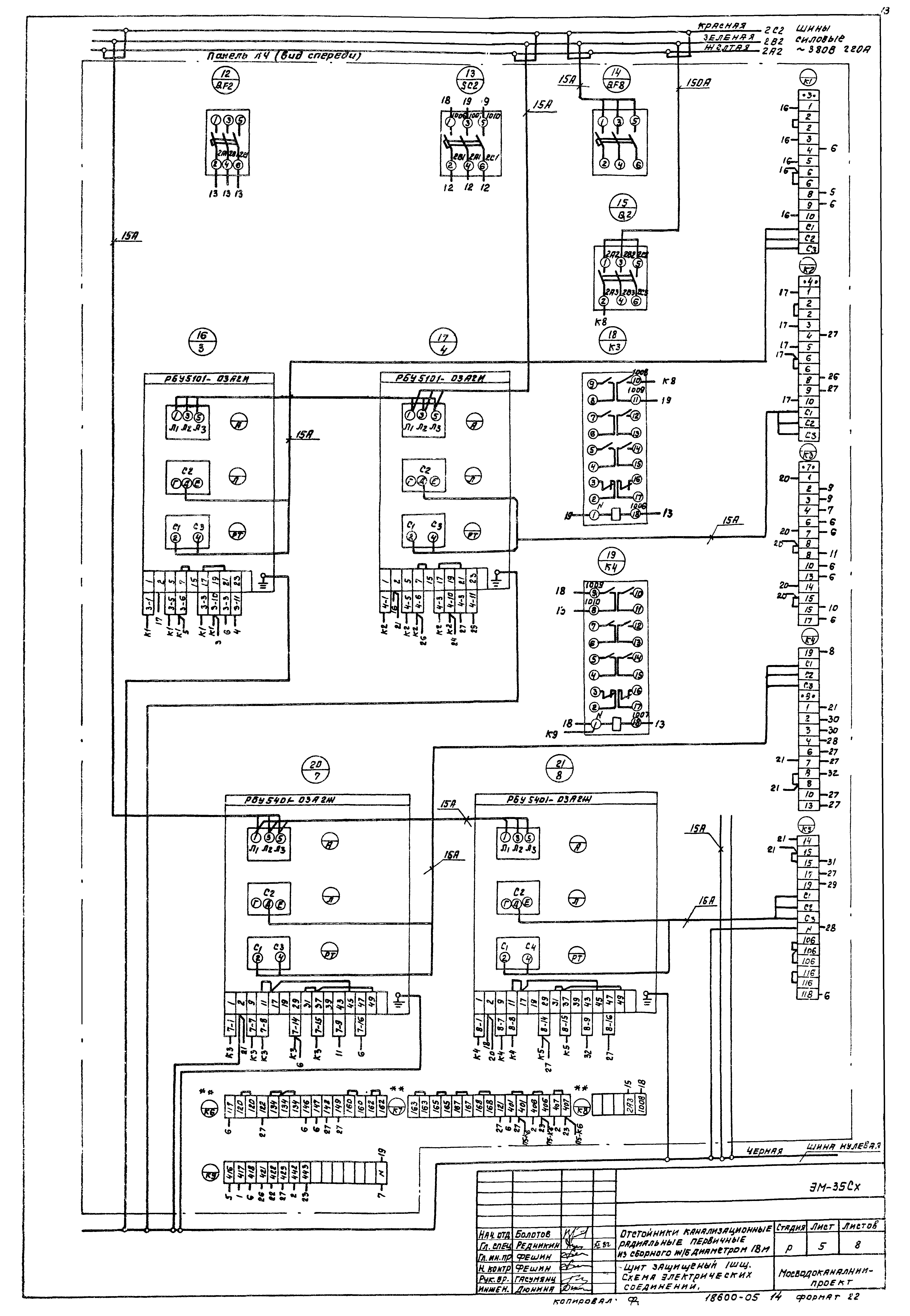
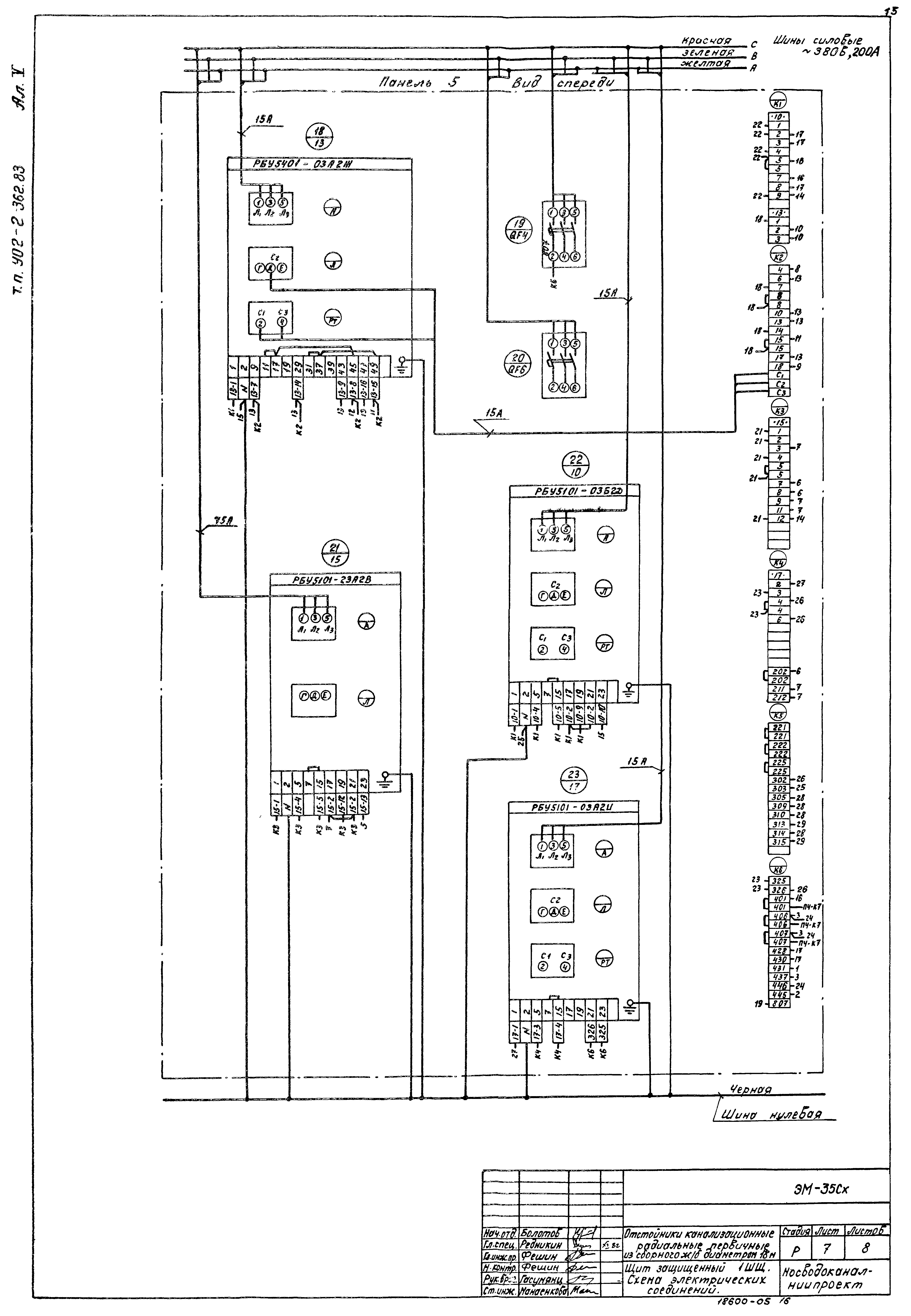
| Оглавление: | ТП 902-2-362.83 Щиты по ОСТ 160.800.485-77 ТП 902-2-362.83 ЭМ-34КУ Перечень комплектных устройств ТП 902-2-362.83 ЭМ-35ТД Лист 1-3 Щит защищенный 1ШЩ. Технические данные аппаратов ТП 902-2-362.83 ЭМ-35ТД Лист 4-7 Щит защищенный 1ШЩ. Технические данные аппаратов ТП 902-2-362.83 ЭМ-35ТД Лист 8,9 Щит защищенный 1ШЩ. Технические данные аппаратов ТП 902-2-362.83 ЭМ-35ОВ Лист 2 Щит защищенный 1ШЩ. Чертеж общего вида ТП 902-2-362.83 ЭМ-35ОВ Лист 1 Щит защищенный 1ШЩ. Чертеж общего вида ТП 902-2-362.83 ЭМ-35ОВ Лист 3,4 Щит защищенный 1ШЩ. Чертеж общего вида ТП 902-2-362.83 ЭМ-35ОВ Лист 5,6 Щит защищенный 1ШЩ. Чертеж общего вида ТП 902-2-362.83 ЭМ-35СХ Лист 1 Щит защищенный 1ШЩ. Схема электрических соединений ТП 902-2-362.83 ЭМ-35СХ Лист 2 Щит защищенный 1ШЩ. Схема электрических соединений ТП 902-2-362.83 ЭМ-35СХ Лист 3 Щит защищенный 1ШЩ. Схема электрических соединений ТП 902-2-362.83 ЭМ-35СХ Лист 4 Щит защищенный 1ШЩ. Схема электрических соединений ТП 902-2-362.83 ЭМ-35СХ Лист 5 Щит защищенный 1ШЩ. Схема электрических соединений ТП 902-2-362.83 ЭМ-35СХ Лист 6 Щит защищенный 1ШЩ. Схема электрических соединений ТП 902-2-362.83 ЭМ-35СХ Лист 7 Щит защищенный 1ШЩ. Схема электрических соединений ТП 902-2-362.83 ЭМ-35СХ Лист 8 Щит защищенный 1ШЩ. Схема электрических соединений ТП 902-2-362.83 ЭМ-35ПН Лист 1-4 Щит защищенный 1ШЩ. Таблица перечня надписей ТП 902-2-362.83 ЭМ-35ПН Лист 5-7 Щит защищенный 1ШЩ. Таблица перечня надписей ТП 902-2-362.83 ЭМ-36ТД Лист 1-4 Щит защищенный 2ШЩ. Технические данные аппаратуры ТП 902-2-362.83 ЭМ-36ОВ Лист 1 Щит защищенный 2ШЩ. Чертеж общего вида ТП 902-2-362.83 ЭМ-65ОВ Лист 2,3 Щит защищенный 2ШЩ. Чертеж общего вида ТП 902-2-362.83 ЭМ-36СХ Лист 1 Щит защищенный 2ШЩ. Схема электрических соединений ТП 902-2-362.83 ЭМ-36СХ Лист 2,4 Щит защищенный 2ШЩ. Схема электрических соединений ТП 902-2-362.83 ЭМ-36СХ Лист 3 Щит защищенный 2ШЩ. Схема электрических соединений ТП 902-2-362.83 ЭМ-36ПН Лист 1-4 Щит защищенный 2ШЩ. Таблица перечня надписей ТП 902-2-362.83 ЭМ-37ТД Лист 1,2 Ящик 1Я(2Я,3Я,4Я). Технические данные аппаратов ТП 902-2-362.83 ЭМ-37ОВ Лист 1 Ящик 1Я(2Я,3Я,4Я). Чертеж общего вида ТП 902-2-362.83 ЭМ-37ОВ Лист 2 Ящик 1Я(2Я,3Я,4Я). Чертеж общего вида ТП 902-2-362.83 ЭМ-37ПР Ящик 1Я(2Я,3Я,4Я). Таблица перечня надписей ТП 902-2-362.83 ЭМ-37СХ Ящик 1Я(2Я,3Я,4Я). Схема электрических соединений ТП 902-2-362.83 Щиты по ОСТ 36.13-76 ТП 902-2-362.83 АМ-6 Ведомость документов ТП 902-2-362.83 АМ-7 Лист 1 Заказная спецификация щитов ТП 902-2-362.83 АМ-7 Лист 2 Заказная спецификация щитов ТП 902-2-362.83 АМ-8 Лист 1,2 Щит КИП. Общий вид ТП 902-2-362.83 АМ-8 Лист 3,4,6 Щит КИП. Общий вид ТП 902-2-362.83 АМ-8 Лист 5,7,8 Щит КИП. Общий вид ТП 902-2-362.83 АМ-8 Лист 9-12 Щит КИП. Общий вид ТП 902-2-362.83 АМ-8 Лист 13,14 Щит КИП. Общий вид |
| Разработан: | МосводоканалНИИпроект |
| Утверждён: | 17.11.1982 МосводоканалНИИпроект (191) |


































