Скачать Типовой проект 902-2-362.83 Альбом VI. Часть 2. Нестандартизированное оборудование. ИлоскребДата актуализации: 01.01.2021
|
| Обозначение: | Типовой проект 902-2-362.83 |
| Обозначение англ: | 902-2-362.83 |
| Статус: | не действует |
| Название рус.: | Альбом VI. Часть 2. Нестандартизированное оборудование. Илоскреб |
| Дата добавления в базу: | 01.09.2013 |
| Дата актуализации: | 01.01.2021 |
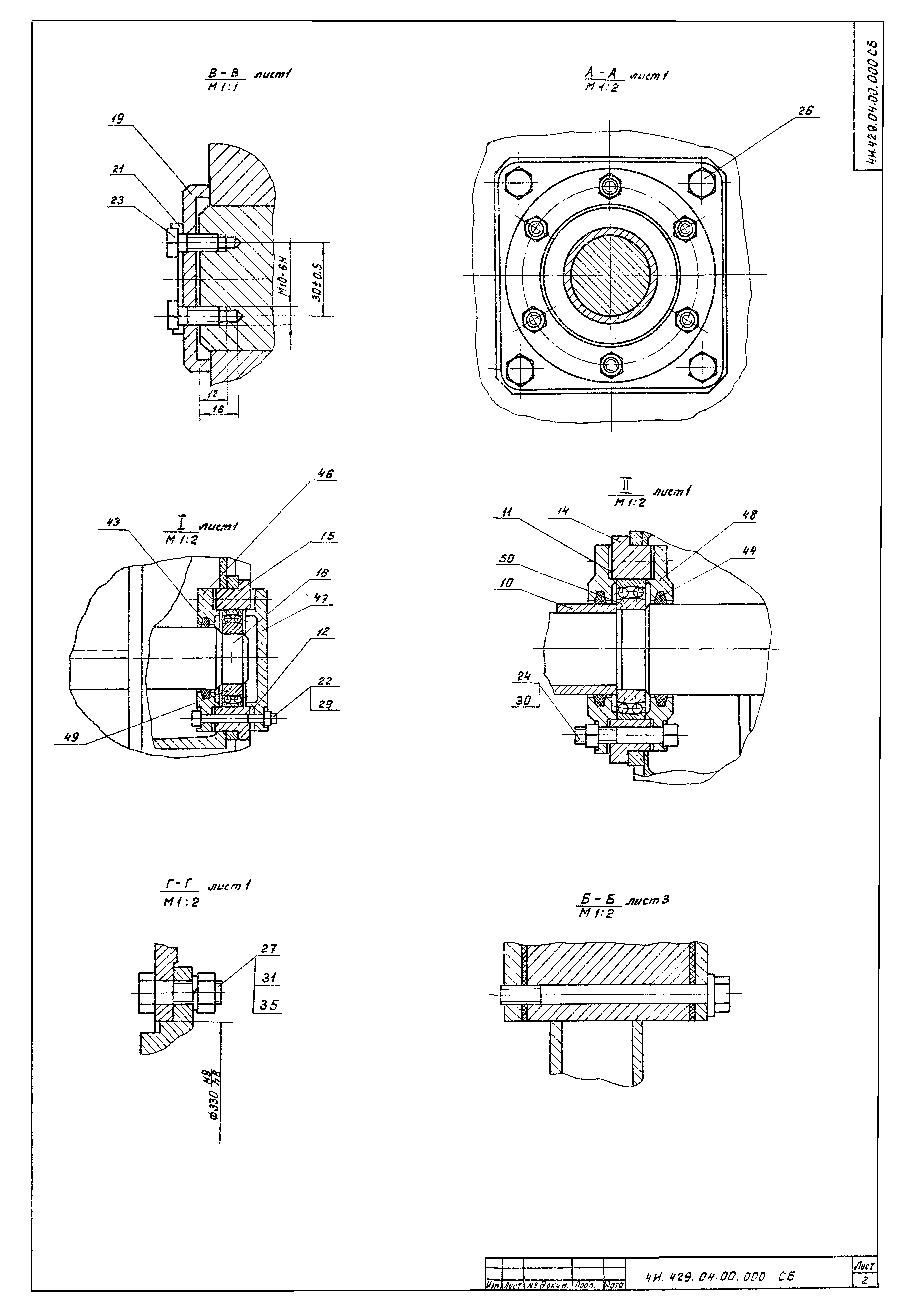
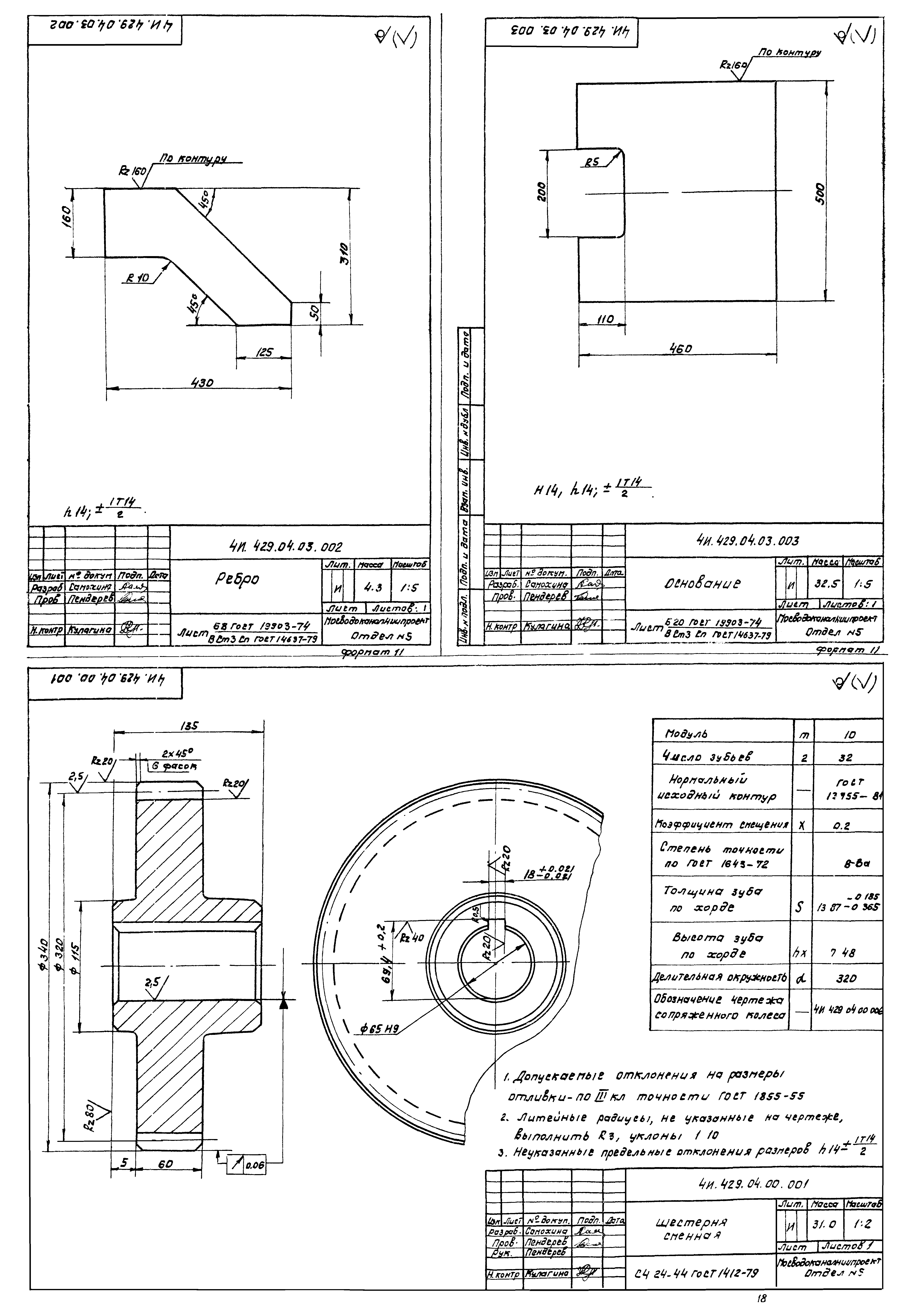
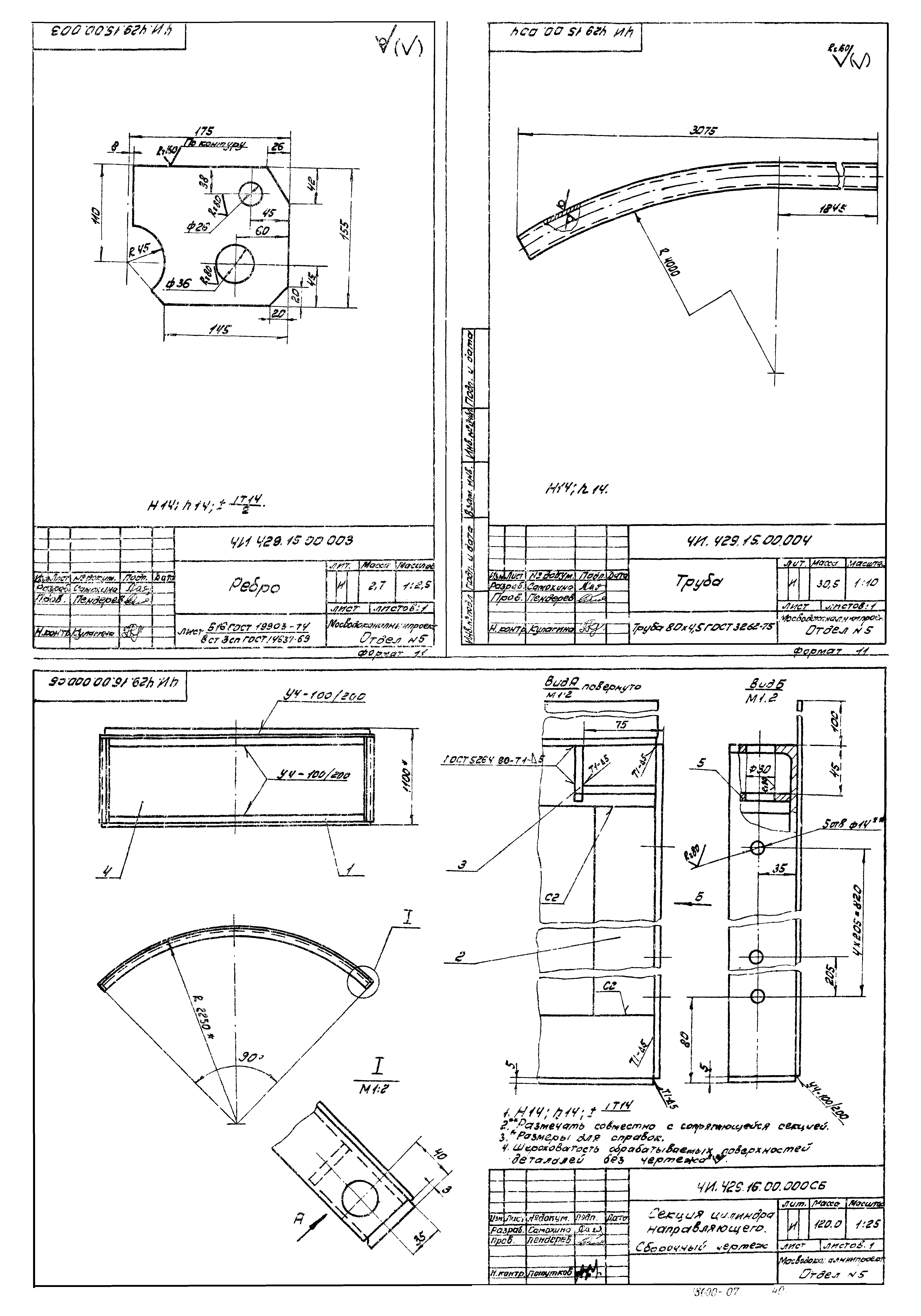
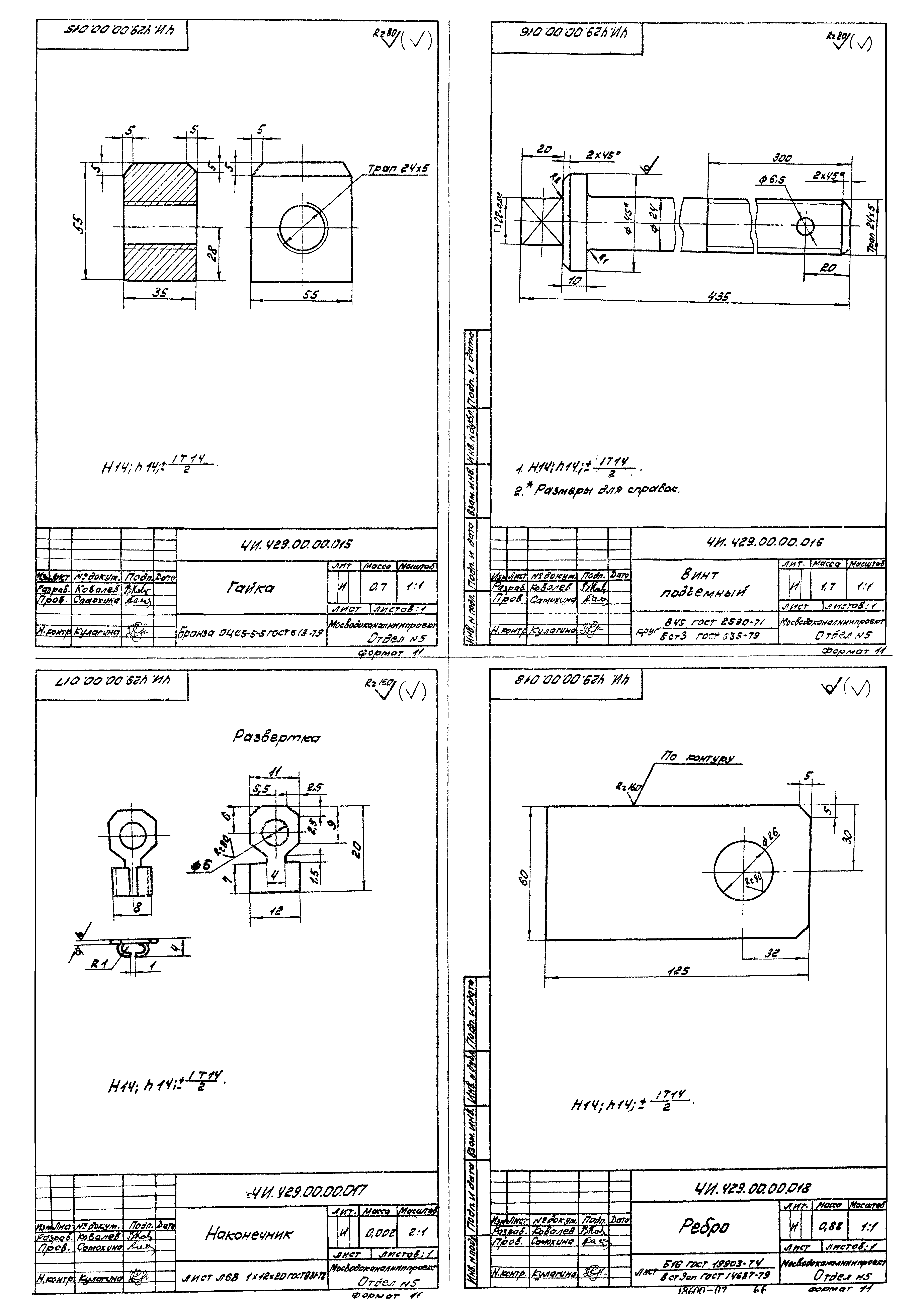
| Оглавление: | Часть 2 ТП 902-2-362.83 4И.429.04.00.000 СБ Привод. Лист 1 ТП 902-2-362.83 4И.429.04.00.000 СБ Привод. Лист 2 ТП 902-2-362.83 4И.429.04.00.000 СБ Привод. Лист 3 ТП 902-2-362.83 4И.429.04.00.000 Привод. Спецификация. Лист 1-4 ТП 902-2-362.83 4И.429.04.01.000 СБ Вал в сборе ТП 902-2-362.83 4И.429.04.01.000 Вал в сборе. Спецификация. Лист 1-2 ТП 902-2-362.83 4И.429.04.01.100 Траверса. Спецификация ТП 902-2-362.83 4И.429.04.01.101 Полоса верхняя ТП 902-2-362.83 4И.429.04.01.100 СБ Траверса ТП 902-2-362.83 4И.429.04.01.102 Стенка ТП 902-2-362.83 4И.429.04.01.103 Полоса нижняя ТП 902-2-362.83 4И.429.04.01.104 Обойма ТП 902-2-362.83 4И.429.04.01.001 Втулка ТП 902-2-362.83 4И.429.04.01.002 Колесо зубчатое ТП 902-2-362.83 4И.429.04.01.003 Крышка подшипника ТП 902-2-362.83 4И.429.04.01.004 Вал ТП 902-2-362.83 4И.429.04.01.005 Кольцо дистанционное ТП 902-2-362.83 4И.429.04.01.006 Прокладка ТП 902-2-362.83 4И.429.04.01.007 Кольцо уплотнительное ТП 902-2-362.83 4И.429.04.01.008 Полукольцо ТП 902-2-362.83 4И.429.04.01.009 Крышка подшипника ТП 902-2-362.83 4И.429.04.01.011 Крышка подшипника ТП 902-2-362.83 4И.429.04.02.000 Рама. Спецификация. Лист 1-2 ТП 902-2-362.83 4И.429.04.02.000 СБ Рама. Лист 1 ТП 902-2-362.83 4И.429.04.02.000 СБ Рама. Лист 2 ТП 902-2-362.83 4И.429.04.02.000 СБ Рама. Лист 3 ТП 902-2-362.83 4И.429.04.02.001 Накладка ТП 902-2-362.83 4И.429.04.02.002 Швеллер ТП 902-2-362.83 4И.429.04.02.003 Ребро ТП 902-2-362.83 4И.429.04.02.004 Лапа ТП 902-2-362.83 4И.429.04.03.000 СБ Кронштейн ТП 902-2-362.83 4И.429.04.03.000 Кронштейн. Спецификация ТП 902-2-362.83 4И.429.04.03.001 Фланец ТП 902-2-362.83 4И.429.04.03.002 Ребро ТП 902-2-362.83 4И.429.04.03.003 Основание ТП 902-2-362.83 4И.429.04.00.001 Шестеренка сменная ТП 902-2-362.83 4И.429.04.00.002 Шестеренка сменная ТП 902-2-362.83 4И.429.04.00.003 Шестеренка сменная ТП 902-2-362.83 4И.429.04.00.004 Колесо зубчатое сменное ТП 902-2-362.83 4И.429.04.00.005 Колесо зубчатое сменное ТП 902-2-362.83 4И.429.04.00.006 Колесо зубчатое сменное ТП 902-2-362.83 4И.429.04.00.007 Втулка дистанционная ТП 902-2-362.83 4И.429.04.00.008 Прокладка ТП 902-2-362.83 4И.429.04.00.009 Шестерня ТП 902-2-362.83 4И.429.04.00.011 Стакан ТП 902-2-362.83 4И.429.04.00.012 Стакан ТП 902-2-362.83 4И.429.04.00.013 Вал промежуточный ТП 902-2-362.83 4И.429.04.00.014 Ступица ТП 902-2-362.83 4И.429.04.00.015 Палец ТП 902-2-362.83 4И.429.04.00.016 Шайба глухая ТП 902-2-362.83 4И.429.04.00.017 Шайба стопорная ТП 902-2-362.83 4И.429.05.00.000 СБ Труба для кабеля ТП 902-2-362.83 4И.429.05.00.000 Труба для кабеля. Спецификация ТП 902-2-362.83 4И.429.05.00.001 Шайба ТП 902-2-362.83 4И.429.05.00.002 Кольцо ТП 902-2-362.83 4И.429.05.00.003 Труба ТП 902-2-362.83 4И.429.06.00.000 СБ Опора центральная ТП 902-2-362.83 4И.429.06.00.000 Опора центральная. Спецификация ТП 902-2-362.83 4И.429.06.00.001 Труба ТП 902-2-362.83 4И.429.06.00.002 Ребро ТП 902-2-362.83 4И.429.06.00.003 Фланец ТП 902-2-362.83 4И.429.07.00.000 СБ Опора радиальная ТП 902-2-362.83 4И.429.07.00.000 Опора радиальная. Спецификация. Лист 1-2 ТП 902-2-362.83 4И.429.07.00.001 Обойма ТП 902-2-362.83 4И.429.07.00.002 Прокладка ТП 902-2-362.83 4И.429.07.00.003 Крышка подшипника ТП 902-2-362.83 4И.429.07.00.004 Крышка подшипника ТП 902-2-362.83 4И.429.08.00.000 СБ Расчалка ТП 902-2-362.83 4И.429.08.00.000 Расчалка. Спецификация ТП 902-2-362.83 4И.429.08.00.001 Серьга ТП 902-2-362.83 4И.429.09.00.000 СБ Перекрытие ТП 902-2-362.83 4И.429.09.00.000 Перекрытие. Спецификация ТП 902-2-362.83 4И.429.10.00.000 СБ Стержень ТП 902-2-362.83 4И.429.10.00.000 Стержень. Спецификация ТП 902-2-362.83 4И.429.10.00.100 СБ Вилка ТП 902-2-362.83 4И.429.10.00.100 Вилка. Спецификация ТП 902-2-362.83 4И.429.10.00.101 Скоба ТП 902-2-362.83 4И.429.10.00.102 Вставка ТП 902-2-362.83 4И.429.11.00.000 СБ Узел крепления ТП 902-2-362.83 4И.429.11.00.000 Узел крепления. Спецификация ТП 902-2-362.83 4И.429.11.00.001 Ребро ТП 902-2-362.83 4И.429.11.00.002 Пластина ТП 902-2-362.83 4И.429.11.00.003 Ребро ТП 902-2-362.83 4И.429.11.00.004 Ребро ТП 902-2-362.83 4И.429.12.00.000 СБ Стойка ТП 902-2-362.83 4И.429.12.00.000 Стойка. Спецификация ТП 902-2-362.83 4И.429.12.00.001 Ребро ТП 902-2-362.83 4И.429.12.00.002 Ребро ТП 902-2-362.83 4И.429.13.00.000 СБ Перекрытие съемное ТП 902-2-362.83 4И.429.13.00.000 Перекрытие съемное. Спецификация ТП 902-2-362.83 4И.429.14.00.000 СБ Путь рельсовый внутренний ТП 902-2-362.83 4И.429.14.00.000 Путь рельсовый внутренний. Спецификация ТП 902-2-362.83 4И.429.14.00.001 Кольцо ТП 902-2-362.83 4И.429.14.00.002 Головка ТП 902-2-362.83 4И.429.14.00.003 Основание ТП 902-2-362.83 4И.429.15.00.000 СБ Скребок дополнительный ТП 902-2-362.83 4И.429.15.00.000 Скребок дополнительный. Спецификация ТП 902-2-362.83 4И.429.15.01.000 СБ Вилка ТП 902-2-362.83 4И.429.15.01.000 Вилка. Спецификация ТП 902-2-362.83 4И.429.15.01.001 Скоба ТП 902-2-362.83 4И.429.15.01.002 Вставка ТП 902-2-362.83 4И.429.15.00.001 Ребро ТП 902-2-362.83 4И.429.15.00.002 Лист ТП 902-2-362.83 4И.429.15.00.003 Ребро ТП 902-2-362.83 4И.429.15.00.004 Труба ТП 902-2-362.83 4И.429.16.00.000 СБ Секция цилиндра направляющего ТП 902-2-362.83 4И.429.16.00.000 Секция цилиндра направляющего. Спецификация ТП 902-2-362.83 4И.429.16.00.001 Окантовка ТП 902-2-362.83 4И.429.16.00.002 Угольник ТП 902-2-362.83 4И.429.16.00.003 Ребро ТП 902-2-362.83 4И.429.16.00.004 Обечайка ТП 902-2-362.83 4И.429.17.00.000 СБ Кронштейн ТП 902-2-362.83 4И.429.17.00.000 Кронштейн. Спецификация ТП 902-2-362.83 4И.429.17.00.001 Раскос ТП 902-2-362.83 4И.429.17.00.002 Пластина ТП 902-2-362.83 4И.429.17.00.003 Накладка ТП 902-2-362.83 4И.429.17.00.004 Ребро ТП 902-2-362.83 4И.429.18.00.000 СБ Толкатель ТП 902-2-362.83 4И.429.18.00.000 Толкатель. Спецификация ТП 902-2-362.83 4И.429.18.01.000 СБ Штанга ТП 902-2-362.83 4И.429.18.01.000 Штанга. Спецификация ТП 902-2-362.83 4И.429.18.01.001 Стержень ТП 902-2-362.83 4И.429.18.01.002 Вилка ТП 902-2-362.83 4И.429.18.00.001 Ось ТП 902-2-362.83 4И.429.18.00.002 Каток ТП 902-2-362.83 4И.429.18.00.003 Оседержатель ТП 902-2-362.83 4И.429.19.00.000 СБ Лестница ТП 902-2-362.83 4И.429.19.00.000 Лестница. Спецификация ТП 902-2-362.83 4И.429.19.00.001 Лапа ТП 902-2-362.83 4И.429.19.00.002 Лапа ТП 902-2-362.83 4И.429.19.00.003 Стойка ТП 902-2-362.83 4И.429.20.00.000 СБ Стойка ТП 902-2-362.83 4И.429.20.00.000 Стойка. Спецификация ТП 902-2-362.83 4И.429.20.01.000 СБ Козырек ТП 902-2-362.83 4И.429.20.01.000 Козырек. Спецификация ТП 902-2-362.83 4И.429.20.01.001 Обечайка коническая ТП 902-2-362.83 4И.429.20.01.002 Обечайка цилиндрическая ТП 902-2-362.83 4И.429.20.00.001 Труба ТП 902-2-362.83 4И.429.20.00.002 Палец ТП 902-2-362.83 4И.429.21.00.000 Стойка. Спецификация ТП 902-2-362.83 4И.429.21.00.001 Пластина ТП 902-2-362.83 4И.429.21.00.000 СБ Стойка ТП 902-2-362.83 4И.429.21.00.002 Ножка ТП 902-2-362.83 4И.429.21.00.003 Распорка ТП 902-2-362.83 4И.429.21.00.004 Лапа ТП 902-2-362.83 4И.429.22.00.000 СБ Плитка анкерная ТП 902-2-362.83 4И.429.22.00.000 Плитка анкерная. Спецификация ТП 902-2-362.83 4И.429.22.00.001 Стержень ТП 902-2-362.83 4И.429.22.00.002 Пластина ТП 902-2-362.83 4И.429.23.00.000 Кожух для сменных шестерен. Спецификация ТП 902-2-362.83 4И.429.23.00.000 СБ Кожух для сменных шестерен ТП 902-2-362.83 4И.429.23.00.001 Стенка боковая ТП 902-2-362.83 4И.429.23.00.002 Стенка передняя ТП 902-2-362.83 4И.429.23.00.003 Стенка задняя ТП 902-2-362.83 4И.429.24.00.000 Кожух. Спецификация ТП 902-2-362.83 4И.429.24.00.000 СБ Кожух ТП 902-2-362.83 4И.429.24.00.001 Лист боковой ТП 902-2-362.83 4И.429.24.00.002 Стенка ТП 902-2-362.83 4И.429.25.00.000 СБ Кронштейн ТП 902-2-362.83 4И.429.25.00.000 Кронштейн. Спецификация ТП 902-2-362.83 4И.429.25.00.001 Швеллер ТП 902-2-362.83 4И.429.25.00.002 Угольник ТП 902-2-362.83 4И.429.26.00.000 СБ Вилка ТП 902-2-362.83 4И.429.26.00.000 Вилка. Спецификация ТП 902-2-362.83 4И.429.26.00.001 Скоба ТП 902-2-362.83 4И.429.26.00.002 Пруток ТП 902-2-362.83 4И.429.27.00.000 СБ Плита ТП 902-2-362.83 4И.429.27.00.000 Плита. Спецификация ТП 902-2-362.83 4И.429.28.00.000 СБ Домкрат ТП 902-2-362.83 4И.429.28.00.000 Домкрат. Спецификация ТП 902-2-362.83 4И.429.28.00.001 Плита ТП 902-2-362.83 4И.429.28.00.002 Винт ТП 902-2-362.83 4И.429.28.00.003 Штифт ТП 902-2-362.83 4И.429.29.00.000 СБ Скребок ТП 902-2-362.83 4И.429.29.00.000 Скребок. Спецификация ТП 902-2-362.83 4И.429.29.00.001 Угольник ТП 902-2-362.83 4И.429.29.00.002 Накладка ТП 902-2-362.83 4И.429.29.00.003 Планка ТП 902-2-362.83 4И.429.29.00.004 Щетка ТП 902-2-362.83 4И.429.30.00.000 СБ Штанга ТП 902-2-362.83 4И.429.30.00.000 Штанга. Спецификация ТП 902-2-362.83 4И.429.30.00.001 Винт ТП 902-2-362.83 4И.429.30.00.002 Планка ТП 902-2-362.83 4И.429.31.00.000 СБ Кронштейн ТП 902-2-362.83 4И.429.31.00.000 Кронштейн. Спецификация ТП 902-2-362.83 4И.429.31.00.001 Анкер ТП 902-2-362.83 4И.429.00.00.001 Тяга ТП 902-2-362.83 4И.429.00.00.002 Подкос ТП 902-2-362.83 4И.429.00.00.003 Плита ТП 902-2-362.83 4И.429.00.00.004 Лист средний ТП 902-2-362.83 4И.429.00.00.005 Шпилька ТП 902-2-362.83 4И.429.00.00.006 Шайба ТП 902-2-362.83 4И.429.00.00.007 Угольник ТП 902-2-362.83 4И.429.00.00.008 Поручень ТП 902-2-362.83 4И.429.00.00.009 Перекрытие ТП 902-2-362.83 4И.429.00.00.011 Ось ТП 902-2-362.83 4И.429.00.00.012 Муфта ТП 902-2-362.83 4И.429.00.00.013 Шайба сферическая нижняя ТП 902-2-362.83 4И.429.00.00.014 Шайба сферическая ТП 902-2-362.83 4И.429.00.00.015 Гайка ТП 902-2-362.83 4И.429.00.00.016 Винт подъемный ТП 902-2-362.83 4И.429.00.00.017 Наконечник ТП 902-2-362.83 4И.429.00.00.018 Ребро ТП 902-2-362.83 4И.429.00.00.019 Ось ТП 902-2-362.83 4И.429.00.00.021 Рычаг ТП 902-2-362.83 4И.429.00.00.022 Планка ТП 902-2-362.83 4И.429.00.00.000 ТУ Илоскреб ИПР-18. Технические условия |
| Разработан: | МосводоканалНИИпроект |
| Утверждён: | 17.11.1982 МосводоканалНИИпроект (191) |




































































