Скачать Типовой проект 0901-9-18.1.87 Альбом IV. Строительные изделияДата актуализации: 01.01.2021
|
| Обозначение: | Типовой проект 0901-9-18.1.87 |
| Обозначение англ: | 0901-9-18.1.87 |
| Статус: | не определен законодательством |
| Название рус.: | Альбом IV. Строительные изделия |
| Дата добавления в базу: | 01.09.2013 |
| Дата актуализации: | 01.01.2021 |
| Дата введения: | 16.10.1987 |
| Дата окончания срока действия: | 30.06.2003 |
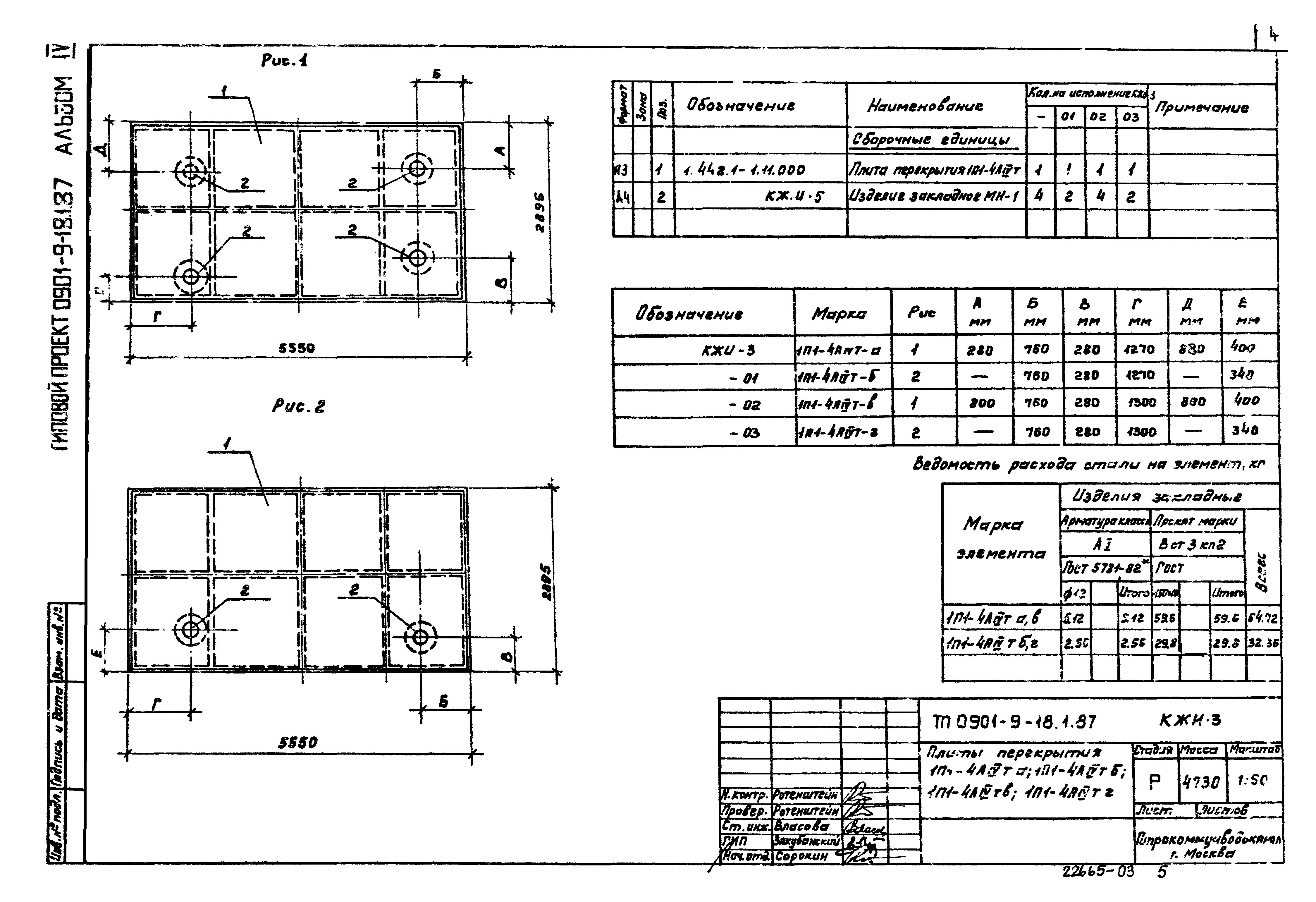
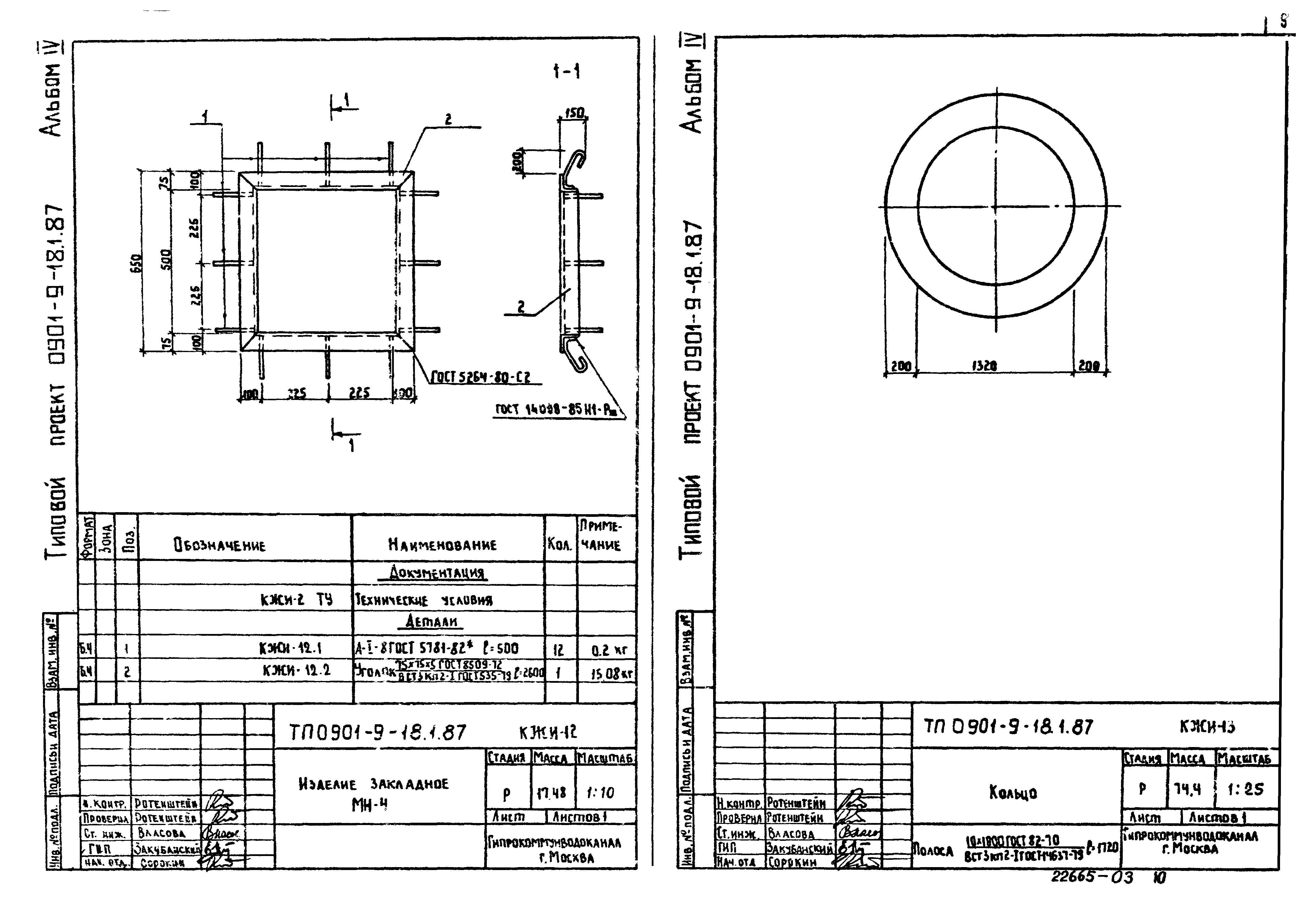
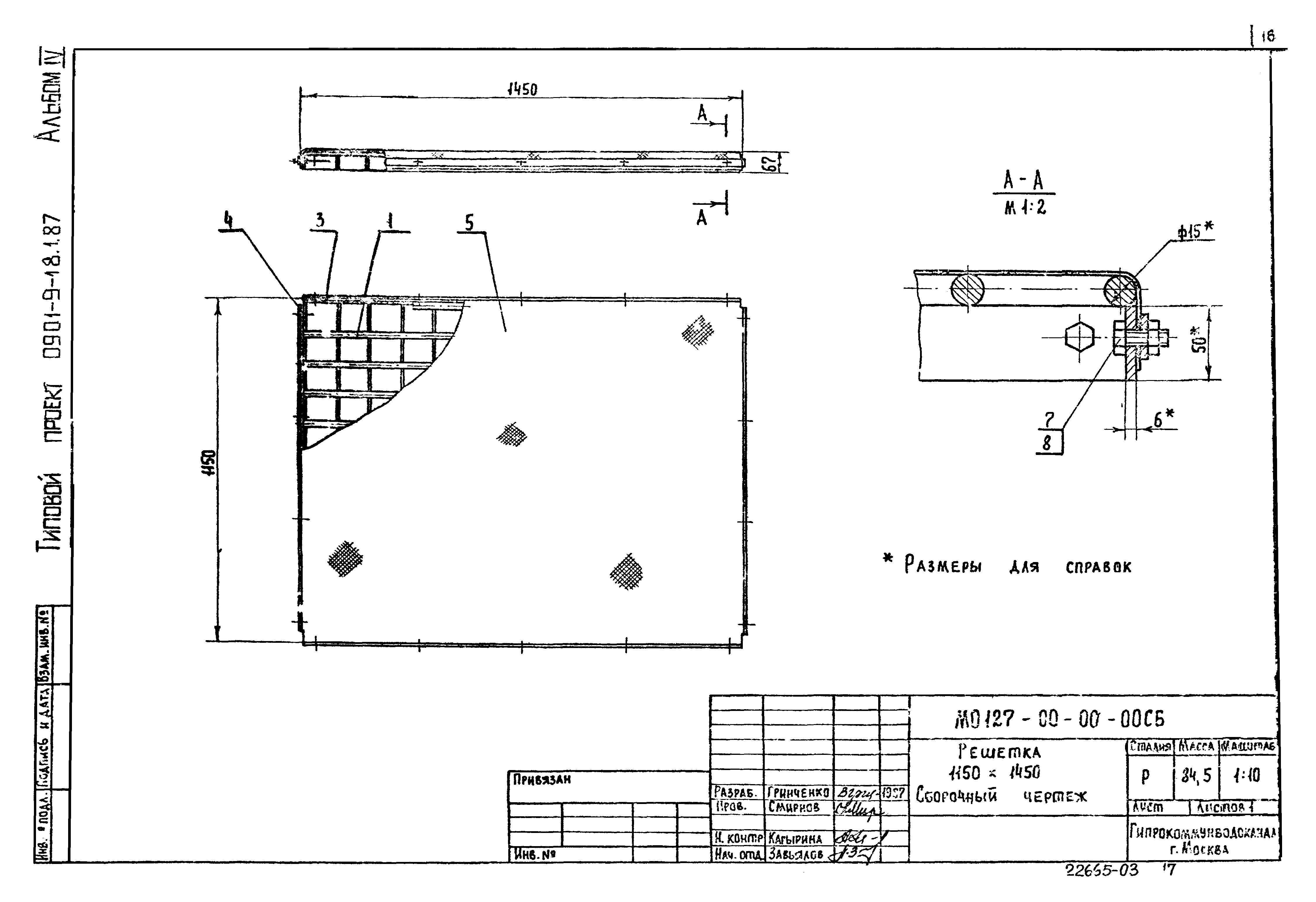
| Оглавление: | ТП 0901-9-18.1.87-КЖИ Изделия марки КЖИ ТП 0901-9-18.1.87-КЖИ1 Содержание альбома ТП 0901-9-18.1.87-КЖИ2 Технические условия ТП 0901-9-18.1.87-КЖИ3 Плита перекрытия 1П1-4АIVТ-а ТП 0901-9-18.1.87-КЖИ3-01 Плита перекрытия 1П1-4АIVТ-б ТП 0901-9-18.1.87-КЖИ3-02 Плита перекрытия 1П1-4АIVТ-в ТП 0901-9-18.1.87-КЖИ3-03 Плита перекрытия 1П1-4АIVТ-г ТП 0901-9-18.1.87-КЖИ4 Плита перекрытия 1П3-4АIVТ-а ТП 0901-9-18.1.87-КЖИ5 Изделие закладное МН-1 ТП 0901-9-18.1.87-КЖИ6 Сетка арматурная С-1 ТП 0901-9-18.1.87-КЖИ7 Решетка Р-1 ТП 0901-9-18.1.87-КЖИ8 Каркас пространственный КП-1 ТП 0901-9-18.1.87-КЖИ9 Каркас плоский КР-1 ТП 0901-9-18.1.87-КЖИ10 Изделие закладное МН-2 ТП 0901-9-18.1.87-КЖИ11 Изделие закладное МН-3 ТП 0901-9-18.1.87-КЖИ12 Изделие закладное МН-4 ТП 0901-9-18.1.87-КЖИ13 Кольцо ТП 0901-9-18.1.87-КЖИ14 Изделие закладное МН-5 ТП 0901-9-18.1.87-КЖИ15 Кольцо ТП 0901-9-18.1.87-КЖИ16 Деревянная крышка ø1600 ТП 0901-9-18.1.87-КЖИ17 Деревянная крышка 1600х1400 ТП 0901-9-18.1.87-КЖИ18 Кольцо стеновое КЦ15-6"А" ТП 0901-9-18.1.87-МО Изделия марки МО ТП 0901-9-18.1.87-МО124-00-00-00 СБ Решетка ø1410. Сборочный чертеж ТП 0901-9-18.1.87-МО124-00-00-00 Решетка ø1410 ТП 0901-9-18.1.87-МО124-00-00-01 Хомут ТП 0901-9-18.1.87-МО124-01-00-00 Решетка ТП 0901-9-18.1.87-МО127-00-00-00 СБ Решетка 1150х1450. Сборочный чертеж ТП 0901-9-18.1.87-МО127-00-00-00 Решетка 1150х1450 ТП 0901-9-18.1.87-МО127-00-00-01 Планка ТП 0901-9-18.1.87-МО127-01-00-00 Решетка ТП 0901-9-18.1.87-МО127-00-00-02 Планка ТП 0901-9-18.1.87-МО127-01-00-00 СБ Решетка. Сборочный чертеж |
| Разработан: | Гипрокоммунводоканал Минжилкомхоза РСФСР |
| Утверждён: | 16.10.1987 Минжилкомхоз РСФСР (Russian Federation Minzhilkomkhoz 12-ТД) |




















