Скачать Типовой проект 902-2-365.83 Альбом IX. Нестандартизированное оборудование. Устройство для удаления плавающих веществ (из ТП 902-2-363.83)Дата актуализации: 01.01.2021
|
| Обозначение: | Типовой проект 902-2-365.83 |
| Обозначение англ: | 902-2-365.83 |
| Статус: | не действует |
| Название рус.: | Альбом IX. Нестандартизированное оборудование. Устройство для удаления плавающих веществ (из ТП 902-2-363.83) |
| Дата добавления в базу: | 01.09.2013 |
| Дата актуализации: | 01.01.2021 |
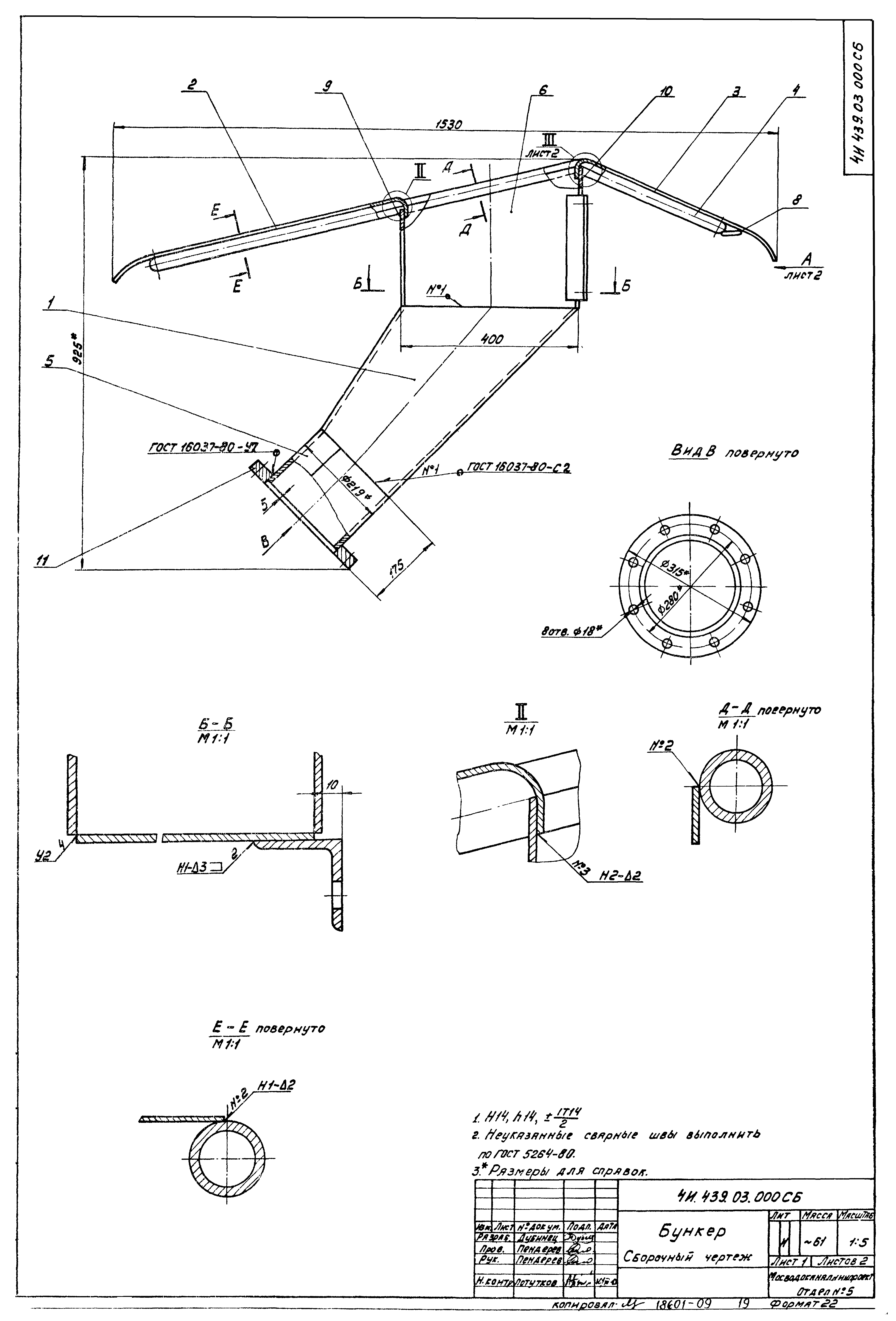
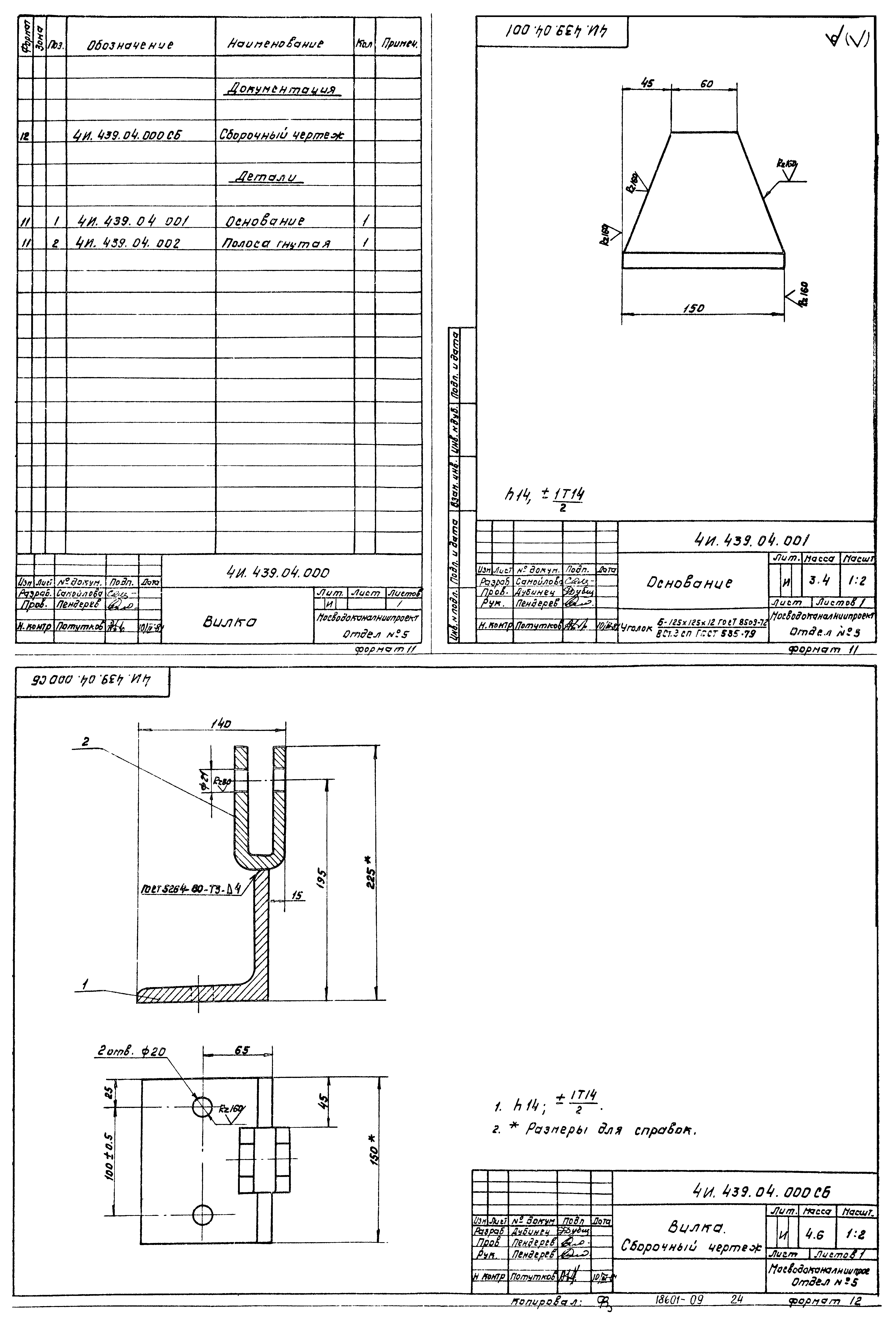
| Оглавление: | ТП 902-2-363.83 Титульный лист ТП 902-2-363.83 Содержание альбома. Лист 1 ТП 902-2-363.83 Содержание альбома. Лист 2 ТП 902-2-363.83 4И.439.00.001 Ограничитель ТП 902-2-363.83 4И.439.00.000 ВП Устройство для удаления плавающих веществ УПВ-24. Ведомость покупных изделий ТП 902-2-363.83 4И.439.00.000 Устройство для удаления плавающих веществ УПВ-24. Спецификация. Лист 1-2 ТП 902-2-363.83 4И.439.00.000 Устройство для удаления плавающих веществ УПВ-24. Спецификация. Лист 3-5 ТП 902-2-363.83 4И.439.00.007 Сухарь ТП 902-2-363.83 4И.439.00.000 СБ Устройство для удаления плавающих веществ УПВ-24. Лист 1 ТП 902-2-363.83 4И.439.00.000 СБ Устройство для удаления плавающих веществ УПВ-24. Лист 2 ТП 902-2-363.83 4И.439.00.000 СБ Устройство для удаления плавающих веществ УПВ-24. Лист 3 ТП 902-2-363.83 4И.439.00.000 СБ Устройство для удаления плавающих веществ УПВ-24. Лист 4 ТП 902-2-363.83 4И.439.00.000 СБ Устройство для удаления плавающих веществ УПВ-24. Лист 5 ТП 902-2-363.83 4И.439.00.000 СБ Устройство для удаления плавающих веществ УПВ-24. Лист 6 ТП 902-2-363.83 4И.439.00.000 СБ Устройство для удаления плавающих веществ УПВ-24. Лист 7 ТП 902-2-363.83 4И.439.01.000 СБ Кронштейн ТП 902-2-363.83 4И.439.01.000 Кронштейн. Спецификация ТП 902-2-363.83 4И.439.01.100 Раструб. Спецификация ТП 902-2-363.83 4И.439.01.100 СБ Раструб ТП 902-2-363.83 4И.439.01.101 Фланец ТП 902-2-363.83 4И.439.01.102 Кольцо ТП 902-2-363.83 4И.439.01.001 Пластина ТП 902-2-363.83 4И.439.01.002 Ребро ТП 902-2-363.83 4И.439.01.003 Ребро ТП 902-2-363.83 4И.439.01.004 Патрубок ТП 902-2-363.83 4И.439.01.005 Патрубок ТП 902-2-363.83 4И.439.02.000 Отвод. Спецификация ТП 902-2-363.83 4И.439.02.000 СБ Отвод ТП 902-2-363.83 4И.439.02.100 Полусекция ТП 902-2-363.83 4И.439.02.101 Втулка ТП 902-2-363.83 4И.439.02.102 Полусекция ТП 902-2-363.83 4И.439.02.001 Секция ТП 902-2-363.83 4И.439.02.002 Полусекция ТП 902-2-363.83 4И.439.03.000 СБ Бункер. Лист 1 ТП 902-2-363.83 4И.439.03.000 СБ Бункер. Лист 2 ТП 902-2-363.83 4И.439.03.000 Бункер. Спецификация. Лист 1-2 ТП 902-2-363.83 4И.439.03.001 Переход косой ТП 902-2-363.83 4И.439.03.002 Лист направляющий ТП 902-2-363.83 4И.439.03.003 Лист направляющий ТП 902-2-363.83 4И.439.03.004 Окантовка ТП 902-2-363.83 4И.439.03.005 Патрубок ТП 902-2-363.83 4И.439.03.006 Стенка боковая ТП 902-2-363.83 4И.439.03.007 Угольник ТП 902-2-363.83 4И.439.03.008 Ушко ТП 902-2-363.83 4И.439.04.000 Вилка. Спецификация ТП 902-2-363.83 4И.439.04.001 Основание ТП 902-2-363.83 4И.439.04.000 СБ Вилка ТП 902-2-363.83 4И.439.04.002 Полоса гнутая ТП 902-2-363.83 4И.439.05.000 Подвеска. Спецификация ТП 902-2-363.83 4И.439.05.000 СБ Подвеска ТП 902-2-363.83 4И.439.05.001 Ушко ТП 902-2-363.83 4И.439.06.001 Подвеска ТП 902-2-363.83 4И.439.06.000 Скребок полупогруженный. Спецификация. Лист 1-2 ТП 902-2-363.83 4И.439.06.000 СБ Скребок полупогруженный. Спецификация ТП 902-2-363.83 4И.439.06.002 Полоса ТП 902-2-363.83 4И.439.06.003 Полоса ТП 902-2-363.83 4И.439.06.004 Фартук ТП 902-2-363.83 4И.439.06.005 Угольник ТП 902-2-363.83 4И.439.07.000 Рычаг. Спецификация ТП 902-2-363.83 4И.439.07.001 Угольник ТП 902-2-363.83 4И.439.07.000 СБ Рычаг ТП 902-2-363.83 4И.439.07.002 Ушко ТП 902-2-363.83 4И.439.07.003 Накладка ТП 902-2-363.83 4И.439.08.000 Штанга. Спецификация ТП 902-2-363.83 4И.439.08.001 Гайка ходовая ТП 902-2-363.83 4И.439.08.000 СБ Штанга ТП 902-2-363.83 4И.439.08.002 Шпиндель ТП 902-2-363.83 4И.439.08.003 Ушко ТП 902-2-363.83 4И.439.09.000 Ось ТП 902-2-363.83 4И.439.09.001 Пруток ТП 902-2-363.83 4И.439.10.000 Кулачок. Спецификация ТП 902-2-363.83 4И.439.10.000 СБ Кулачок ТП 902-2-363.83 4И.439.10.001 Пластина ТП 902-2-363.83 4И.439.11.000 Поплавок. Спецификация ТП 902-2-363.83 4И.439.11.001 Валик ТП 902-2-363.83 4И.439.11.000 СБ Поплавок ТП 902-2-363.83 4И.439.11.002 Стенка торцевая ТП 902-2-363.83 4И.439.11.003 Бобышка ТП 902-2-363.83 4И.439.11.004 Стенка продольная ТП 902-2-363.83 4И.439.12.000 СБ Скребок качающийся ТП 902-2-363.83 4И.439.12.000 Скребок качающийся. Спецификация ТП 902-2-363.83 4И.439.12.001 Лист верхний ТП 902-2-363.83 4И.439.12.002 Угольник ТП 902-2-363.83 4И.439.12.003 Фартук ТП 902-2-363.83 4И.439.12.004 Стенка вертикальная ТП 902-2-363.83 4И.439.12.005 Пластина ТП 902-2-363.83 4И.439.13.000 Перегородка. Спецификация ТП 902-2-363.83 4И.439.13.000 СБ Перегородка ТП 902-2-363.83 4И.439.13.001 Лист ТП 902-2-363.83 4И.439.13.002 Угольник ТП 902-2-363.83 4И.439.14.000 Кронштейн. Спецификация ТП 902-2-363.83 4И.439.14.000 СБ Кронштейн ТП 902-2-363.83 4И.439.14.001 Основание ТП 902-2-363.83 4И.439.14.002 Щека ТП 902-2-363.83 4И.439.00.003 Пластина гнутая ТП 902-2-363.83 4И.439.00.004 Палец ТП 902-2-363.83 4И.439.00.005 Кольцо установочное ТП 902-2-363.83 4И.439.00.006 Крючок ТП 902-2-363.83 4И.439.00.007 Петля ТП 902-2-363.83 4И.439.00.008 Ушко ТП 902-2-363.83 4И.439.00.009 Фланец накидной ТП 902-2-363.83 4И.439.00.011 Прокладка ТП 902-2-363.83 4И.439.00.011-01 Прокладка ТП 902-2-363.83 4И.439.00.012 Ось ТП 902-2-363.83 4И.439.00.012-01 Ось ТП 902-2-363.83 4И.439.00.012-02 Ось ТП 902-2-363.83 4И.439.00.013 Противовес ТП 902-2-363.83 4И.439.00.014 Ушко |
| Разработан: | МосводоканалНИИпроект |
| Утверждён: | 14.12.1982 МосводоканалНИИпроект (214) |











































