Скачать Типовой проект 414-1-42.89 Альбом 2. Архитектурные решения. Конструкции железобетонные. Конструкции металлические. Технологические решенияДата актуализации: 01.01.2021
|
| Обозначение: | Типовой проект 414-1-42.89 |
| Обозначение англ: | 414-1-42.89 |
| Статус: | не определен законодательством |
| Название рус.: | Альбом 2. Архитектурные решения. Конструкции железобетонные. Конструкции металлические. Технологические решения |
| Дата добавления в базу: | 01.09.2013 |
| Дата актуализации: | 01.01.2021 |
| Дата введения: | 01.07.1989 |
| Дата окончания срока действия: | 30.06.2003 |
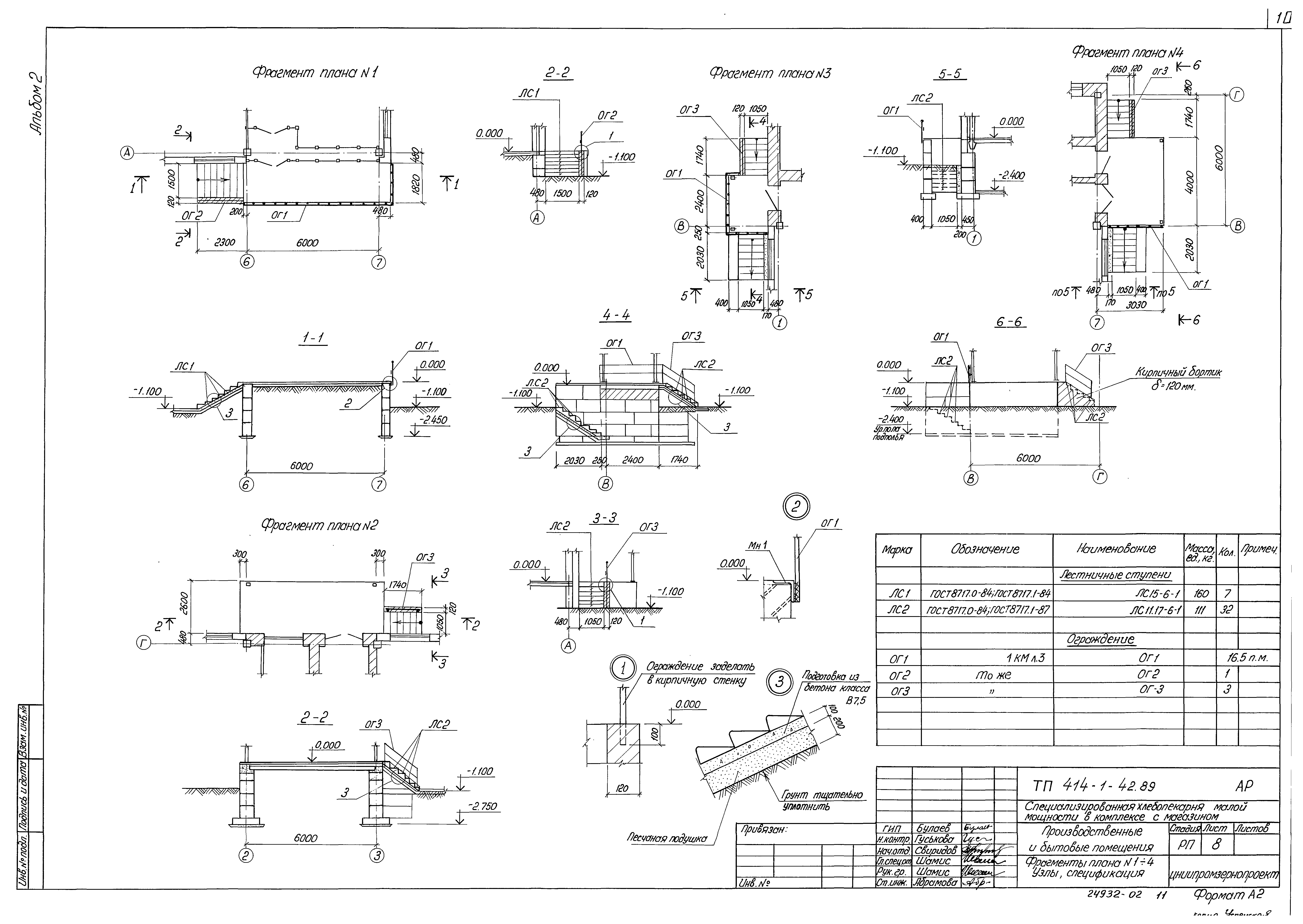
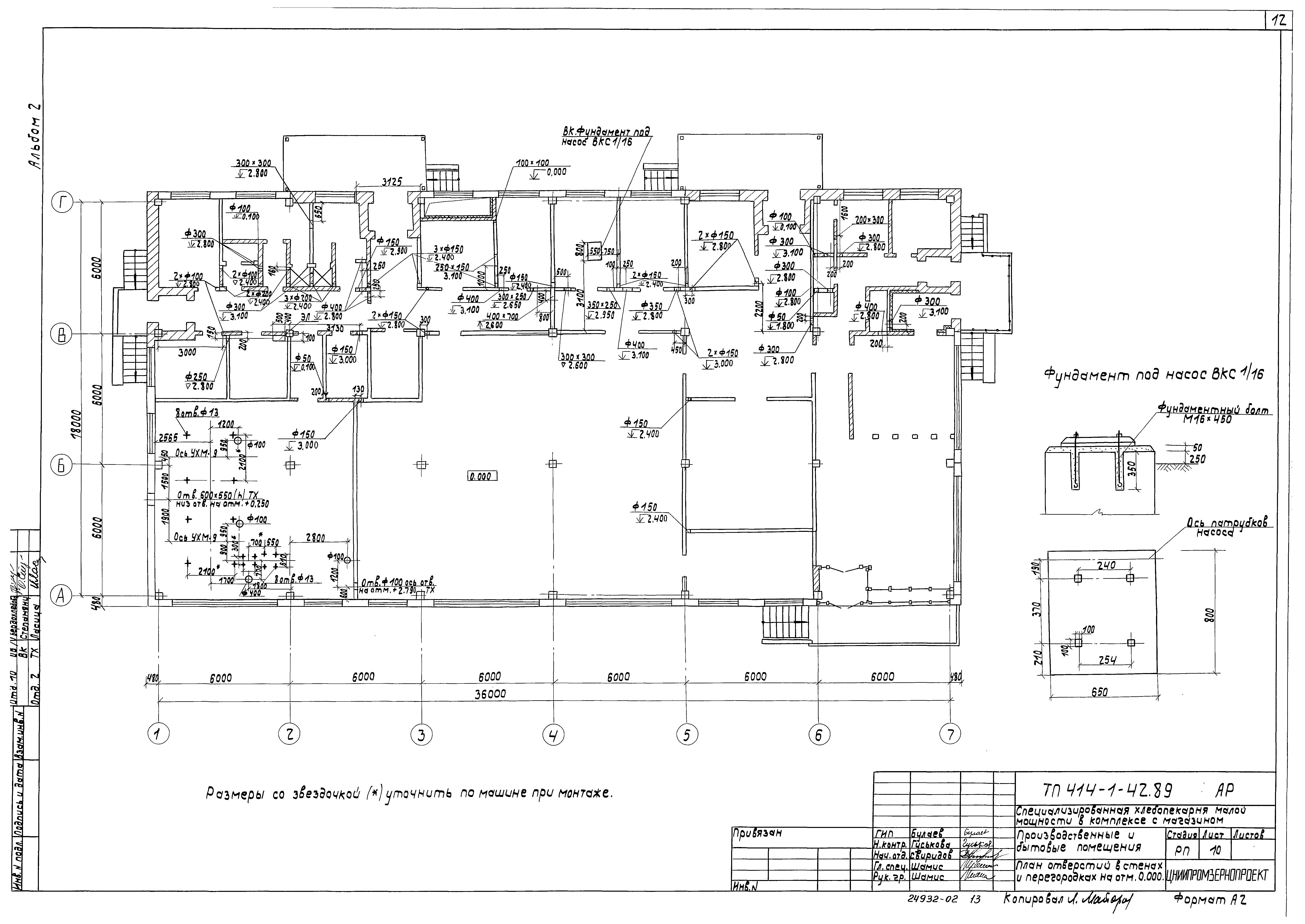
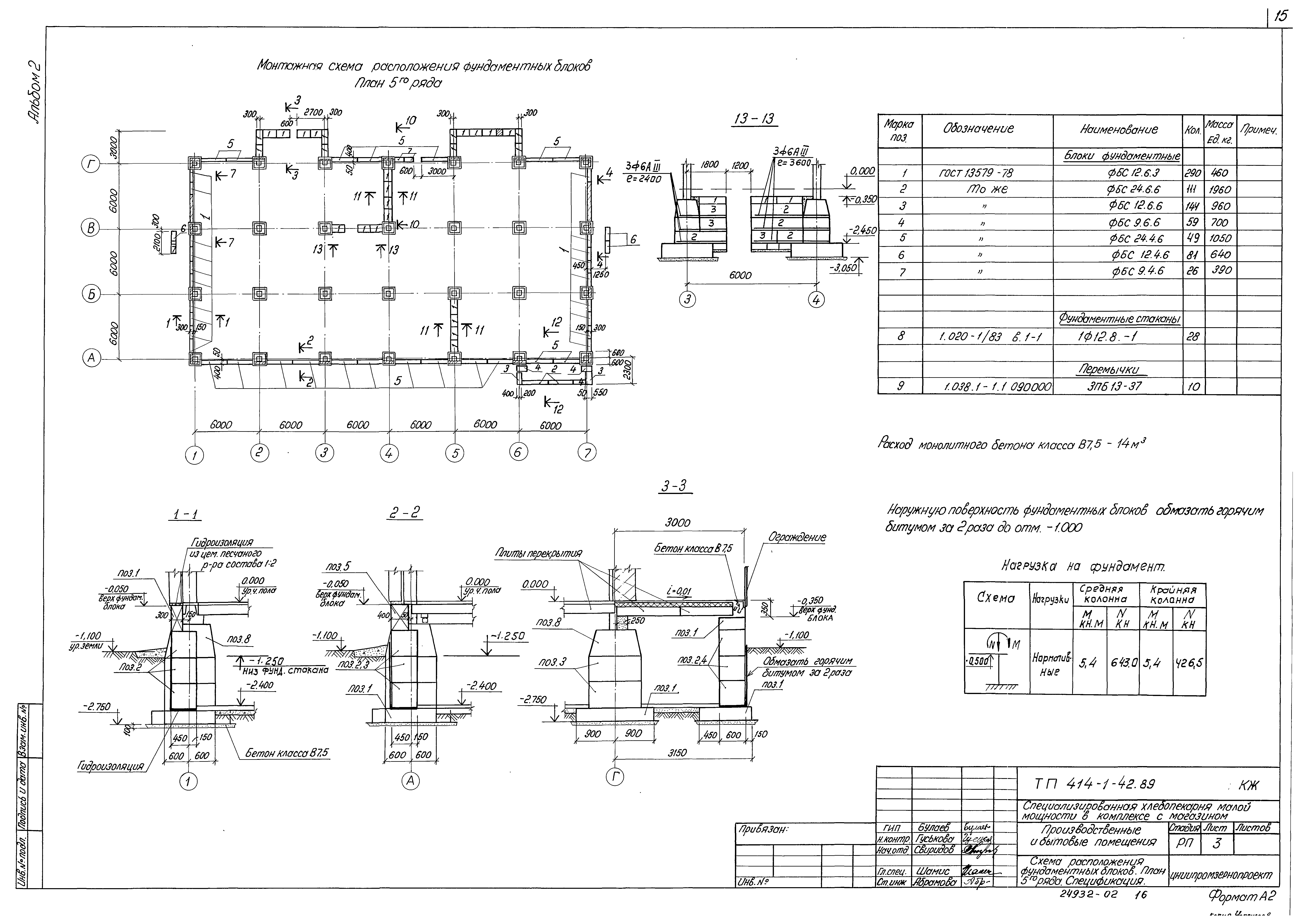
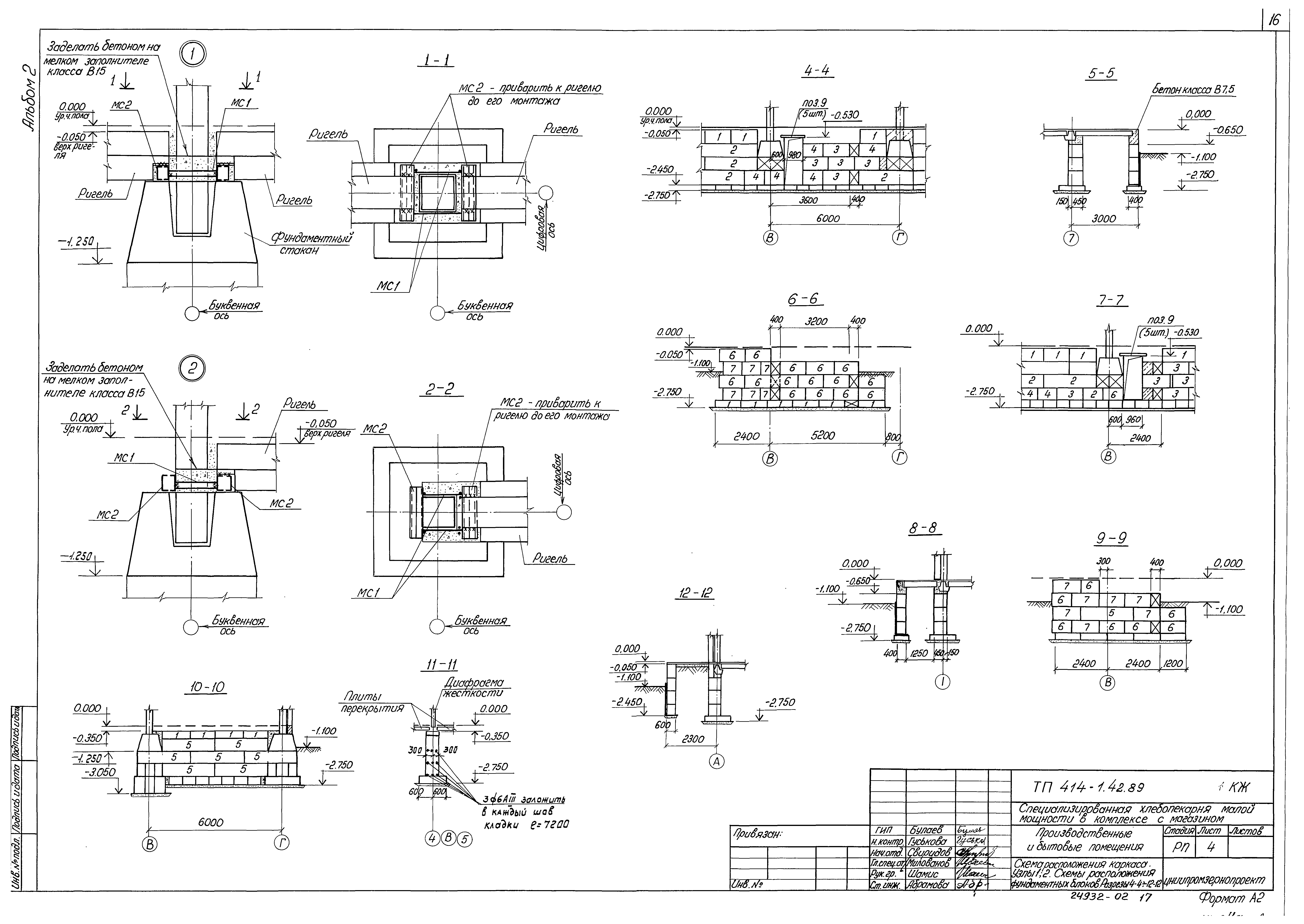
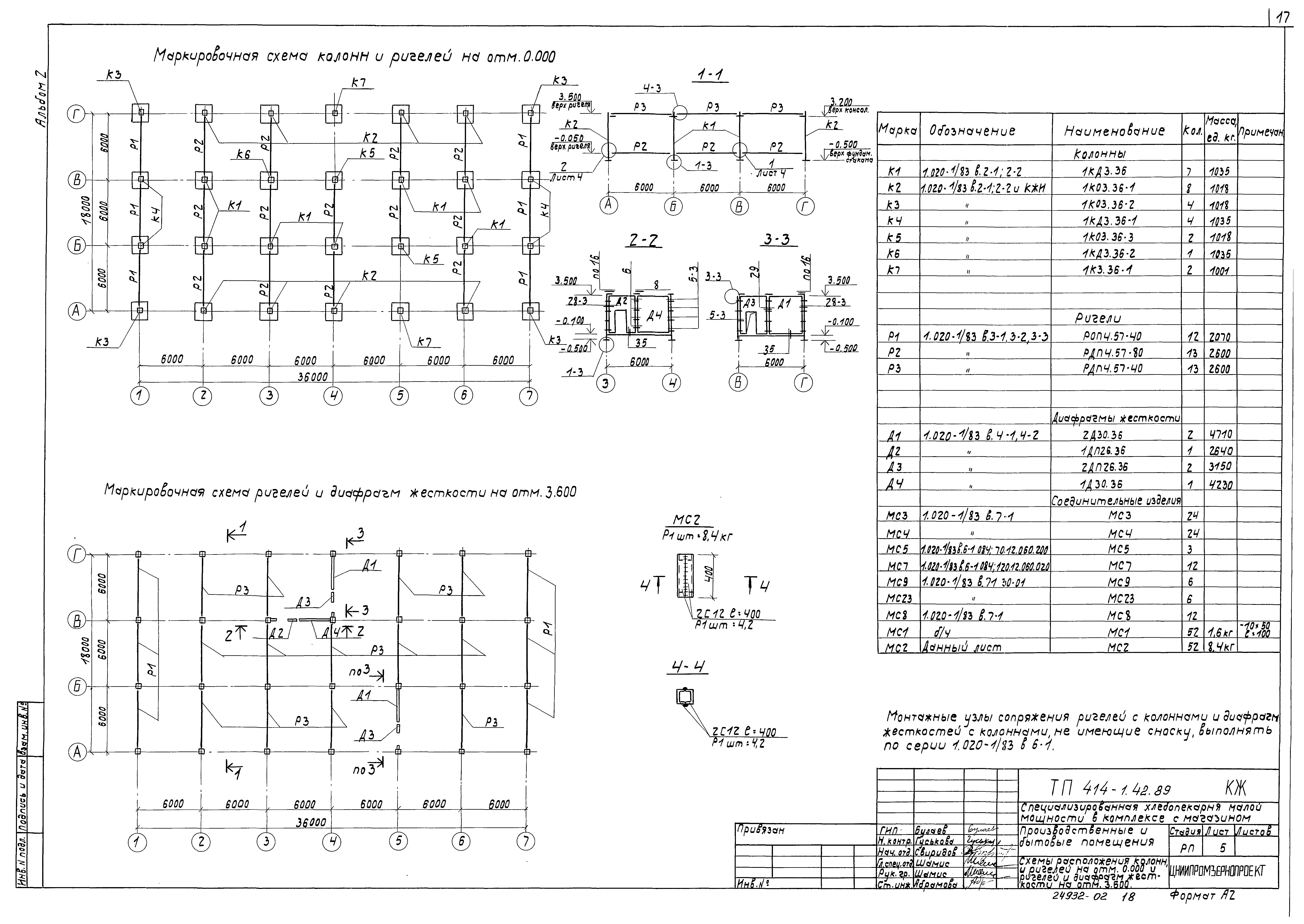
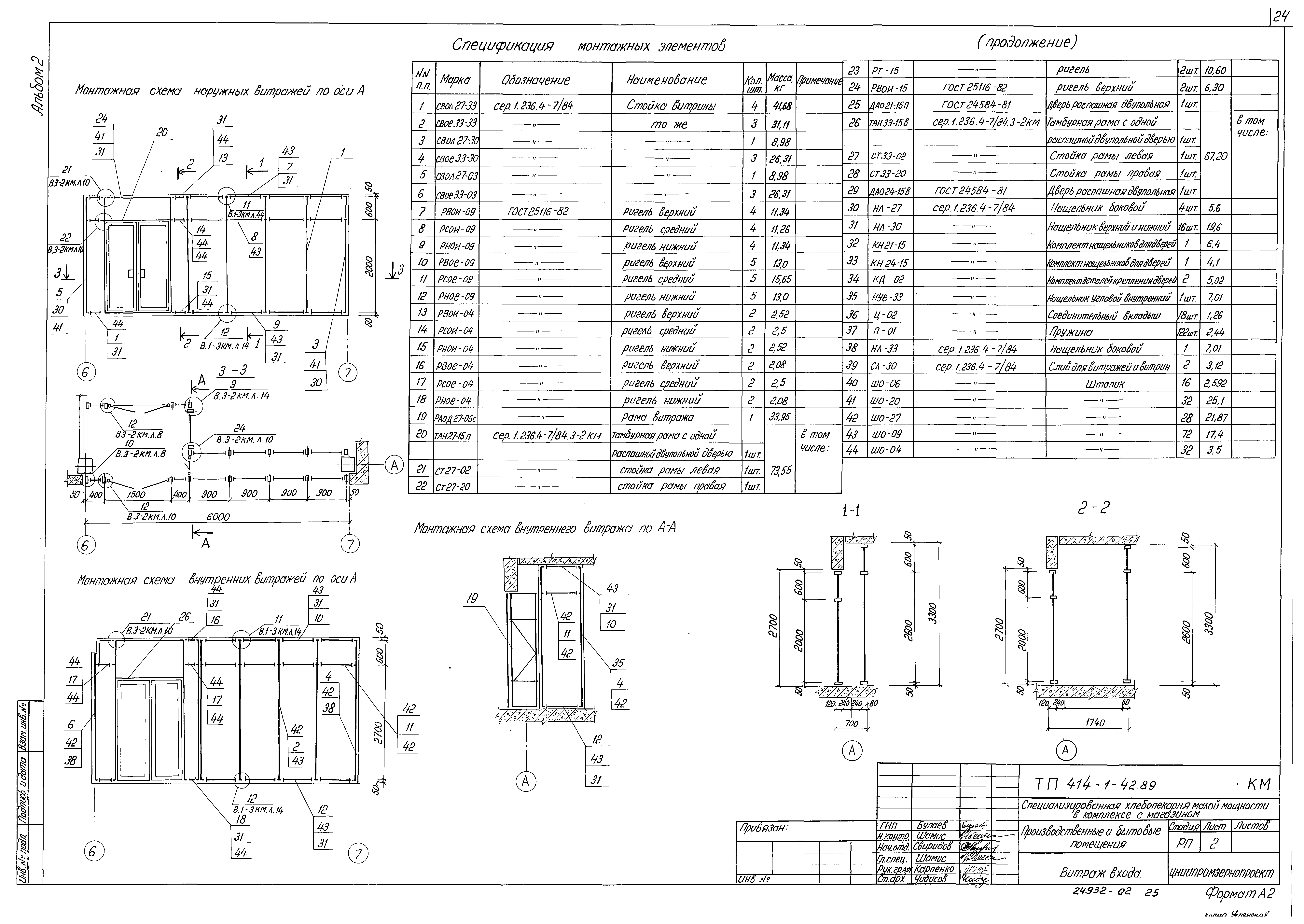
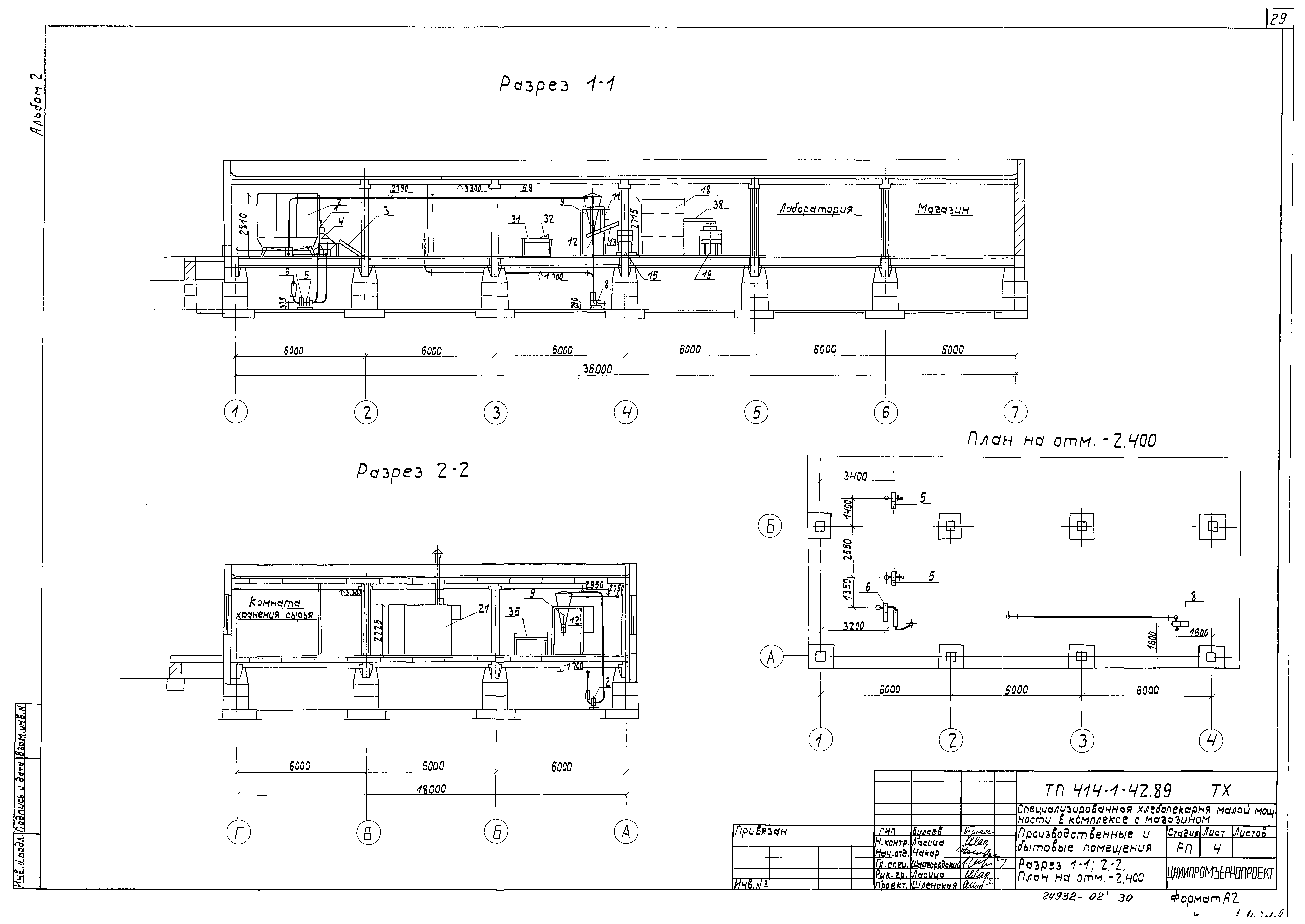
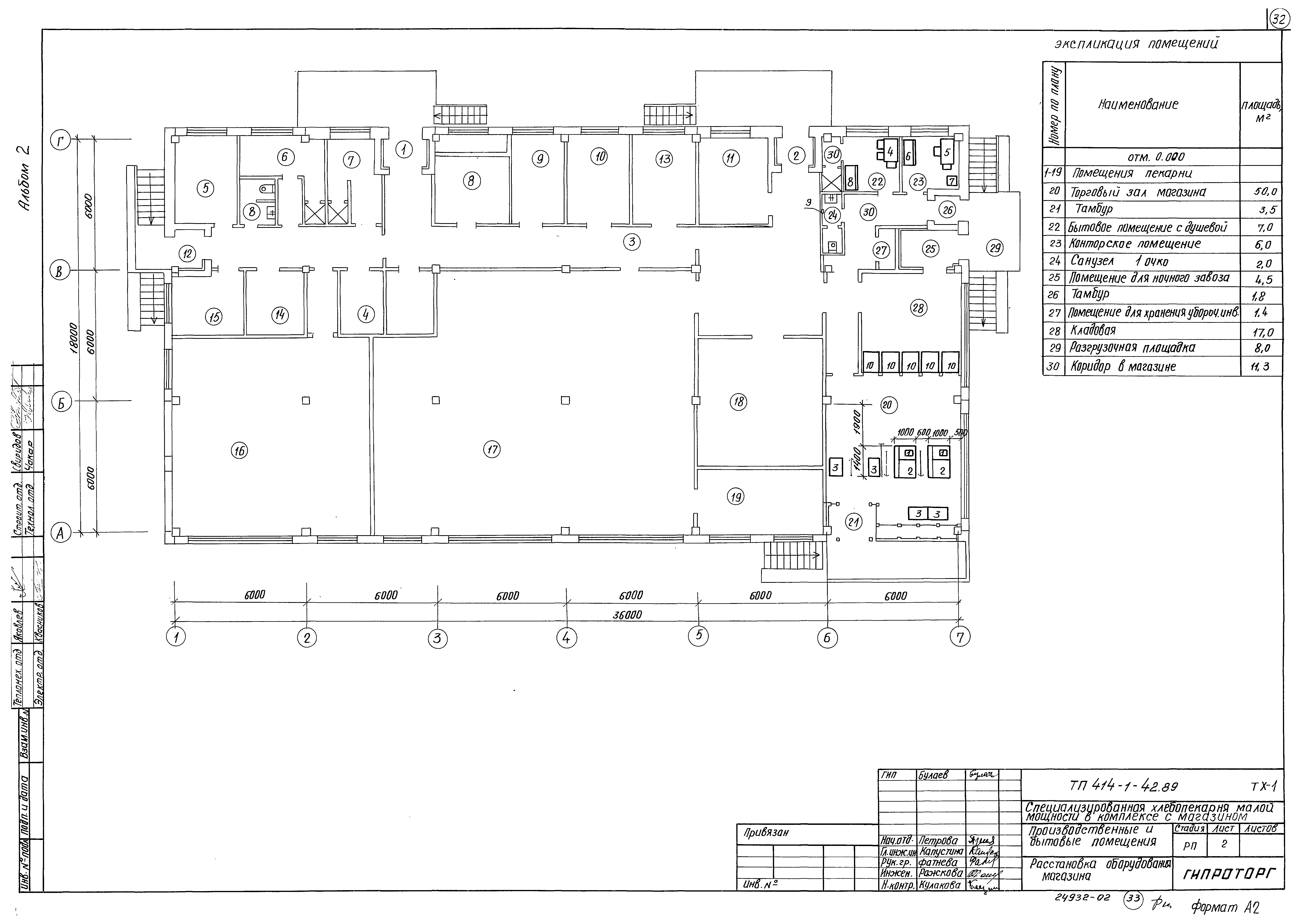
| Оглавление: | ТП 414-1-42.89 Содержание альбома ТП 414-1-42.89-АР Основной комплект чертежей марки АР ТП 414-1-42.89-АР-1 Общие данные (начало) ТП 414-1-42.89-АР-2 Общие данные (окончание) ТП 414-1-42.89-АР-3 Фасады 1-7,7-1,А-Г,Г-А ТП 414-1-42.89-АР-4 План на отм. -2.400 ТП 414-1-42.89-АР-5 План на отм. 0.000 ТП 414-1-42.89-АР-6 Разрез 1-1;2-2 ТП 414-1-42.89-АР-7 Спецификация элементов заполнения проемов. Планы полов. Экспликация полов. Ведомость проемов ТП 414-1-42.89-АР-8 Фрагменты плана № 1-4. Узлы. Спецификация ТП 414-1-42.89-АР-9 Панели-перегородки. План, виды, узлы. Спецификация. Узлы крепления кирпичных стен ТП 414-1-42.89-АР-10 План отверстий в стенах и перегородках ТП 414-1-42.89-КЖ Основной комплект чертежей марки КЖ ТП 414-1-42.89-КЖ-1 Общие данные ТП 414-1-42.89-КЖ-2 Схемы расположения фундаментных блоков. Планы 1го ряда-4го ряда ТП 414-1-42.89-КЖ-3 Схема расположения фундаментных блоков. План 5го ряда. Спецификация ТП 414-1-42.89-КЖ-4 Схема расположения каркаса. Узлы 1,2. Схемы расположения фундаментных блоков. Разрезы 4-4÷12-12 ТП 414-1-42.89-КЖ-5 Схемы расположения колонн и ригелей на отм. 0.000 и ригелей и диафрагм жесткости на отм. 3.600 ТП 414-1-42.89-КЖ-6 Схема расположения плит перекрытия на отм. 0.000 ТП 414-1-42.89-КЖ-7 Схема расположения плит перекрытия на отм. 3.600 ТП 414-1-42.89-КЖ-8 Схемы расположения плит перекрытия и покрытия. Спецификация ТП 414-1-42.89-КЖ-9 Схемы расположения стеновых панелей по осям А,Г,7,1. Спецификация ТП 414-1-42.89-КЖИ Изделия железобетонные ТП 414-1-42.89-КЖИ-01.00 Колонны: 1КД3.36-1;1КД3.36-2;1КО3.36-1;1КО3.36-2;1КО3.36-3;1К3.36-1. Спецификация ТП 414-1-42.89-КЖИ-01.00 СБ Колонны: 1КД3.36-1;1КД3.36-2;1КО3.36-1;1КО3.36-2;1КО3.36-3;1К3.36-1. Сборочный чертеж ТП 414-1-42.89-КМ Основной комплект чертежей марки КМ ТП 414-1-42.89-КМ-1 Общие данные ТП 414-1-42.89-КМ-2 Витраж входа ТП 414-1-42.89-КМ-3 Навесы над рампами. Ограждения. Ведомость элементов ТП 414-1-42.89-ТХ Основной комплект чертежей марки ТХ ТП 414-1-42.89-ТХ-1 Общие данные ТП 414-1-42.89-ТХ-2 Схема технологического процесса ТП 414-1-42.89-ТХ-3 План на отм. 0.00 ТП 414-1-42.89-ТХ-4 Разрез 1-1. Разрез 2-2 ТП 414-1-42.89-ТХ-5 Экспликация оборудования ТП 414-1-42.89-ТХ-1 Основной комплект чертежей марки ТХ-1 ТП 414-1-42.89-ТХ-1-1 Общие данные ТП 414-1-42.89-ТХ-1-2 Расстановка оборудования магазина |
| Разработан: | ЦНИИпромзернопроект |
| Утверждён: | 17.02.1989 Минхлебопродуктов СССР (USSR Minkhleboproduktov 40) |
































