Скачать Типовой проект 414-1-42.89 Альбом 4. Нестандартизированное оборудованиеДата актуализации: 01.01.2021
|
| Обозначение: | Типовой проект 414-1-42.89 |
| Обозначение англ: | 414-1-42.89 |
| Статус: | не определен законодательством |
| Название рус.: | Альбом 4. Нестандартизированное оборудование |
| Дата добавления в базу: | 01.09.2013 |
| Дата актуализации: | 01.01.2021 |
| Дата введения: | 01.07.1989 |
| Дата окончания срока действия: | 30.06.2003 |
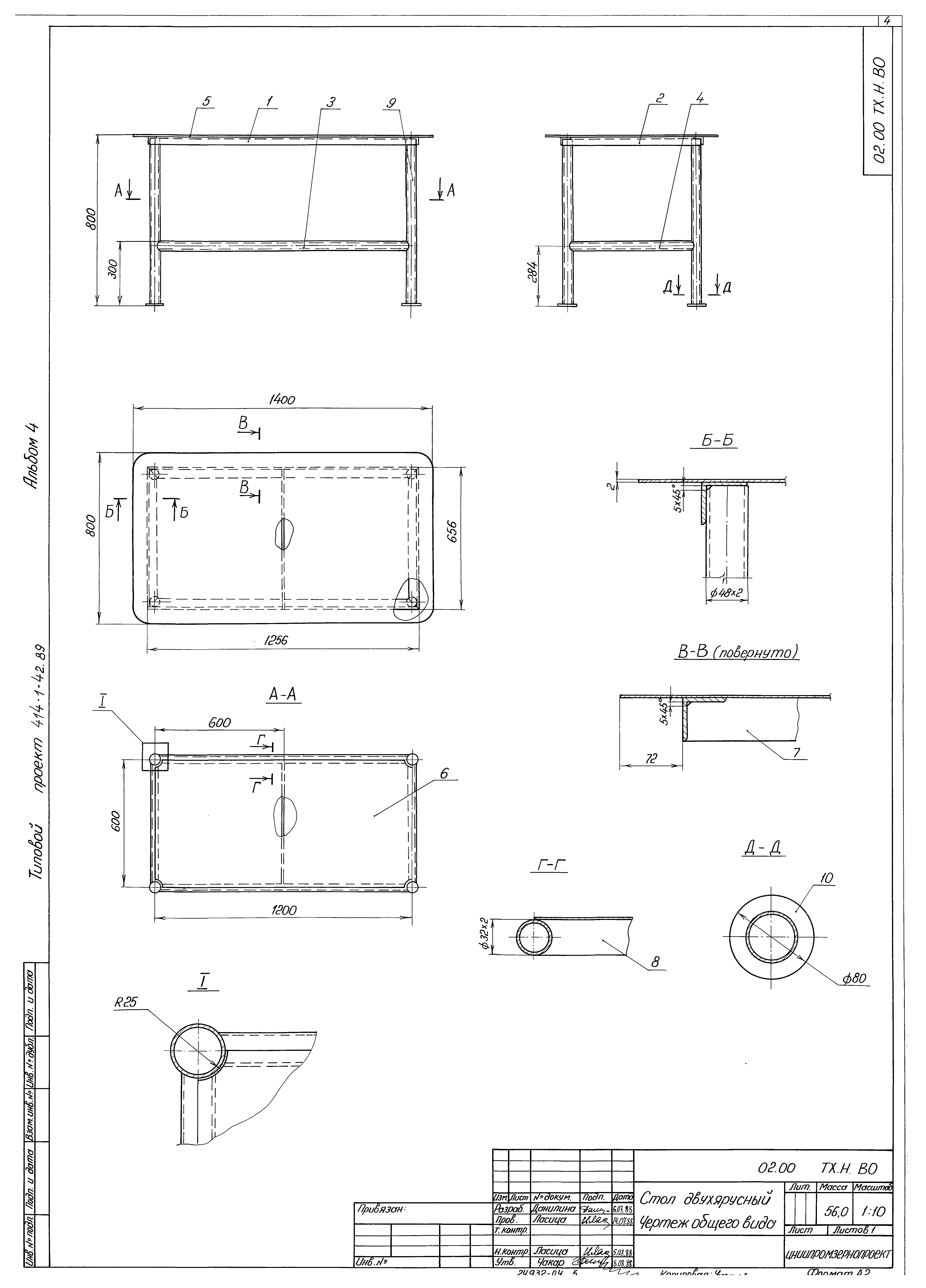
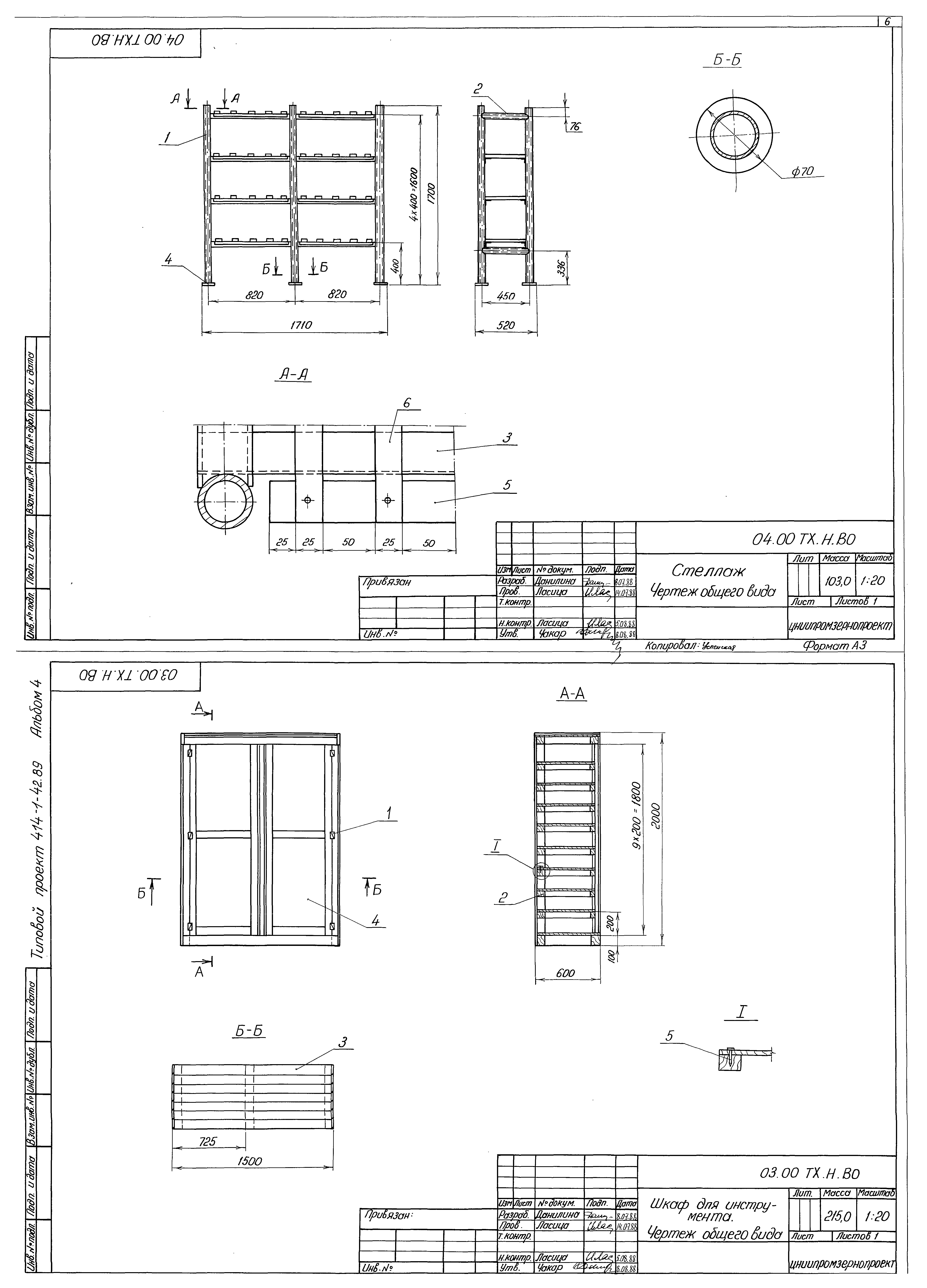
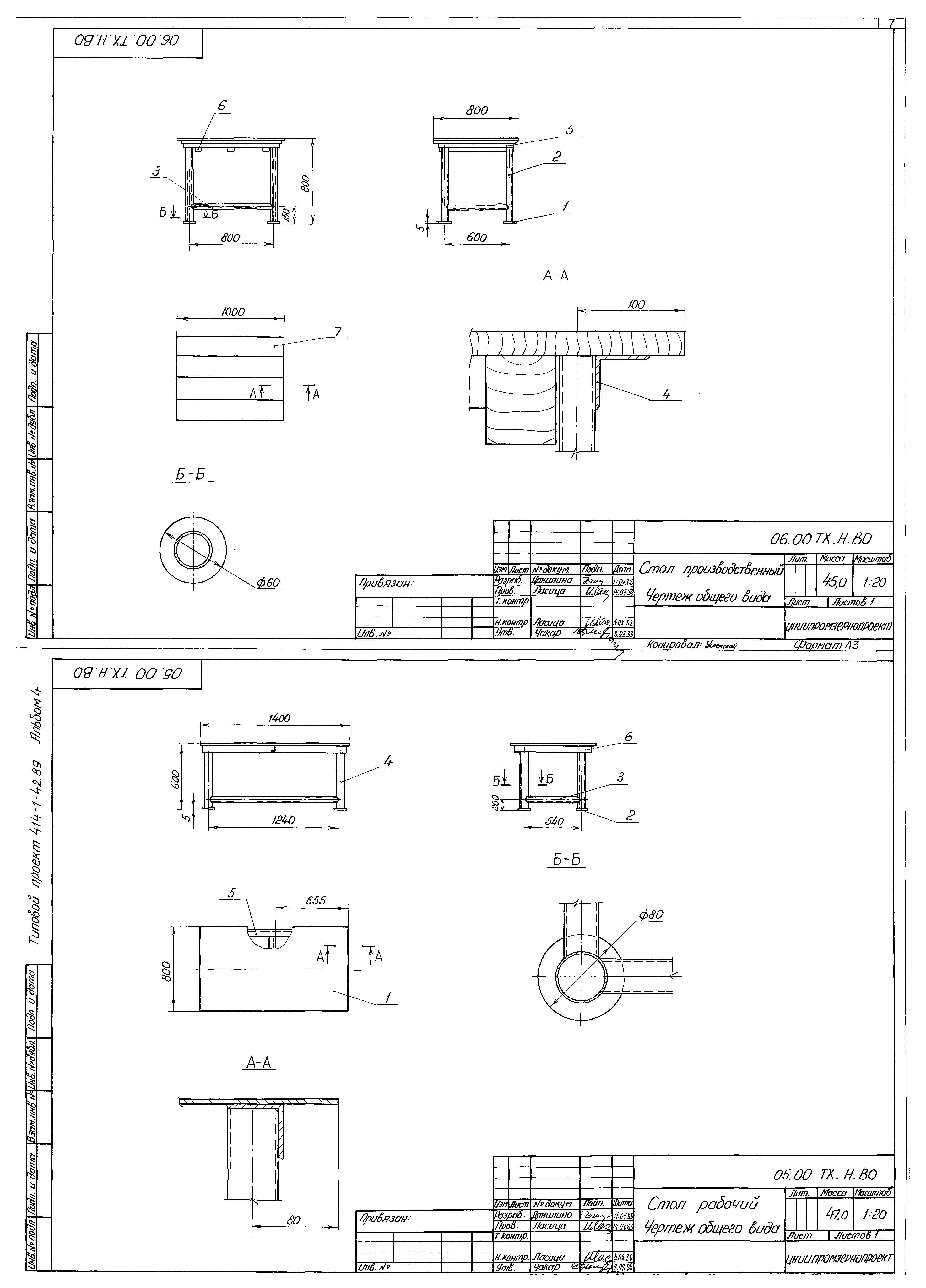
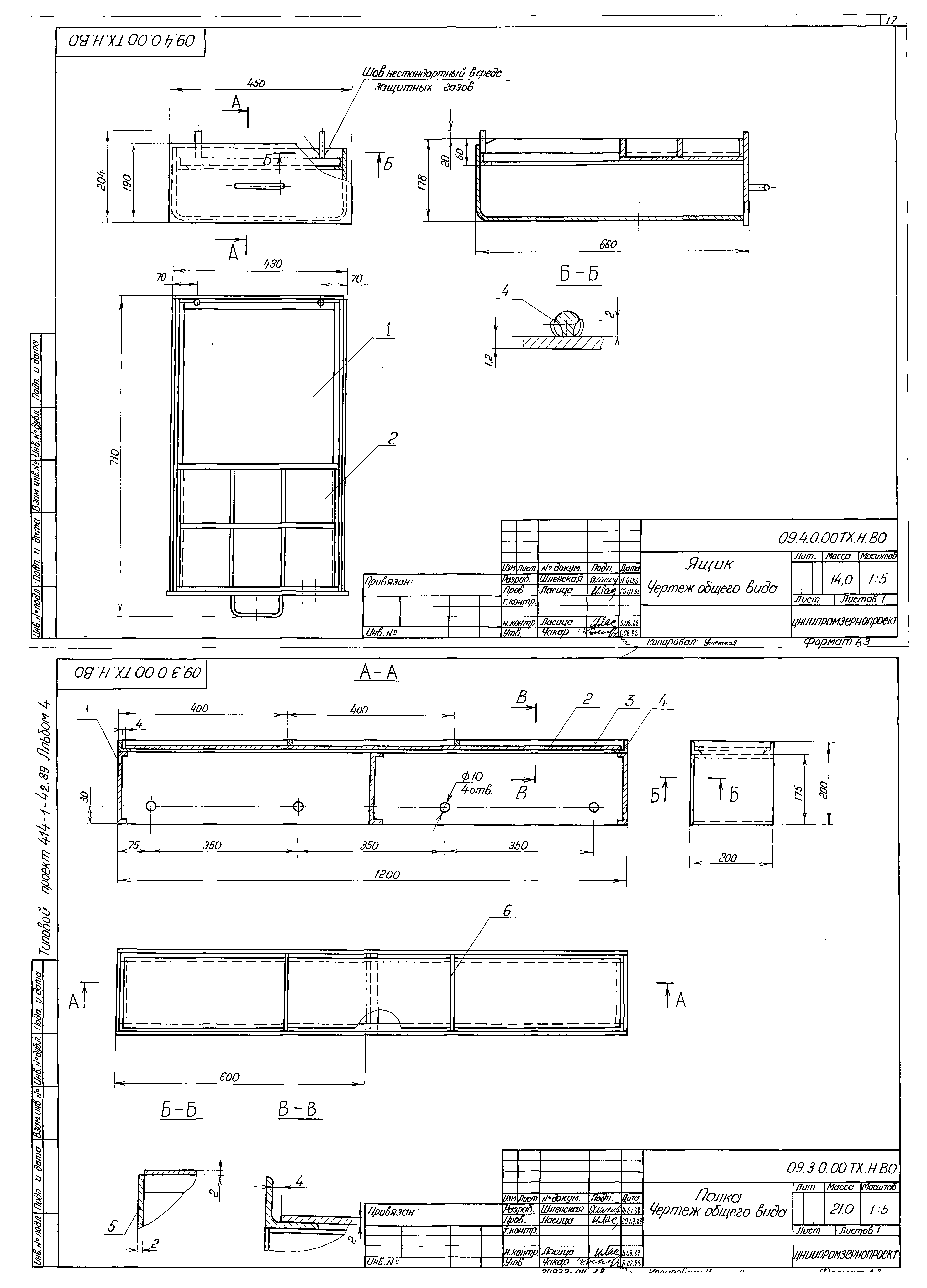
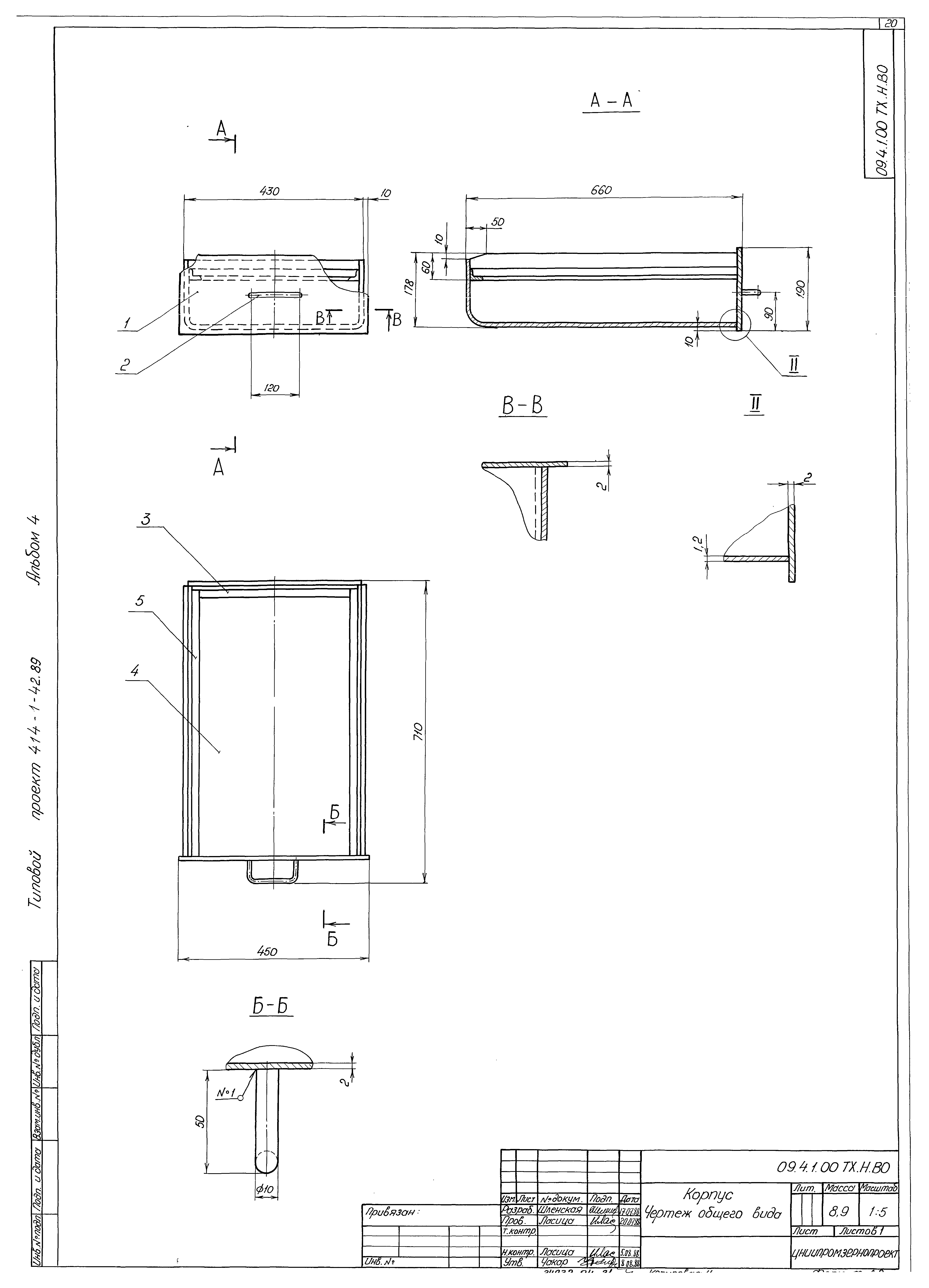
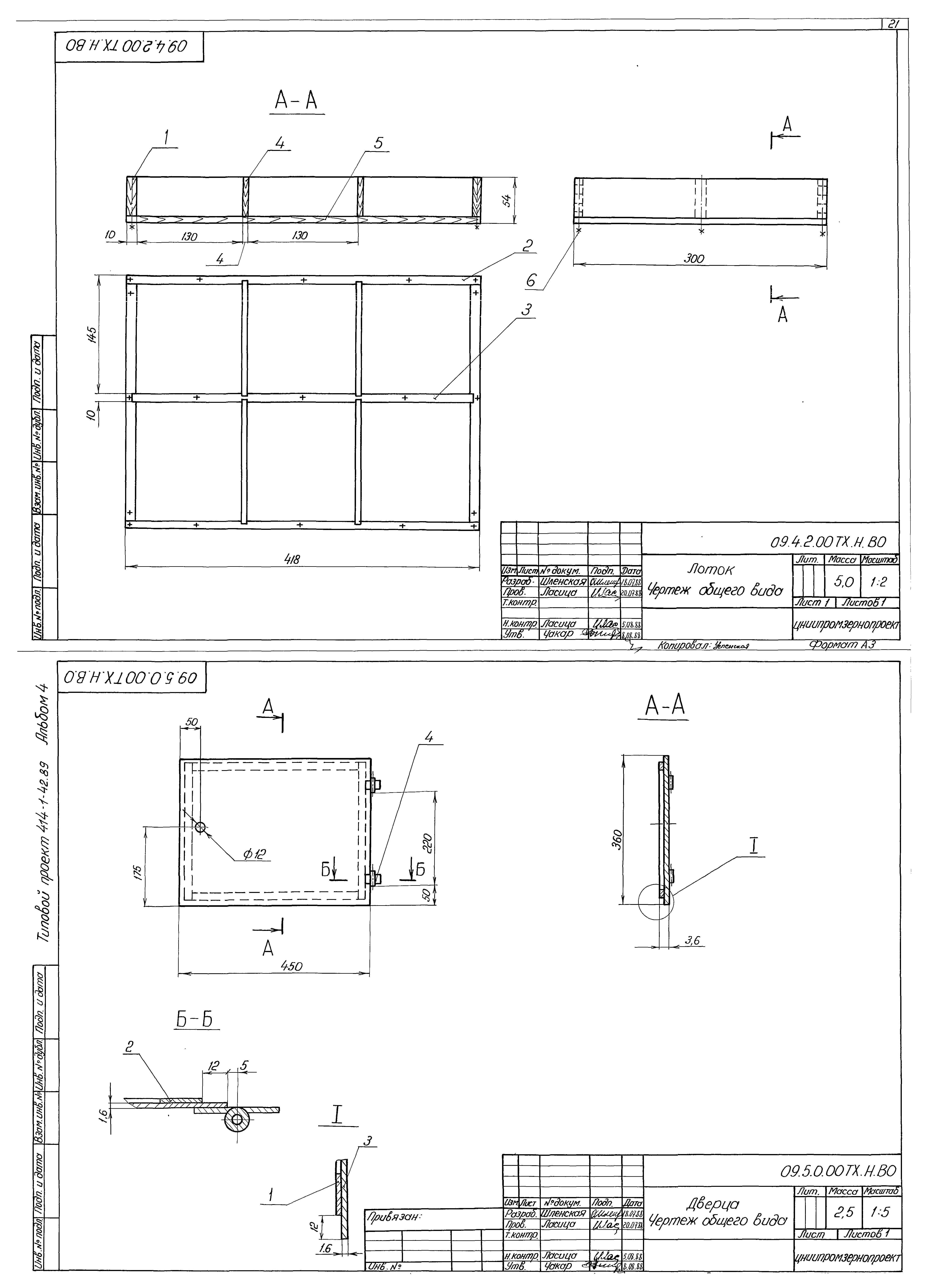
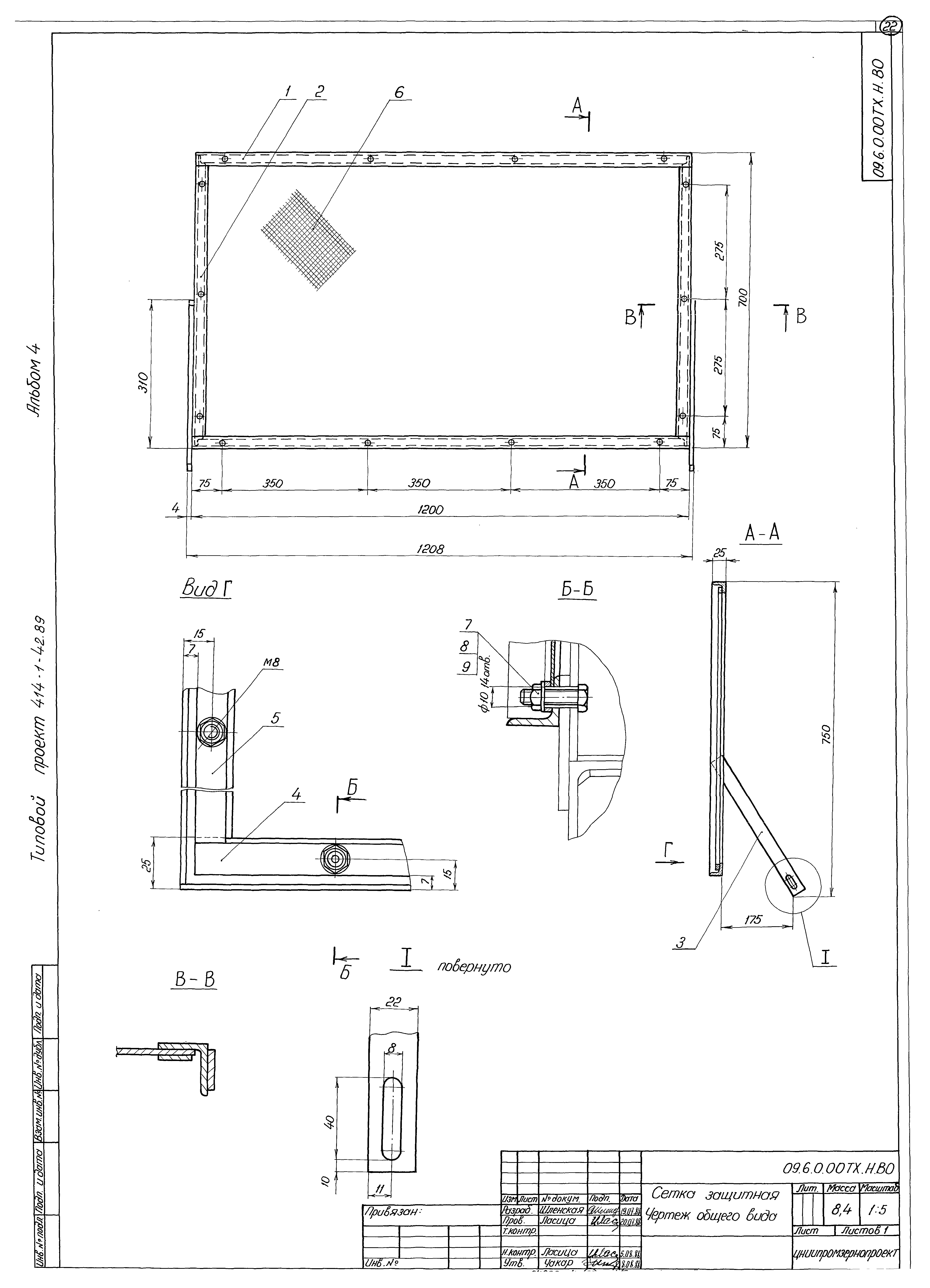
| Оглавление: | ТП 414-1-42.89 Содержание альбома ТП 414-1-42.89 01.00.ТХ.Н Подставка под станок 2М112 ТП 414-1-42.89 01.00.ТХН.ВО Подставка под станок 2М112. Чертеж общего вида ТП 414-1-42.89 02.00.ТХ.Н Стол двухъярусный ТП 414-1-42.89 02.00.ТХ.Н.ВО Стол двухъярусный. Чертеж общего вида ТП 414-1-42.89 03.00.ТХ.Н Шкаф для инструмента ТП 414-1-42.89 04.00.ТХ.Н Стеллаж ТП 414-1-42.89 05.00.ТХ.Н Стол рабочий ТП 414-1-42.89 06.00.ТХ.Н Стол производственный ТП 414-1-42.89 04.00.ТХ.Н.ВО Стеллаж. Чертеж общего вида ТП 414-1-42.89 03.00.ТХ.Н.ВО Шкаф для инструмента. Чертеж общего вида ТП 414-1-42.89 05.00.ТХ.Н.ВО Стол рабочий. Чертеж общего вида ТП 414-1-42.89 06.00.ТХ.Н.ВО Стол производственный. Чертеж общего вида ТП 414-1-42.89 07.00.ТХ.Н Ванна для мойки инвентаря ТП 414-1-42.89 09.2.0.00.ТХ.Н Крышка ТП 414-1-42.89 07.00.ТХ.Н.ВО Ванна для мойки инвентаря. Чертеж общего вида ТП 414-1-42.89 07.01.ТХ.Н Корпус ТП 414-1-42.89 09.0.0.00.ТХ.Н Верстак слесарный на одно рабочее место ТП 414-1-42.89 07.01.ТХ.Н.ВО Корпус. Чертеж общего вида ТП 414-1-42.89 08.00.ТХ.Н.ВО Наконечник. Чертеж общего вида ТП 414-1-42.89 07.02.ТХ.Н Решетка ТП 414-1-42.89 07.02.ТХ.Н.ВО Решетка. Чертеж общего вида ТП 414-1-42.89 09.00.00.ТХ.Н.ВО Верстак слесарный на одно рабочее место. Чертеж общего вида ТП 414-1-42.89 09.1.0.00.ТХ.Н Каркас ТП 414-1-42.89 09.3.0.00.ТХ.Н Полка ТП 414-1-42.89 09.4.0.00.ТХ.Н Ящик ТП 414-1-42.89 09.1.0.00.ТХ.Н.ВО Каркас. Чертеж общего вида ТП 414-1-42.89 09.3.0.00.ТХ.Н.ВО Полка. Чертеж общего вида ТП 414-1-42.89 09.4.0.00.ТХ.Н.ВО Ящик. Чертеж общего вида ТП 414-1-42.89 09.2.0.00.ТХ.Н.ВО Крышка. Чертеж общего вида ТП 414-1-42.89 09.4.1.00.ТХ.Н Корпус ТП 414-1-42.89 09.4.2.00.ТХ.Н Лоток ТП 414-1-42.89 09.5.0.00.ТХ.Н Дверца ТП 414-1-42.89 09.6.0.00.ТХ.Н Сетка защитная ТП 414-1-42.89 09.4.1.00.ТХ.Н.ВО Корпус. Чертеж общего вида ТП 414-1-42.89 09.4.2.00.ТХ.Н.ВО Лоток. Чертеж общего вида ТП 414-1-42.89 09.5.0.00.ТХ.Н.ВО Дверца. Чертеж общего вида ТП 414-1-42.89 09.6.0.00.ТХ.Н.ВО Сетка защитная. Чертеж общего вида |
| Разработан: | ЦНИИпромзернопроект |
| Утверждён: | 17.02.1989 Минхлебопродуктов СССР (USSR Minkhleboproduktov 40) |






















