Скачать Типовой проект 902-2-483.91 Альбом 2. Отстойники. Технологические решения. Общие виды нетиповых технологических конструкций. Конструкции железобетонные. Строительные изделияДата актуализации: 01.01.2021
|
| Обозначение: | Типовой проект 902-2-483.91 |
| Обозначение англ: | 902-2-483.91 |
| Статус: | не определен законодательством |
| Название рус.: | Альбом 2. Отстойники. Технологические решения. Общие виды нетиповых технологических конструкций. Конструкции железобетонные. Строительные изделия |
| Дата добавления в базу: | 01.09.2013 |
| Дата актуализации: | 01.01.2021 |
| Дата введения: | 08.10.1991 |
| Дата окончания срока действия: | 30.06.2003 |
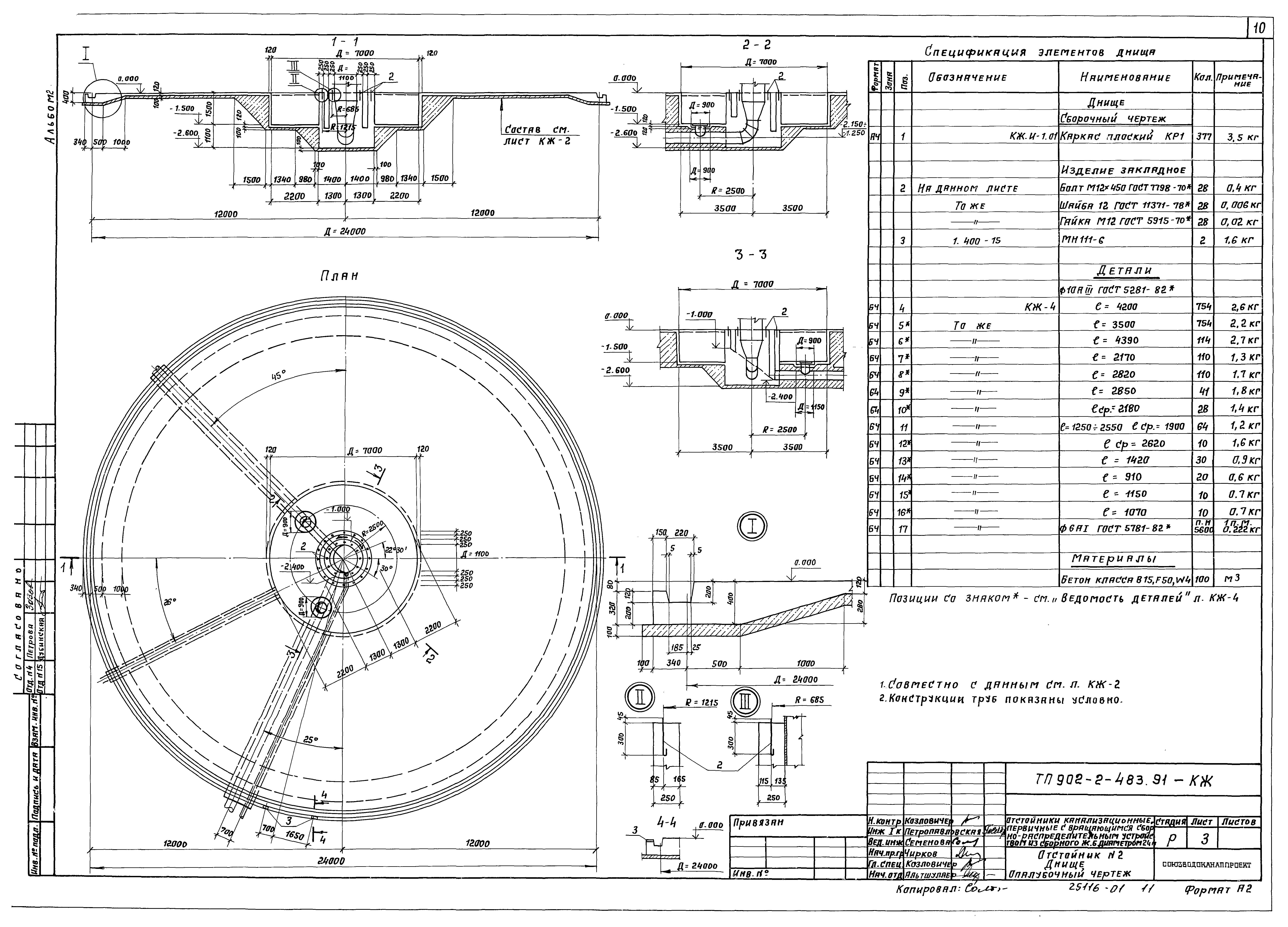
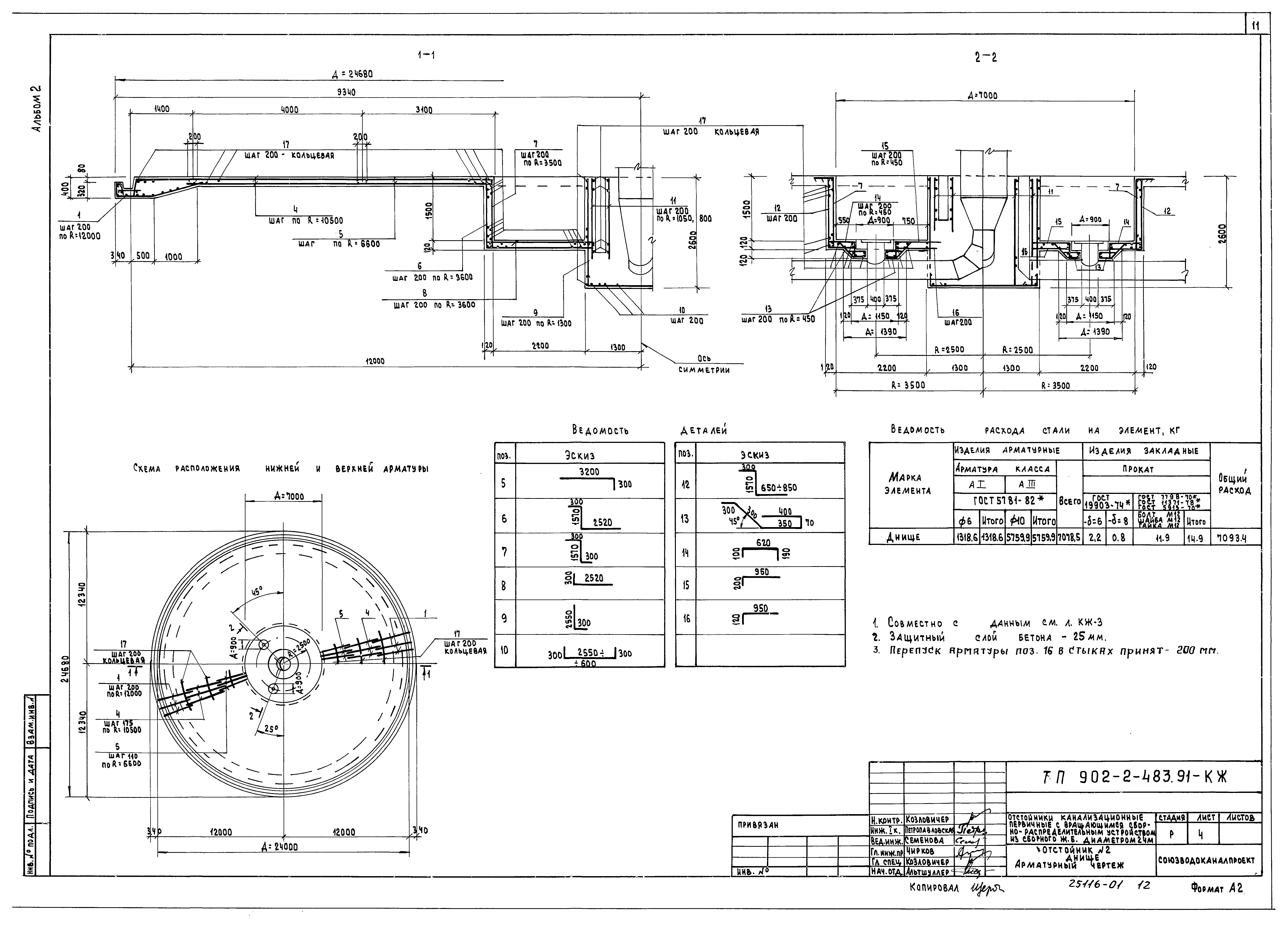
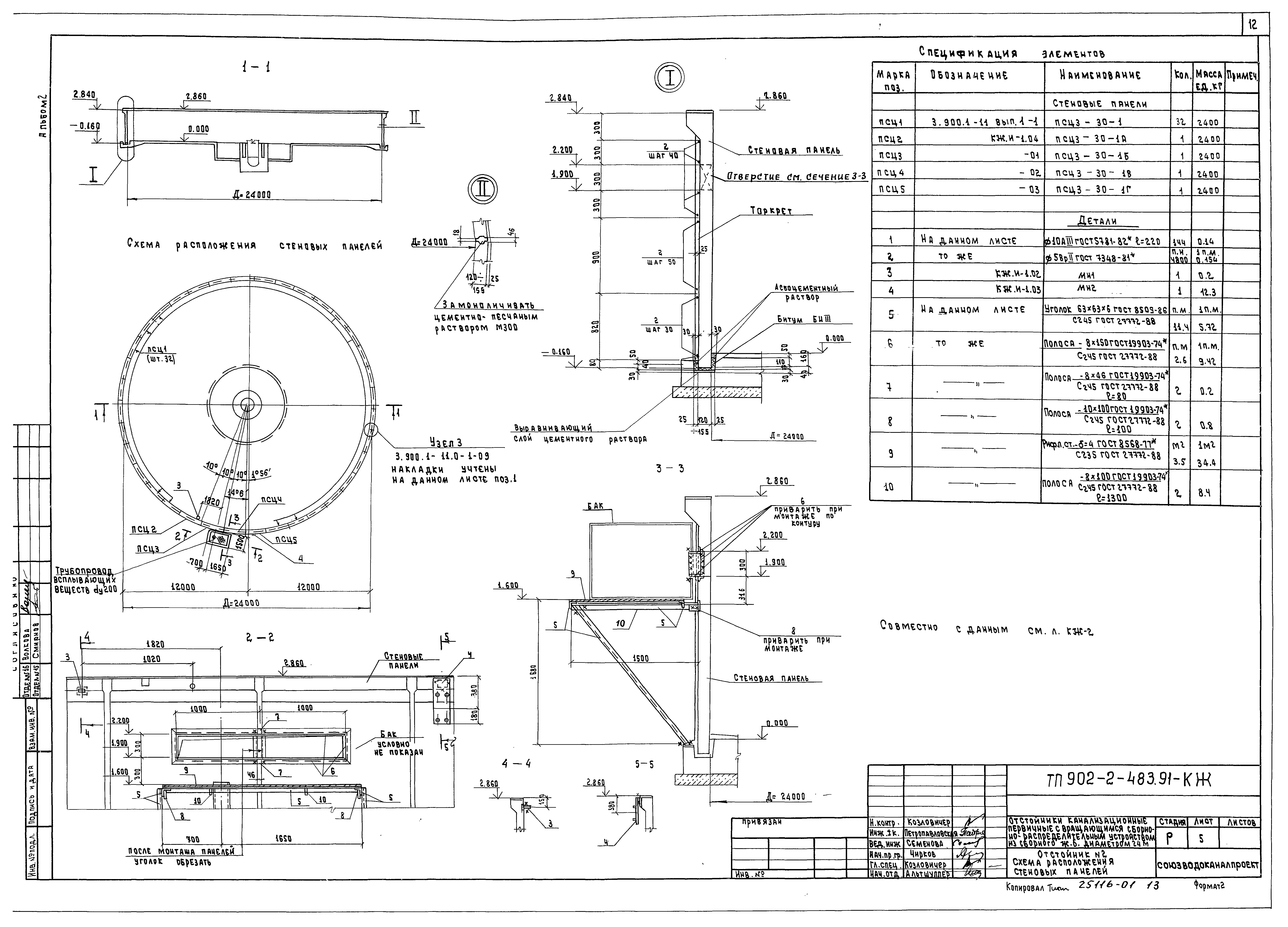
| Оглавление: | ТП 902-2-483.91 Содержание альбома ТП 902-2-483.91-ТХ Технологические решения ТП 902-2-483.91-ТХ-1 Общие данные ТП 902-2-483.91-ТХ-2 Отстойник № 2. Монтажный чертеж. План, разрезы ТП 902-2-483.91-ТХН Общие виды нетиповых технологических конструкций ТП 902-2-483.91-ТХН-1 Илоскреб с вращающимся сборно-распределительным устройством. Диаметром 24 м. Эскизный чертеж общего вида ТП 902-2-483.91-ТХН-2 Илоскреб с вращающимся сборно-распределительным устройством. Диаметром 24 м. Эскизный чертеж общего вида ТП 902-2-483.91-ТХН-3 Илоскреб с вращающимся сборно-распределительным устройством. Диаметром 24 м. Эскизный чертеж общего вида ТП 902-2-483.91-КЖ Конструкции железобетонные ТП 902-2-483.91-КЖ-1 Отстойник № 2. Общие данные ТП 902-2-483.91-КЖ-2 Отстойник № 2. План. Разрезы. Сечения ТП 902-2-483.91-КЖ-3 Отстойник № 2. Днище. Опалубочный чертеж ТП 902-2-483.91-КЖ-4 Отстойник № 2. Днище. Арматурный чертеж ТП 902-2-483.91-КЖ-5 Отстойник № 2. Схема расположения стеновых панелей ТП 902-2-483.91-КЖ.И Строительные изделия ТП 902-2-483.91-КЖ.И.ТТ Технические требования ТП 902-2-483.91-КЖ.И.1.01 Каркас плоский (КР1) ТП 902-2-483.91-КЖ.И.1.02 Изделие закладное МН ТП 902-2-483.91-КЖ.И.1.03 Изделие закладное МН2 ТП 902-2-483.91-КЖ.И.1.04 Панель стеновая ПСЦ3-30-1А;ПСЦ3-30-1Б;ПСЦ3-30-1В;ПСЦ3-30-1Г |
| Разработан: | Союзводоканалниипроект |
| Утверждён: | 25.07.1991 СоюзводоканалНИИпроект (SoyuzvodokanalNIIproject 13) |














