Скачать Типовой проект 125-045/1.2 Часть 0. Раздел 0-1. Общая часть. Общая характеристика проектаДата актуализации: 01.01.2021
|
| Обозначение: | Типовой проект 125-045/1.2 |
| Обозначение англ: | 125-045/1.2 |
| Статус: | действует |
| Название рус.: | Часть 0. Раздел 0-1. Общая часть. Общая характеристика проекта |
| Дата добавления в базу: | 01.09.2013 |
| Дата актуализации: | 01.01.2021 |
| Дата введения: | 30.06.1984 |
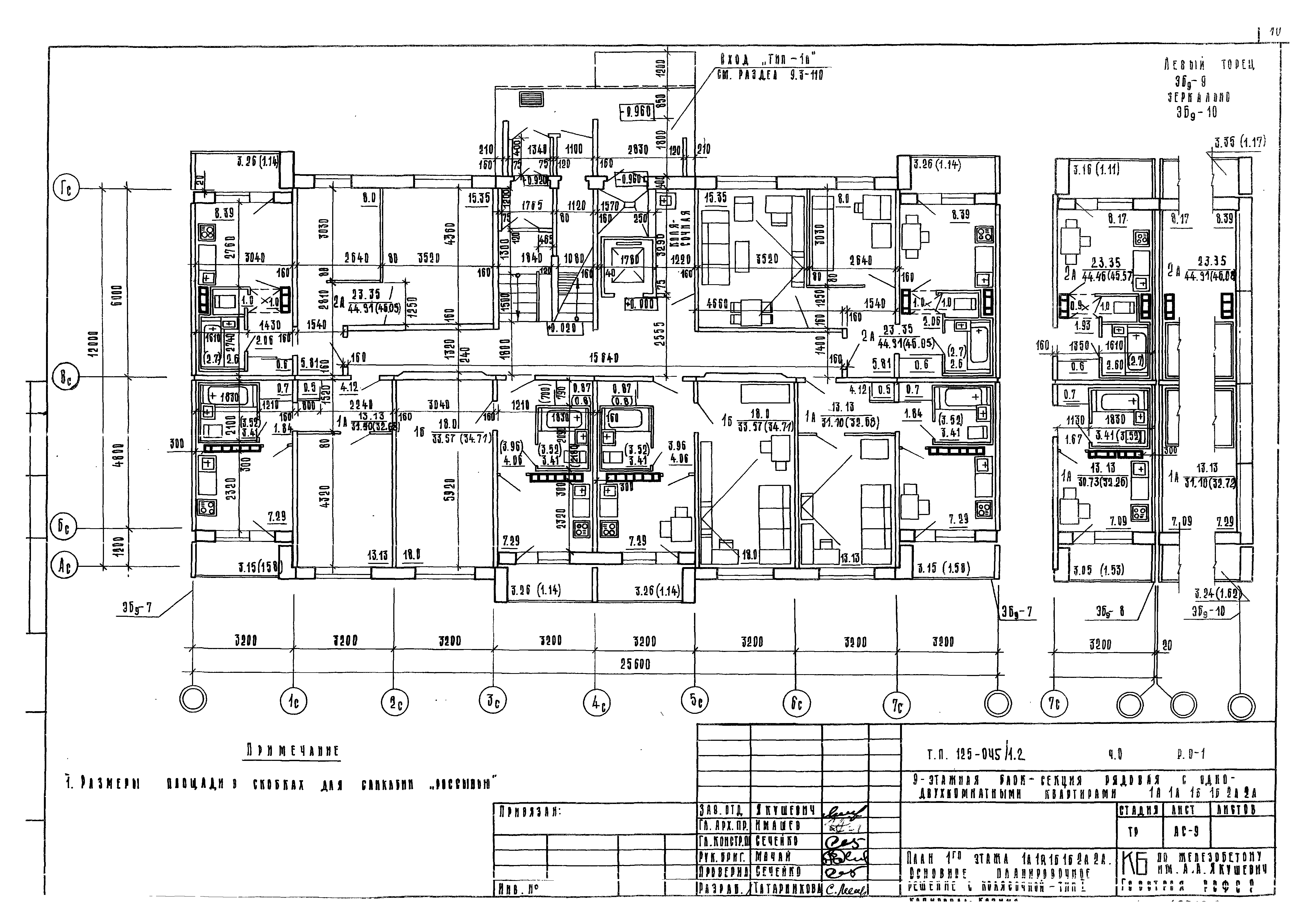
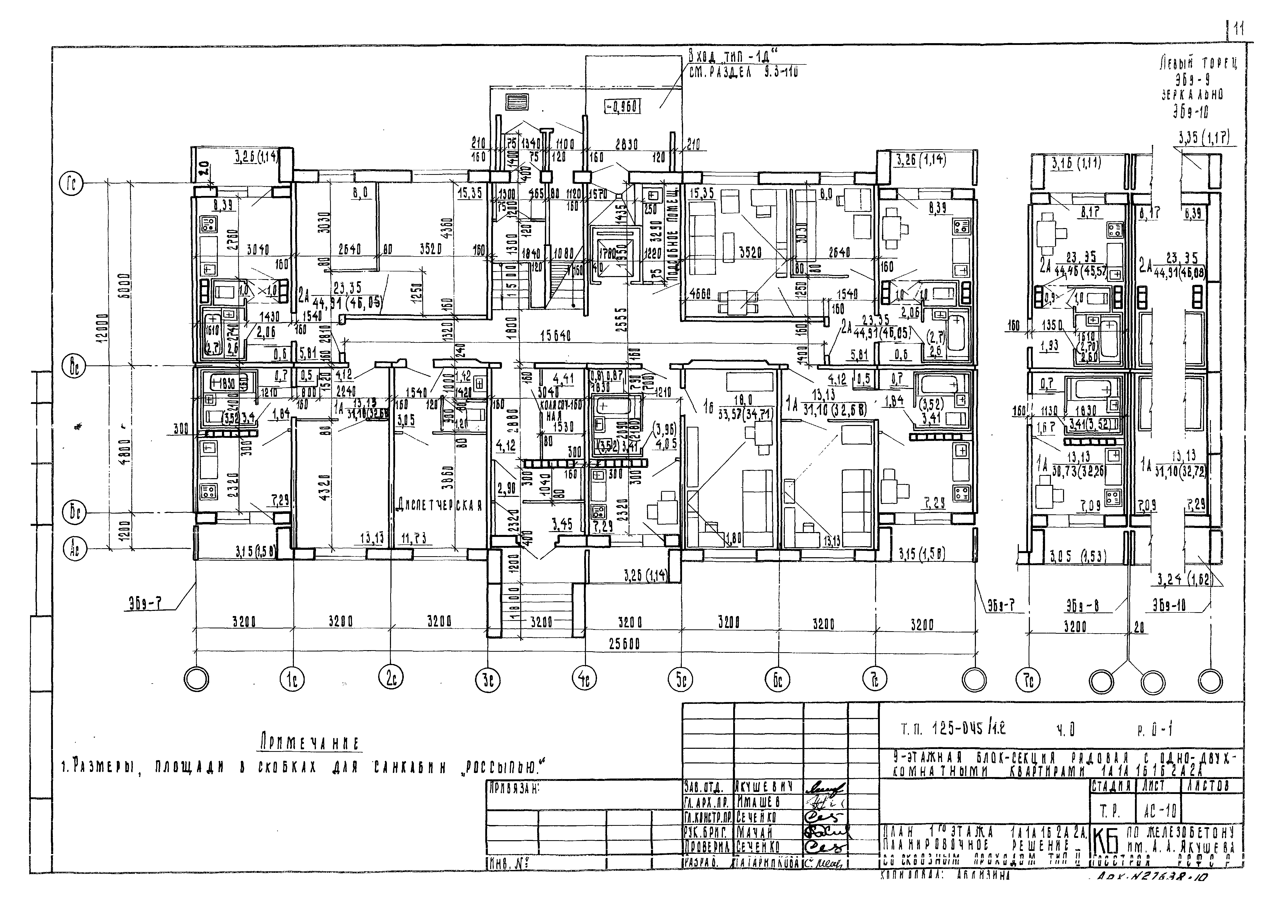
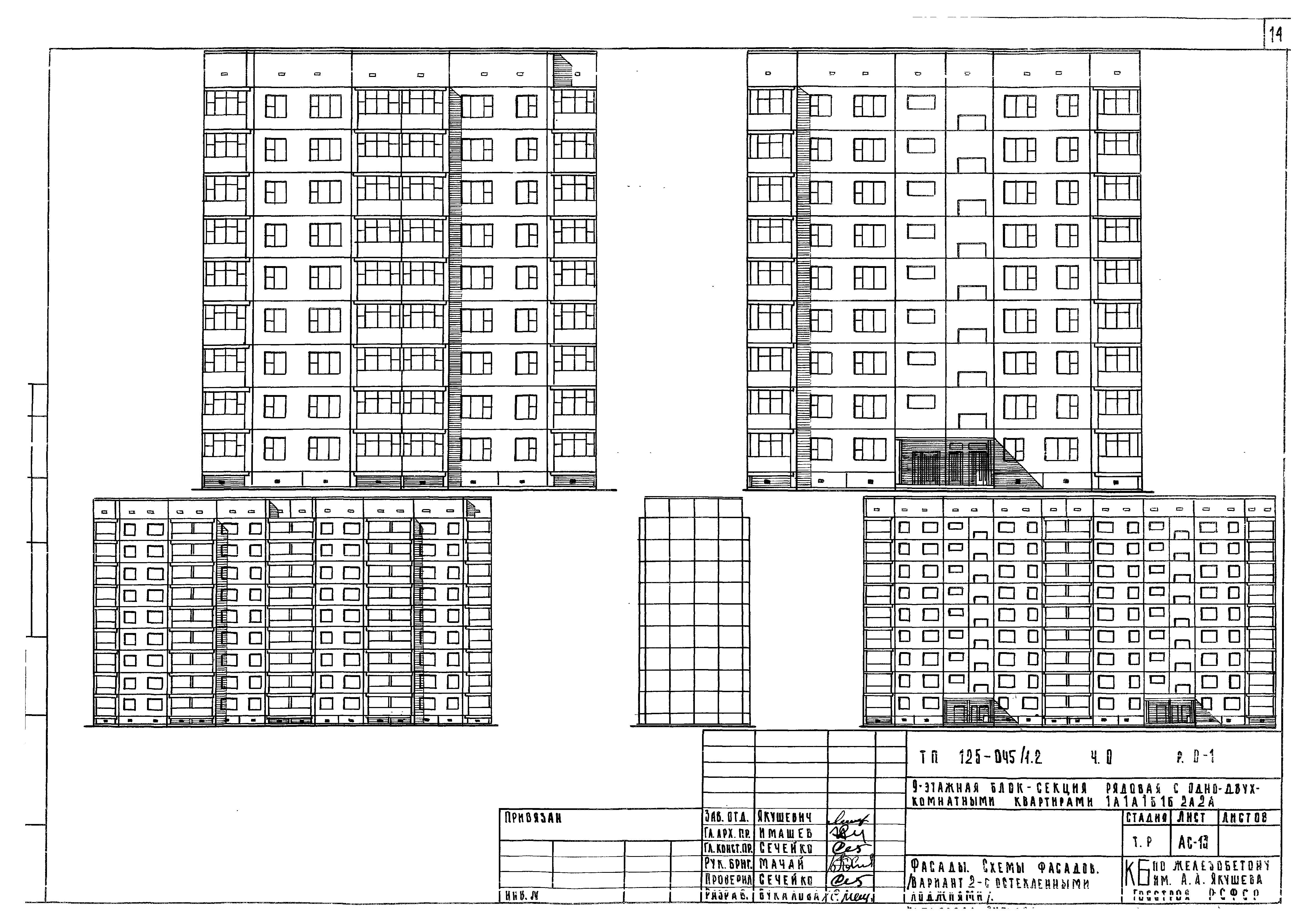
| Оглавление: | ТП 125-045/1.2-АС-1 Заглавный лист (начало) ТП 125-045/1.2-АС-2÷АС-6 Заглавный лист (продолжение) ТП 125-045/1.2-АС-7 Заглавный лист (окончание) ТП 125-045/1.2-АС-8 План типового этажа 1А1А1Б1Б2А2А ТП 125-045/1.2-АС-9 План 1го этажа 1А1А1Б1Б2А2А. Основное планировочное решение с колясочной - тип 1 ТП 125-045/1.2-АС-10 План 1го этажа 1А1А1Б1Б2А2А. Основное планировочное решение со сквозным проходом - тип 2 ТП 125-045/1.2-АС-11 План 1го этажа 1А1А1Б1Б2А2А. Основное планировочное решение с электрощитовой - тип 3 ТП 125-045/1.2-АС-12 Фасады. Схемы фасадов ТП 125-045/1.2-АС-13 Фасады. Схемы фасадов (вариант остекленных лоджий) ТП 125-045/1.2-АС-14 Детали фасада ТП 125-045/1.2-АС-15 Детали фасада (вариант остекленных лоджий) ТП 125-045/1.2-АС-16 Вход тип - 1Д. Вход тип - 6Д |
| Разработан: | КБ по железобетону Госстроя РСФСР |
| Утверждён: | 21.06.1982 Госстрой РСФСР (Russian Federation Gosstroy 46) |

















