Скачать Типовой проект 125-045/1.2 Часть 1. Раздел 1-1. Архитектурно-строительные чертежи выше отметки 0.000. Однорядная разрезка наружных стен. Кровля рулоннаяДата актуализации: 01.01.2021
|
| Обозначение: | Типовой проект 125-045/1.2 |
| Обозначение англ: | 125-045/1.2 |
| Статус: | действует |
| Название рус.: | Часть 1. Раздел 1-1. Архитектурно-строительные чертежи выше отметки 0.000. Однорядная разрезка наружных стен. Кровля рулонная |
| Дата добавления в базу: | 01.09.2013 |
| Дата актуализации: | 01.01.2021 |
| Дата введения: | 30.06.1984 |
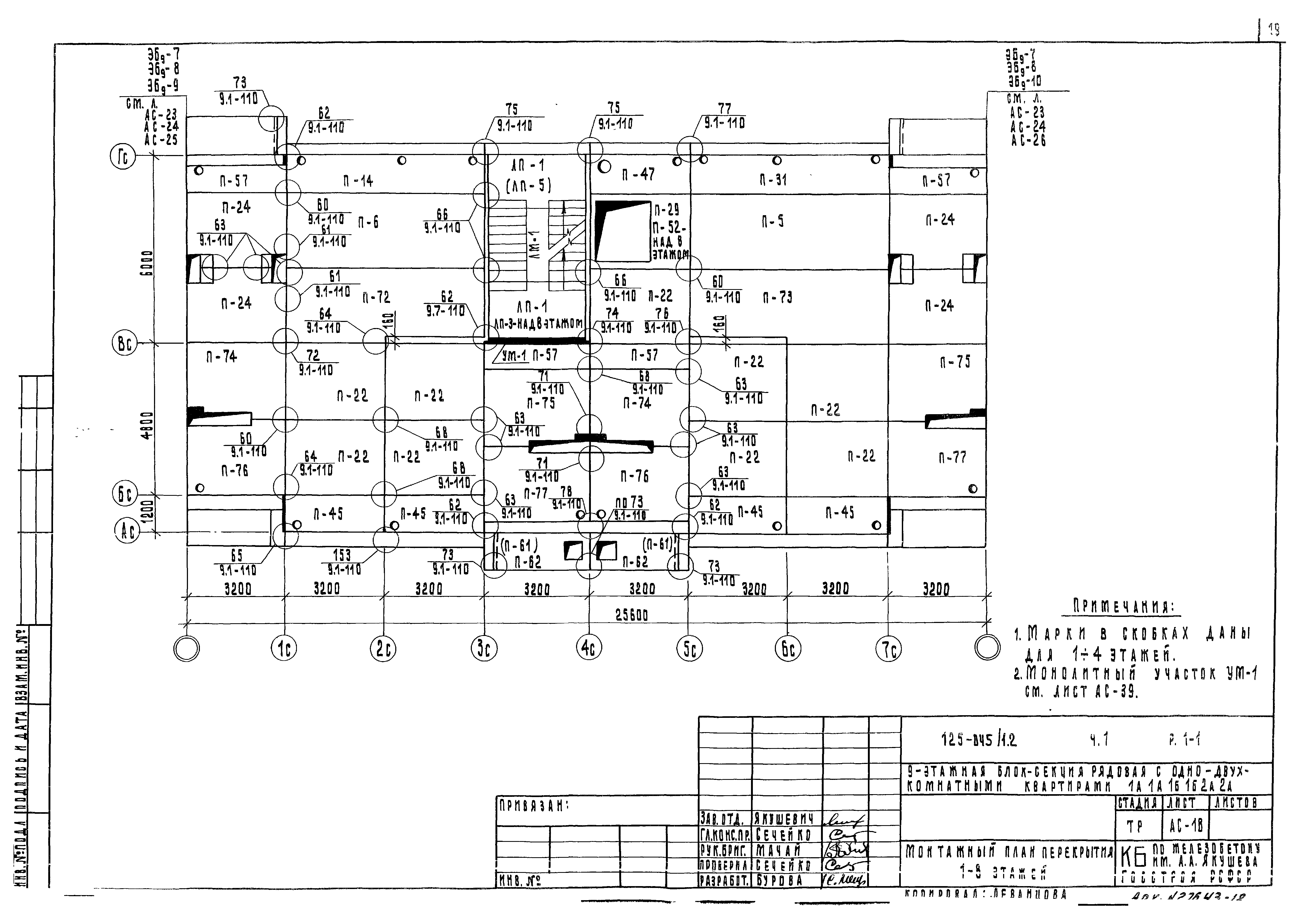
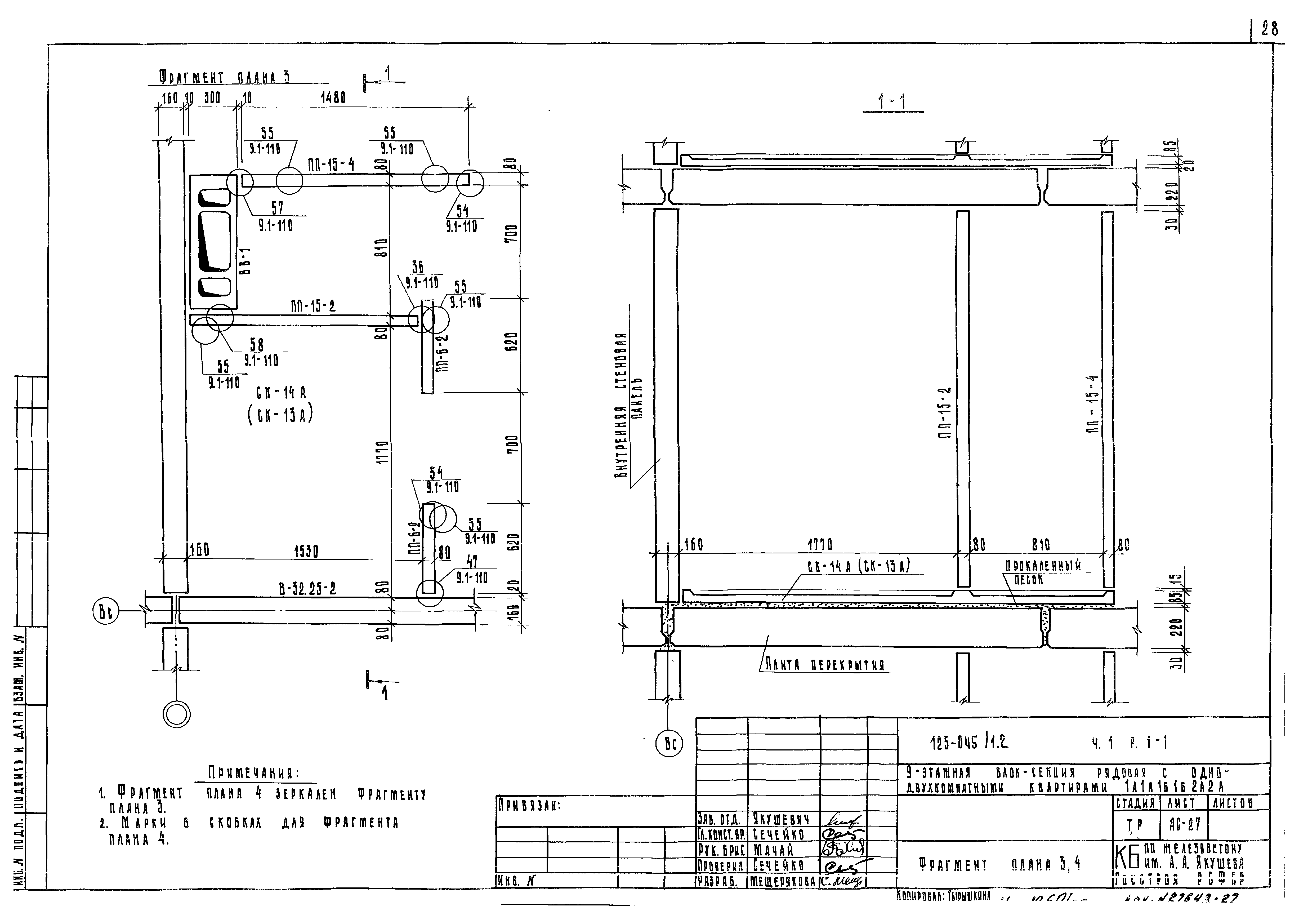
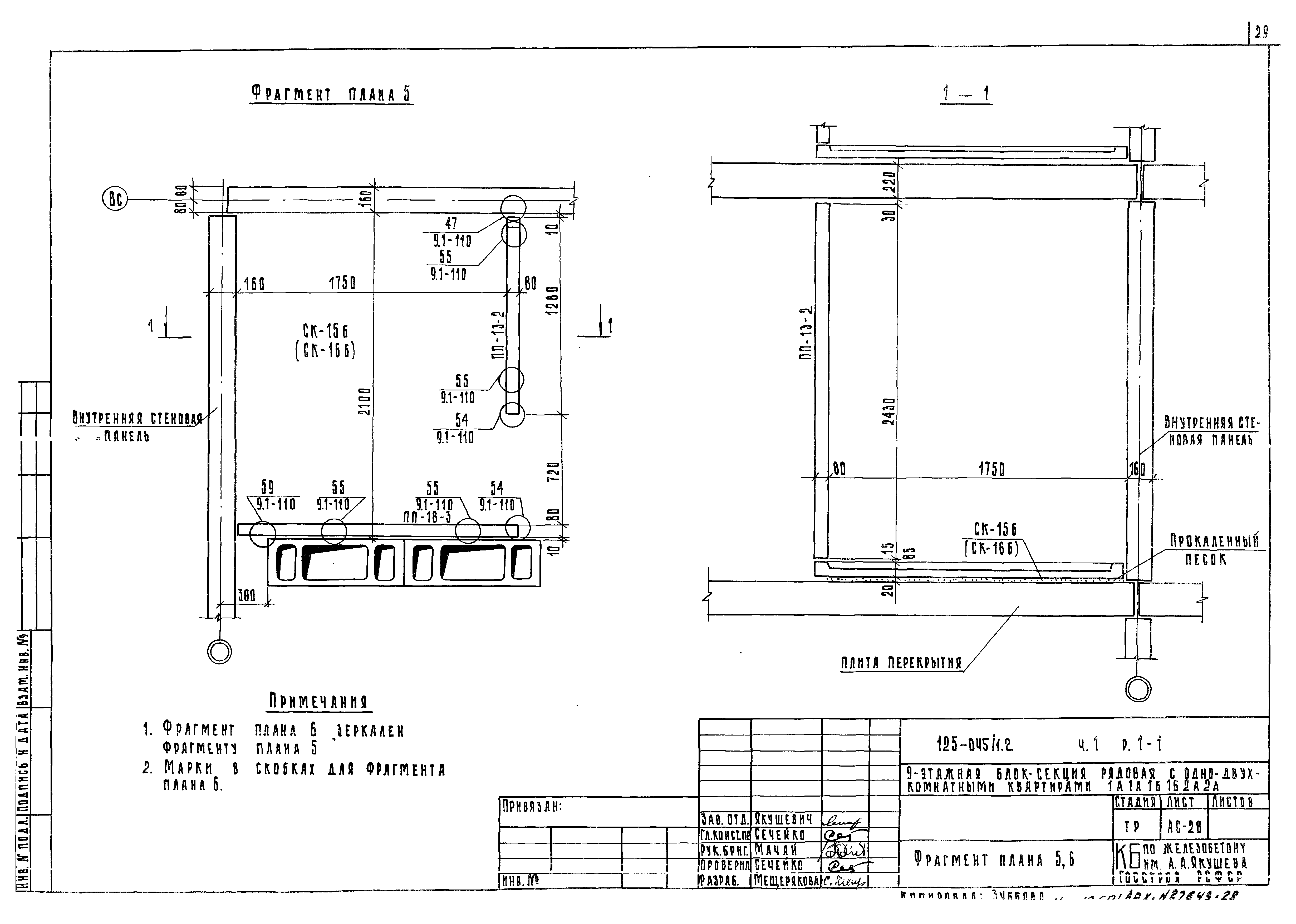
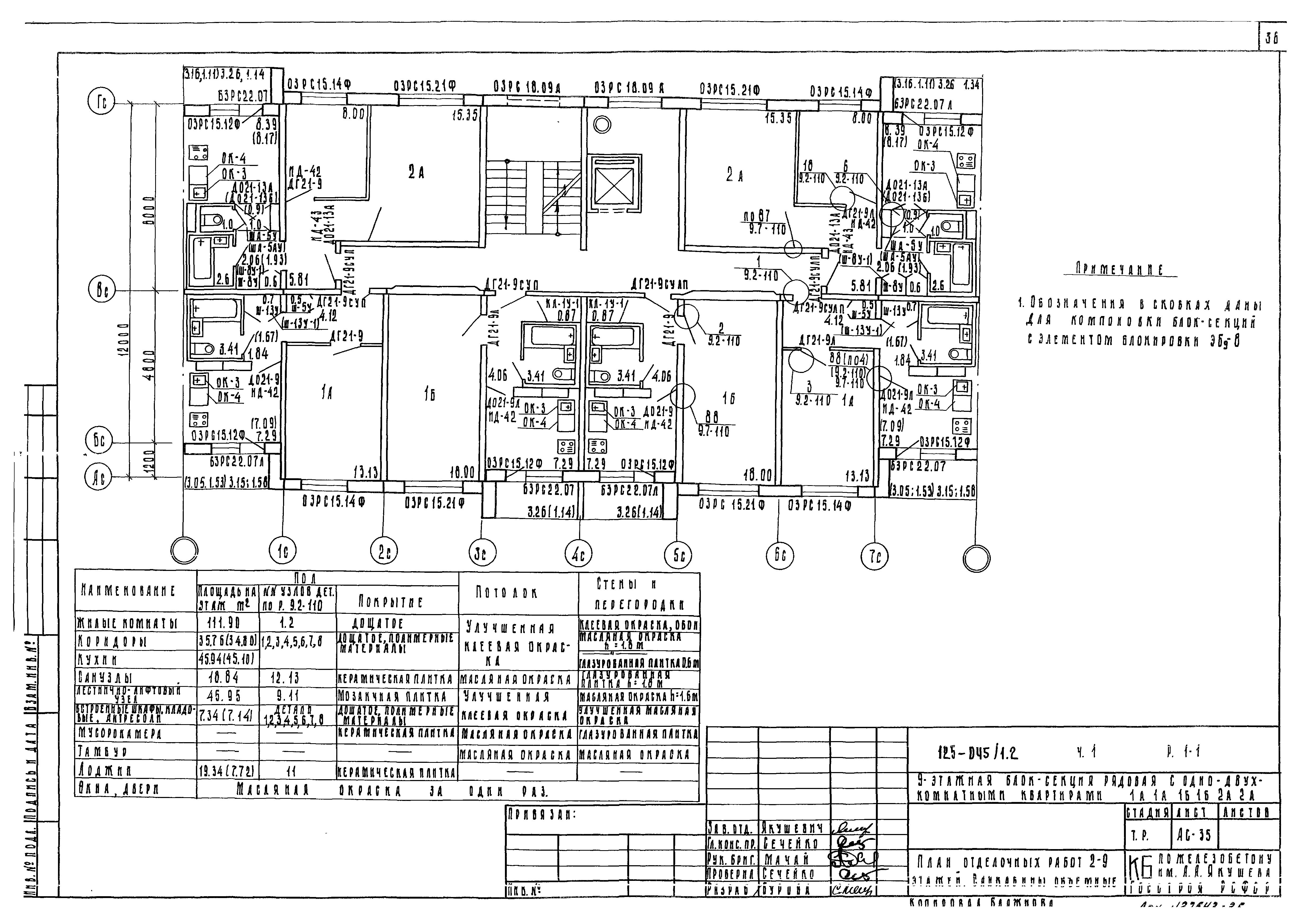
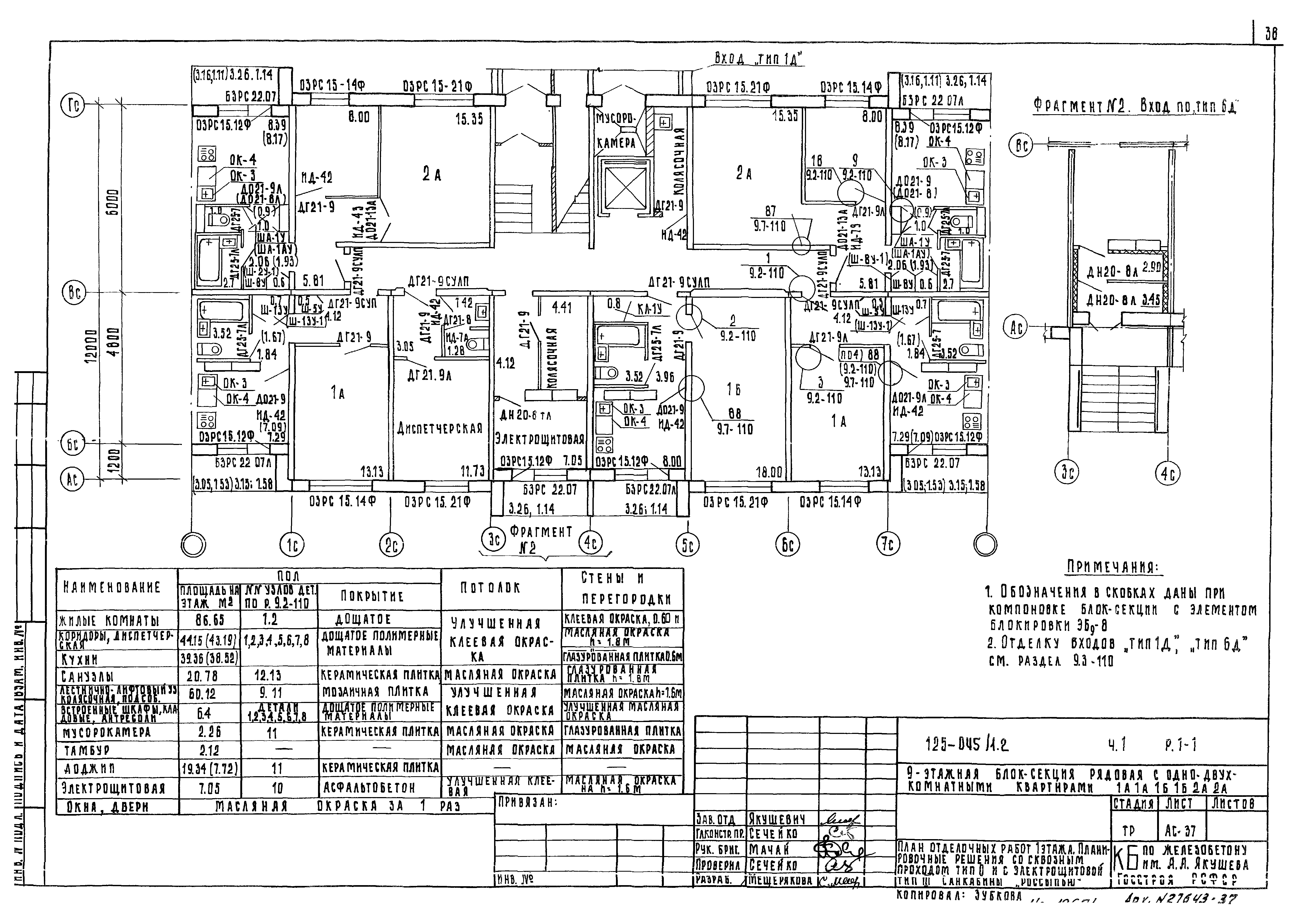
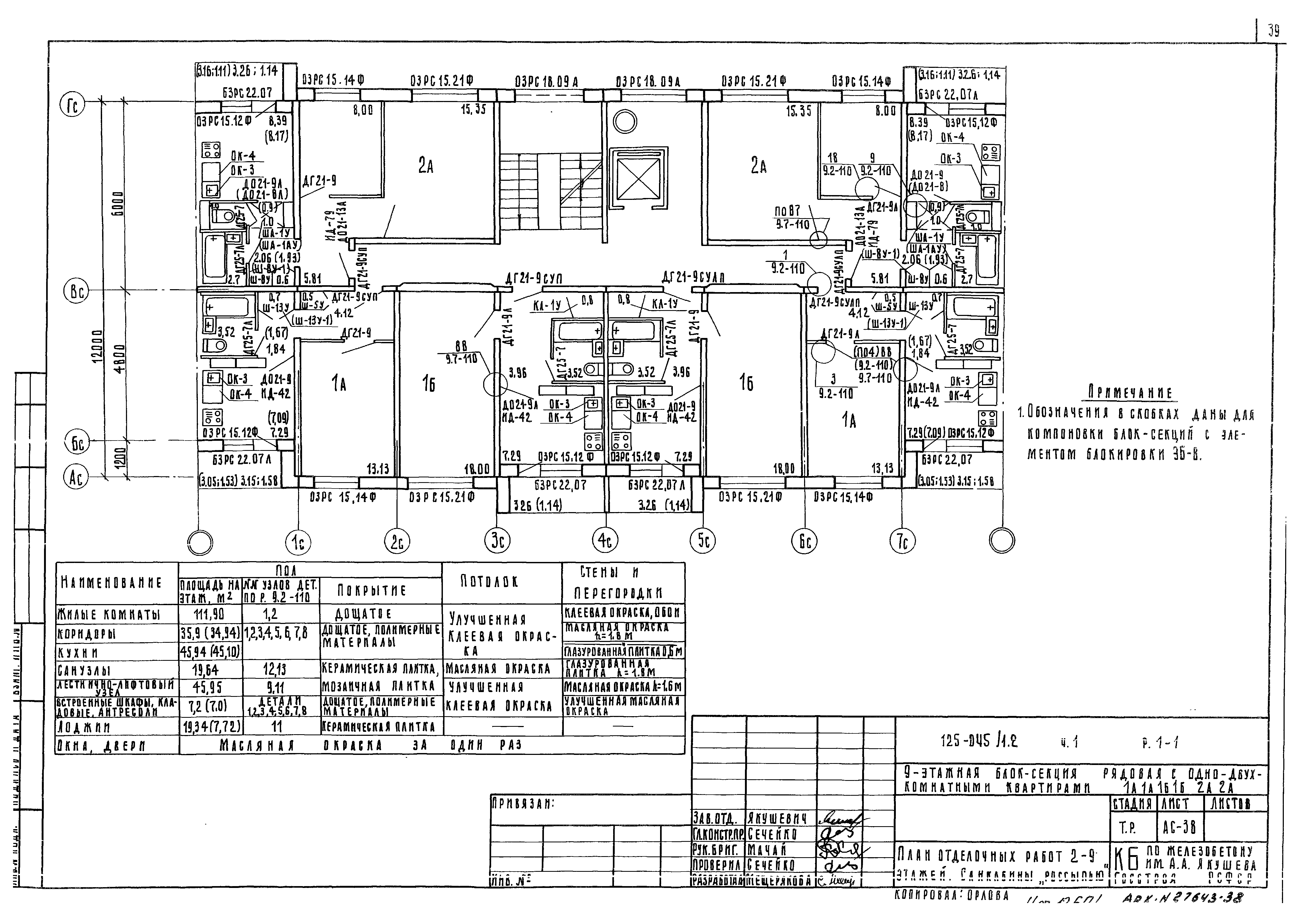
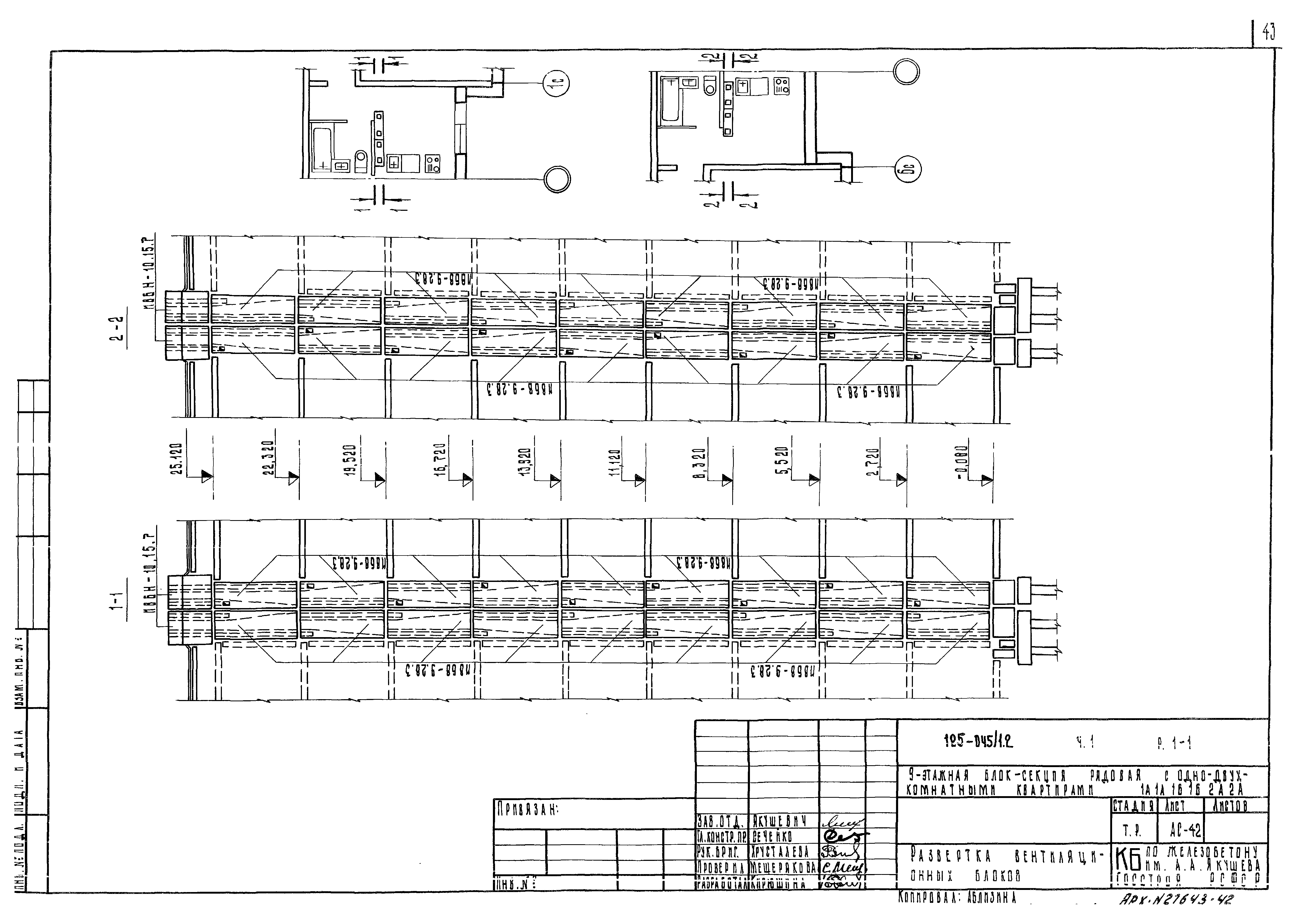
| Оглавление: | ТП 125-045/1.2-АС-1 Заглавный лист (начало) ТП 125-045/1.2-АС-2÷АС-8 Заглавный лист (продолжение) ТП 125-045/1.2-АС-9 Заглавный лист (окончание) ТП 125-045/1.2-АС-10 Монтажный план стен 1 этажа. Планировочное решение основное с колясочной тип 1. Санкабины объемные ТП 125-045/1.2-АС-11 Монтажный план стен 1 этажа. Планировочное решение со сквозным проходом тип 2 и с электрощитовой тип 3. Санкабины объемные ТП 125-045/1.2-АС-12 Монтажный план стен 2-8 этажей. Санкабины объемные ТП 125-045/1.2-АС-13 Монтажный план стен 9 этажа. Санкабины объемные ТП 125-045/1.2-АС-14 Монтажный план стен 1 этажа. Планировочное решение основное с колясочной тип 1. Санкабины "Россыпью" ТП 125-045/1.2-АС-15 Монтажный план стен 1 этажа. Планировочное решение со сквозным проходом тип 2 и с электрощитовой тип 3. Санкабины "Россыпью" ТП 125-045/1.2-АС-16 Монтажный план стен 2-8 этажей. Санкабины "Россыпью" ТП 125-045/1.2-АС-17 Монтажный план стен 9 этажа. Санкабины "Россыпью" ТП 125-045/1.2-АС-18 Монтажный план перекрытия 1-8 этажей ТП 125-045/1.2-АС-19 Монтажный план перекрытия 9 этажа ТП 125-045/1.2-АС-20 Монтажный план чердака ТП 125-045/1.2-АС-21 Монтажный план покрытия ТП 125-045/1.2-АС-22 План кровли ТП 125-045/1.2-АС-23 ЭБд-7. Монтажные планы выше отм. 0.000 ТП 125-045/1.2-АС-24 ЭБд-8. Монтажные планы выше отм. 0.000 ТП 125-045/1.2-АС-25 ЭБд-9. Монтажные планы выше отм. 0.000 ТП 125-045/1.2-АС-26 ЭБд-10. Монтажные планы выше отм. 0.000 ТП 125-045/1.2-АС-27 Фрагменты планов 3,4 ТП 125-045/1.2-АС-28 Фрагменты планов 5,6 ТП 125-045/1.2-АС-29 Фрагменты планов 7,8 ТП 125-045/1.2-АС-30 Разрезы 2-2,3-3 ТП 125-045/1.2-АС-31 Сечения 1-1÷4-4,6-6 ТП 125-045/1.2-АС-32 Сечения 7-7÷11-11 ТП 125-045/1.2-АС-33 План отделочных работ 1 этажа. Планировочное решение основное с колясочной тип 1. Санкабины объемные ТП 125-045/1.2-АС-34 План отделочных работ 1 этажа. Планировочное решение со сквозным проходом тип 2 и с электрощитовой тип 3. Санкабины объемные ТП 125-045/1.2-АС-35 План отделочных работ 2-9 этажей. Санкабины объемные ТП 125-045/1.2-АС-36 План отделочных работ 1 этажа. Планировочное решение основное с колясочной тип 1. Санкабины "Россыпью" ТП 125-045/1.2-АС-37 План отделочных работ 1 этажа. Планировочное решение со сквозным проходом тип 2 и с электрощитовой тип 3. Санкабины B10422 ТП 125-045/1.2-АС-38 План отделочных работ 2-9 этажей. Санкабины "Россыпью" ТП 125-045/1.2-АС-39 Монолитный участок УМ-1 ТП 125-045/1.2-АС-40 Монолитный участок УМ-2,УМ-3 ТП 125-045/1.2-АС-41 Схема каналов и узлы устройства связи ТП 125-045/1.2-АС-42 Развертка вентиляционных блоков ТП 125-045/1.2-АС-43 Основные положения по производству строительно-монтажных работ (дополнение) ТП 125-045/1.2-АС-44 Основные положения по производству строительно-монтажных работ (продолжение) |
| Разработан: | КБ по железобетону Госстроя РСФСР |
| Утверждён: | 21.06.1982 Госстрой РСФСР (Russian Federation Gosstroy 46) |













































