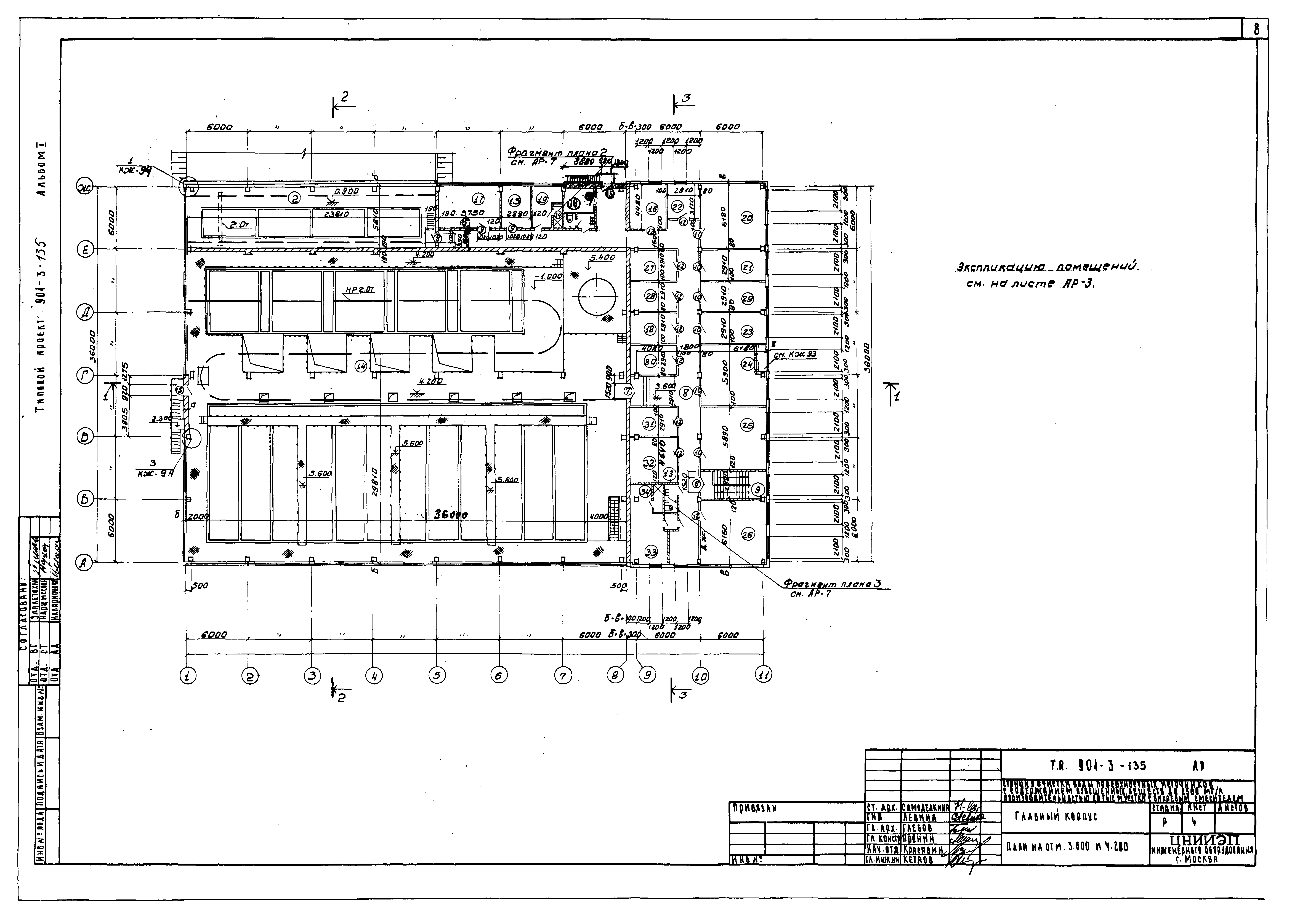
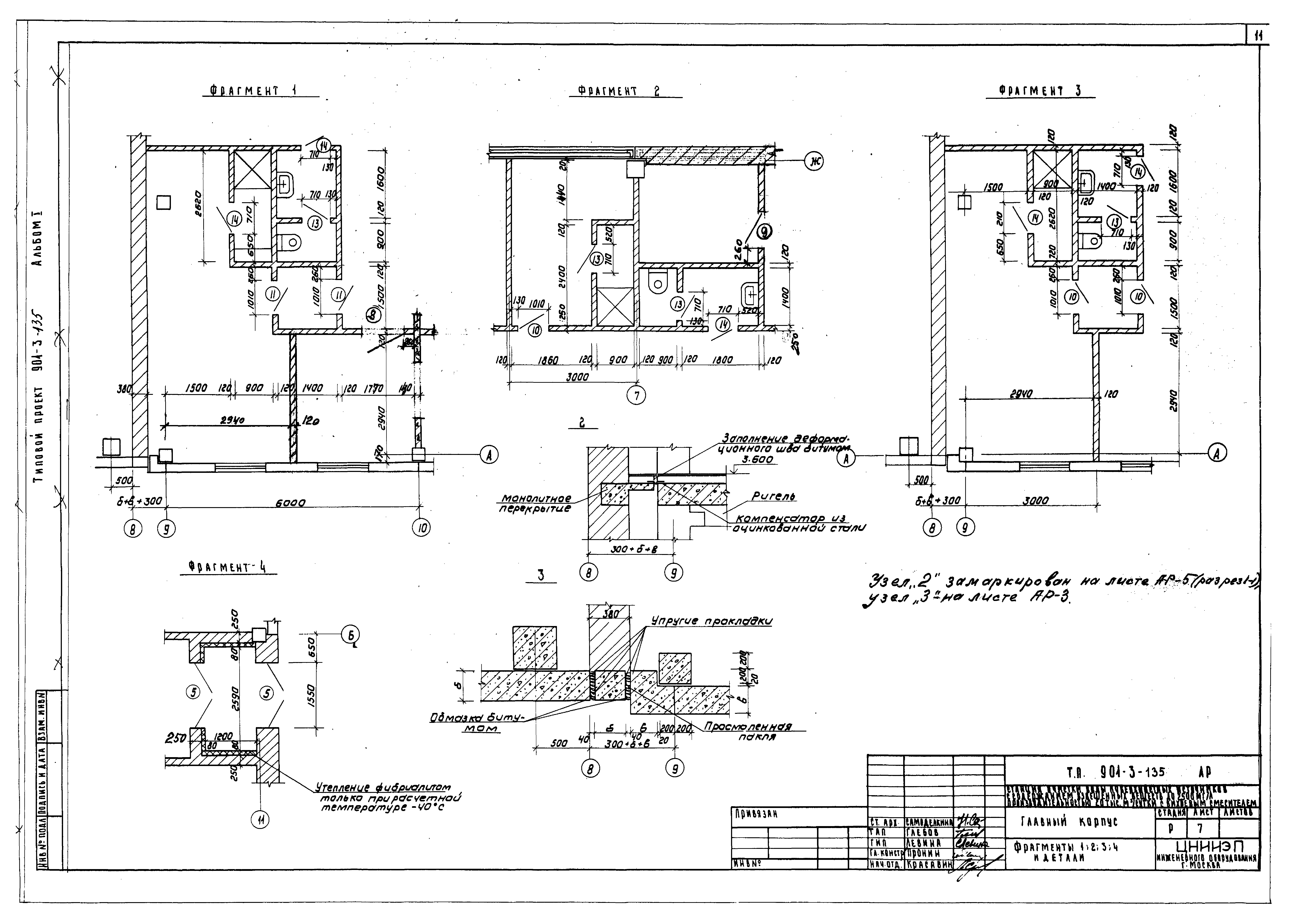
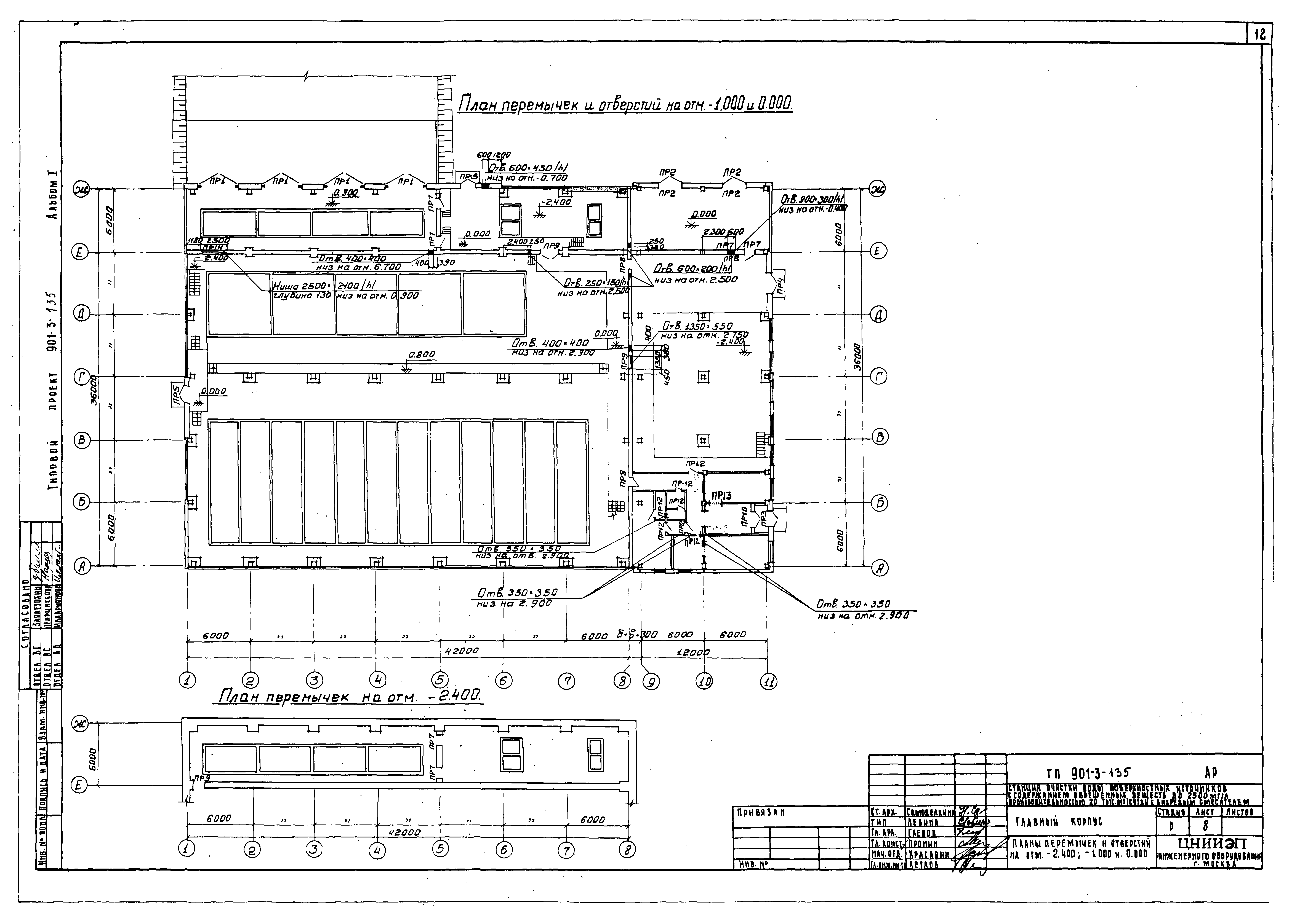
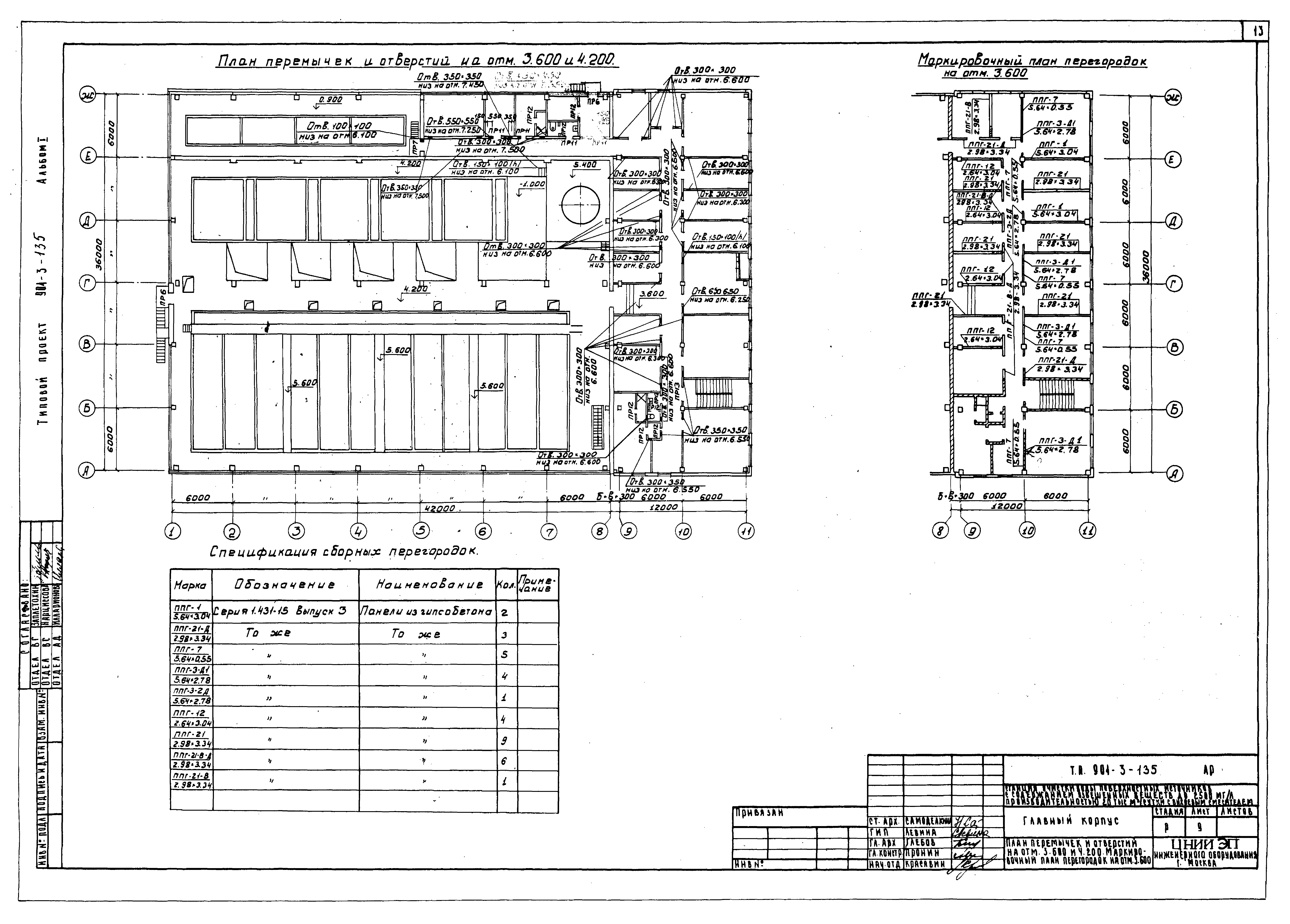
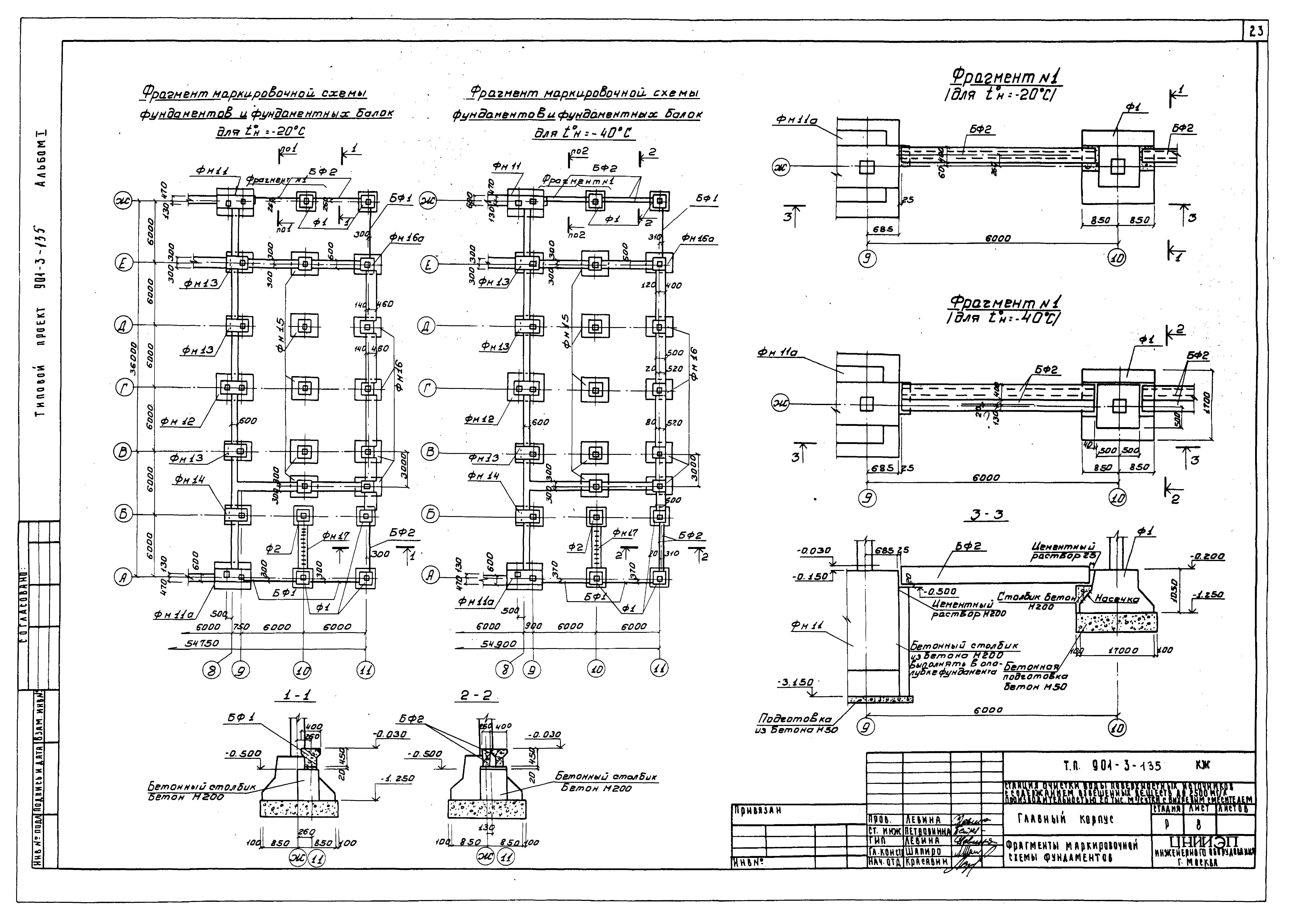
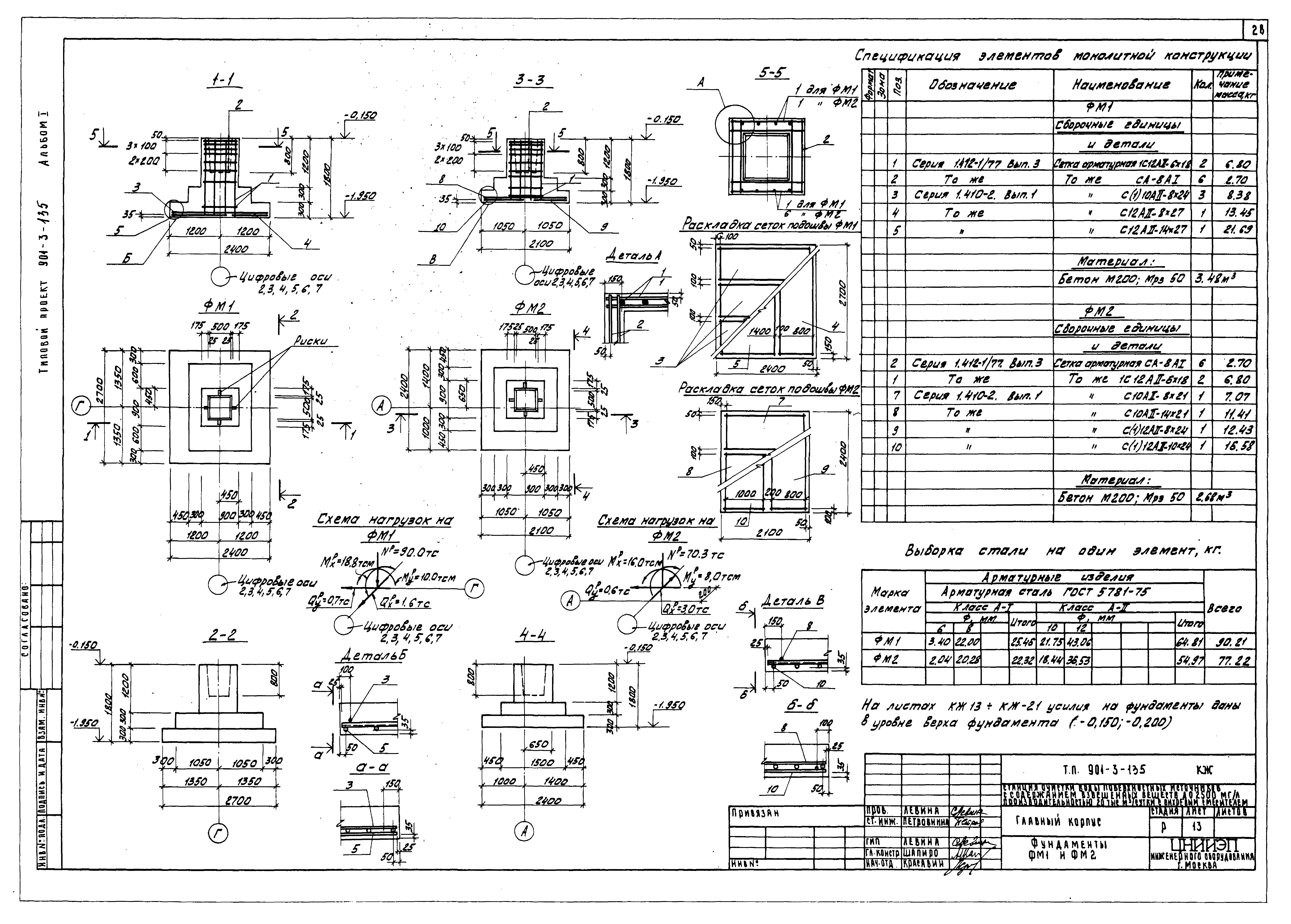
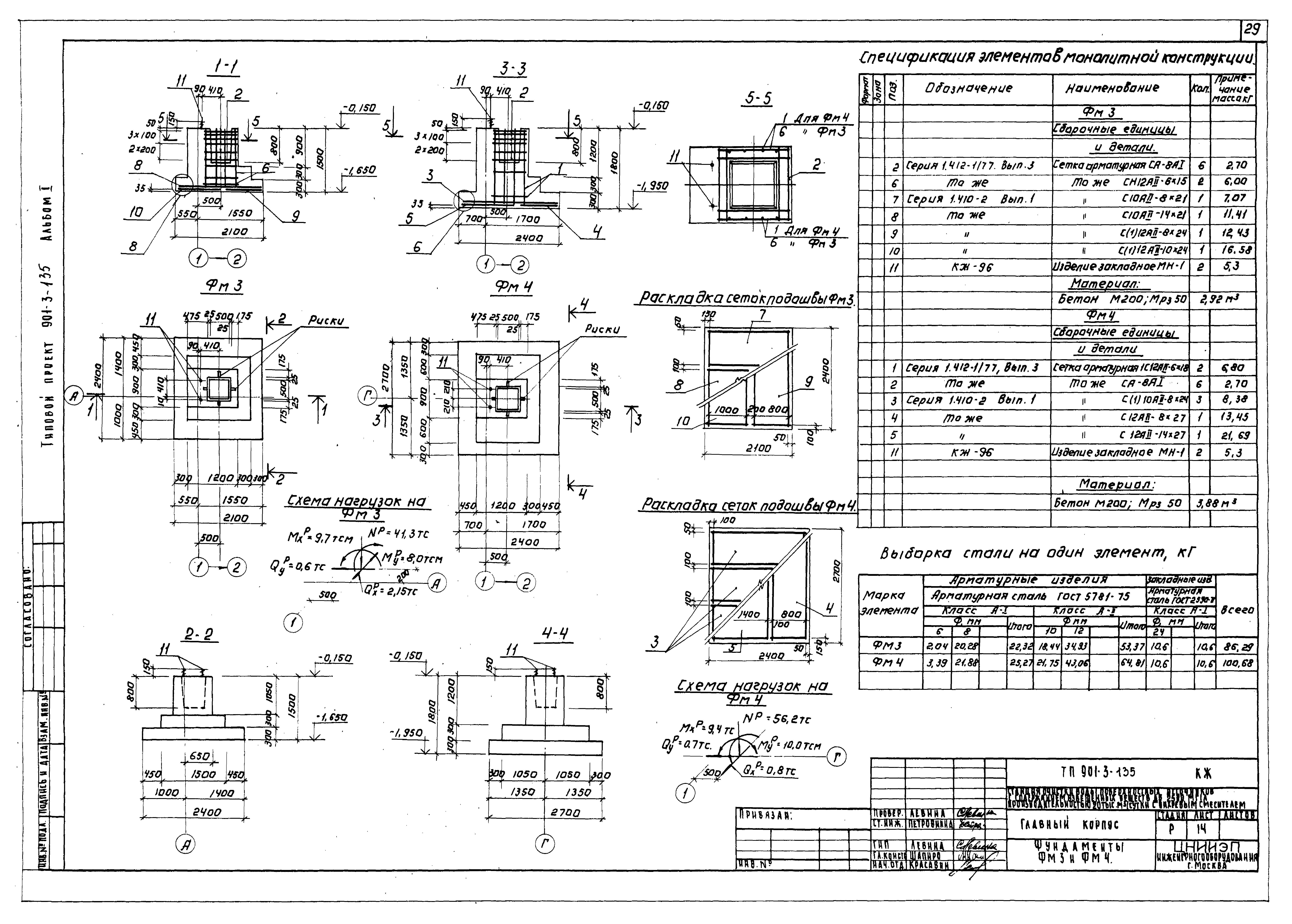
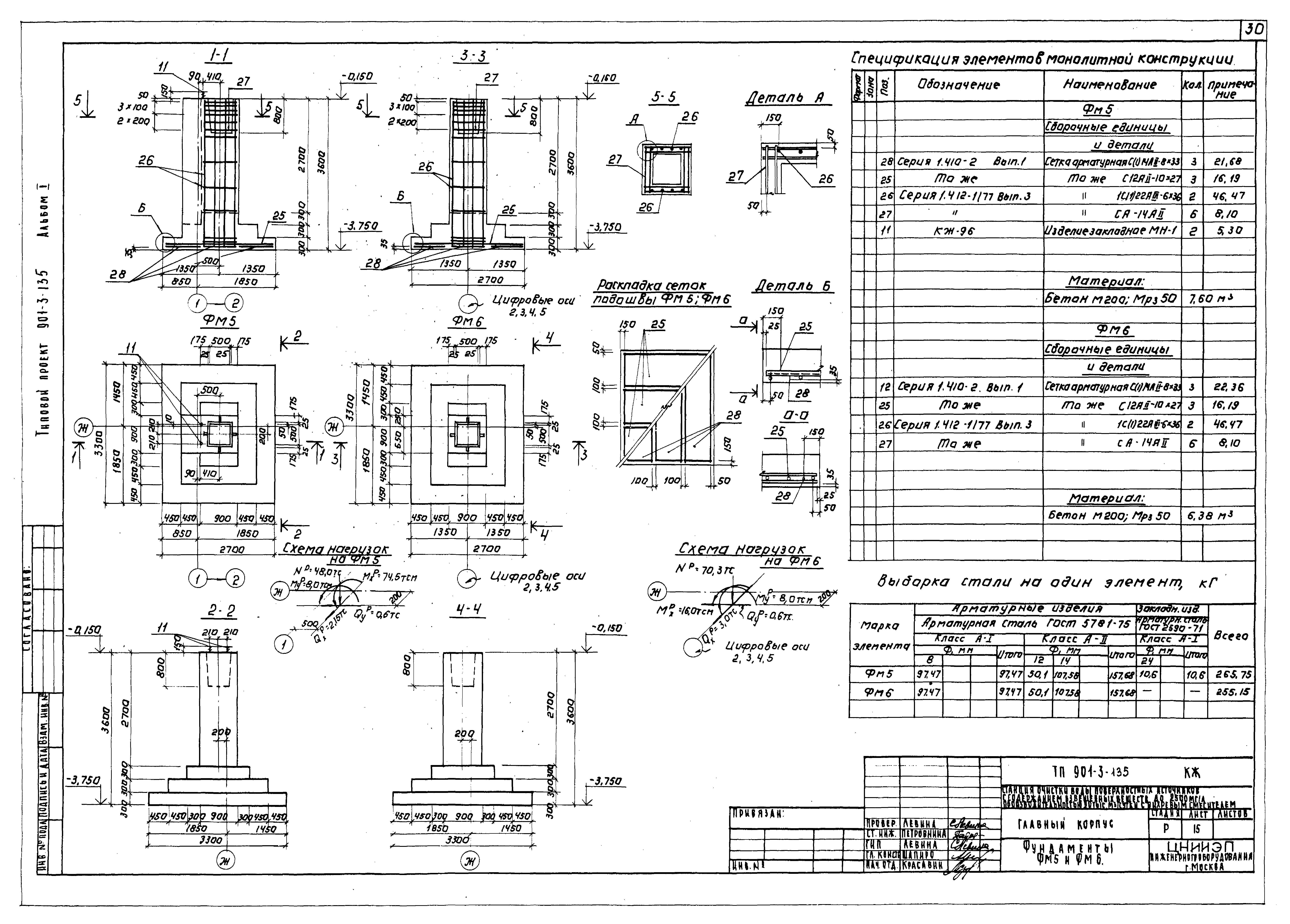
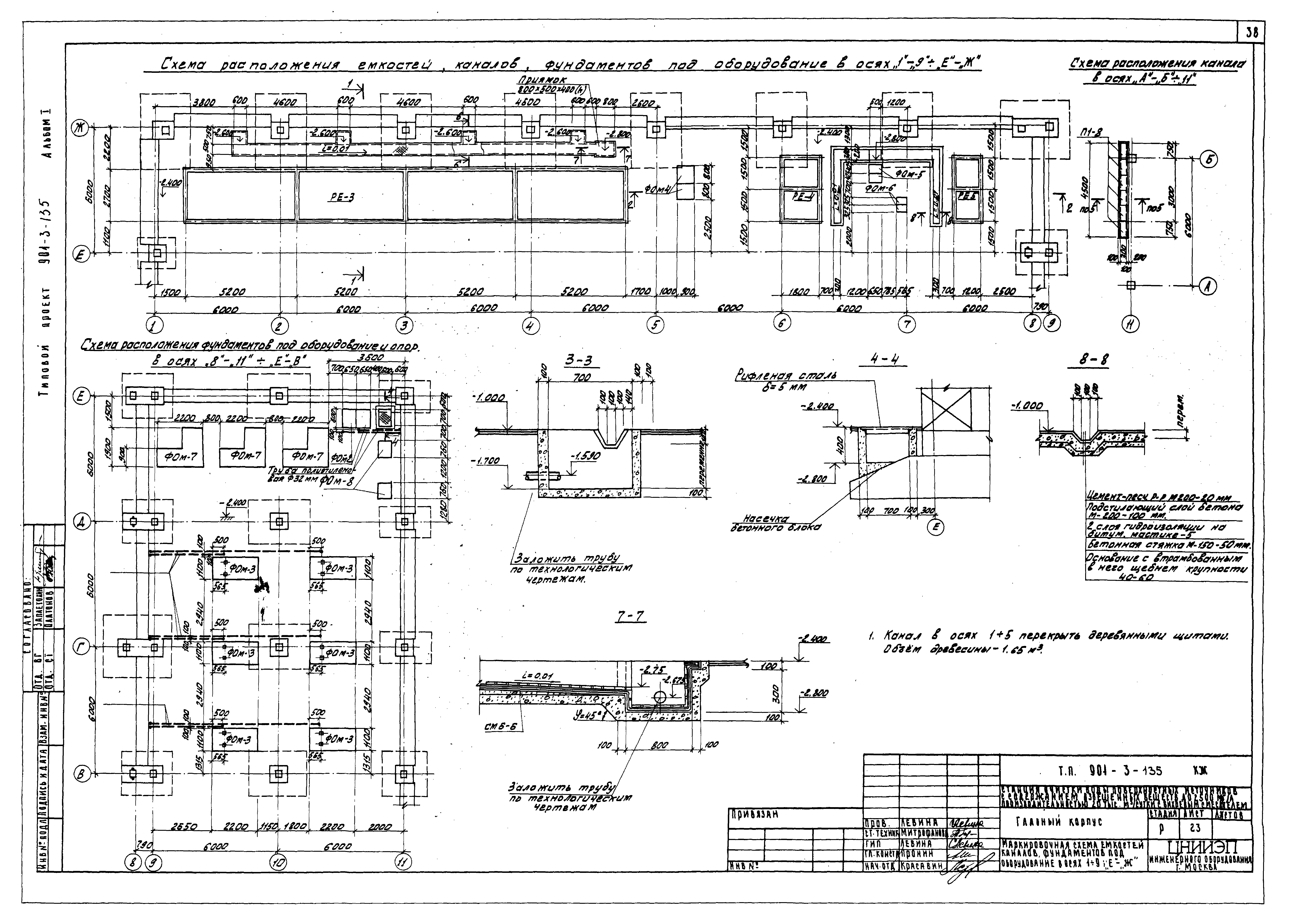
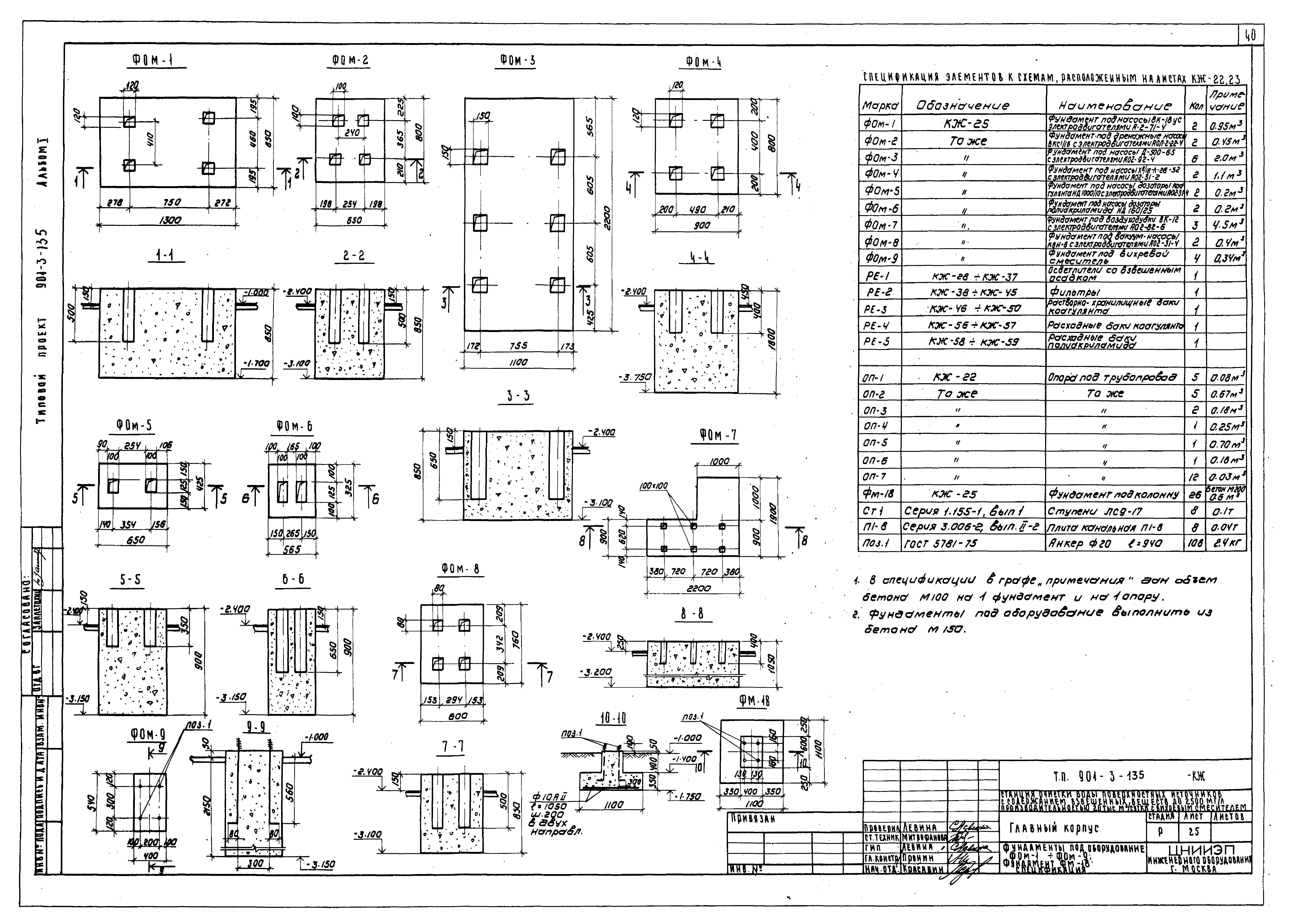
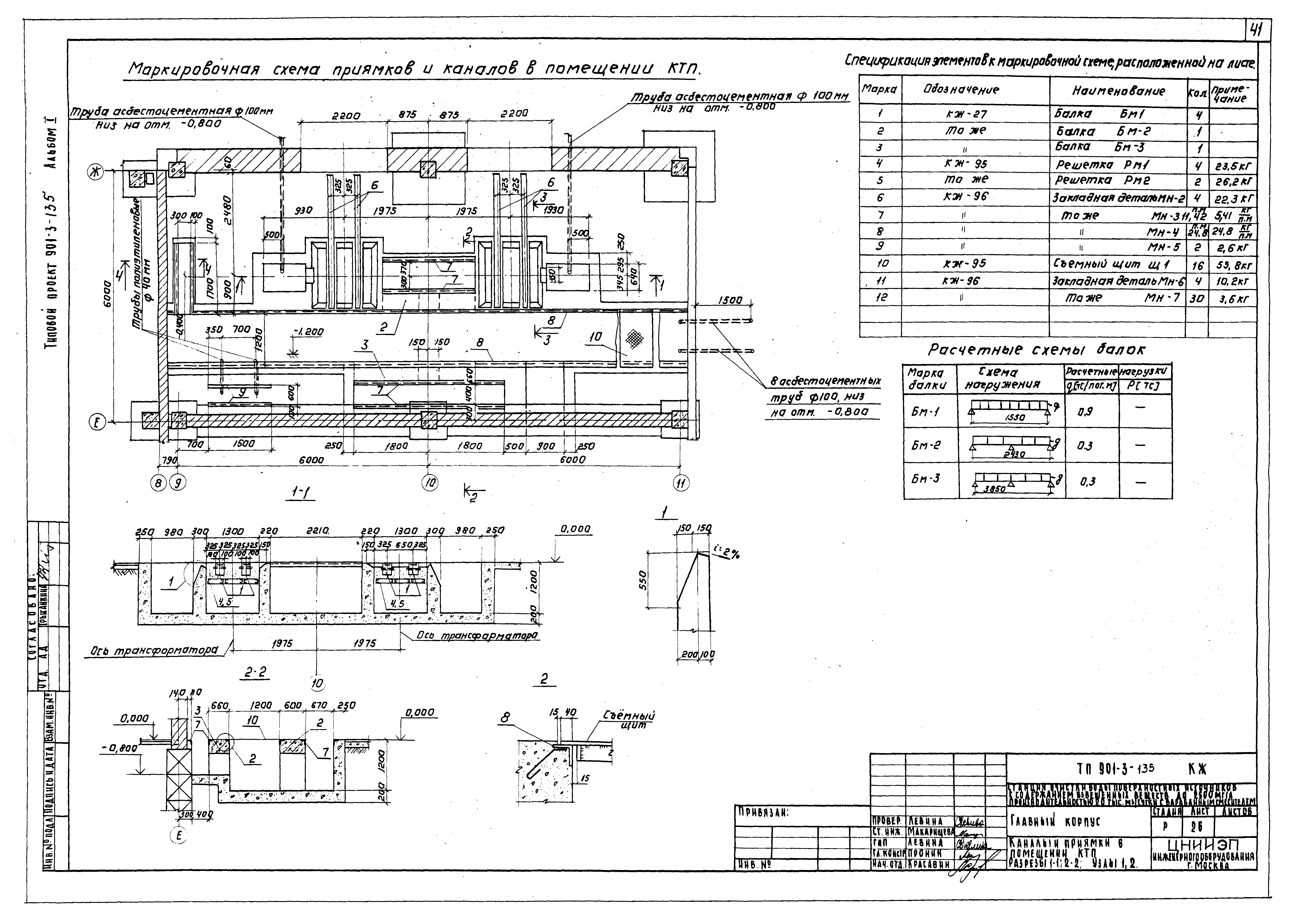
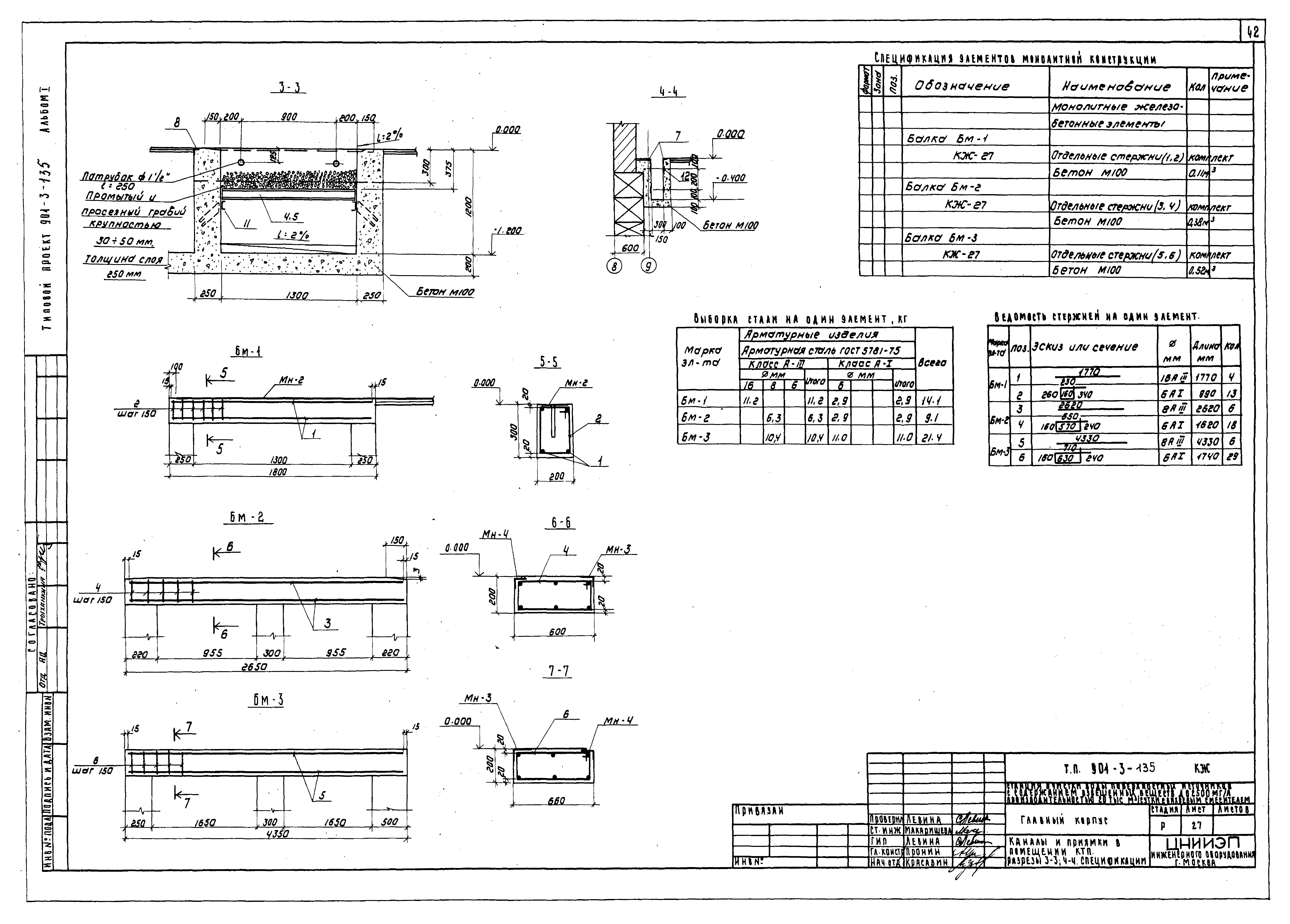
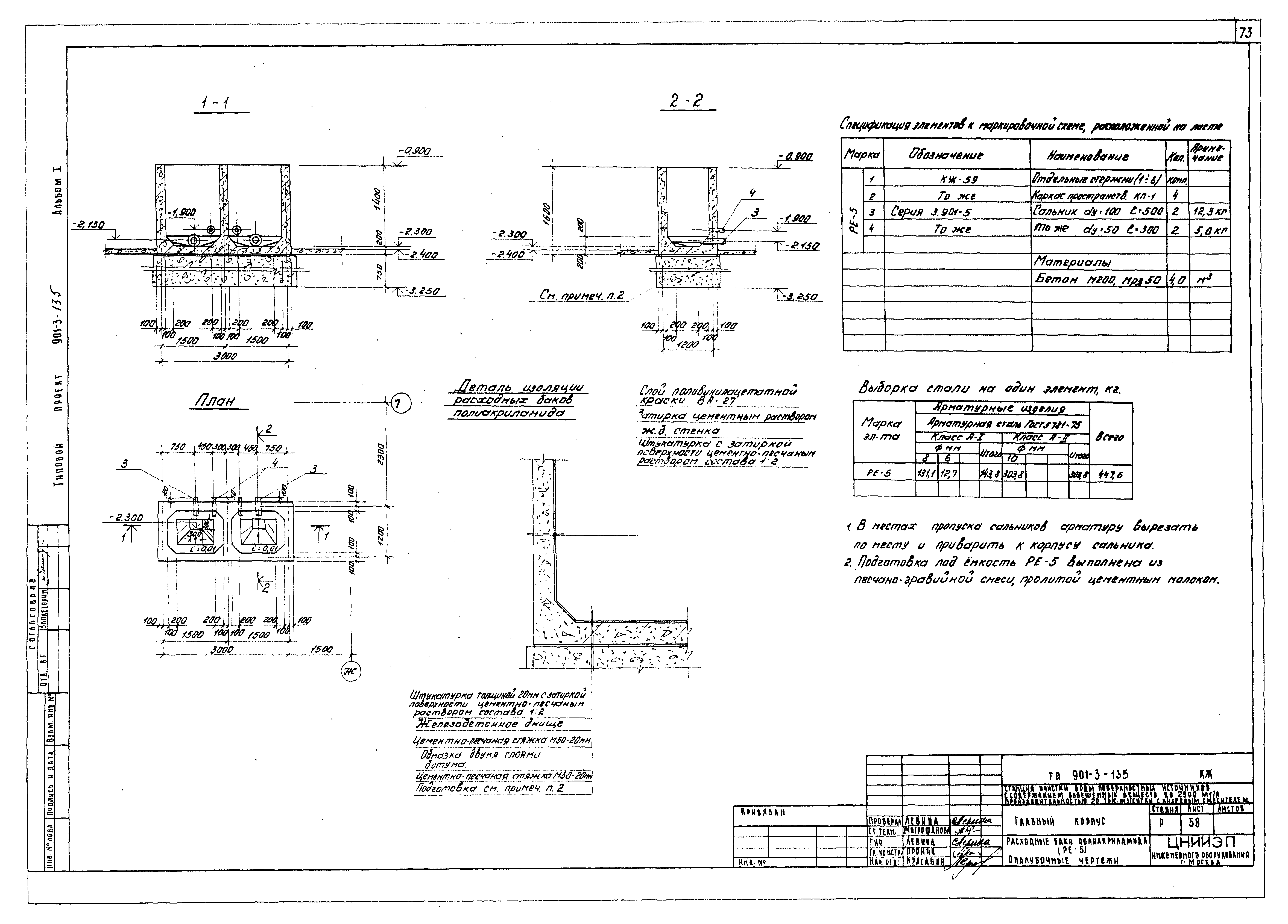
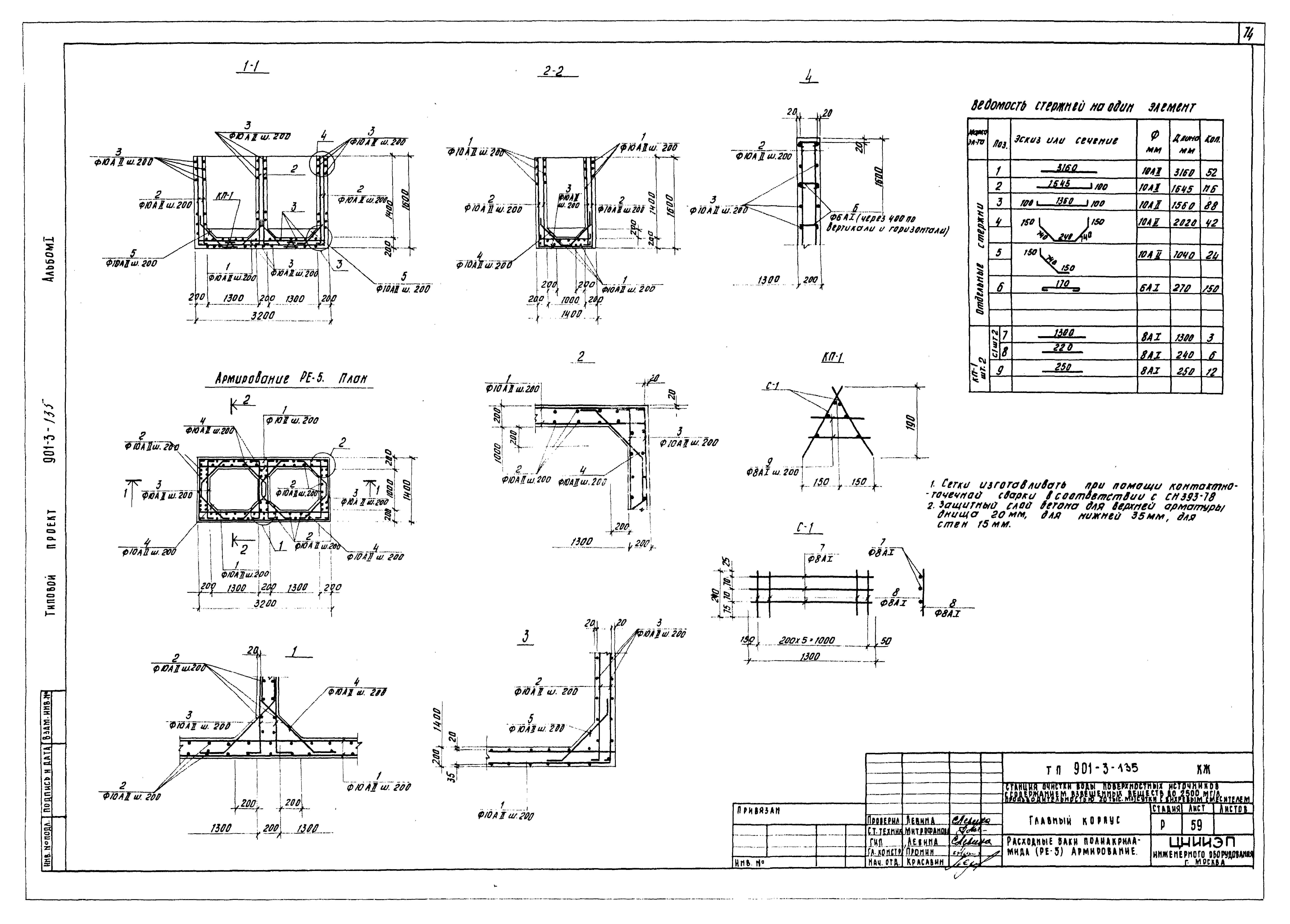
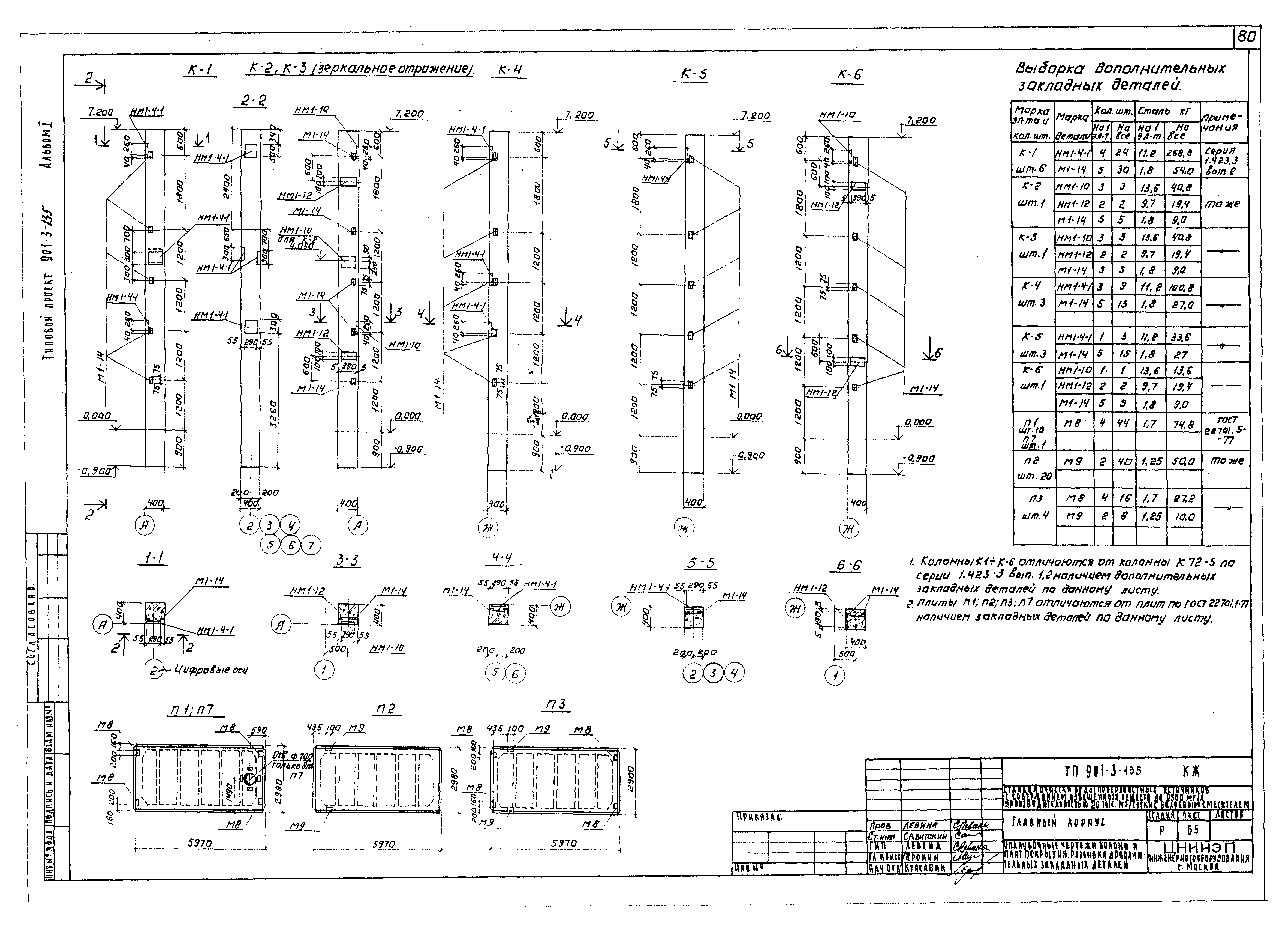
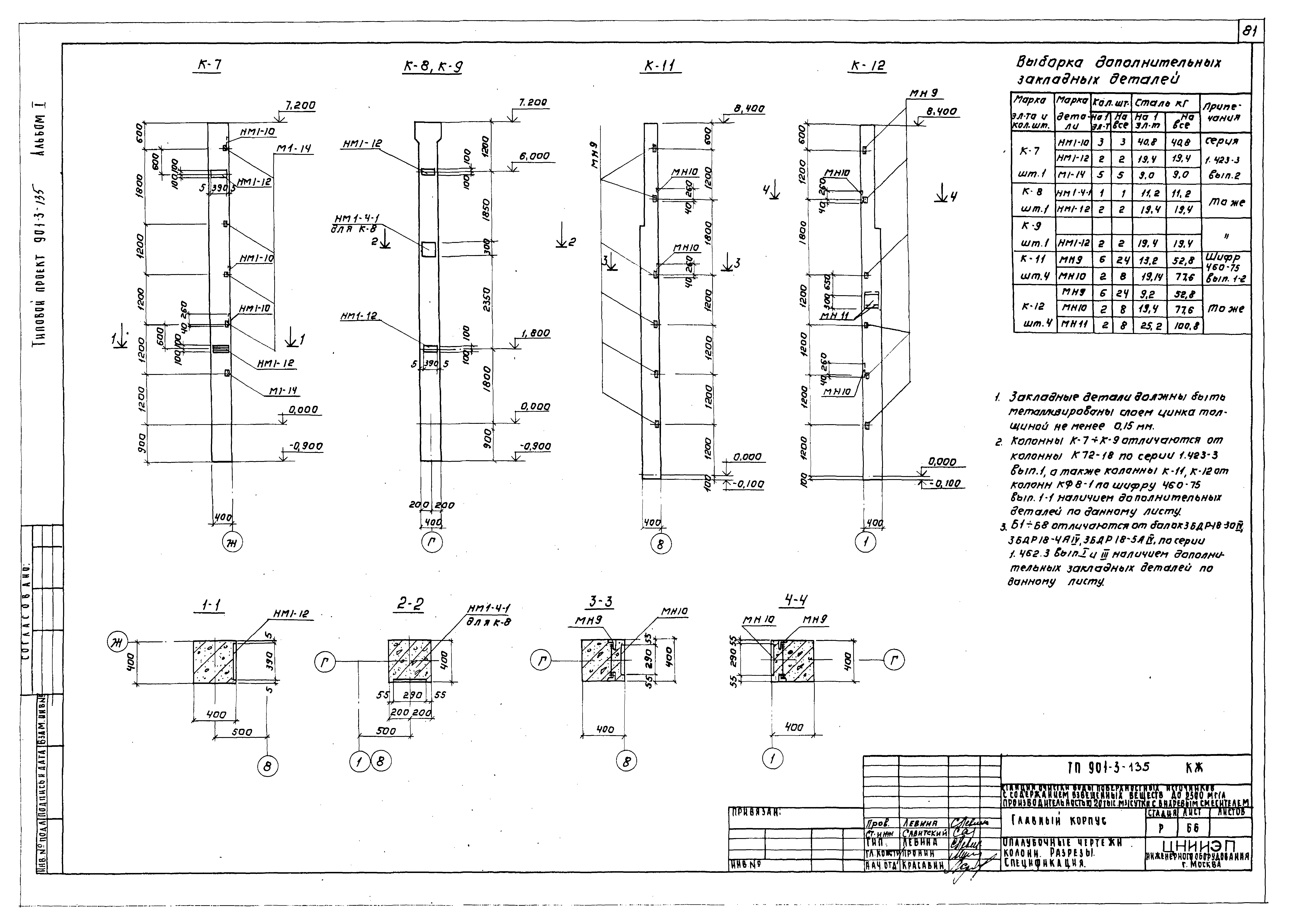
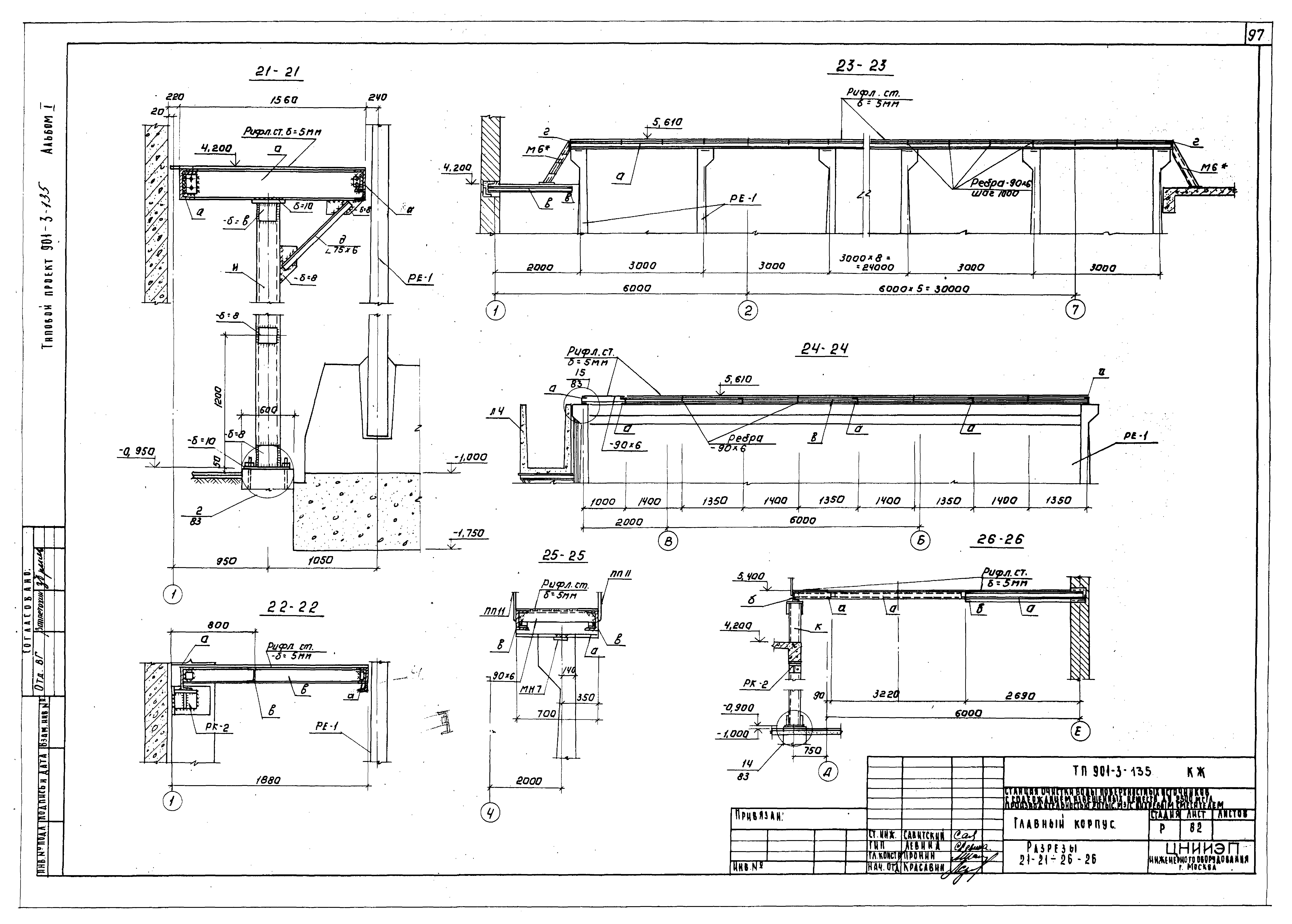
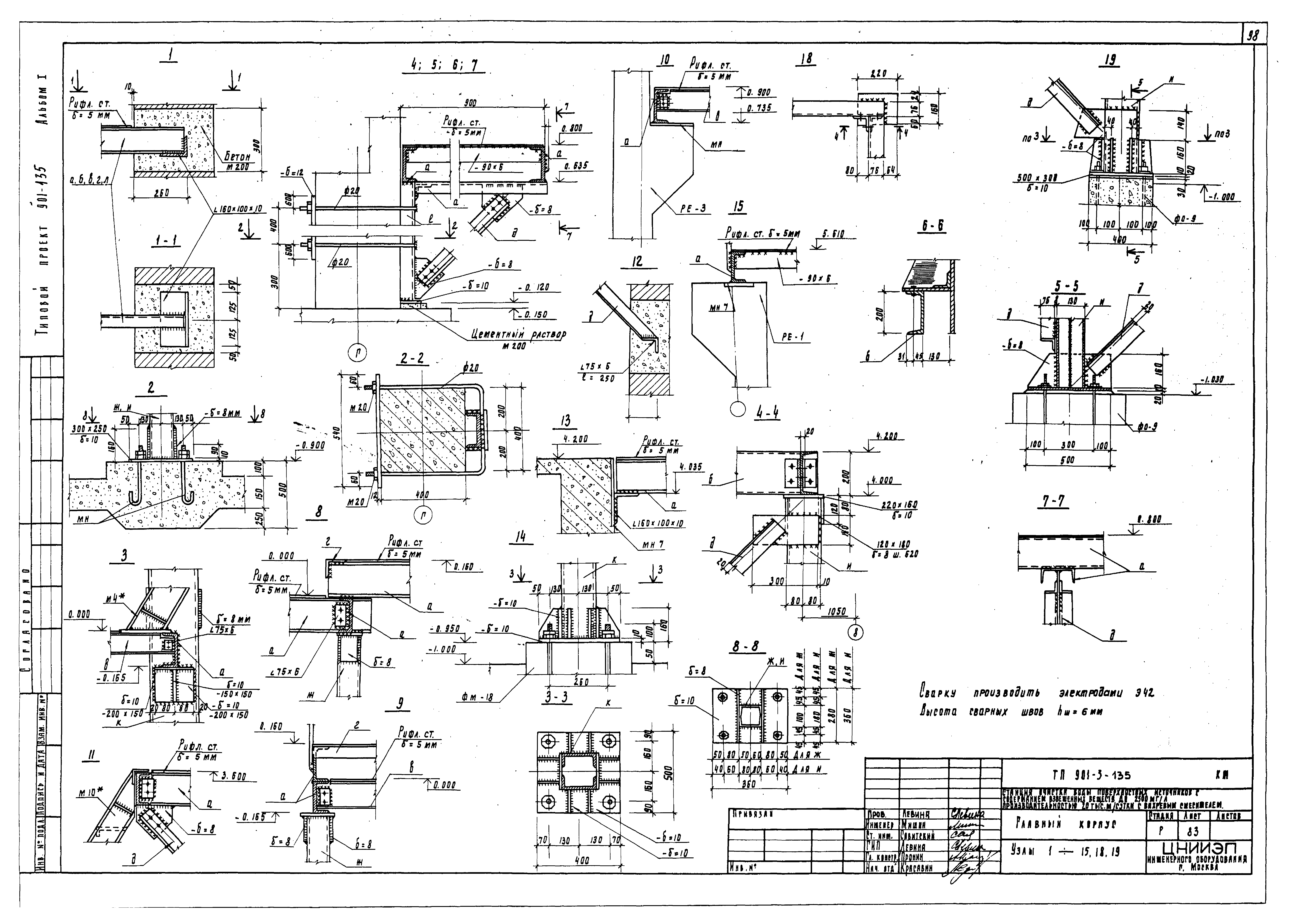
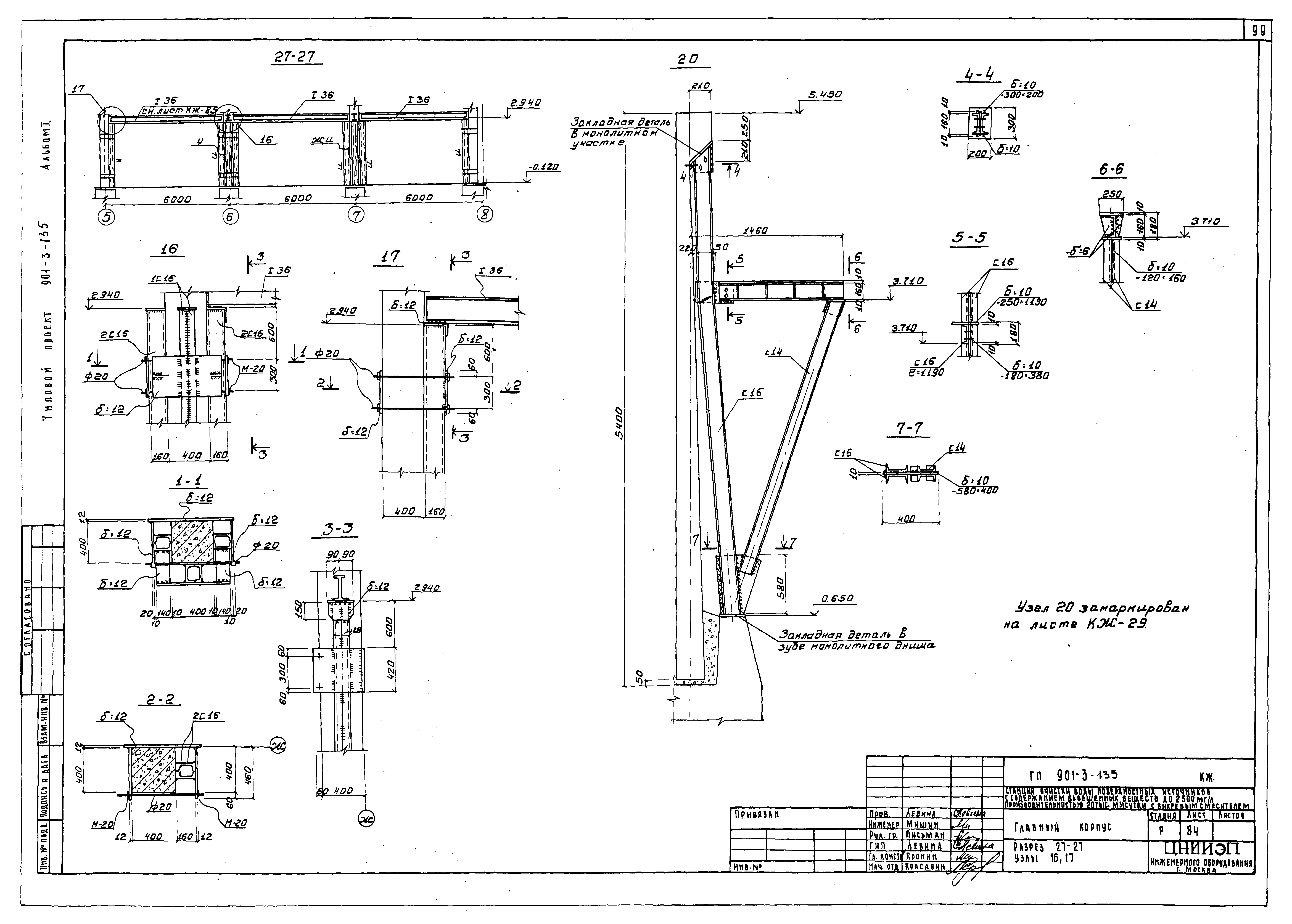
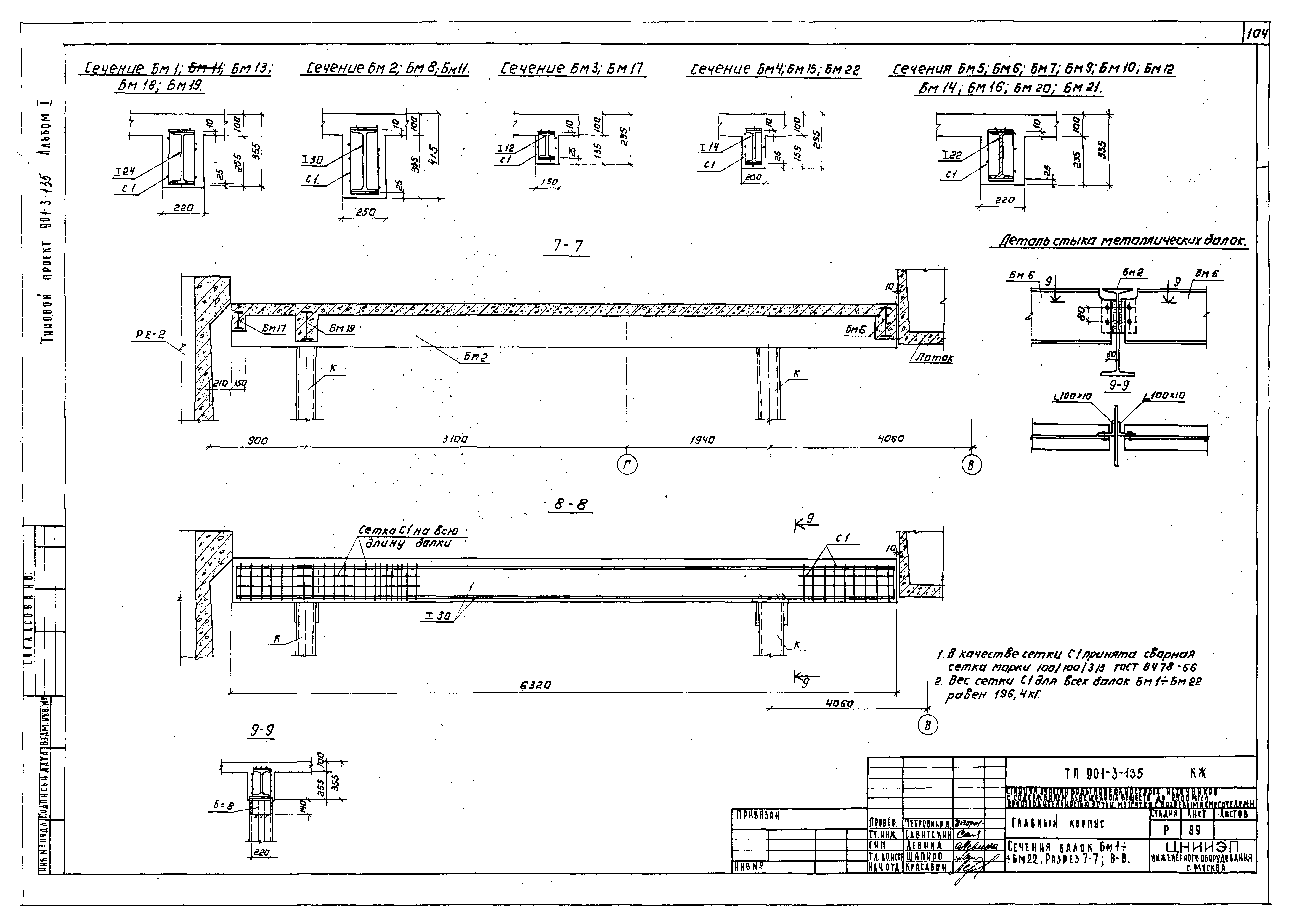
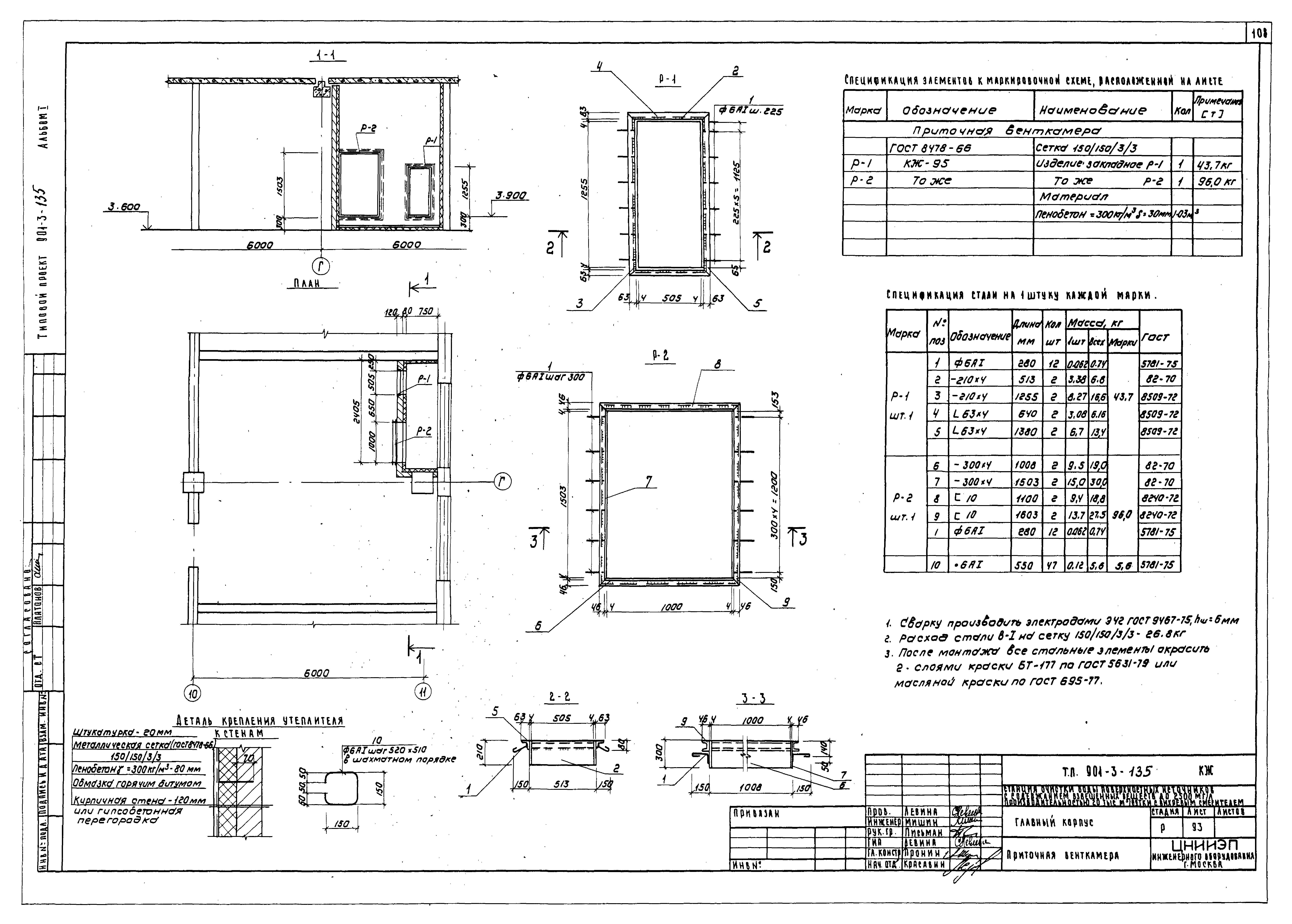
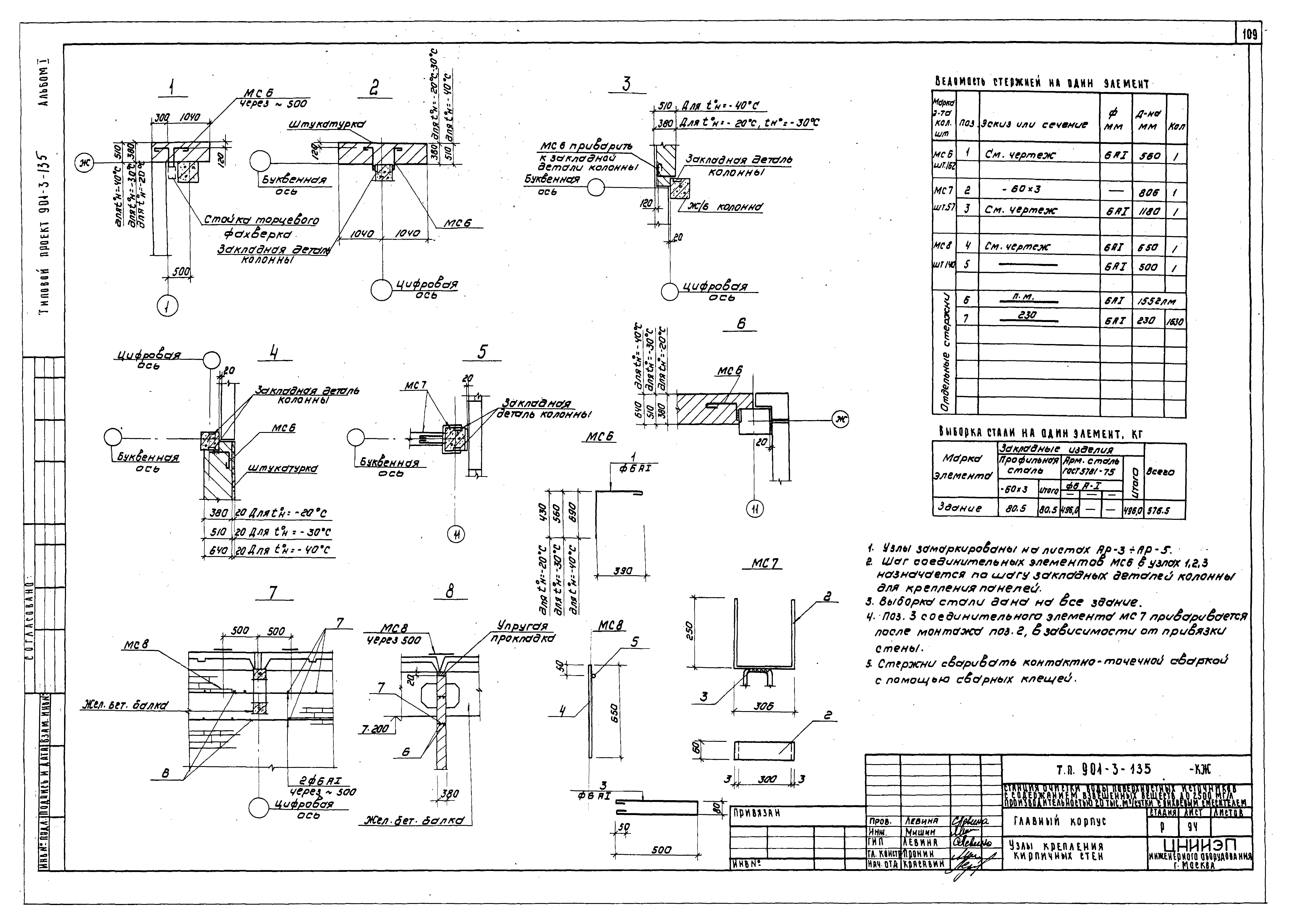
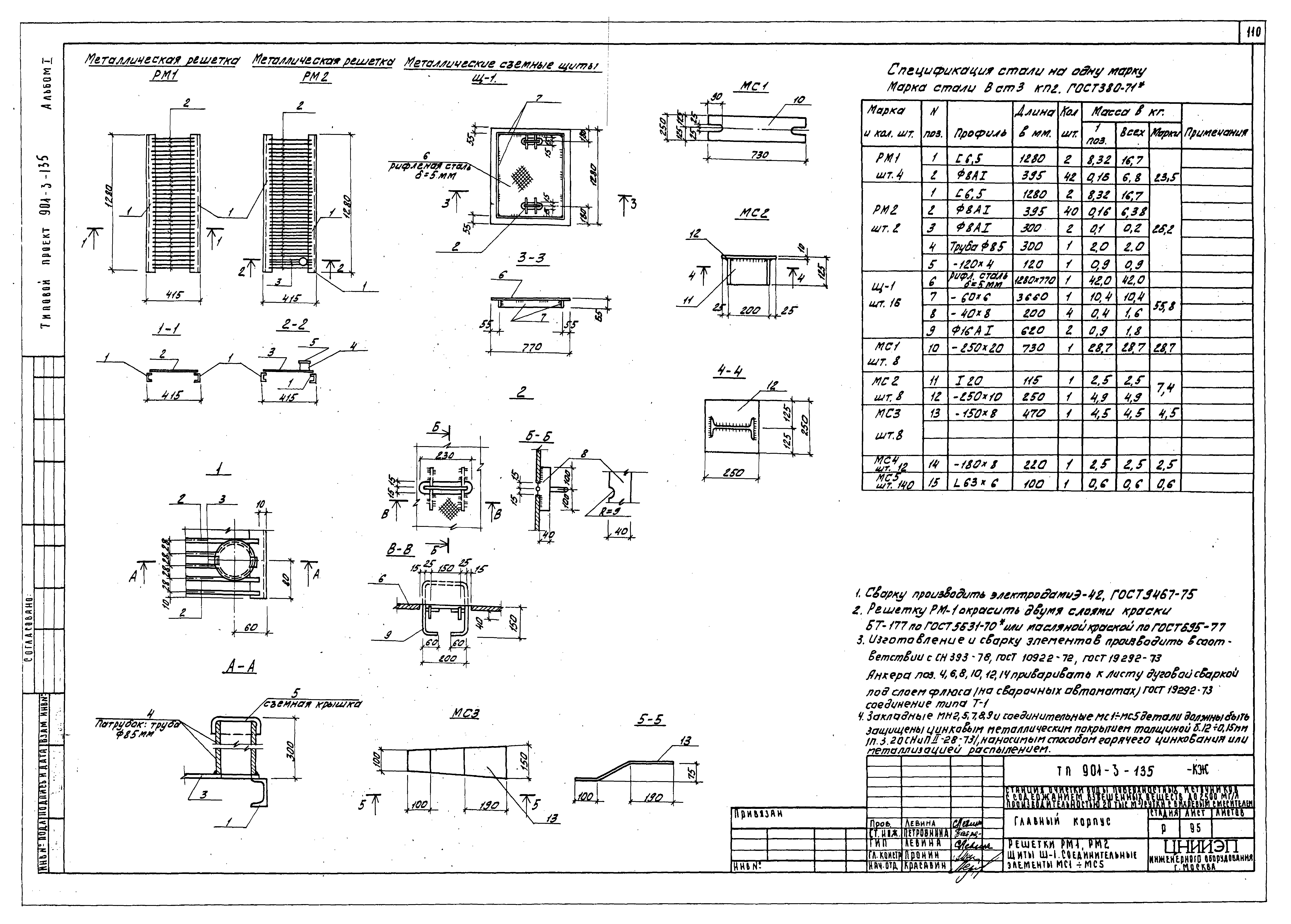
Скачать Типовой проект 901-3-135 Альбом I. Архитектурно-строительная частьДата актуализации: 01.01.2021
|
| Обозначение: | Типовой проект 901-3-135 |
| Обозначение англ: | 901-3-135 |
| Статус: | заменен |
| Название рус.: | Альбом I. Архитектурно-строительная часть |
| Дата добавления в базу: | 01.09.2013 |
| Дата актуализации: | 01.01.2021 |
| Дата введения: | 26.03.1980 |
| Дата окончания срока действия: | 01.04.1989 |
| Разработан: | ЦНИИЭП инженерного оборудования Госгражданстроя |
| Утверждён: | 27.05.1976 Госгражданстрой (Gosgrazhdanstroy 118) |
| Издан: | ЦИТП Госстроя СССР (CITP, Gosstroy (USSR) 1980 г. ) |
| Заменяет собой: |
|
| Чем заменён: | |
| Нормативные ссылки: |














































































































