Скачать Типовой проект 901-3-25 Альбом VI. Башня для хранения промывной воды с баком емкостью 300 куб. мДата актуализации: 01.01.2021
|
| Обозначение: | Типовой проект 901-3-25 |
| Обозначение англ: | 901-3-25 |
| Статус: | не определен законодательством |
| Название рус.: | Альбом VI. Башня для хранения промывной воды с баком емкостью 300 куб. м |
| Дата добавления в базу: | 01.10.2014 |
| Дата актуализации: | 01.01.2021 |
| Дата введения: | 12.07.1968 |
| Дата окончания срока действия: | 30.06.2003 |
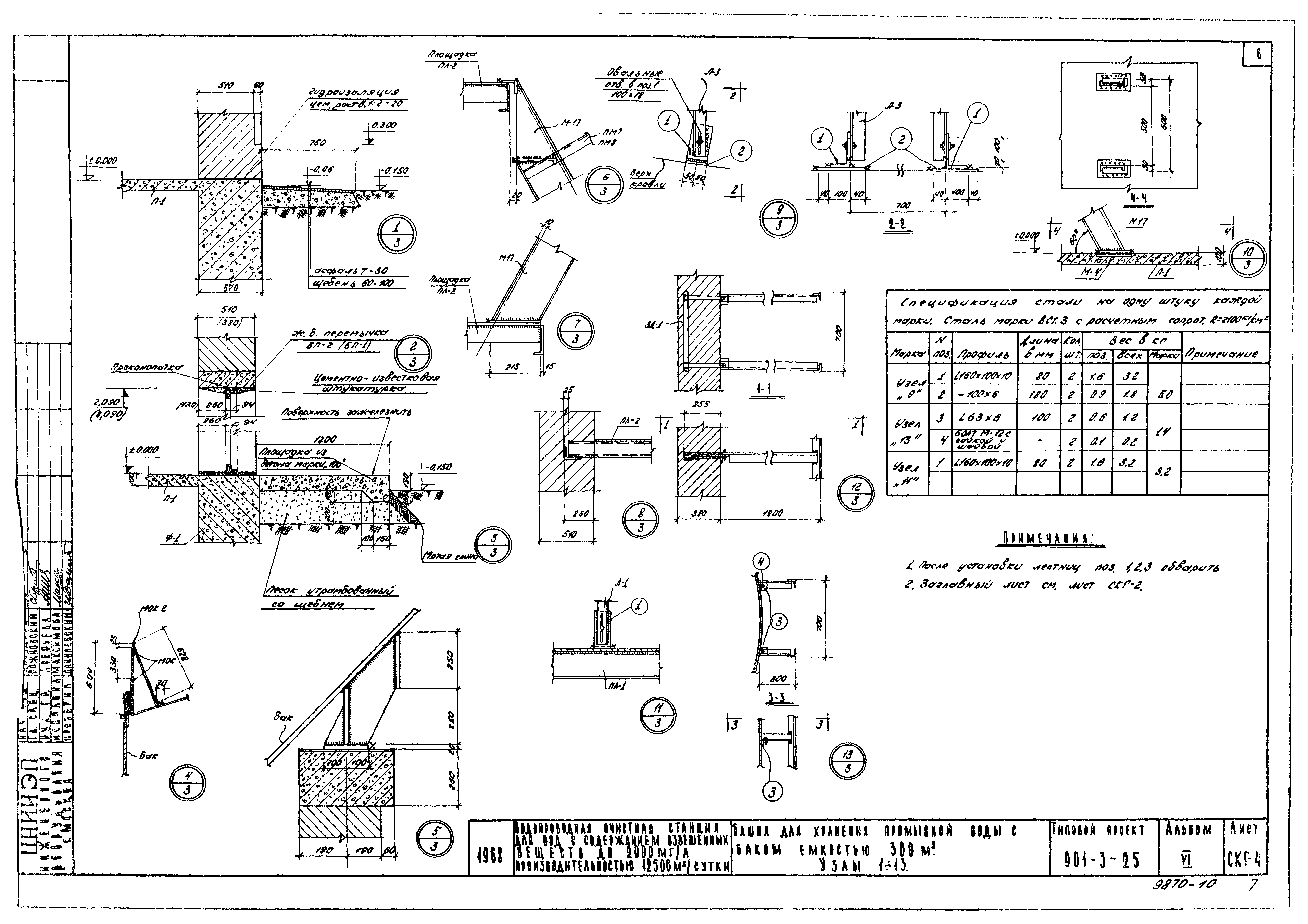
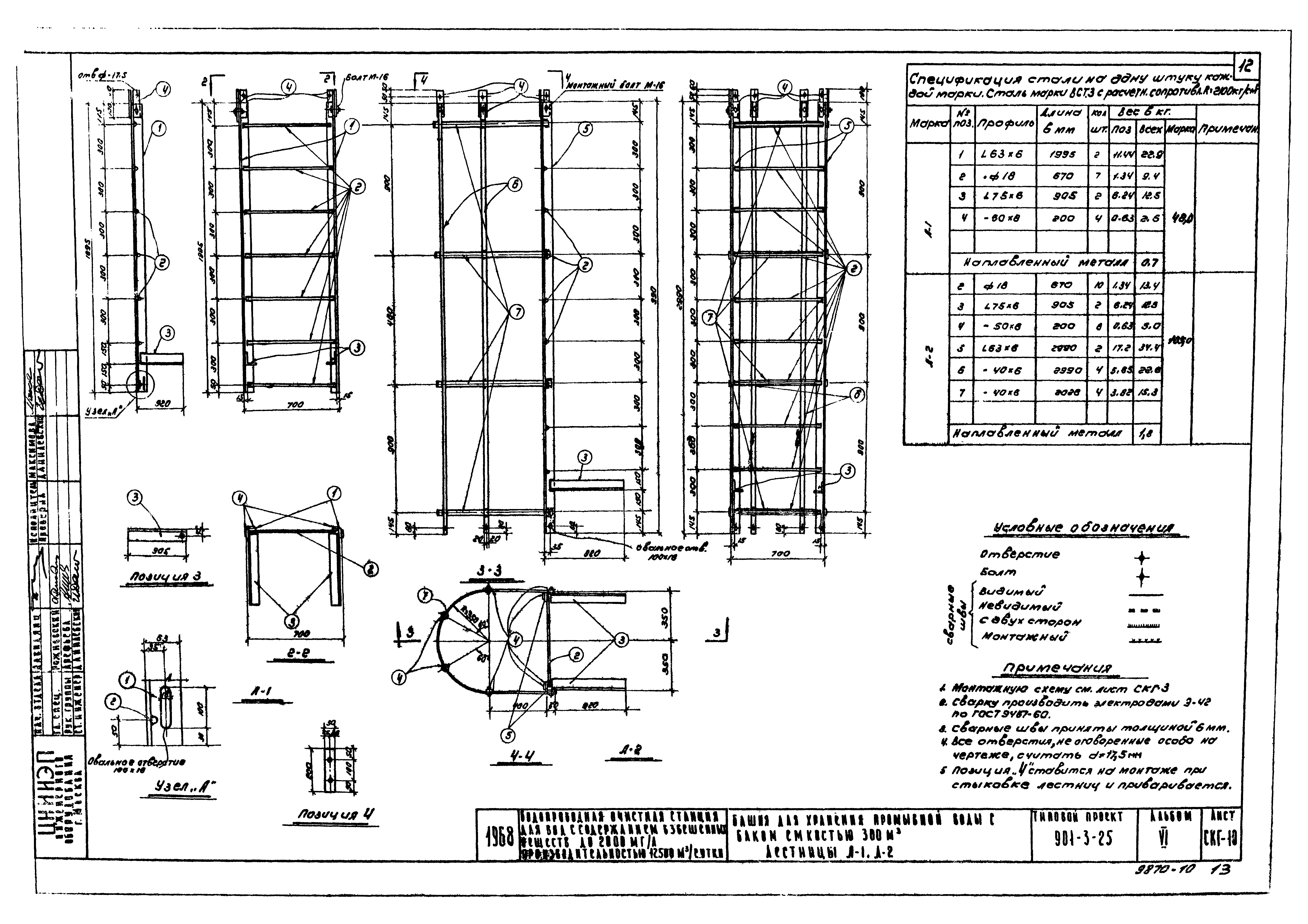
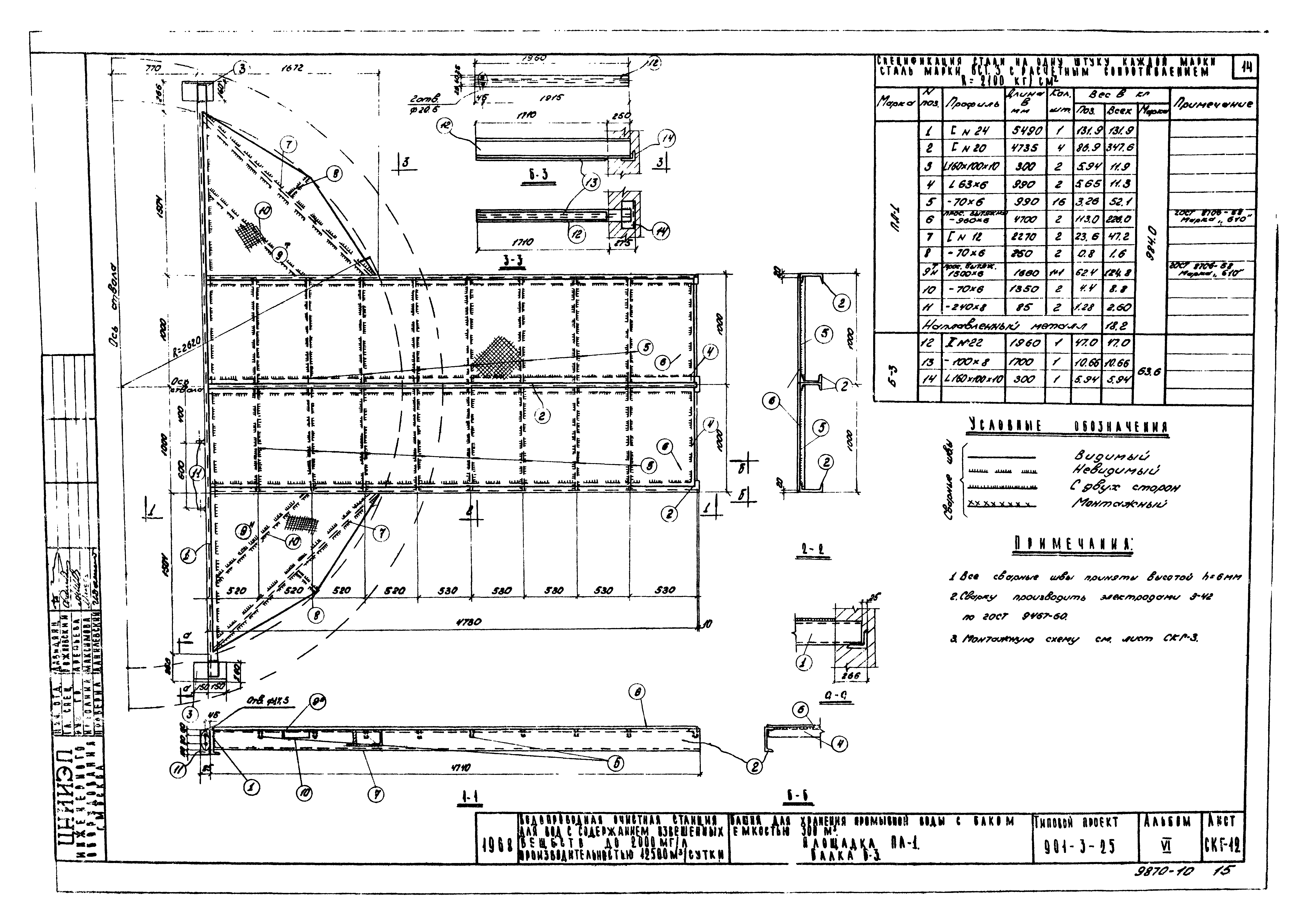
| Оглавление: | Содержание альбома Архитектурно-строительная часть Пояснительная записка Заглавный лист. Фасады. Выборки материалов на проект Планы и разрезы Узлы 1 - 13 Фрагмент фасада и детали кладки Детали утепления бака и труб Бак емкостью 300 куб. м Лестницы Л-1, Л-2 Лестница Л-3. Площадка ПЛ-3 Площадка ПЛ-1. Балка Б-3 Площадка ПЛ-2. Люк Оголовок ствола. Перемычки БП-1, БП-2. Закладные детали ЗД-1, ЗД-2 Опалубка фундамента Ф-1 и плиты П-1 Армирование фундамента Ф-1, плиты П-1, балок Б-1, Б-2 Технологическая часть Технологическое оборудование башни. Планы, разрез, аксонометрическая схема, спецификация Автоматика Установка датчиков уровней с электрообогревом в баке промывной башни Пост управления. Общий вид. Спецификация. Перечень надписей. Монтажная схема Датчик уровня с электрообогревом. Узлы и детали Электротехническая часть Пояснительная записка и спецификация Освещение и молниезащита |
| Разработан: | ЦНИИЭП инженерного оборудования |
| Утверждён: | 12.07.1968 ЦНИИЭП инженерного оборудования (TsNIIEP of Building Service Equipment 67) |


























