Скачать Типовой проект 902-2-364.83 Альбом VI. Часть 2. Нестандартизированное оборудование. Илоскреб (из ТП 902-2-362.83)Дата актуализации: 01.01.2021
|
| Обозначение: | Типовой проект 902-2-364.83 |
| Обозначение англ: | 902-2-364.83 |
| Статус: | не действует |
| Название рус.: | Альбом VI. Часть 2. Нестандартизированное оборудование. Илоскреб (из ТП 902-2-362.83) |
| Дата добавления в базу: | 01.09.2013 |
| Дата актуализации: | 01.01.2021 |
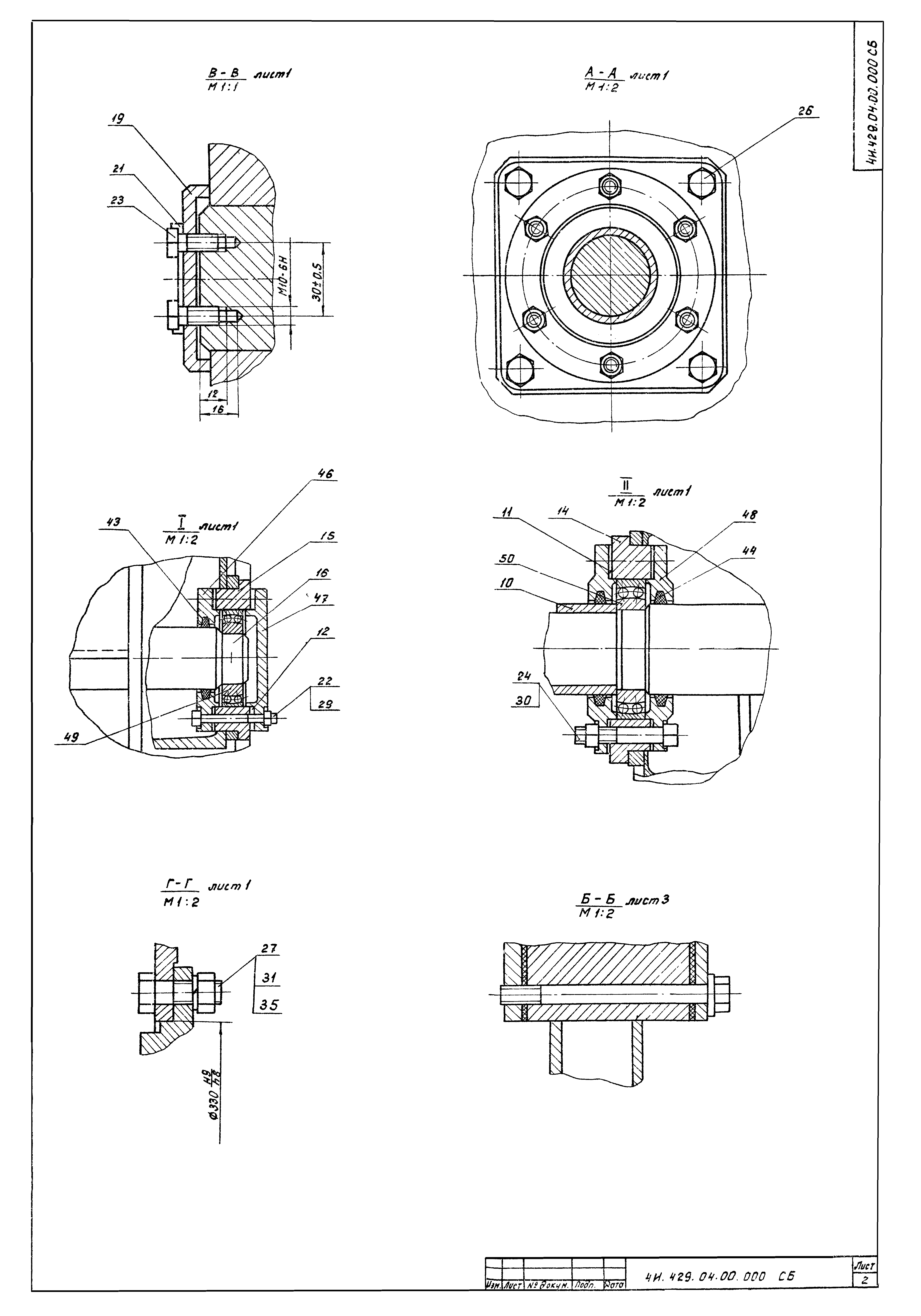
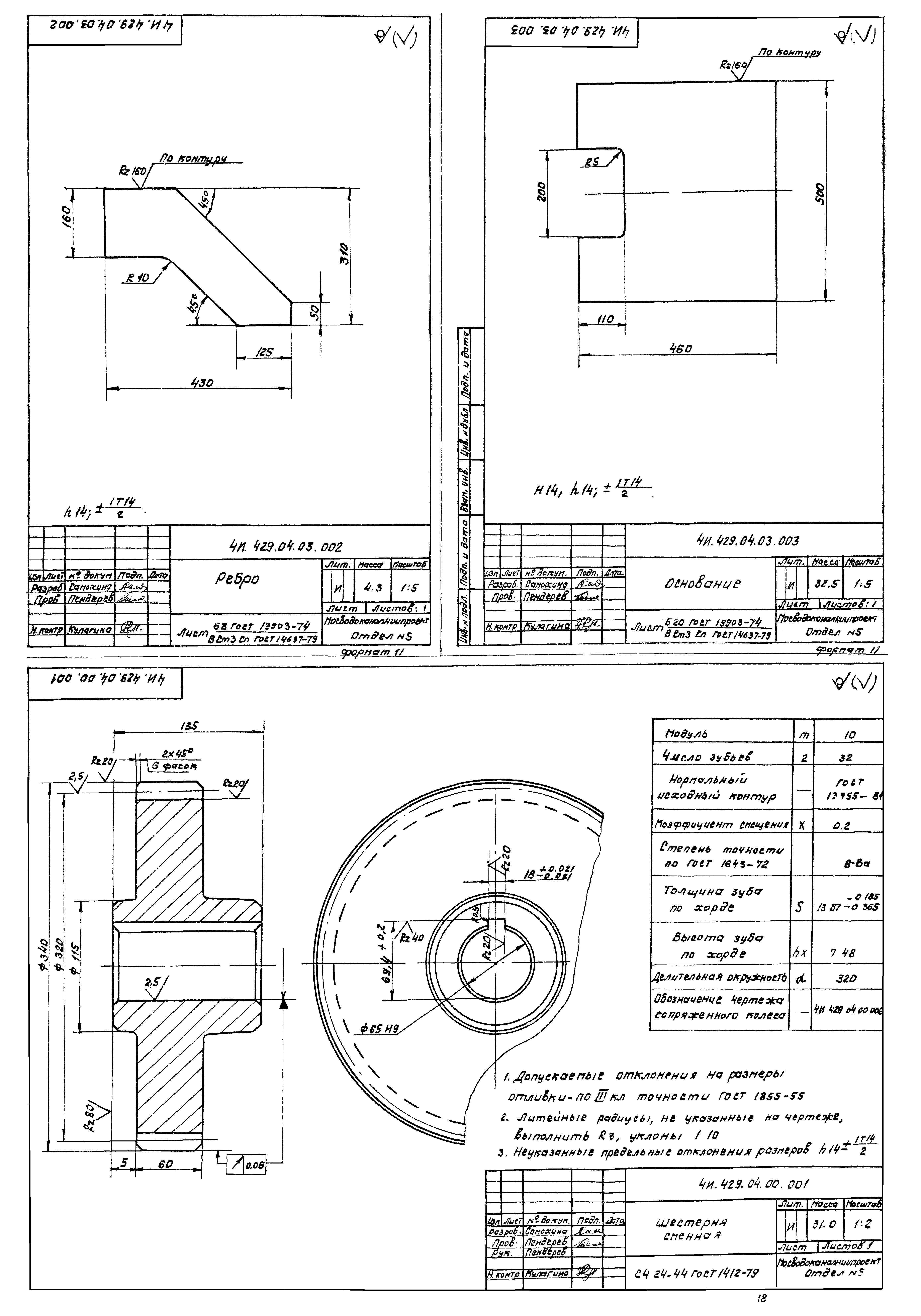
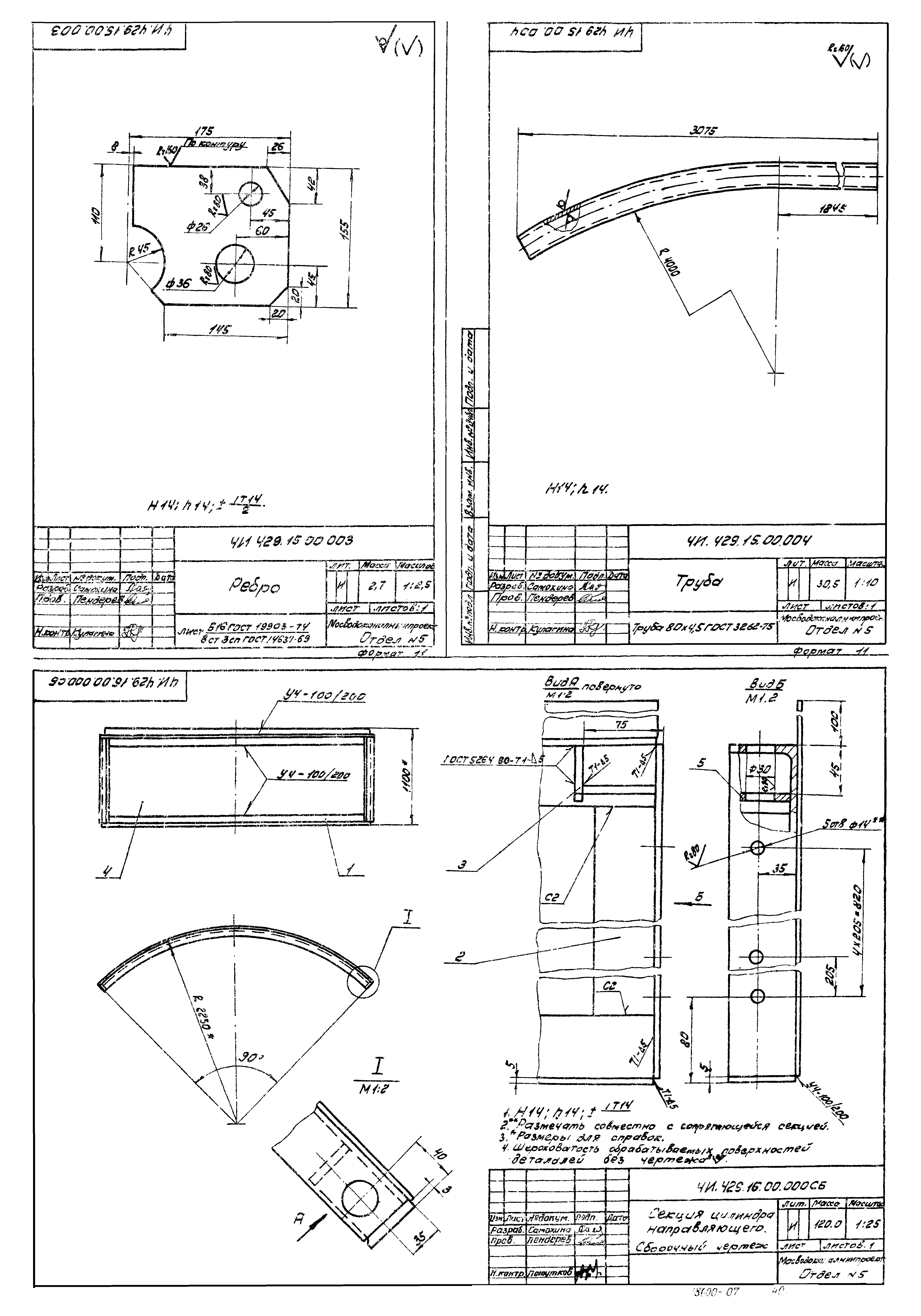
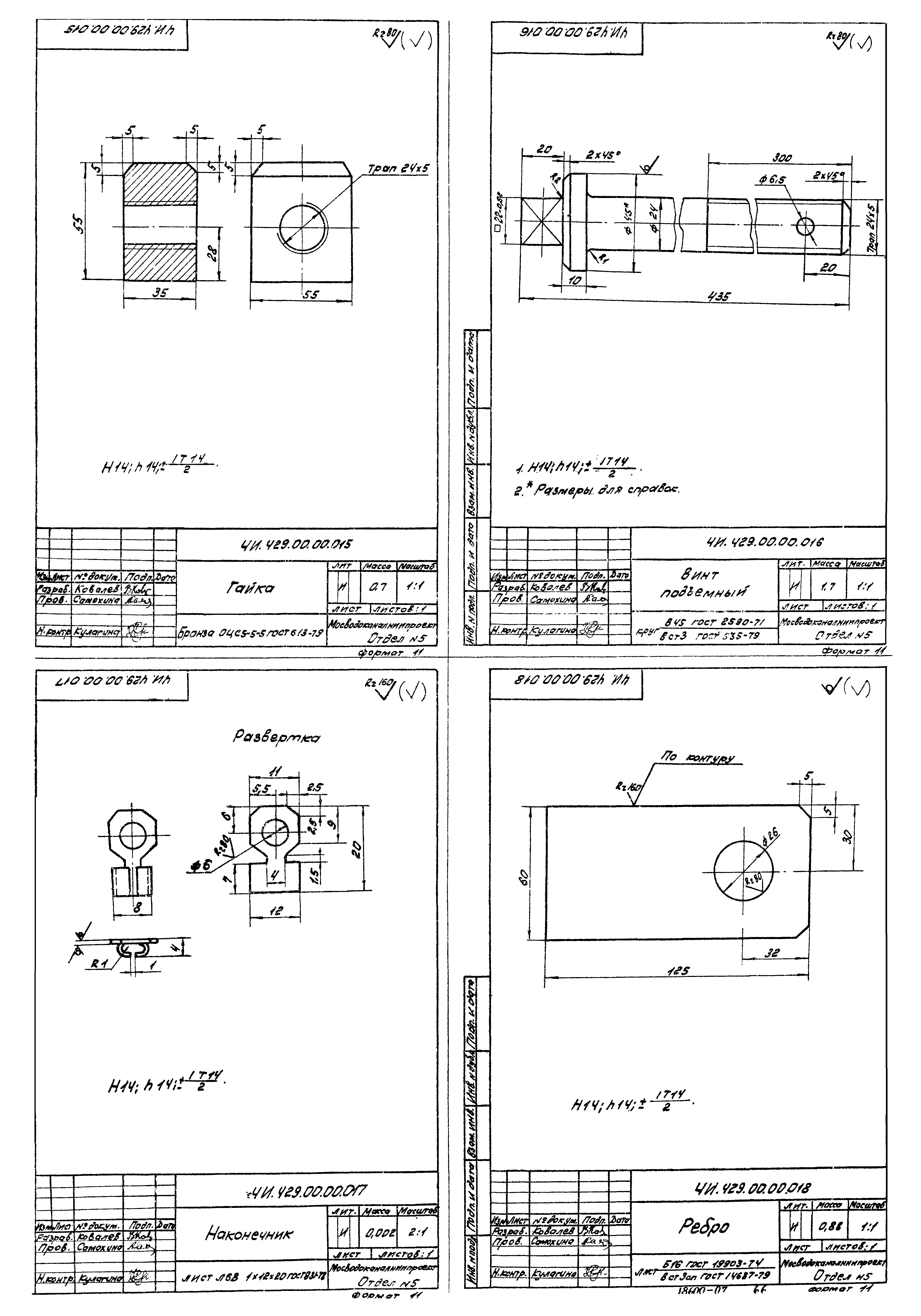
| Оглавление: | Часть 2 4И.429.04.00.000 СБ Привод. Лист 1 4И.429.04.00.000 СБ Привод. Лист 2 4И.429.04.00.000 СБ Привод. Лист 3 4И.429.04.00.000 Привод. Спецификация. Лист 1-4 4И.429.04.01.000 СБ Вал в сборе 4И.429.04.01.000 Вал в сборе. Спецификация. Лист 1-2 4И.429.04.01.100 Траверса. Спецификация 4И.429.04.01.101 Полоса верхняя 4И.429.04.01.100 СБ Траверса 4И.429.04.01.102 Стенка 4И.429.04.01.103 Полоса нижняя 4И.429.04.01.104 Обойма 4И.429.04.01.001 Втулка 4И.429.04.01.002 Колесо зубчатое 4И.429.04.01.003 Крышка подшипника 4И.429.04.01.004 Вал 4И.429.04.01.005 Кольцо дистанционное 4И.429.04.01.006 Прокладка 4И.429.04.01.007 Кольцо уплотнительное 4И.429.04.01.008 Полукольцо 4И.429.04.01.009 Крышка подшипника 4И.429.04.01.011 Крышка подшипника 4И.429.04.02.000 Рама. Спецификация. Лист 1-2 4И.429.04.02.000 СБ Рама. Лист 1 4И.429.04.02.000 СБ Рама. Лист 2 4И.429.04.02.000 СБ Рама. Лист 3 4И.429.04.02.001 Накладка 4И.429.04.02.002 Швеллер 4И.429.04.02.003 Ребро 4И.429.04.02.004 Лапа 4И.429.04.03.000 СБ Кронштейн 4И.429.04.03.000 Кронштейн. Спецификация 4И.429.04.03.001 Фланец 4И.429.04.03.002 Ребро 4И.429.04.03.003 Основание 4И.429.04.00.001 Шестеренка сменная 4И.429.04.00.002 Шестеренка сменная 4И.429.04.00.003 Шестеренка сменная 4И.429.04.00.004 Колесо зубчатое сменное 4И.429.04.00.005 Колесо зубчатое сменное 4И.429.04.00.006 Колесо зубчатое сменное 4И.429.04.00.007 Втулка дистанционная 4И.429.04.00.008 Прокладка 4И.429.04.00.009 Шестерня 4И.429.04.00.011 Стакан 4И.429.04.00.012 Стакан 4И.429.04.00.013 Вал промежуточный 4И.429.04.00.014 Ступица 4И.429.04.00.015 Палец 4И.429.04.00.016 Шайба глухая 4И.429.04.00.017 Шайба стопорная 4И.429.05.00.000 СБ Труба для кабеля 4И.429.05.00.000 Труба для кабеля. Спецификация 4И.429.05.00.001 Шайба 4И.429.05.00.002 Кольцо 4И.429.05.00.003 Труба 4И.429.06.00.000 СБ Опора центральная 4И.429.06.00.000 Опора центральная. Спецификация 4И.429.06.00.001 Труба 4И.429.06.00.002 Ребро 4И.429.06.00.003 Фланец 4И.429.07.00.000 СБ Опора радиальная 4И.429.07.00.000 Опора радиальная. Спецификация. Лист 1-2 4И.429.07.00.001 Обойма 4И.429.07.00.002 Прокладка 4И.429.07.00.003 Крышка подшипника 4И.429.07.00.004 Крышка подшипника 4И.429.08.00.000 СБ Расчалка 4И.429.08.00.000 Расчалка. Спецификация 4И.429.08.00.001 Серьга 4И.429.09.00.000 СБ Перекрытие 4И.429.09.00.000 Перекрытие. Спецификация 4И.429.10.00.000 СБ Стержень 4И.429.10.00.000 Стержень. Спецификация 4И.429.10.00.100 СБ Вилка 4И.429.10.00.100 Вилка. Спецификация 4И.429.10.00.101 Скоба 4И.429.10.00.102 Вставка 4И.429.11.00.000 СБ Узел крепления 4И.429.11.00.000 Узел крепления. Спецификация 4И.429.11.00.001 Ребро 4И.429.11.00.002 Пластина 4И.429.11.00.003 Ребро 4И.429.11.00.004 Ребро 4И.429.12.00.000 СБ Стойка 4И.429.12.00.000 Стойка. Спецификация 4И.429.12.00.001 Ребро 4И.429.12.00.002 Ребро 4И.429.13.00.000 СБ Перекрытие съемное 4И.429.13.00.000 Перекрытие съемное. Спецификация 4И.429.14.00.000 СБ Путь рельсовый внутренний 4И.429.14.00.000 Путь рельсовый внутренний. Спецификация 4И.429.14.00.001 Кольцо 4И.429.14.00.002 Головка 4И.429.14.00.003 Основание 4И.429.15.00.000 СБ Скребок дополнительный 4И.429.15.00.000 Скребок дополнительный. Спецификация 4И.429.15.01.000 СБ Вилка 4И.429.15.01.000 Вилка. Спецификация 4И.429.15.01.001 Скоба 4И.429.15.01.002 Вставка 4И.429.15.00.001 Ребро 4И.429.15.00.002 Лист 4И.429.15.00.003 Ребро 4И.429.15.00.004 Труба 4И.429.16.00.000 СБ Секция цилиндра направляющего 4И.429.16.00.000 Секция цилиндра направляющего. Спецификация 4И.429.16.00.001 Окантовка 4И.429.16.00.002 Угольник 4И.429.16.00.003 Ребро 4И.429.16.00.004 Обечайка 4И.429.17.00.000 СБ Кронштейн 4И.429.17.00.000 Кронштейн. Спецификация 4И.429.17.00.001 Раскос 4И.429.17.00.002 Пластина 4И.429.17.00.003 Накладка 4И.429.17.00.004 Ребро 4И.429.18.00.000 СБ Толкатель 4И.429.18.00.000 Толкатель. Спецификация 4И.429.18.01.000 СБ Штанга 4И.429.18.01.000 Штанга. Спецификация 4И.429.18.01.001 Стержень 4И.429.18.01.002 Вилка 4И.429.18.00.001 Ось 4И.429.18.00.002 Каток 4И.429.18.00.003 Оседержатель 4И.429.19.00.000 СБ Лестница 4И.429.19.00.000 Лестница. Спецификация 4И.429.19.00.001 Лапа 4И.429.19.00.002 Лапа 4И.429.19.00.003 Стойка 4И.429.20.00.000 СБ Стойка 4И.429.20.00.000 Стойка. Спецификация 4И.429.20.01.000 СБ Козырек 4И.429.20.01.000 Козырек. Спецификация 4И.429.20.01.001 Обечайка коническая 4И.429.20.01.002 Обечайка цилиндрическая 4И.429.20.00.001 Труба 4И.429.20.00.002 Палец 4И.429.21.00.000 Стойка. Спецификация 4И.429.21.00.001 Пластина 4И.429.21.00.000 СБ Стойка 4И.429.21.00.002 Ножка 4И.429.21.00.003 Распорка 4И.429.21.00.004 Лапа 4И.429.22.00.000 СБ Плитка анкерная 4И.429.22.00.000 Плитка анкерная. Спецификация 4И.429.22.00.001 Стержень 4И.429.22.00.002 Пластина 4И.429.23.00.000 Кожух для сменных шестерен. Спецификация 4И.429.23.00.000 СБ Кожух для сменных шестерен 4И.429.23.00.001 Стенка боковая 4И.429.23.00.002 Стенка передняя 4И.429.23.00.003 Стенка задняя 4И.429.24.00.000 Кожух. Спецификация 4И.429.24.00.000 СБ Кожух 4И.429.24.00.001 Лист боковой 4И.429.24.00.002 Стенка 4И.429.25.00.000 СБ Кронштейн 4И.429.25.00.000 Кронштейн. Спецификация 4И.429.25.00.001 Швеллер 4И.429.25.00.002 Угольник 4И.429.26.00.000 СБ Вилка 4И.429.26.00.000 Вилка. Спецификация 4И.429.26.00.001 Скоба 4И.429.26.00.002 Пруток 4И.429.27.00.000 СБ Плита 4И.429.27.00.000 Плита. Спецификация 4И.429.28.00.000 СБ Домкрат 4И.429.28.00.000 Домкрат. Спецификация 4И.429.28.00.001 Плита 4И.429.28.00.002 Винт 4И.429.28.00.003 Штифт 4И.429.29.00.000 СБ Скребок 4И.429.29.00.000 Скребок. Спецификация 4И.429.29.00.001 Угольник 4И.429.29.00.002 Накладка 4И.429.29.00.003 Планка 4И.429.29.00.004 Щетка 4И.429.30.00.000 СБ Штанга 4И.429.30.00.000 Штанга. Спецификация 4И.429.30.00.001 Винт 4И.429.30.00.002 Планка 4И.429.31.00.000 СБ Кронштейн 4И.429.31.00.000 Кронштейн. Спецификация 4И.429.31.00.001 Анкер 4И.429.00.00.001 Тяга 4И.429.00.00.002 Подкос 4И.429.00.00.003 Плита 4И.429.00.00.004 Лист средний 4И.429.00.00.005 Шпилька 4И.429.00.00.006 Шайба 4И.429.00.00.007 Угольник 4И.429.00.00.008 Поручень 4И.429.00.00.009 Перекрытие 4И.429.00.00.011 Ось 4И.429.00.00.012 Муфта 4И.429.00.00.013 Шайба сферическая нижняя 4И.429.00.00.014 Шайба сферическая 4И.429.00.00.015 Гайка 4И.429.00.00.016 Винт подъемный 4И.429.00.00.017 Наконечник 4И.429.00.00.018 Ребро 4И.429.00.00.019 Ось 4И.429.00.00.021 Рычаг 4И.429.00.00.022 Планка 4И.429.00.00.000 ТУ Илоскреб ИПР-18. Технические условие |
| Разработан: | МосводоканалНИИпроект |
| Утверждён: | 14.12.1982 МосводоканалНИИпроект (213) |




































































