Скачать Серия 1.865-4 Выпуск 3. Рабочие чертежи плит размером 1,5х6 мДата актуализации: 01.01.2021
|
| Обозначение: | Серия 1.865-4 |
| Обозначение англ: | Series 1.865-4 |
| Статус: | не действует |
| Название рус.: | Выпуск 3. Рабочие чертежи плит размером 1,5х6 м |
| Дата добавления в базу: | 01.09.2013 |
| Дата актуализации: | 01.01.2021 |
| Дата введения: | 01.01.1978 |
| Дата окончания срока действия: | 01.11.1981 |
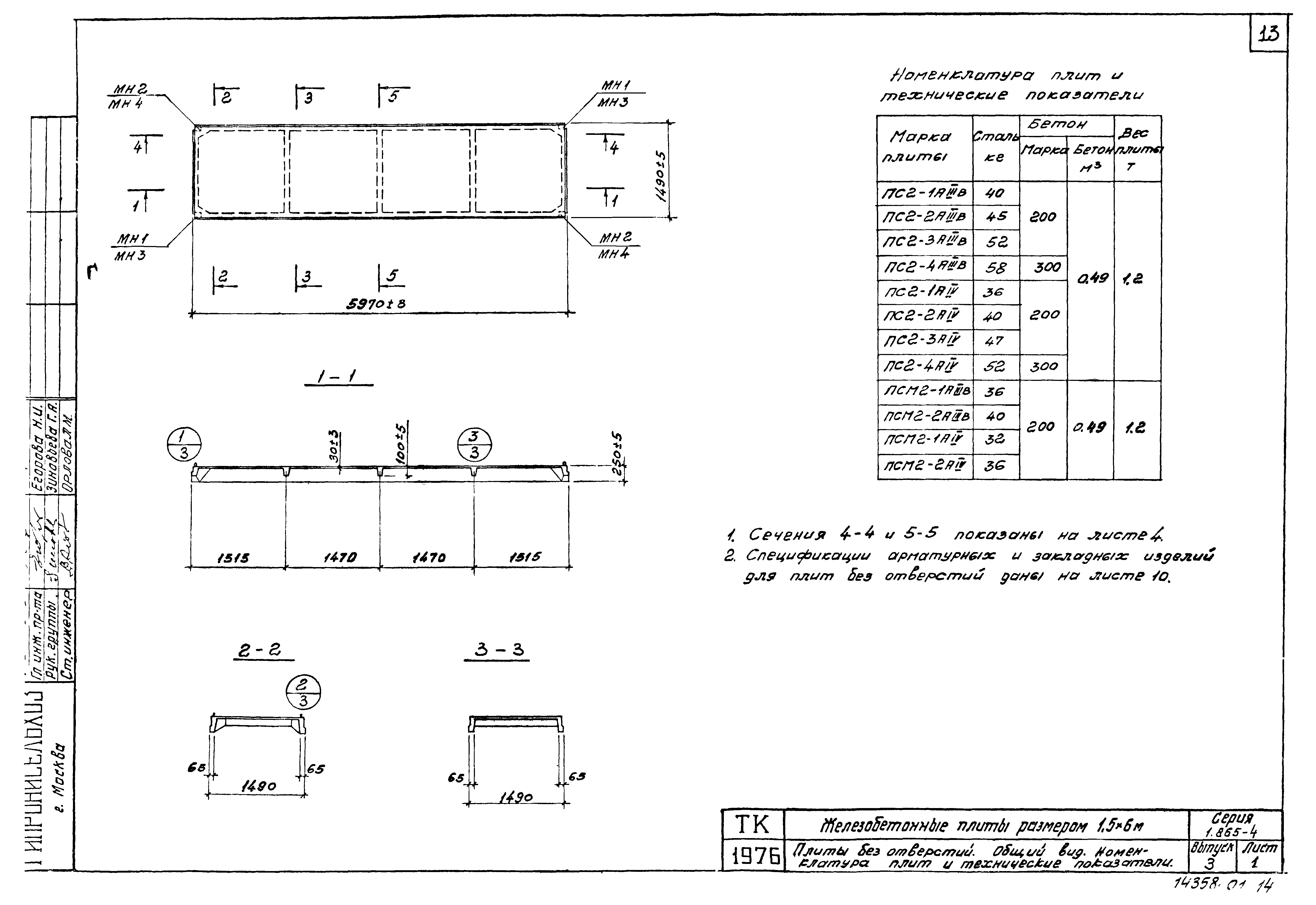
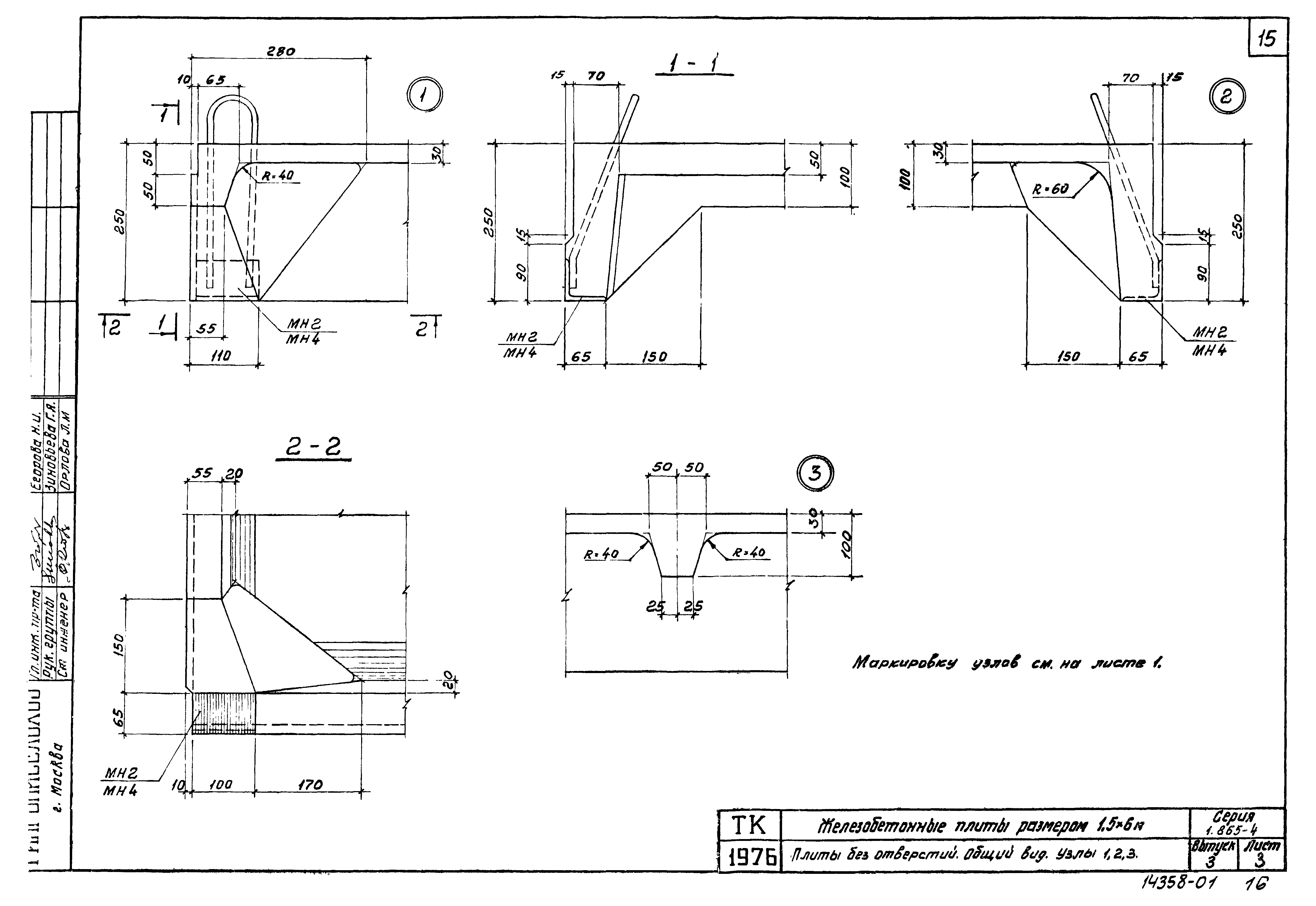
| Оглавление: | Пояснительная записка Плиты без отверстий. Общий вид. Номенклатура плит и технические показатели Плиты с отверстиями d=400, 700, 1000. Общий вид. Номенклатура плит и технические показатели. Плиты без отверстий. Общий вид. Узлы 1, 2, 3 Плиты без отверстий. Схема армирования Плиты с отверстиями d=400, 700, 1000. Схема армирования Плиты без отверстий. Армирование. Узлы 1, 2, 3 Способы анкеровки напрягаемой арматуры Плиты без отверстий. Выборка стали на одну плиту. Плиты с отверстиями d=400, 700, 1000. Выборка стали на одну плиту. Плиты без отверстий. Спецификация арматурных и закладных изделий на одну плиту. Плиты с отверстиями d=400, 700, 1000. Спецификации арматурных и закладных изделий на одну плиту. Плиты с дополнительными закладными изделиями. Детали установки стаканов на плиты с отверстиями. Соединительное изделие MC1 |
| Разработан: | НИИЖБ Госстроя СССР ЦНИИЭПсельстрой Минсельстроя СССР ГипроНИсельхоз (Институт Гипронисельхоз ) |
| Утверждён: | 21.04.1977 Госстрой СССР (Государственный комитет Совета Министров СССР по делам строительства) (USSR Gosstroy 45) |
| Чем заменён: |
|


























