Скачать Серия ХК-8-58 Выпуск 2. Типовые крепления отдельных аппаратов, комплектных узлов электрооборудования и разбивка закладных деталей в колоннахДата актуализации: 01.01.2021
|
| Обозначение: | Серия ХК-8-58 |
| Обозначение англ: | Series ХК-8-58 |
| Статус: | не действует |
| Название рус.: | Выпуск 2. Типовые крепления отдельных аппаратов, комплектных узлов электрооборудования и разбивка закладных деталей в колоннах |
| Дата добавления в базу: | 01.09.2013 |
| Дата актуализации: | 01.01.2021 |
| Дата введения: | 19.11.1959 |
| Дата окончания срока действия: | 01.09.1978 |
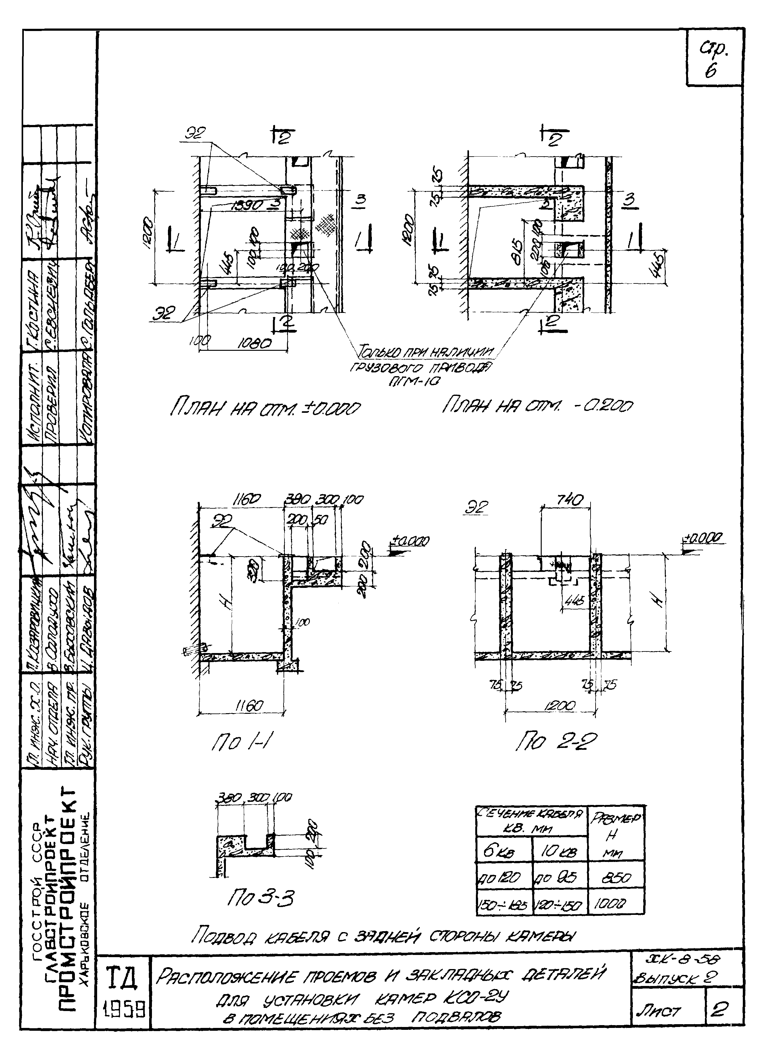
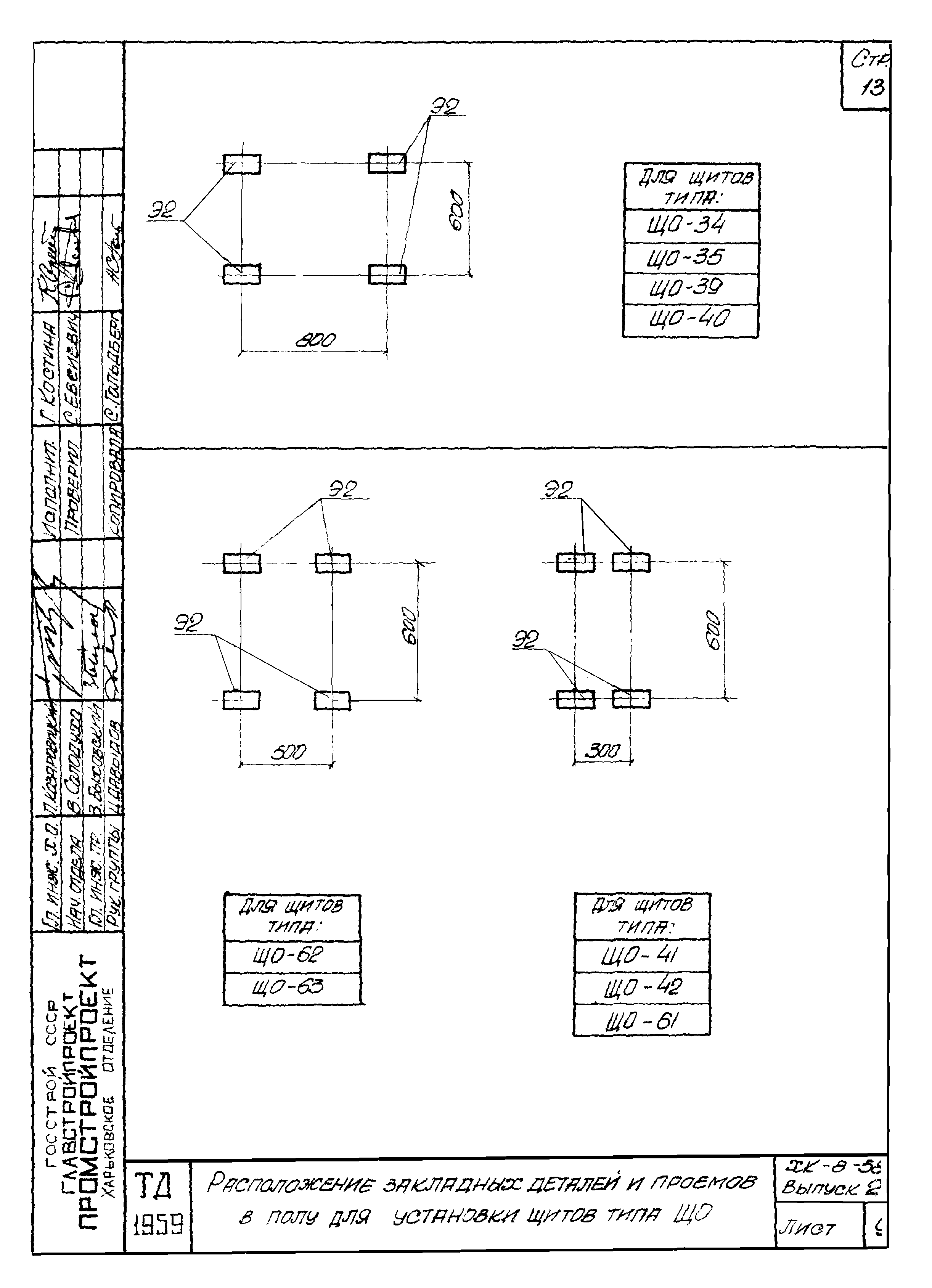
| Оглавление: | Содержание Пояснительная записка Расположение проемов и закладных деталей для установки камер КСО-2у в помещениях без подвалов /подвод кабелей с фасадной стороны/ Расположение проемов и закладных деталей для установки камер КСО-2у в помещениях без подвалов /подвод кабелей с задней стороны камеры/ Расположение проемов и закладных деталей для установки камер КСО-2у в помещениях с подвалами /Для случая совпадения перегородок под камеры КСО-2у с расположением балок/ Расположение проемов и закладных деталей для установки камер КСО-2у в помещениях с подвалами /Для случая несовпадения перегородок под камеры КСО-2у с расположением балок/ Расположен» проемов для токоподвода в камеры КСО-2у /устанавливаемых в поме Расположение проемов и закладных деталей для установки камер КСО-3 в помещениях без подвалов Расположение проемов и закладных деталей для установки камер КСО-3 в помещениях с подвалами Расположение закладных деталей и проемов в поля для установки щитов типа ЩО Расположение проемов и закладных деталей для установки шкафов с рубильниками на 600,1000,2000а /по черт. ХI51.1 и ХI51.2/ Расположение проемов и закладных деталей для установки щитов станций и подстанций. /управления, релейных и распределительных/ ПН - 550/800 и ПТН - 550/60п Расположение проемов и закладных деталей для установки щитов станций и подстанций. /управления, релейных и распределительных/ ПТН - 550/60л и ПРС - 550/800 Расположение проемов и закладных деталей для установки щитов станций и подстанций. /управления, релейных и распределительных/ ВТД-200 Расположение проемов и закладных деталей для установки щитов станций и подстанций /управления, релейных и распределительных/ ПРС-800/800 и ПТН-800/600 Расположение проемов и закладных деталей для установки щитов станций и подстанций. /управления, релейных и распределительных/ ПТН - 800/60л и ПРС - 800/900 Расположение закладных деталей и проемов для установки свободностоящих щитов станций управления Расположение закладных деталей и проемов для установки свободностоящих щитов СУ с сопротивлениями сзади Расположение закладных деталей и проемов для установки свободностоящих двухрядных щитов СУ Расположение закладных деталей и проемов для установки прислонных щитов станций управления Расположение закладных деталей и проемов для установки сборки СУ в шкафах Расположение закладных деталей и проемов в полу для установки ящиков сопротивления ЯС без стеллажей Расположение закладных деталей в стене для установки одного ящика сопротивлений типа СБ-8 Расположение закладных деталей и проемов в полу для установки однорядных стеллажей ящиков сопротивления Расположение закладных деталей и проемов в полу для установки двухрядных стеллажей ящиков сопротивлений Расположение закладных деталей и проемов в полу для установки двухрядных стеллажей ящиков сопротивлений /для трехрядных и четырехрядных стеллажей/ Расположение закладных деталей для установки блоков и отдельных конструкций для прокладки кабелей Расположение закладных деталей для установки блоков и отдельных конструкций для прокладки кабелей /продолжение/ Расположение закладных деталей для установки блоков и отдельных конструкций для прокладки кабелей /окончание/ Разбивка типовых закладных деталей в колоннах серии ХЭ-01-06 /выпуски 1 и 2/ Разбивка типовых закладных деталей в колоннах серии КЭ-01-06 /выпуски 3 и 4/ Разбивка типовых закладных деталей в колоннах серии КЭ-01-06 /выпуски 5 и 6/ Разбивка типовых закладных деталей в колоннах серии КЭ-01-06 /выпуск 7/ Разбивка типовых закладных деталей в колоннах серии КЭ-01-06 /выпуск 8/ Разбивка типовых закладных деталей в колоннах серии КЭ-01-07 /выпуски 1 и 2/ Разбивка типовых закладных деталей в колоннах серии КЭ-01-07 /выпуски 3 и 4/ Разбивка типовых закладных деталей в колоннах серии КЭ-01-07 /выпуски 5 и 6/ Разбивка типовых закладных деталей в колоннах серии КЭ-01-07 /выпуск 7/ Разбивка типовых закладных деталей в колоннах серии КЭ-01-07 /выпуск 8/ Разбивка типовых закладных деталей в колоннах серии КЭ-01-09 /выпуск 1/ Разбивка типовых закладных деталей в колоннах серии КЭ-01-09 /выпуск 2/ Разбивка типовых закладных деталей в колоннах серии КЭ-01-09 /выпуск 3/ Разбивка типовых закладных деталей в колоннах серии КЭ-01-09 /выпуск 4,5,9,10/ Разбивка типовых закладных деталей в колоннах серии КЭ-01-09 /выпуск 6/ Разбивка типовых закладных деталей в колоннах серии КЭ-01-09 /выпуск 7/ Разбивка типовых закладных деталей в колоннах серии КЭ-01-09 /выпуск 8/ |
| Разработан: | Промстройпроект |
| Утверждён: | 19.11.1959 Главпромстройпроект Госстроя СССР (197) |
| Принят: | 01.01.1959 Тяжпромэлектропроект |


















































