Скачать Серия 1.041-1 Выпуск 4. Ребристые связевые плиты длиной 5650 мм, шириной 1490 мм с предварительно напрягаемой арматурой из стали классов А-IV, Ат-V из тяжелого и легкого бетоновДата актуализации: 01.01.2021
|
| Обозначение: | Серия 1.041-1 |
| Обозначение англ: | Series 1.041-1 |
| Статус: | действует |
| Название рус.: | Выпуск 4. Ребристые связевые плиты длиной 5650 мм, шириной 1490 мм с предварительно напрягаемой арматурой из стали классов А-IV, Ат-V из тяжелого и легкого бетонов |
| Дата добавления в базу: | 01.09.2013 |
| Дата актуализации: | 01.01.2021 |
| Дата введения: | 01.03.1982 |
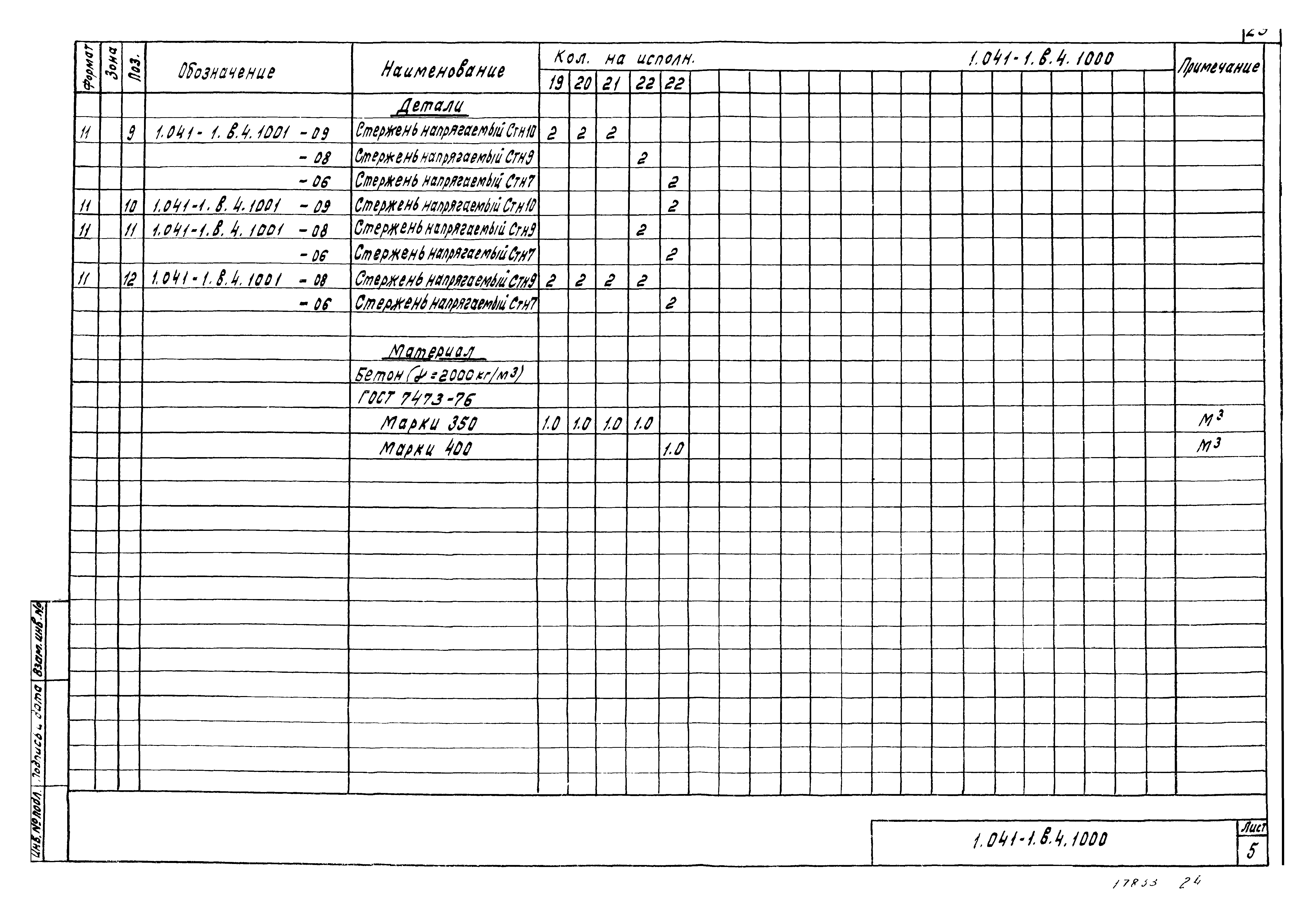
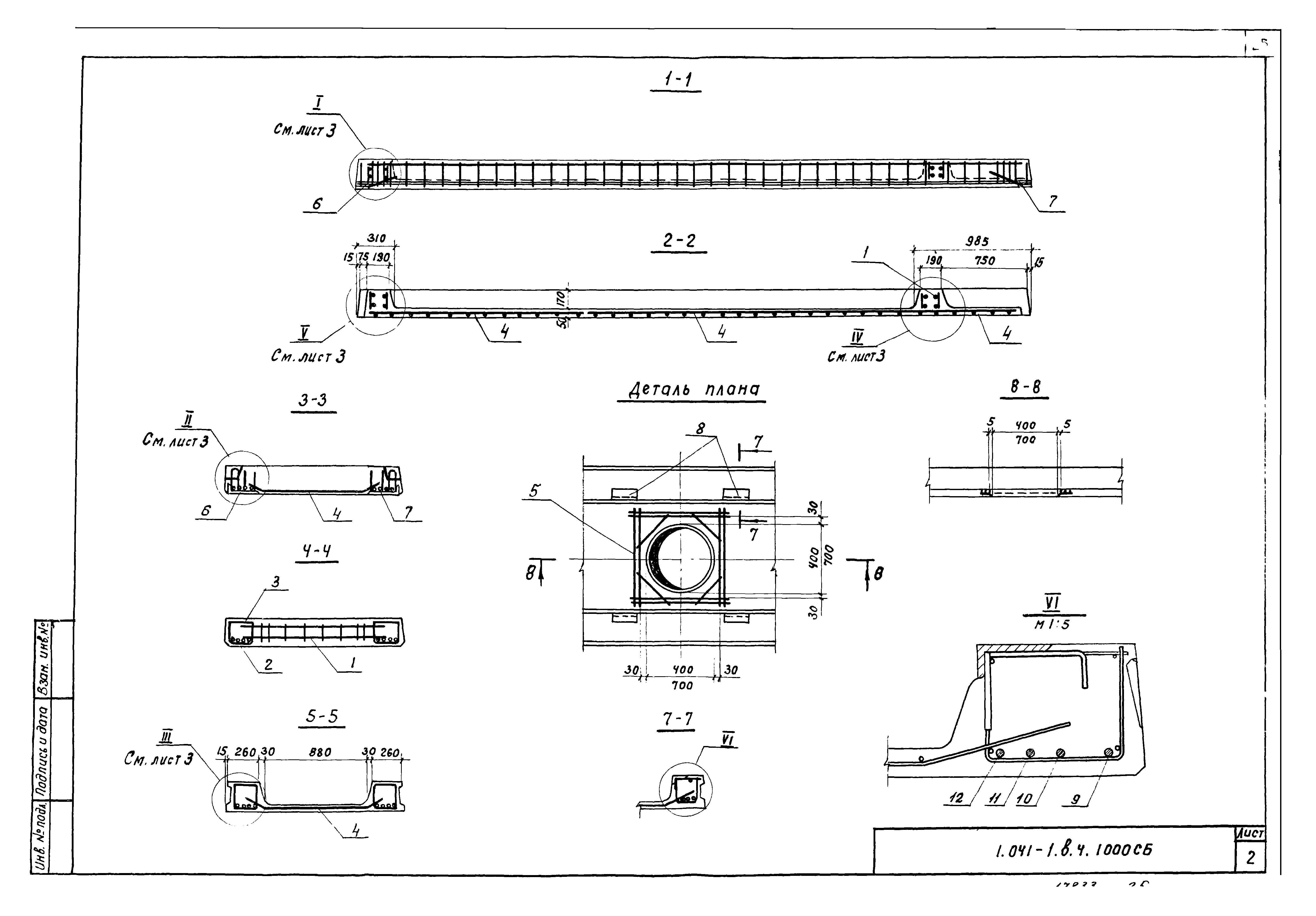
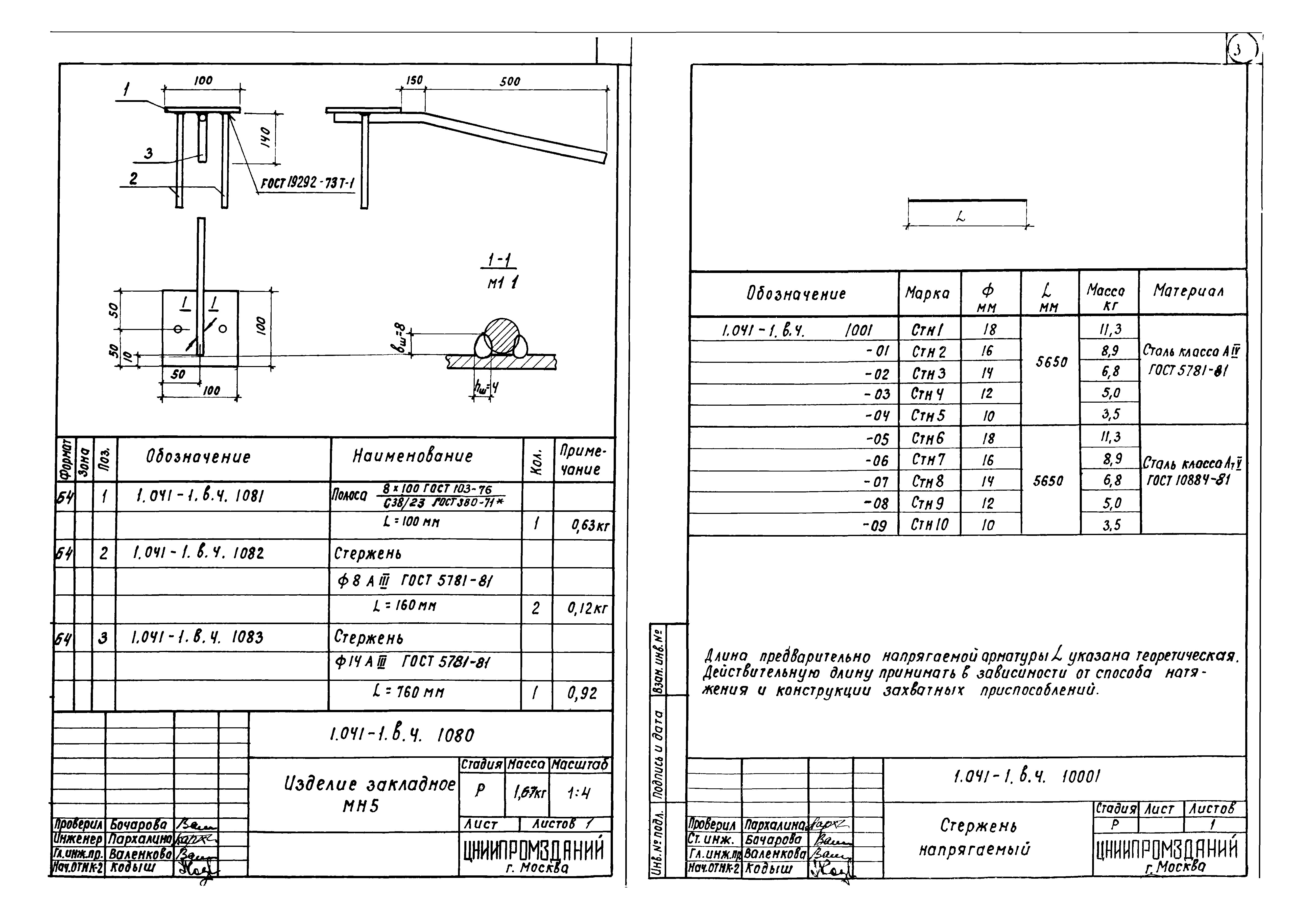
| Оглавление: | Содержание 1.041-1.в.4.0000 ТО Техническое описание 1.041-1.в.4.0000 ВД Ведомость ссылочных документов 1.041-1.в.4.0000 ВСТ Выборка стали на одну плиту 1.041-1.в.4.1000 Плита ребристая связевая 1490х5650 мм 1.041-1.в.4.1010 Каркас плоский КР1 1.041-1.в.4.1020 Сетка арматурная С1 1.041-1.в.4.1030 Сетка арматурная 1.041-1.в.4.1040 Сетка арматурная 1.041-1.в.4.1050 Сетка арматурная 1.041-1.в.4.1060 Изделие закладное 1.041-1.в.4.1070 Изделие закладное МН4 1.041-1.в.4.1080 Изделие закладное МН5 1.041-1.в.4.1001 Стержень напрягаемый |
| Разработан: | ЦНИИпромзданий ЦНИИЭП торгово-бытовых зданий и туристских комплексов НИИЖБ |
| Утверждён: | 31.12.1981 Госстрой СССР (Государственный комитет Совета Министров СССР по делам строительства) (USSR Gosstroy 285) |
| Заменяет собой: |

































