Скачать Типовой проект 901-7-4.84 Альбом VI. Архитектурно-строительная частьДата актуализации: 01.01.2021
|
| Обозначение: | Типовой проект 901-7-4.84 |
| Обозначение англ: | 901-7-4.84 |
| Статус: | действует |
| Название рус.: | Альбом VI. Архитектурно-строительная часть |
| Дата добавления в базу: | 01.09.2013 |
| Дата актуализации: | 01.01.2021 |
| Дата введения: | 23.09.1983 |
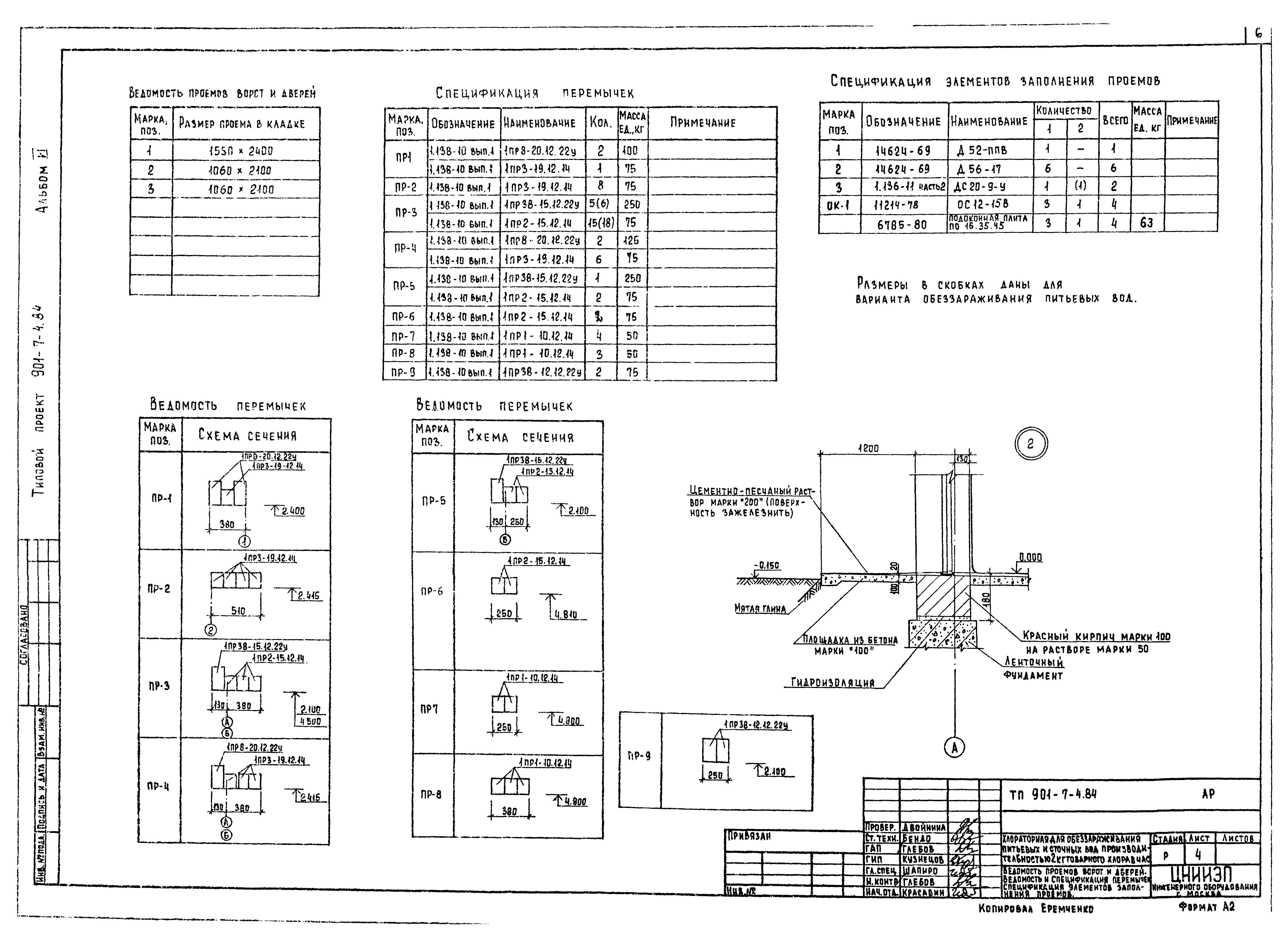
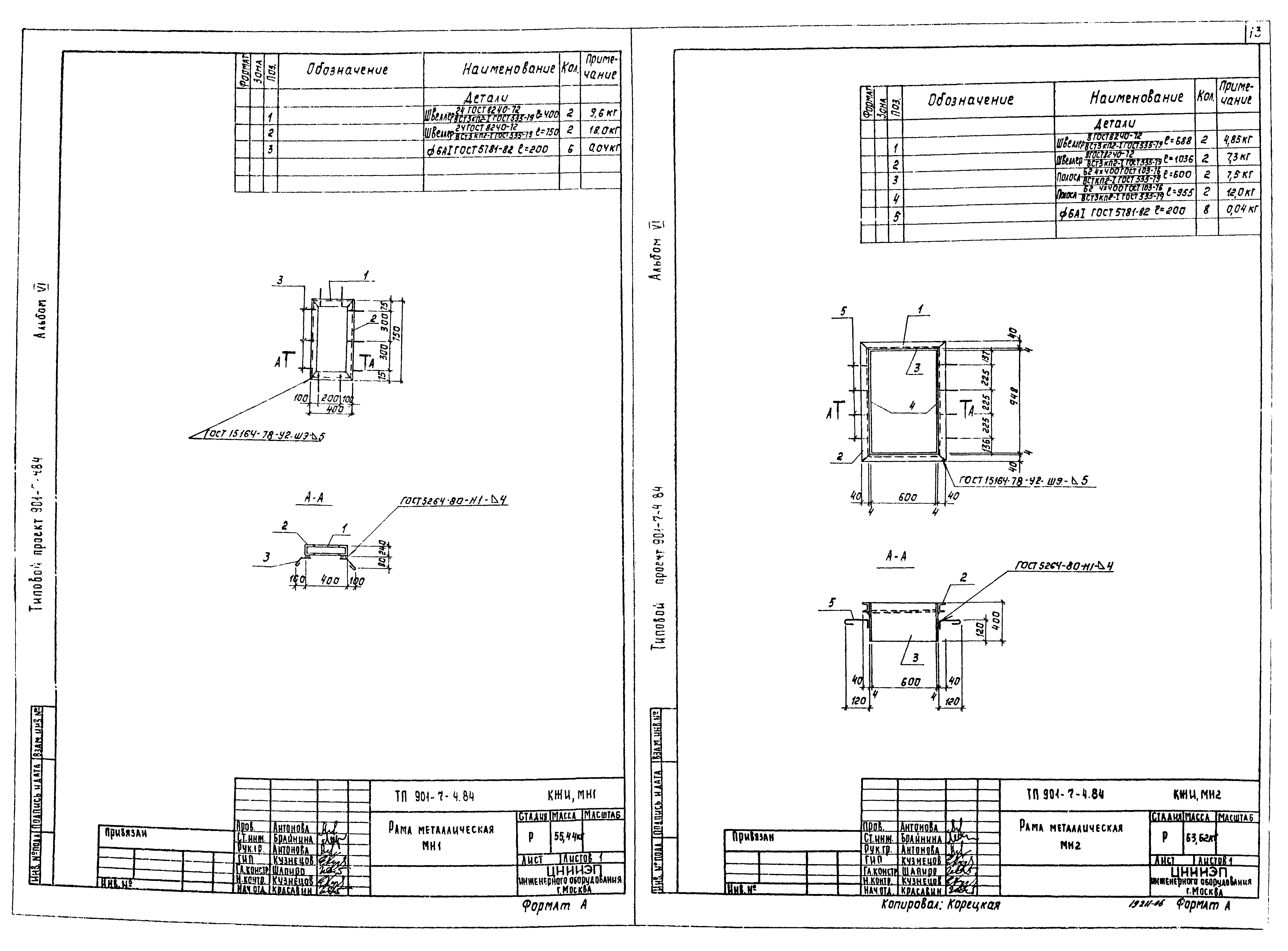
| Оглавление: | Содержание альбома Архитектурные решения АР-1 Общие данные АР-2 Планы на отм. 0.000 и 2.400. Разрезы 1-1,2-2. Экспликация помещений АР-3 Фасады 1-2,2-2,А-Б,Б-А АР-4 Ведомость проемов ворот и дверей. Ведомость и спецификация перемычек. Спецификация элементов заполнения проемов АР-5 Планы полов на отм. 0.000 и 2.400. План кровли. Экспликация полов. Ведомость отделки помещений Конструкции железобетонные КЖ-1 Общие данные КЖ-2 Схема расположения фундаментов КЖ-3 Схема расположения фундаментов под оборудование и каналов КЖ-4 Фундаменты под оборудование ФО-1-ФО-3,ФМ1. Участки монолитные УМ1,УМ2 КЖ-5 Схемы расположения плит покрытия и перекрытия. Венткамера на отм. 0.000 КЖИ.МН1 Рама металлическая МН1 КЖИ.МН2 Рама металлическая МН2 КЖИ.МН3 Рама металлическая МН3 КЖИ.МН4 Рама металлическая МН4 КЖИ.Щ1 Щит стальной (Щ1,Щ2) Конструкции металлические КМ-1 Общие данные. Техническая спецификация металла (начало) КМ-2 Общие данные. Техническая спецификация металла (окончание) КМ-3 Общие данные. Техническая спецификация металла на типовые конструкции КМ-4 Общие данные. Ведомость металлоконструкций по видам профилей КМ-5 Схема расположения подвесных путей площадок и лестниц. Разрезы. Узлы КМ-6 Вентиляционная труба |
| Разработан: | ЦНИИЭП |
| Утверждён: | 27.12.1979 Госгражданстрой (Gosgrazhdanstroy 279) |
| Заменяет собой: |




















