Скачать Типовой проект 264-12-155 Альбом IX. Мероприятия, повышающие тепловую защиту зданияДата актуализации: 01.01.2021 Типовой проект 264-12-155
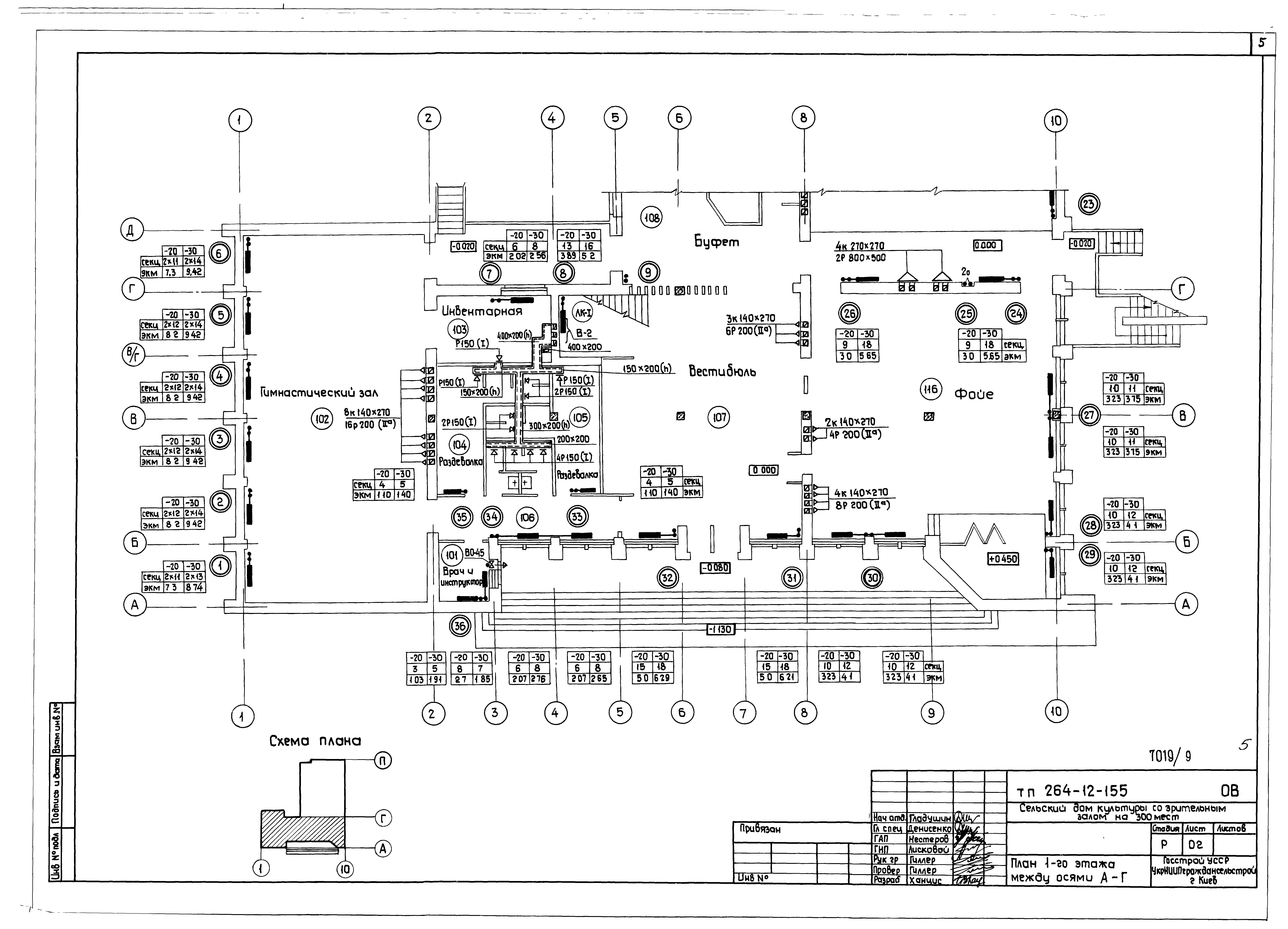
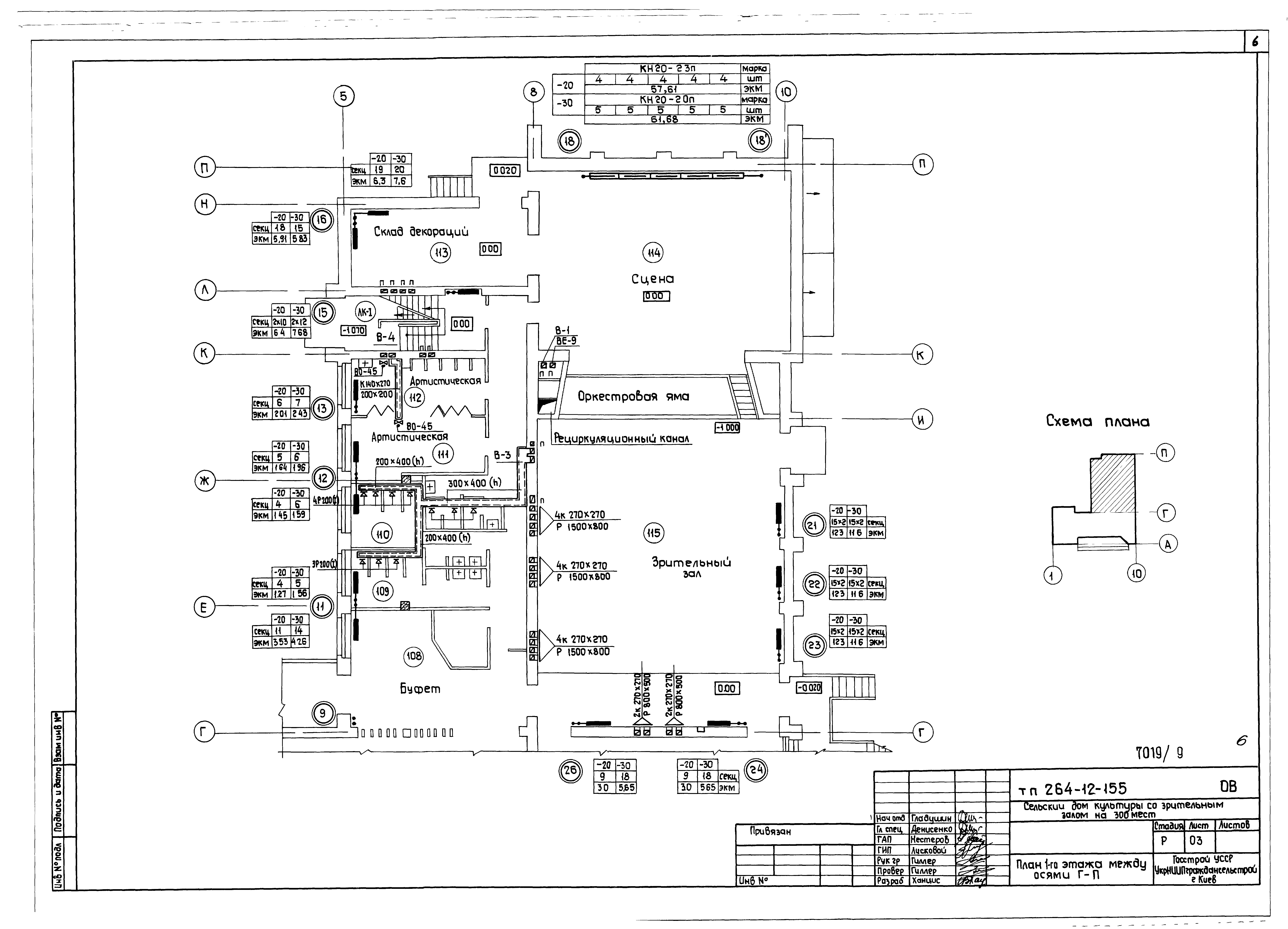
Альбом IX. Мероприятия, повышающие тепловую защиту здания| Обозначение: | Типовой проект 264-12-155 | | Обозначение англ: | 264-12-155 | | Статус: | не действует | | Название рус.: | Альбом IX. Мероприятия, повышающие тепловую защиту здания | | Дата добавления в базу: | 01.09.2013 | | Дата актуализации: | 01.01.2021 | | Разработан: | УкрНИИПграждансельстроя
| | Утверждён: | 17.04.1984 Укрниипграждансельстрой (32)
| | Издан: | ЦИТП Госстроя СССР (CITP, Gosstroy (USSR) 1989 г. )
|
      
|