Скачать Типовой проект 902-1-74.83 Альбом III. Архитектурно-строительные решения. Надземная часть. Общие чертежи, узлы и детали (из ТП 902-1-70.83)Дата актуализации: 01.01.2021
|
| Обозначение: | Типовой проект 902-1-74.83 |
| Обозначение англ: | 902-1-74.83 |
| Статус: | действует |
| Название рус.: | Альбом III. Архитектурно-строительные решения. Надземная часть. Общие чертежи, узлы и детали (из ТП 902-1-70.83) |
| Дата добавления в базу: | 01.09.2013 |
| Дата актуализации: | 01.01.2021 |
| Дата введения: | 28.10.1983 |
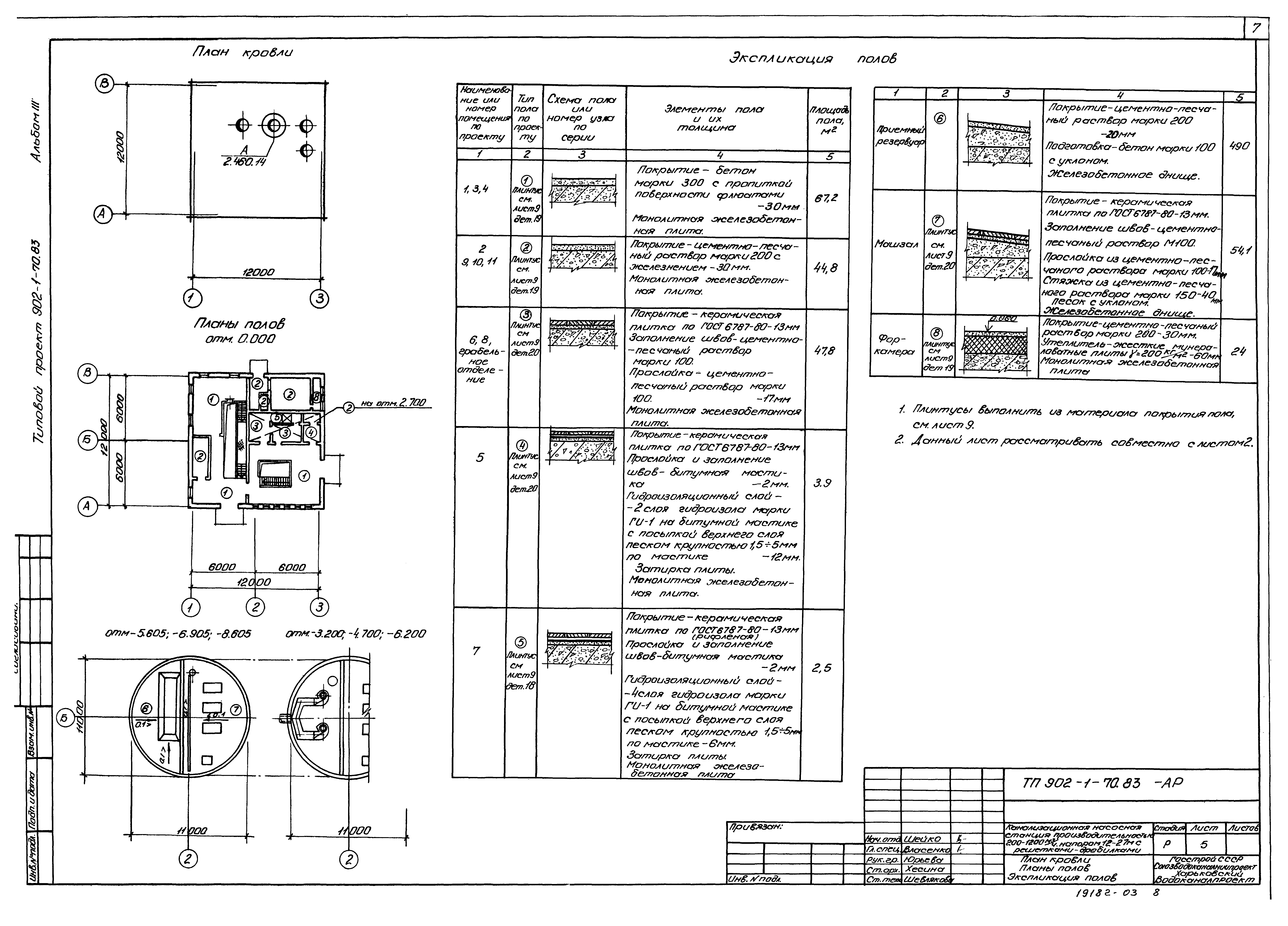
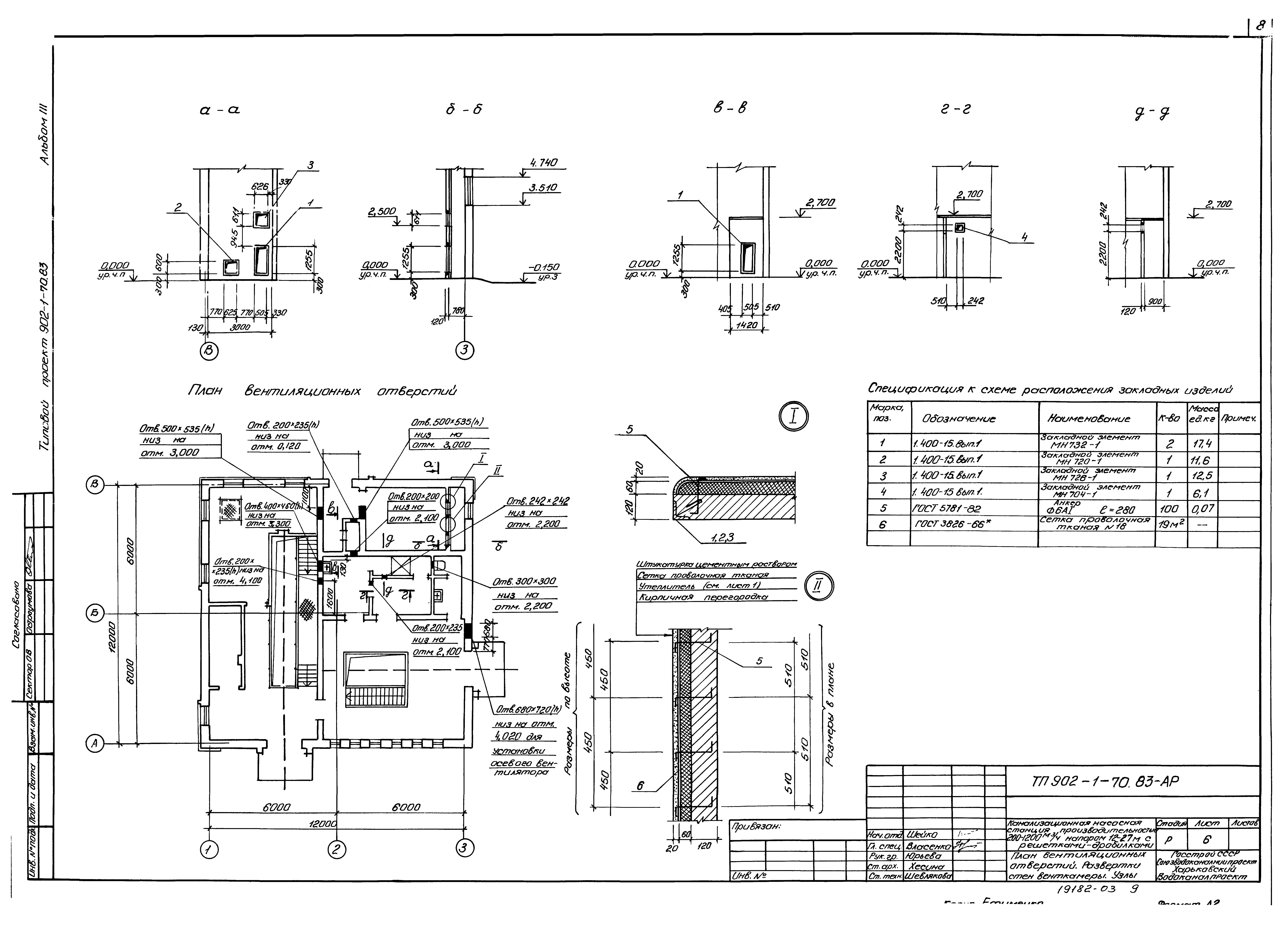
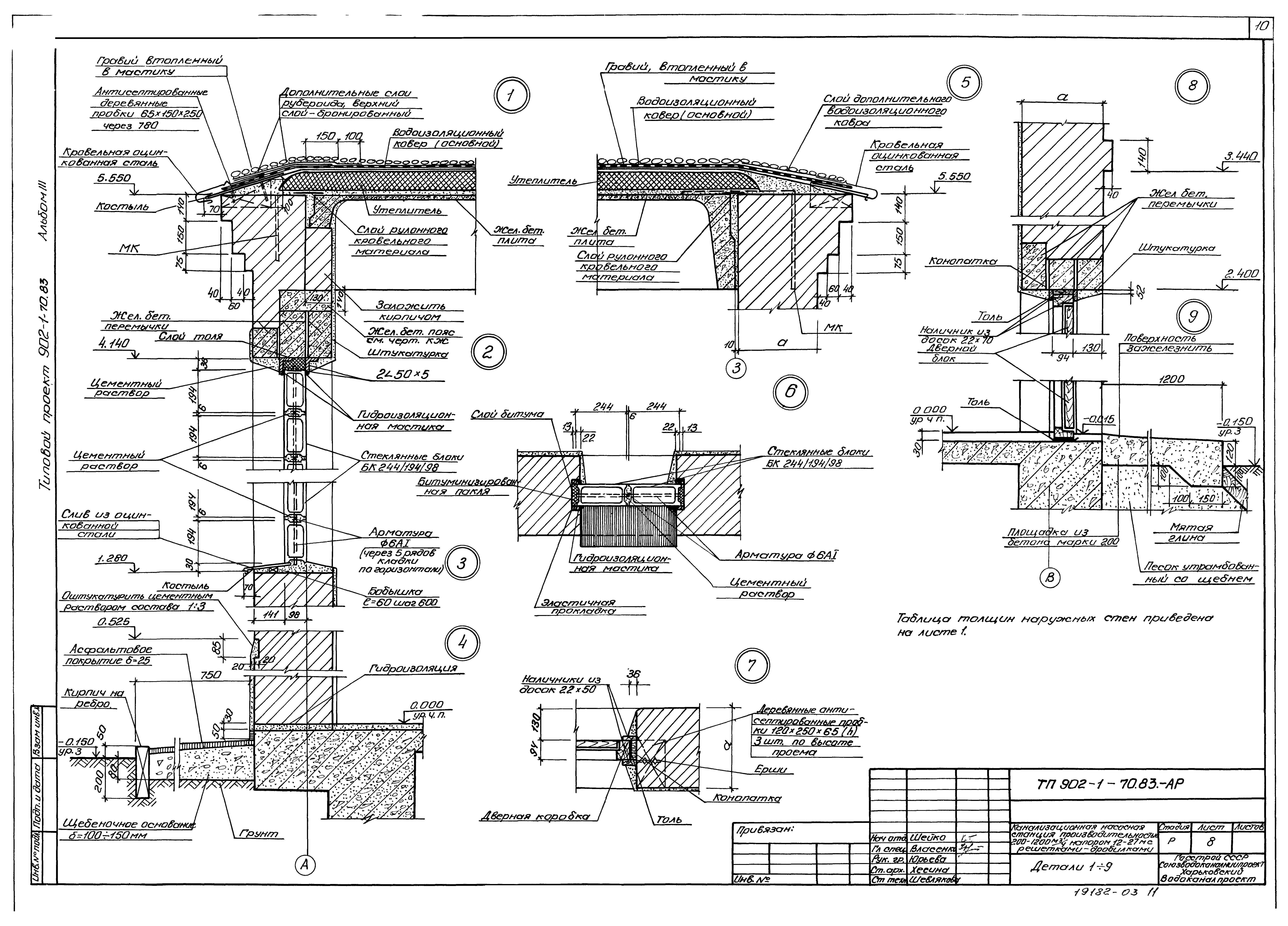
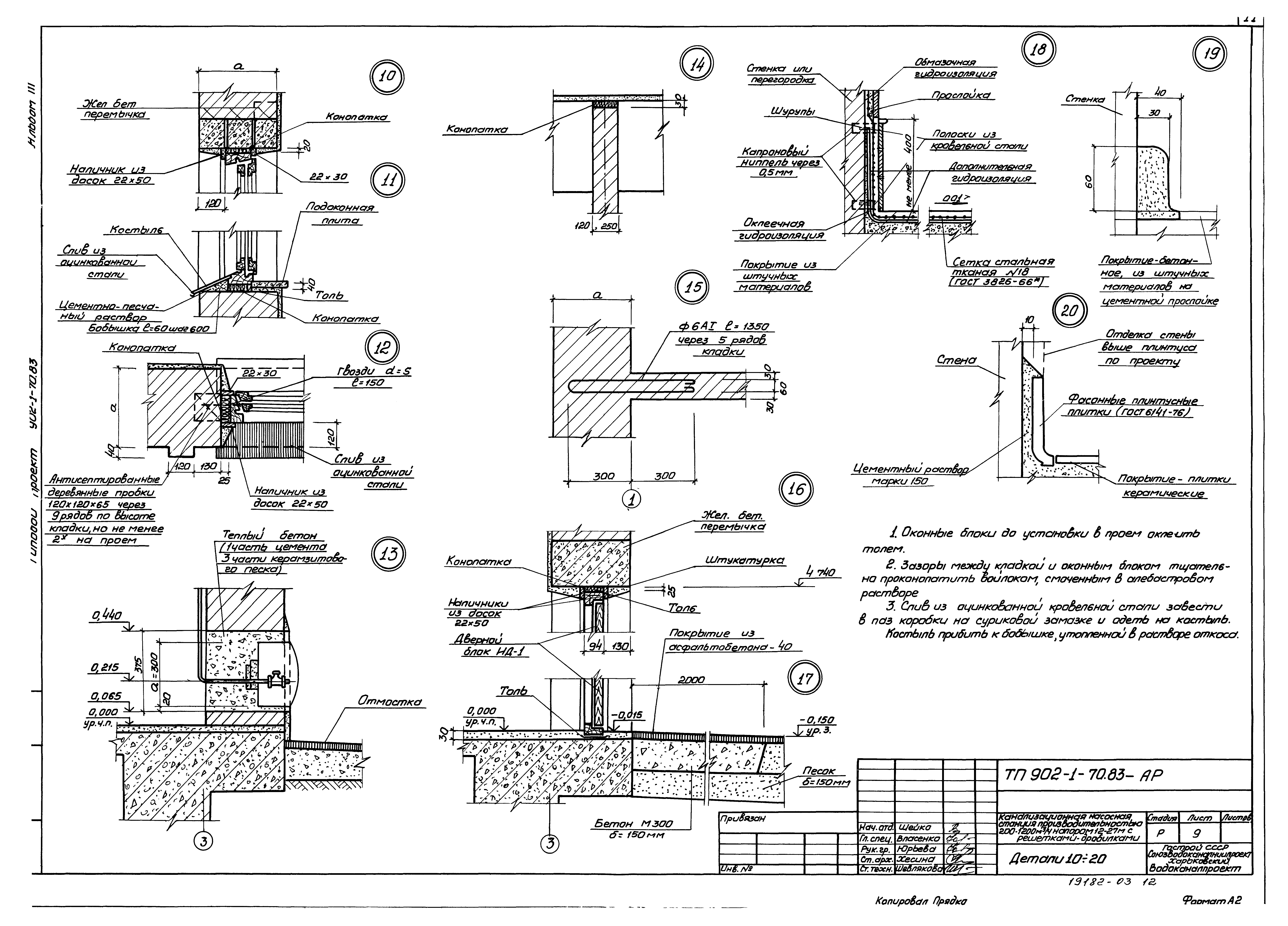
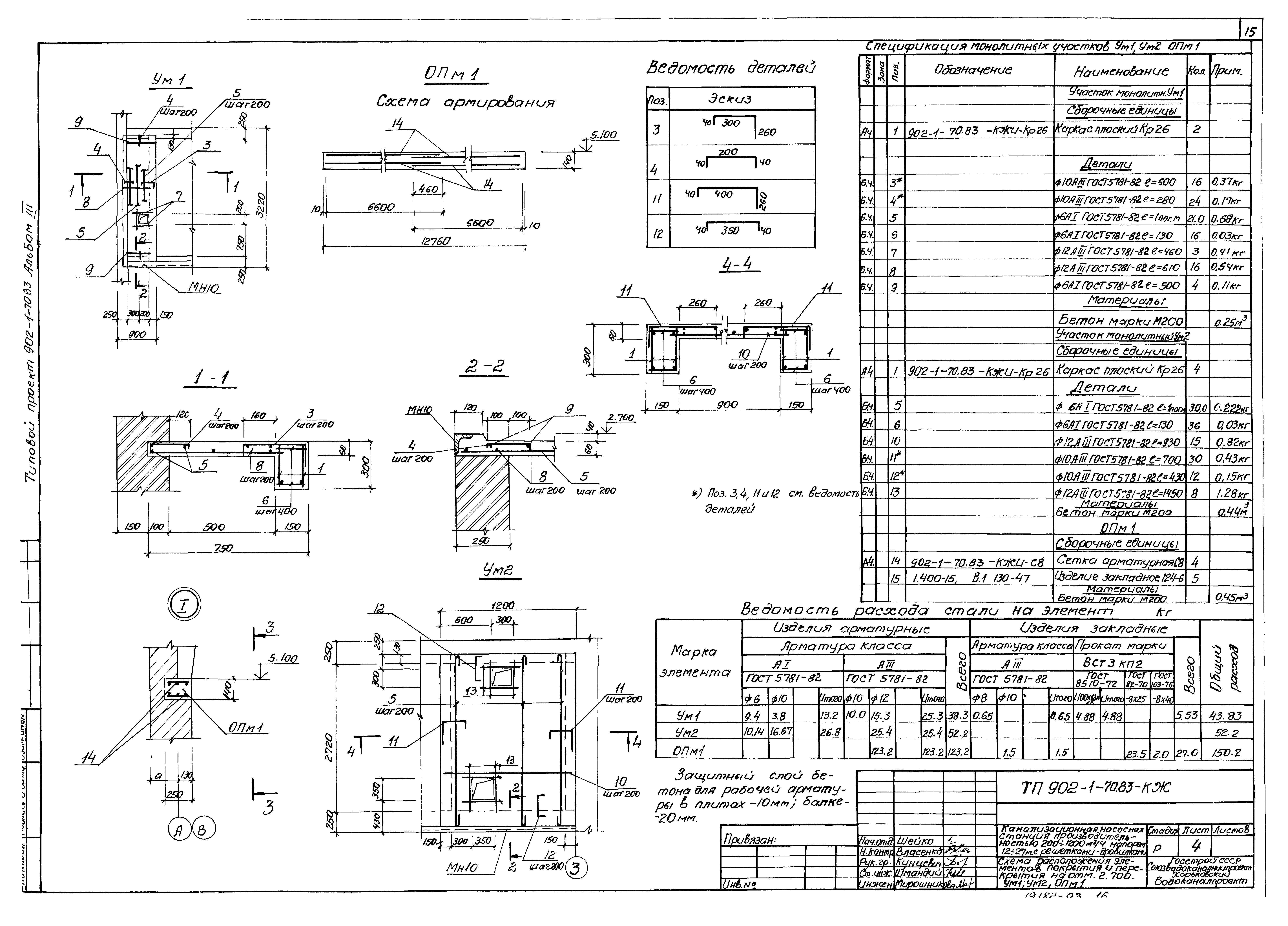
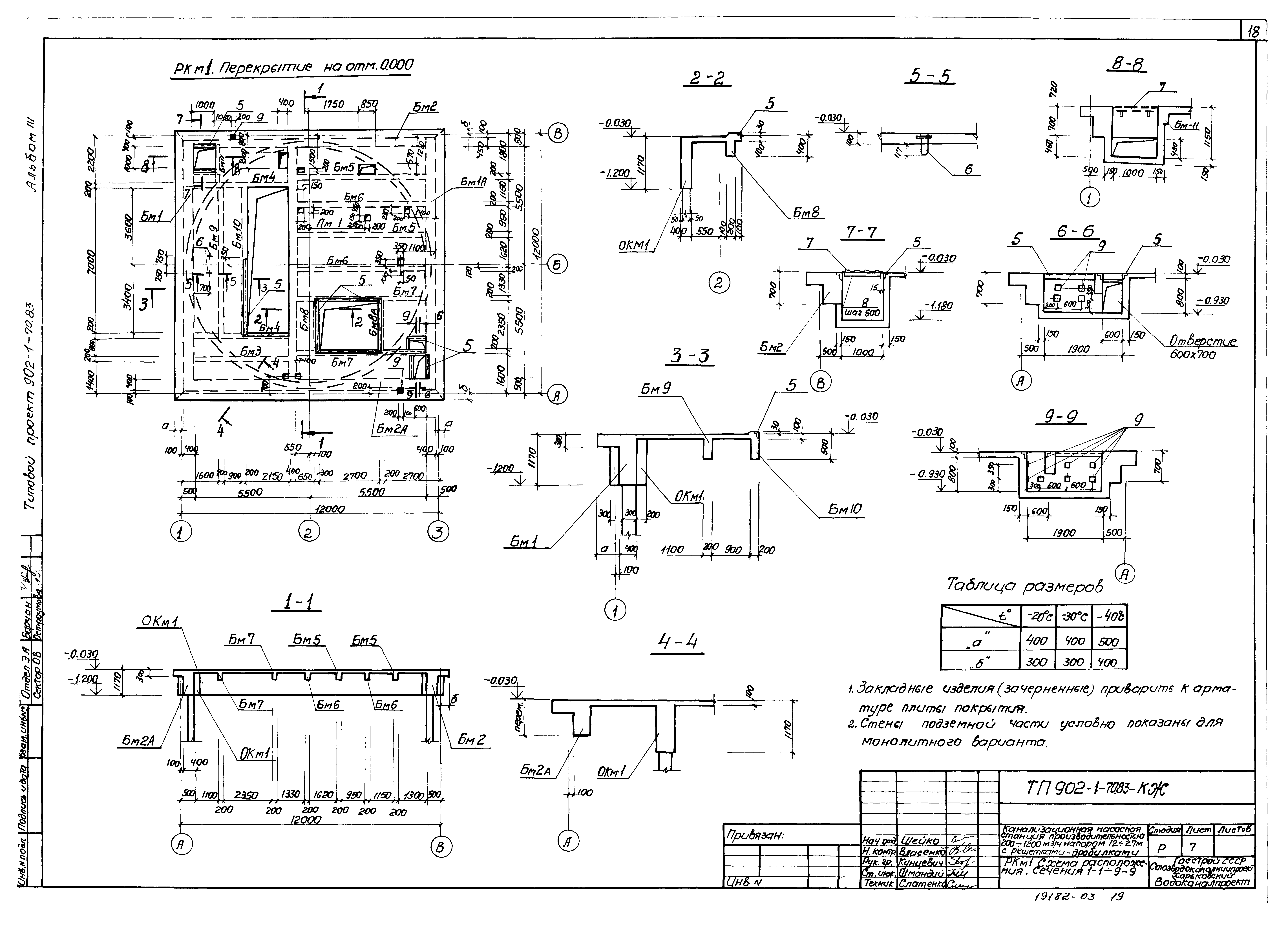
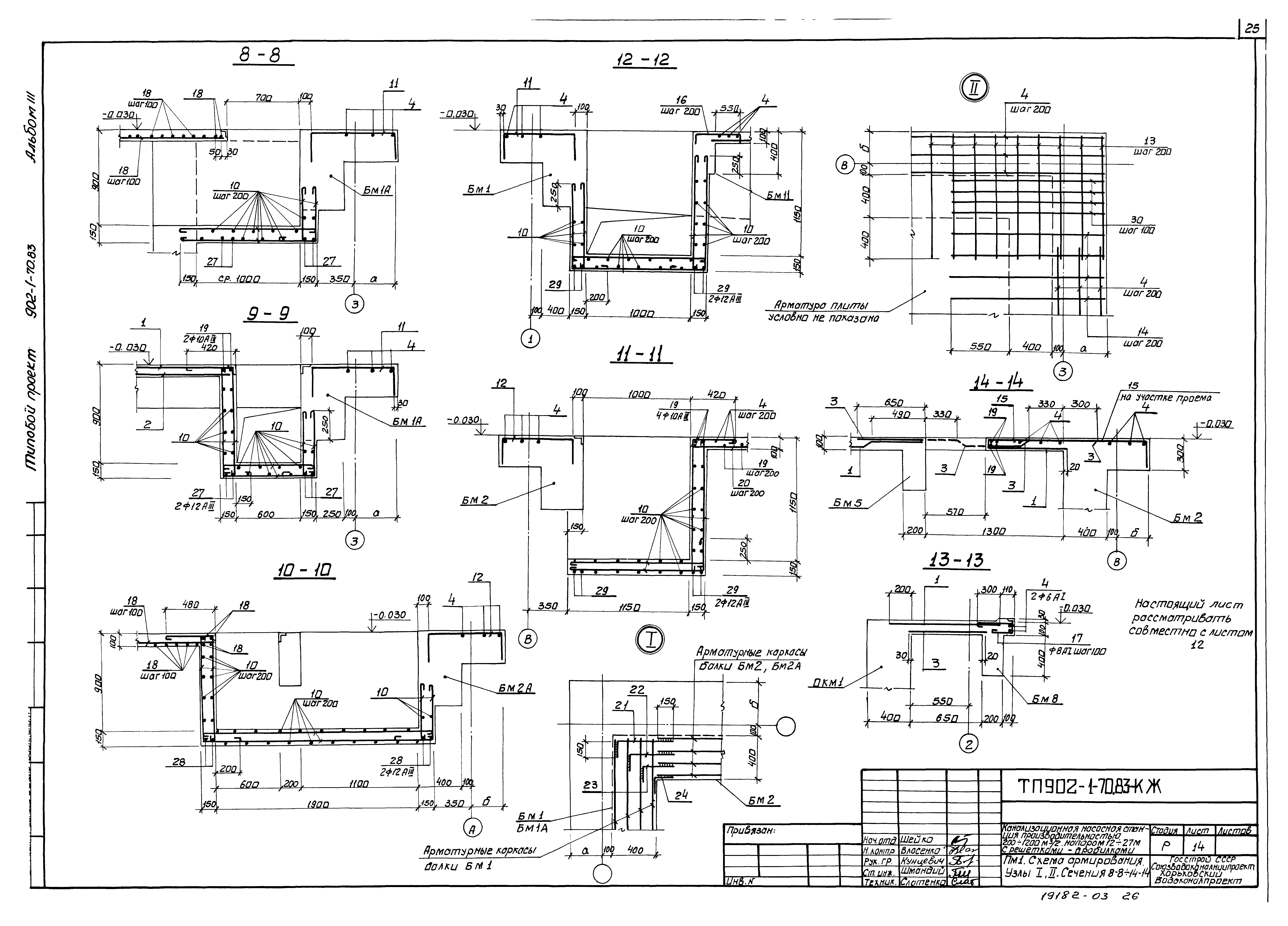
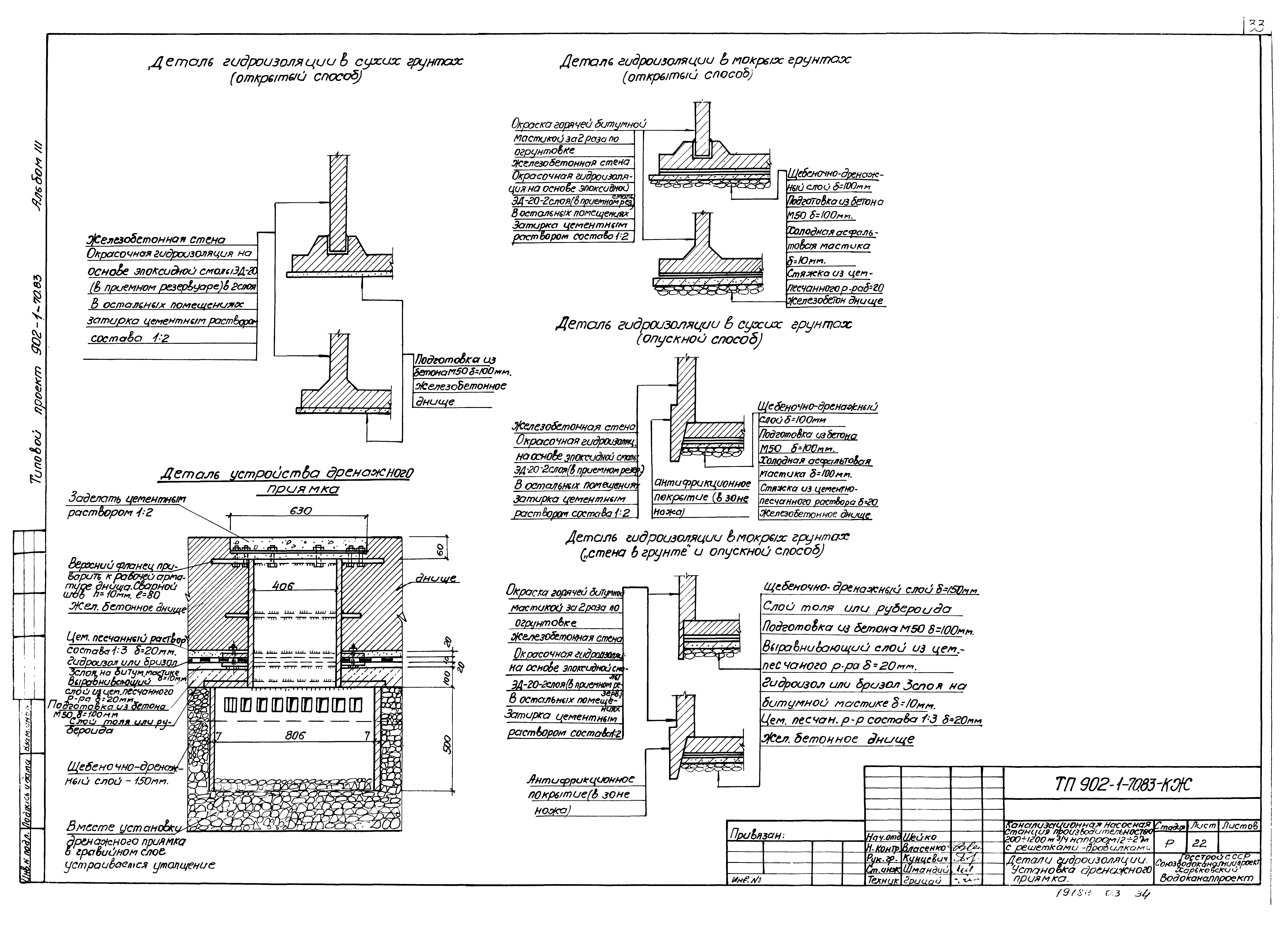
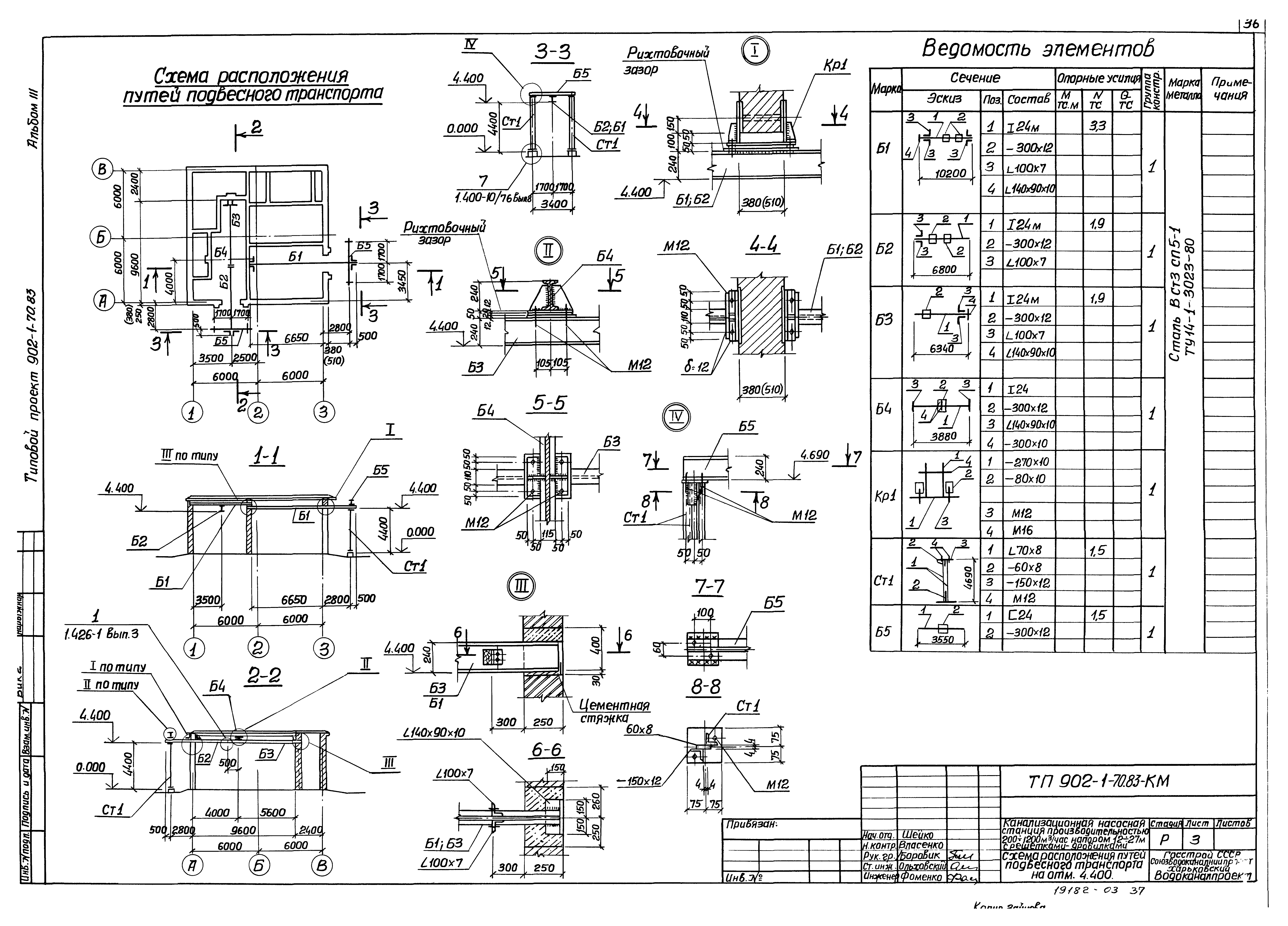
| Оглавление: | Содержание альбома Основной комплект марки АР Общие данные План на отм. 0.000 Разрезы. Ведомость отделки помещений Фасады. Схемы расположения элементов заполнения оконных проемов План кровли. Планы полов. Экспликация полов План вентиляционных отверстий. Развертки стен венткамеры. Узлы План раскладки закладных для крепления электрокабеля. Развертки стен Детали 1-9 Детали 10-20 Основной комплект КЖ Общие данные Схема расположения и конструкция фундаментов под оборудование и опор ФОМ1,ФОМ2,ФОМ3,ОПМ1 Схема расположения элементов покрытия и перекрытия на отм. 5.100 и 2.700 Схема расположения элементов покрытия и перекрытия на отм. 2.700 УМ1,УМ2,ОПМ1 Схема расположения опорных блоков и форшахты ФШМ1 (вариант подземной части - опускной колодец) Схема расположения форшахты ФШМ1,ФШМ2 (вариант подземной части - стена в грунте) РКМ1. Схема расположения. Сечения 1-1-9-9 РКМ1. Спецификация (tº=-20ºС,-30ºС, начало) РКМ1. Спецификация (tº=-20ºС,-30ºС, окончание) РКМ1. Спецификация (tº=-40ºС, начало) РКМ1. Спецификация (tº=-40ºС, окончание) Перекрытие на отм. 0.000. ПМ1. Схема армирования. Сечение 1-1 ПМ1. Схема армирования. Разрезы 2-2-7-7 ПМ1. Схема армирования. Узлы 1,2. Сечения 8-8-14-14 РКМ1. Схемы армирования балок БМ1,БМ1А (t=-20ºС,-30ºС) РКМ1. Схемы армирования балок БМ1,БМ1А (t=-40ºС) РКМ1. Схемы армирования балок БМ2,БМ2А,БМ11 (t=-20ºС,-30ºС,-40ºС) РКМ1. Схемы армирования балок БМ3-БМ5,БМ8,БМ8А РКМ1. Схемы армирования балок БМ6,БМ7,БМ9,БМ10. Расчетные схемы балок ОКМ1. Опорное кольцо. Общий вид ОКМ1. Опорное кольцо. Схема армирования Детали гидроизоляции. Установка дренажного приямка Основной комплект КМ Общие данные (начало) Общие данные (окончание) Схема расположения путей подвесного транспорта на отм. 4.400 Схема расположения путей подвесного транспорта на отм. -0.850 Схема расположения площадки на отм. -3.125;-4.425;-6.125. Сечения. Узлы Схема расположения ограждений проемов, лестницы на отм. 0.000 Содержание альбома Основной комплект марки АР Общие данные План на отм. 0.000 Разрезы. Ведомость отделки помещений Фасады. Схемы расположения элементов заполнения оконных проемов План кровли. Планы полов. Экспликация полов План вентиляционных отверстий. Развертки стен венткамеры. Узлы План раскладки закладных для крепления электрокабеля. Развертки стен Детали 1-9 Детали 10-20 Основной комплект КЖ Общие данные Схема расположения и конструкция фундаментов под оборудование и опор ФОМ1,ФОМ2,ФОМ3,ОПМ1 Схема расположения элементов покрытия и перекрытия на отм. 5.100 и 2.700 Схема расположения элементов покрытия и перекрытия на отм. 2.700 УМ1,УМ2,ОПМ1 Схема расположения опорных блоков и форшахты ФШМ1 (вариант подземной части - опускной колодец) Схема расположения форшахты ФШМ1,ФШМ2 (вариант подземной части - стена в грунте) РКМ1. Схема расположения. Сечения 1-1-9-9 РКМ1. Спецификация (tº=-20ºС,-30ºС, начало) РКМ1. Спецификация (tº=-20ºС,-30ºС, окончание) РКМ1. Спецификация (tº=-40ºС, начало) РКМ1. Спецификация (tº=-40ºС, окончание) Перекрытие на отм. 0.000. ПМ1. Схема армирования. Сечение 1-1 ПМ1. Схема армирования. Разрезы 2-2-7-7 ПМ1. Схема армирования. Узлы 1,2. Сечения 8-8-14-14 РКМ1. Схемы армирования балок БМ1,БМ1А (t=-20ºС,-30ºС) РКМ1. Схемы армирования балок БМ1,БМ1А (t=-40ºС) РКМ1. Схемы армирования балок БМ2,БМ2А,БМ11 (t=-20ºС,-30ºС,-40ºС) РКМ1. Схемы армирования балок БМ3-БМ5,БМ8,БМ8А РКМ1. Схемы армирования балок БМ6,БМ7,БМ9,БМ10. Расчетные схемы балок ОКМ1. Опорное кольцо. Общий вид ОКМ1. Опорное кольцо. Схема армирования Детали гидроизоляции. Установка дренажного приямка Основной комплект КМ Общие данные (начало) Общие данные (окончание) Схема расположения путей подвесного транспорта на отм. 4.400 Схема расположения путей подвесного транспорта на отм. -0.850 Схема расположения площадки на отм. -3.125;-4.425;-6.125. Сечения. Узлы Схема расположения ограждений проемов, лестницы на отм. 0.000 |
| Разработан: | Харьковский Водоканалпроект |
| Утверждён: | 27.06.1983 СоюзводоканалНИИпроект (SoyuzvodokanalNIIproject 32) |







































