Скачать Типовой проект 168-04-01 Выпуск I. Дверь ДОП 0,9х2Дата актуализации: 01.01.2021
|
| Обозначение: | Типовой проект 168-04-01 |
| Обозначение англ: | 168-04-01 |
| Статус: | не действует |
| Название рус.: | Выпуск I. Дверь ДОП 0,9х2 |
| Дата добавления в базу: | 01.09.2013 |
| Дата актуализации: | 01.01.2021 |
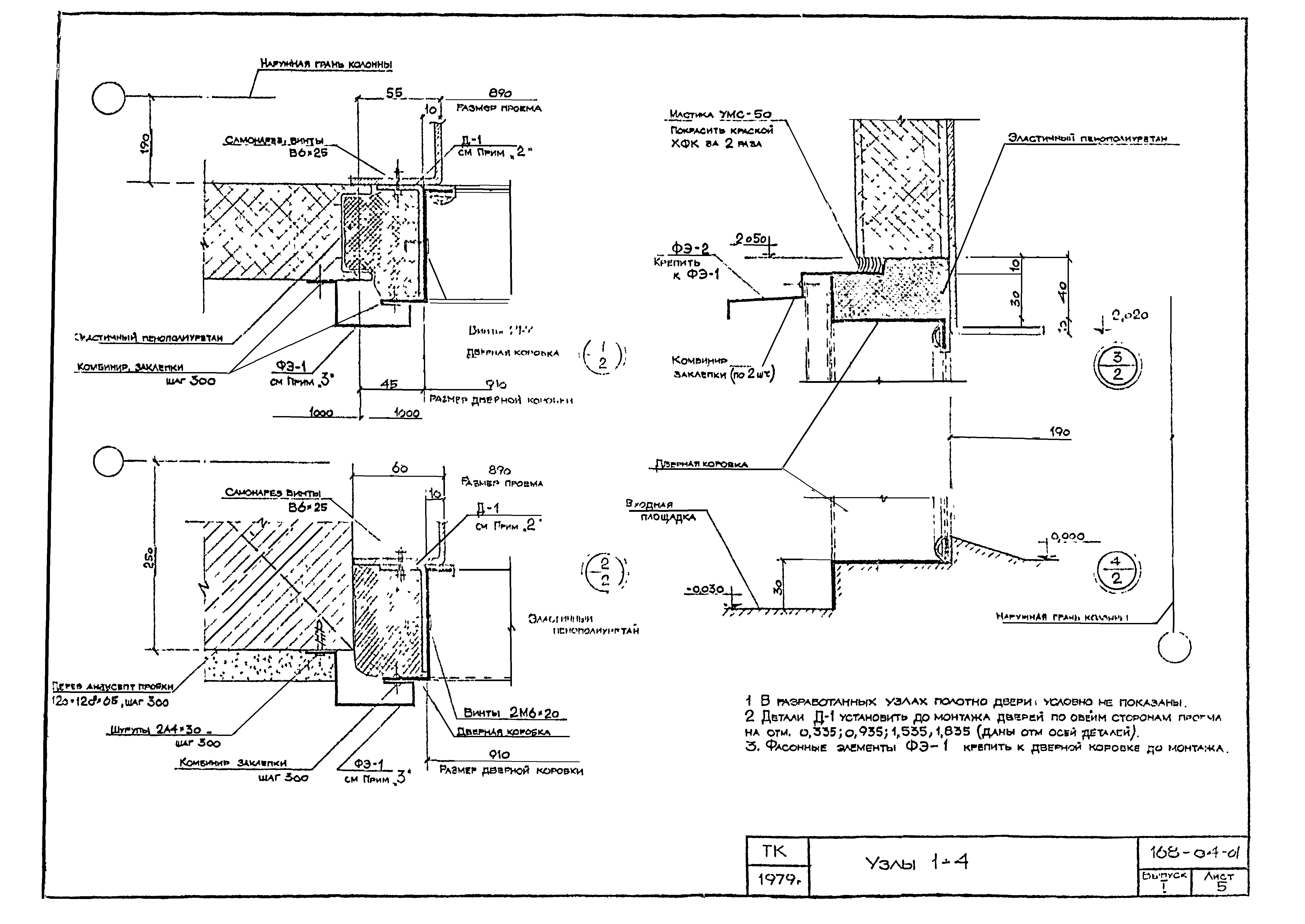
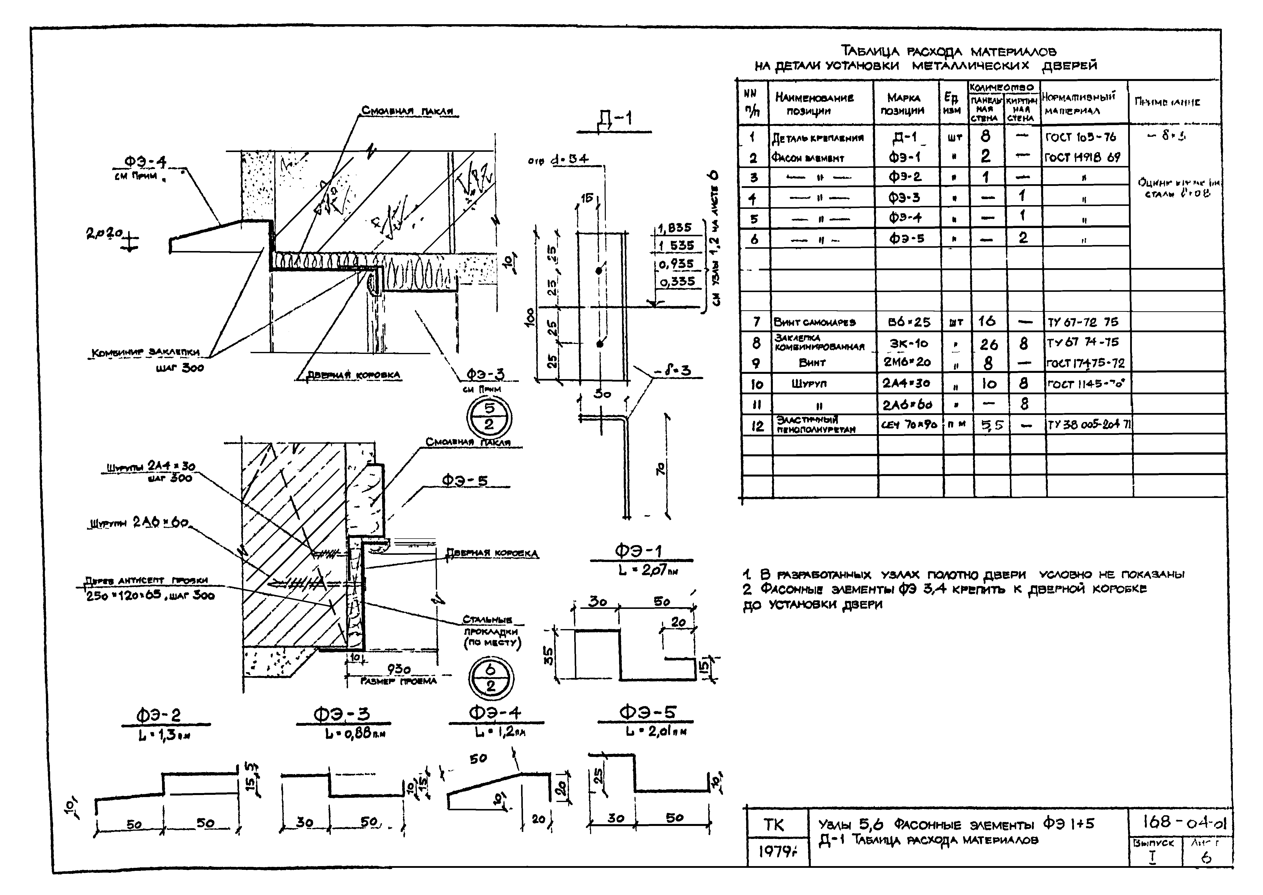
| Оглавление: | Пояснительная часть Схемы 1,2. Сечения 1-1-4-4 Коробка дверная Полотно дверное Узлы 1-4 Фасонные элементы ФЭ-1-5. Узлы 5,6. Таблица расхода материалов на детали установки металлических дверей |
| Разработан: | ВПО Союзстройконструкция |
| Утверждён: | 01.01.1979 Минтяжстрой СССР (USSR Mintyazhstroy ) |






