Скачать Типовой проект 168-04-01 Выпуск II. Дверь ДАОП 0,9х2Дата актуализации: 01.01.2021
|
| Обозначение: | Типовой проект 168-04-01 |
| Обозначение англ: | 168-04-01 |
| Статус: | не действует |
| Название рус.: | Выпуск II. Дверь ДАОП 0,9х2 |
| Дата добавления в базу: | 01.09.2013 |
| Дата актуализации: | 01.01.2021 |
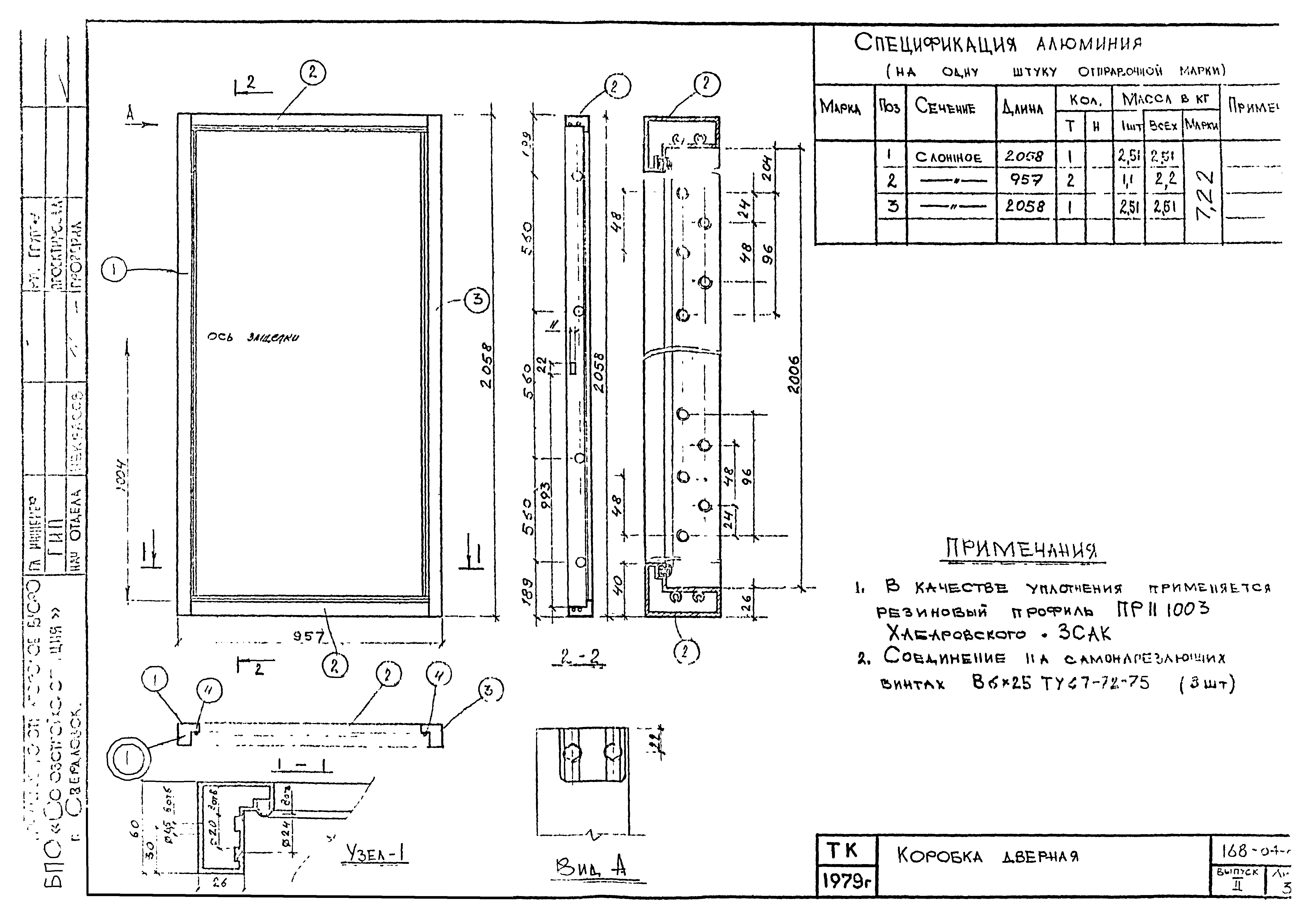
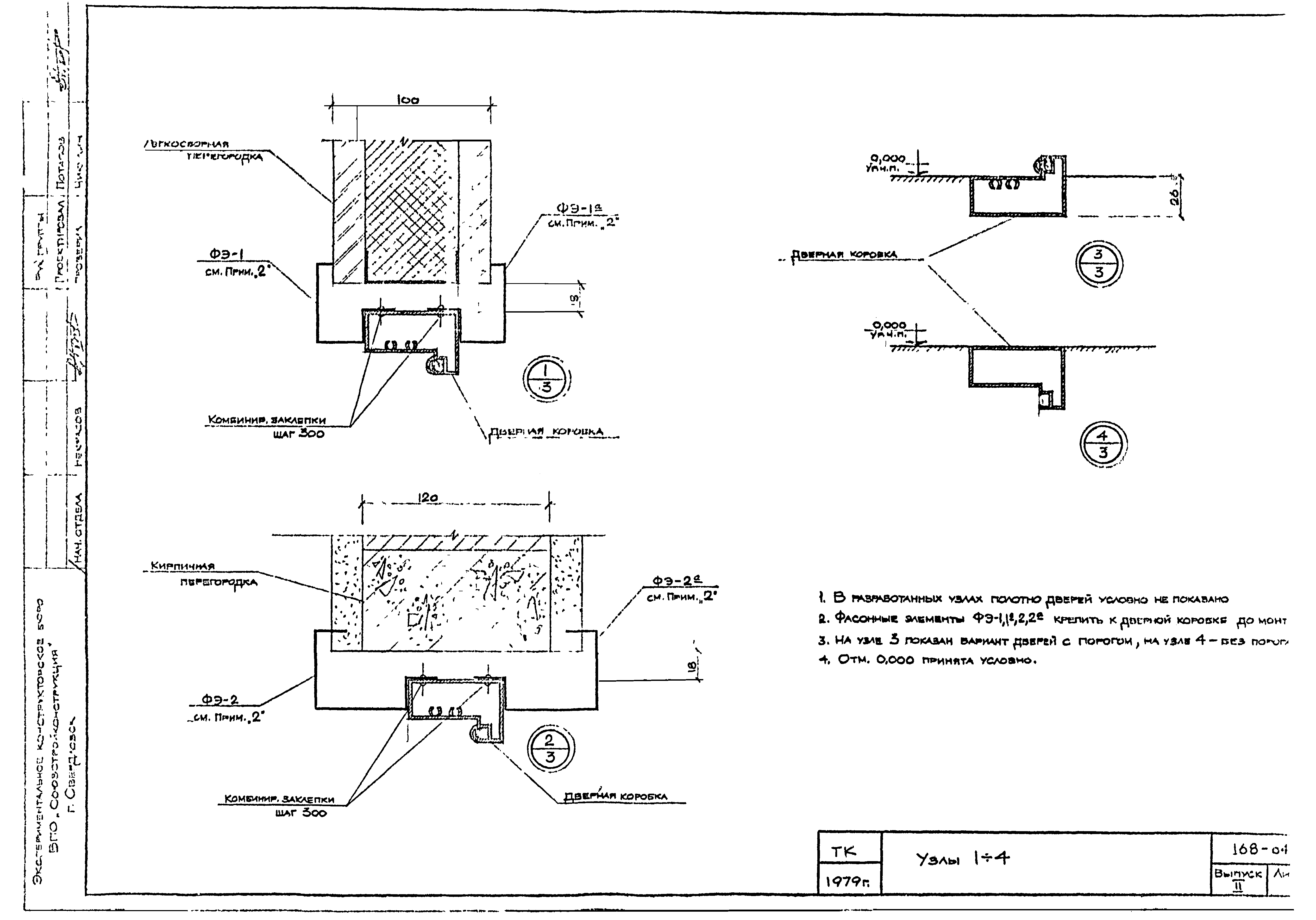
| Оглавление: | Пояснительная часть Дверь ДАОП 0.9х2. Сечения 1-1,2-2,1а-1а,2а-2а Коробка дверная Полотно дверное Узлы 1-4 Узлы 5,6. Фасонные элементы ФЭ-1,2. Таблица расхода материалов на детали установки алюминиевых дверей |
| Разработан: | ВПО Союзстройконструкция |
| Утверждён: | 01.01.1979 Минтяжстрой СССР (USSR Mintyazhstroy ) |






