Скачать Серия ТКП-73 Альбом II. Подвальные помещения производственного назначенияДата актуализации: 01.01.2021
|
| Обозначение: | Серия ТКП-73 |
| Обозначение англ: | Series ТКП-73 |
| Статус: | не действует |
| Название рус.: | Альбом II. Подвальные помещения производственного назначения |
| Дата добавления в базу: | 01.09.2013 |
| Дата актуализации: | 01.01.2021 |
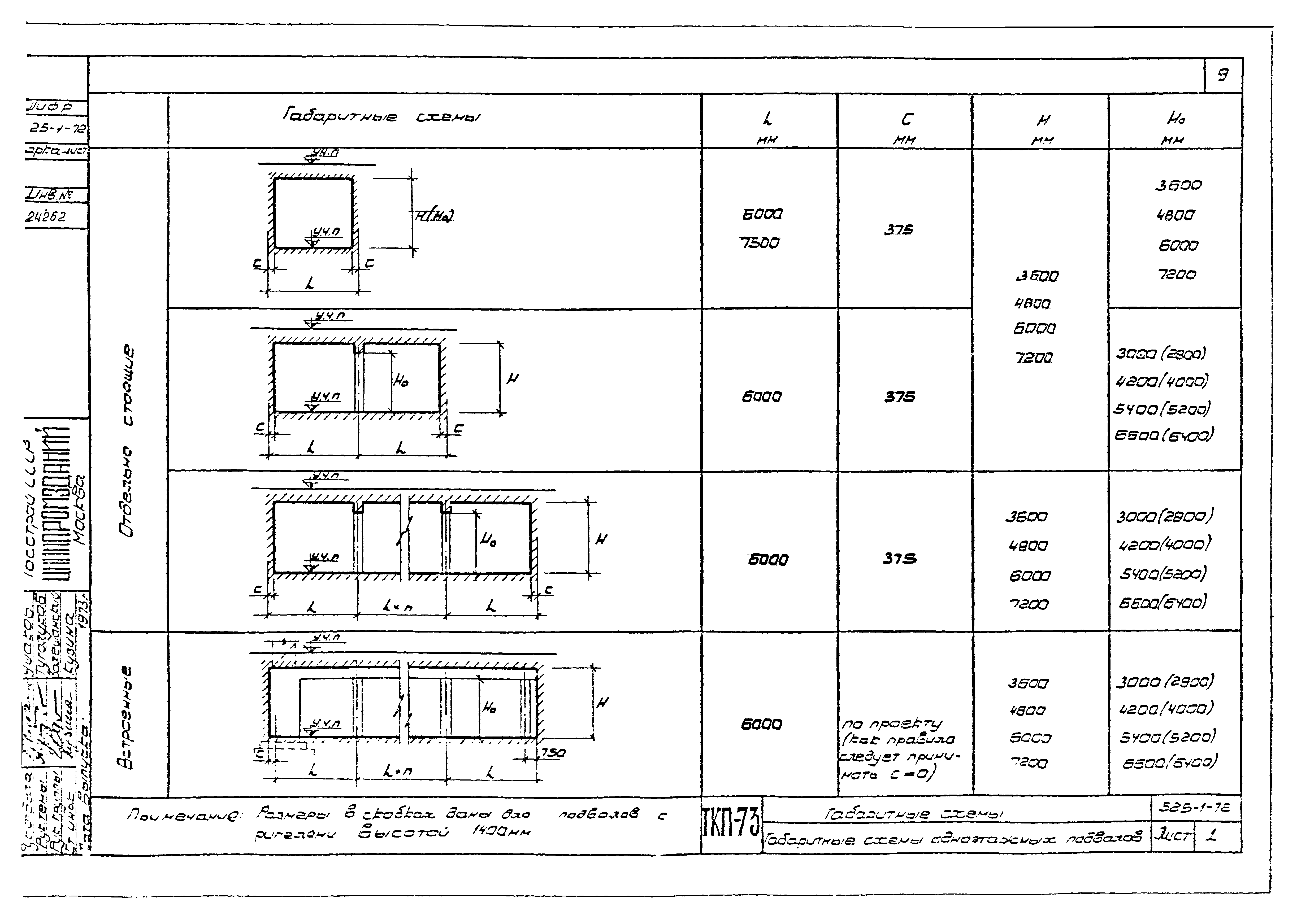
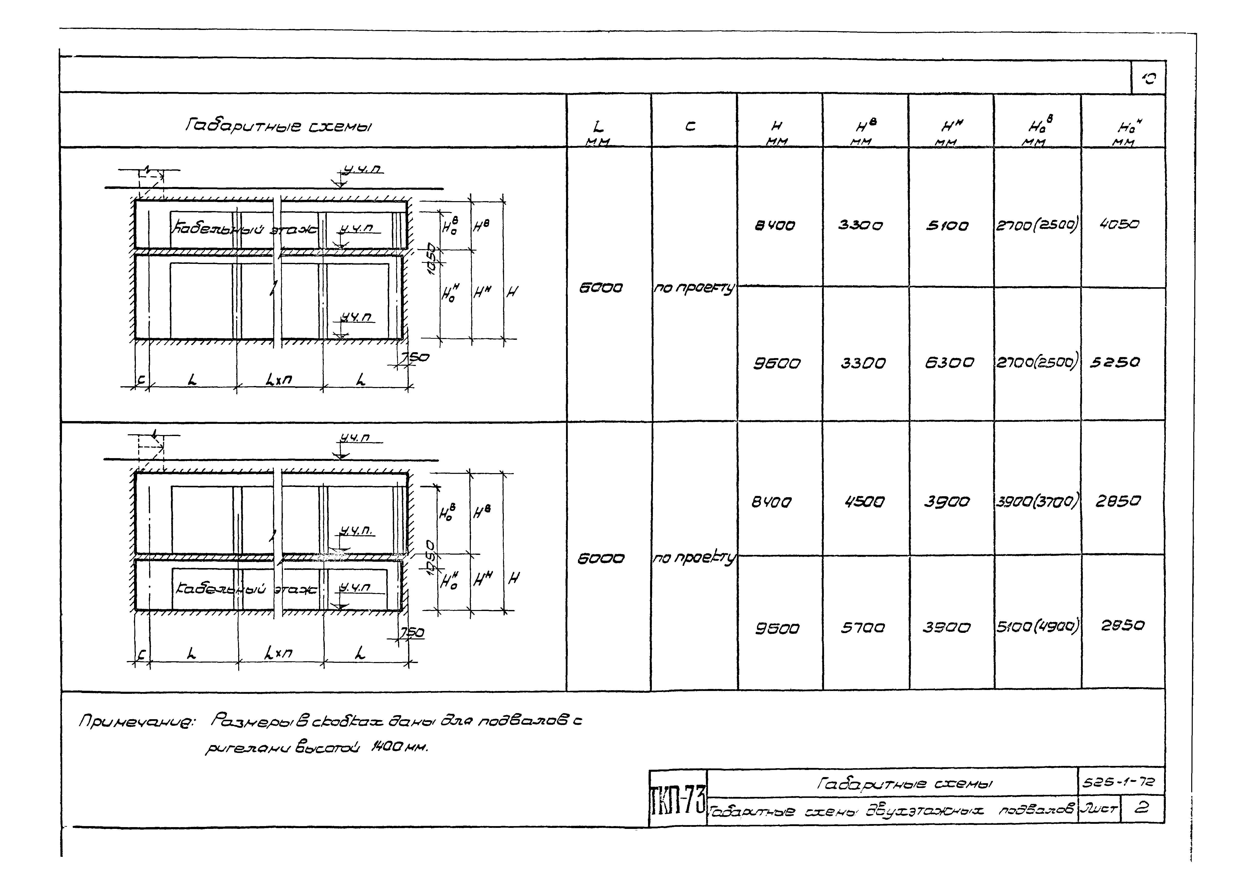
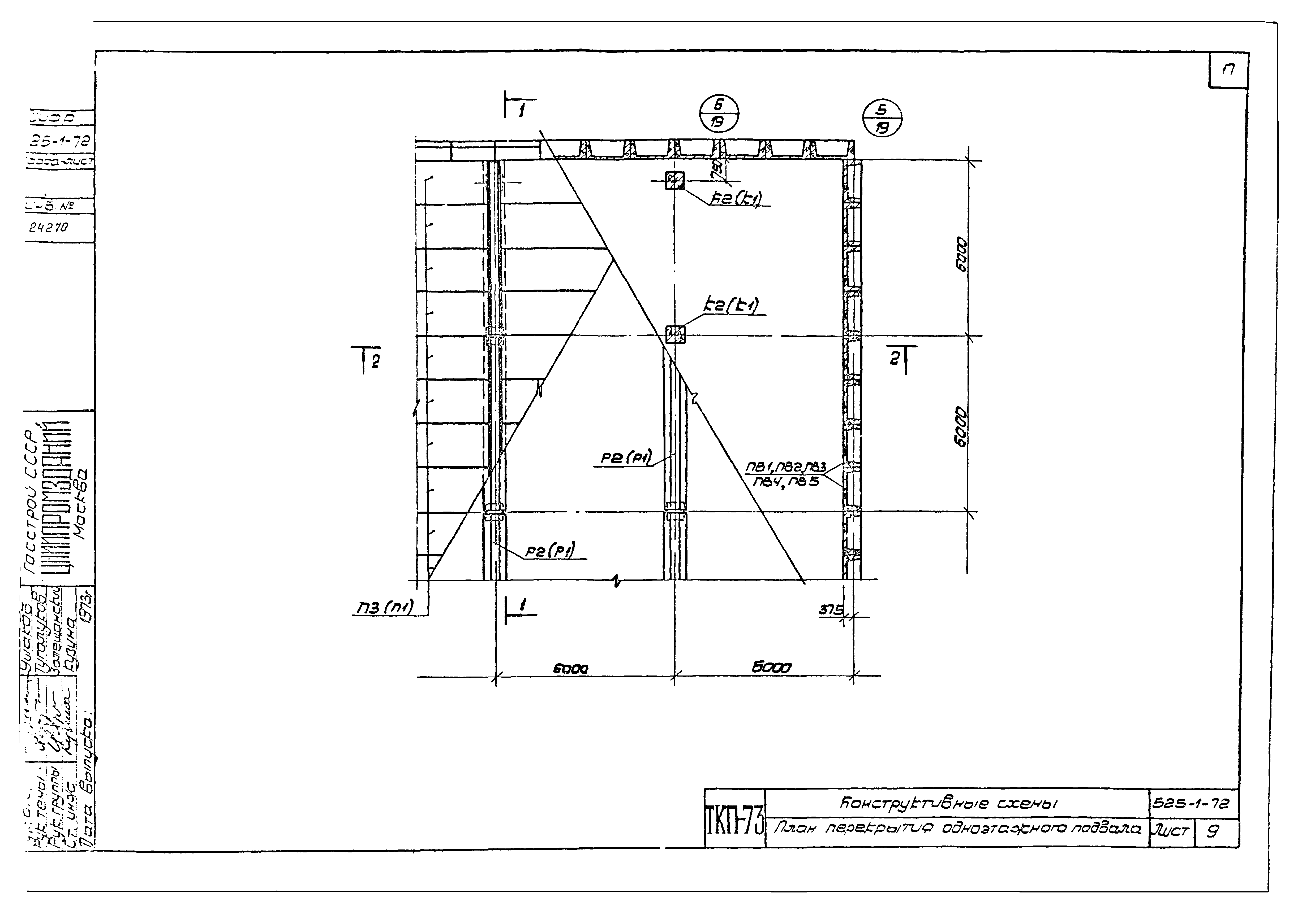
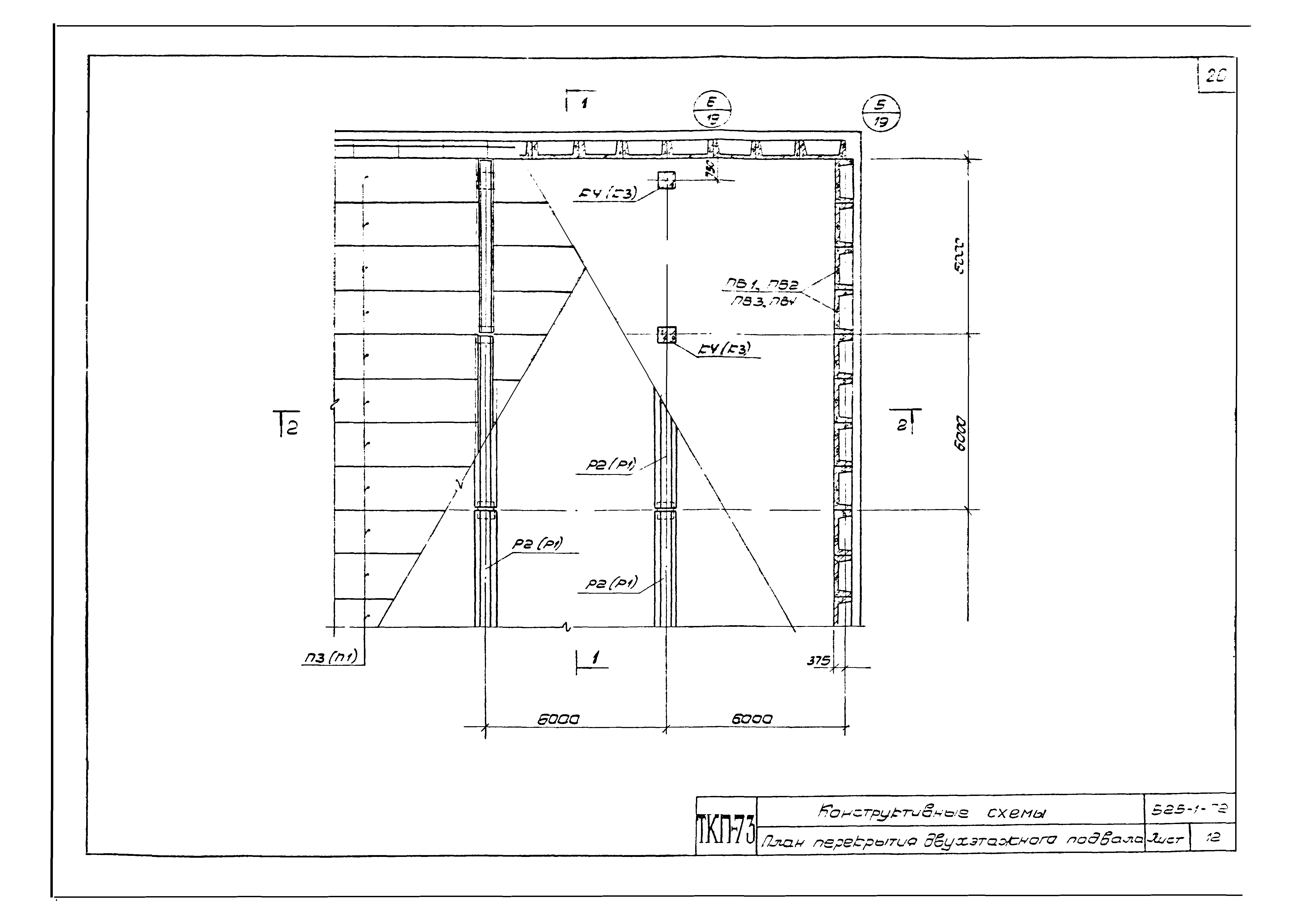
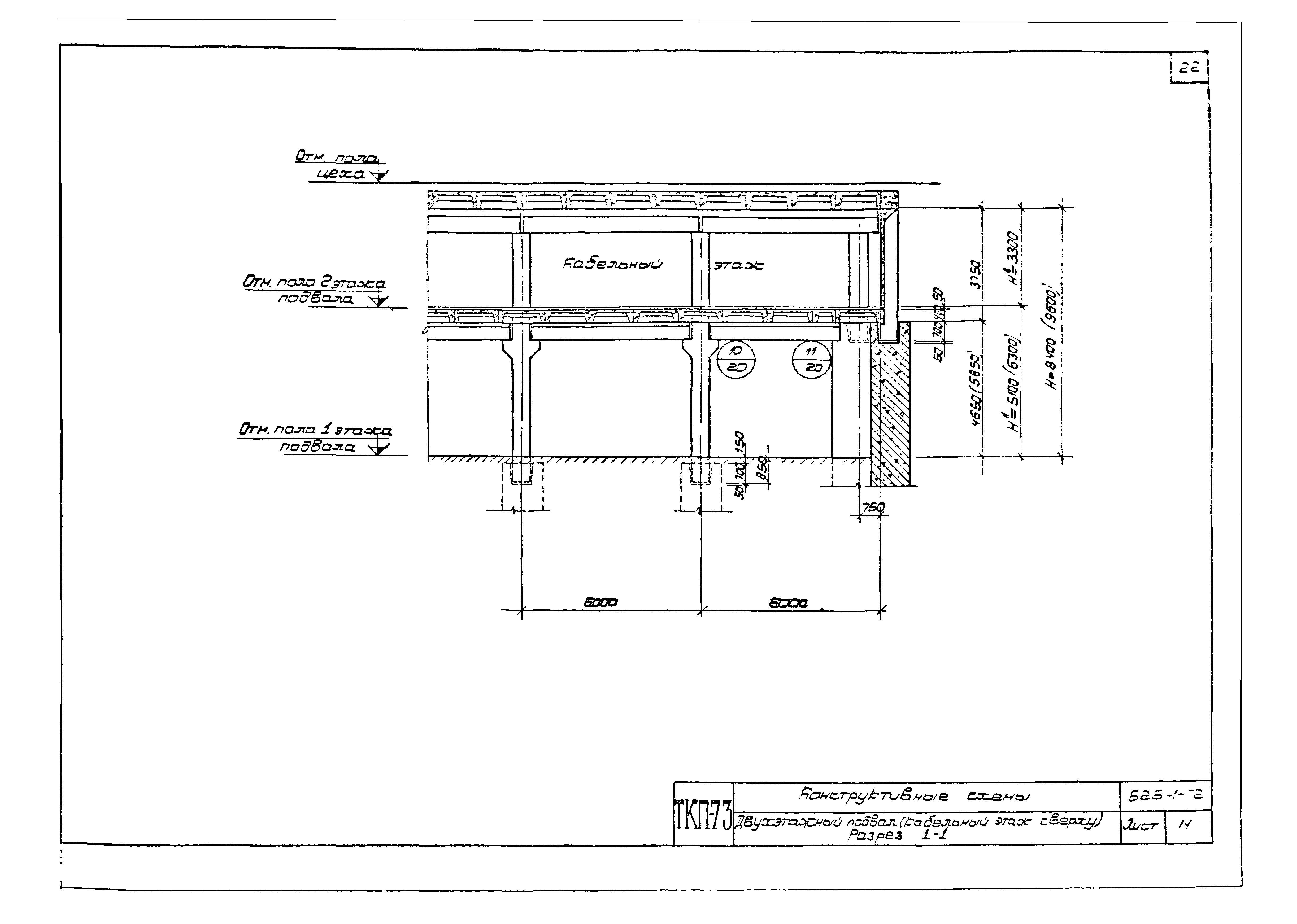
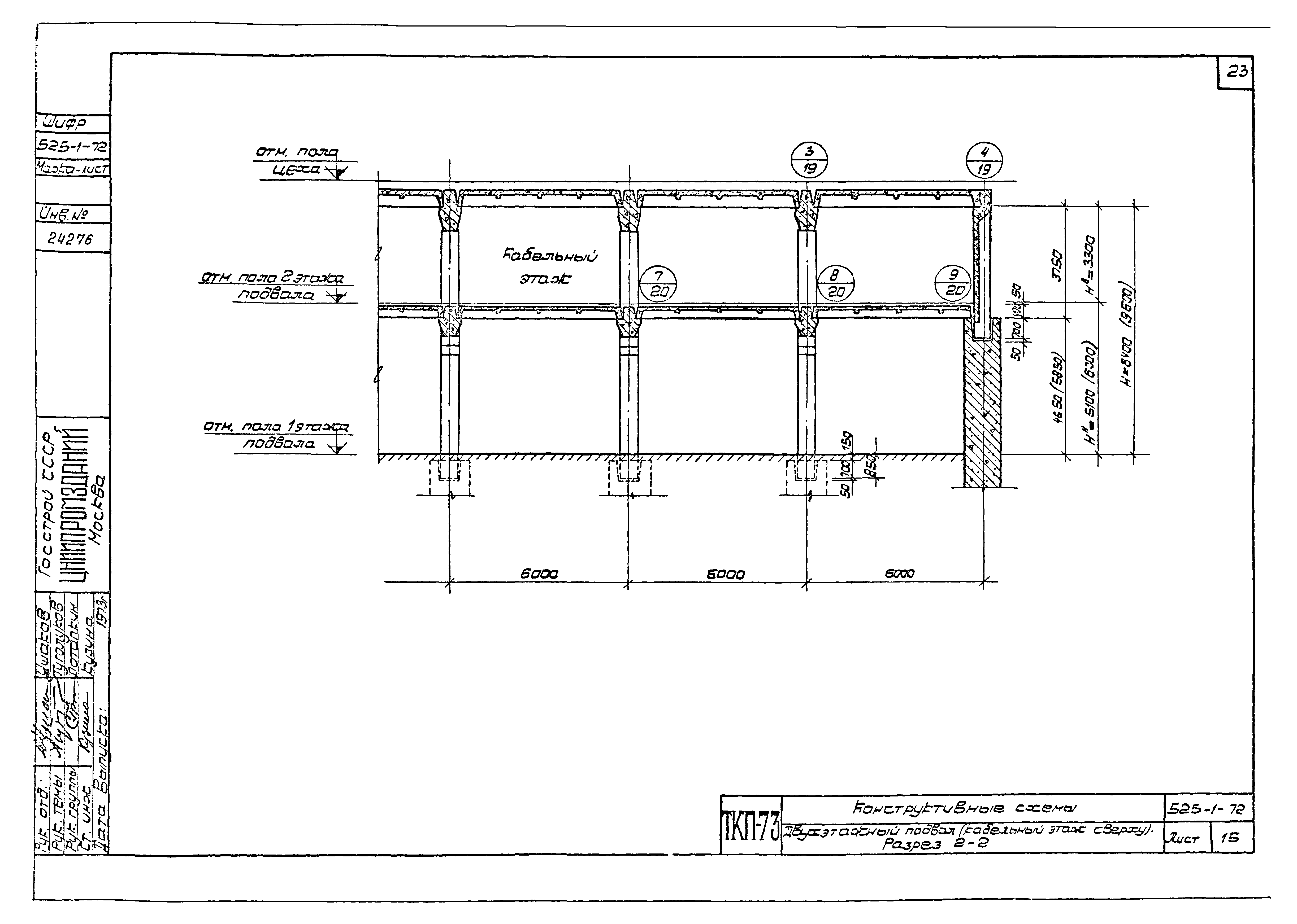
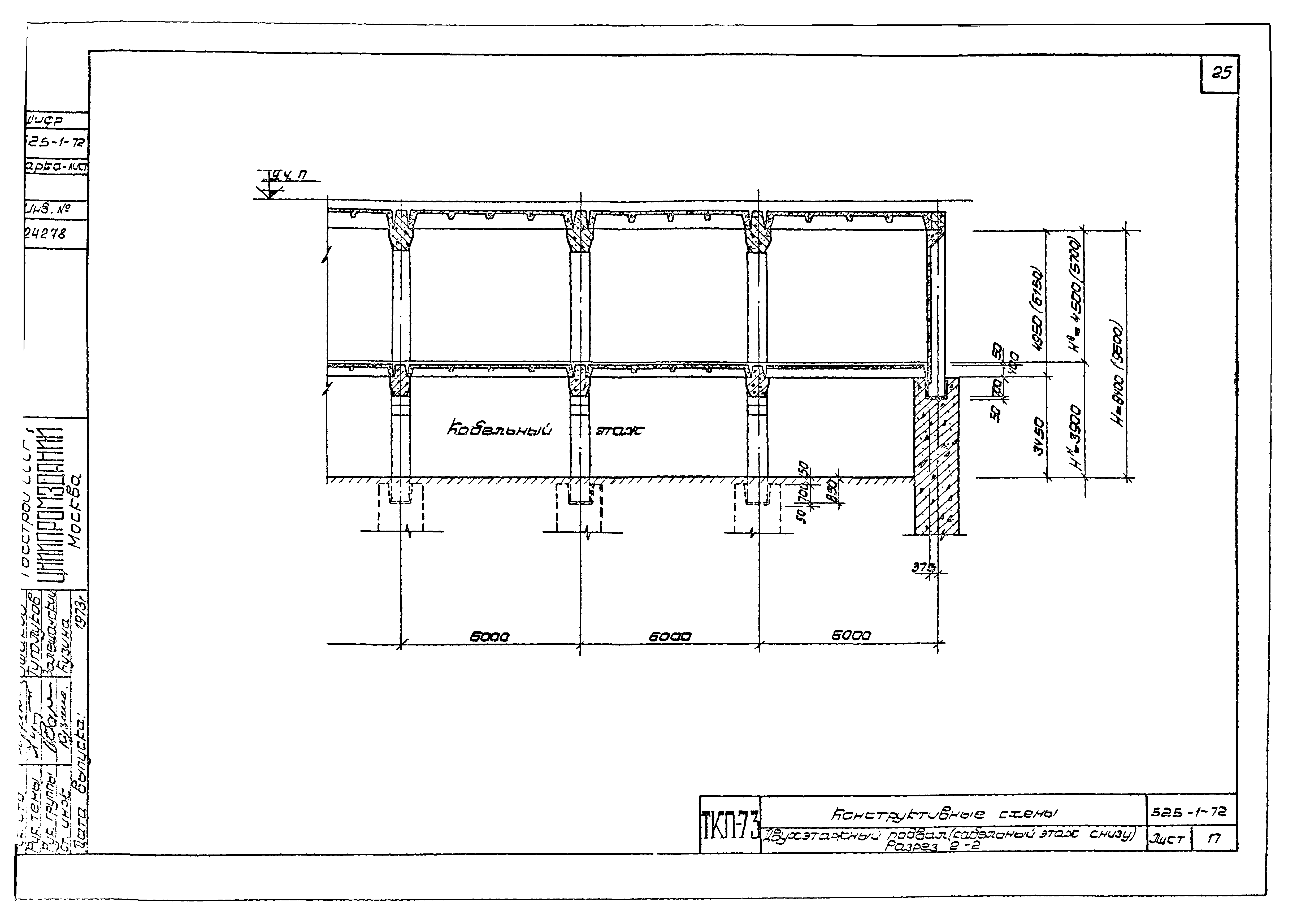
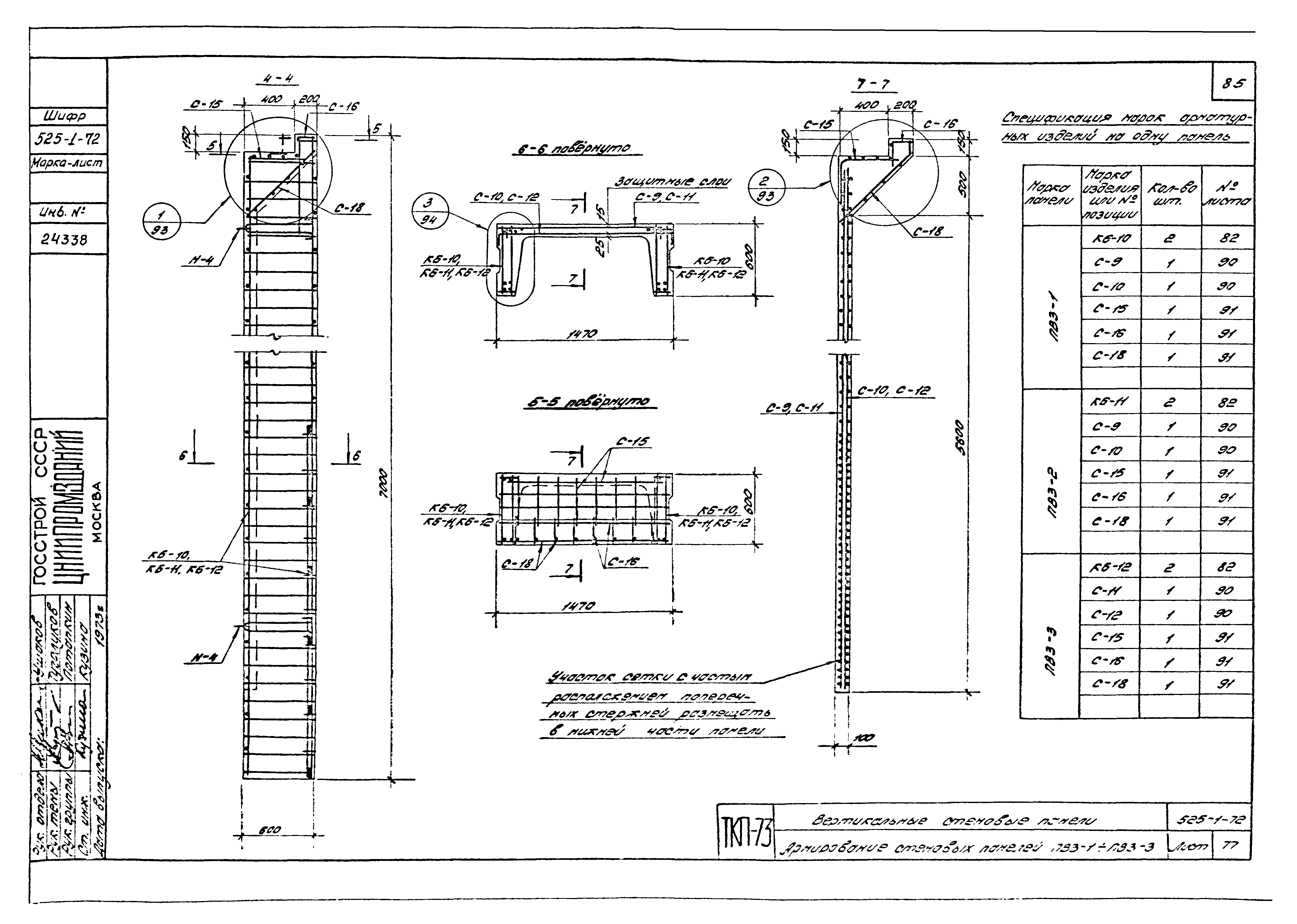
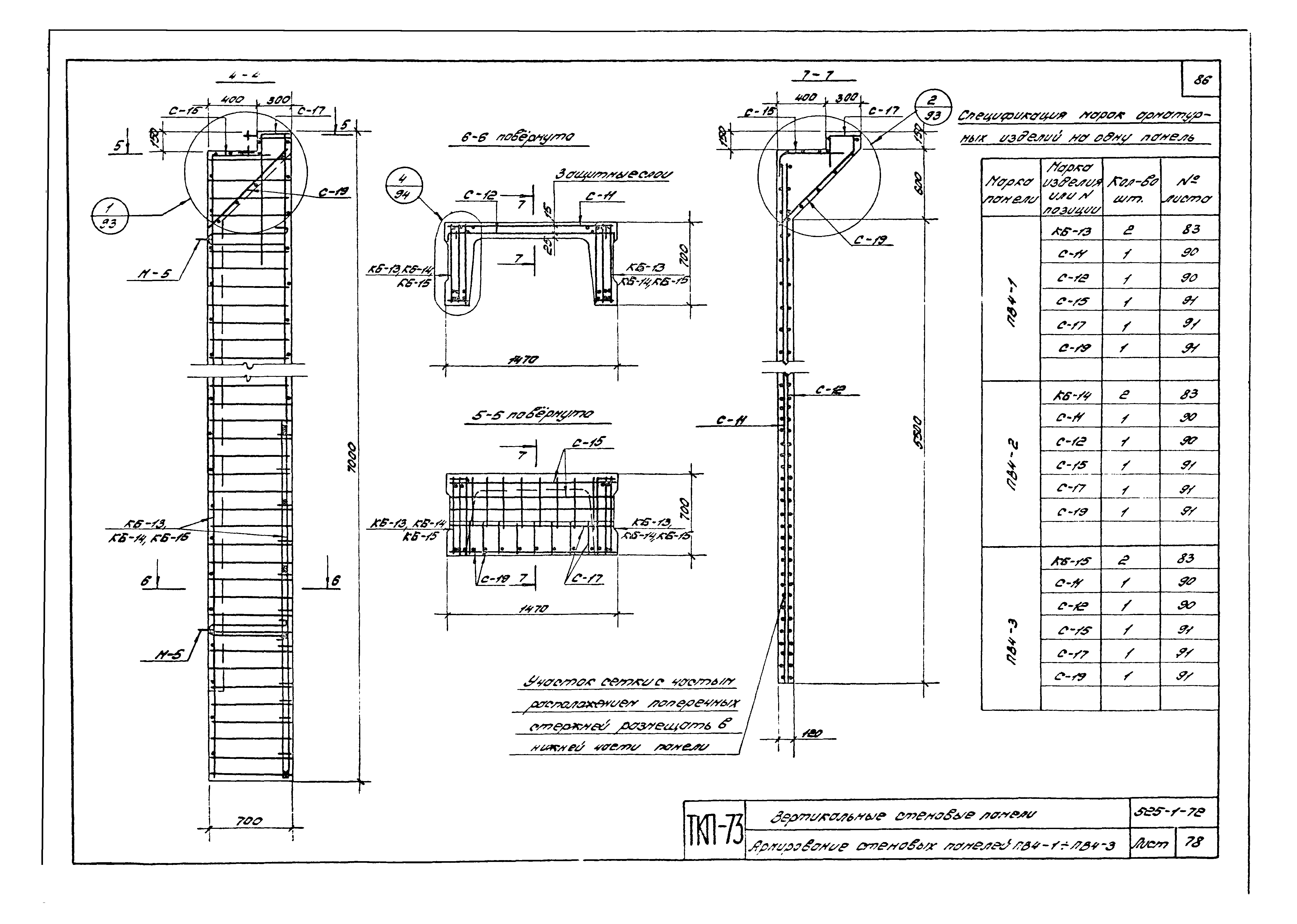
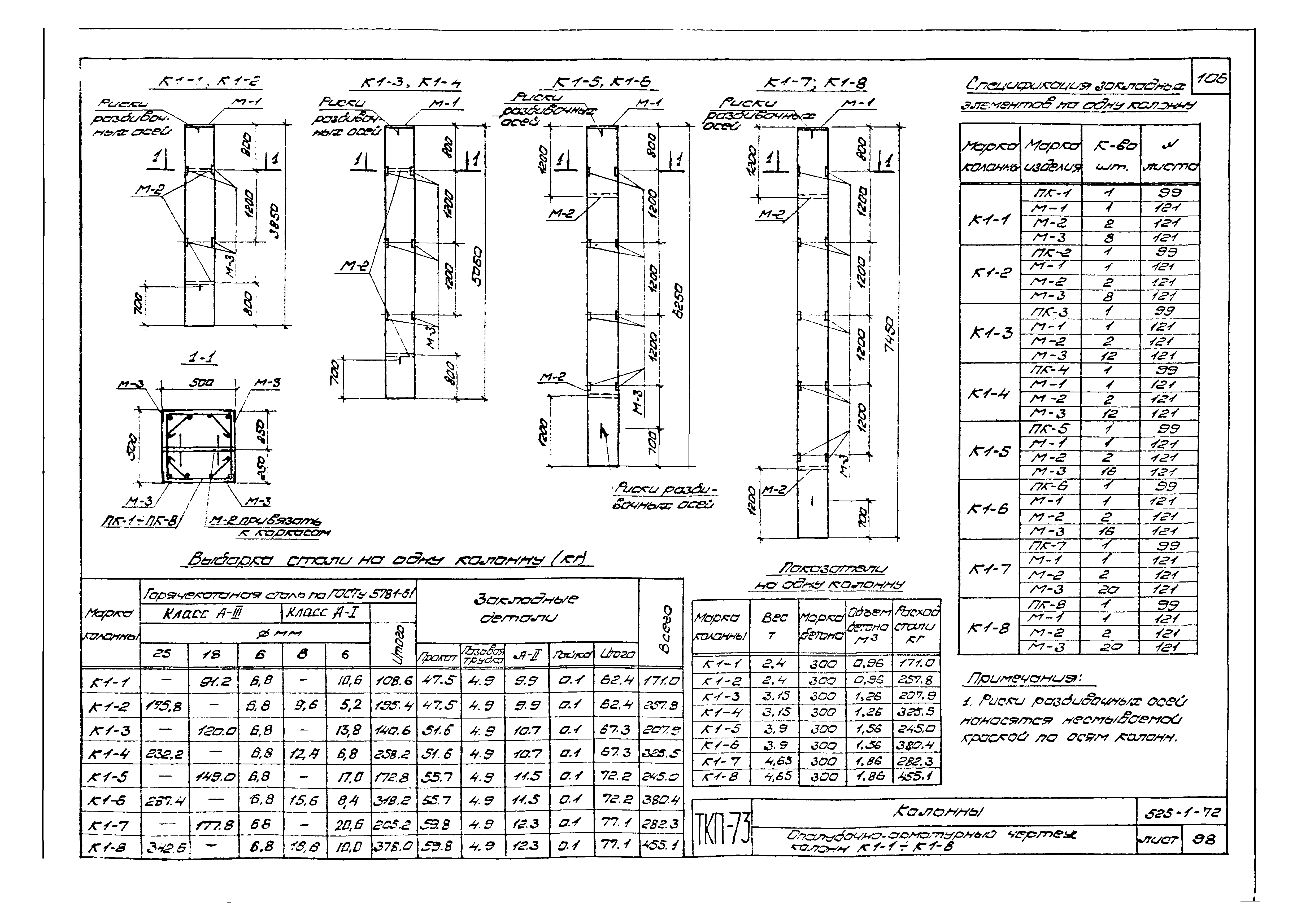
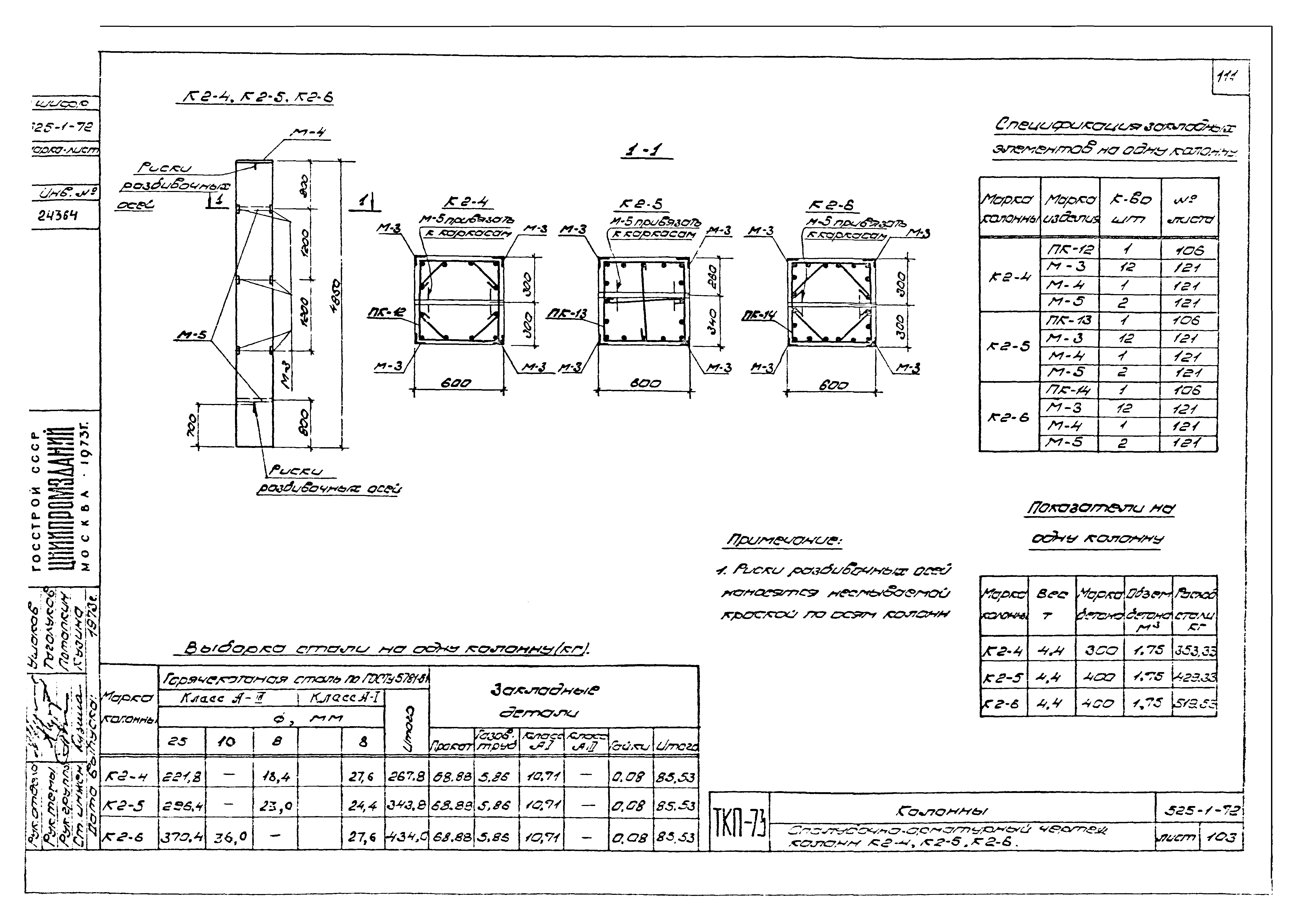
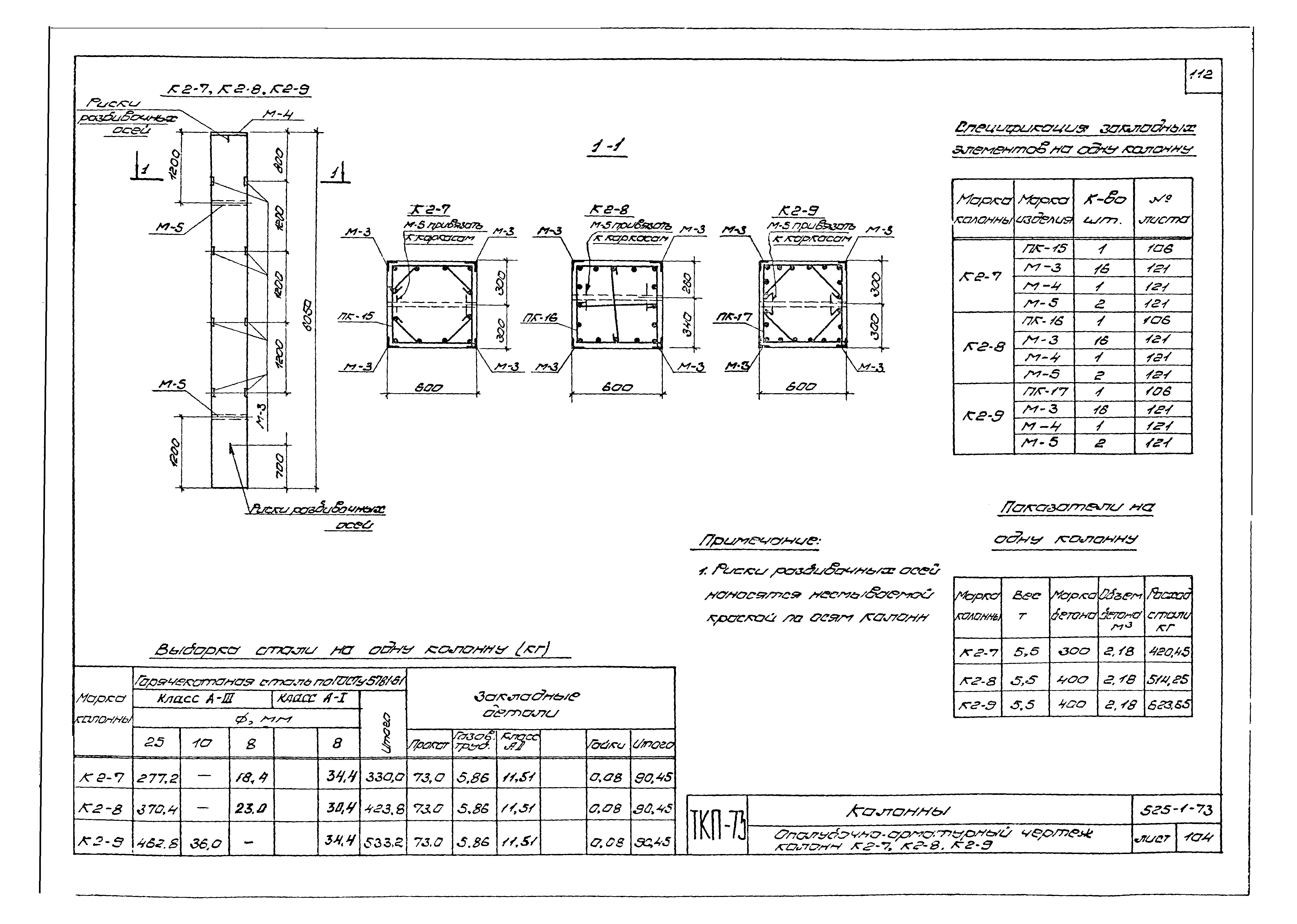
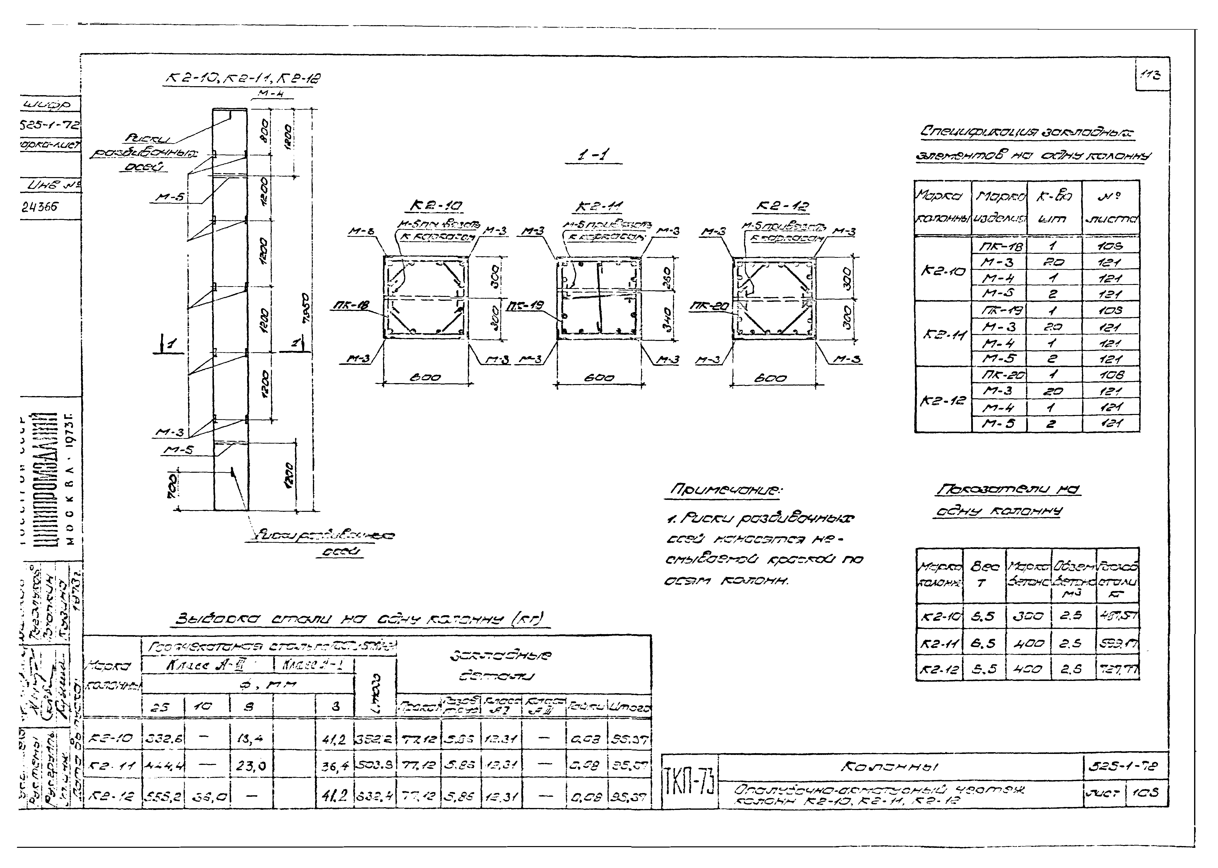
| Оглавление: | Перечень чертежей Общая часть Габаритные схемы Габаритные схемы одноэтажных подвалов Габаритные схемы двухэтажных подвалов Номенклатуре сборных железобетонных элементов Плиты перекрытия П1; П1К; П2-1; П2-2 Плиты перекрытия П3-1-П3-4; П4-1-П4-4; П5-1-П5-4 Ригели перекрытия Вертикальные стеновые панели Колонны одноэтажных подвалов Колонны двухэтажных подвалов Конструктивные схемы План перекрытия одноэтажного подвала Одноэтажный подвал. Разрез 1-1 Одноэтажный подвал. Разрез 2-2 План перекрытия двухэтажного подвала План междуэтажного перекрытия подвала Двухэтажный подвал (кабельный этаж сверху). Разрез 1-1 Двухэтажный подвал (кабельный этаж сверху). Разрез 2-2 Двухэтажный подвал (кабельный этаж снизу). Разрез 1-1 Двухэтажный подвал (кабельный этаж снизу). Разрез 2-2 Детали приварки плит перекрытия к ригелям и стеновым панелям Перекрытие подвала. Узлы 1-6 Междуэтажное перекрытие подвала. Узлы 7-11 Монтажные проемы в перекрытии Вход в подвал сверху Вход в подвал сбоку Плиты перекрытий Плита П1К. Опалубочный чертеж Плиты П2-1;П2-2. Опалубочный чертеж Плиты П3-1-П3-5. Опалубочный чертеж Плиты П4-1-П4-4. Опалубочный чертеж Плиты П5-1-П5-4. Опалубочный чертеж Армирование плиты П1К Армирование плит П2-1; П2-2 Армирование плит П3-1-П3-5 Армирование плит П4-1-П4-4 Армирование плит П5-1-П5-4 Узлы 1; 2; 3 для плит h = 400 мм, в = 1500 мм Узлы 1; 2; 3 для плит h =400 мм, в=750 мм Узел 1 для плит h = 600 мм, в=1500 мм Узлы: 2; 3 для плит h = 600 мм, в=1500 мм Узлы: 1; 2; 3 для плит h = 600 мм, в=750 мм Арматурные каркасы КР1-КР3 Арматурные каркасы КР4-КР8 Арматурные каркасы КР9-КР12 Арматурные каркасы КР13-КР16 Арматурные каркасы КР17-КР23 Арматурные каркасы КР24-КР29 Арматурные сетки С1-С4 Арматурные сетки С5-С9 Арматурные сетки С10-С17 Закладные детали M-1 и У-2. Составная позиция СП-1 Плиты П1К, П2-1, П2-2, П3-1-П3-5. Спецификация марок арматурных изделий на одну плиту Плиты П4-1-П4-4, П5-1-П5-4. Спецификация марок арматурных изделий на одну плиту Выборка стали на одну плиту Ригели Опалубочный чертеж ригелей P1-1; Р1-2; Р1-3; P1А-1; Р1А-2; Р1А-3 Опалубочный чертеж ригелей P2-1; Р2-2; Р2-3; P1А-2; Р1А-2; Р1А-3 Армирование ригелей P1-1; P1-2; P1-3; P1A-1; P1A-2; P1A-3 Узел 1 для ригелей P1-1, P1-2, P1-3, P1A-1, P1A-2, P1A-3 Пространственные арматурные каркасы ПК1, ПК2, ПК3 Армирование ригеля P1К-1 Узел 1 для ригеля P1К-1 Пространственный арматурный каркас ПК4 Армирование ригелей P2-1, Р2-2, P2-3, P2A-1, Р2А-2, Р2А-3 Узел 1 для ригелей P2-1, P2-2, Р2-3, P2A-1, Р2А-2, Р2А-3 Пространственные арматурные каркасы ПК5, ПК6, ПК7 Спецификация марок арматурных изделий на один ригель Арматурные каркасы КР1, КР2, КР3, КР4 Арматурные каркасы КР5, КР6, КР7, С1-С6 Арматурные сетки С7-С10. Отдельные стержни Закладные детали M-1, М-2, М-3 Закладные детали М-4-М-7 Выборка стали на один ригель Вертикальные стеновые панели Опалубочный чертеж панелей ПВ1-1-ПВ1-4 Опалубочный чертеж панелей ПВ2-1-ПВ2-5 Опалубочный чертеж панелей ПВ3-1-ПВ3-3 Опалубочный чертеж панелей ПВ4-1-ПВ4-3 Опалубочный чертеж панелей ПВ5-1-ПВ5-3 Армирование стеновых панелей ПВ1-1-ПВ1-4 Армирование стеновых панелей ПВ2-1-ПВ2-5 Армирование стеновых панелей ПВ3-1-ПВ3-3 Армирование стеновых панелей ПВ4-1-ПВ4-3 Армирование стеновых панелей ПВ5-1-ПВ5-3 Пространственные арматурные каркасы КБ-1-КБ-4 Пространственные арматурные каркасы КБ-5-КБ-9 Пространственные арматурные каркасы КБ-10-КБ-12 Пространственные арматурные каркасы КБ-13-КБ-15 Пространственные арматурные каркасы КБ-16-КБ-18 Арматурные каркасы КЛ-1-КЛ-9; КП-1-КП-9 Арматурные каркасы КЛ-10-КЛ-13; КП-10-КП-18 Спецификация арматуры каркасов КЛ-1-КЛ-9; КП-1-КП-9 Спецификация арматуры каркасов КЛ-10-КЛ-18; КП-10-КП-18 Арматурные сетки C-1-С-8 Арматурные сетки C-9-С-14 Арматурные сетки C-15-С-19 Спецификация арматурных сеток С-1-С-19 Узлы: 1 и 2 Узлы: 3 и 4 Закладные детали М-1-M-6 Спецификация стали на закладные детали М-1-М-6 Закладная деталь ММ-1. Размещение MM-1 в стеновой панели Колонны Опалубочно-арматурный чертеж колонн К1-1-К1-8 Пространственные арматурные каркасы ПК-1-ПК-8 Арматурные каркасы и сетки КР-1-КР-16 и С-1 Спецификация арматурных каркасов и сеток КP-1-КP-16 и C-1 Опалубочно-арматурный чертеж колонн К2-1, К2-2, К2-3 Опалубочно-арматурный чертеж колонн К2-4, К2-5, К2-6 Опалубочно-арматурный чертеж колонн К2-7, К2-8, К2-9 Опалубочно-арматурный чертеж колонн К2-10, К2-11, К2-12 Пространственные арматурные каркасы ПК-9-ПК-20 Узлы 2,3,4 Арматурные каркасы и сетки: КР-17-КР-20, КР-29-КР-32, С-2 Арматурные каркасы и сетки: КР-21-КР-24, КР-33-КР-36, С-3 Арматурные каркасы и сетки: КР-25-КР-28, КР-37-КР-40, С-4 Спецификация арматурных каркасов КP-17-КР-36 Спецификация арматурных каркасов и сеток КP-37-КР-40, С-2, С-3, С-4 Опалубочно-арматурный чертеж колонн К3-1-К3-3 Пространственные арматурные каркасы ПК-21-ПК-28 Арматурные каркасы КР-41-КР-52 Спецификация арматурных каркасов и отдельных стержней КР-41-КР-52 Опалубочно-арматурный чертеж колонн К4-1-К4-8 Пространственные арматурные каркасы ПК-29-ПК-36 Арматурные каркасы КР-53-КР-64 Спецификация арматурных каркасов и отдельных стержней КР-53-КР-64 Закладные детали M-1-М-5 Закладные детали М-6 и М-7 Спецификация стали на закладные детали М-1-М-7 |
| Разработан: | ЦНИИпромзданий |
| Утверждён: | 01.01.1973 Госстрой СССР (Государственный комитет Совета Министров СССР по делам строительства) (USSR Gosstroy ) |


































































































































