Скачать Типовой проект 214-2-57 Альбом I. Архитектурно-строительные и технологические чертежиДата актуализации: 01.01.2021
|
| Обозначение: | Типовой проект 214-2-57 |
| Обозначение англ: | 214-2-57 |
| Статус: | действует |
| Название рус.: | Альбом I. Архитектурно-строительные и технологические чертежи |
| Дата добавления в базу: | 01.09.2013 |
| Дата актуализации: | 01.01.2021 |
| Дата введения: | 13.06.1974 |
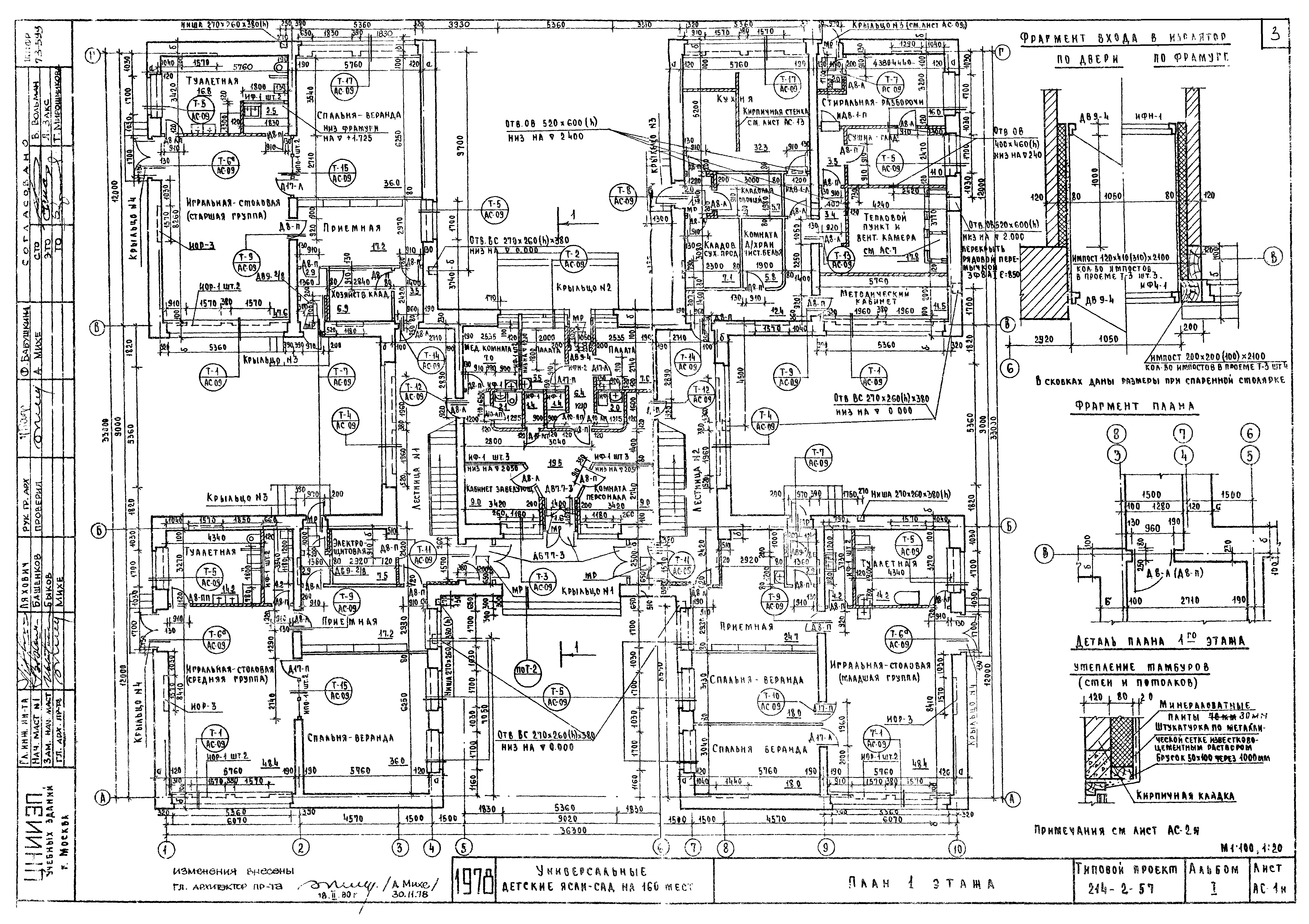
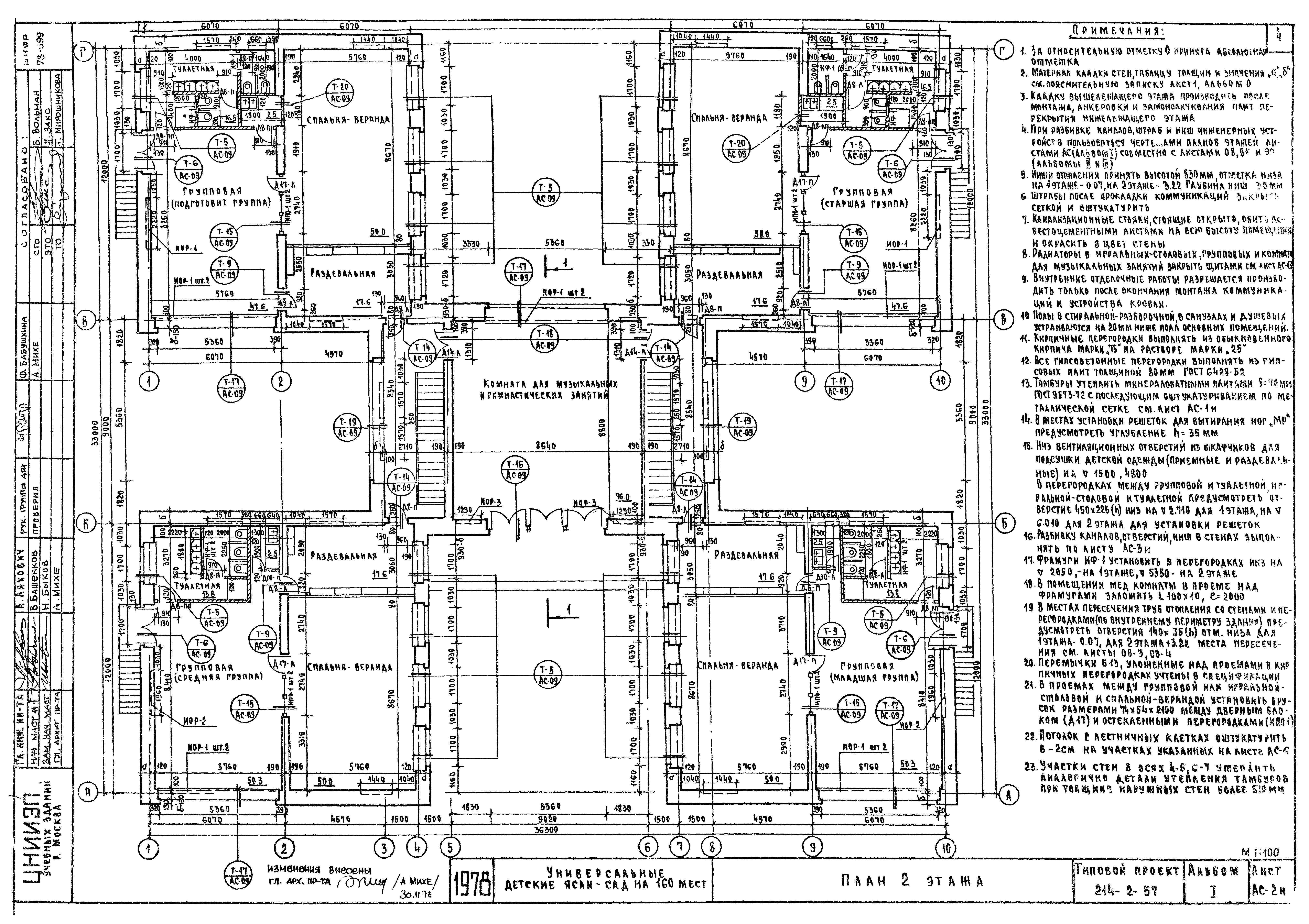
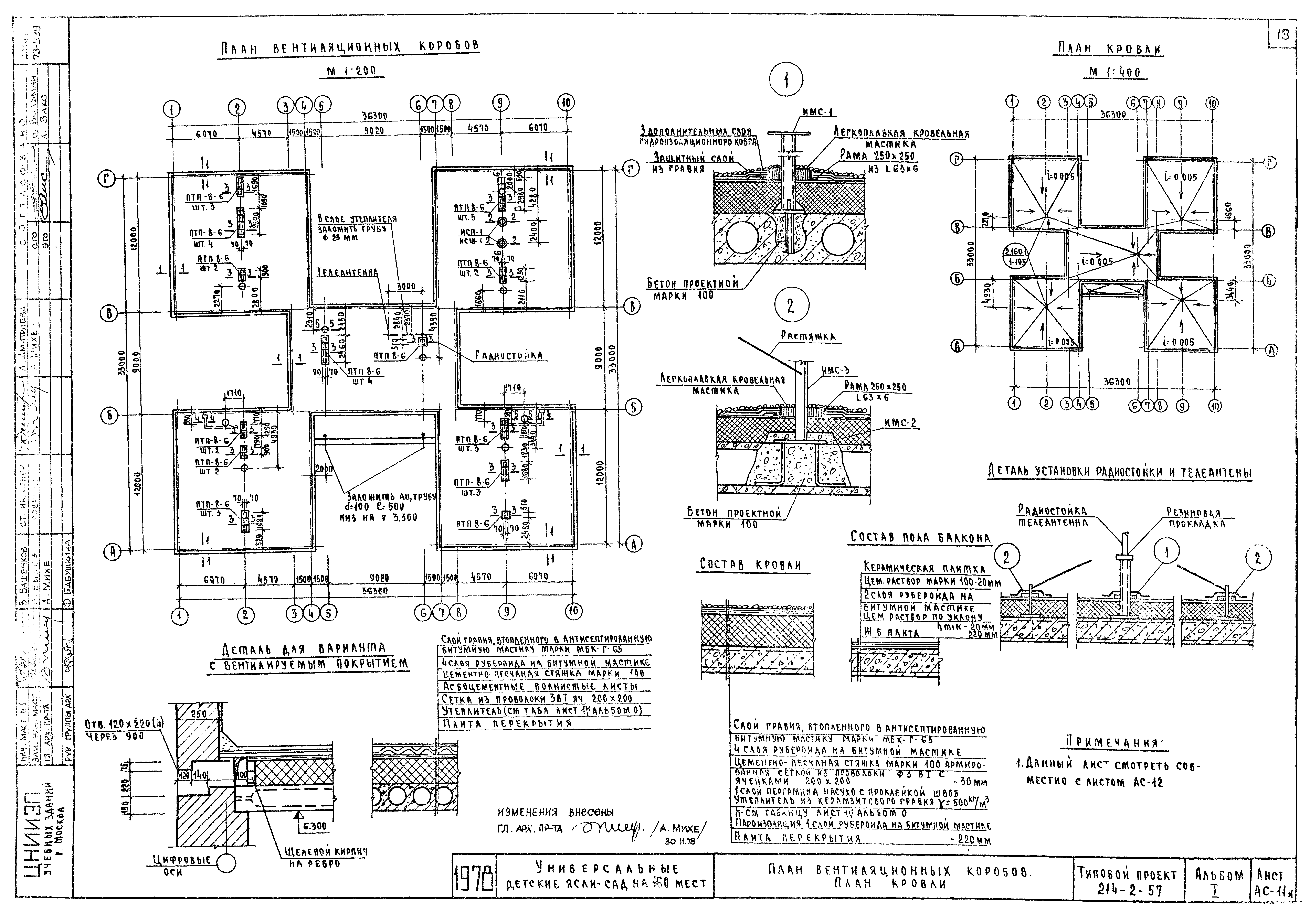
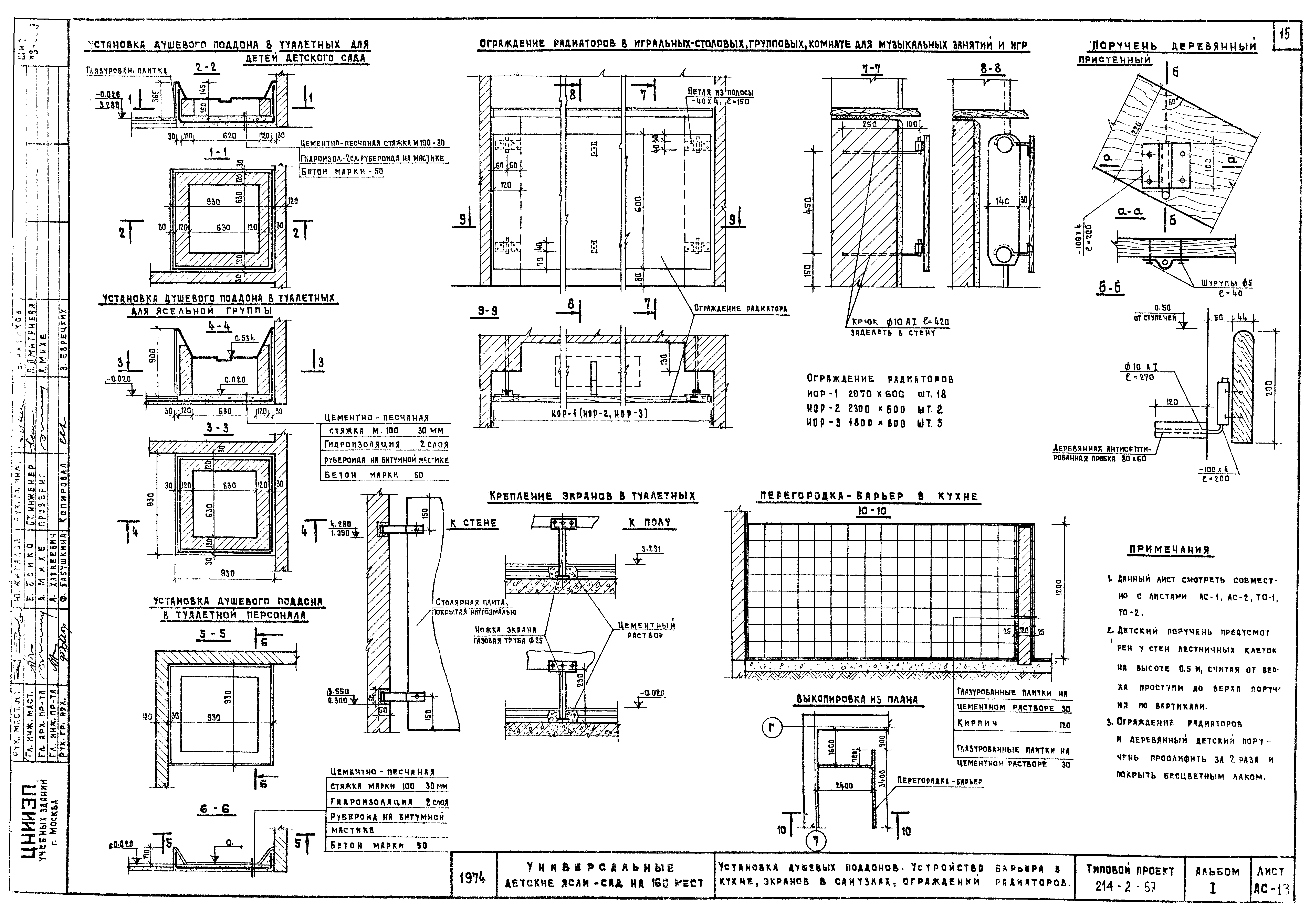
| Оглавление: | Содержание альбома. Пояснительная записка АС-1И План 1 этажа АС-2И План 2 этажа АС-3И Развертки внутренних стен АС-4И Фасады в осях 1-10,10-1,А-Г. Разрез 1-1 АС-5И Фрагменты фасада. Эвакуационная лестница АС-6 Планы, перекрытия и покрытия АС-7И Венткамера. Сечения и узлы перекрытий АС-8И Лестницы №№1,2. Разрезы АС-9 Детали и узлы лестниц №№ 1,2 АС-10 Интерьеры комнаты для музыкальных и гимнастических занятий, групповой, лестничного холла АС-11И План вентиляционных коробов. План кровли АС-12И Кровля. Сечения. Узлы АС-13 Установка душевых поддонов. Устройство барьера в кухне, экранов в санузлах, ограждение радиаторов АС-14И План кладки кирпичных стен. Спецификация изделий и заполнение проемов (вариант с тройным остеклением) АС-15 Фасады в осях 1-10,10-1,А-Г. Разрез 1-1 (вариант с тройным остеклением) АС-16 Теневой навес. Фасад. Планы. Разрезы. Узлы АС-17 Теневой навес. Узлы ТО-1 План 1 этажа. Расстановка технологического оборудования ТО-2 План 2 этажа. Расстановка технологического оборудования ТО-3 План пищеблока и постирочной. Расстановка технологического оборудования и монтажный план Сводная спецификация технологического оборудования |
| Разработан: | ЦНИИЭП учебных зданий Госгражданстроя |
| Утверждён: | 31.08.1973 Госгражданстрой (Gosgrazhdanstroy 189) |























