Скачать Типовой проект 902-2-125 Альбом I. Технологическая, строительная и электротехническая частиДата актуализации: 01.01.2021
|
| Обозначение: | Типовой проект 902-2-125 |
| Обозначение англ: | 902-2-125 |
| Статус: | не действует |
| Название рус.: | Альбом I. Технологическая, строительная и электротехническая части |
| Дата добавления в базу: | 01.09.2013 |
| Дата актуализации: | 01.01.2021 |
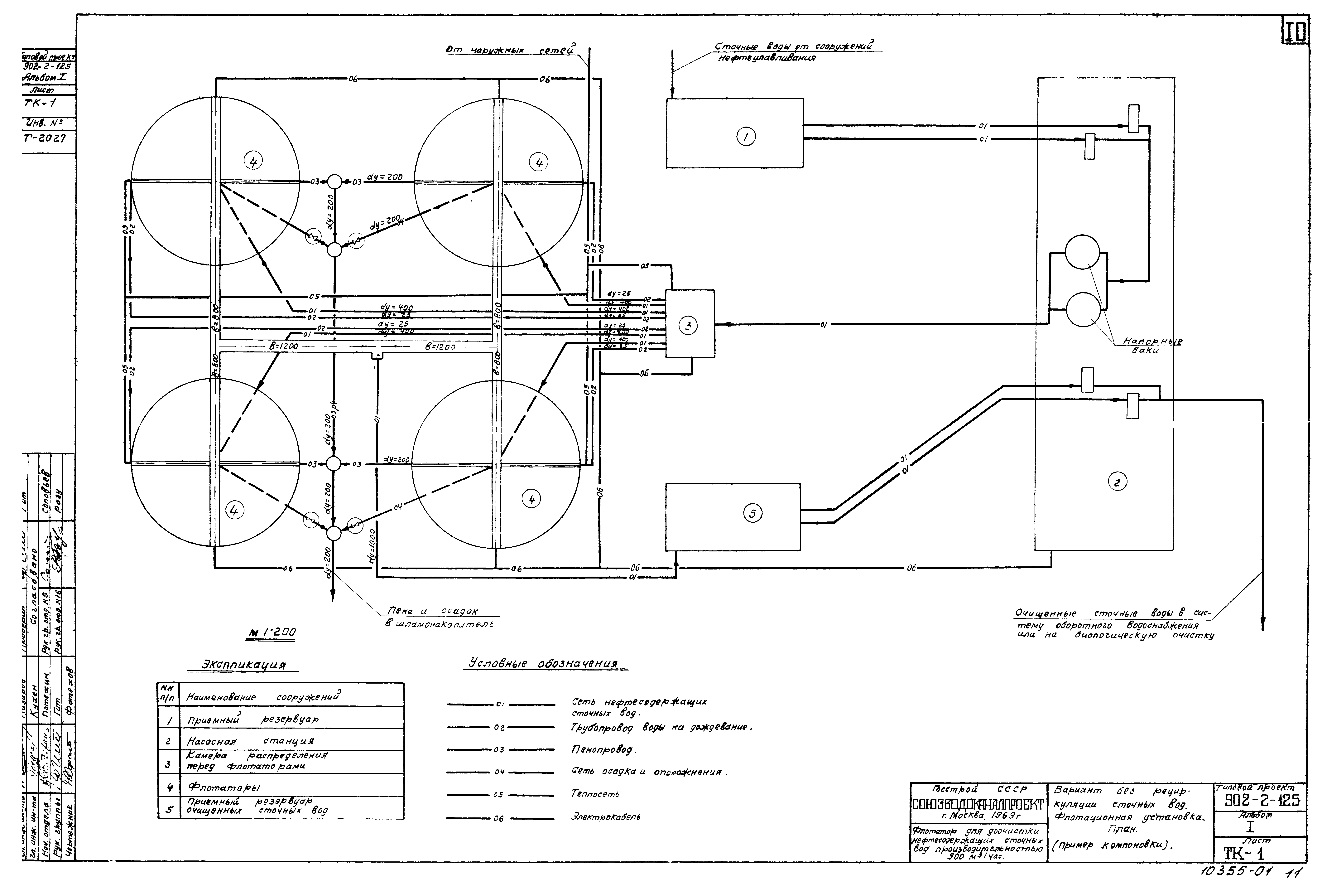
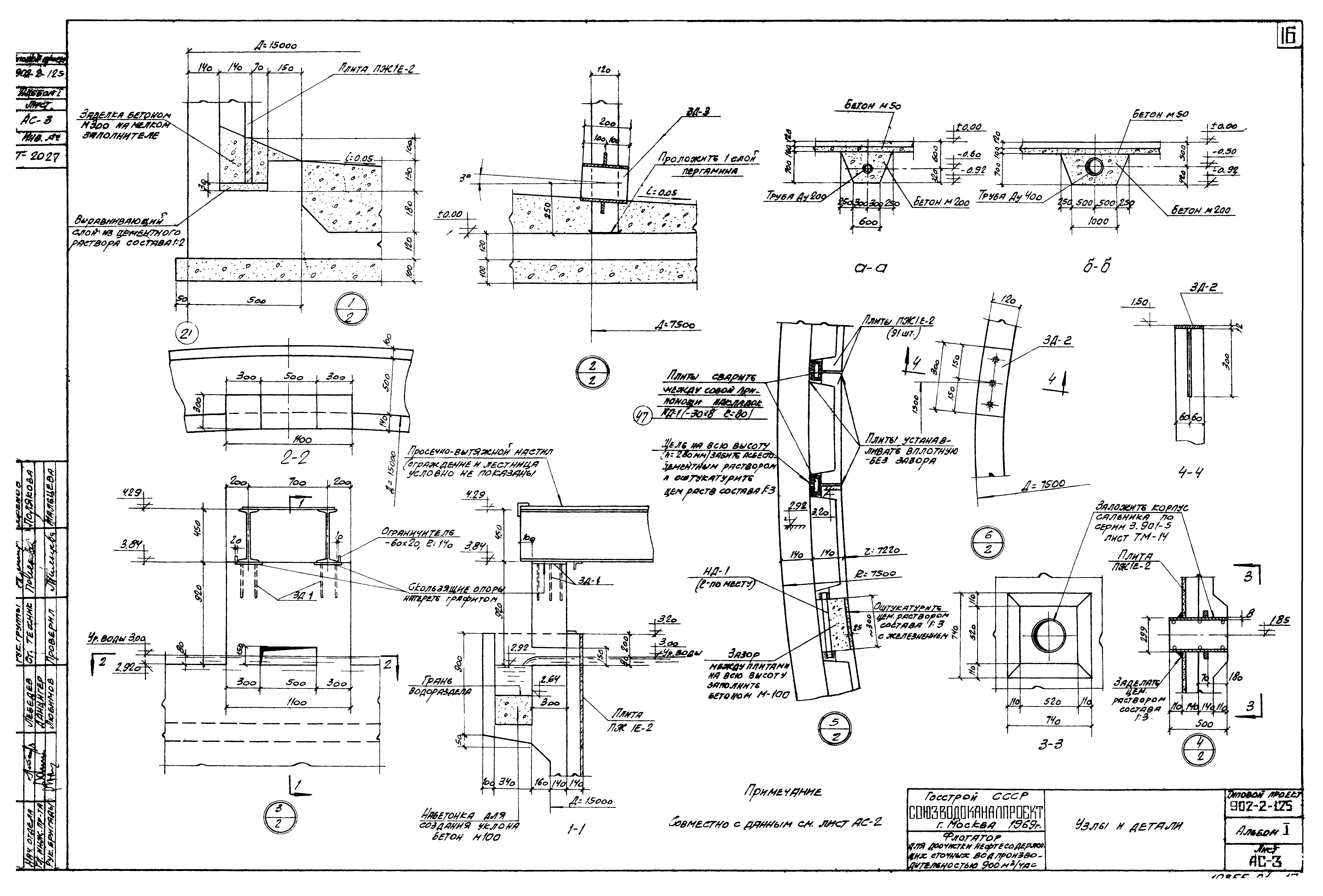
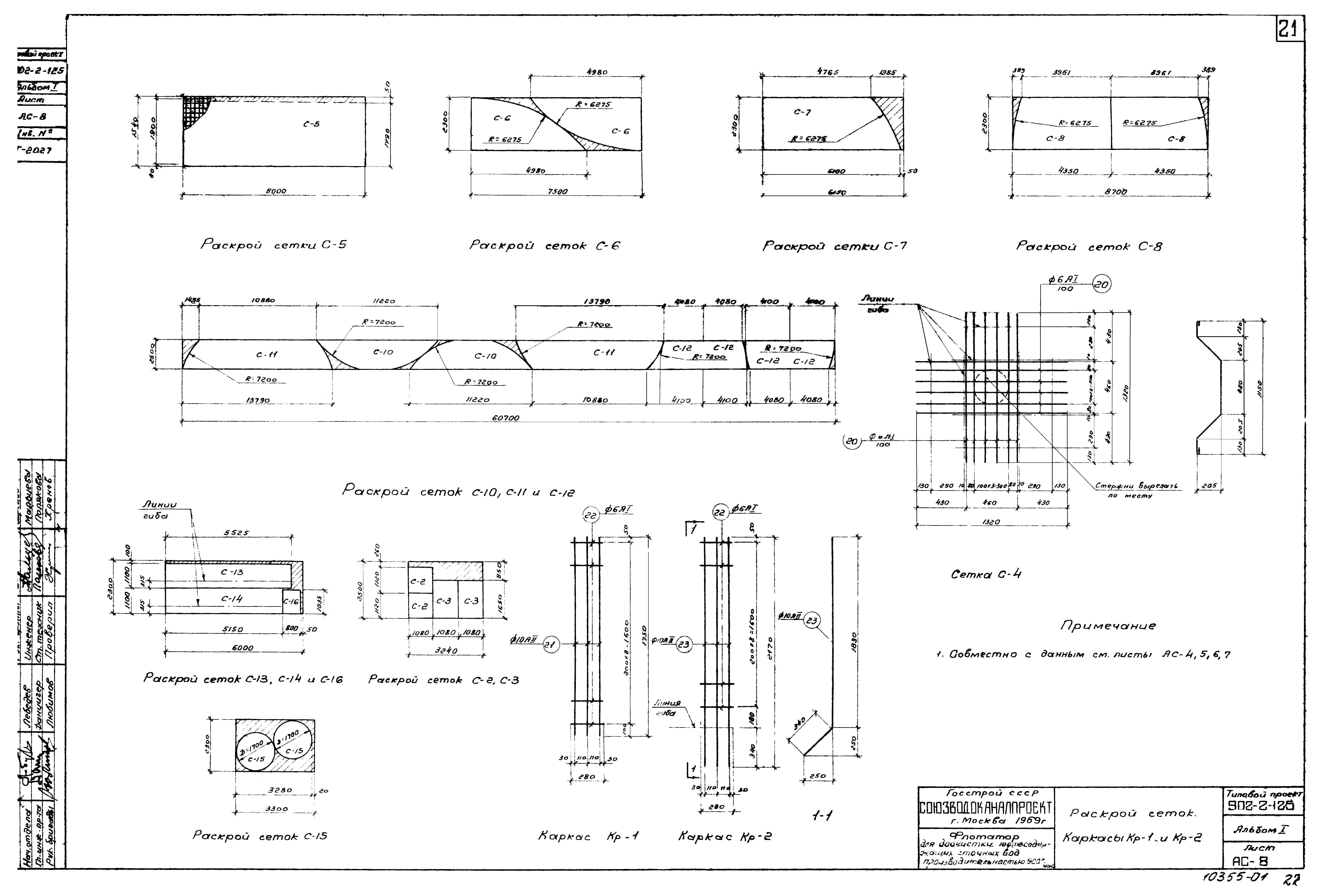
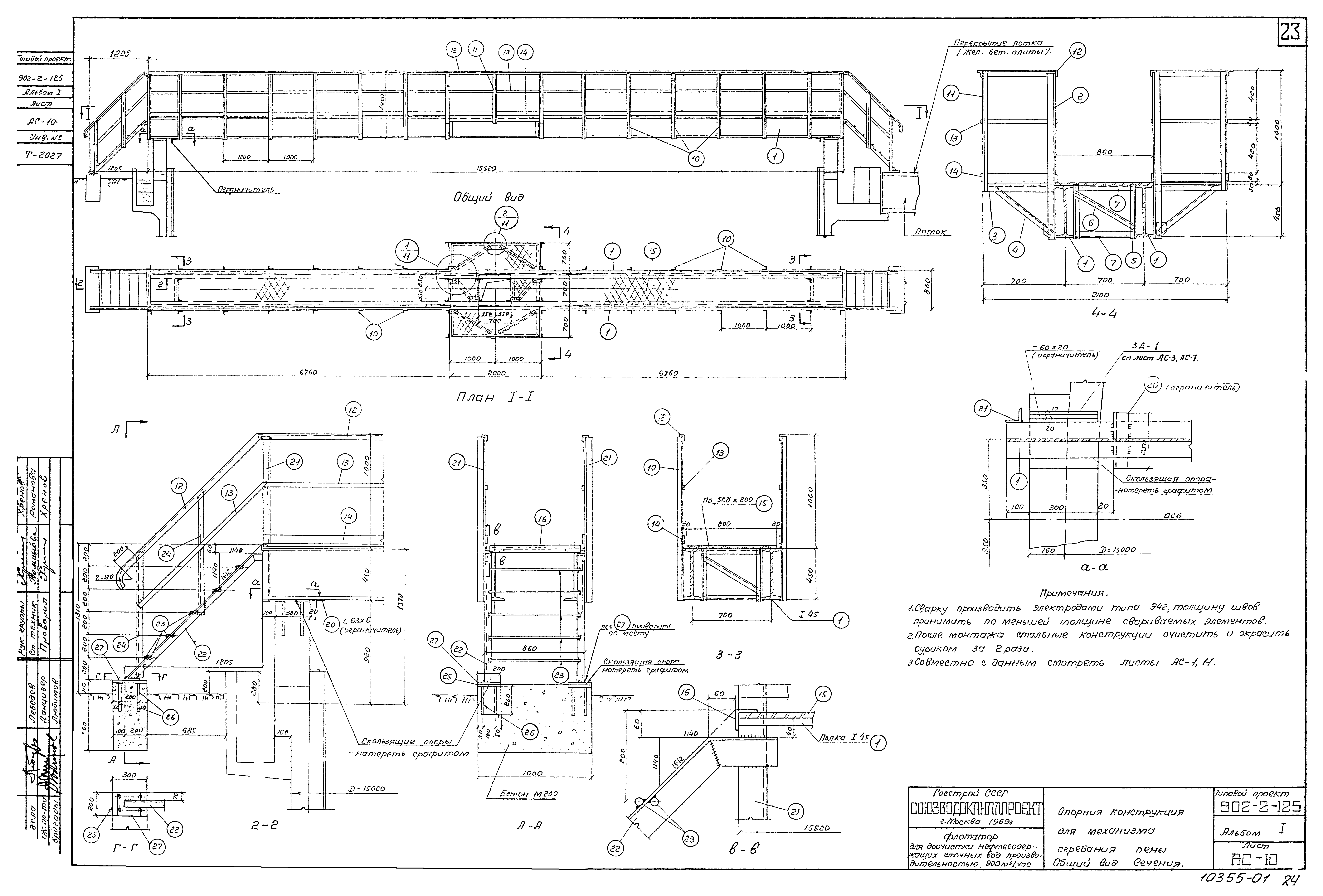
| Оглавление: | С-1 Содержание альбома ПЗ-1-7 Пояснительная записка ТК-1 Вариант без рециркуляции сточных вод. Флотационная установка. План (пример компоновки) ТК-2 Вариант с рециркуляцией сточных вод. Флотационная установка. План (пример компоновки) ТМ-1 Монтажный чертеж. Общий вид. План ТМ-2 Монтажный чертеж. Общий вид. Разрезы АС-1 Сводная выборка стали и технико-экономические показатели АС-2 Общий вид. Планы и разрезы АС-3 Узлы и детали АС-4 Днище. Планы раскладки сеток. Каркас КР-3. Разрез 1-1 АС-5 Армирование приямка АС-6 Стенки. Армирование АС-7 Железобетонная опора под механизм сгребания пены. Армирование. Закладные детали АС-8 Раскрой сеток. Каркасы КР-1 и КР-2 АС-9 Общая спецификация арматуры АС-10 Опорная конструкция для механизма сгребания пены. Общий вид. Сечение АС-11 Опорная конструкция для механизма сгребания пены. Узлы. Спецификация |
| Разработан: | Союзводоканалниипроект |
| Утверждён: | 22.01.1968 СоюзводоканалНИИпроект (SoyuzvodokanalNIIproject 18) |
























