Скачать Типовой проект 902-2-125 Альбом II. Нестандартное оборудованиеДата актуализации: 01.01.2021
|
| Обозначение: | Типовой проект 902-2-125 |
| Обозначение англ: | 902-2-125 |
| Статус: | не действует |
| Название рус.: | Альбом II. Нестандартное оборудование |
| Дата добавления в базу: | 01.09.2013 |
| Дата актуализации: | 01.01.2021 |
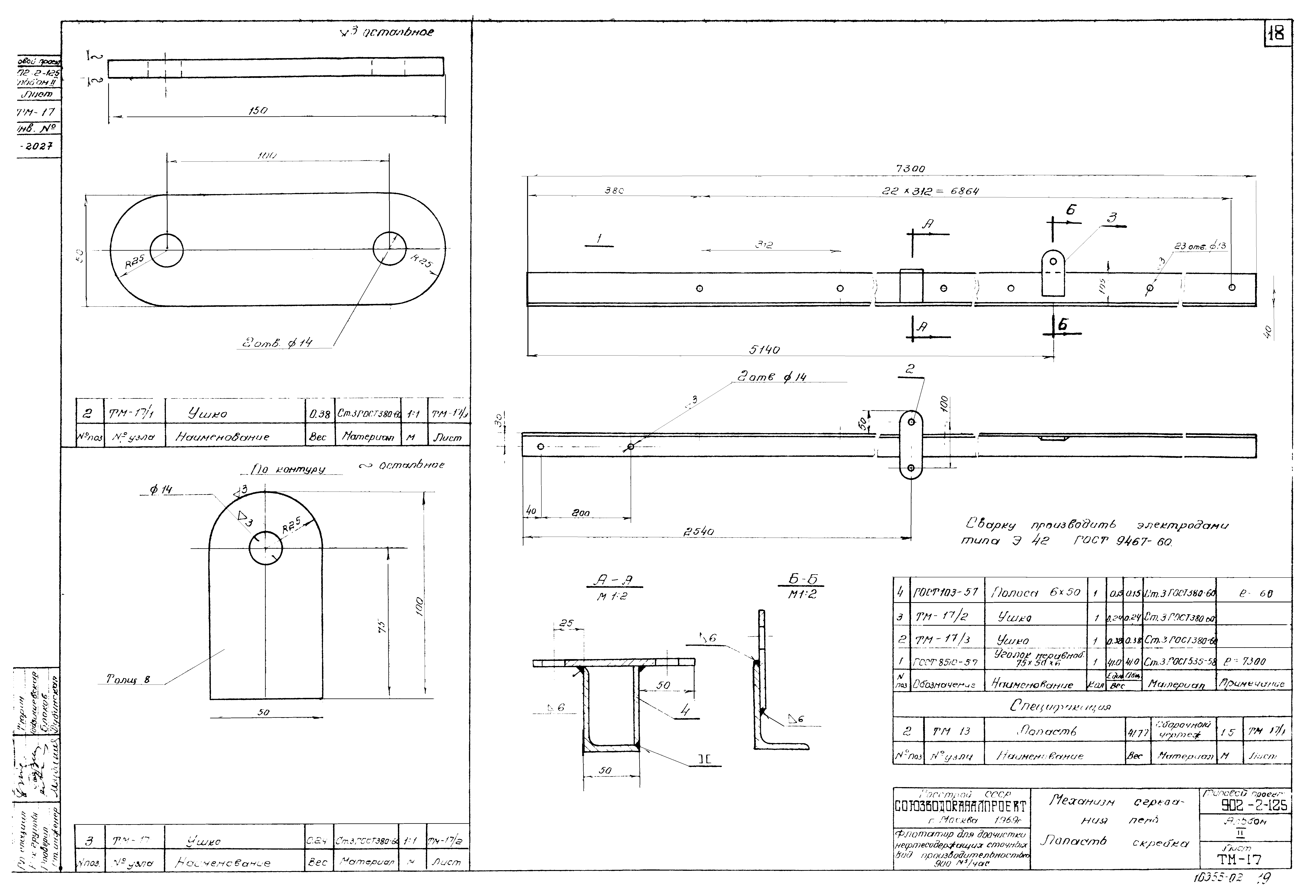
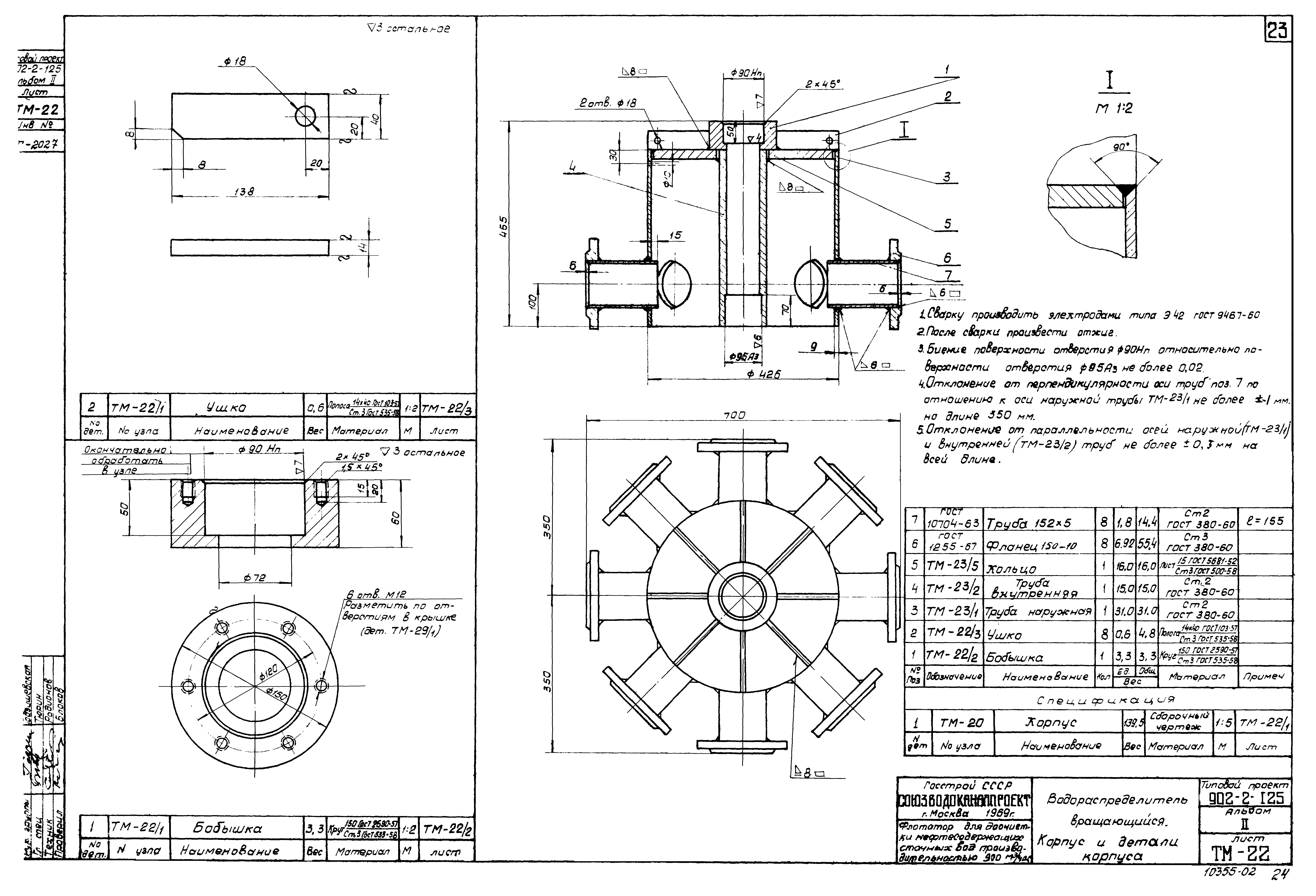
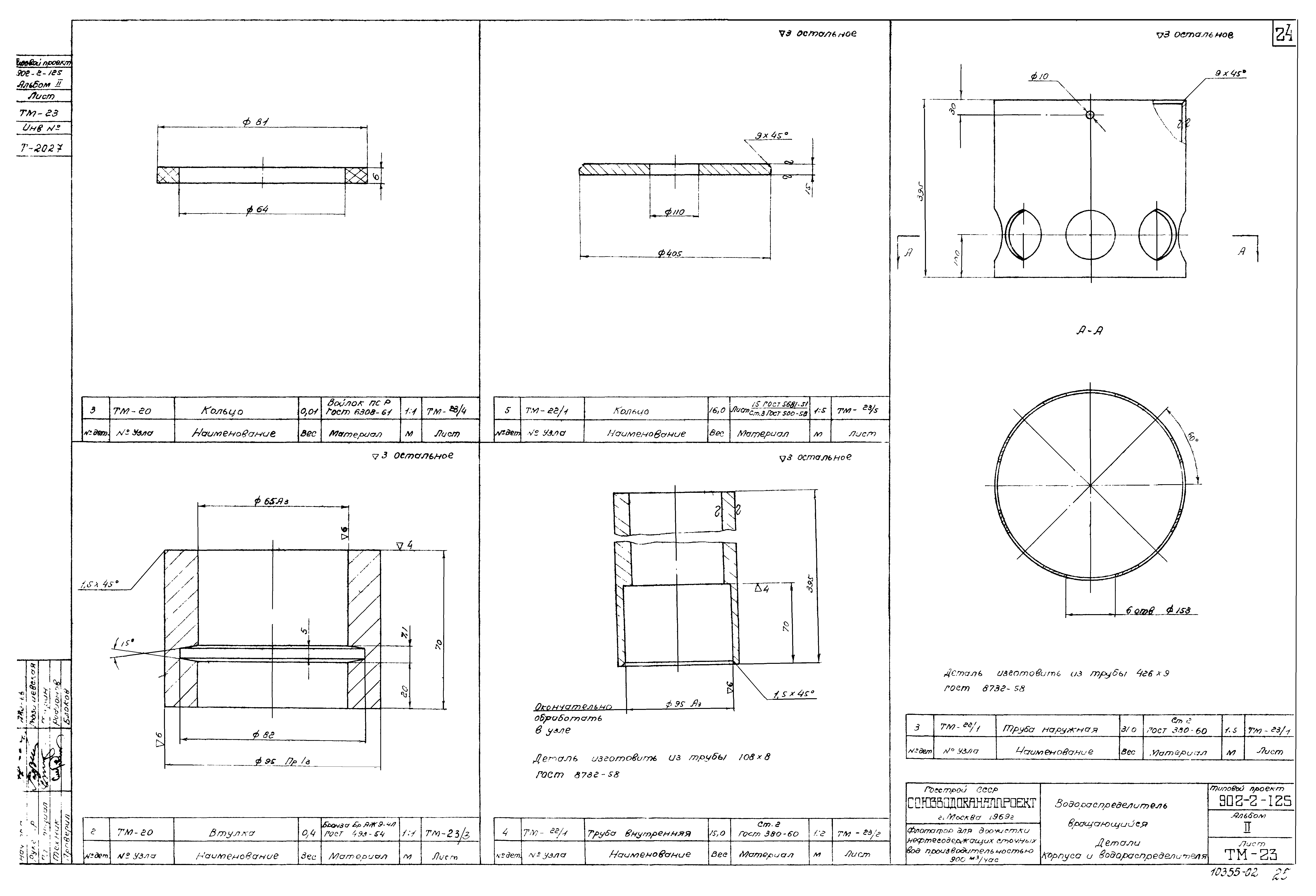
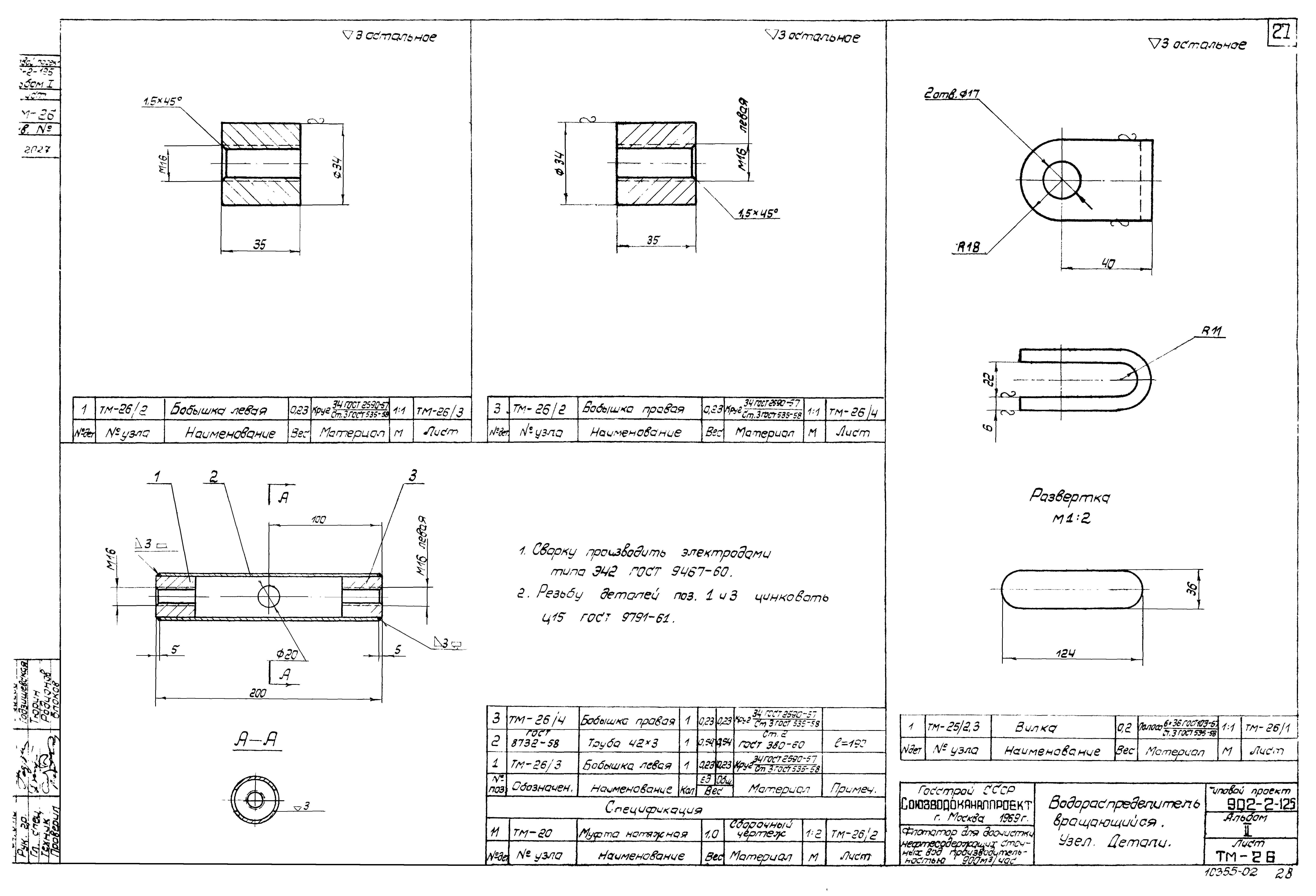
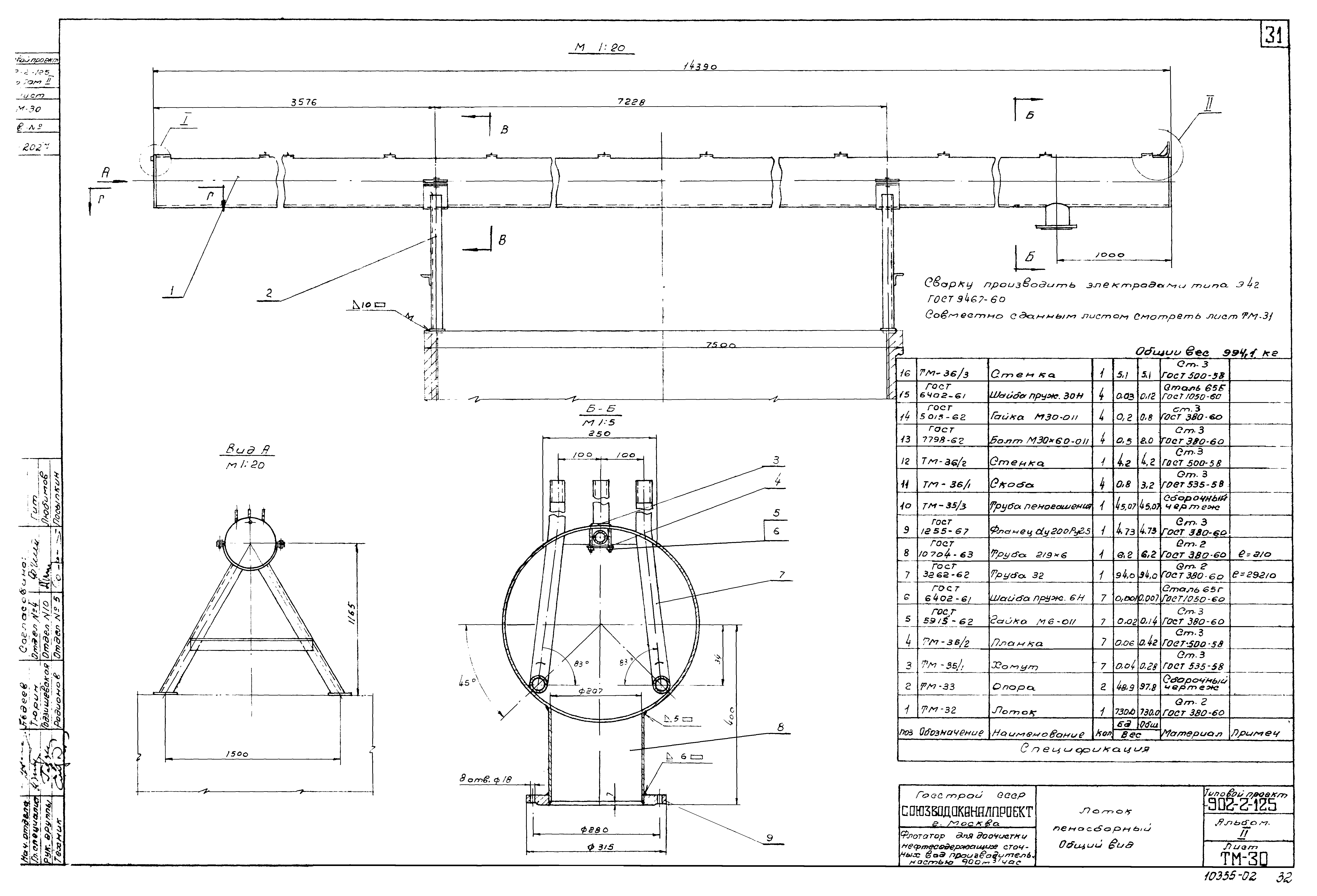
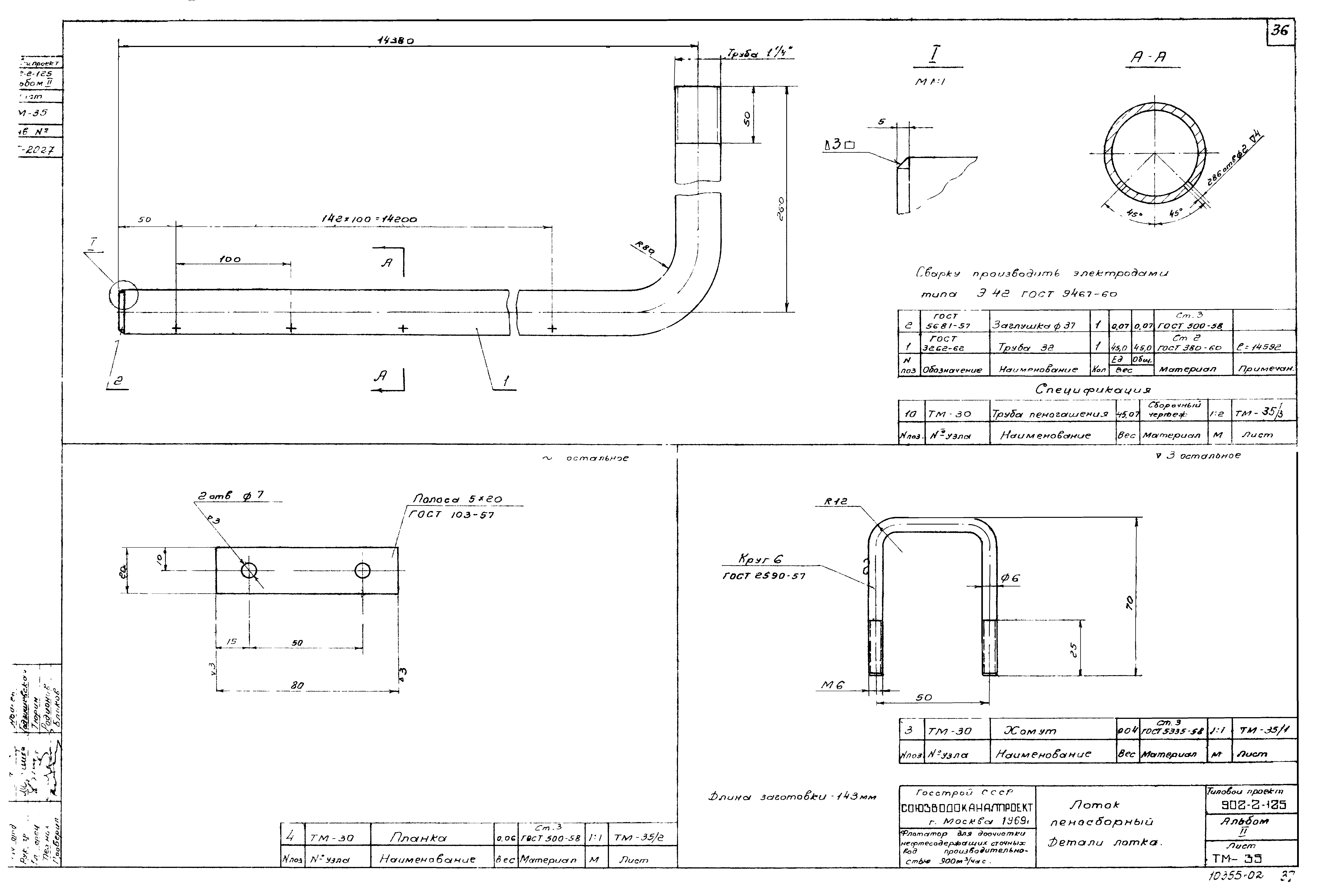
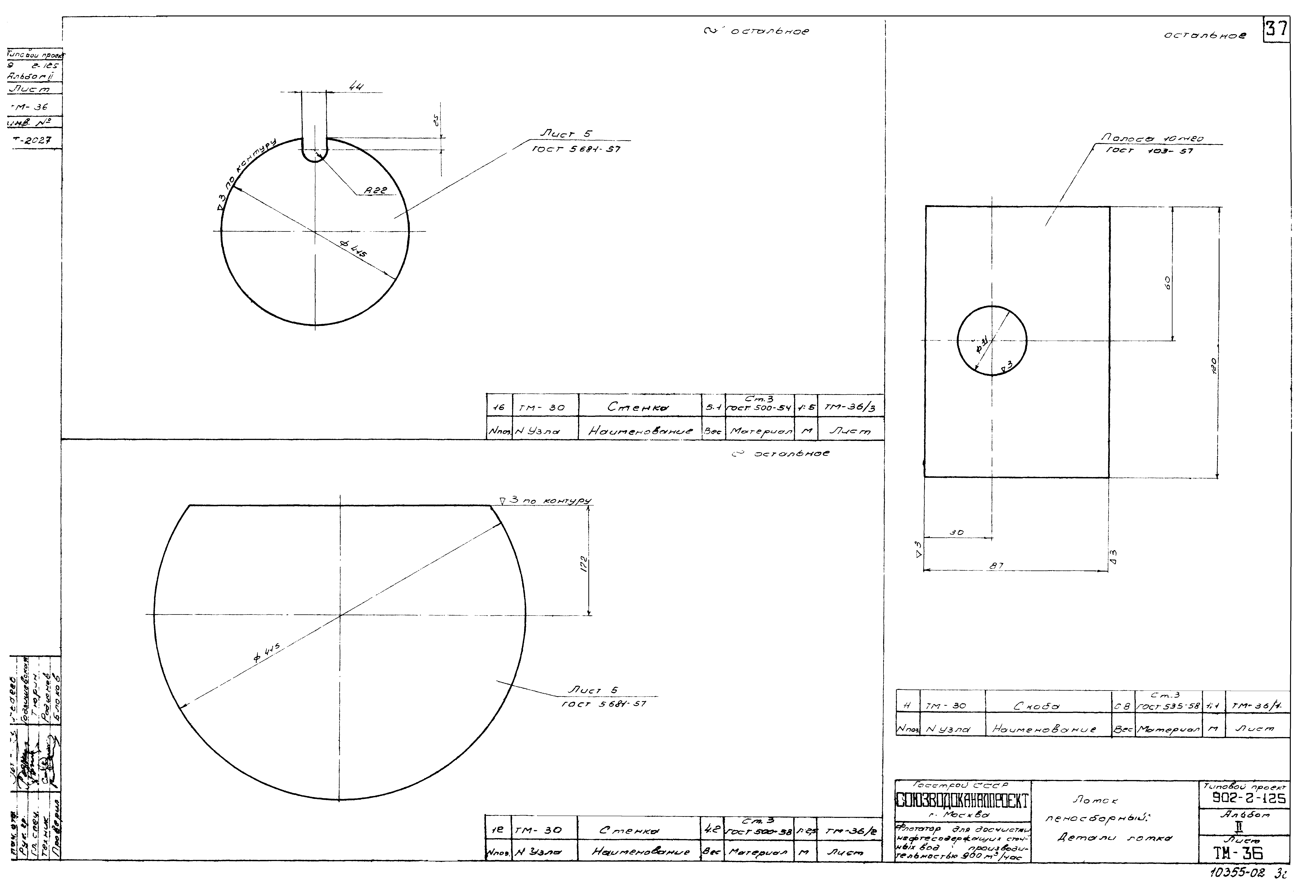
| Оглавление: | ТМ-1 Содержание альбома. Пояснительная записка и технические требования ТМ-2 Содержание альбома. Пояснительная записка и технические требования ТМ-3 Механизм сгребания пены. Общий вид ТМ-4 Механизм сгребания пены. Привод ТМ-5 Механизм сгребания пены. Каркас привода ТМ-6 Механизм сгребания пены. Детали каркаса привода и механизма ТМ-7 Механизм сгребания пены. Полумуфты привода ТМ-8 Механизм сгребания пены. Опора ТМ-9 Механизм сгребания пены. Узлы опоры ТМ-10 Механизм сгребания пены. Детали узлов опоры ТМ-11 Механизм сгребания пены. Детали опоры ТМ-12 Механизм сгребания пены. Узлы и детали опоры и скребка ТМ-13 Механизм сгребания пены. Скребок ТМ-14 Механизм сгребания пены. Скребок ТМ-15 Механизм сгребания пены. Вал скребка ТМ-16 Механизм сгребания пены. Детали вала скребка ТМ-17 Механизм сгребания пены. Лопасть скребка ТМ-18 Механизм сгребания пены. Тяги скребка ТМ-19 Механизм сгребания пены. Тяга и полоса скребка ТМ-20 Водораспределитель вращающийся. Общий вид ТМ-21 Водораспределитель вращающийся. Общий вид ТМ-22 Водораспределитель вращающийся. Корпус и детали корпуса ТМ-23 Водораспределитель вращающийся. Детали корпуса и водораспределителя ТМ-24 Водораспределитель вращающийся. Фланец опорный и детали фланца ТМ-25 Водораспределитель вращающийся. Тяга водораспределителя и детали опорного фланца ТМ-26 Водораспределитель вращающийся. Узел. Детали ТМ-27 Водораспределитель вращающийся. Труба со штуцером ТМ-28 Водораспределитель вращающийся. Детали трубы со штуцером и узел, дет. водораспредел. ТМ-29 Водораспределитель вращающийся. Детали водораспределителя ТМ-30 Лоток пеносборный. Общий вид ТМ-31 Лоток пеносборный. Общий вид ТМ-32 Лоток пеносборный. Лоток ТМ-33 Лоток пеносборный. Опора ТМ-34 Лоток пеносборный. Детали опоры ТМ-35 Лоток пеносборный. Детали лотка ТМ-36 Лоток пеносборный. Детали лотка ТМ-37 Указатель вращения водораспределителя. Общий вид ТМ-38 Указатель вращения водораспределителя. Детали |
| Разработан: | Союзводоканалниипроект |
| Утверждён: | 22.01.1968 СоюзводоканалНИИпроект (SoyuzvodokanalNIIproject 18) |







































