Скачать Типовой проект 211-1-534.92 Альбом 2. Отопление и вентиляция. Внутренний водопровод и канализацияДата актуализации: 01.01.2021
|
| Обозначение: | Типовой проект 211-1-534.92 |
| Обозначение англ: | 211-1-534.92 |
| Статус: | не определен законодательством |
| Название рус.: | Альбом 2. Отопление и вентиляция. Внутренний водопровод и канализация |
| Дата добавления в базу: | 01.09.2013 |
| Дата актуализации: | 01.01.2021 |
| Дата введения: | 10.01.1993 |
| Дата окончания срока действия: | 30.06.2003 |
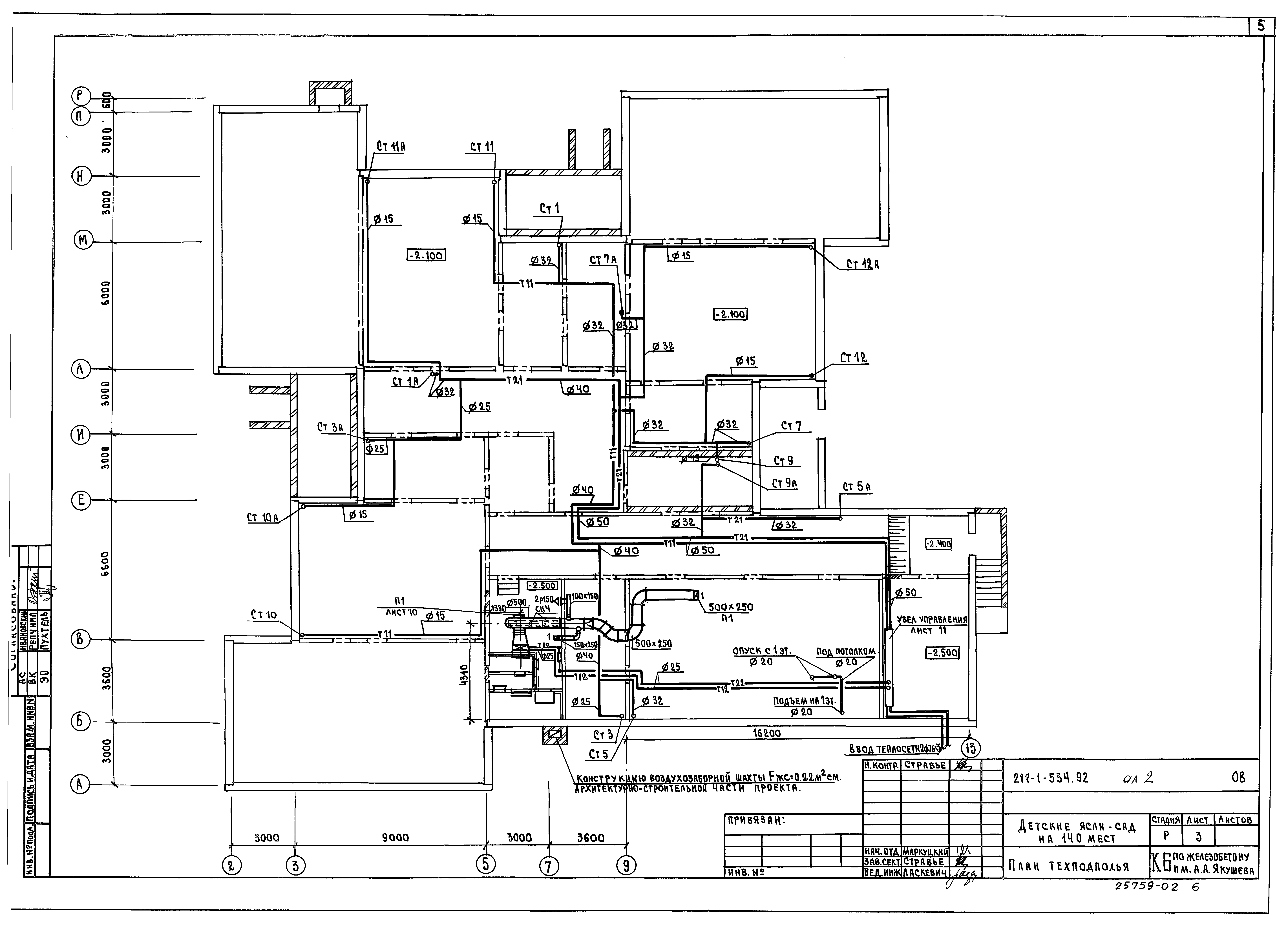
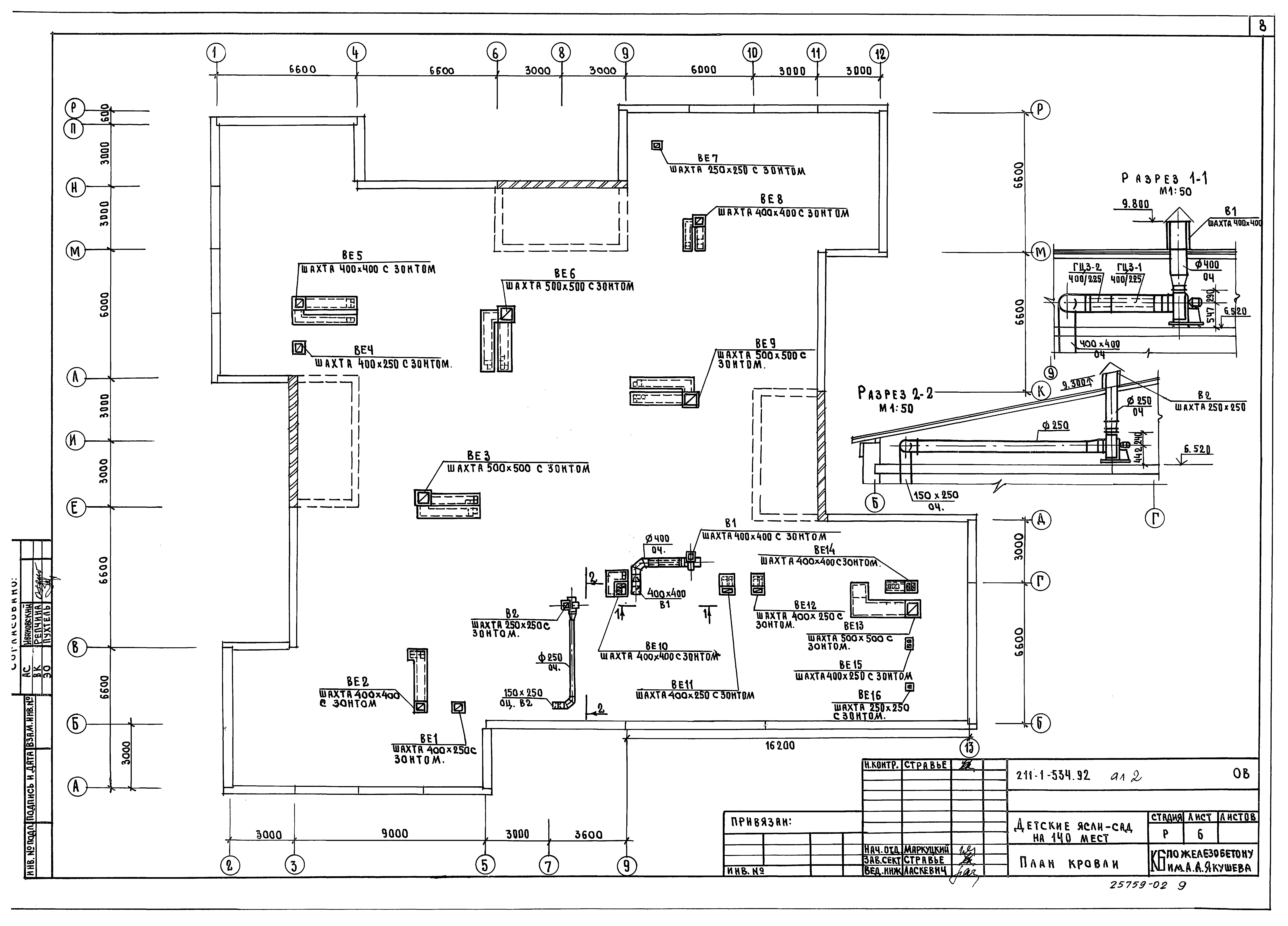
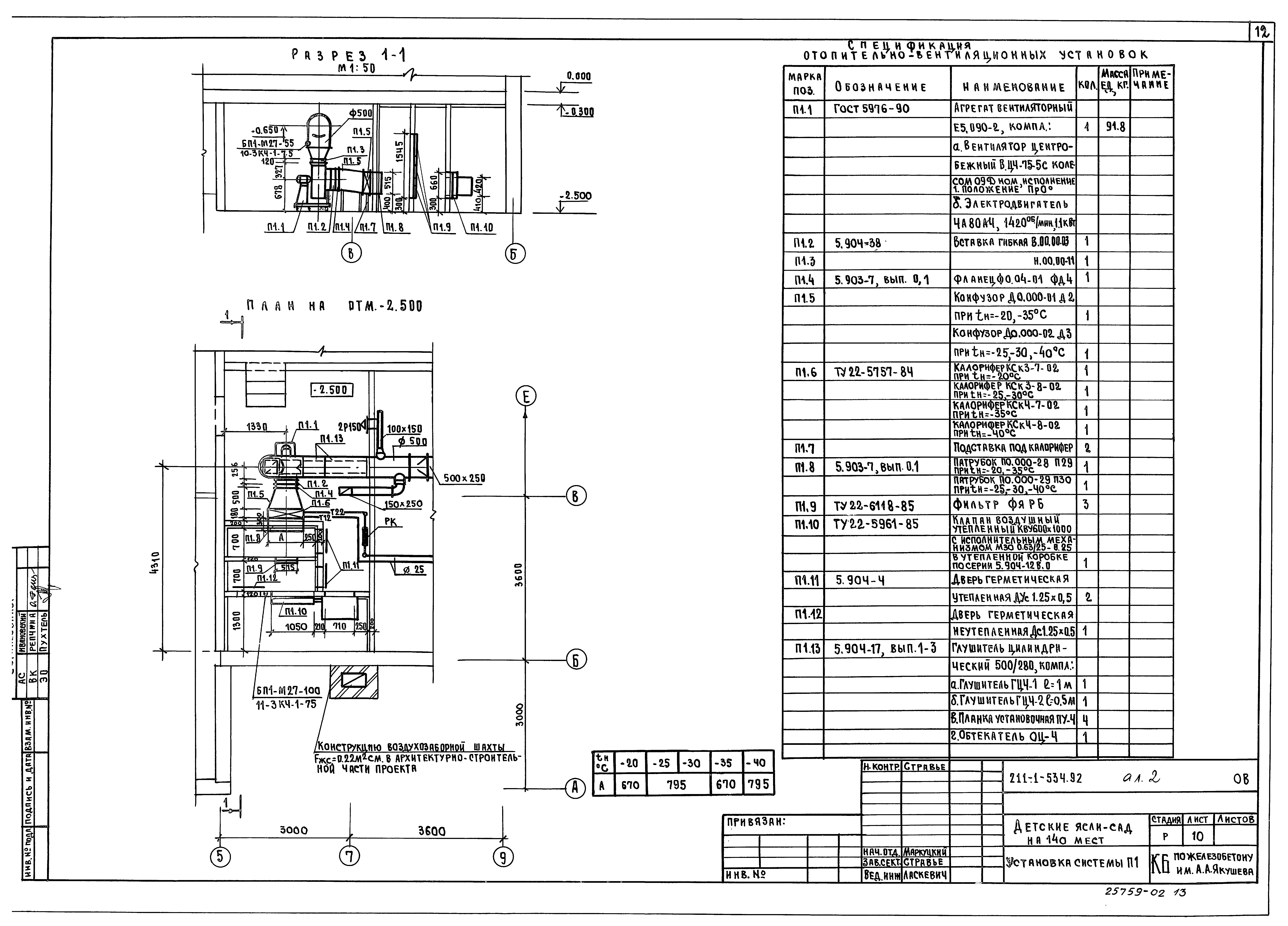
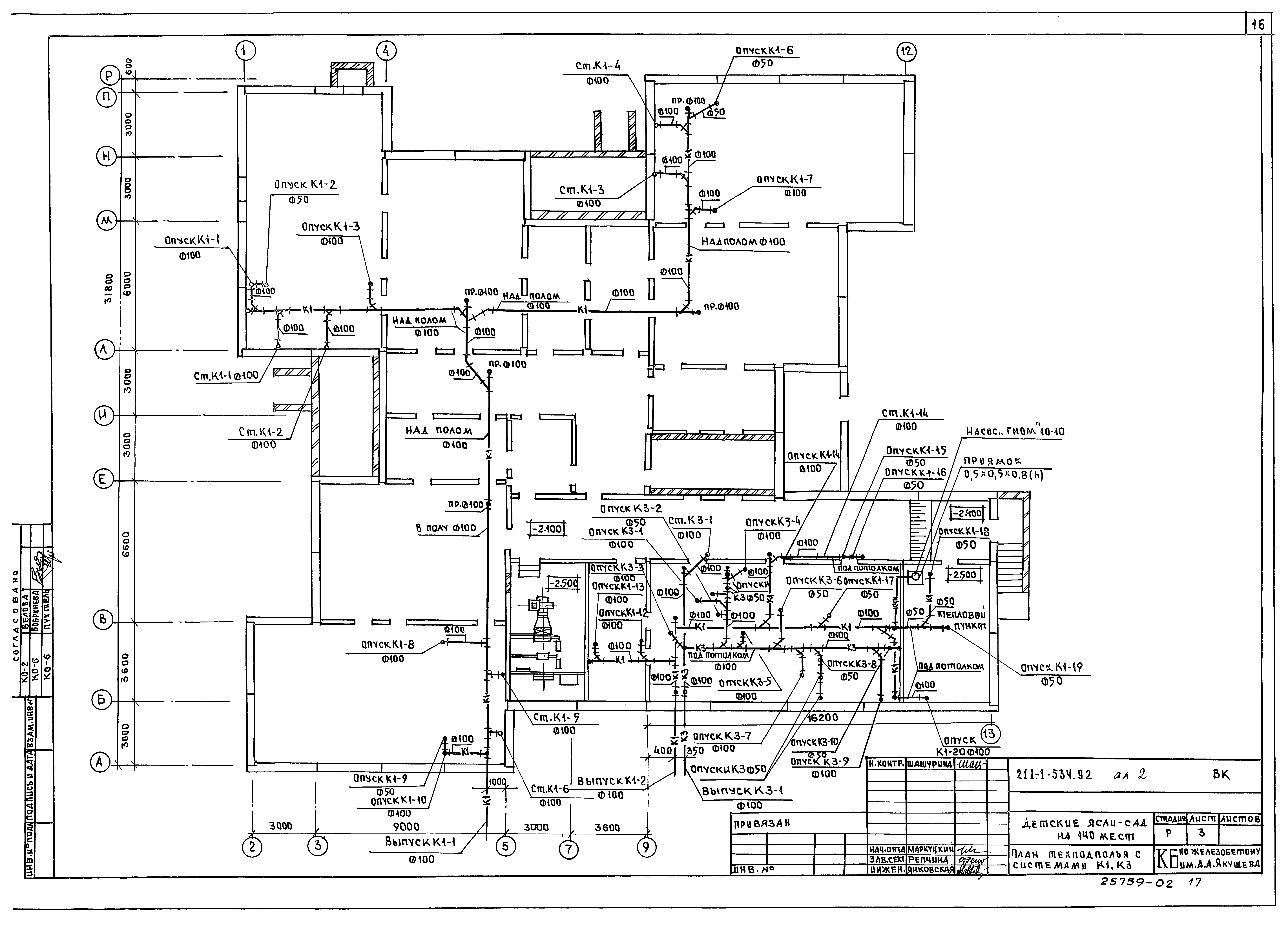
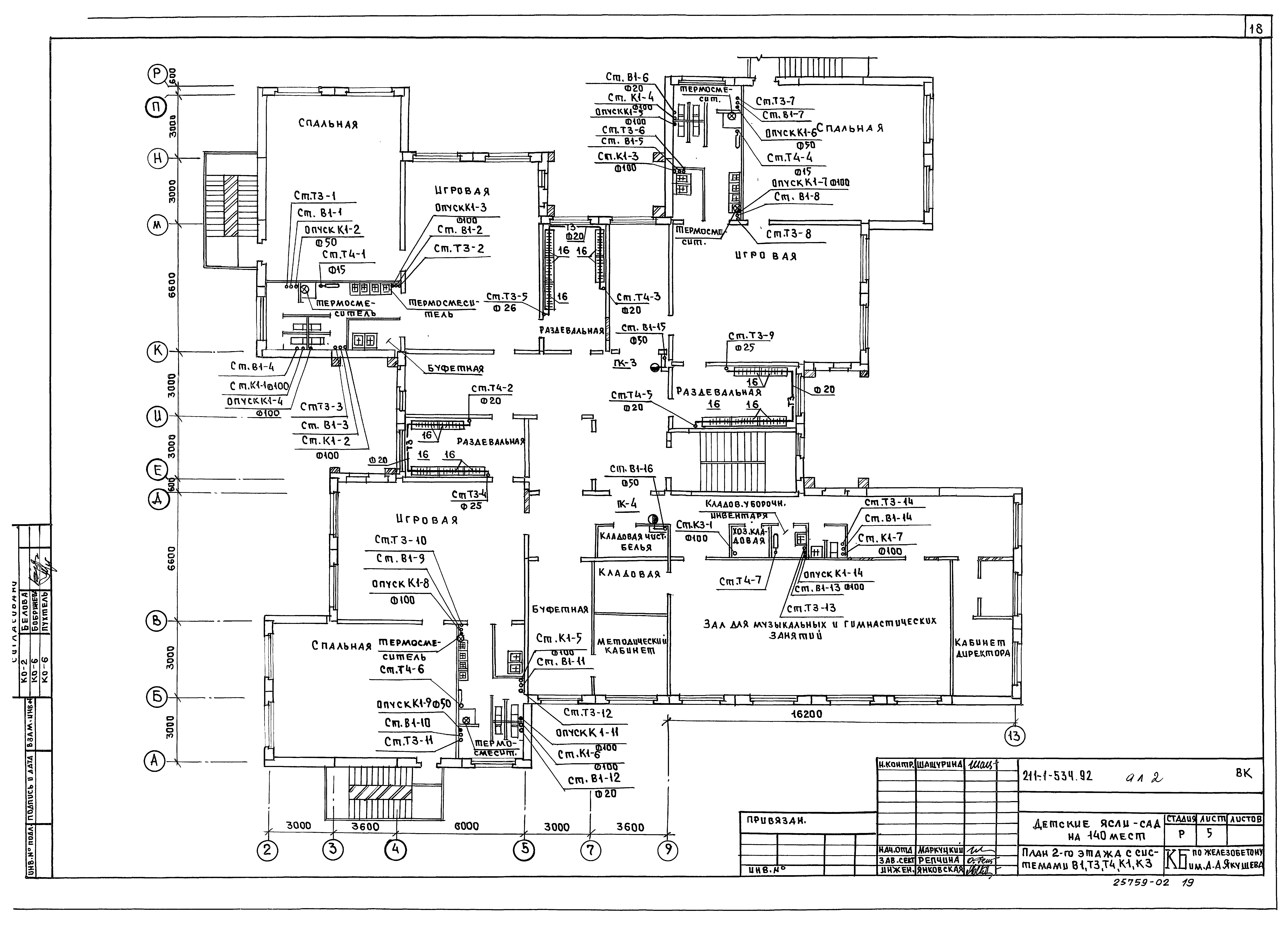
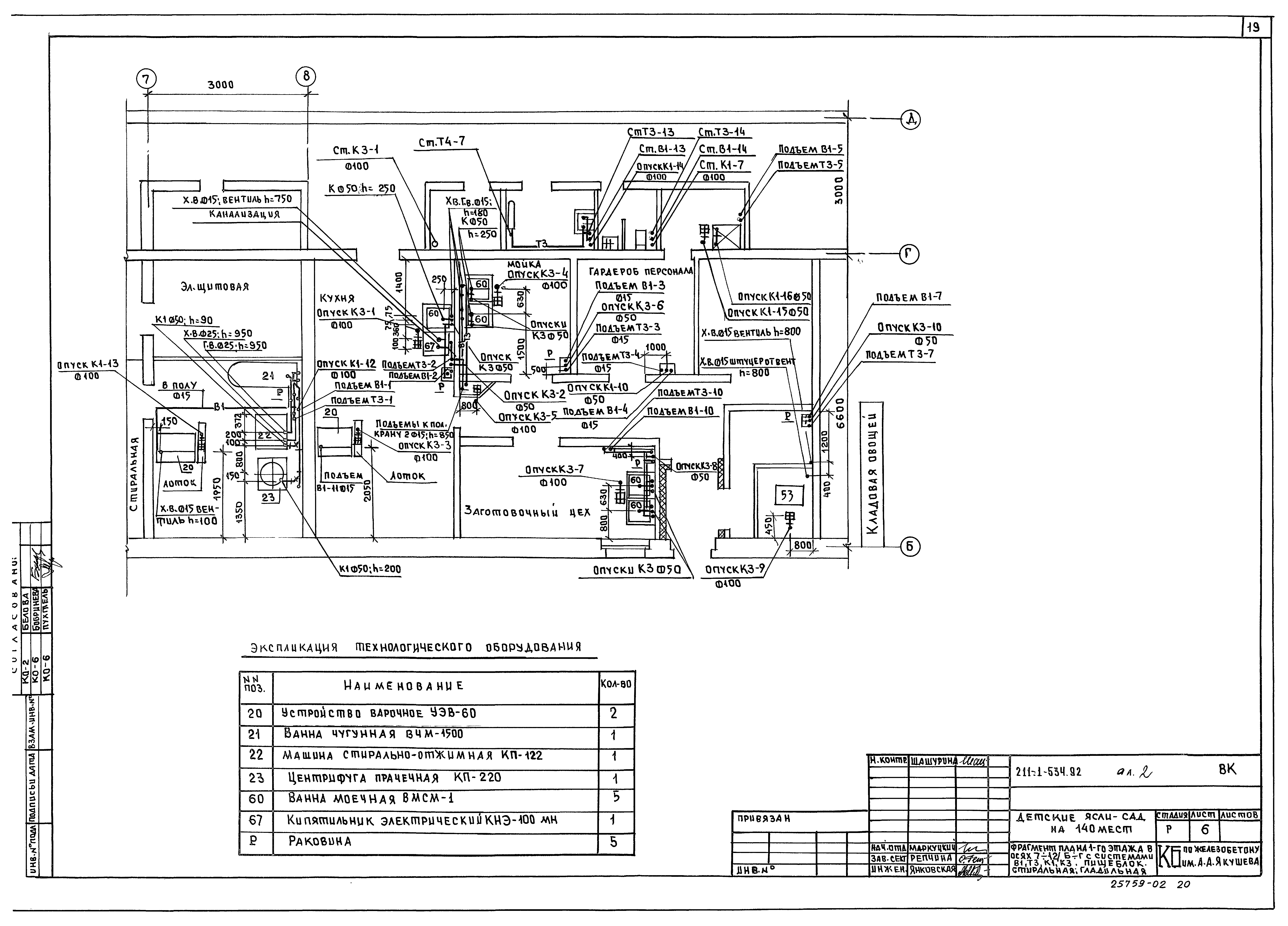
| Оглавление: | Содержание альбома Отопление и вентиляция Общие данные (начало) Общие данные (окончание) План техподполья План 1 этажа План 2 этажа План кровли Схема системы отопления. Схема системы теплоснабжения установки П1 Схемы стояков отопления Схемы систем вентиляции П1,В1,В2,ВЕ1-ВЕ16 Установка системы П1 Узел управления Водоснабжение и канализация Общие данные План техподполья с системами В1,Т3,Т4 План техподполья с системами К1,К3 План 1-го этажа с системами В1,Т3,Т4,К1,К3 План 2-го этажа с системами В1,Т3,Т4,К1,К3 Фрагмент плана 1-го этажа в осях 7-12/Б-Г с системами В1,Т3,К1,К3. Пищеблок. Стиральная-гладильная Схема систем В1,Т3,Т4 Схема системы К1 Схема систем К1,К3 |
| Разработан: | КБ по железобетону им. А.А. Якушева |
| Утверждён: | 01.11.1989 Госстрой РСФСР (Russian Federation Gosstroy 150) |






















