Скачать Типовой проект 211-1-534.92 Альбом 3. Электроснабжение. Связь и сигнализация. АвтоматикаДата актуализации: 01.01.2021
|
| Обозначение: | Типовой проект 211-1-534.92 |
| Обозначение англ: | 211-1-534.92 |
| Статус: | не определен законодательством |
| Название рус.: | Альбом 3. Электроснабжение. Связь и сигнализация. Автоматика |
| Дата добавления в базу: | 01.09.2013 |
| Дата актуализации: | 01.01.2021 |
| Дата введения: | 10.01.1993 |
| Дата окончания срока действия: | 30.06.2003 |
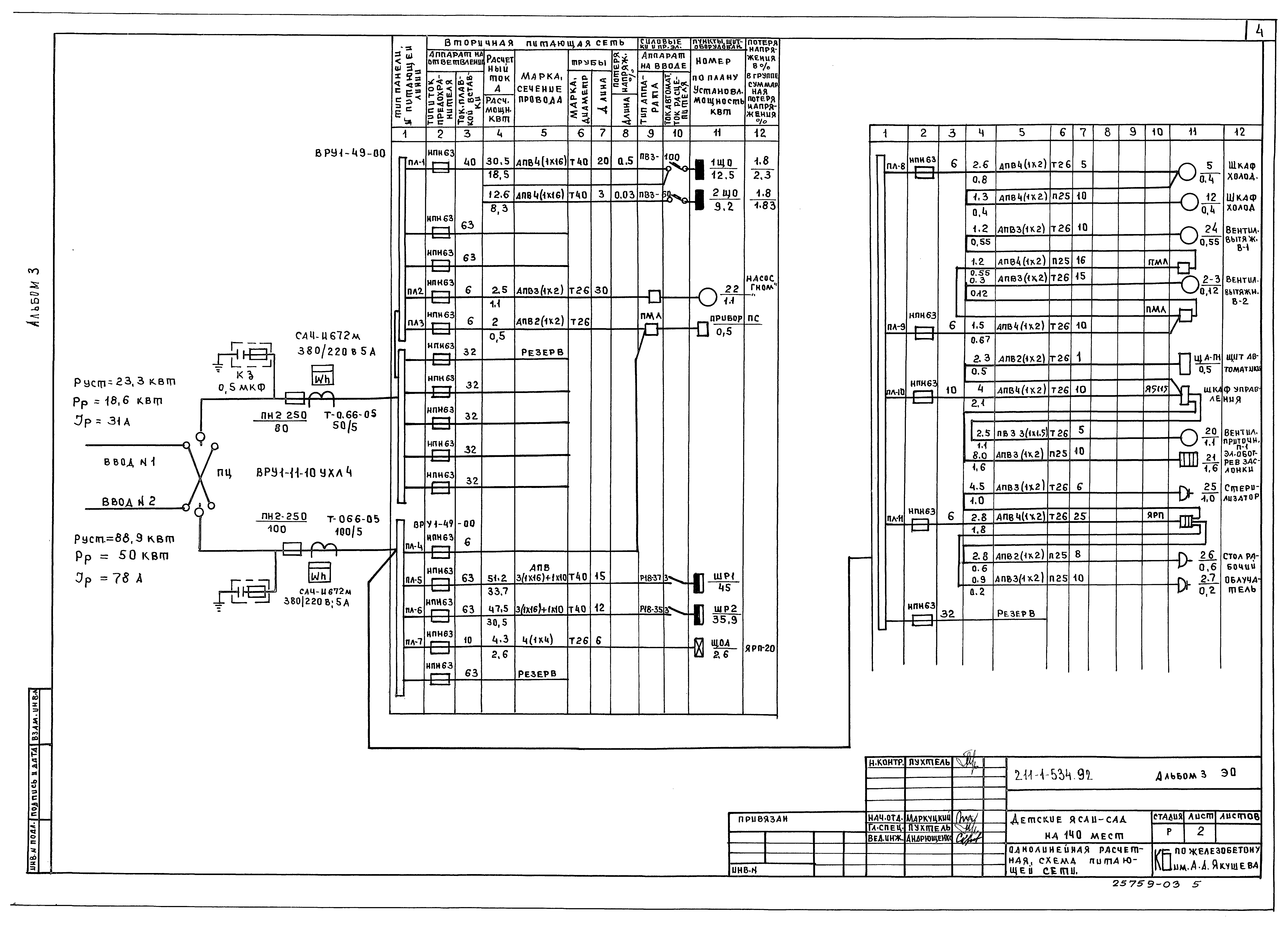
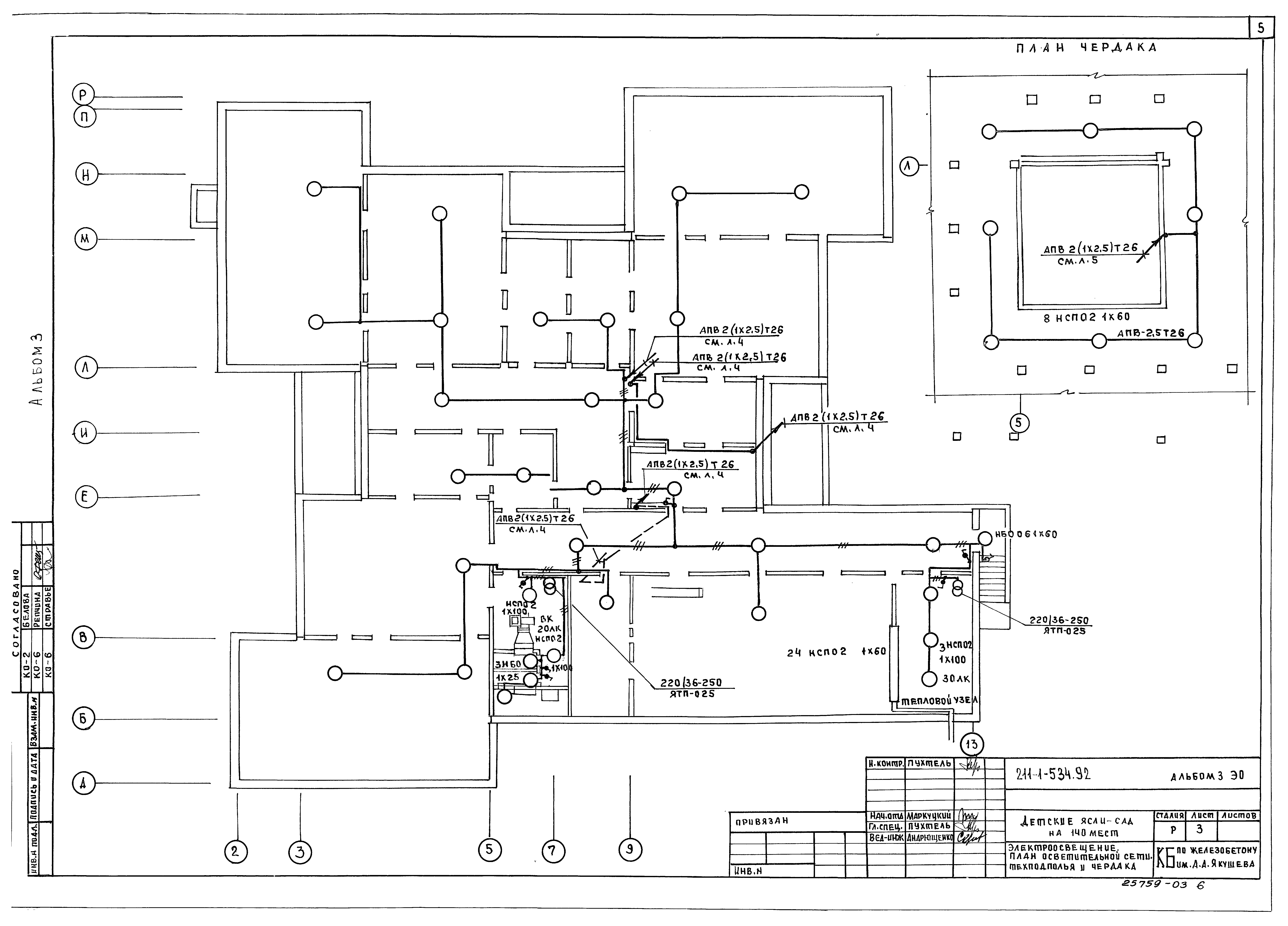
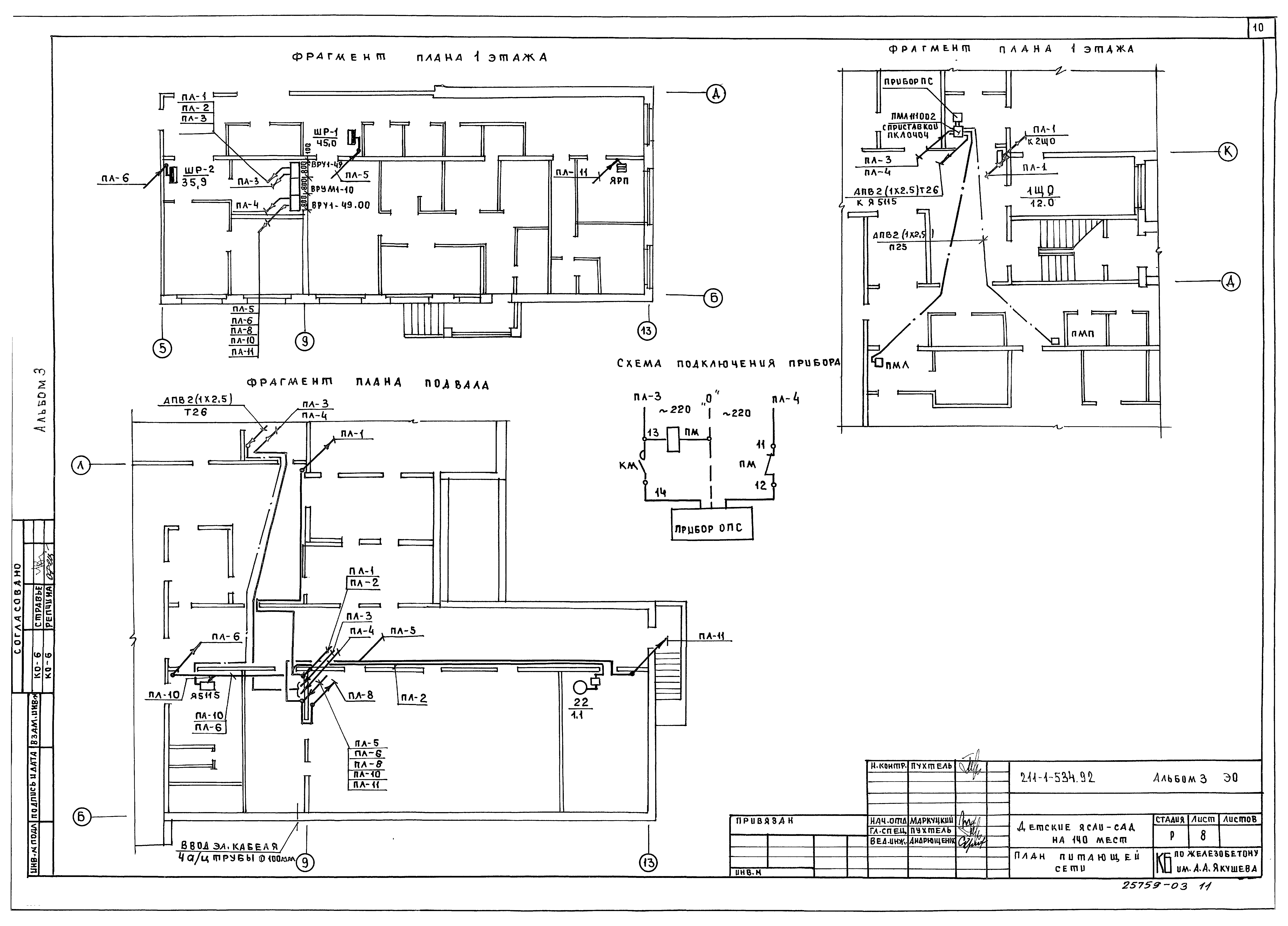
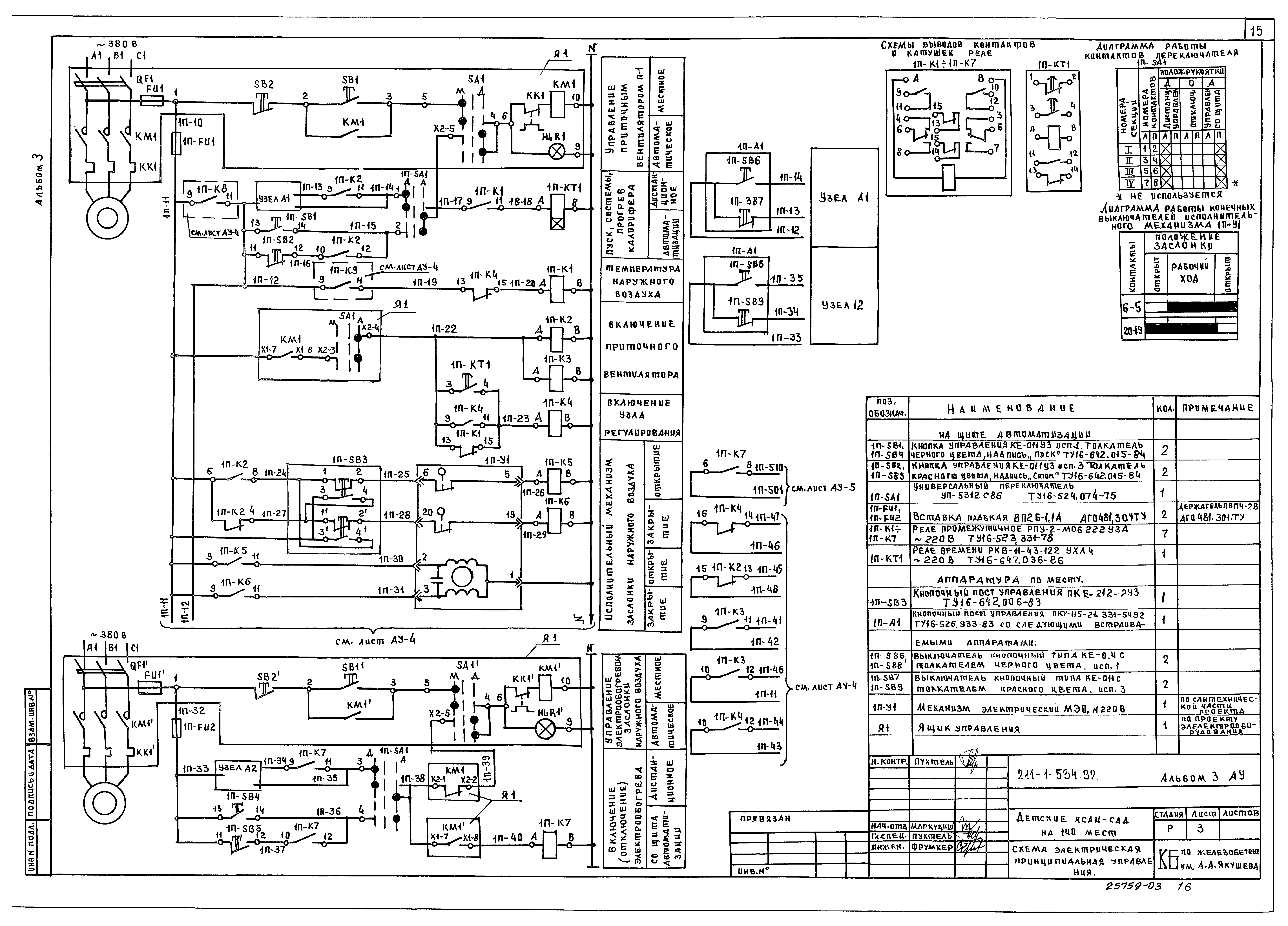
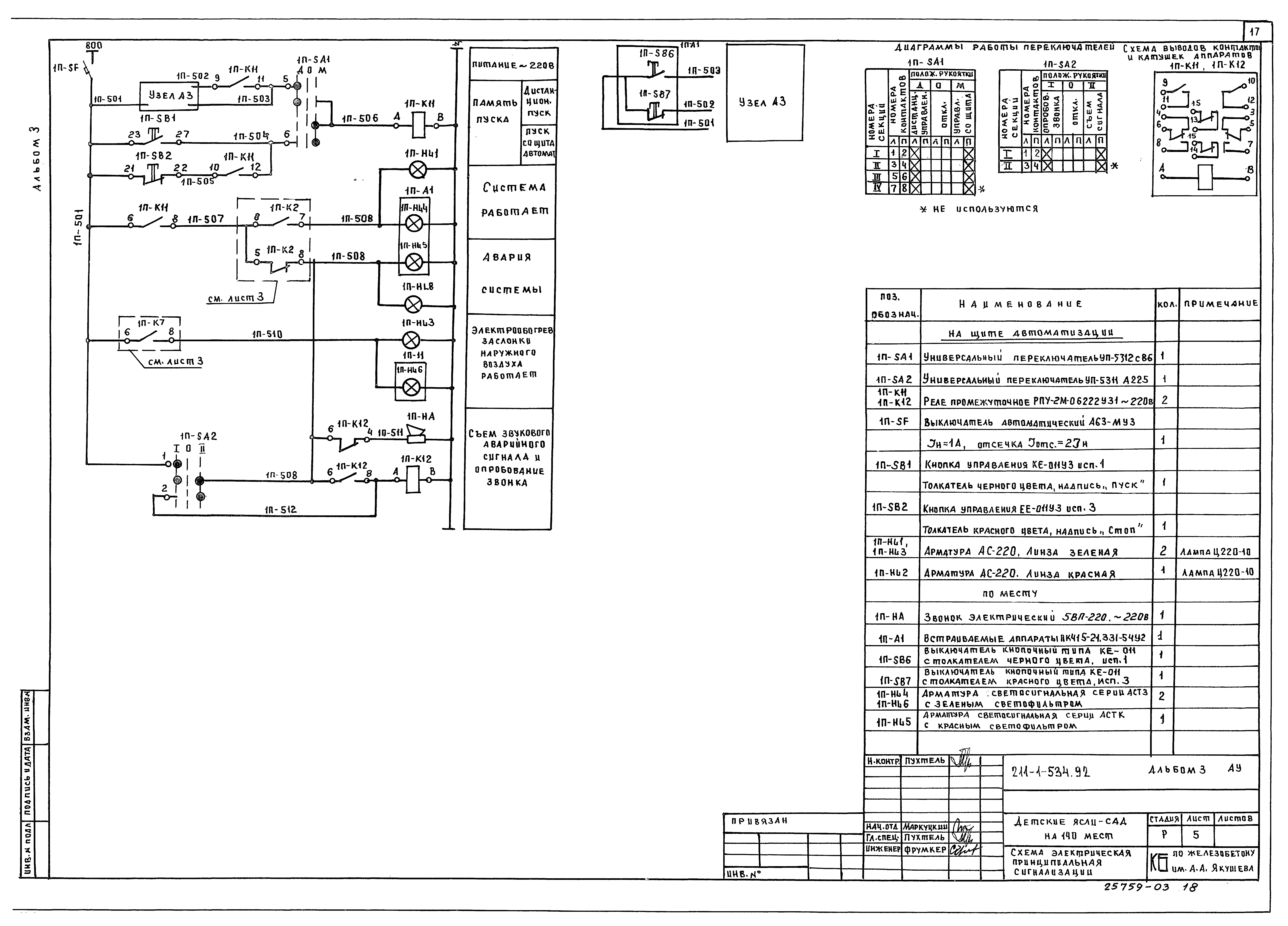
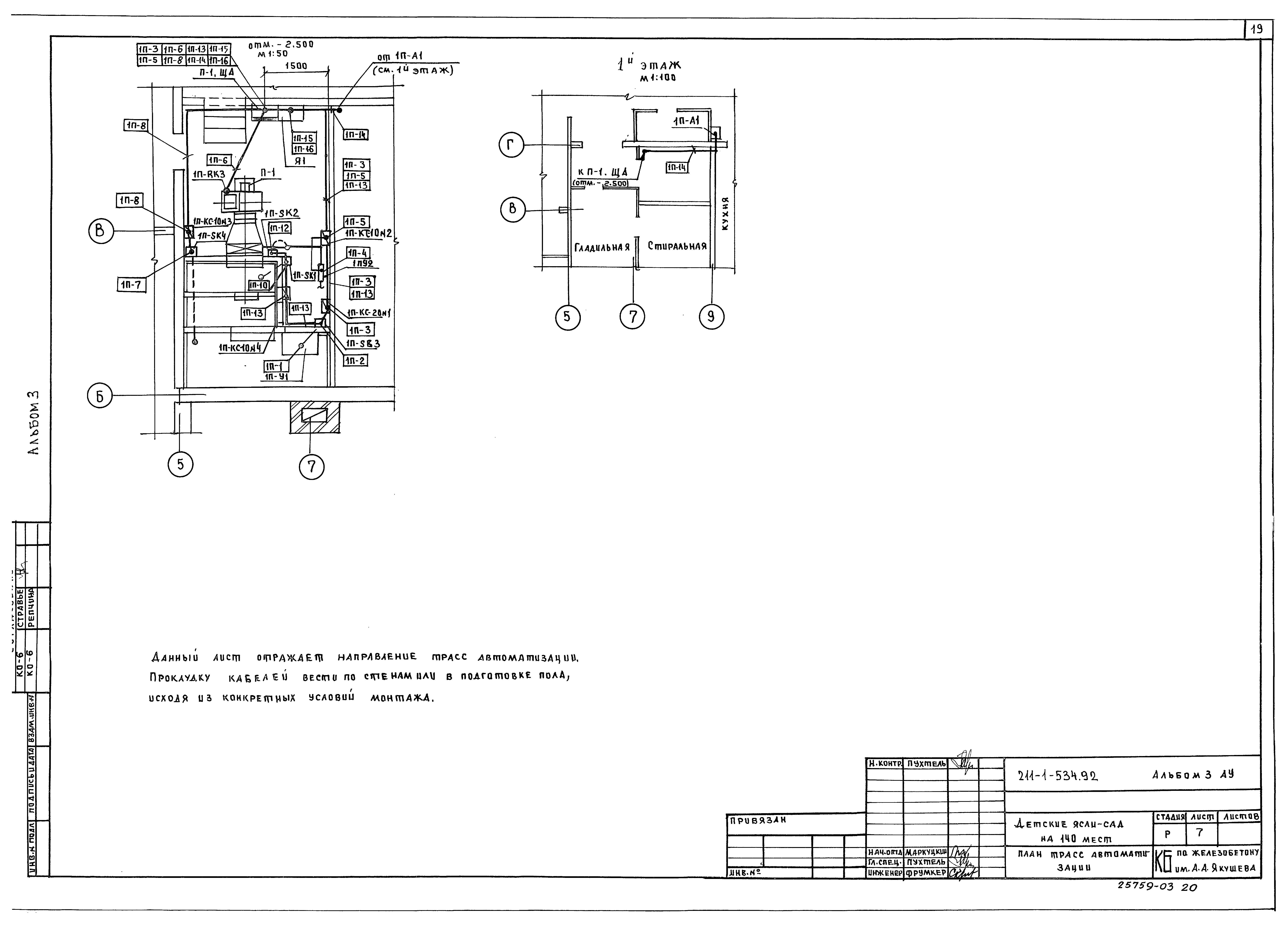
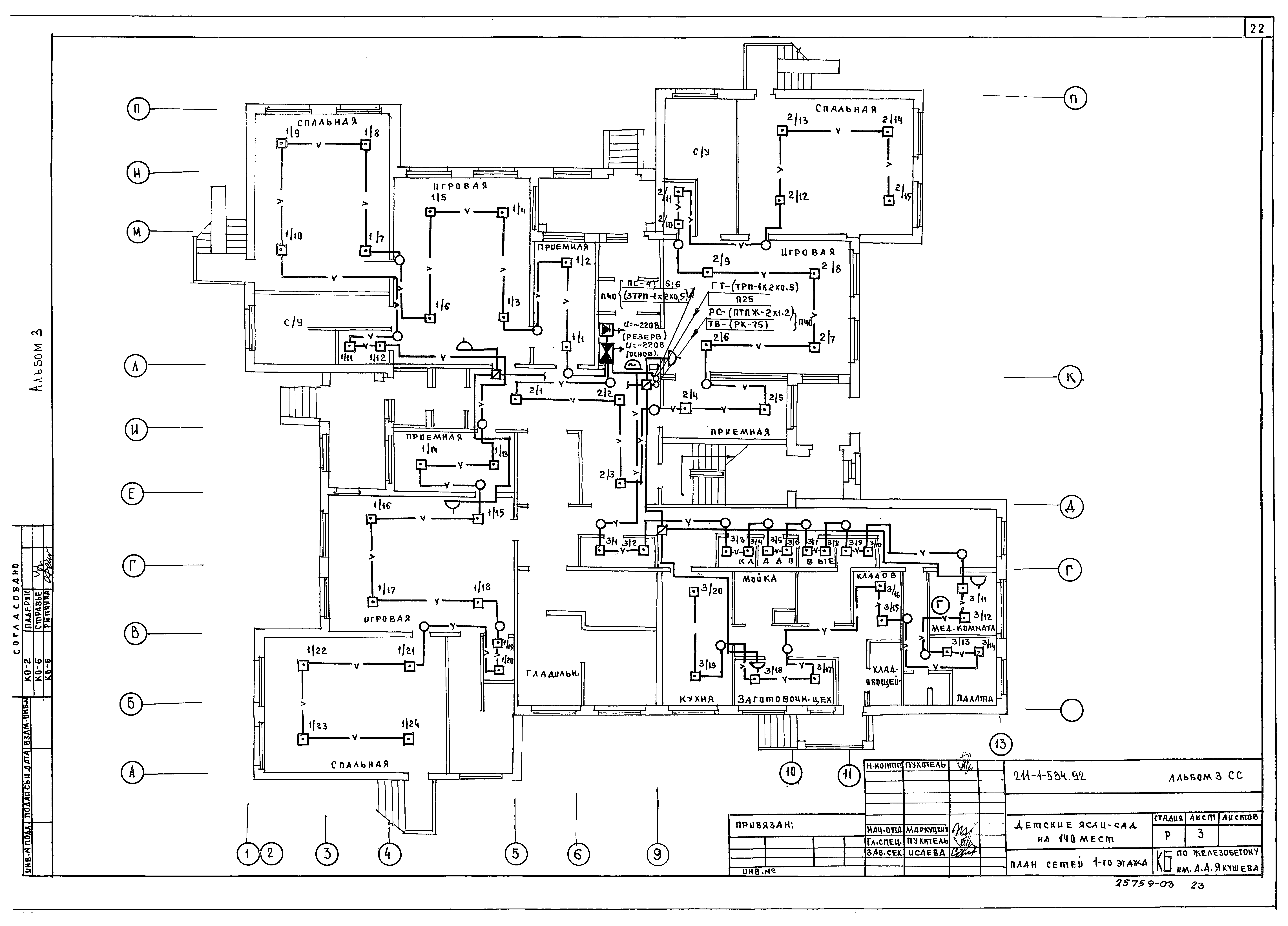
| Оглавление: | Содержание альбома Электрооборудование Общие данные Однолинейная расчетная схема питающей сети Электроосвещение План осветительной сети техподполья и чердака План осветительной сети 1 этажа План осветительной сети 2 этажа Силовое электрооборудование План силовой сети столовой и постирочной План силовой сети вентиляции План питающей сети Схема расчетная силовой сети 1ШР,2ШР ЭО-ОЛ Опросный лист Автоматизация Общие данные Схема автоматизации Схема электрическая принципиальная управления Схема электрическая принципиальная регулирования Схема электрическая принципиальная сигнализации Схема внешних электрических проводок План трасс автоматизации Связь и сигнализация Общие данные Схемы соединений. План сетей кровли План сетей 1 этажа План сетей 2 этажа |
| Разработан: | КБ по железобетону им. А.А. Якушева |
| Утверждён: | 01.11.1989 Госстрой РСФСР (Russian Federation Gosstroy 150) |























