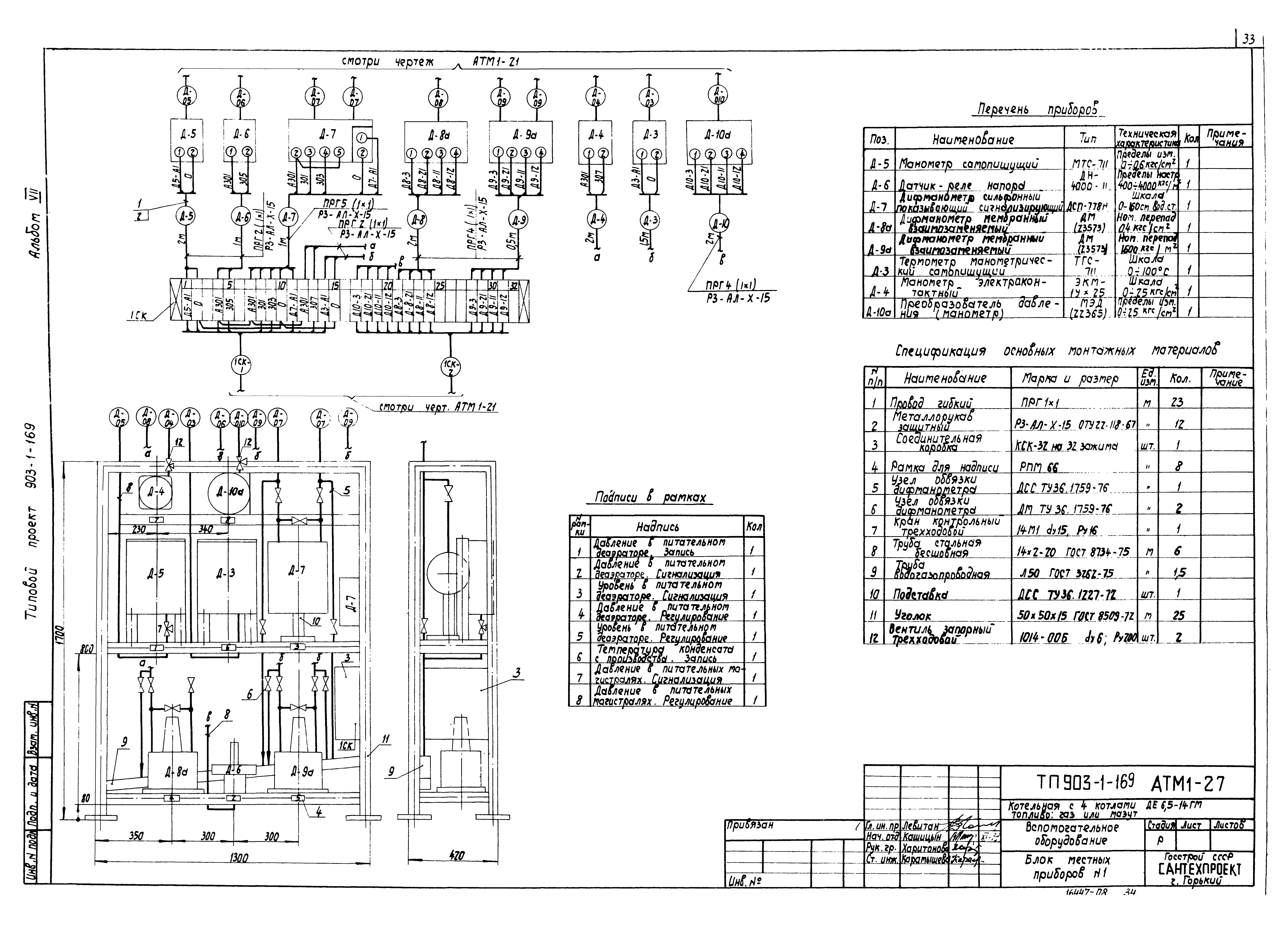
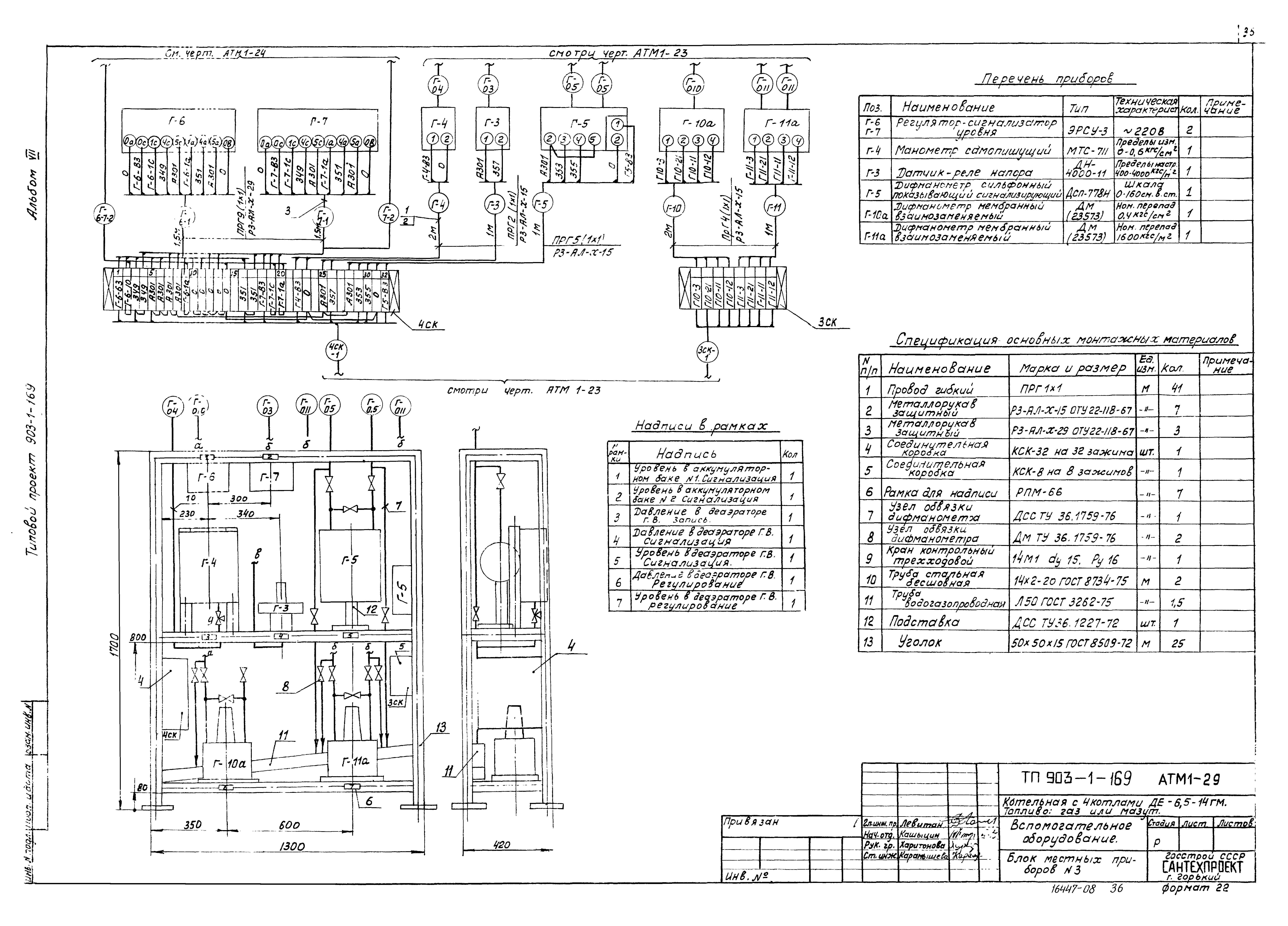
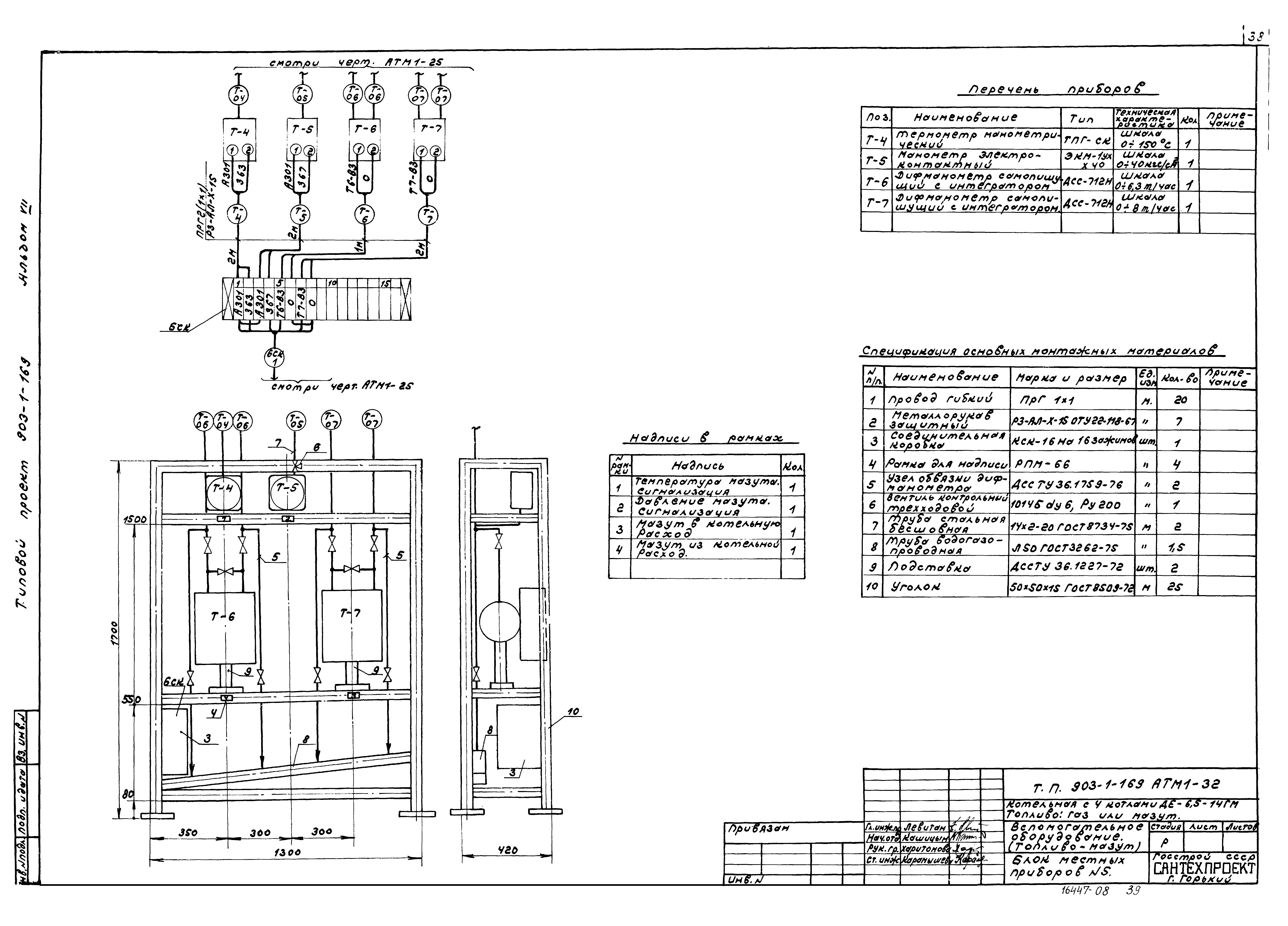
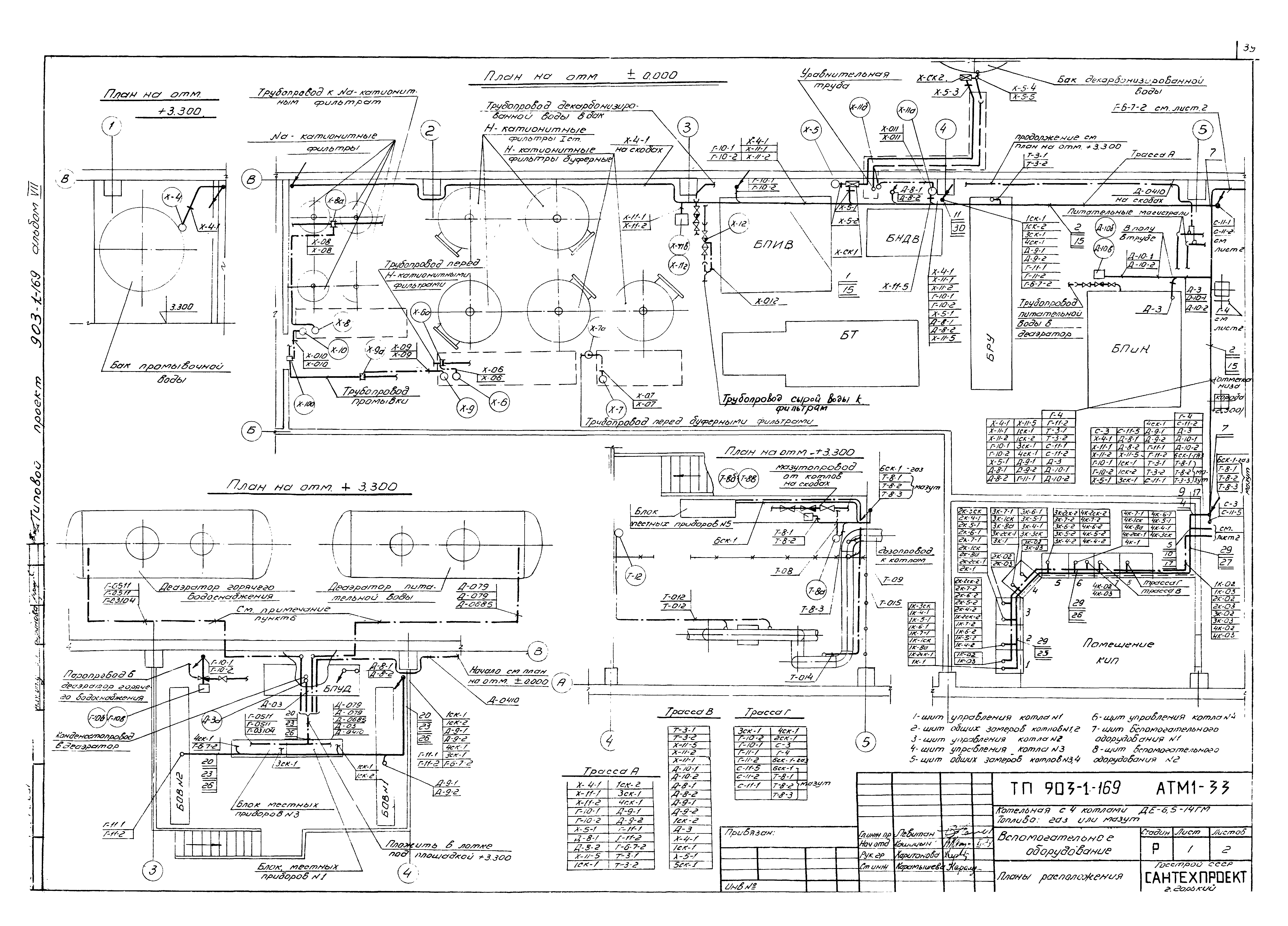
Скачать Типовой проект 903-1-169 Альбом VII. Схемы функциональные и внешних проводок. Планы расположения. Блоки местных приборовДата актуализации: 01.01.2021 Типовой проект 903-1-169
Альбом VII. Схемы функциональные и внешних проводок. Планы расположения. Блоки местных приборов| Обозначение: | Типовой проект 903-1-169 | | Обозначение англ: | 903-1-169 | | Статус: | действует | | Название рус.: | Альбом VII. Схемы функциональные и внешних проводок. Планы расположения. Блоки местных приборов | | Дата добавления в базу: | 01.09.2013 | | Дата актуализации: | 01.01.2021 | | Дата введения: | 15.02.1980 | | Разработан: | Горьковское отделение Сантехпроекта
| | Утверждён: | 15.11.1979 ГПИ Сантехпроект (176)
|
                                         
|