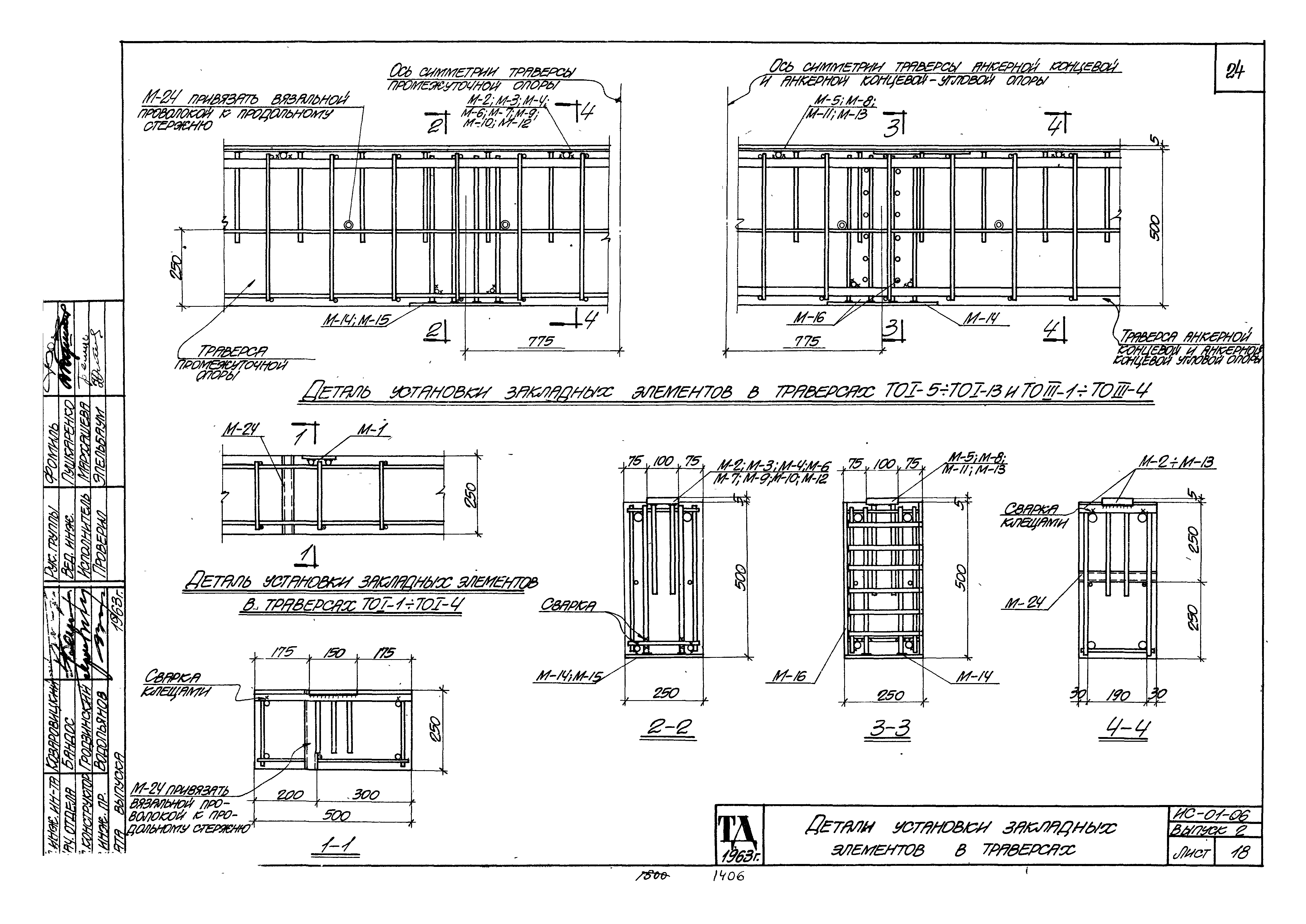
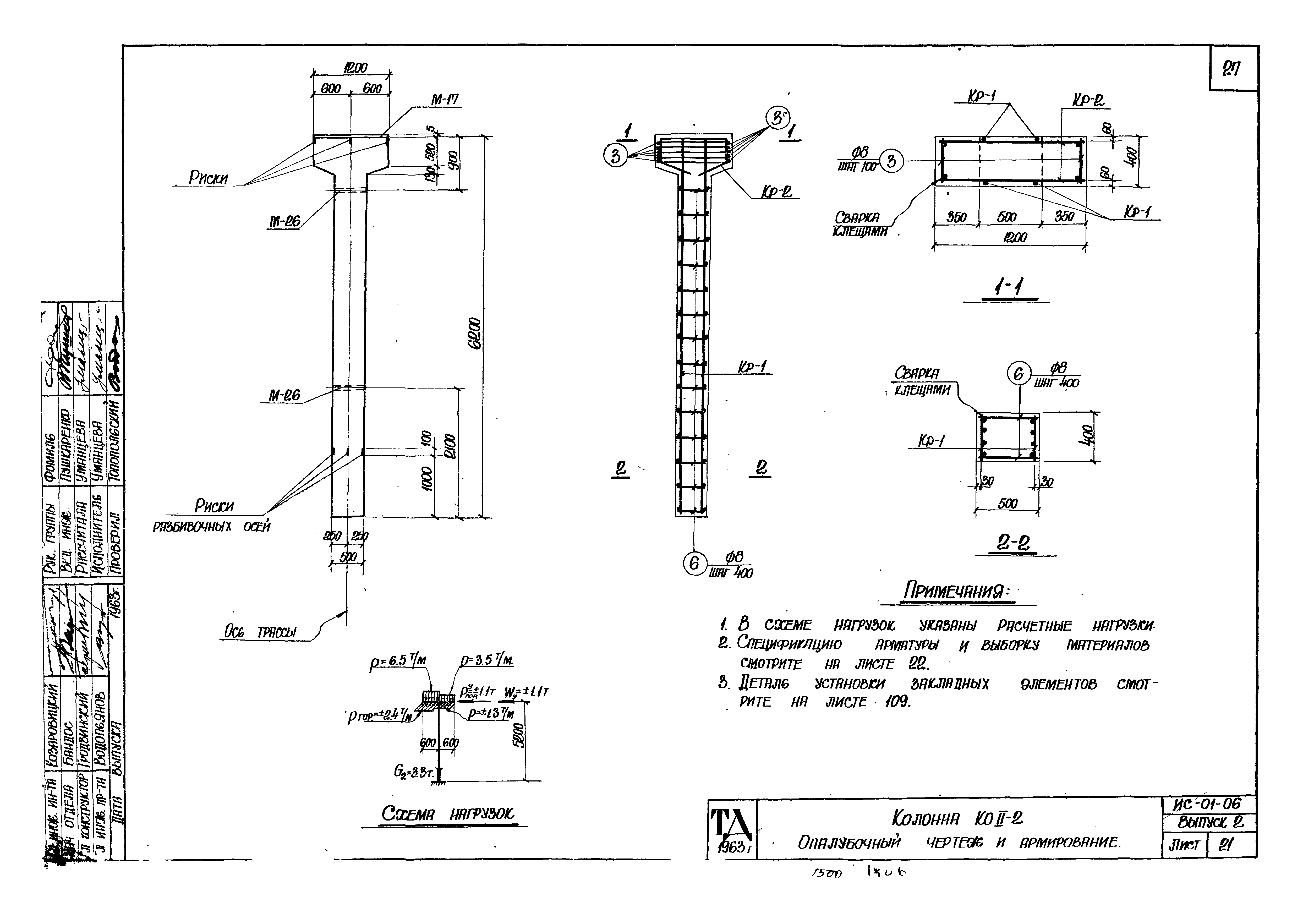
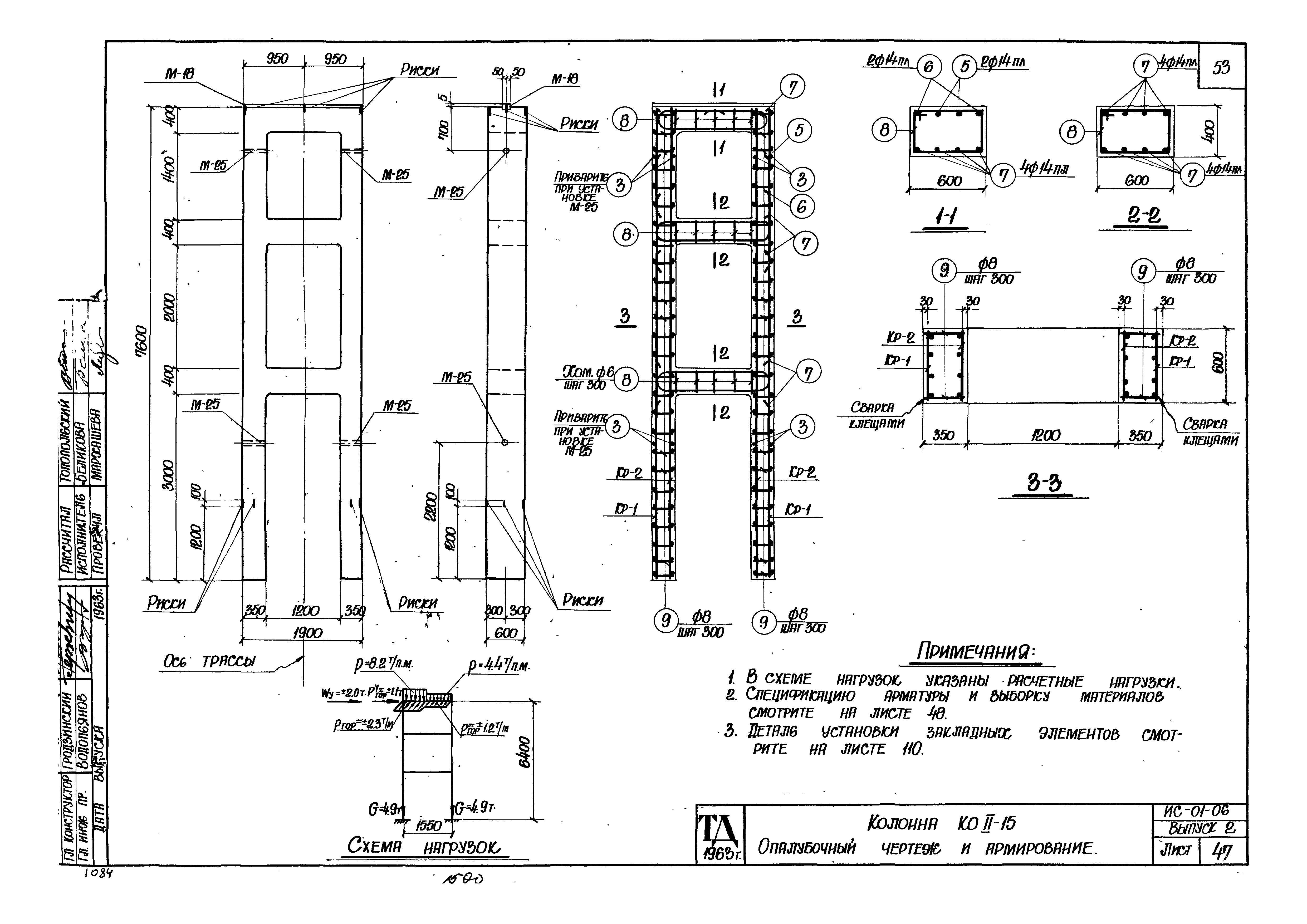
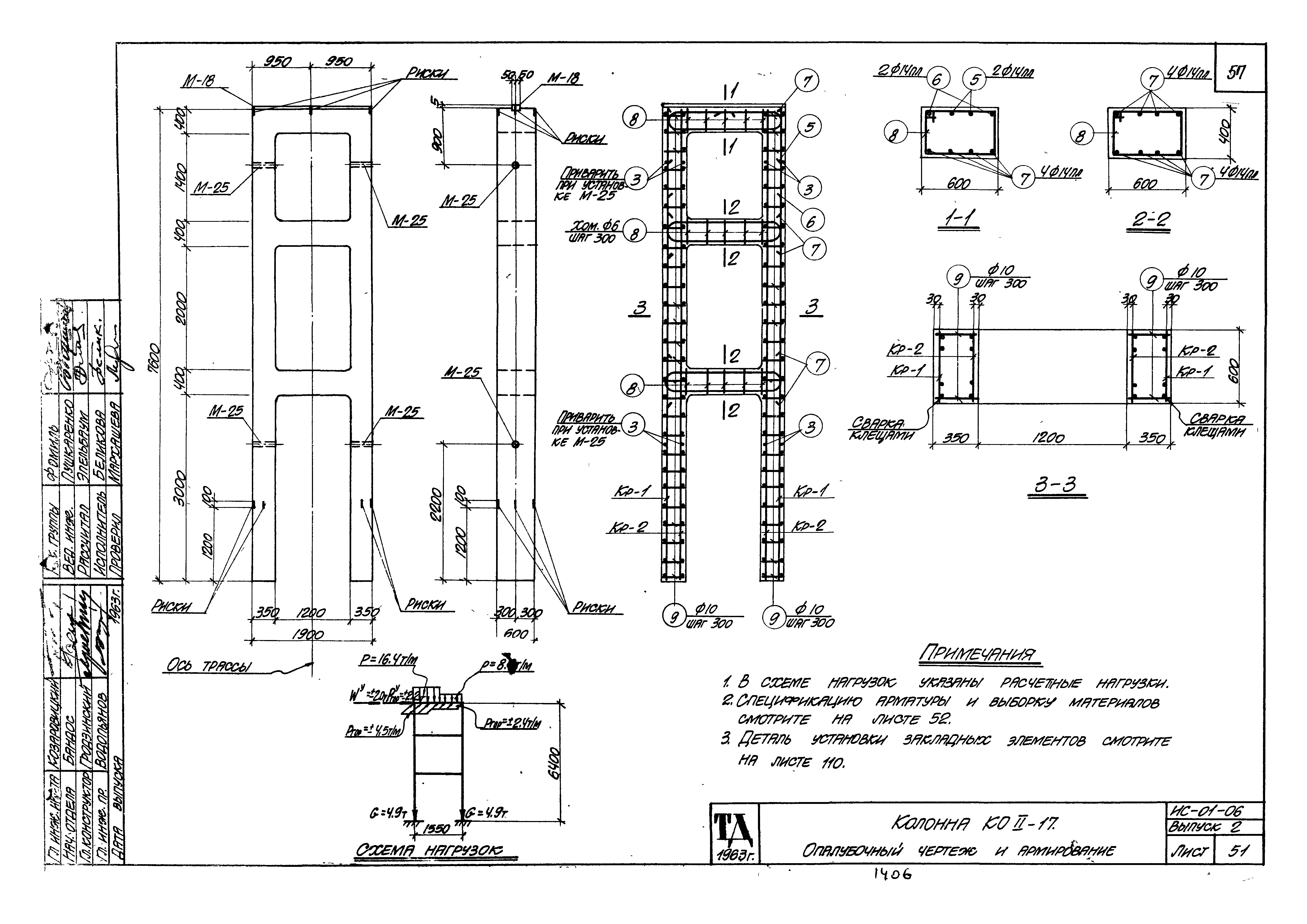
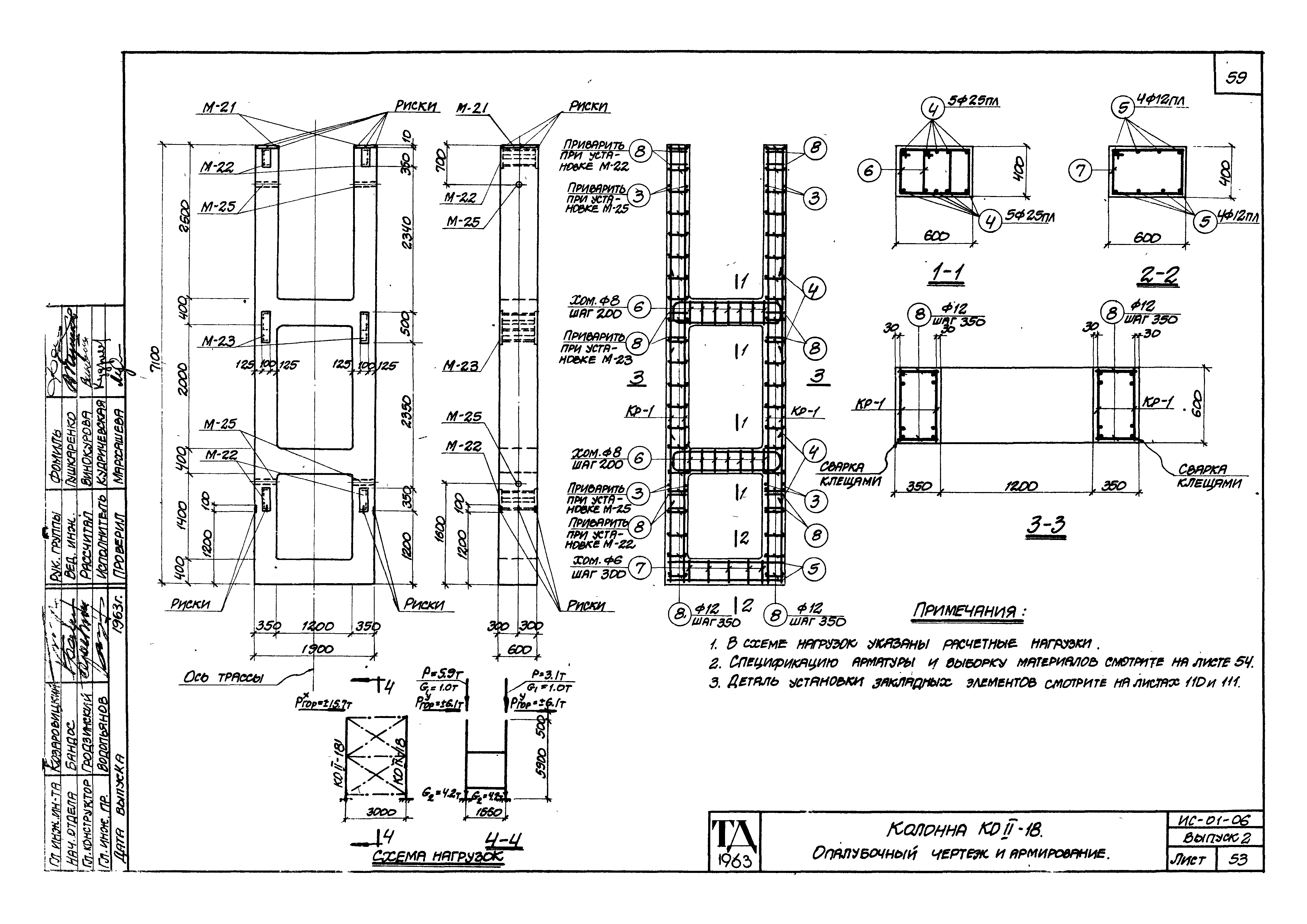
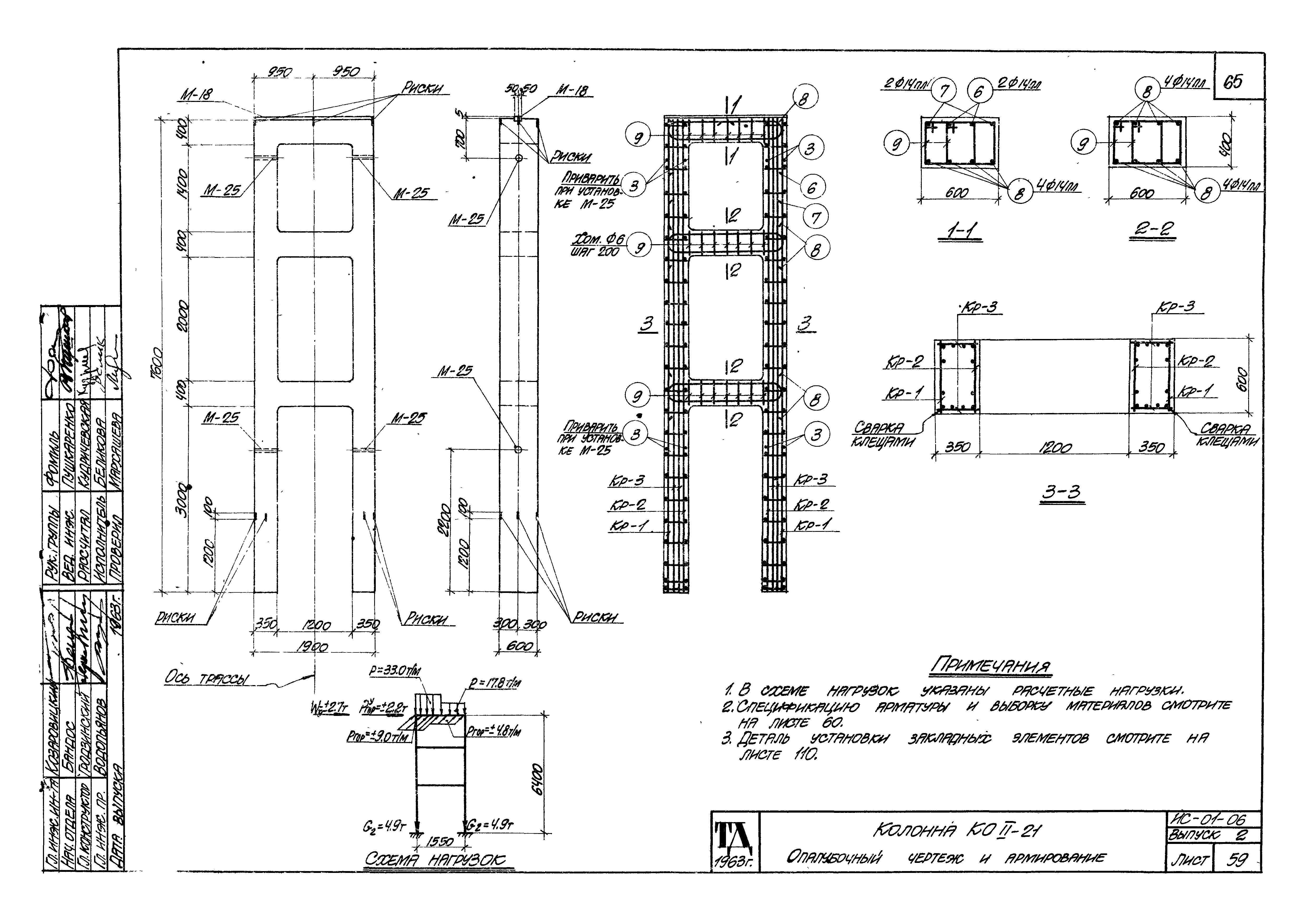
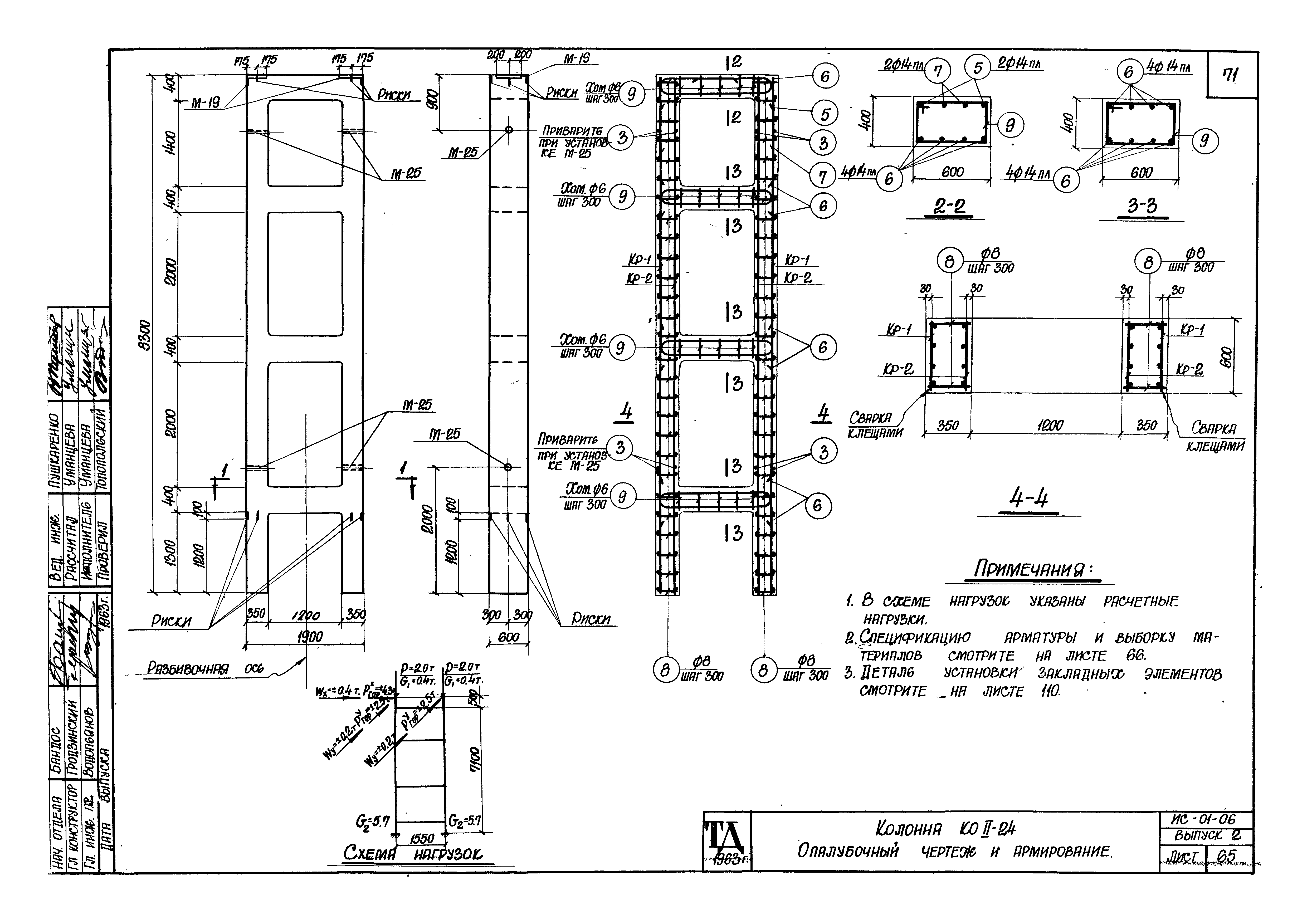
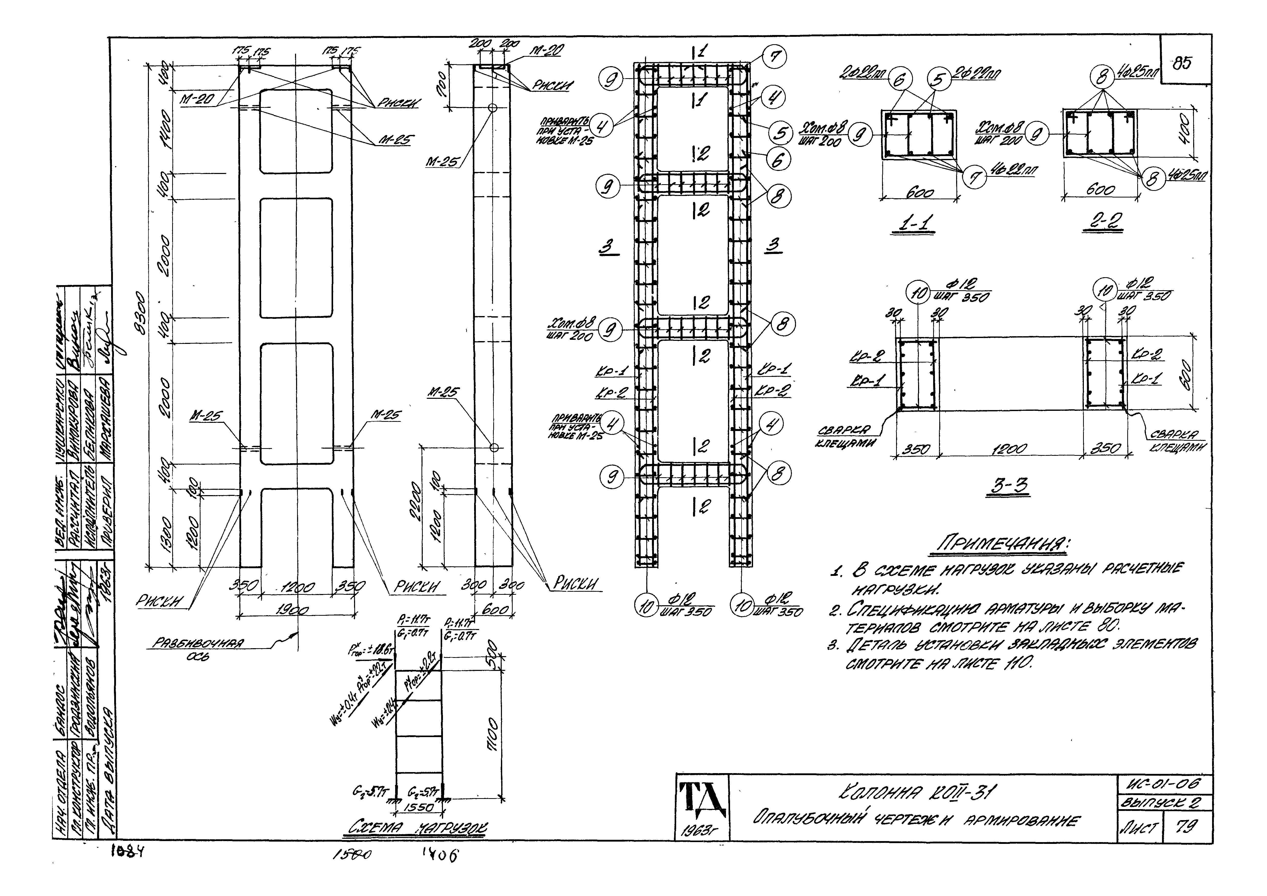
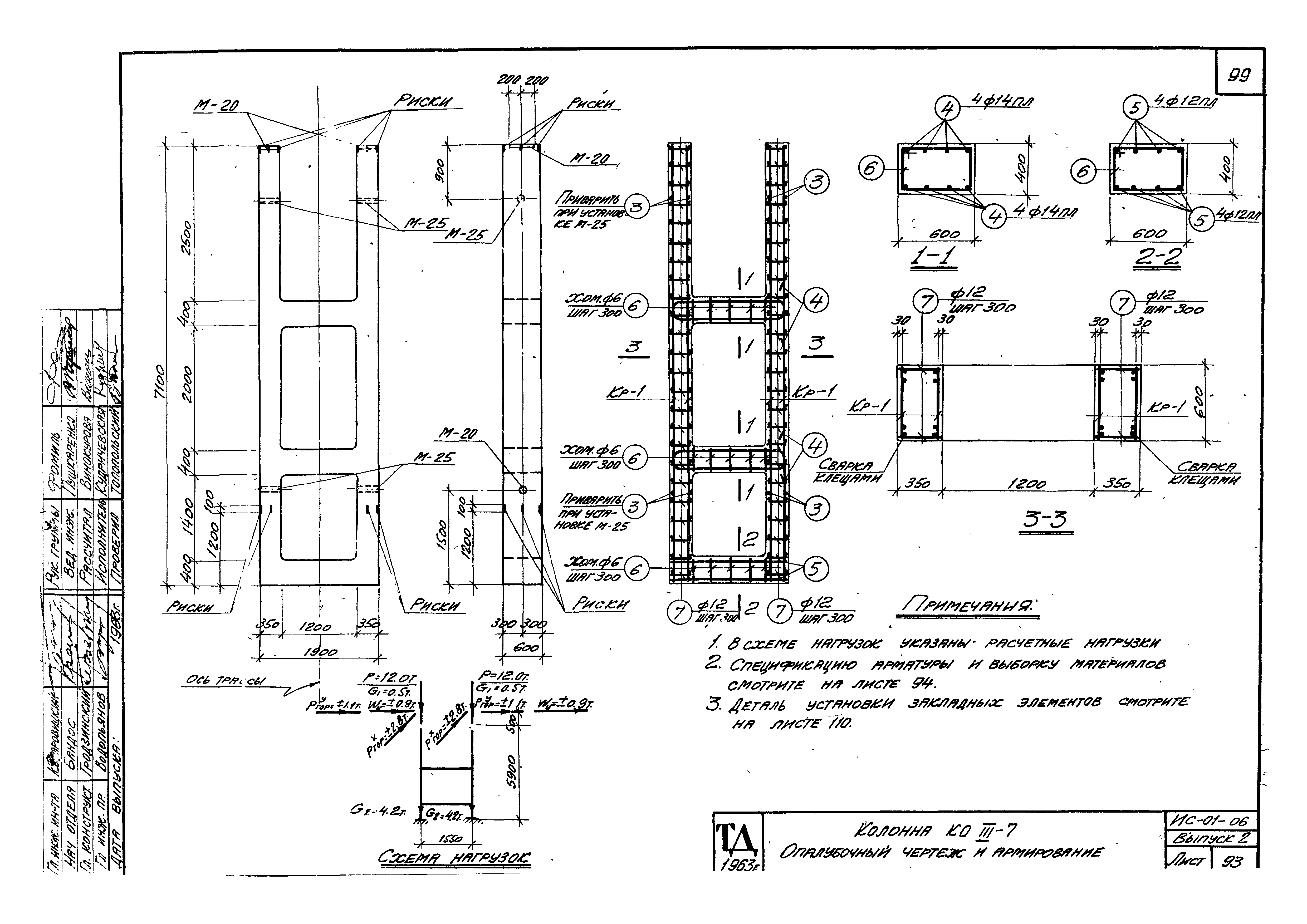
Скачать Серия ИС-01-06 Выпуск 2. Сборные железобетонные колонны и траверсы. Рабочие чертежиДата актуализации: 01.01.2021 Серия ИС-01-06
Выпуск 2. Сборные железобетонные колонны и траверсы. Рабочие чертежи| Обозначение: | Серия ИС-01-06 | | Обозначение англ: | Series ИС-01-06 | | Статус: | не действует | | Название рус.: | Выпуск 2. Сборные железобетонные колонны и траверсы. Рабочие чертежи | | Дата добавления в базу: | 01.09.2013 | | Дата актуализации: | 01.01.2021 | | Разработан: | Харьковский Промстройниипроект Госстроя СССР
| | Утверждён: | 27.06.1963 Госстрой СССР (Государственный комитет Совета Министров СССР по делам строительства) (USSR Gosstroy 140)
|
                                                                                                                     
|