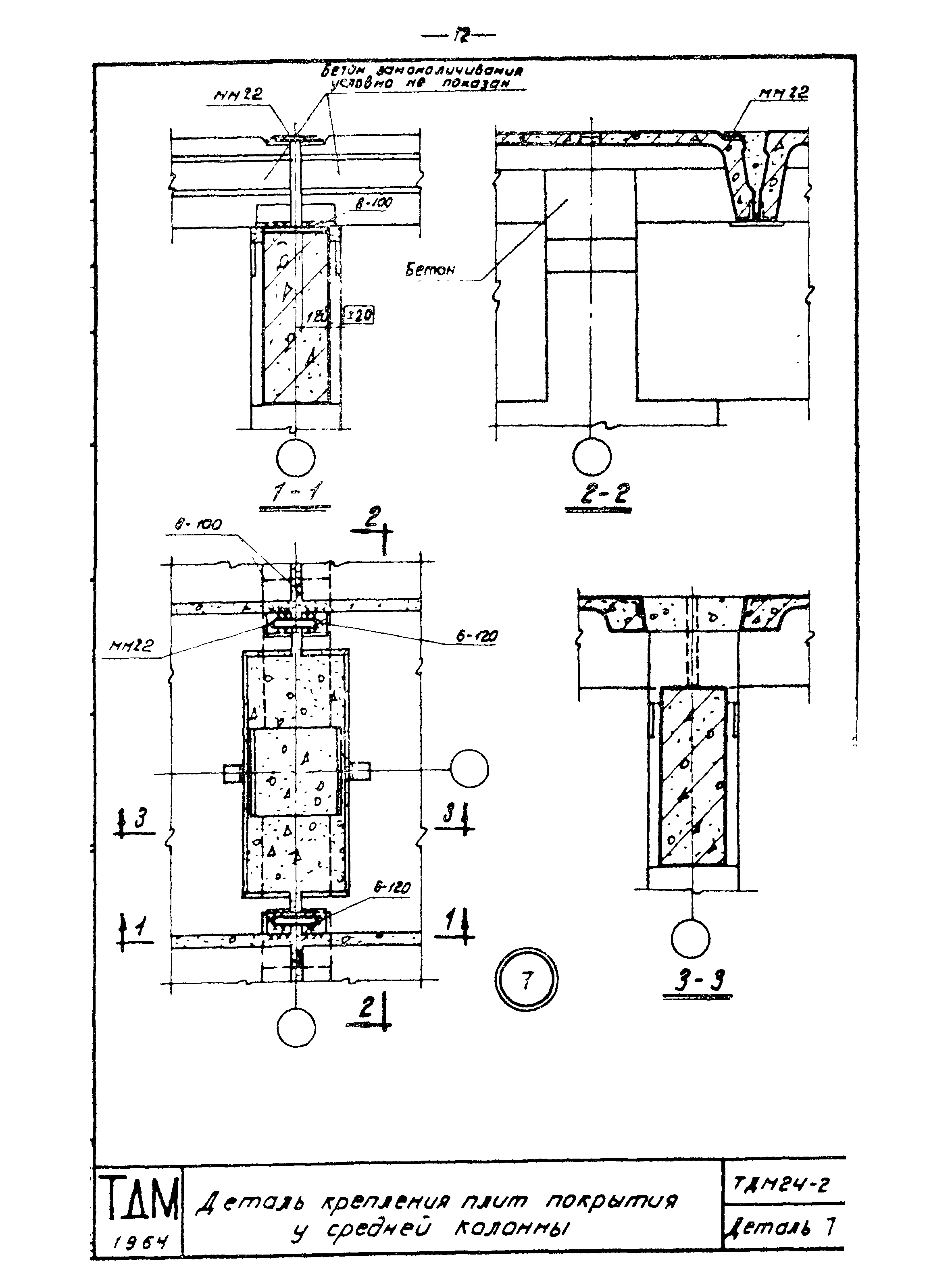
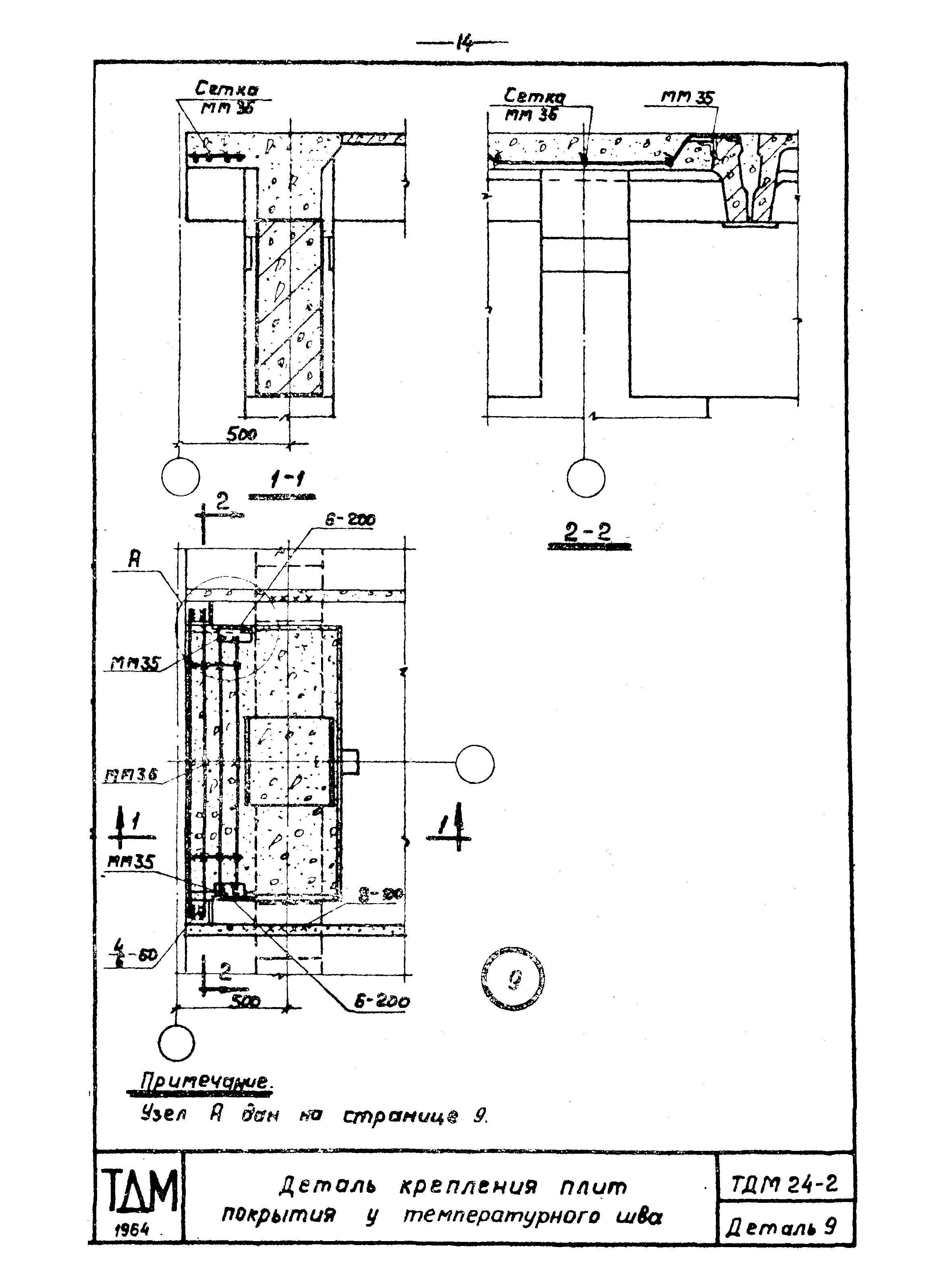
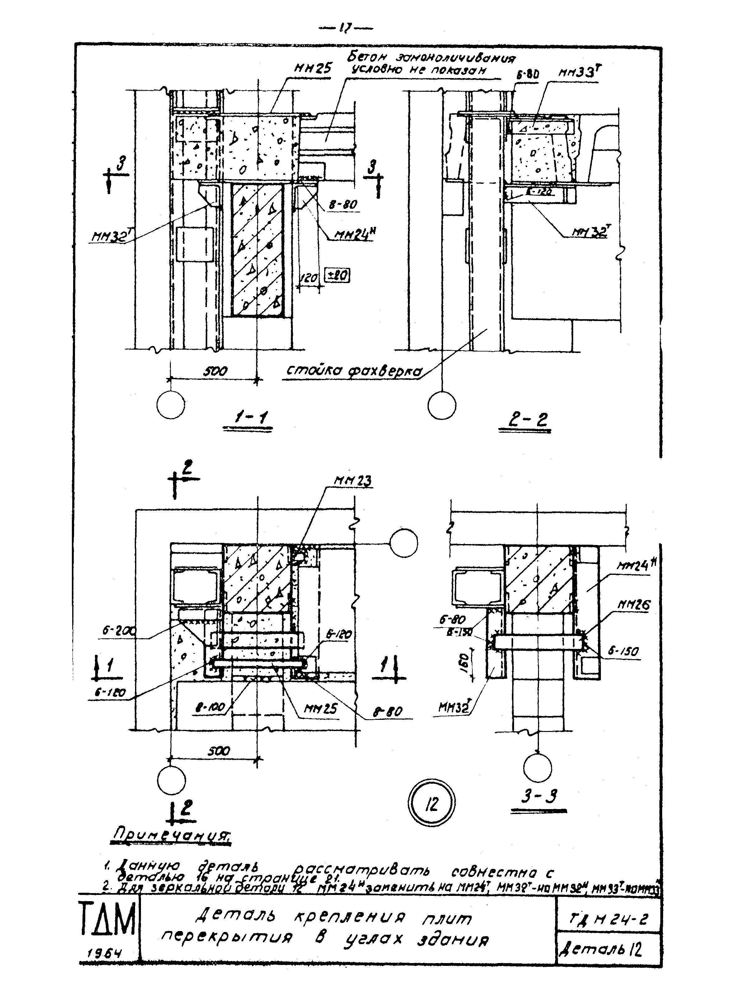
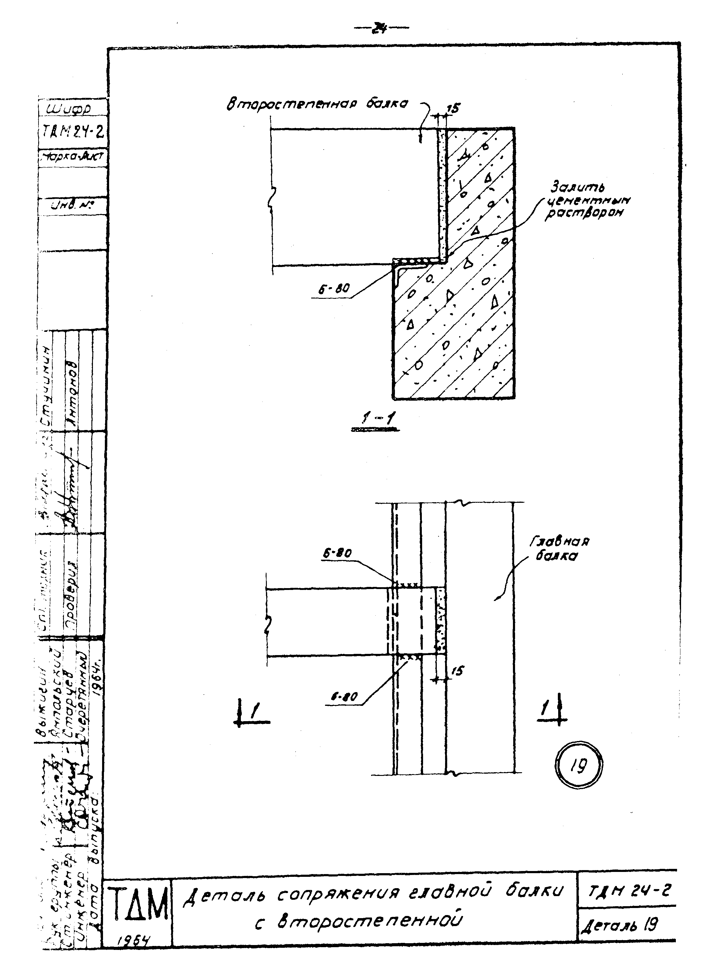
Скачать Серия ТДМ24-2 Детали сопряжений плит перекрытий типа 2, с опиранием на ригели прямоугольного сеченияДата актуализации: 01.01.2021 Серия ТДМ24-2
Детали сопряжений плит перекрытий типа 2, с опиранием на ригели прямоугольного сечения| Обозначение: | Серия ТДМ24-2 | | Обозначение англ: | Series ТДМ24-2 | | Статус: | действует | | Название рус.: | Детали сопряжений плит перекрытий типа 2, с опиранием на ригели прямоугольного сечения | | Дата добавления в базу: | 01.09.2013 | | Дата актуализации: | 01.01.2021 | | Дата введения: | 01.10.1964 | | Разработан: | ЦНИИпромзданий НИИЖБ
| | Утверждён: | 25.08.1964 Госстрой СССР (Государственный комитет Совета Министров СССР по делам строительства) (USSR Gosstroy 151)
|
                           
|