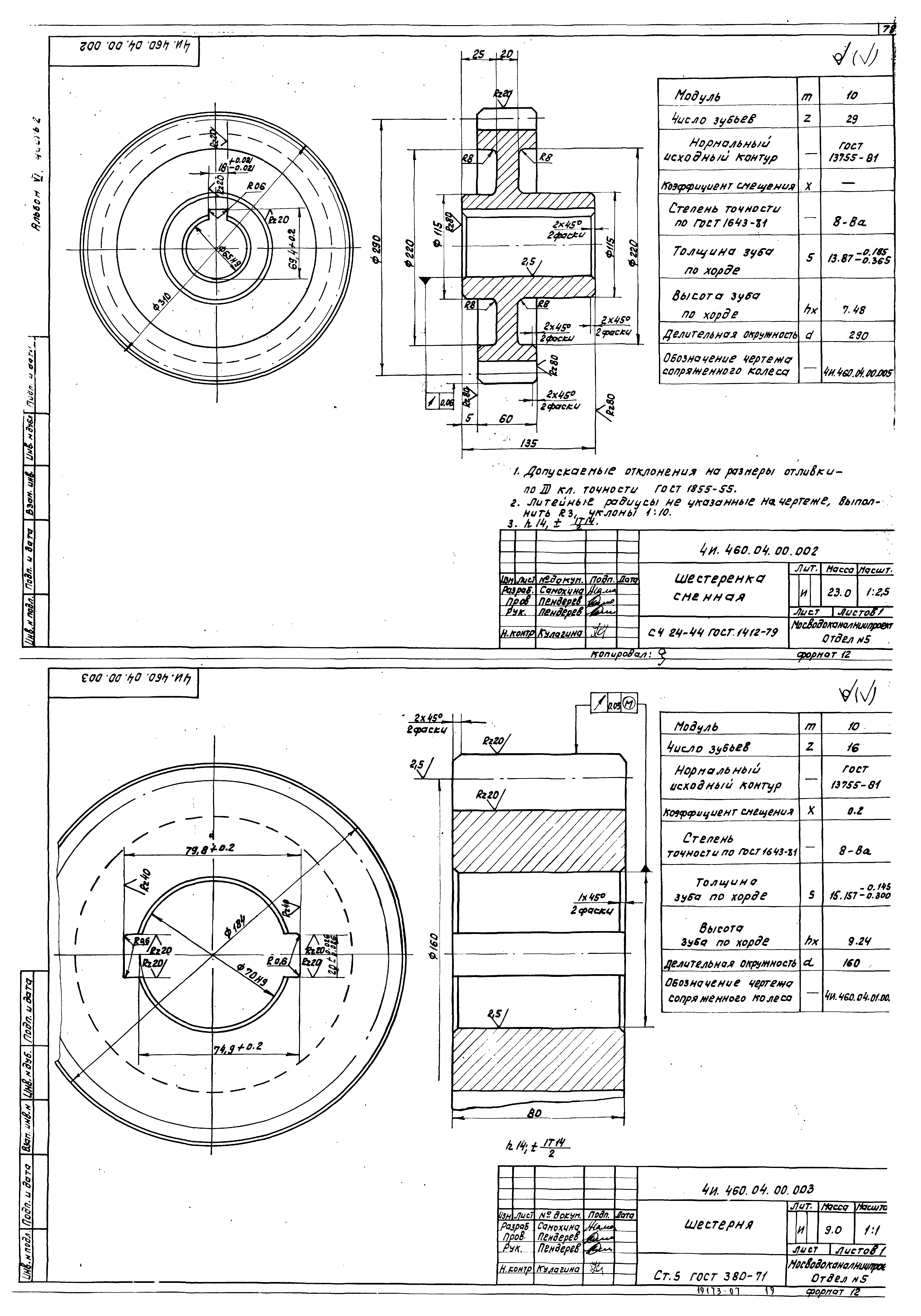
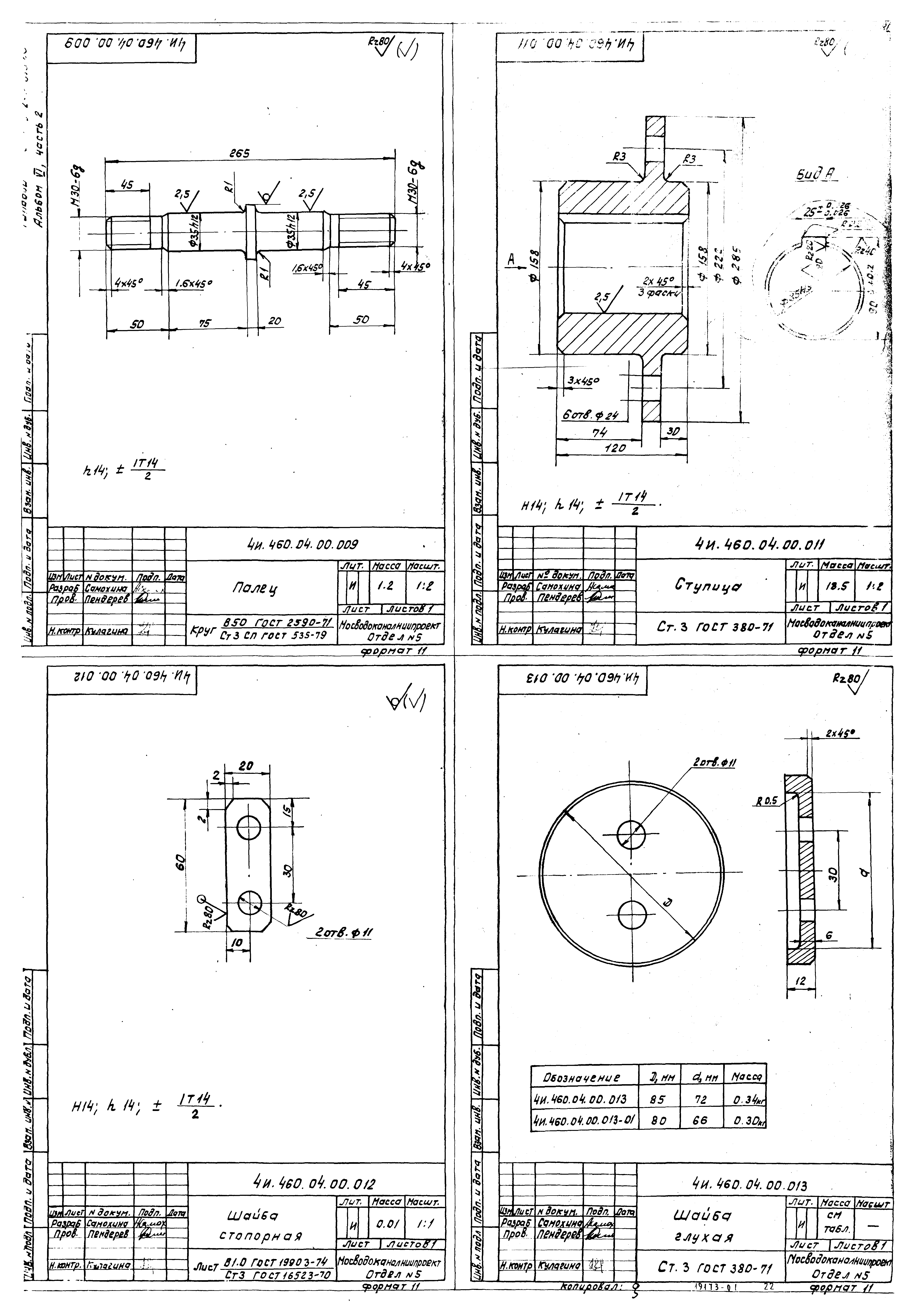
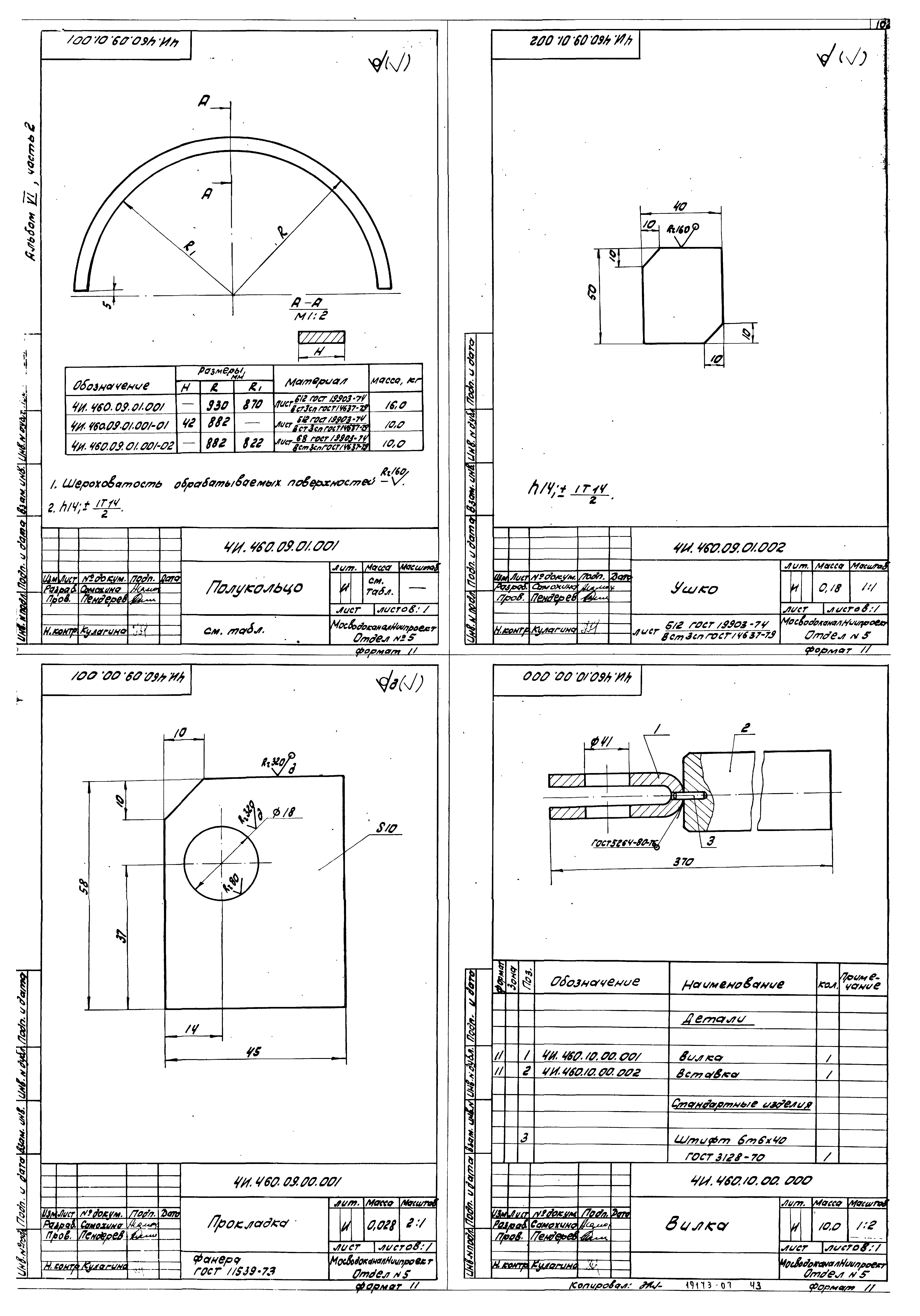
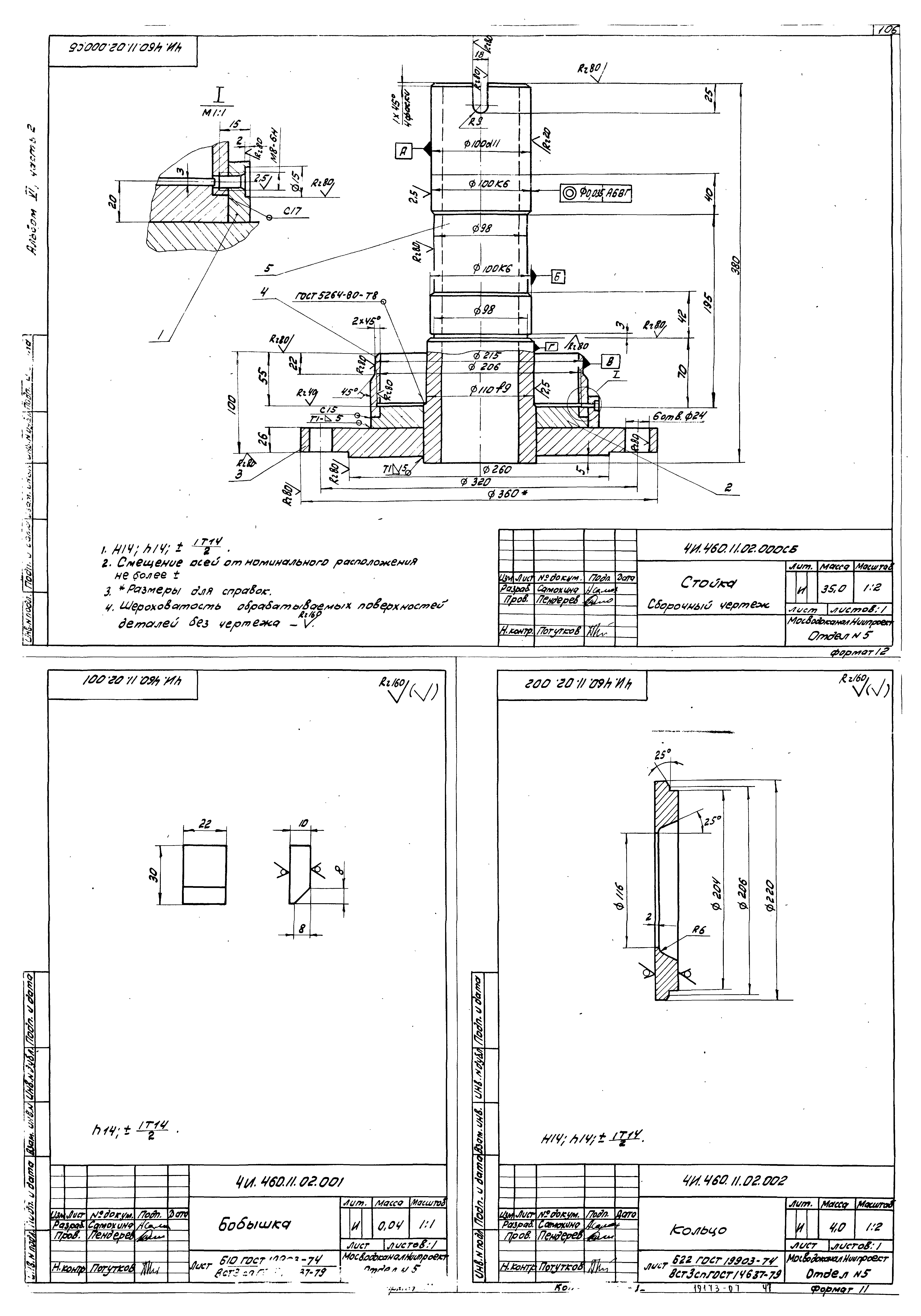
Скачать Типовой проект 902-2-376.83 Альбом VI. Часть 2. Нестандартизированное оборудование. ИлососДата актуализации: 01.01.2021 Типовой проект 902-2-376.83
Альбом VI. Часть 2. Нестандартизированное оборудование. Илосос| Обозначение: | Типовой проект 902-2-376.83 | | Обозначение англ: | 902-2-376.83 | | Статус: | не действует | | Название рус.: | Альбом VI. Часть 2. Нестандартизированное оборудование. Илосос | | Дата добавления в базу: | 01.09.2013 | | Дата актуализации: | 01.01.2021 | | Разработан: | МосводоканалНИИпроект
| | Утверждён: | 27.07.1983 МосводоканалНИИпроект (168)
|
                                                                       
|