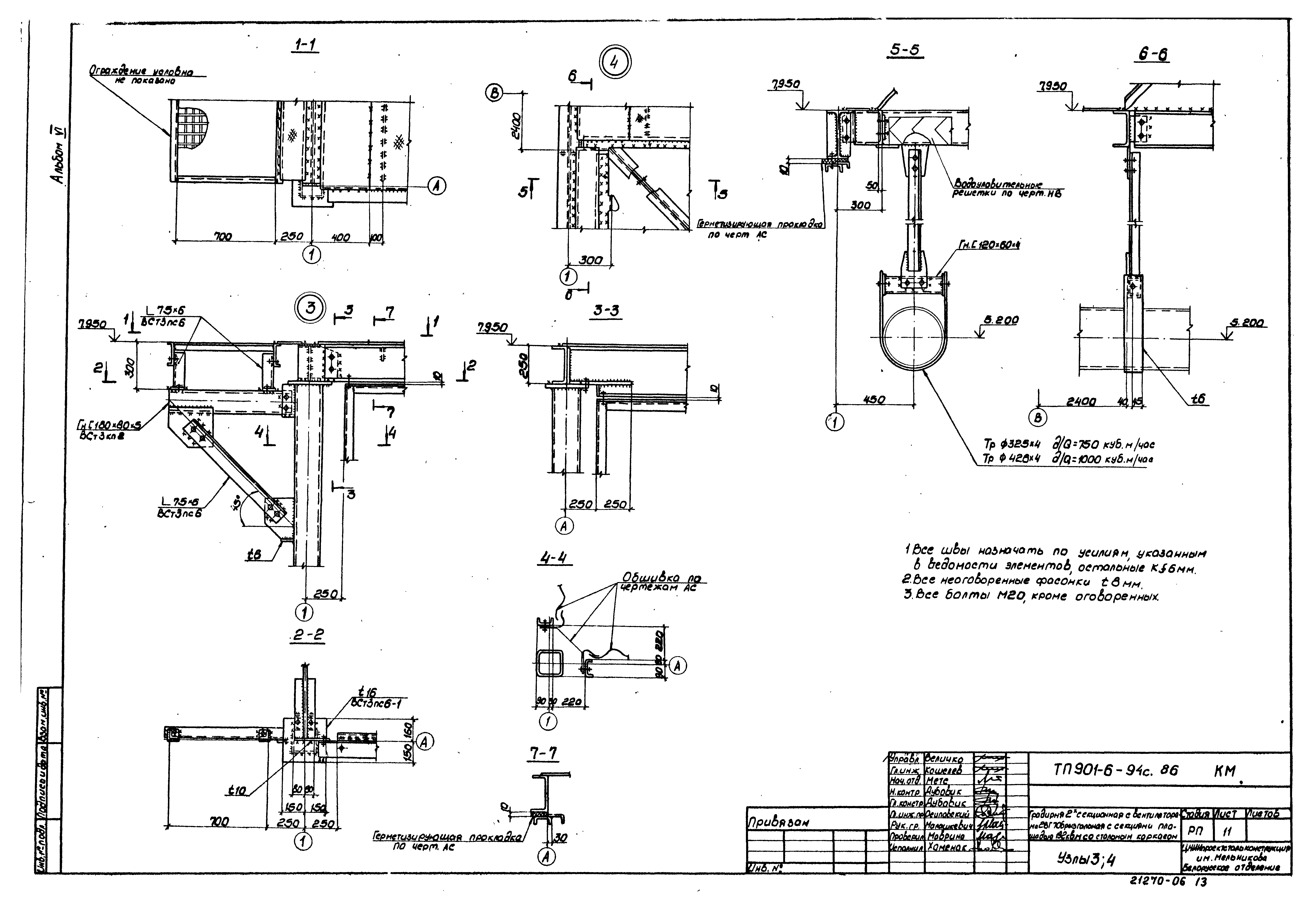
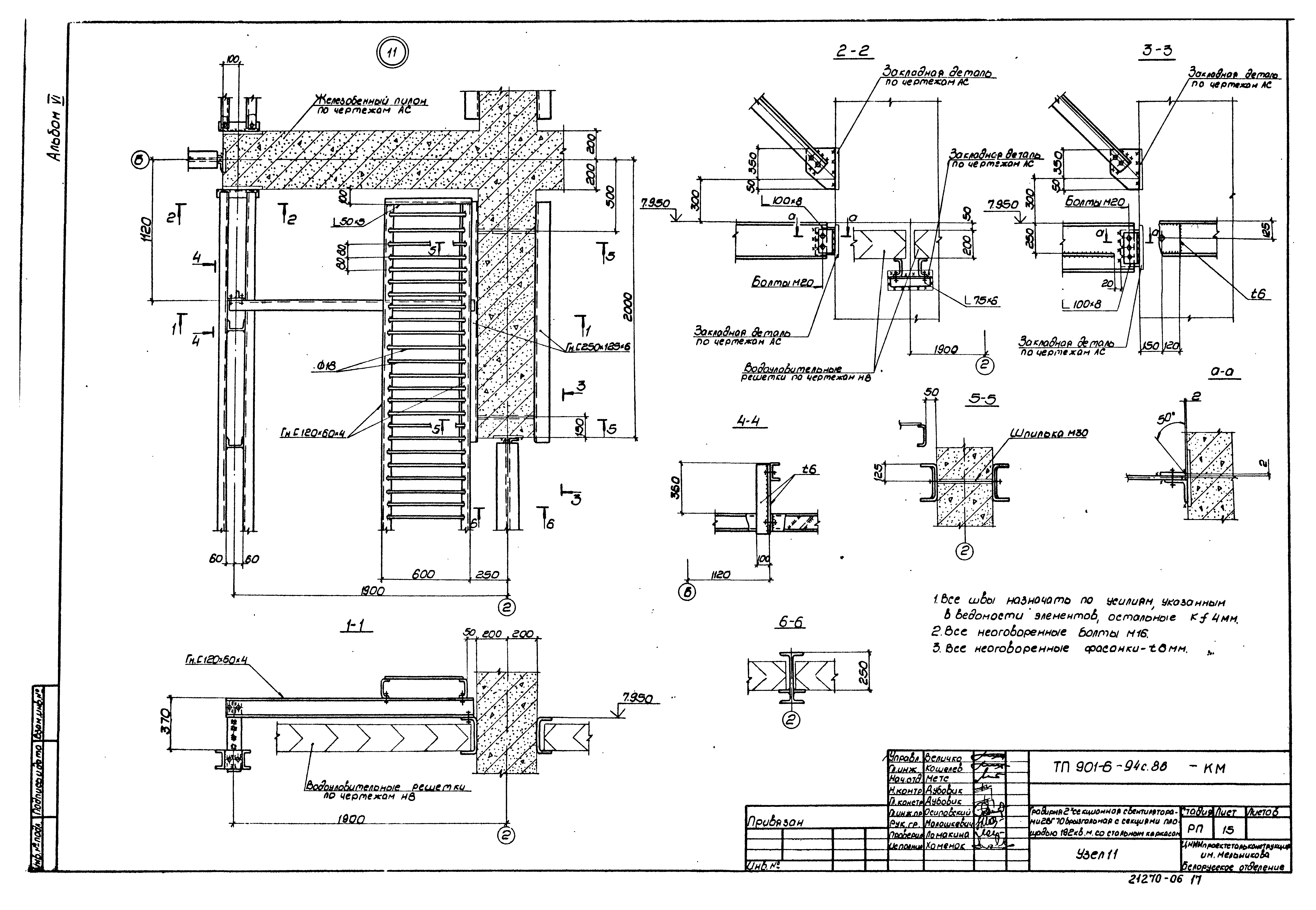
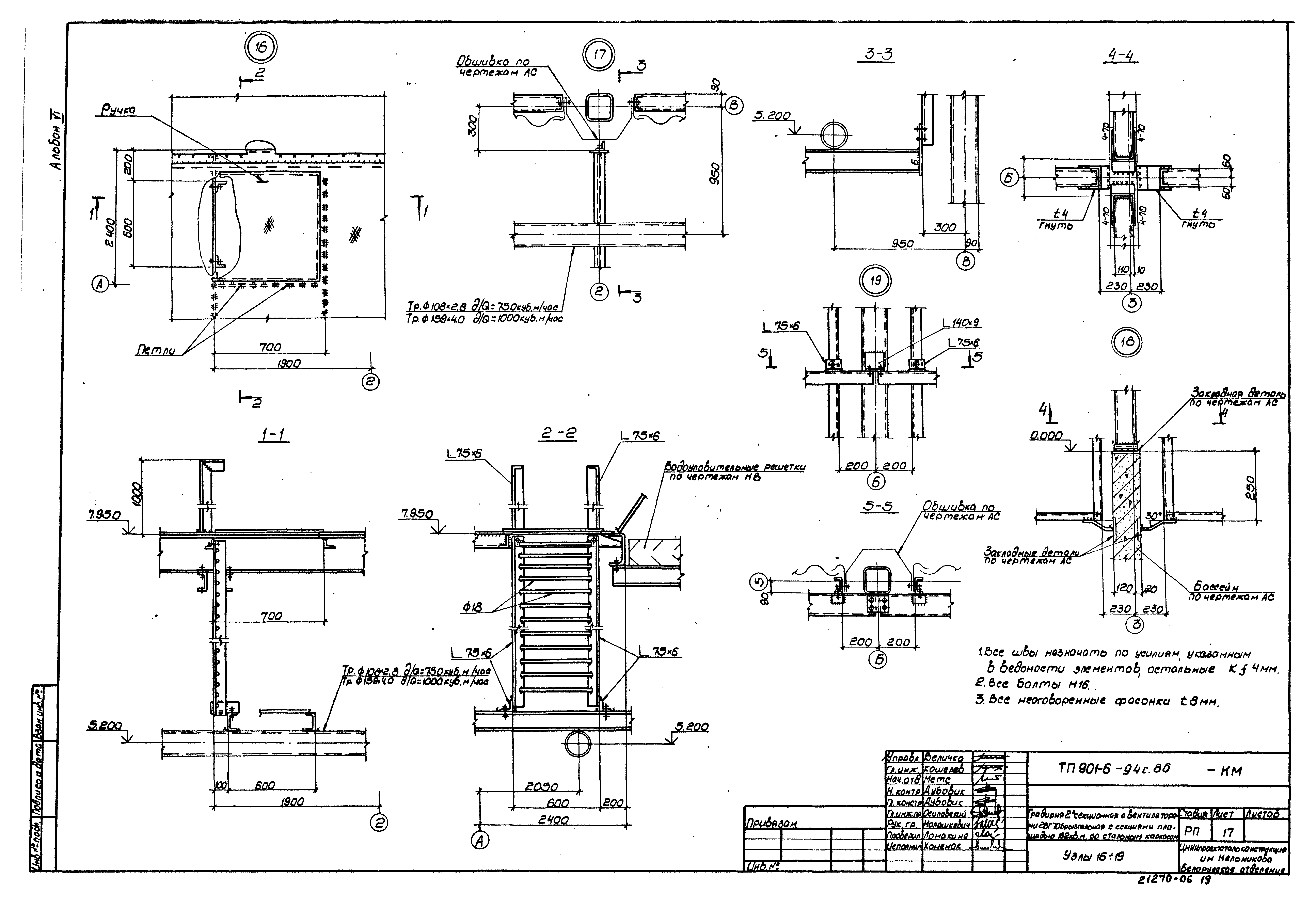
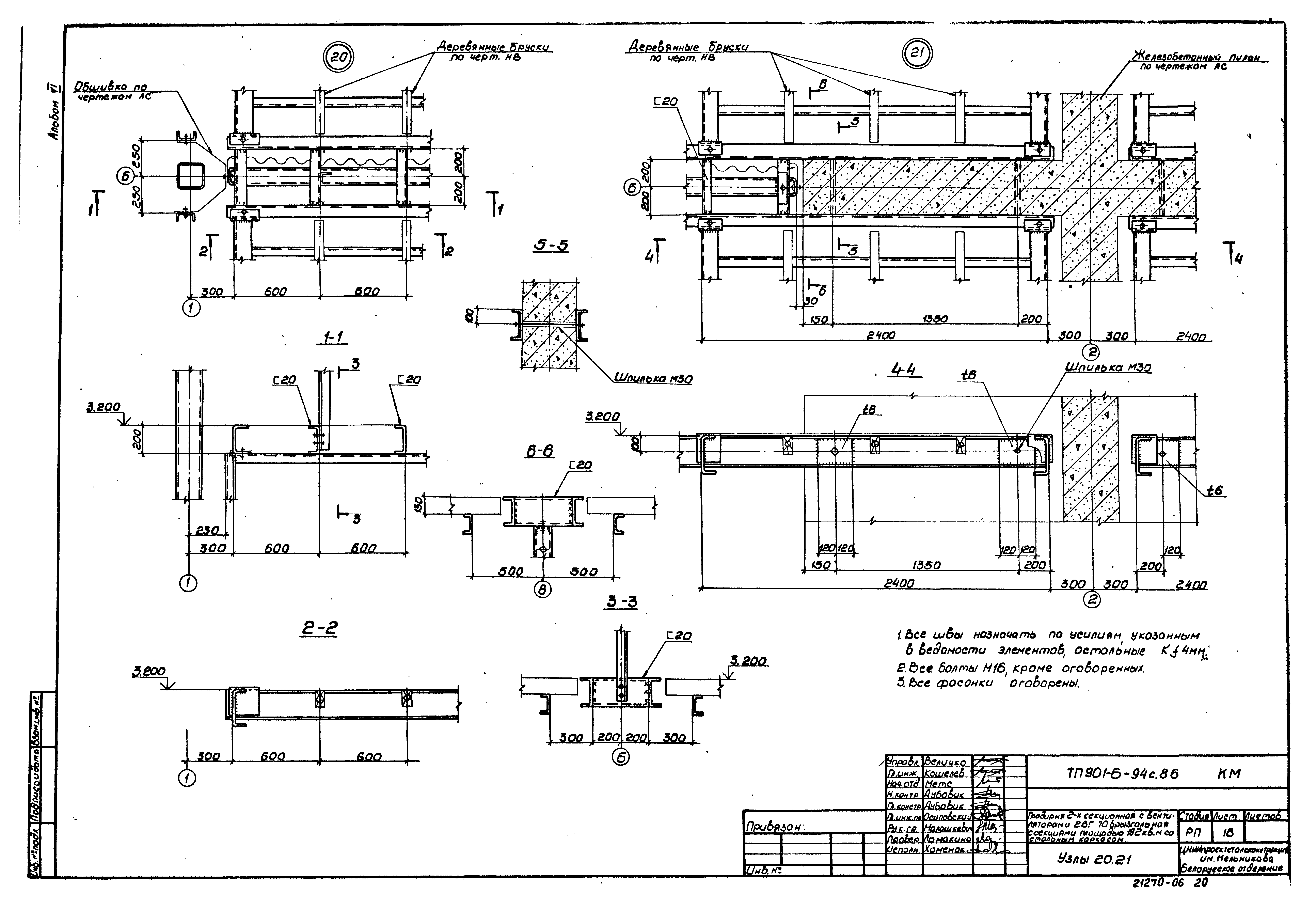
Скачать Типовой проект 901-6-94с.86 Альбом VI. Конструкции металлическиеДата актуализации: 01.01.2021 Типовой проект 901-6-94с.86
Альбом VI. Конструкции металлические| Обозначение: | Типовой проект 901-6-94с.86 | | Обозначение англ: | 901-6-94с.86 | | Статус: | не действует | | Название рус.: | Альбом VI. Конструкции металлические | | Дата добавления в базу: | 01.09.2013 | | Дата актуализации: | 01.01.2021 | | Дата введения: | 16.04.1986 | | Дата окончания срока действия: | 01.07.1996 | | Разработан: | Союзводоканалпроект
| | Утверждён: | 20.11.1985 Госстрой СССР (Государственный комитет Совета Министров СССР по делам строительства) (USSR Gosstroy АЧ-49)
|
                     
|