Скачать Типовой проект 168-01-03 Выпуск II. Альбом 1. Подсобные помещения 4,0х6,0Дата актуализации: 01.01.2021
|
| Обозначение: | Типовой проект 168-01-03 |
| Обозначение англ: | 168-01-03 |
| Статус: | не действует |
| Название рус.: | Выпуск II. Альбом 1. Подсобные помещения 4,0х6,0 |
| Дата добавления в базу: | 01.09.2013 |
| Дата актуализации: | 01.01.2021 |
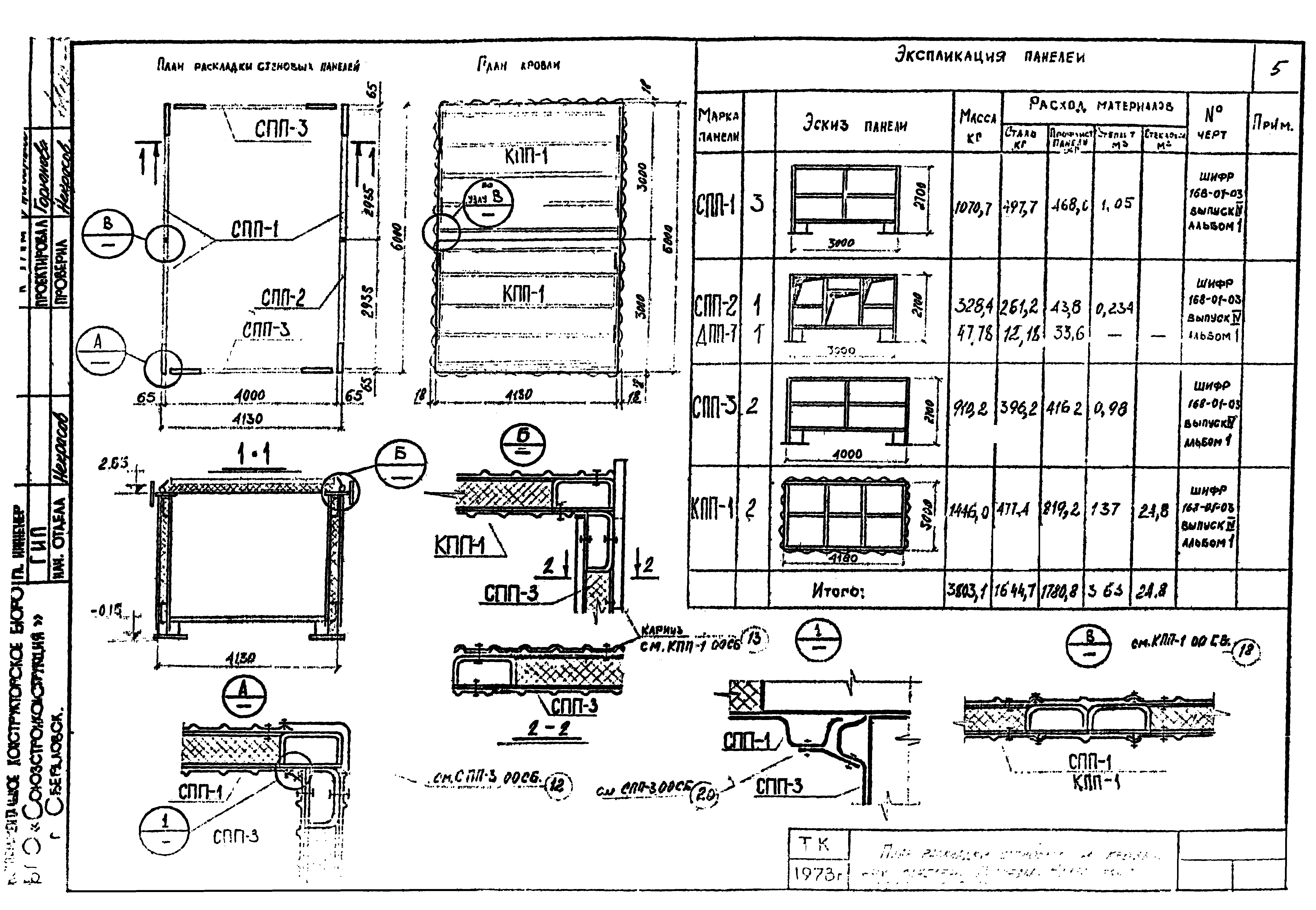
| Оглавление: | Общая часть Архитектурно-строительная часть Пояснительная записка. Перечень листов План. Фасады. Разрезы. Узлы План стеновых и кровельных панелей. Разрезы. Экспликация панелей Спецификация стали на одну марку. Расход материалов и метизов на одну марку а) Подсобное помещение ПП-4.0х9.0. Инструментальное, заточное помещения. Электроосвещение Заказная спецификация на кабельную продукцию а) Подсобное помещение ПП-4.0х9.0. Инструментальное, заточное помещения. Электроосвещение Заказная спецификация на оборудование и изделия, комплектуемые территориальным управлением а) Подсобное помещение ПП-4.0х9.0. Склад стеллажного хранения. Электроосвещение Заказная спецификация на кабельную продукцию а) Подсобное помещение ПП-4.0х9.0. Склад стеллажного хранения. Электроосвещение Заказная спецификация на изделия и материалы, комплектуемые подрядчиком Заказная спецификация на оборудование и изделия, комплектуемые территориальным управлением Заказная спецификация на изделия и материалы, комплектуемые подрядчиком |
| Разработан: | ЭКБ ВПО Союзстройконструкция |
| Утверждён: | 01.01.1978 ВПО Союзстройконструкция |






















