Скачать Серия ОВ-02-25 Узлы воздухозабора приточных вентиляционных камер производственных зданий (при окнах со стальными и железобетонными переплетами)Дата актуализации: 01.01.2021
|
| Обозначение: | Серия ОВ-02-25 |
| Обозначение англ: | Series ОВ-02-25 |
| Статус: | не действует |
| Название рус.: | Узлы воздухозабора приточных вентиляционных камер производственных зданий (при окнах со стальными и железобетонными переплетами) |
| Дата добавления в базу: | 01.09.2013 |
| Дата актуализации: | 01.01.2021 |
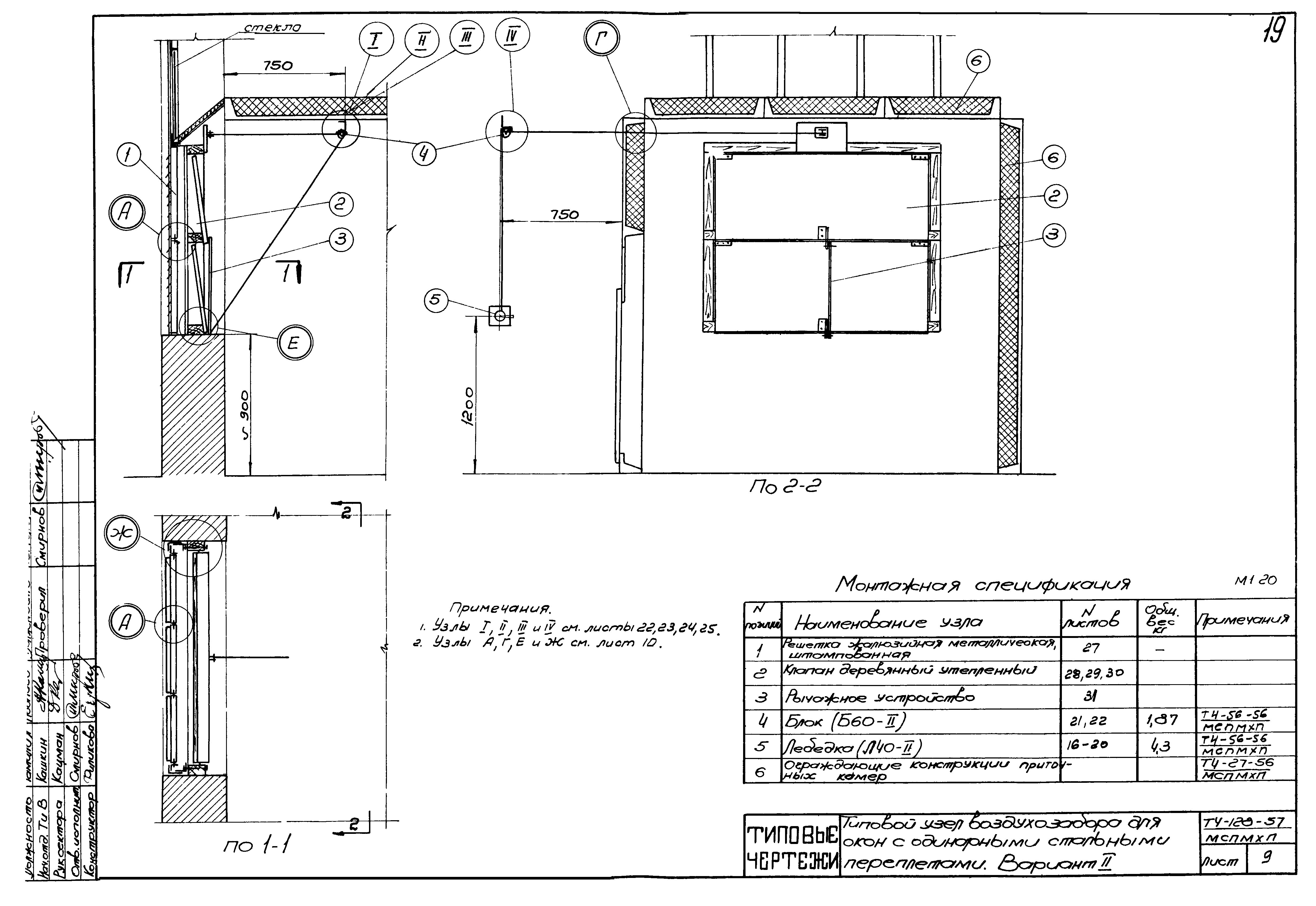
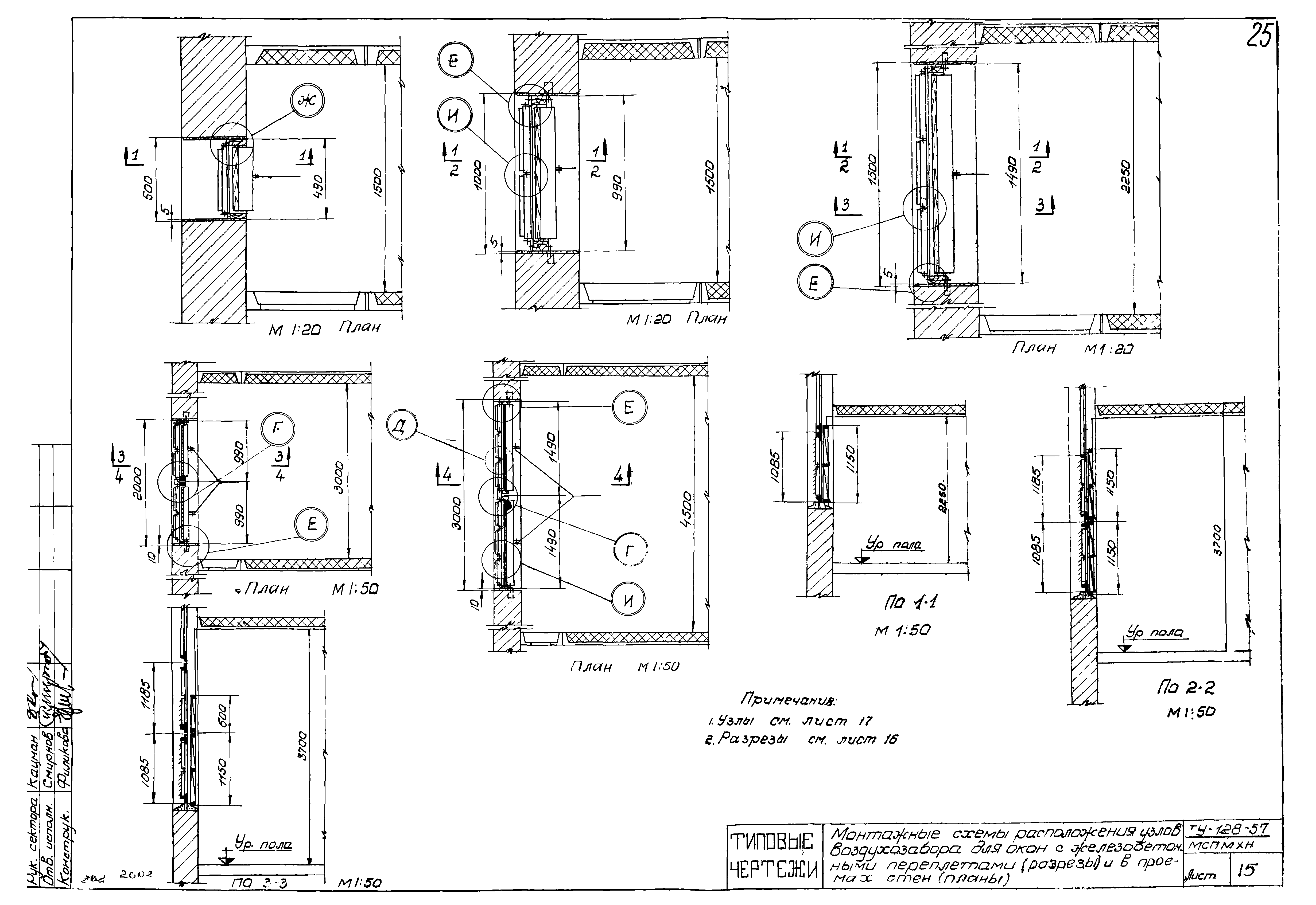
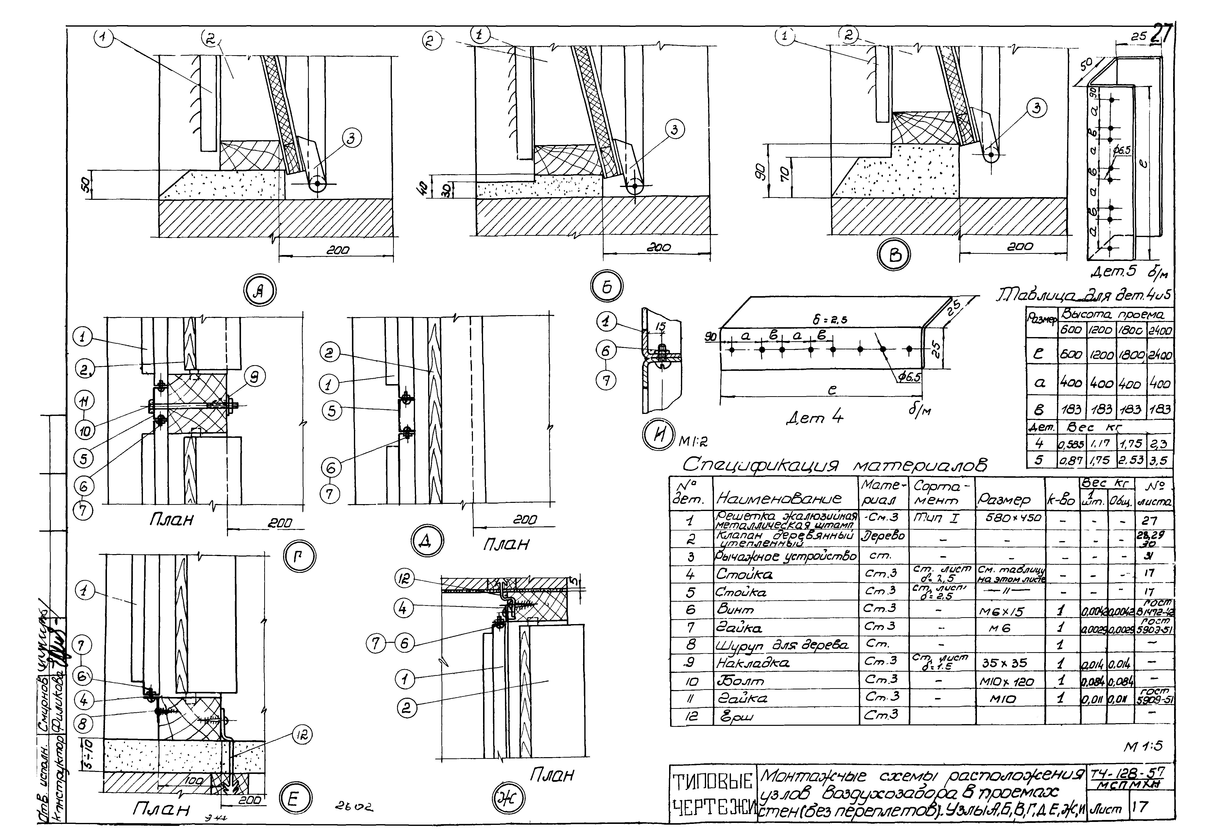
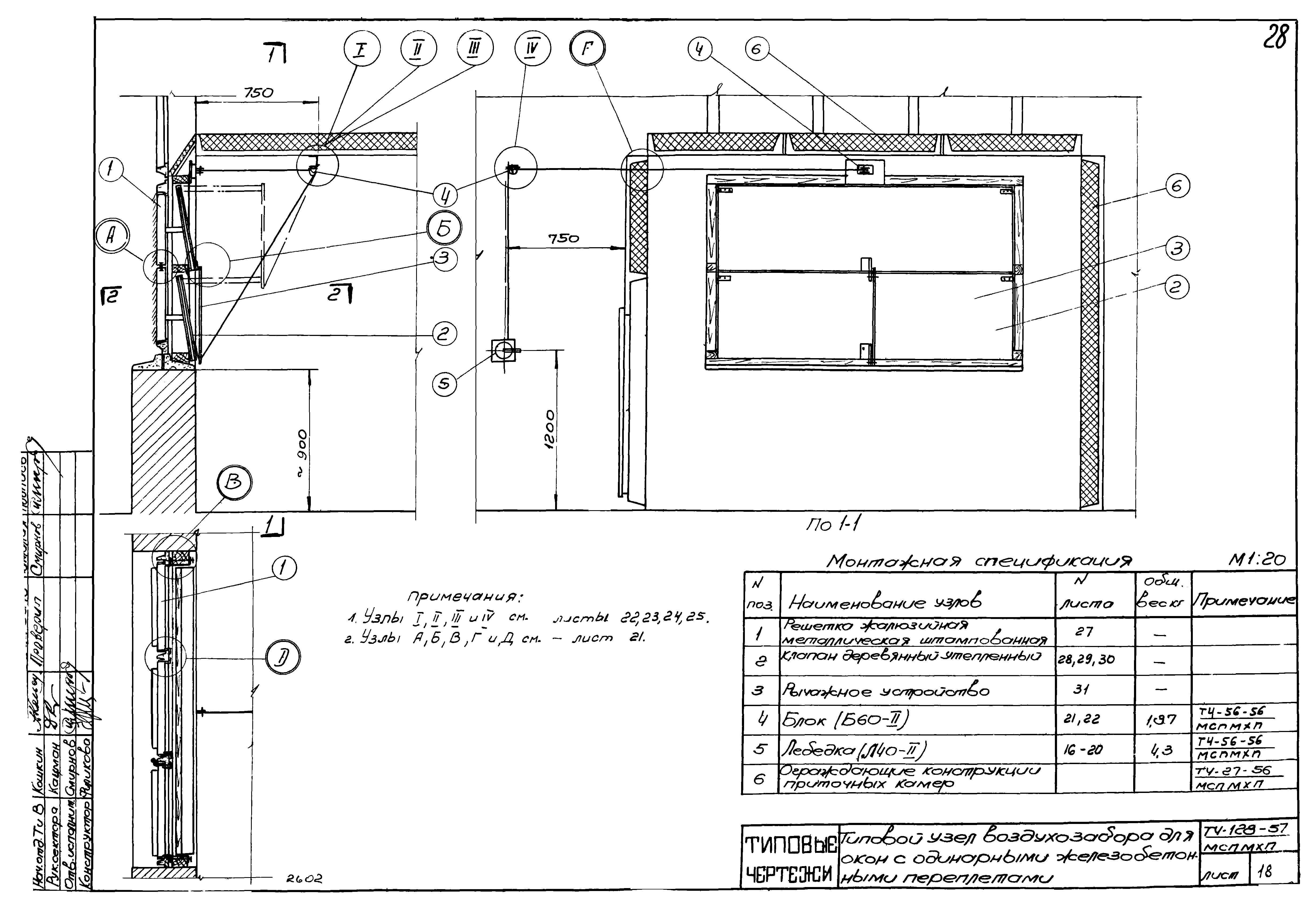
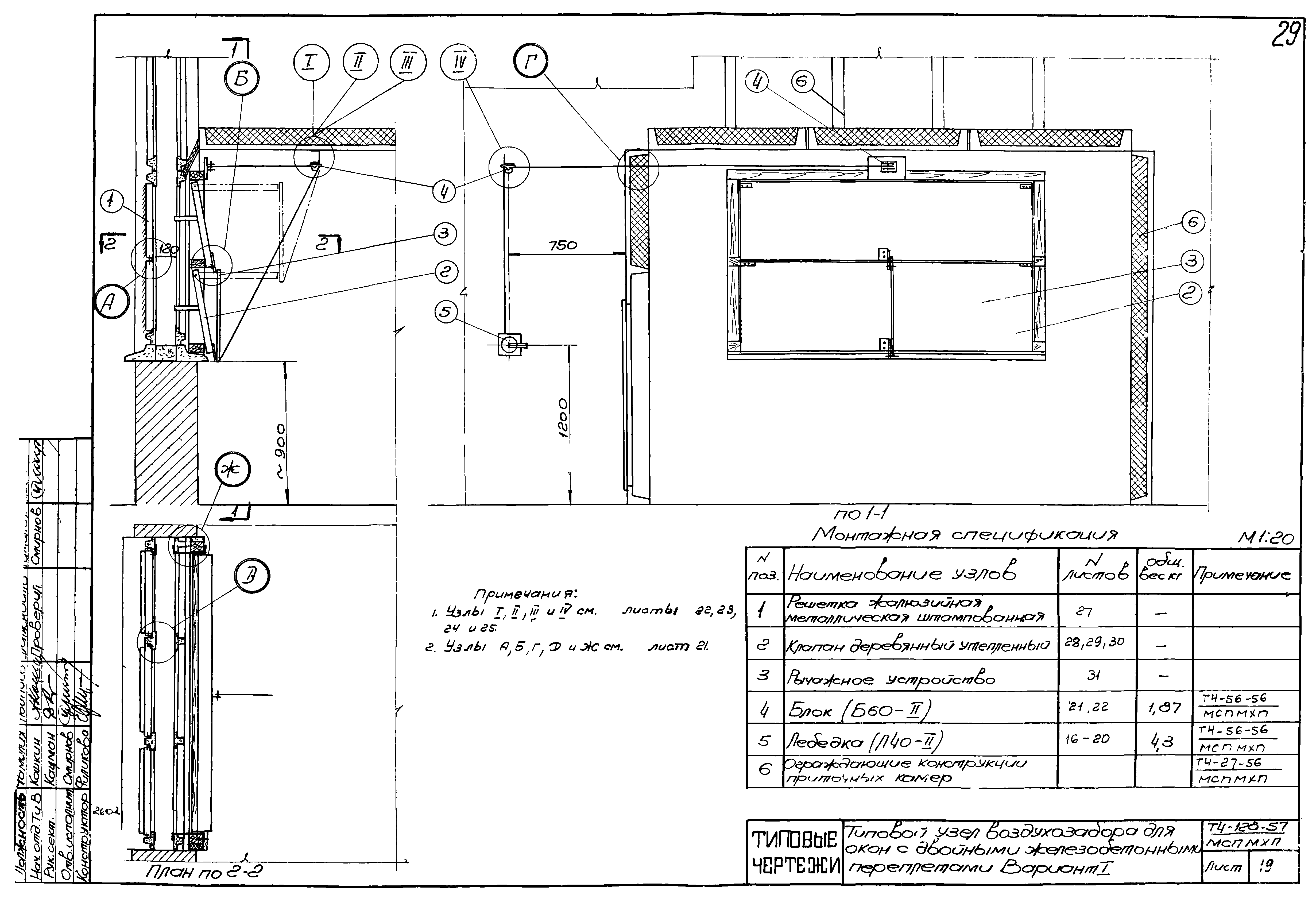
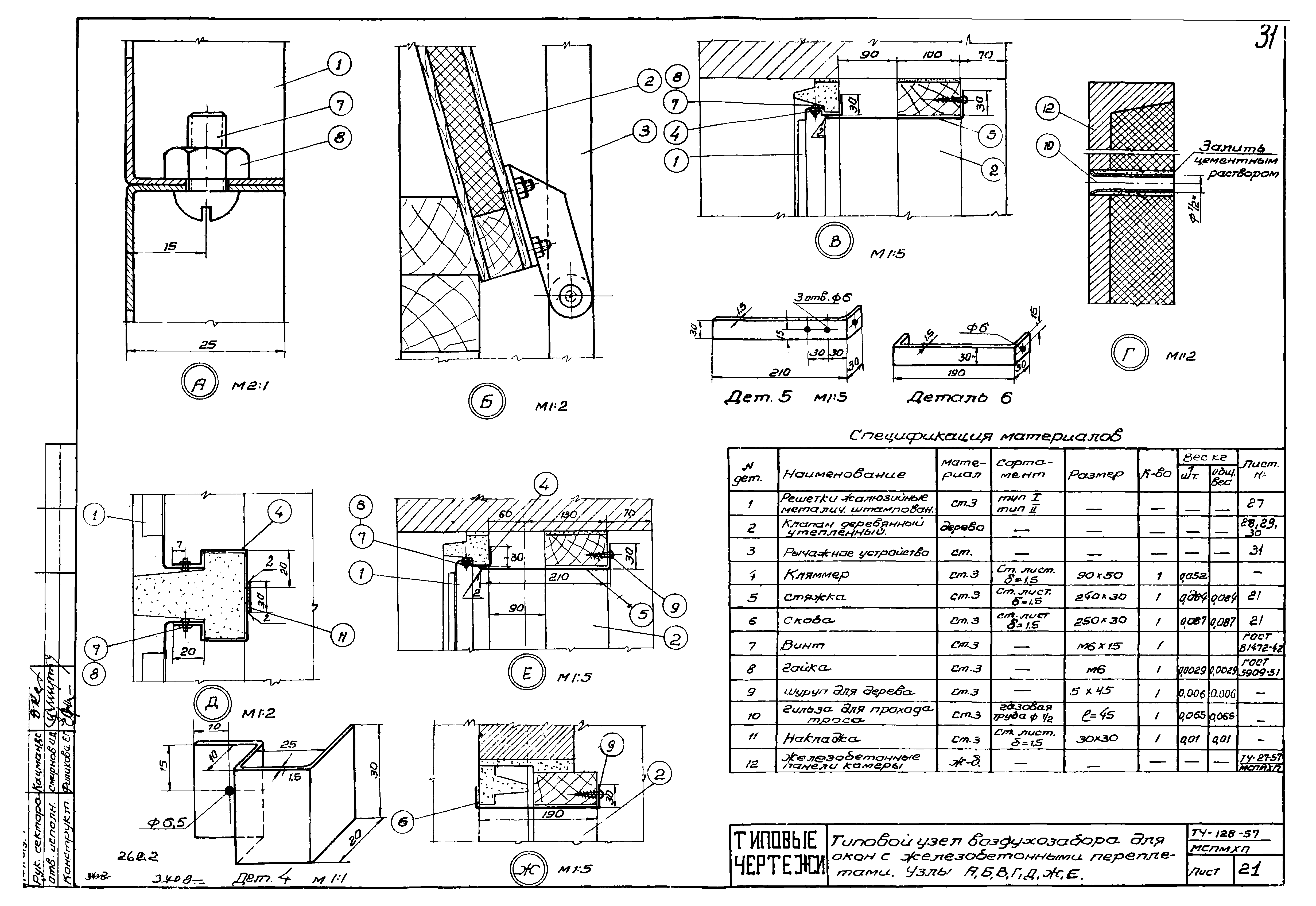
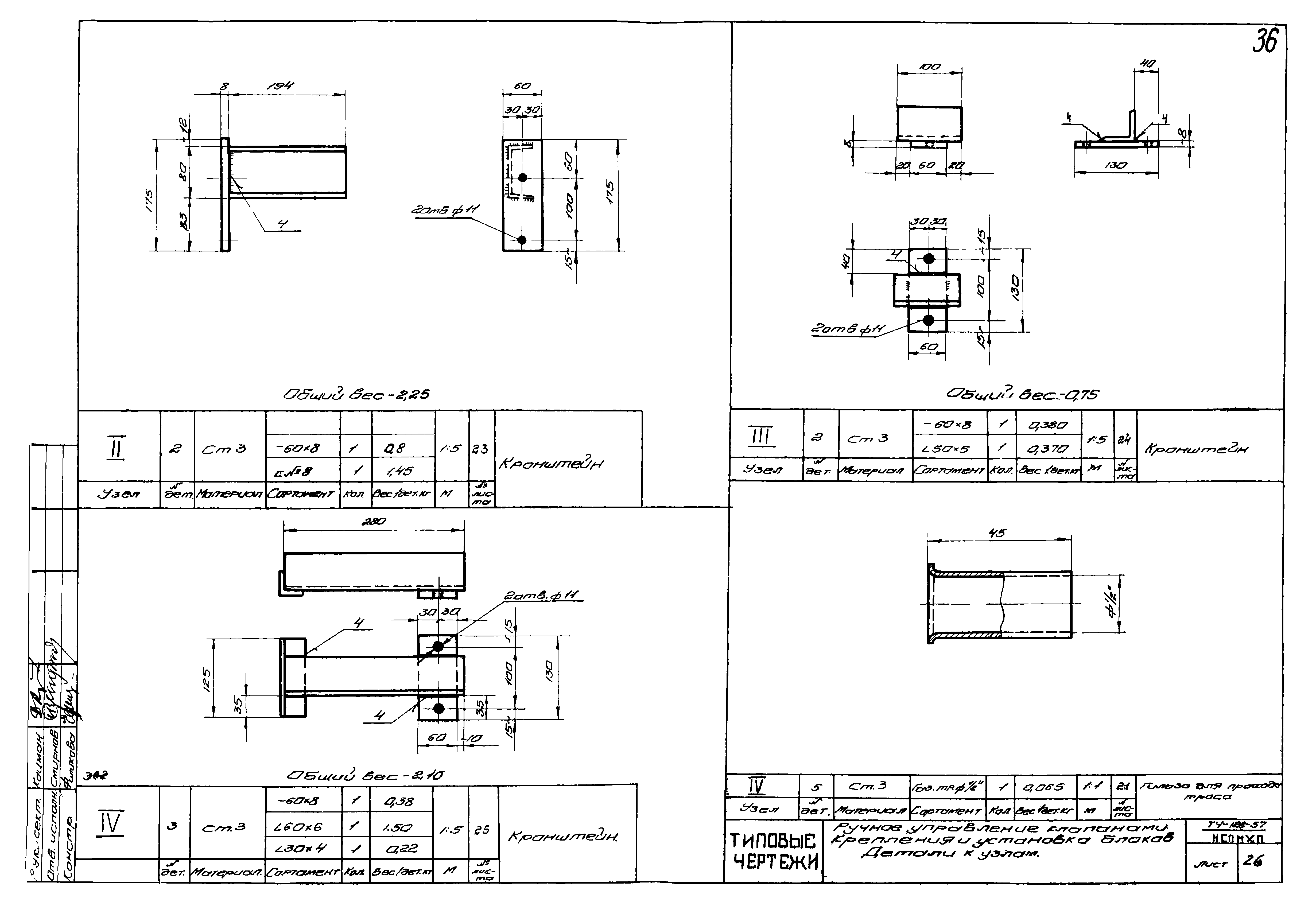
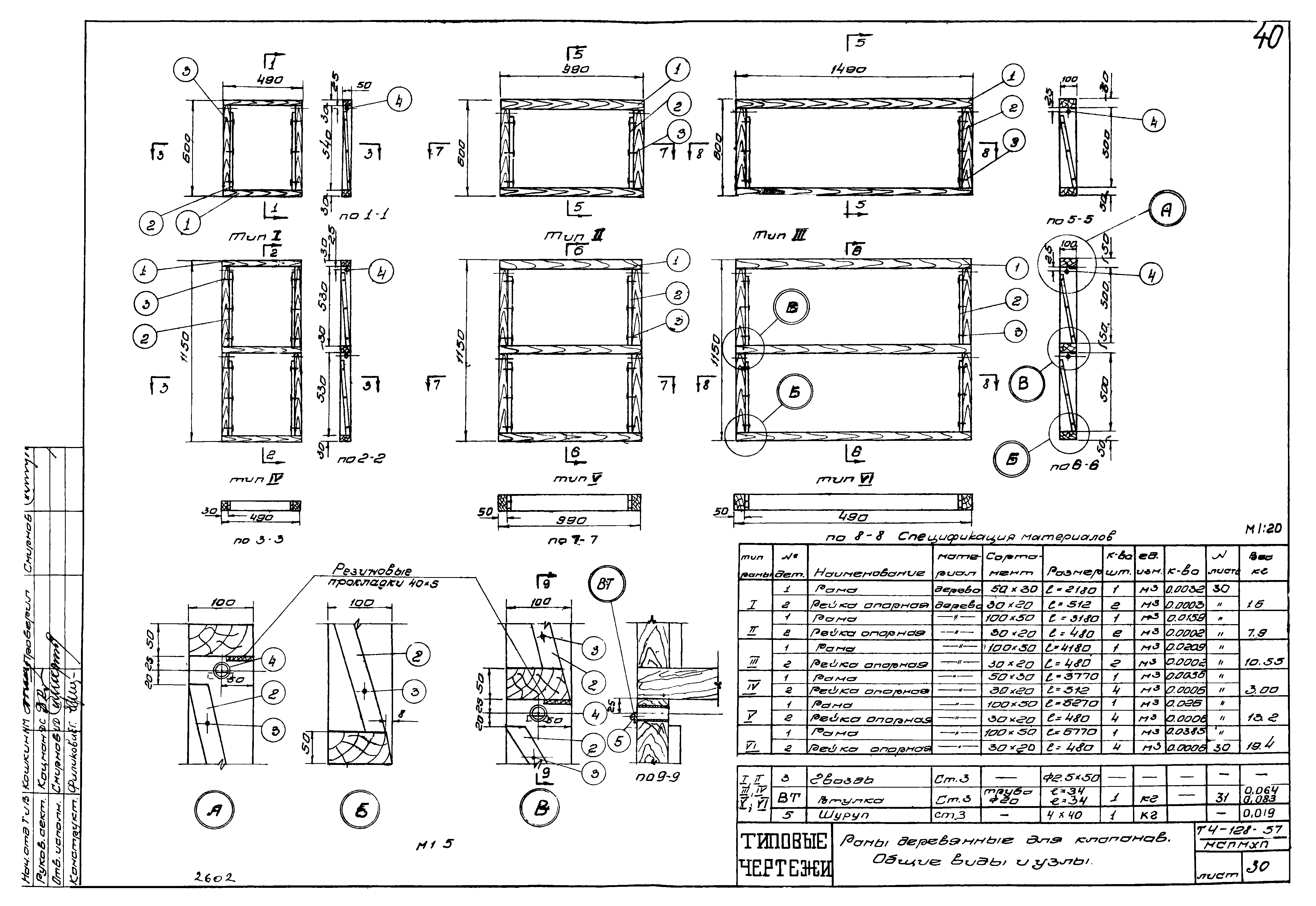
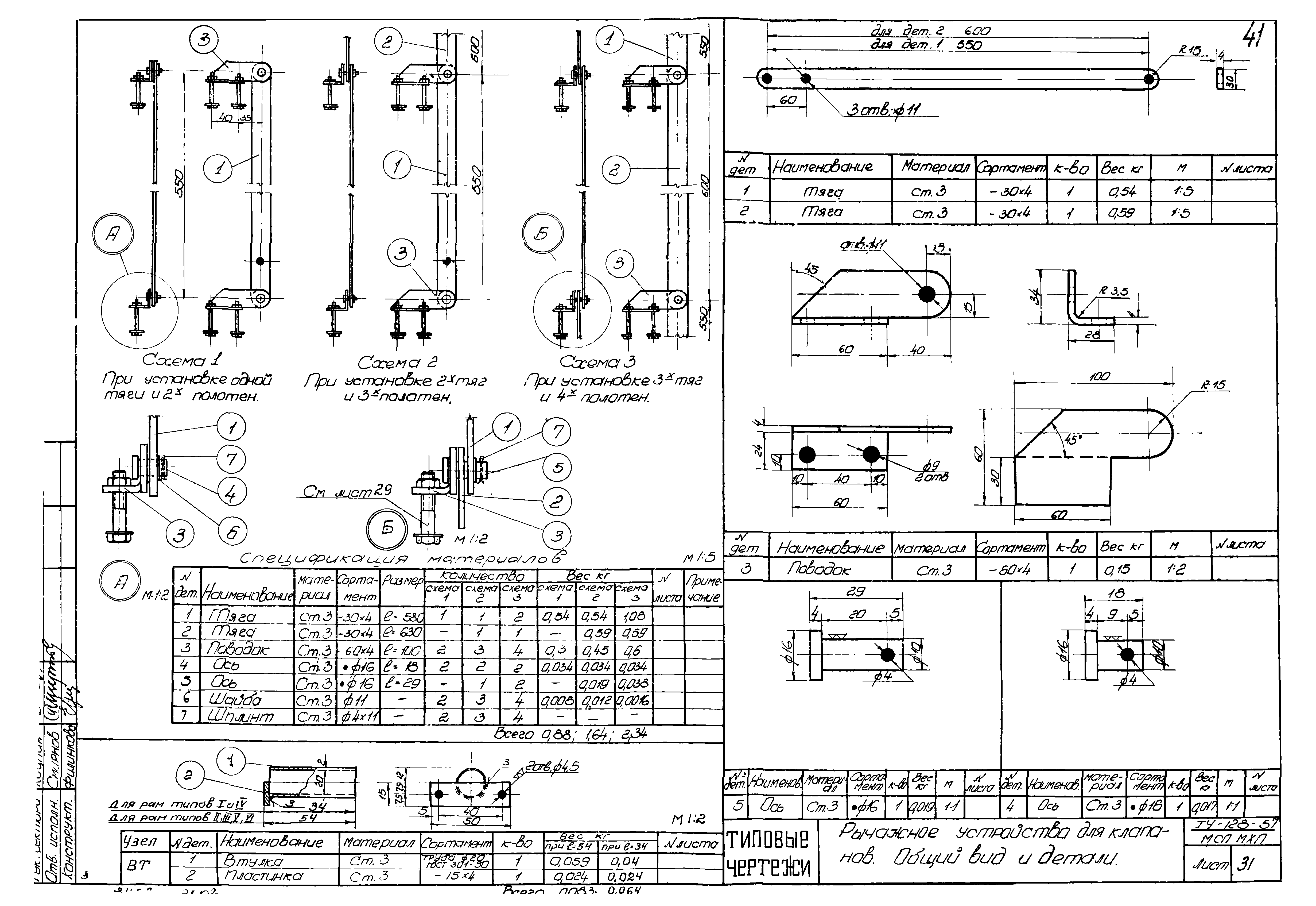
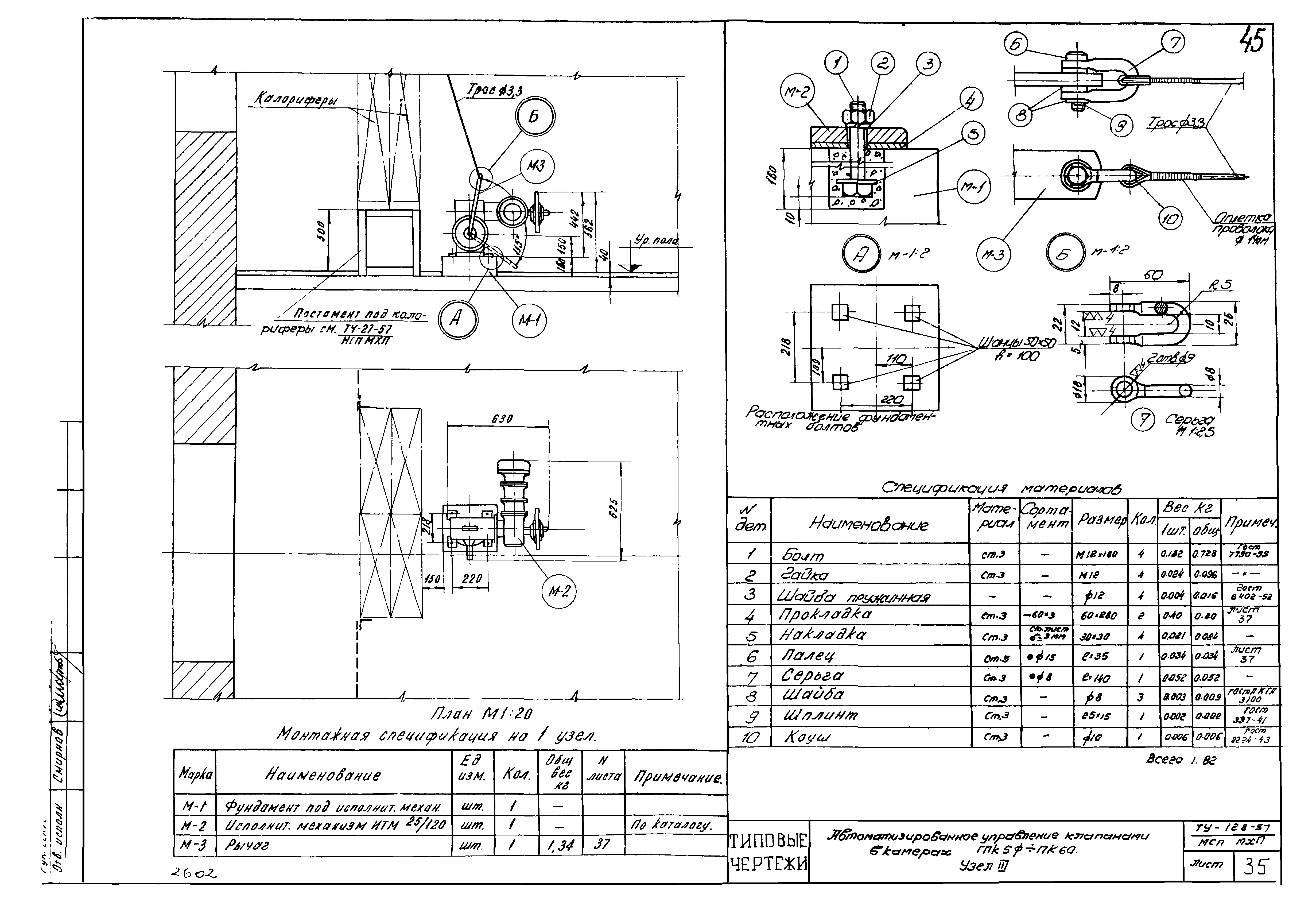
| Оглавление: | Общие указания Чертежи Схемы установки жалюзи в стальных переплетах (камеры ПК5Ф-ПК25) Схемы установки жалюзи в стальных переплетах (камеры ПК30-ПК60) Монтажные схемы расположения узлов воздухозабора для окон со стальными переплетами. Планы Монтажные схемы расположения узлов воздухозабора для окон со стальными переплетами. Разрезы и узлы Типовой узел воздухозабора для окон с одинарными стальными переплетами. Вариант 1 Типовой узел воздухозабора для окон с двойными стальными переплетами. Вариант 1 Типовой узел воздухозабора для окон с одинарными и двойными стальными переплетами. (Вариант 1). Узлы Типовой узел воздухозабора для окон с двойными стальными переплетами. Вариант 2 Типовой узел воздухозабора для окон с одинарными и двойными стальными переплетами. (Вариант 2). Узлы А,Б,В,Г,Д,Ж Схемы установки жалюзи в железобетонных переплетах (камеры ПК5Ф-ПК25) Схемы установки жалюзи в железобетонных переплетах (камеры ПК30-ПК60) Схемы установки жалюзи в проемах стен без переплетов (камеры ПК5-ПК60) Монтажные схемы расположения узлов воздухозабора для окон с железобетонными переплетами. Планы Монтажные схемы расположения узлов воздухозабора для окон с железобетонными переплетами (разрезы) и в проемах стен без переплетов. (Планы) Монтажные схемы расположения узлов воздухозабора в проемах стен (без переплетов). Разрезы Монтажные схемы расположения узлов воздухозабора в проемах стен (без переплетов). Узлы А,Б,В,Г,Д,Е,Ж,И Типовой узел воздухозабора для окон с одинарными железобетонными переплетами Типовой узел воздухозабора для окон с двойными железобетонными переплетами. Вариант 1 Типовой узел воздухозабора для окон с двойными железобетонными переплетами. Вариант 2 Типовой узел воздухозабора для окон с железобетонными переплетами. Узлы А,Б,В,Г,Д,Ж,Е Ручное управление клапанами. Установка и крепление блоков. Узел 1. Вариант 1 Ручное управление клапанами. Установка и крепление блоков. Узел 2. Вариант 2 Ручное управление клапанами. Установка и крепление блоков. Узел 3. Вариант 3 Ручное управление клапанами. Установка и крепление блока. (Б60-II и лебедки (Л40-II). Узел 4 Ручное управление клапанами. Крепления и установка блоков. Детали к узлам Решетки жалюзийные неподвижные типа 1 и 2 Клапаны утепленные. Сборка рамы с полотнами Полотна типов 1,2 и 3. Общие виды и спецификация материалов Рамы деревянные для клапанов. Общие виды и узлы Рычажное устройство для клапанов. Общий вид и детали Автоматизированное управление клапанами в камерах ПК5Ф-ПК60. Общие виды Автоматизированное управление клапанами в камерах ПК5Ф-ПК60. Узел 1 Автоматизированное управление клапанами в камерах ПК5Ф-ПК60. Узел 2 Автоматизированное управление клапанами в камерах ПК5Ф-ПК60. Узел 3 Автоматизированное управление клапанами в камерах ПК5Ф-ПК60. Узел 4 Автоматизированное управление клапанами в камерах ПК5Ф-ПК60. Узлы 3-4. Детали 1,2,4,6 Описание схемы автоматизированного управления утепленными клапанами и спецификация Автоматизированное управление клапанами. Принципиальная схема электрических соединений Автоматизированное управление утепленными клапанами. Монтажная схема Монтажные схемы расположения узлов воздухозабора для подвальных помещений |
| Разработан: | Гипротис |
| Утверждён: | 10.06.1957 Министерство строительных предприятий металлургической и химической промышленности |















































